A l’hora d’escollir una casa, molts presten atenció a la mida del bany al darrer lloc, cosa que es considera extremadament errònia. Si la superfície de l’habitació és molt reduïda, no serà fàcil organitzar els elements bàsics, sobretot perquè no quedarà espai per col·locar electrodomèstics i mobles. És possible que la mida del vàter no sigui enorme, però, com a mínim, hi hauria d’haver prou espai per instal·lar-lo còmodament sobre el qual serà còmode seure.
Contingut
- 1 Característiques de la distribució i mida del lavabo a l’apartament
- 2 Quina hauria de ser la mida del lavabo a l’apartament d’acord amb GOST i SNiPam
- 3 Lavabo de mida estàndard per a persones amb discapacitat
- 4 Quins lavabos es consideren estàndard en apartaments nous i antics
- 5 Com es calculen els paràmetres del lavabo, que resultaran còmodes per a tots els membres de la família
- 6 Com reparar un petit vàter: fotos dels interiors acabats
- 7 Com col·locar correctament un lavabo de camp: dimensions i dibuixos
Característiques de la distribució i mida del lavabo a l’apartament
La quantitat de treball en el disseny del lavabo depèn principalment de l'estat de l'habitació, ja que pot ser una habitació amb un acabat rugós o fins i tot amb parets de maó, si parlem d'un edifici nou. En qualsevol cas, independentment de l'estat en què estigui el lavabo en un apartament o una casa, les reparacions haurien de començar amb la planificació interior. En aquest cas, cal tenir en compte la mida de l'habitació i les característiques de la decoració. En funció de la mida del lavabo de la casa, haureu de resoldre els problemes següents:
- Calculeu el nombre d’instal·lacions de fontaneria necessàries que voleu instal·lar. Per exemple, si només es tracta d’un vàter, amb una tassa de vàter i, com a mínim, amb un petit lavabo, n’hi haurà prou, però si parlem d’un bany combinat, haureu de proporcionar un lloc per a una banyera i un conjunt mínim de mobles.
- Penseu en com planificar el disseny de les comunicacions per col·locar tots els elements necessaris. Si l’espai és limitat, podeu adquirir electrodomèstics multifuncionals, com ara un vàter amb funció bidet o una cabina de dutxa amb una safata àmplia.
- Trieu opcions per obtenir un acabat òptim. Per tant, en un petit vàter, no heu d’utilitzar parets de guix, que us eliminaran l’espai útil. També heu d’entendre que, si cal enguixar les parets, s’eliminaran com a mínim 2-10 cm de cada superfície.
Un consell útil! L’àrea del vàter s’ha de calcular a la fase d’acabat i no abans, ja que d’acord amb el material seleccionat, l’àrea també pot canviar. Per exemple, un marc de guix ocupa fins a 10 cm i el guix, segons l'absència o la presència d'una malla de reforç, pren de 2 a 15 cm de cada paret.
Quina hauria de ser la mida del lavabo a l’apartament d’acord amb GOST i SNiPam
En l’etapa de les reparacions d’una casa o apartament, molts intenten augmentar la superfície precisament a causa de la mida del lavabo i, molt sovint, queda molt poc espai per a aquesta habitació. Per no equivocar-vos amb la zona i després no tenir problemes amb els serveis governamentals, heu de tenir en compte les dimensions estàndard del vàter a l'apartament adoptat segons SNiP.
Als documents regulatoris de Rússia, hi ha una àmplia llista de normes que regulen els paràmetres dels lavabos, a més de determinar la mida mínima d’un vàter en un apartament, casa o qualsevol altre espai públic.
A més, les normes estableixen no només la mida, sinó també la ubicació del bany. Per exemple, d’acord amb les normes de la ITV, si, com a resultat de la reurbanització, el vàter es trobava a sobre de la zona d’estar o la cuina, es denegarà el disseny d’aquest apartament, cosa que significa que s’haurà de refer tot. De vegades, la condescendència només es fa quan es dissenyen apartaments de dos nivells. En qualsevol cas, a l'hora de calcular la mida d'un lavabo en un apartament d'una casa de panells, primer hauríeu de pensar tots els matisos.
L’únic moment en què podeu ignorar les normes i normes acceptades és quan planifiqueu la ubicació i la mida del lavabo en una casa particular, si no feu servir cap connexió ni al sistema de clavegueram ni al subministrament d’aigua. Tot i això, abans d’abandonar els paràmetres establerts, cal tenir en compte les dimensions estàndard del vàter, regulades per SNiP:
- amplada: no inferior a 0,8 m;
- longitud: des de 1,2 m;
- alçada de la paret - des de 2,5 m.
Segons les normes, es distingeixen les mides estàndard del lavabo de l’apartament, que s’indiquen en aquesta taula:
Tipus d'habitació | Amplada, m | Longitud, m | Superfície, m2 |
Bany amb lavabo i lavabo instal·lats | 1 | 1,5 | 1,5 |
Lavabo i bany combinats | 1,98 2,5 2,5 |
1,73 1,6 2,35 |
3,42 4 5,9 |
Bany combinat amb dutxa (en lloc de banyera) | 1,4 | 1,6 | 2,24 |
Quan es planeja un vàter en una casa privada, es poden completar aquestes normes i convertir-se en una habitació més àmplia on tots els articles de fontaneria hi caben lliurement, deixant prou espai per a un moviment còmode.
Un consell útil! Si s’assigna una àmplia superfície per a un bany, per exemple, de 6-7 m2, i hi viuen un gran nombre de persones a la família, es pot dividir en dues habitacions separades de ple dret. Es recomana instal·lar no una banyera, sinó una dutxa en una habitació, però és millor instal·lar un lavabo amb lavabo a les dues habitacions. A l’hora de dissenyar aquests banys, podeu utilitzar-los a doble cara instal·lacions... La mida mínima recomanada d’un lavabo amb lavabo en una casa particular és de 2-2,5 m2.
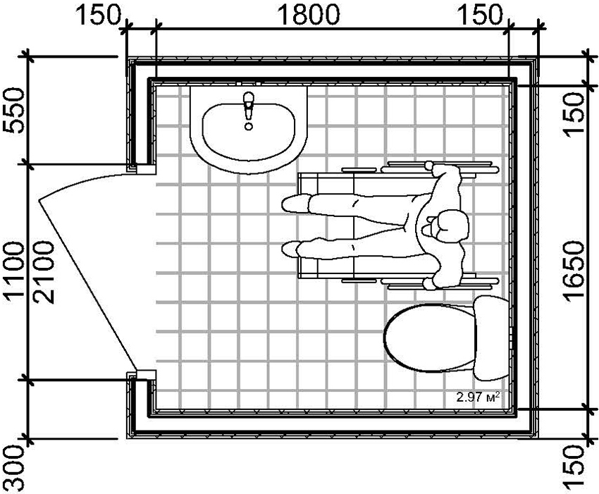
Dimensions mínimes del vàter a tenir en compte a l’hora de planificar l’espai
A part, s’ha de dir que, segons els estàndards acceptats, si el lavabo es troba a la planta de l’àtic, la distància des de la tassa del vàter fins al sostre inclinat no hauria de ser inferior a 105 cm.
- La porta de l'habitació s'ha d'obrir estrictament cap a l'exterior. No es recomana instal·lar una porta que s’obri.
- La sortida del bany només s’ha d’organitzar al passadís o al passadís. És impossible col·locar la porta del vàter a prop de la zona d’estar i, encara més, de la cuina.
- En sortir del passadís, l’alçada del sostre no hauria de ser inferior a 210 cm, cosa important si teniu previst fer un entresòl al passadís.
Els estàndards de GOST i SNiP també regulen la instal·lació de canonades. Per tant, si teniu previst instal·lar no només un vàter al bany, sinó també un bidet, un lavabo o una dutxa, cal tenir en compte els indicadors següents:
- Hi hauria d’haver, com a mínim, 70 cm d’espai lliure davant la cabina de dutxa o el bany.
- Cal retirar el bidet del vàter a una distància mínima de 25 cm. El dispositiu es pot col·locar a banda i banda.
- La distància òptima des de l’eix central del bol fins a la paret lateral és de 45 cm.
- Hi ha d’haver 60 cm d’espai lliure des de la part frontal del vàter fins a la paret més propera; es recomana deixar de 25 a 35 cm als laterals.
- Si s’instal·la un lavabo, la distància d’aquesta a la superfície més propera no ha de ser inferior a 70 cm.
Cal tenir en compte que les normes proposades són més adequades quan es tracta d’un vàter amb una àmplia superfície, quan és difícil decidir com col·locar tots els articles de fontaneria. Sovint, l'àrea del vàter a Khrushchev no supera algunes places. En aquest cas, la tassa del vàter s’instal·la a la paret posterior al mig de la cabina i poques vegades hi ha espai addicional per a altres elements. També cal tenir en compte que els estàndards anteriors estan més relacionats amb la disposició d’un vàter separat. A l’hora de decorar un bany combinat, no s’apliquen aquestes regles estrictes; quan es reurbanitzi, cal confiar en la comoditat personal.
Informació útil! La superfície mínima del lavabo que es pot trobar és d’1,8-2 m2. Amb un enfocament competent, fins i tot en aquestes condicions, serà possible crear un racó còmode posicionant correctament els mobles i utilitzant una fontaneria funcional moderna.
Lavabo de mida estàndard per a persones amb discapacitat
A part, quan es discuteixen les normes, cal esmentar la mida de la cabina del vàter per a persones amb discapacitat. Per tant, les normes del SNiP 2.08.02-89 sobre edificis públics, que s’expliquen al paràgraf 4.36, regulen les mides estàndard dels banys per a persones amb discapacitat. Segons els requisits, es distingeixen les mides de lavabos següents per a persones amb discapacitat:
- amplada de l'habitació - 1,65 m;
- profunditat - 1,8 m.
Un requisit previ és el fet que la porta s'hagi d'obrir estrictament cap a l'exterior per no interferir en el lliure moviment de la cadira de rodes. Segons la normativa, no són necessaris equips addicionals, com ara urinaris o bidets, però la seva instal·lació es considera molt desitjable.
A més de tenir en compte la mida de la cabina del vàter, també cal seleccionar la ubicació òptima per a la seva ubicació, de manera que una persona amb discapacitat pugui arribar-hi fàcilment sense ajuda addicional. Es considera obligatòria la presència de passamans tant a prop del lavabo com a prop de la pica. L'alçada òptima del passamà és de 75 cm. En aquest cas, cal que el costat des del qual es traslladarà la persona al vàter des de la cadira, sigui plegable.
Important! Les dimensions de les portes del bany i del vàter han de ser tals que una persona amb cadira de rodes pugui passar-hi amb seguretat.
En un lavabo destinat a una persona amb discapacitat, l’aigüera s’ha d’instal·lar a un nivell no superior a 80 cm i el mirall a una alçada d’1 m. usuari de cadira de rodes. El botó de desguàs també s’ha de muntar a una alçada convenient, el millor és que estigui situat en un dels passamans.
Si una persona té problemes amb les articulacions del maluc o el genoll, l’alçada de la tassa del vàter al vàter hauria de ser superior a l’estàndard (uns 45-60 cm). En aquest cas, cal parar atenció a la mida de la instal·lació del vàter.La instal·lació permet ajustar l’alçada del vàter i no requereix la instal·lació de podis innecessaris ni d’altres tipus de bases. Les dimensions mínimes d’un lavabo en una casa o apartament particular destinats a persones amb discapacitat són:
- l'amplada del bany amb la pica instal·lada és d'1,6 i la longitud és de 2,2 m;
- lavabo combinat amb banyera - 2,2x2,2 m.

Les dimensions mínimes d’un vàter per a persones amb discapacitat: profunditat - 180 cm, amplada - 165 cm
Si un bany per a persones amb discapacitat es troba en un lloc públic, s’ha de col·locar un rètol especial a la porta i s’ha d’instal·lar un botó d’alarma a l’interior a una altura adequada.
Quins lavabos es consideren estàndard en apartaments nous i antics
La superfície del vàter de l’apartament sempre s’ha determinat segons les normes de l’SNiP. En les darreres dècades, aquests indicadors no han canviat, almenys les dimensions mínimes han estat definitivament inalterades. Els apartaments de l’antic fons poques vegades podrien presumir de paràmetres de bany grans, però fins i tot en una zona limitada podeu organitzar un espai còmode i còmode amb prou espai lliure.
A l’hora de planificar l’interior d’un petit vàter, els experts recomanen complir les regles següents:
- Feu mesures acurades de la sala i dibuixeu un esquema de la sala, tenint en compte totes les mides, nínxols i obertures.
- Penseu en detall en el pla de l’habitació, dibuixeu tots els accessoris de fontaneria tenint en compte les dimensions i comproveu si tot s’adapta a l’habitació i si hi ha prou espai lliure per a un moviment sense obstacles. En aquesta etapa, podeu determinar el nombre de dispositius per entendre què podeu rebutjar.
- Disposar nínxols i cantonades. Per a una correcta organització d'una àrea petita, es recomana utilitzar al màxim estructures integrades i articulades. Per estalviar espai, podeu instal·lar un lavabo en un nínxol o fer un armari encastat per a petites coses.
Article relacionat:
Reparació d’un vàter d’un apartament o casa: com crear un bell disseny
Funcions, avantatges i cost d’un servei clau en mà. Com fer una bella reparació de bricolatge: recomanacions i una guia pas a pas.
També és important pensar per endavant sobre les dimensions de la fontaneria escollida. Si el vàter és petit, no hauríeu de comprar un vàter de més de 60 cm de profunditat, ja que serà incòmode utilitzar-lo en un dispositiu gran i mal instal·lat.
Pel que fa als dissenys moderns dels edificis nous, aquí, per regla general, s’assigna una àmplia superfície per a un bany. Els petits apartaments moderns es caracteritzen generalment per la presència d’un vàter d’uns 4 m², mentre que els apartaments de més de 60 m² tenen un bany independent o un lavabo gran combinat amb una banyera, la mida dels quals arriba als 6 m².
A més, els moderns habitatges de luxe poden complementar el vàter, la mida del qual és de 9 m². Aquesta zona serà suficient per organitzar l’habitació més còmoda amb tots els electrodomèstics, armaris amplis per a roba de llit i productes químics per a la llar. En alguns casos, s’instal·la una taula de planxar integrada en un bany tan gran, on és convenient planxar la roba.
Si parlem d’edificis nous, per a qualsevol àrea de l’apartament s’observen certes regles quant a la mida del bany. Així, en els nous apartaments d’una habitació, la zona d’aquesta habitació permet col·locar lliurement tots els elements necessaris: un bany, un lavabo, un lavabo. Sovint queda un racó per a una rentadora o una cistella per a la roba bruta.
En apartaments de dues i tres habitacions, sovint es preveu col·locar un bany independent. La distribució dels apartaments de 80 a 100 m², en funció de la superfície total de l’habitatge, ofereix dos banys de diverses mides.Les dimensions recomanades per a les portes del vàter són obertures de 55-60 cm sense tenir en compte l’amplada dels brancals.
Com es calculen els paràmetres del lavabo, que resultaran còmodes per a tots els membres de la família
En la majoria dels casos, ampliar els límits d’un petit vàter en un edifici de gran alçada o qualsevol altre edifici públic es considera poc realista, perquè això requerirà no només prendre la zona d’una altra habitació, sinó també pensar en la demolició de murs i la seva construcció en un lloc nou. Aquest número es presenta d’una manera completament diferent a l’hora d’organitzar un lavabo en una casa privada, quan es pot planificar la mida òptima d’un bany fins i tot en la fase de construcció i crear una distribució de les habitacions.
Abans de crear un pla per a una casa, cal decidir amb antelació quin tipus de bany heu d’organitzar: conjunt o separat, i també podeu pensar en la presència de diversos lavabos per endavant. En aquest cas, la majoria de les vegades fabriquen un petit vàter separat amb un lavabo i un lavabo, i a la segona habitació hi ha un bany combinat complet.
Un consell útil! Tothom en la fase de construcció de la seva pròpia casa vol fer que totes les habitacions siguin el més grans possibles. És millor realitzar aquest desig quan es planifica un dormitori o una cuina grans, però no es considera raonable assignar més de 6-7 m² per a un bany. Aquesta àrea es va calcular tenint en compte els estàndards i les característiques de la col·locació d’aparells de fontaneria.
La taula mostra l’àrea òptima, suficient per a la instal·lació d’una o altra fontaneria:
Nom del dispositiu | Superfície lliure, m2 |
Cabina de dutxa | 2-2,5 |
Bany | 2-3,5 |
Lavabo | 1-2 |
Aigüera | 0,7-1 |
Abans de planificar la situació, us heu de familiaritzar amb les dimensions estàndard de la fontaneria, per exemple, la longitud del vàter, segons el model i la mida, varia de 460 a 605 mm, l’amplada és de 300 a 400 mm i l’alçada arriba als 40 cm. i lavabos compactes de mida reduïda, a més de bols amb paràmetres augmentats, dissenyats per a persones molt grans i amb discapacitat.
El bidet sol tenir unes dimensions estàndard: 60x40 cm. Es considera que l’amplada més comuna de la banyera és de 70-85 cm i l’alçada, en funció de l’absència o presència de potes, varia de 48 a 64 cm. Molts bols es distingeixen al llarg de la longitud, per exemple, hi ha petits banys asseguts. fins a 120 cm de mida. La longitud òptima és de 150 a 170 cm, que és suficient per acomodar una persona de construcció mitjana. Les dutxes poden ser quadrades o de qualsevol altra forma. Els lavabos tenen diferents amplades i la profunditat sol ser de 40-60 cm.
Com reparar un petit vàter: fotos dels interiors acabats
Abans de dissenyar un petit vàter en una casa de panell o en qualsevol altre habitatge, primer heu de pensar en les característiques de la reparació. Un lavabo i un bany, encara que estiguin dividits en habitacions diferents, es consideren tanmateix un bany únic quan es decora quin ha d’utilitzar el mateix estil, color, textura i els mateixos materials d’acabat. A més, abans de començar la reparació, heu de decidir la quantitat i el tipus de fontaneria, ja que la instal·lació sota un vàter o bidet penjat s’hauria de fixar abans d’acabar les parets.
Un consell útil! En un bany compartit de qualsevol mida, es recomana utilitzar rajoles ceràmiques a totes les superfícies, excepte al sostre, que conserven el seu aspecte durant molt de temps i no estan exposades a la humitat. En un lavabo petit i separat, el paper pintat es pot utilitzar per a la decoració de parets si es vol, però la ceràmica encara es considera la millor opció.
Podeu ampliar visualment els límits d’un bany petit fins i tot amb l’ajut d’acabats lleugers, però quan creeu un lavabo de 4 m².Ja podeu mostrar més imaginació i aplicar qualsevol combinació de colors. Aquí, a més de la pica i el lavabo, ja serà possible subministrar fontaneria addicional, electrodomèstics, mobles petits, per exemple, podeu instal·lar un armari de paret amb portes corredisses o batents per emmagatzemar articles per a la llar.
És important disposar un lavabo en una zona molt petita a l’estil loft, perquè la direcció accepta la presència de comunicacions obertes, així com una quantitat mínima de decoració a les parets. Un tret característic d’un altell és la presència de maons, de manera que podeu estalviar en acabar almenys una paret. Al mateix temps, cal estar segur que els maons oberts en un petit vàter no causaran lesions.
Si mireu fotos de dissenys de vàters per a una àrea petita, sovint podeu observar la presència de mobles de cantonada i de lampisteria incorporada. Aquesta tècnica permet maximitzar les zones no reclamades a la cantonada i alliberar més espai lliure a la part central de la sala. A Internet es presenta una àmplia selecció de fotos de petits lavabos interiors, que demostren que fins i tot un petit espai es pot fer inusual i còmode.
Com col·locar correctament un lavabo de camp: dimensions i dibuixos
La fabricació d’un petit vàter rural a l’aire lliure està previst en el cas que sigui bastant difícil fer un vàter a la casa. A més del fet que heu d’esbrinar la mida del lavabo d’una casa privada al carrer, heu de prestar molta atenció a l’elecció d’un lloc, perquè en aquest cas també hi ha algunes normes i regulacions. Es considera una mala idea instal·lar un lavabo exterior a la part central de la zona local o prop d’un lloc veí. Es considera que el millor lloc és l’angle interior més llunyà de la dacha, situat a 1 m de la línia de demarcació posterior i lateral.
A més d’escollir un emplaçament convenient per a l’edifici, també heu d’adherir-vos a les normes sanitàries del SNiP, prescrites a la secció núm. 42-128-4690-88. D'acord amb les normes relacionades amb el desenvolupament privat i el territori de les associacions de jardins i dacha, és necessari:
- Executeu un pou no menys de 10-12 m de la zona residencial més propera.
- No localitzeu el lloc d’acumulació d’aigües residuals a menys de 25 m d’un pou d’aigua potable o d’una font d’aigua fixa.
- Instal·leu una cabina del vàter a una distància mínima d’1 m de la tanca.
- Penseu en l’edifici perquè no estigui més a prop de 12-13 m del soterrani o celler.
- Els arbres fruiters més propers del vàter haurien de ser com a mínim de 4 m.
Podeu desviar-vos d’algunes de les normes, especialment per a associacions de dacha situades al llarg de rius o llacs. En aquest cas, es recomana, en lloc d’un pou d’escombraries, organitzar una fossa sèptica hermètica que no perjudiqui els embassaments dels voltants. El contenidor amb residus s’hauria de situar de manera que un camió de clavegueram pugui arribar fàcilment fins allà. Quan es planeja un pou de deixalles, cal tenir en compte la rosa dels vents, de manera que l’olor constant de la claveguera no interfereixi amb el descans normal.
Com determinar correctament la mida òptima del vàter
Per determinar correctament la mida d’un vàter exterior, primer hauríeu de pensar en el tipus de construcció. Aquesta pot ser la versió generalitzada generalitzada d’un vàter “de poble” amb un pou d’aigües profundes o d’un modern “armari de joc”, durant la construcció del qual es pensa que es troba una fossa sèptica amb impermeabilització completa per evitar la contaminació del sòl i de les aigües subterrànies. Es considera que una altra opció menys comuna és un armari sec, que s’instal·la simplement dins de l’estand erigit, però la complexitat de cuidar-lo no va contribuir a la seva popularitat. Es consideren les mides estàndard d’un lavabo de camp:

Es considera que les dimensions mínimes òptimes per a un vàter exterior són d’1,2 m d’amplada i 1,5 m de profunditat.
- Una casa rectangular ordinària amb quatre parets paral·leles, amb un seient de vàter o un forat normal al terra, ha de tenir una profunditat d’1,5 m com a mínim i una amplada d’1,2 m com a mínim.
- Quan es planeja un vàter que tingui una forma triangular de cabana o cabana, la profunditat s’ha de pensar al nivell d’1,5 m i l’amplada ha de ser d’almenys 1 m. Per fer-ho convenient estar al vàter, s’ha de deixar més de 40 cm d’espai des del cap fins a les parets inclinades en posició de peu. ...
En general, es considera que l’alçada òptima d’un vàter al carrer és de 2-2,5 m, suficient per a persones d’alçada mitjana. Si es preveu col·locar un seient de vàter com a seient, també s’adhereixen a les normes d’instal·lació de lavabos en un apartament, l’alçada dels quals no excedeix els 50 cm. El principal avantatge d’instal·lar una cabana de vàter és una bona estabilitat estructural i menys susceptibilitat a afluixar-se sota la influència del vent en comparació amb un vàter rectangular estàndard.
Lavabo de bricolatge: dibuixos dimensionals, les principals etapes de la construcció
La creació d’un esquema i un dibuix de l’edifici es realitza en la fase de planificació d’un vàter exterior. A més del fet que el diagrama preliminar us ajudarà a triar les dimensions correctes, però també amb la seva ajuda, podeu calcular el consum de material de construcció que es necessitarà en el procés de fabricació i protegir-vos de compres innecessàries.
Informació útil! El pla mostra l'estructura amb detall, tenint en compte les dimensions, formes i tipus d'edifici requerits. Podeu intentar desenvolupar un dibuix vosaltres mateixos o trobar projectes ja preparats per als lavabos del país a Internet.
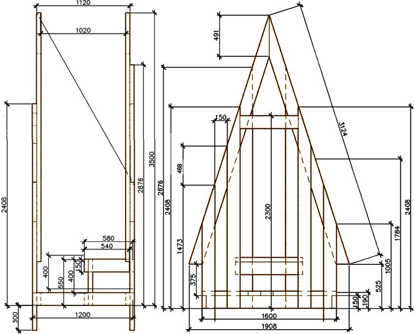
La manera més senzilla és construir un estand tradicional de fusta que, si cal, serà fàcil de reinstal·lar en un lloc nou. Com a materials principals s’utilitzen taulers, taulers, fulls de fusta aglomerada o contraxapat. La forma més ràpida és fer un vàter amb taules de fusta. Quan es construeix un vàter convencional d’una sola vessant, s’han de tenir en compte els paràmetres següents:
- alçada de la paret posterior: 2 m;
- alçada de la paret frontal: 2,3 m;
- ample 100-150 cm.
La mida òptima de la base és de 150x150 cm, que serà suficient per a una persona de qualsevol construcció. No us heu de basar en un ull durant la construcció; és millor instal·lar panells amb un nivell. En general, la construcció d’un lavabo campestre consta de les etapes següents:
- S'aboca una petita base en forma de solapa, que es col·loca a menys de 20 cm de la vora del pou.
- En el cas de crear un edifici de maó capitell entre la base i el marc, es recomana posar una capa d’aïllament en forma de diverses làmines de material per a cobertes. Quan es construeix una casa de fusta habitual, es pot ometre aquest pas.
- A continuació, s’alça el marc amb el seu posterior revestiment.
- A la fase final, es talla un forat amb un diàmetre de 28-30 cm al terra i s’instal·la una porta.
El sostre es pot fer amb una xapa tradicional de pissarra o acer, però es considera que el material de sostre és més lleuger, més pràctic i més segur, cosa que, fins i tot en cas d’un huracà fort, no podrà causar danys greus. Per fer l’estructura més resistent, es fabriquen brocs diagonals a les parets laterals i posteriors. Normalment es fa una finestra al davant. La mida de la finestra del vàter d’una casa privada ha de ser tal que no només pugui proporcionar una ventilació addicional, sinó que tampoc no interfereixi amb la intimitat. La vida útil de l’edifici es pot ampliar significativament recobrint les parets de fusta amb vernís o pintura. Serà útil tractar la base de fusta amb solucions contra incendis.
Fins i tot amb la construcció independent d’un vàter rural, no s’ha d’oblidar de la ventilació, la finalitat principal de la qual és eliminar l’aire de la fossa a l’atmosfera. Com a conducte d’aire s’utilitza una canonada de plàstic de gran diàmetre, com a mínim 10 cm.La part inferior del remuntador està submergida sota la tapa de la brossa fins a una profunditat de 10-20 cm i la part superior de la canonada s’ha de treure per sobre del sostre del vàter entre 20-25 cm.
La mida del lavabo és de gran importància, per tant, durant la fase de planificació, la zona del bany no s’ha de reduir significativament per augmentar les habitacions adjacents. Si la mida del vàter és petita, cal col·locar-lo correctament perquè sigui còmode d’utilitzar. A més, no està fora de lloc instal·lar un petit lavabo a l’habitació. La resta d'articles de fontaneria es munten sempre que sigui possible i si hi ha una gran quantitat d'espai lliure.