Auf dem neuen Immobilienmarkt nehmen Projekte von Häusern mit Dachboden und Garage die führende Position im Bereich des privaten Designs ein. Diese Beliebtheit ist auf die Ästhetik und Vielseitigkeit der Struktur in Kombination mit einem Einsparungsfaktor zurückzuführen. Ein solches Gebäude verfügt jedoch über Funktionen, mit denen Sie sich vor Baubeginn vertraut machen sollten.
Inhalt
- 1 Projekte von Häusern mit Dachboden und Garage: Besonderheiten von Ferienhäusern
- 2 Höhepunkte der Gestaltung eines Hauses mit Garage und Dachboden
- 3 Die Wahl des Materials für den Bau eines Hauses mit Dachboden und Garage: Fotobeispiele
- 4 Übereinstimmung des Umrisses der Struktur mit der Größe des Grundstücks
- 5 Welche Art von Dach im Projekt eines Hauses mit Dachboden und Garage zur Verfügung zu stellen: Fotobeispiele
- 6 Richtige Isolierung eines kleinen Hauses mit Dachboden und Garage
- 7 Innenausstattungsoptionen für ein Haus mit Dachboden
- 8 Projektoptionen zum Erstellen großer Gebäude
Projekte von Häusern mit Dachboden und Garage: Besonderheiten von Ferienhäusern
Ein Haus mit Dachboden - die Fotos zeigen deutlich verschiedene Optionen - ist die rationalste Lösung für ein kleines Grundstück, mit dem Sie den Wohnraum vergrößern können, ohne das Land zu verkleinern. Das Vorhandensein persönlicher Transportmittel wird zum Grund für eine andere beliebte Technik - den Bau eines Hauses mit einer Garage.

Hausprojekt mit Dachboden und Garage für ein Auto
Cottage-Projekte mit Garage und Dachboden haben eine Reihe von Vorteilen:
- Durch die Kombination zweier Funktionsbereiche können die mit der Projektentwicklung und der Durchführung von Bauarbeiten verbundenen Kosten gesenkt werden.
- Die angrenzende Lage des Wohnbereichs und der Garage schafft in letzterem eine komfortable Umgebung, was zu einer Verringerung der mit der Heizung der Garage verbundenen Kosten führt.
- Durch die Schaffung eines internen Durchgangs können Sie sich frei vom Raum in die Garage bewegen, ohne nach draußen zu gehen, was besonders bei schlechtem Wetter praktisch ist.
- Die Schaffung eines Dachraums bietet eine Vergrößerung des Wohnraums, was besonders für einstöckige Gebäude wichtig ist.
- Ein kompaktes multifunktionales Gebäude ermöglicht es Ihnen, die freie Fläche des Landes erheblich zu schonen.
- Der Bau des Dachbodens wird viel billiger sein als der Bau des zweiten Stocks.
- Auf dem Dachboden können Sie den Wohnraum zusätzlich isolieren und vor Zugluft schützen.
- Eine angebaute Garage kostet viel weniger als ein freistehendes Element.
- Die Gebäude haben ein stilvolles und präsentables Erscheinungsbild, wodurch sie sich von anderen Gebäuden abheben.
Höhepunkte der Gestaltung eines Hauses mit Garage und Dachboden
Bevor Sie sich mit einem typischen Projekt befassen oder eine Bestellung für eine einzelne Bauoption aufgeben, sollten Sie sich für die wichtigsten Punkte entscheiden.Neben dem attraktiven Äußeren des Gebäudes verdienen folgende Positionen Beachtung:
- Auswahl des Grundmaterials für den Bau des Gebäudes;
- Kombination des Gebäudes mit der umgebenden Landschaftsgestaltung;
- Übereinstimmung des Umrisses der Struktur mit der Größe des Grundstücks;
- Wahl der Gebäudedachkonstruktion;
- die notwendige Isolierung des Daches des Dachbodens;
- Innenausstattung.
Es wird empfohlen, Spezialisten, darunter Architekten, Ingenieure, Bauherren und Designer, mit der Entwicklung eines Hausplans mit Dachboden und Garage zu beauftragen. Dank dessen können Ungenauigkeiten bei Berechnungen und technische Fehler im Projekt beseitigt werden.
Das Dach erfordert besondere Aufmerksamkeit, deren Gestaltung sorgfältig durchdacht werden muss. Feuchte warme Luft, die aus dem Haus aufsteigt, bildet Kondenswasser und natürliche äußere Einflüsse in Form von Niederschlag und Sonne können den Zustand der Innenausstattung des oberen Raums verschlechtern. Um dies zu verhindern, sollten Sie die Wärme-, Wasser- und Dampfsperre richtig organisieren.
Die Wahl des Materials für den Bau eines Hauses mit Dachboden und Garage: Fotobeispiele
Für den Bau eines Ferienhauses mit Dachboden und Garage können Sie Ziegel, Schaumstoffblöcke, Porenbeton, Holzbalken und Sandwichelemente verwenden. Jede Option hat unbestreitbare Vor- und Nachteile. Die Wahl des Materials hängt von der Klimazone des Gebiets und den Eigenschaften des Bodens ab.
Hilfreicher Rat! Weniger kostspielig und mühsam während des Baus ist Rahmen Garage mit einem Dachboden.
Das klassische Material für den Bau von Häusern ist Ziegel, das kostengünstig ist und ein guter Wärme- und Schalldämmer ist. Eine Mauer ist eine der stabilsten Strukturen, die das Gewicht des Dachbodens tragen kann. Tragende Wände müssen nicht verstärkt werden, was den Bau eines Hauses spart. Dieses Material schafft ein solides, zuverlässiges Erscheinungsbild der Struktur.
Hilfreicher Rat! Ein Dachbodenraum kann nach Abschluss des Baus eines Backsteinhauses geschaffen werden, was bisher im Projekt nicht vorgesehen war.
Ein weiteres traditionelles Material für den Bau von Flachbauten ist Holz. Sie hat wie Ziegel hohe Wärme- und Schalldämmeigenschaften. Darüber hinaus ist es ein umweltfreundliches Produkt. Ein Haus aus Holzbalken wird ein ansehnliches Aussehen haben. Darüber hinaus kann eine Holzkonstruktion über 50 Jahre halten.
Holz neigt jedoch zu einer schnellen Entzündung, was die Brandgefahr erhöht. Dies kann zur Zerstörung nicht nur des Wohnraums, sondern auch des Autos in der Garage führen. Darüber hinaus hat das Material ziemlich hohe Kosten, was für Menschen, die nicht auf Finanzen beschränkt sind, akzeptabler ist.
Moderner Baustoff für den Bau von Häusern mit Dachboden
Belüftete Beton- oder Gassilikatblöcke sind heute sehr beliebt. Sie haben die gleichen Leistungsmerkmale wie Ziegel, aber der Bau eines Gebäudes wird erheblich vereinfacht. Die Elemente sind leicht, so dass die Bauarbeiten alleine durchgeführt werden können. Es hilft auch, die Belastung des Gebäudefundaments zu verringern. Das Material hat jedoch die schlechteste Tragfähigkeit, die bereits in der Konstruktionsphase berücksichtigt werden sollte. Die visuelle Anwendung des Materials ist auf dem Foto von Projekten von Häusern aus Schaumstoffblöcken mit Dachboden und Garage zu sehen.
Sandwichplatten werden als komplettes Set geliefert. Die Bestandteile der Struktur werden nach einem vorentwickelten Projekt eines Dachhauses mit Garage unter Berücksichtigung der Anordnung der Räume hergestellt. SIP-Panels werden gemäß dem Zeichnungsplan zusammengebaut.Nach dem Bau der Paneele ist es nicht möglich, eine zusätzliche Garage oder einen Dachboden zu planen.
Der Bau eines Rahmenhauses mit Garage und Dachboden ist einfach, aber hier ist es wichtig, die Belastung des Rahmens korrekt zu berechnen. Wenn dies nicht getan wird, wird die Struktur nicht überleben und sich wie ein Kartenhaus bilden. Die Verwendung dieses Materials erleichtert den Prozess der Innenausstattung.
Übereinstimmung des Umrisses der Struktur mit der Größe des Grundstücks
Wenn es notwendig ist, einen großen Wohnraum mit einer bescheidenen Grundstücksgröße zu schaffen, wählen viele zweistöckige Gebäude, von denen verschiedene Variationen auf dem Foto von Projekten von 8 x 10 Häusern mit Dachboden und Garage zu sehen sind. Die tägliche Bewegung der Treppe wird jedoch nur wenigen gefallen. Dies gilt insbesondere für ältere Menschen und Menschen mit eingeschränkter Mobilität. In diesem Fall sollten Sie auf Projekte von einstöckigen Häusern mit Garage und Dachboden achten.
Wenn das Gelände eng ist, ist es besser, die Option eines Gebäudes mit einer leeren Wand zu bevorzugen, an der es keine Fenster und Türen gibt. Mit dieser Lösung können Sie ein Haus mit Dachboden in unmittelbarer Nähe der Grundstücksgrenze bauen. Entlang der Längswände kann ein Gebäude für den Haushaltsbedarf aufgestellt werden.
Bei der Auswahl einer Raumaufteilung ist es erforderlich, das Wohnzimmer und die Schlafzimmer an den Enden des Gebäudes anzuordnen, wodurch ein maximales Eindringen von natürlichem Licht in den Raum einschließlich des Dachbodens gewährleistet wird. Der Eingang sollte im Giebel oder Endteil platziert werden. Platzierung einer Garage mit Dachboden - die Fotos zeigen dies deutlich - ein Giebel wird ebenfalls gewählt.
Welche Art von Dach im Projekt eines Hauses mit Dachboden und Garage zur Verfügung zu stellen: Fotobeispiele
Typischerweise wird bei typischen Projekten von Häusern mit Garage und Dachboden ein Dach vorgesehen, das gleichzeitig das Hauptgebäude und eine Erweiterung in Form einer Garage abdeckt. Es gibt Optionen, bei denen eines der Dachzimmer über der Garage angeordnet ist. Wir können sofort davon ausgehen, dass jede Art von Dach für solche Gebäude geeignet ist, dies ist auf dem Foto von Projekten von Häusern mit einer Garage für 2 Autos deutlich zu sehen. Wie die Praxis zeigt, sind einige Optionen wirtschaftlich ungerechtfertigt, da sie erhebliche finanzielle Kosten erfordern. Darüber hinaus können einige Arten von Strukturen aufgrund der hohen Gebäudehöhe nicht in einer bestimmten Klimazone angeordnet werden.
Bei Projekten eines kleinen Hauses mit Dachboden und Garage sind Giebel, Hüfte und halbe Hüfte die am besten geeigneten Dachtypen, die auf dem Foto deutlich zu sehen sind. Die einfachste Version ist die Giebelstruktur. Aufgrund eines solchen Daches ist der Dachraum jedoch klein, schmal und unbequem.
Hüft- und Halbhüftdächer sind hüpfend. Dank dieser zerbrochenen Strukturen ist es möglich, 90% der Fläche des Dachraums zu nutzen und gleichzeitig komfortable Wohnzimmer zu erhalten. Die Gestaltung derart komplexer Strukturen erfordert jedoch die Hilfe von Spezialisten. Solche Dachböden sehen sehr ästhetisch und originell aus und unterstreichen die Einzigartigkeit der Struktur.
Hilfreicher Rat! Für eine bequeme und komfortable Bedienung des Dachbodens sollte seine Höhe mindestens 2,5 m betragen.
Sehr beliebt sind Projekte von Dachhäusern, bei denen das Dach des Gebäudes und die Garage ein Ganzes bilden. Aus praktischer Sicht wäre die erfolgreichste Option jedoch, wenn der obere Teil der Garage als Grundlage für die Schaffung einer Dachterrasse dient.
Richtige Isolierung eines kleinen Hauses mit Dachboden und Garage
Häuser mit Dachboden müssen die richtige Isolierung organisieren. Die Garage muss nicht isoliert werden.Gute Belüftung ist hier wichtig. Die schwierigste Phase ist die Isolierung des Dachbodens. Hierbei ist es wichtig, das Auftreten von Zugluft und das Eindringen von kalten Windböen auszuschließen. Außerdem sollte die Abdichtung ordnungsgemäß organisiert sein. Die Wahl der Dämmung hängt von der Art der Räumlichkeiten ab, die sich unter dem Dachboden befinden, und von der Zeitdauer, die auf dem Boden verbracht wird.
Das beliebteste Material ist Schaum. Es wird in Platten geliefert, was den Transport und die Installation erleichtert. Das Material zeichnet sich durch geringes Gewicht, gute Wärmedämmeigenschaften und geringe Kosten aus. Zu den Nachteilen zählen die leichte Zündung und die größere Wahrscheinlichkeit einer Fragmentierung des Produkts während der Installation.
Ein weiteres preisgünstiges Material, das häufig zum Erwärmen von Dachböden verwendet wird, ist Glaswolle, die einen hohen Grad an Wärmeisolierung und Feuerbeständigkeit aufweist. Es ist jedoch schwierig, mit dem Material zu arbeiten, da es gesundheitsgefährdenden Glasstaub in die Luft abgibt, der die Atemwege schädigen kann. Die Installation des Produkts sollte in einer speziellen Schutzausrüstung erfolgen, die die Atmungsorgane und die Haut vor Schäden schützt.
Wichtig! Wenn der Dachboden als Wohnraum genutzt wird, sollte keine Glaswolle verwendet werden.
Das Äquivalent von Glaswolle, die die gleichen Eigenschaften aufweist, jedoch keine Nachteile aufweist, ist Mineralwolle. Darüber hinaus zeichnet sich das Material durch Beständigkeit gegen hohe Luftfeuchtigkeit, gute Dampfdurchlässigkeit, Immunität gegen Keimbildung von Mikroorganismen, verminderte Wärmeleitungseigenschaften und Umweltfreundlichkeit aus. Solche besonderen Vorteile spiegeln sich in den Materialkosten wider.
Innenausstattungsoptionen für ein Haus mit Dachboden
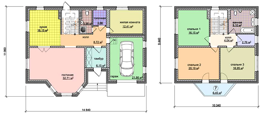
Die Innenausstattung der Räumlichkeiten erfolgt unter Berücksichtigung der Kundenanforderungen bei der Entwicklung eines Projekts für eine Garage mit Dachboden - die Grundrissfotos zeigen deutlich verschiedene Möglichkeiten. Es hängt alles von der gewünschten Anzahl von Zimmern ab, deren Zweck von der Zusammensetzung der Familie und den Anforderungen der Eigentümer bestimmt wird. Diese Gebäude erfordern jedoch besondere Aufmerksamkeit bei der Bestimmung des Weges vom Haus zur Garage und der Art der Treppenkonstruktion.
Einen bequemen und bequemen Aufstieg zum Boden bietet eine Treppe mit einem großen Neigungswinkel. Es ist anzumerken, dass ein solches Design eine große Menge an freiem Territorium erfordert. Ein vernünftiger Ausweg aus dieser Situation ist die Ausstattung einer praktischen Speisekammer unter der Treppe, eines Bücherregals oder eines geräumigen Kleiderschranks für Kleidung oder Haushaltsgegenstände.
Die Wendeltreppe ist kompakt aufgebaut. Es ist jedoch nicht sehr bequem. Bei der Auswahl eines solchen Designs müssen jedoch die Steilheit der Spirale, die optimale Breite der Stufen und die Höhe der Stufen berücksichtigt werden.
In Verbindung stehender Artikel:
Einstöckiges Hausprojekt mit Terrasse: moderne Ideen und Designlösungen
Die Vorteile und Merkmale solcher Gebäude, interessante Layouts und Tipps. Innen- und Außenterrassen.
Der Eingang zur Garage kann direkt vom Haus aus arrangiert werden. In diesem Fall ist es notwendig, über die Gestaltung des Vestibüls nachzudenken. Es sollten Maßnahmen getroffen werden, um den Geräuschpegel zu verringern und eine zuverlässige Barriere gegen das Eindringen von Kraftstoff- und Kohlenmonoxidgerüchen in den Wohnraum zu schaffen. Das Projekt einer Garage für zwei Autos mit Dachboden wird von den Eigentümern bei schlechtem Wetter geschätzt. Trotzdem wird ein Eingang von der Straße zur Garage immer noch als rationaler angesehen.
Projektoptionen zum Erstellen großer Gebäude
Heute gibt es viele Variationen von fertigen Hausprojekte und Ferienhäuser mit Dachboden und Garage. Alle unterscheiden sich in Größe und Innenfüllung.Es gibt Optionen für einstöckige und zweistöckige Gebäude, Räumlichkeiten mit Keller, eine Weinhandlung oder ein Badehaus.
Häuser über 100 m² sind viel einfacher einzurichten. Fotos von Bauplänen zeigen deutlich viele verschiedene Variationen, darunter Projekte einer Garage und eines Dachbodens für 2 Autos. Das Dachgeschoss wird aufgrund des großen Freiraums geräumiger. Hier ist es möglich, mehrere Wohnzimmer zu organisieren, ein Fitnessstudio auszustatten, einen Billardtisch zu stellen oder ein geräumiges Wohnzimmer zu schaffen. Eine Garage, die unterschiedliche Abmessungen haben kann, kann leicht auf beiden Seiten der Struktur angebracht werden. Gleichzeitig ist es unbedingt erforderlich, die Ästhetik des Hauses zu berücksichtigen, damit die Erweiterung ihre Proportionen nicht verzerrt.
Der Bau einer Gesamtstruktur kann nach dem Projekt eines einstöckigen Hauses mit einer Garage für 2 Autos erfolgen. Dies gilt insbesondere dann, wenn die Familie zwei Autos hat. Über der Garage können Sie einen Wintergarten, ein Heimkino oder ein Spielzimmer organisieren, das auf dem Foto einer Garage für 2 Autos mit Dachboden deutlich zu sehen ist.
Sie können der Struktur Stil und Originalität verleihen, indem Sie die Standardwände des Dachbodens durch Glaswände ersetzen. Auch Besitzer von zwei oder mehr Autos werden es zu schätzen wissen Hausprojekt mit Garage unter dem Haus im Erdgeschoss. Die Wohnzimmer befinden sich in diesem Fall auf dem Dachboden, der nach den persönlichen Vorlieben der Eigentümer des Hauses geplant wird. Auf dem Foto von Garagenprojekten mit einem Dachboden sind verschiedene Optionen zu sehen.
Variationen kleiner Hausprojekte: Fotobeispiele
Projekte von Häusern mit einem Dachboden von bis zu 100 m² erfordern eine sorgfältigere Herangehensweise bei der Einrichtung von Wohnräumen und einer Garage. Wenn das Haus länglich und schmal ist, wird die Garage vom Ende angebracht. Bei einer quadratischen Struktur kann die Verlängerung von beiden Seiten erfolgen. Eine andere Option, die häufig im Projekt eines 6 x 8-Hauses mit Dachboden vorgesehen ist, ist die Ausstattung eines Untergeschosses, wo Sie können eine Garage ausrüsten... Mit dieser Lösung erhalten Sie eine kompakte, geräumige, multifunktionale und stilvolle Struktur auf kleinem Raum. Neben der Garage befindet sich ein Dampfbad oder eine Sauna.
Hilfreicher Rat! Projekte von Garagen mit Dachboden, bei denen der Parkplatz im Untergeschoss ausgestattet ist, sollten in hügeligem Gelände verwendet werden. Dadurch wird das Relief optisch geglättet und die umgebende Landschaft sowie das allgemeine Erscheinungsbild des Gebäudes harmonisiert.
Der Dachboden wird in diesem Fall eine kleinere Fläche haben. Hier kann nur ein Raum arrangiert werden. Um den maximalen Freiraum zu erhalten, sollte daher bei der Auswahl der defekten Version besonderes Augenmerk auf die Dachkonstruktion gelegt werden. Für die Datscha-Version kann der Dachraum als Hauswirtschaftsraum genutzt werden. In diesem Fall wird empfohlen, ein Satteldach auszustatten, wodurch erhebliche Baukosten eingespart werden können.
Bei der Gestaltung eines Hauses werden häufig zusätzliche architektonische Elemente verwendet, wodurch nicht nur ein ansehnliches und stilvolles Erscheinungsbild des Gebäudes entsteht, sondern auch der freie Raum im Haus erweitert wird. Eines dieser Elemente ist das Erkerfenster. Fotos von Häusern mit Garage und Dachboden zeigen deutlich die vielen Unterschiede in der Lage.
Sie können auch Spalten und exklusive Fenster verwenden. Eine zusätzliche Anordnung einer Terrasse oder Veranda veredelt das Gebäude und macht es komfortabler. Für einen komfortablen Sommerurlaub ist die Schaffung eines Balkons nicht überflüssig.
Das Projekt eines Hauses mit Dachboden verdient Aufmerksamkeit (das Foto zeigt dies deutlich), bei dem die Garage mit einem Flachdach bedeckt ist, das die Basis der Terrasse bildet.Die Ästhetik und Eleganz des Designs wird durch eine geschickte Kombination von Veredelungsmaterialien erreicht. Eine große Familie wird ein geräumiges Häuschen mit einem Dachboden mit schrägem Dach mögen, das eine maximale gezielte Nutzung des Dachbodens gewährleistet.
Bevor Sie sich für eine bestimmte Option entscheiden, sollten Sie verschiedene Projekte im Detail untersuchen, bei denen im Plan eines Hauses mit Dachboden und Garage alle Arten von Variationen der internen Aufteilung der Räumlichkeiten dargestellt werden. Erfahrene Spezialisten passen die ausgewählte Entwicklung an eine bestimmte Region an und nehmen die notwendigen Änderungen auf Wunsch des Kunden vor.