Für viele Hobbygärtner ist Sommerhaus-Zeitvertreib längst zu einem Lebensstil geworden. Einige von ihnen sind das ganze Jahr über dort, mit Ausnahme einiger kalter Wintermonate, und bereits Anfang Februar beschäftigen sie sich mit Setzlingen und machen ihre ersten Streifzüge in das Gebiet. Die Sommerbewohner sind besonders stolz auf die Sommerküche des Landes: Projekte, deren Fotos häufig im Netzwerk veröffentlicht werden. Gemütliche und funktionale Pavillons, oft selbst gebaut, sind jederzeit bereit, Gäste für eine herzliche Kommunikation willkommen zu heißen. Sommerküche ist ein beliebter Ort auf Datschawo Sie das ausgezeichnete voll genießen können B-B-Qan der frischen Luft zubereitet.

Offene Sommerküche mit Grill zum Kochen
Inhalt
- 1 Planung des Baus einer Sommerküche auf einem persönlichen Grundstück
- 2 Sommerküche auf dem Land: Projekte, Fotobeispiele von Gebäuden aus verschiedenen Materialien
- 3 Beispiele für Fotoprojekte einer geschlossenen Sommerküche auf dem Land
- 4 Erstellen Sie mit Ihren eigenen Händen eine individuelle Sommerküche auf dem Land
Planung des Baus einer Sommerküche auf einem persönlichen Grundstück
Bei der Auswahl eines geeigneten Ortes für den Bau einer Sommerküche auf dem Land müssen Sie viele Details berücksichtigen - vom Projekt selbst bis zu den Geräten, die dort aufgestellt werden sollen. Wie weit wird es von zu Hause entfernt sein? Wird es an das Haupthaus angeschlossen oder wird es ein separates Gebäude im Garten sein?
Leider haben nicht alle Grundstücke genügend Fläche und Sie müssen einen Teil eines Gemüsegartens oder Gartens opfern, um eine Sommerküche zu bauen. Und natürlich die finanzielle Komponente, die ebenfalls berücksichtigt werden sollte. Aber auch eine kleine Sommerküche kann exklusiv aussehen und sich perfekt in den Overall einfügen Landschaftsgestaltung.
Wenn Sie eine Sommerküche in Ihrem Sommerhaus mit Ihren eigenen Händen rechtfertigen möchten, sollten die folgenden Faktoren im Projekt berücksichtigt werden:
- Das Gebäude muss von der Fahrbahn entfernt werden. Toiletten, Klärgruben und Plätze für die Zucht von Haustieren;
- wenn Sie vorhaben, in der Küche zu bauen GrillBei einem Herd oder einem Grill müssen Sie sicherstellen, dass sich keine brennbaren Gebäude in der Nähe befinden (die Brandschutzbestimmungen sehen einen Mindestabstand von 7 m zu anderen Gebäuden mit einer Grundstücksfläche von 10 Acres vor).
- die Möglichkeit, eine Sommerküche in einem Bereich einzurichten, in dem Bäume einen dicken Schatten spenden, der einen komfortablen Aufenthalt gewährleistet;
- die Verfügbarkeit von zusammenfassenden Mitteilungen;
- Gebäudetyp - offene Struktur oder geschlossene Sommerküche;
- Ausrüstung mit Ausrüstung - Elektroofen, Gasofen, Kamin, Kohlebecken, Grill;
- Auswahl an Sommerküchen Design.
Hilfreicher Rat! Berücksichtigen Sie bei der Planung des Baus einer Sommerschmiede mit eigenen Händen die für Ihre Region charakteristische Windrichtung und versuchen Sie, den Herd so anzuordnen, dass kein Rauch in das Erholungsgebiet der Gäste gelangt.
Sommerküche auf dem Land: Projekte, Fotobeispiele von Gebäuden aus verschiedenen Materialien
Die Materialien für den Bau einer Sommerküche auf dem Land mit eigenen Händen werden nach persönlichen Vorlieben und finanziellen Möglichkeiten der Eigentümer des Sommerhauses ausgewählt. Gebäude aus dem lang geliebten Naturstein und Holz sehen organisch aus. Angesichts der Tatsache, dass sich der Markt für Bauprodukte entscheidend entwickelt, können Sie moderne, starke und langlebige Materialien wählen: Polyvinylchlorid, Polycarbonat, Wellpappe und viele andere. Einzigartige Fotos Sommerküchenprojekte im Land hilft Ihnen bei der Entscheidung über die Wahl des Materials für Ihre Option.
Wenn das Sommerhaus mit einem Ziegelzaun eingezäunt ist, sieht der Sommerküchenpavillon aus dem entsprechenden Ziegel oder Stein spektakulär aus. Dieses Material kann verwendet werden, um einen Kamin auszurüsten, Kohlebecken oder grillen. Der Boden kann gefliest werden, der sich perfekt in den Stein einfügt, praktisch für die Küche ist und wechselnden Wetterbedingungen bei einer offenen Version des Gebäudes standhält.
Eine Kombination von Steinstrukturen mit Holzelementen wäre für ein solches Projekt angemessen. Stein-, Ziegel- und Betonkonstruktionen sind langlebig, aber ihre Kosten sind ziemlich hoch. Fotos von Sommerküchenprojekten auf dem Land mit Grill, Grill wird Sie dazu inspirieren, Ihr persönliches Meisterwerk zu schaffen.
Holzpavillons anmutige Lichtdesigns können als Sommerküche auf dem Land dienen. Der Baum fügt sich immer harmonisch in das Garteninnere ein und es ist viel einfacher, solche Strukturen zu bauen. Sie sollten jedoch die besondere und zeitnahe Verarbeitung und Wartung von Holzelementen berücksichtigen, die anfälliger für Verschleiß sind.
Hilfreicher Rat! Pavillon, die als Sommerküche genutzt wird, kann rundum mit Holzbehältern zum Pflanzen verschiedener Pflanzen und Klettern von Blumen ausgestattet werden.

Sommerküche an Sommerhütte im Landhausstil dekoriert
Bei modernen Materialien ist hier alles nur durch Ihr Budget und Ihre Vorstellungskraft begrenzt. Der Bau einer Sommerversion der Küche auf dem Land mit eigenen Händen kann durch die Kombination von Metall und Abstellgleis, Wellpappe und Stein erfolgen. Für den Boden geschlossener Räume werden Linoleum, Laminat, Fliesen verwendet, für Wände - Schindeln, Trockenbau usw. Schauen Sie sich eine Auswahl von Fotos von Sommerküchenprojekten auf dem Land mit Ihren eigenen Händen an.
Beispiele für Fotoprojekte einer geschlossenen Sommerküche auf dem Land
Der Vorteil einer geschlossenen Sommerküche im Land (eine Fotoüberprüfung solcher Projekte bestätigt dies) besteht darin, dass Sie einen solchen Raum zu jeder Jahreszeit unabhängig vom Wetter nutzen können. Sie können freistehend oder an das Haus angeschlossen... In der letzteren Version wird es nicht schwierig sein, die gesamte Kommunikation in die Küche auszudehnen. Von den Geräten sieht ein Sommerküchenprojekt auf dem Land (das Foto zeigt dies deutlich) häufig einen Kamin vor, und in einigen Fällen Ofen.
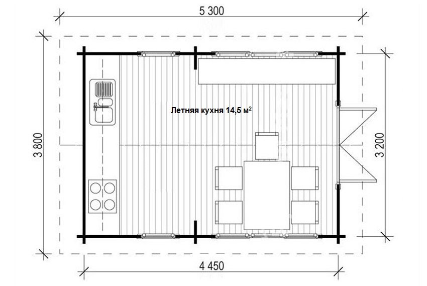
Die Abmessungen einer Sommerküche mit Herd und Grill auf dem Land (Fotos von Projekten solcher Räumlichkeiten sind an verschiedenen Orten zu sehen) werden unter Berücksichtigung der Fläche des Sommerhauses individuell festgelegt. Sie können während der kalten Jahreszeit problemlos in solchen Zimmern übernachten. Wenn Sie dort einen Schlafplatz einrichten, ist es durchaus möglich, darin zu wohnen und so das ganze Haus zu heizen. Und im Sommer können Sie immer Gäste unterbringen, die für das Wochenende kommen.
Viele werden für die Sommerküche verwendet offene Veranda Ihr Zuhause auf dem Land. Diese Option ist recht budgetgerecht und erfordert keine größeren Bauarbeiten. Teil öffnen Veranden verglast werden und die Eingangstür ist montiert.
In Verbindung stehender Artikel:
Zweizimmer-Umkleidekabinen mit Toilette und Dusche: Wir schaffen komfortable Bedingungen. Materialien für Sommerhäuser. Layout typischer Sommerhäuser, Projekte. Faktoren, die den Preis von Sommerhäusern beeinflussen.
Die separat stehenden Sommerküchenpavillons werden mit einem Keller, einer Werkstatt, einer Sauna oder einer Dusche kombiniert. Dies hängt alles von der Vorstellungskraft und den persönlichen Vorlieben ab. Aber wenn Sie nur in der warmen Jahreszeit auf dem Land sind, öffnen Sie helle Gebäude wie Pavillons oder Markisen... Sie sind günstiger und ermöglichen es Ihnen, die meiste Zeit im Freien zu verbringen.
Erstellen Sie mit Ihren eigenen Händen eine individuelle Sommerküche auf dem Land
Es gibt viele Algorithmen, um eine Sommerküche mit eigenen Händen zu erstellen, aber die Hauptbauphasen bleiben unverändert: Vorarbeiten, klare Markierungen, Fundamentanordnung, Installation von Stützen, Dachinstallation und Innendekoration.
Die Grundlage für die zukünftige Sommerküche
Wenn Sie sich für ein Lichtdesign für eine Sommerküche entschieden haben, können Sie das Gebäude selbst in die Hand nehmen. Zunächst müssen Sie ein Markup erstellen und von der Stiftung ausgehen. Da die Struktur leicht ist, ist keine Kapitalstiftung erforderlich. Sie können mit Ihren eigenen Händen eine Grube mit einer Tiefe von ca. 15 cm um den Umfang graben. Mit Schutt oder Sand füllen, stopfen und mit dem Verlegen beginnen Pflastersteine oder Dielen für den geplanten Pavillon.
Hilfreicher Rat! Wenn für die Sommerküche eine offene Struktur verwendet wird, wird empfohlen, den Boden leicht geneigt zu gestalten, damit durch offene Bereiche fallende Niederschläge durch die Schwerkraft entfernt werden können.

Die geschlossenen und offenen Teile der Landhausküche sind durch ein Metall-Kunststoff-Schiebefenster getrennt
Wenn Sie eine geschlossene Küche mit vollen Wänden auf dem Land errichten möchten, benötigen Sie ein Heimwerkerband oder Säulenfundament... Für ein solches Fundament ist eine Grube mit einer Tiefe von bis zu 50 cm angeordnet. Das Fundament wird verstärkt und mit Mörtel gegossen. Innerhalb des Umfangs wird der Boden ausgewählt, mit Sand bedeckt, dann mit Schutt und Mörtel.

Das Projekt eines Landhauses mit der Anordnung einer Garage, eines Hauswirtschaftsraums und einer Sommerküche
Wände und Dach für eine Sommerküche
Um die Wände für die sommeroffene Küche zu bauen, wird zunächst der Rahmen des zukünftigen Raumes gebaut. Normalerweise wird es aus einer Holzstange (15x15) hergestellt. An den Ecken des Umfangs werden Holzstützen in zuvor gegrabene Löcher mit einer Tiefe von bis zu einem halben Meter an den Ecken des Umfangs eingebaut, die anschließend mit Beton gegossen werden. Balken sind an Metallecken zwischen ihnen befestigt. Danach wird der Rahmen mit dem für die Endbearbeitung ausgewählten Material vernäht. Es wird empfohlen, haltbare Materialien zu wählen, die keine zusätzliche Verarbeitung erfordern (Abstellgleis, Kunststoff, Wellpappe).

Rahmenhaus-Küche mit Holzveredelungsmaterialien verziert
Wände für geschlossene Räumlichkeiten werden aus Ziegeln, Stein oder Schaumstoffblöcken errichtet. Die Dicke der Wände wird normalerweise in einem halben Ziegel genommen. Die Innenausstattung hängt auch von Ihren persönlichen Vorlieben ab: Verkleidungen oder Wandputz reichen aus. Es hängt alles davon ab, ob die Heizung im Raum verwendet wird oder nicht.

Die Glaswand der Sommerküche ermöglicht es dem geschlossenen Raum, mit der Natur in Kontakt zu bleiben
Das Dach für die Sommerküche ist normalerweise geneigt. Hierzu wird die Konstruktion von Trägern mit unterschiedlichen Höhen gegenüberliegender Seiten angeordnet. Für das Dach von Open-Light-Strukturen werden Ziegel, Schiefer oder Wellpappe mit dem entsprechenden Gewicht verwendet. Bei geschlossenen Gebäuden, bei denen ein haltbarerer Rahmen verwendet wird, unterliegt die Auswahl des Daches nahezu keinen Einschränkungen.