Hoy en día, junto a las energías alternativas, se utilizan combustibles como el carbón, el aceite o la leña. Muchos dispositivos de calefacción funcionan con madera. para casas particulares - chimeneas, hornos, calderas, etc. Hasta mediados del siglo XIX, la leña se cortaba a mano, esto requería mucho tiempo y energía. Los cortadores de madera mecánicos facilitaron enormemente el trabajo humano. Los primeros modelos eran de vapor, muy voluminosos y difíciles de fabricar en casa. Hoy, si necesita hacer un partidor de madera con sus propias manos: se pueden encontrar dibujos, fotos e instrucciones en Internet sin ningún problema.
Contenido
Características de elegir un partidor de madera.
Si necesita un partidor de madera para las necesidades del hogar, la primera pregunta es si debe comprar una unidad o ensamblarla usted mismo. La primera opción costará mucho más, pero la segunda requerirá algunas habilidades y herramientas. Por otro lado, hay suficientes videos de la red y materiales improvisados para hacer un procesador de leña por tu cuenta.
Mecanografía del divisor de registro
Para que los dibujos, fotos, instrucciones del partidor de madera sean más comprensibles con sus propias manos, debe saber qué tipos de partidores de madera existen en general. Hay una gran cantidad de clasificaciones.
Uno de los principales parámetros del cortador de madera es la ubicación de los troncos. Puede ser:
- horizontal: los troncos se colocan en una cama especial y se mueven hacia la parte de corte o el cuchillo se mueve hacia el tronco;
- vertical: el cuchillo divide la pieza de trabajo desde arriba. En este caso, se necesita una fijación para el registro.Puede ser parte de la estructura o simplemente sostener el tronco con las manos.
Si ves un video de partidores de madera de listones caseros, que son horizontales, queda claro que su eficiencia es menor que los verticales, pero estos últimos también tienen sus propios matices de trabajo.
El segundo punto importante por el que se pueden clasificar los cortadores de madera es el tipo de accionamiento:
- Alimentado con diesel o gasolina: el tipo de transmisión más común para la cortadora de madera independiente. Proporciona una alta eficiencia de trabajo y es completamente autónomo.
- Las cortadoras mecánicas de madera son muy fiables y muy adecuadas para pequeñas cantidades de trabajo. Los dibujos, las fotos, las instrucciones para un partidor de madera mecánico con sus propias manos se pueden encontrar fácilmente en Internet en grandes cantidades.
- En un motor eléctrico: partidores de madera estacionarios, confiables, pero no muy productivos.
¡Aviso util! Muy a menudo puede encontrar partidores de madera caseros, montados sobre la base de un tractor y otros equipos. La unidad, que es accionada por un tractor desde el eje de la toma de fuerza, corta fácilmente la leña de gran diámetro. Otra modificación interesante son los partidores de madera con motor de lavadora o basados en una rueda de coche.
Y el último parámetro por el que se pueden clasificar absolutamente todos los partidores de madera es la forma de la cuchilla. Aquí hay dos opciones: cruciforme o cónico. La cuchilla en forma de cruz divide la madera en cuatro partes a la vez, lo que puede ser muy conveniente, pero requiere mucho esfuerzo. Las cuchillas en forma de cruz se pueden encontrar principalmente en las cortadoras de madera hidráulicas. Muy a menudo se encuentran en la red videos de partidores de madera caseros con una cuchilla en forma de cono, ya que estos son los modelos más populares.
Características del cortador de madera con cuchilla de cono
La cuchilla de cono, con o sin rosca, se utiliza a menudo en modelos diesel o eléctricos. Su ventaja es que el cañón se divide no solo por la presión mecánica, sino también por la rotación de la punta de la cuchilla. Está atornillado al tronco, por lo que no se necesita demasiada fuerza para dividir la pieza de trabajo. De esta manera, ahorra combustible para la unidad. Es muy fácil encontrar dibujos de un partidor de madera de tornillo en Internet, sus componentes no son costosos y el montaje no le llevará mucho tiempo.

Una cuchilla en forma de cono se usa a menudo en modelos de partidores de madera eléctricos y de gasolina.
Si desea ensamblar un partidor de troncos de tornillo con sus propias manos, los dibujos, las fotos y las instrucciones serán extremadamente simples. Lo principal es comprender en qué partes principales consta un conjunto de este tipo:
- El motor es un motor eléctrico o un motor de combustión interna. Para el funcionamiento eficiente del partidor de madera, la potencia debe ser inferior a 1,5 kW y el voltaje debe ser de 380 V. También es importante tener en cuenta el número de revoluciones por minuto, debe ser al menos 400.
- La cama es una mesa con patas sobre la que se coloca leña. Fabricado en chapa de hierro, el diseño prevé un montaje de caja de cambios. Un motor está montado debajo de la cama para que sea más estable.
- Reductor: sirve para regular el número de revoluciones del motor.
Al ensamblar un partidor de madera con sus propias manos, vale la pena mirar dibujos, fotos, instrucciones, teniendo en cuenta el tipo de diseño que necesita. La ventaja de un partidor de madera con una cuchilla en forma de cono es que sus componentes individuales se pueden comprar por relativamente poco dinero, si necesita ensamblar un partidor de madera casero a través de una caja de cambios; un video de Internet lo ayudará con esto. Estas unidades se utilizan con mayor frecuencia para proporcionar casas privadas, baños y una pequeña sala de calderas con leña. La desventaja de este diseño es la necesidad de suministrar leña manualmente, por lo que el trabajo productivo no es muy alto.
¡Aviso util! Si no necesita cortar madera a escala industrial, es mejor detenerse en la variante de un cortador de madera con una cuchilla en forma de cono, ensamblada a partir de piezas improvisadas. De lo contrario, monte el modelo hidráulico.
Cortadora de madera hidráulica
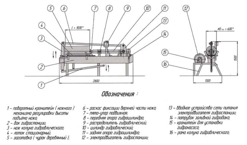
Los modelos hidráulicos de partidores de madera son buenos porque le permiten procesar una gran cantidad de leña en poco tiempo. Como su nombre lo indica, dicha unidad funciona gracias a una bomba hidráulica y un motor. El divisor en el modelo hidráulico se puede ubicar en la estructura de tope o en la varilla. La primera opción es más confiable, mientras que la segunda es más poderosa.
Al ensamblar una cortadora de madera hidráulica con sus propias manos, es necesario tener en cuenta una serie de parámetros importantes:
- la ubicación del registro: puede ser vertical u horizontal;
- el tamaño máximo del tronco que la unidad puede manejar;
- fuerza de división de un tronco: depende directamente del tamaño del cilindro y la potencia del motor;
- potencia del motor: depende de la energía con la que esté funcionando el motor.
Si mira un video de una cortadora de madera hidráulica con sus propias manos, queda claro que es más difícil ensamblarla que una de tornillo. Pero el rendimiento de esta opción será varias veces superior. Se puede usar no solo para el hogar, sino también para fines comerciales, por ejemplo, para cortar leña para la venta.
Dibujos, fotos, instrucciones de un cortador de madera hidráulico con sus propias manos muestran claramente que, en principio, es muy similar a solo un gato. Esto significa que no es particularmente difícil montarlo en casa. Lo principal en este caso es calcular correctamente el tamaño de la instalación en función del tamaño de registro que va a cortar.
Divisor de madera para rack
Otra opción para un mecanismo para cortar madera es un piñón y cremallera. Recibió su nombre del hecho de que la cuchilla en un mecanismo de este tipo está unida a un estante, que se mueve debido a una transmisión de engranajes. El tronco se fija aquí entre el partidor y el tope de protección ubicado en la carcasa de la caja de cambios.
Artículo relacionado:
Sierra de mano eléctrica circular: sutilezas de elección y características del trabajo. Dispositivo, tipos de sierras circulares. Parámetros básicos, funciones adicionales, selección de discos. Regulaciones de seguridad.
De acuerdo con los dibujos, las instrucciones fotográficas del partidor de madera de piñón y cremallera, puede ver que la división del tronco se produce cuando presiona un mango especial en la estructura. En este caso, los engranajes engranan, la rejilla con la cuchilla se mueve hacia el tronco, el tronco se parte en pedazos. Su movimiento inverso devuelve la cuchilla a su posición original y el tronco partido se puede quitar al lugar de la pieza de trabajo. Para uso doméstico, un divisor de piñón y cremallera es una muy buena opción. Funciona, la mayoría de las veces, con un motor eléctrico, no ocupa mucho espacio y no requiere un mantenimiento especial.
Para una cortadora de madera de estantería, los siguientes parámetros son importantes:
- longitud máxima del registro;
- forma de cuchilla: algunos modelos le permiten dividir el tronco en 6 piezas a la vez;
- la fuerza con la que se divide la pieza de trabajo.
Los divisores de rack a menudo se venden ensamblados de fábrica, pero esta opción le costará mucho más que uno de bricolaje.
¡Aviso util! A diferencia de piñón y cremallera, los partidores de madera de tornillo o cono no se venden ensamblados. Pero puede comprar por separado un cono de acero endurecido y ensamblar el resto del mecanismo a partir de materiales de desecho.
Instrucciones paso a paso de bricolaje para montar un partidor de madera
En casa, puede ensamblar cualquier tipo de partidor de madera, pero cada uno de ellos requiere un enfoque diferente.
Montaje del partidor de madera de tornillo
Para montar un partidor de troncos de tornillo en casa, necesita un cono partidor, un motor suficientemente potente, un eje, una caja de cambios reductora y un marco resistente en el que se colocarán la mayoría de las piezas.
Primero, la caja de cambios y el motor se fijan al bastidor (que debe ser muy resistente a la tensión mecánica). Un cono está montado en el eje y el eje en sí está conectado a una caja de cambios de reducción mediante un motor. Al ensamblar, es muy importante tener en cuenta una serie de puntos:
- El accesorio no debe conectarse directamente al motor por razones de seguridad.
- Si no tiene las habilidades de un electricista, entonces la parte eléctrica debe ser instalada por un técnico calificado.
- Las transmisiones por cadena y correa deben protegerse con una cubierta especial.
- La velocidad de rotación mínima de la cuchilla es 250-300 rpm.
Ensamblaje de divisor de madera hidráulico de bricolaje
Es mucho más difícil montar una cortadora de madera hidráulica con sus propias manos debido a la unidad hidráulica.Tendrá que comprar un cilindro hidráulico, un tanque de aceite, un motor para la bomba y la bomba en sí, una unidad de control de flujo de fluido en una tienda o en el mercado.
Primero, un marco está hecho de un material duradero.
¡Aviso util! El marco se monta mejor en un chasis o sobre ruedas, por lo que puede mover fácilmente el divisor a un nuevo trabajo.
Luego, la parte hidráulica del mecanismo se monta en el marco. Aquí no hay una instrucción única, todo depende de los mecanismos seleccionados y las características requeridas. Antes de emprender la fabricación de una cortadora de madera hidráulica conviene valorar los beneficios económicos de esta actuación.
Una descripción general de la diferencia entre las cortadoras de madera de fábrica y las caseras
Como se mencionó anteriormente, no solo puede hacer un partidor de madera con sus propias manos, sino también comprarlo en un ensamblaje de fábrica listo para usar. Toda la diferencia aquí está principalmente en el precio. Por ejemplo, una cortadora de madera hidráulica Engy Els-5030 con una fuerza de división de aproximadamente 5 toneladas le costará entre 14 y 15 mil rublos. Y el modelo es más poderoso, cuya fuerza de división es de 12 toneladas: 85-90 mil rublos. Por esa cantidad de dinero, puede ensamblar fácilmente un par de partidores de madera con sus propias manos, publicando el video después de eso en Internet.
La principal ventaja de los partidores de madera premontados es que no necesita perder tiempo ni esfuerzo. Simplemente compre un mecanismo listo para usar y úselo para su placer. Por otro lado, un modelo casero se puede personalizar a tu gusto. Puede instalar cualquier motor, cualquier tipo de transmisión y ajustar la unidad para cualquier tamaño de leña. Un modelo hecho en casa costará 2-3 veces más barato que el de fábrica promedio.
En cuanto a la apariencia, aquí los mecanismos de fabricación propia son claramente inferiores al ensamblaje de fábrica, pero cuando se trata de eficiencia y productividad, la apariencia se desvanece en un segundo plano.
Como resultado, podemos decir que los modelos caseros de partidores de madera son mucho más baratos que los de fábrica y son excelentes para uso doméstico. Si necesita cortar madera con regularidad a escala industrial, entonces es mejor usar un cortador de madera de fábrica. La elección del tipo de motor, la ubicación de los troncos, el tipo de cuchilla y otros matices depende únicamente de sus necesidades y preferencias personales. Además, nadie se molesta en modificar el modelo ya existente de la cortadora de madera ensamblada a mano y enviar su propio modelo original a juicio de los usuarios.