Una de las soluciones más interesantes en la construcción y remodelación del espacio habitable es el proyecto de diseño del apartamento. Es un conjunto especialmente preparado de documentos gráficos y cálculos que requiere un enfoque individual. Este artículo considerará los factores a los que debe prestar atención al realizar la renovación de un apartamento: diseño, fotos, etc.

La implementación exitosa de incluso la reparación más simple siempre depende de un diseño de proyecto bien diseñado
Contenido
- 1 Dónde pedir un proyecto de diseño para un apartamento: la etapa inicial.
- 1.1 Cómo hacer un proyecto de diseño de apartamento usted mismo: crear un boceto
- 1.2 Reforma de vivienda: diseño, fotografía y elaboración de especificaciones técnicas
- 1.3 Cómo hacer un proyecto de diseño de apartamento: cálculo estimado
- 1.4 Proyecto de diseño de interiores de apartamentos: creación de modelos 3D y aprobación del proyecto
- 2 Proyecto de diseño de apartamentos: precios de servicios comunes.
- 3 Una descripción general de los programas de diseño de apartamentos más populares
- 4 Características del proyecto de diseño de un estudio.
Dónde pedir un proyecto de diseño para un apartamento: la etapa inicial.
Ahora se puede solicitar un proyecto de diseño en Internet, por ejemplo, en el sitio web de una empresa que proporciona dichos servicios para la decoración de locales. Muchas empresas que existen con éxito en el mercado del diseño de interiores pueden ofrecer al cliente un pago escalonado de un pedido o un plan de cuotas.

Diseñar un apartamento antes de la renovación, permite distribuir racionalmente el espacio útil por adelantado.
Un proyecto seleccionado individualmente asume la presencia de un diseñador en cada uno de los aspectos importantes del trabajo. Supervisa las actividades del equipo de reparación, otros empleados y también es responsable de la calidad, precisión de la idea y durabilidad del interior. Al elaborar un proyecto de diseño, se recomienda utilizar los servicios de especialistas calificados, ya que este trabajo requiere conocimientos y habilidades profesionales.
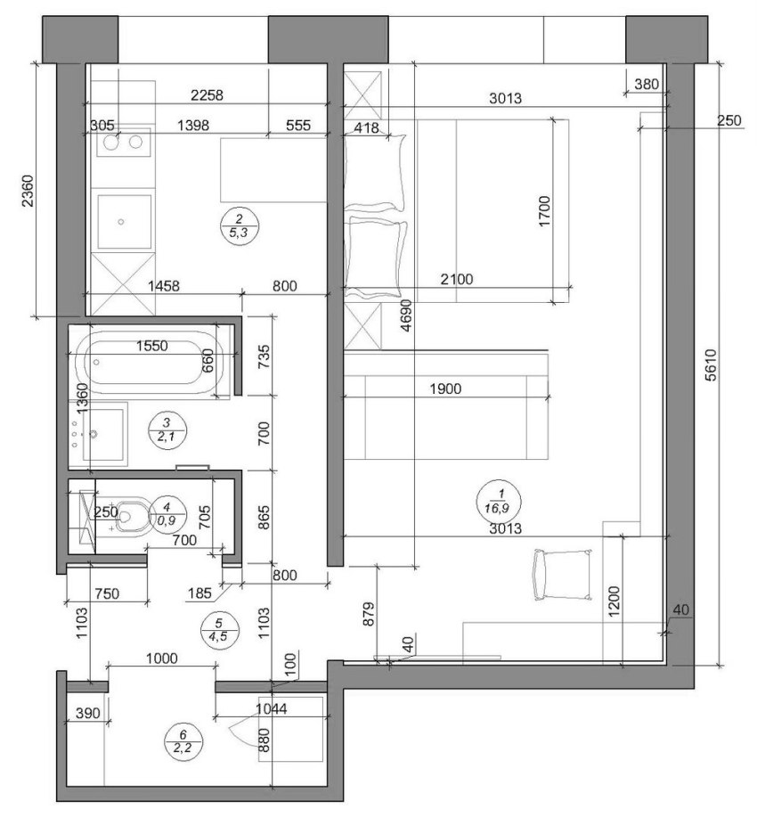
La etapa inicial en la implementación de un proyecto de diseño se basa en una inspección y evaluación de las instalaciones que necesitan ser rediseñadas. Junto a esto, se toman medidas de las habitaciones. Este es el aspecto fundamental requerido para las etapas posteriores del trabajo del diseñador y del equipo de construcción.
¡Consejo útil! Es necesario abordar con cuidado el tema de las mediciones, ya que incluso los pequeños defectos pueden llevar al hecho de que el proyecto deberá cambiarse ya en medio de las reparaciones. Esto no solo generará nuevos gastos, sino que también puede causar ansiedad innecesaria. Múltiples mediciones le permitirán evitar deficiencias y obtener un resultado de alta calidad en la salida.
Se utilizan varios medios para las mediciones y la evaluación visual: una cinta métrica común, medidores láser, así como equipos fotográficos y de video. La visualización 3D le permite ver cómo quedará el proyecto terminado, incluso antes de que se complete. Además, los proyectos de diseño ya creados se pueden complementar o modificar ligeramente antes de comenzar a trabajar.
Si lo desea, puede completar un proyecto de diseño de apartamento gratis usted mismo. Sin embargo, tal evento requiere tener en cuenta muchos factores, por lo tanto, antes de comenzar a elaborar un plan, se recomienda estudiar todos sus aspectos individuales.
Cómo hacer un proyecto de diseño de apartamento usted mismo: crea un boceto
En Internet, puede solicitar un proyecto de diseño para un apartamento. La consulta gratuita, que en la mayoría de los casos es ofrecida por empresas, permite comprender los matices de la elaboración de un plan en cada caso.
Como resultado de la recopilación y procesamiento de datos primarios, se obtendrán vistas visuales de futuras instalaciones. Por lo general, se crean varias variantes de bocetos (comenzando con tres o más). De estos, el cliente elige la versión más adecuada. Entre las pocas opciones, es posible que el cliente no encuentre el proyecto deseado. Esto significa que todo el trabajo deberá realizarse de nuevo.
Dichos bocetos se crean de forma independiente utilizando programas especiales. Puede encontrar y descargar fácilmente uno de ellos en Internet. Es importante recordar que al trabajar con un boceto, es necesario tener en cuenta las características individuales de la vivienda en la que se realizará la reparación. La web también contiene muchas fotos de ideas listas para usar. Para un apartamento, varios estilos contemporáneos son las mejores opciones.

Para que las expectativas estén justificadas y no estén en desacuerdo con el resultado final, los diseñadores de interiores proponen crear un proyecto de diseño para el futuro apartamento antes de comenzar los trabajos de reparación.
Al elaborar un boceto, se seleccionan los colores de todas las superficies: techo, piso y paredes. La selección de mobiliario y elementos auxiliares del interior también se realiza en el programa mediante modelado 3D. Este formato permite crear muchas opciones de diseño. Además, vale la pena considerar aspectos como vivir en una habitación para niños pequeños o personas con discapacidad.
El boceto le permitirá hacer un hermoso diseño del apartamento (tanto pequeño como más espacioso). Luego se crea un proyecto de seguridad. Tiene en cuenta la preparación de documentos técnicos que contienen información detallada sobre todas las comunicaciones en la sala.

Todos los artículos, elementos diseño de interiores los apartamentos obtienen su forma visual gracias a la tecnología de modelado 3D
Renovación del apartamento: diseño, foto. y desarrollo de especificaciones técnicas
Sobre la base de los bocetos elaborados anteriormente, se está preparando un trabajo técnico. Esta etapa tiene en cuenta la discusión de una serie de cuestiones importantes, a saber: si el apartamento necesita una remodelación, es necesario intervenir en las redes de ingeniería, etc.
¡Nota! Para simplificar el proceso de elaboración de esta tarea, se recomienda ponerse en contacto con el MFC. Esto le permitirá obtener un plano técnico, lo que le ahorrará tiempo al elaborar un proyecto de diseño para la renovación de un apartamento.
En esta etapa, los bocetos deben convertirse en diagramas que correspondan al diseño de una vivienda en particular. Incluyen todos los cálculos y tablas necesarios, y también contienen un manual para trabajos de reparación.
Los términos de referencia consisten en planes para todas las comunicaciones que garantizan una vida cómoda. Los más imprescindibles:
- calefacción;
- plomería;

Durante el trabajo de visualización, un técnico realiza el desarrollo de dibujos y documentación del proyecto.
- alcantarilla;
- gas;
- eléctrico.
Y también se elaboran planes para el uso de materiales de construcción y acabado y las herramientas necesarias. Es necesario dividir la habitación en zonas y complementar la descripción con varios detalles de la disposición interior. Por lo tanto, es mucho más fácil crear un plan técnico para el diseño de un apartamento pequeño. El área en este caso juega un papel muy importante.

El diseño de interiores del hogar no solo es una creatividad agradable, sino también un trabajo minucioso, cuyo éxito depende de las habilidades y la experiencia de los especialistas.
Todo esto le permite formar un estilo de diseño común. Las zonas separadas deben combinarse en un todo. Como resultado, puede ver de antemano cómo se verá el interior después de la finalización del trabajo. Si utilizó los servicios de un especialista, en esta etapa, el diseñador debe enviar los resultados finales del diseño de la habitación y la iluminación cómoda.
Artículo relacionado:
Renovación de un apartamento en un edificio nuevo desde cero: qué, cómo y cuándo hacer
Características de las instalaciones terminadas del desarrollador. Etapas de reparación. El precio de un tipo específico de trabajo y el costo total de la reparación llave en mano.
Es muy importante adoptar un enfoque responsable en la creación de especificaciones técnicas. Es el documento principal mediante el cual se verifica el proyecto. Por lo tanto, es deseable la participación de especialistas altamente calificados en la creación de dicho plan. Esto permitirá que el interior sirva durante mucho tiempo y te deleite con su dispositivo.

En la etapa final del proyecto de diseño, el cliente recibe todos los dibujos técnicos necesarios, que facilitarán significativamente la implementación del interior aprobado.
Cómo hacer un proyecto de diseño de apartamento: cálculo estimado
Una vez completado el trabajo sobre la creación de la parte técnica del proyecto pedido, se calcula su base económica. El documento resume el costo de los materiales utilizados para la implementación de ideas de diseño. También incluye los costos totales de envío si el proveedor no proporciona envío gratuito.
Por separado, se calcula el pago por los servicios del personal que realiza trabajos de reparación. Con base en los datos obtenidos durante los cálculos, se crean las hojas, que son necesarias para la compra de materiales. Además, se firman contratos con empresas que prestan servicios de reparación.
El precio que paga por la elaboración de un plano completo que tiene en cuenta absolutamente todos los aspectos de la reforma depende del área del local. Por lo tanto, la creación de un proyecto de diseño para un apartamento de tres habitaciones costará significativamente más que un pequeño apartamento de una habitación.
Siempre que el proyecto se forme con anticipación, los precios pueden cambiar. Se debe recopilar una lista de empresas involucradas en trabajos de construcción. Esto le permitirá elegir entre diferentes organizaciones o abrir una licitación para la ejecución de la orden.
Proyecto de diseño de interiores de apartamentos: creación 3re modelos y aprobación de proyectos
En este nivel de desarrollo del proyecto, el diseño se presenta en forma gráfica. Los expertos dicen que crear un modelo 3D puede llevar una cantidad significativa de tiempo para todo el trabajo de diseño, pero vale la pena. Estos desarrollos son buenos porque permiten pensar en detalle sobre el entorno futuro de la habitación. Además, los expertos proponen realizar un recorrido online por el espacio vital que se está desarrollando.
Antes de proceder con una implementación independiente u ordenar un modelo 3D, se recomienda ver una foto de las renovaciones de apartamentos. Las imágenes le permitirán evaluar visualmente las ventajas de una solución particular para el interior y determinar el diseño de su hogar.

Gracias a la imagen 3D, los propietarios de los apartamentos pueden evaluar el proyecto en un entorno realista.
Un modelo 3D de alta calidad se distingue por la selección de iluminación.Los diseñadores explican que es el juego de luces y sombras, los reflejos de luz y la exhibición de colores lo que da la imagen final del “producto” terminado. A menudo se desarrollan además varios escenarios de iluminación. Muestra cómo cambia la habitación según la hora del día, así como cuando se utilizan diferentes fuentes de luz.
¡Consejo útil! Si desea una opción más presupuestaria y que requiera menos tiempo, puede optar por una presentación. Esta es una versión simplificada que también te mostrará el modelo de diseño final, pero sin los añadidos típicos de las estructuras 3D.
La etapa anterior finaliza con la recepción por parte del cliente del proyecto de diseño terminado del departamento con el interior (foto con el plano) en forma gráfica. Ahora solo serán posibles pequeños cambios en la apariencia de la habitación. Un ejemplo es el reemplazo de materiales de acabado, un cambio en las características de la decoración. Pero debe tenerse en cuenta que tales cambios afectarán el costo de los servicios.
Posteriormente se realiza la compra de materiales de decoración y complementos. Se pueden adquirir en tiendas de muebles y ferreterías. Ahora que se ha completado el trabajo de ajuste del proyecto de diseño y se han realizado todas las ediciones necesarias, los capataces de construcción comienzan a tomar medidas activas.

En la etapa de diseño, se determinan con la ubicación de particiones, puertas, equipos de calefacción.
Proyecto de diseño de apartamentos: precios para servicios comunes
El rango de precios para el desarrollo de un interior de diseño para una habitación en Rusia varía de 1000 a 2000 rublos. por metro cuadrado. La diferencia en la tarifa depende de la complejidad del proyecto, las características individuales.
Hay muchas empresas que permiten al cliente calcular el costo del trabajo en el sitio basándose en las imágenes. Para realizar el cálculo, debe ingresar los datos numéricos de la zona del apartamento y el precio declarado por la empresa. La calculadora en línea simplifica enormemente el proceso de cálculo, por lo que se recomienda utilizarla para determinar el costo final del proyecto.

El proyecto de diseño de apartamentos es un servicio indispensable para renovaciones complejas llave en mano o cuando se desea que su hogar sea verdaderamente único.
Para responder a la pregunta de cuánto cuesta un proyecto de diseño de apartamento, debe decidir la opción de servicio que sea más preferible para usted. Por ejemplo, el tipo de proyecto de diseño más presupuestario es el "boceto". Su precio es de unos 200 rublos. por metro cuadrado. El costo de este servicio incluye la planificación del trabajo de medición, un plan de remodelación (si es necesario), así como la instalación y el desmantelamiento.
Otro tipo de diseño de interiores para un apartamento pequeño (o más grande) es "completo". Su implementación requerirá alrededor de 1.500 rublos. por metro cuadrado. Además de lo anterior, se han agregado otros servicios a la lista de servicios que ofrece este programa. Entre ellos se encuentran los siguientes: un proyecto de colocación de revestimientos de paredes, suelos y techos, la instalación de lámparas, enchufes e interruptores. Se determina la disposición más adecuada de los muebles, se seleccionan las estructuras de las puertas.
Y también el diseñador proporciona dibujos para terminar y decorar la habitación. Se compila una lista de materiales requeridos. Se planea la disposición de los cuartos de baño. Además, el cliente recibe una visualización 3D de los resultados finales de la tramitación del local.
¡Nota! Si es necesario, puede descargar proyectos de diseño de apartamentos listos para usar en Internet de forma gratuita. Sin embargo, en este caso, se recomienda que elija un plan para un apartamento con la misma área que el suyo.

El precio de un proyecto de diseño depende directamente, en primer lugar, del área y tipo de local, así como del número de servicios requeridos.
Además, existe un proyecto "premium", que es la más cara de todas las opciones presentadas.Incluye no solo todos los servicios de los tipos "sketch" y "full", sino también el control personal del diseñador, así como su visita al lugar de reparación por lo menos 4 veces.
Dependiendo del tipo de proyecto, el momento del desarrollo del diseño también difiere. Por ejemplo, para el plan "borrador" menos costoso, tomará de 2 a 3 semanas, aproximadamente un mes y medio para completar la tarea "completa", y para un programa "premium", llevará más de dos meses. Las fotos de proyectos de diseño de apartamentos lo ayudarán a evaluar la diferencia entre sus tipos.
Proyecto de diseño de apartamento renovado: fotos y recomendaciones.
En primer lugar, debe decidir en qué estilo se renovará el apartamento. Es necesario estudiar las características de la habitación y el estilo elegido, evaluar su compatibilidad y también pensar en la proporción de colores y texturas.
Antes de comenzar a trabajar en la elaboración de un plan, se recomienda considerar varios ejemplos de proyectos de diseño de apartamentos. Se pueden encontrar fácilmente en Internet utilizando la barra de búsqueda del navegador.

La visualización 3D del interior es una de las herramientas de un diseñador moderno, que brinda la capacidad de crear una imagen tridimensional del diseño de una habitación.
Para crear bocetos, deberá comprar una cinta métrica o una cinta métrica, así como papel carbón y lápices. Al crear un proyecto, debe prestar atención a una serie de recomendaciones importantes.
¿Cómo hacer un proyecto de diseño para un apartamento usted mismo? Para comenzar, necesita un plano de planta esquemático, que puede dibujar usted mismo o pedir al MFC más cercano. Cuando el dibujo está listo, es necesario realizar los cambios necesarios para la reparación, así como representar los detalles del diseño futuro.
El siguiente paso es mostrar la disposición de los muebles en el dibujo, seleccione el esquema de color deseado. Para hacer esto, use una plantilla. Con su ayuda, puede dar rienda suelta a las aspiraciones creativas y crear una variedad de diferentes proyectos, diseños, dibujos, adornos. Es recomendable hacer varias opciones y centrarse en una de ellas.
Al elegir una paleta de colores, debe prestar atención a que los colores pastel claros se consideran más adecuados para el dormitorio y la cocina, y los colores brillantes y saturados para la sala de estar, el pasillo y el pasillo. Pero esto no significa que debas renunciar a los tonos exquisitos de la habitación si se adapta a tu gusto. Para elegir el color deseado, se recomienda estudiar ejemplos de diseños de apartamentos.
Además, puede desarrollar de forma independiente el diseño de muebles deseado y complementar el diseño de la habitación. Después de eso, debe elegir la opción adecuada en la tienda mirando los modelos en línea, o pedir los modelos necesarios en una fábrica de muebles, a los diseñadores. Además, si lo desea, puede aplicar dibujos y adornos a los marcos.
¡Informacion util! No olvide poner las imágenes del apartamento en el diagrama, así como las dimensiones y los límites de los elementos interiores, paredes, ventanas y puertas. Además, es posible que deba descifrar las convenciones utilizadas al crear el proyecto.

La elección de los colores interiores es uno de los puntos principales en la renovación de un apartamento.
No se olvide de los elementos decorativos auxiliares, que deben lucir orgánicos en el interior de la habitación. Es importante recordar que los expertos no recomiendan categóricamente la sobresaturación de los interiores de los apartamentos pequeños con detalles auxiliares. Las fotos de viviendas pequeñas en estilos minimalistas lo ayudarán a apreciar los beneficios de tal solución.
Una descripción general de los programas de diseño de apartamentos más populares
Hoy en día existen muchos programas que utilizan el modelado 3D. Todos se subdividen en pagos y gratuitos. Cada uno de ellos tiene sus propias características, pros y contras, por lo que debe familiarizarse con ellos con más detalle.

Cuando planifique una renovación o desee actualizar el interior de un apartamento, debe imaginar visualmente cómo se verá después de la renovación.
3D Studio MAX. Este servicio está destinado al diseño de interiores. Es considerado por los especialistas como un programa de clase profesional. El objetivo principal es el modelado y la animación 3D. Habiendo estudiado cuidadosamente todas las características de este software, puede transferir fácilmente el proyecto de diseño de la renovación del apartamento del papel a la pantalla.
Dado que los complementos se actualizan y complementan constantemente en la aplicación, siempre puede ampliar las capacidades de este programa, por ejemplo, complementar la imagen con la visualización de varias texturas: seda, lana, gamuza y otras.

Los programas gratuitos se utilizan mucho ahora, diseñados específicamente para que todos puedan crear el apartamento de sus sueños.
Sin embargo, la gente nota que el programa no es muy fácil de aprender. Pero puedes dedicar más tiempo a estudiarlo y ahorrar dinero sin acudir a los profesionales. Le agradará no solo el resultado, sino también el hecho de que usted mismo haya creado el interior del apartamento de diseño.
ArchiCAD. Este programa, según los arquitectos, es considerado uno de los mejores en diseño. Con su ayuda, puede modelar el elemento del interior que necesita.

Una imagen realista de una habitación realizada en el programa ArchiCAD ayudará a representarla visualmente después de la reparación.
Los desarrolladores ofrecen una amplia gama de opciones. Si es necesario, puede diseñar los cimientos necesarios, puertas, ventanas, paredes y techos, escaleras, así como numerosos pequeños detalles del diseño del apartamento. Las fotos de los proyectos terminados lo ayudarán a determinar en qué dirección debe trabajar con este programa. Vale la pena completar el trabajo seleccionando un diseño detallado para el apartamento.
La presencia de complementos integrados le permitirá hacer lo más interesante: decorar la habitación. Aquí encontrará una variedad de elementos artísticos. Si desea diversificar el interior con pintura o modelado, el programa lo ayudará con esto.

Los programas para crear el interior de los apartamentos ayudarán a desarrollar el diseño de la vivienda en el más mínimo detalle.
¡Nota! Debe tener en cuenta que tendrá que dedicar bastante tiempo a comprender las características de este software.
Como resultado, obtendrá una imagen de excelente calidad que se verá bastante fotorrealista. Por lo tanto, el tiempo dedicado a estudiar el programa se verá recompensado por completo con una hermosa renovación en el apartamento. No en vano los profesionales prefieren ArchiCAD, y también lo aconsejan a quienes diseñan por su cuenta.
PRO100. Este programa, según muchos diseñadores de interiores, es uno de los más fáciles de usar para un principiante. La plataforma tiene un diseño en ruso, lo que facilita el trabajo con ella y promueve un desarrollo rápido. Además, una de las ventajas es que la aplicación se puede adaptar a sus necesidades y habilidades.
Todas las funciones disponibles son lo suficientemente simples para comprenderlas y seguir utilizándolas. Además, con la ayuda de este software, puede organizar perfectamente los muebles en las instalaciones reconstruidas. Por lo tanto, para los no profesionales, este programa es uno de los mejores. Con su ayuda, puede traducir en realidad la idea de un interior para un apartamento pequeño o una vivienda más grande.

Se necesita un programa de diseño de interiores para imaginar cómo se verá una habitación o un apartamento con ciertos muebles.
Google SketchUp. Es un software poderoso, cuya interfaz está diseñada para diferentes categorías de usuarios. El programa está disponible en formato gratuito, que es principalmente con fines informativos. El siguiente tipo de licencia es limitada y está destinada a uso personal. También hay un formulario con todo incluido que contiene opciones para el profesional avanzado.
Según los usuarios, este servicio es agradable y fácil de usar. El menú está muy bien organizado aquí. Los fabricantes tuvieron en cuenta las necesidades y capacidades de diferentes tipos de públicos, adaptando el servicio para cada grupo.
Para un usuario no profesional, la funcionalidad simple y asequible será atractiva, así como una amplia gama de plantillas y soluciones listas para usar. Al mismo tiempo, es más probable que las personas con experiencia en diseño estén interesadas en la posibilidad de una reconstrucción detallada del interior. Además, el programa le permite desarrollar la visualización del exterior, diseñar edificios y estructuras inusuales.
Google SketchUp te ayudará a crear un interior para una casa privada o diseñar un diseño para un apartamento pequeño. Las fotos de muestras realizadas con este programa le permiten evaluar visualmente sus beneficios.

Con un programa de interiores 3D, puede diseñar fácilmente el diseño de un apartamento, habitación o cualquier otra habitación
Cabe señalar que con la ayuda de este software, en opinión de numerosos usuarios, recibirá documentación de diseño de alta calidad. Además, la aplicación se completa con un tutorial y un conjunto de instrucciones para todos los componentes funcionales de la aplicación.
Diseño Astron. Este programa se destaca por el hecho de que está totalmente enfocado a la audiencia de habla rusa. Con esta aplicación, puede resolver fácilmente el problema del acabado de revestimientos de paredes, pisos y techos, así como diseñar y organizar muebles. Empezando a trabajar en la transformación del diseño, vemos ante nosotros plantillas que se presentan en toda su diversidad, o una hoja en blanco que permite crear un proyecto desde cero. Entre las ventajas del programa, los usuarios notan una interfaz conveniente y ventanas emergentes.
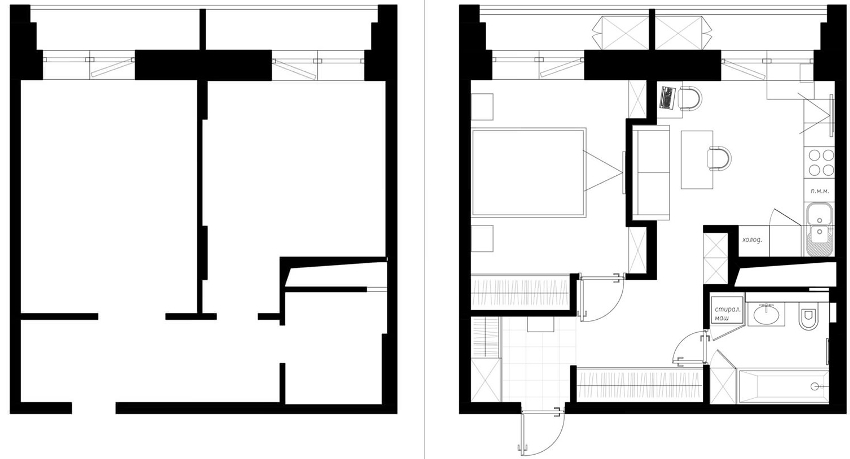
Características del proyecto de diseño de un estudio.
Al elegir un estilo para un apartamento tipo estudio, los diseñadores recomiendan prestar atención al minimalismo. Esta opción es la más aceptable y concisa, y también contribuye a una zonificación competente.
¡Nota! Cumpliendo con el plan para la futura renovación de la habitación, en la que la cocina se combina con la habitación principal, es necesario prestar especial atención a la zonificación. Es necesario dividir las áreas funcionales en una habitación grande en áreas para comer, trabajar, dormir y descansar.

Al redactar un apartamento tipo estudio, es importante prestar atención a la zonificación de la habitación y al concepto interior.
Hoy en día, hay varias formas de distinguir un segmento separado del interior general en un apartamento pequeño. Las fotos de los diseños de interiores contribuyen a un estudio visual de las ventajas de cada uno de ellos. Consideremos estos métodos:
- piso;
- Color;
- brillar;
- puertas corredizas;
- particiones y mamparas.
Al elegir muebles para un apartamento tipo estudio, los expertos recomiendan abandonar las estructuras voluminosas. Lo mejor es comprar muebles multifuncionales y compactos que se puedan transformar si es necesario. Puede utilizar un sofá y una cama como cama, pero en el primer caso se ahorra más espacio utilizable. Además, los muebles se pueden utilizar para la zonificación del espacio.
Si desea elaborar un proyecto para la remodelación de un apartamento típico con una habitación en un estudio, deberá comunicarse con los especialistas. El área de la cocina en un apartamento tipo estudio se puede resaltar con pisos, colocación de azulejos. También se prefiere la iluminación LED, que ayuda a segmentar el espacio.
Los muebles para la cocina ubicada en la sala común se compran mejor a pedido, teniendo en cuenta las características individuales de la habitación. En cuanto a la tecnología, se recomienda comprar uno incorporado, que se puede integrar fácilmente en el auricular.
Los elementos auxiliares también son muy importantes y cumplen una función de énfasis. Pueden ser de cualquier color, armonizar o, por el contrario, contrastar con los tonos en los que se pintan las superficies de la estancia. El cumplimiento de las reglas anteriores contribuye a la elaboración competente del diseño de un apartamento pequeño. Los estudios fotográficos te ayudarán a elegir una solución estilística, por lo que se recomienda estudiarlos antes de desarrollar un proyecto.
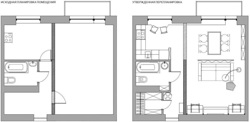
Proyecto de diseño de apartamento: costo y características de la remodelación
La remodelación de cualquier apartamento requiere un proyecto que permita evaluar la viabilidad de esta decisión. Y además, este plan es necesario para obtener un permiso que le permita realizar el trabajo correspondiente de manera legal.

Una ventaja importante de la remodelación es la renovación del interior, un cambio en el entorno familiar.
Para solicitar un proyecto de remodelación de un apartamento, debe comunicarse con una organización que tenga una aprobación de SRO. También puede utilizar los servicios de un especialista calificado que haya pasado la certificación correspondiente.
Para completar el rediseño, será necesario discutir y acordar todos los posibles matices en los servicios públicos. Es necesario obtener permisos de autoridades tales como:
- Servicio de Bomberos;
- estación sanitaria y epidemiológica (SES);
- Ingeniería en Redes;
- servicio de gas;
- control arquitectónico.
En Internet se puede encontrar fácilmente un ejemplo de proyecto de remodelación para su aprobación. Dicho plan es un documento que le permite obtener permiso para realizar el trabajo relevante. El diseño de dicho plan se lleva a cabo teniendo en cuenta los requisitos que están determinados por los estándares de planificación urbana local.

Se recurre a la reurbanización para que su hogar sea más funcional y adecuado a la vida de una familia en particular
¡Informacion util! Las diferentes ciudades tienen sus propios matices para aprobar un proyecto de remodelación de apartamentos. También se debe enviar una muestra de este plan a la inspección de vivienda (sin aprobación).
¿Qué documentos deben presentarse a la organización de diseño? En primer lugar, necesita un plan de construcción de gran altura. Y también vale la pena preparar los bocetos de la obra propuesta, un plan de situación y un informe técnico sobre el estado de las estructuras de soporte. El último documento debe contener información sobre qué tipo de trabajo se puede realizar en estas condiciones.
El precio de un proyecto de remodelación de un apartamento puede ser diferente. Depende de los servicios que brinde la empresa. Por ejemplo, elaborar un plan regular (sin más aprobación) costará menos. En la mayoría de los casos, las empresas asumen absolutamente todas las molestias. De una forma u otra, hoy el costo de un proyecto de remodelación de apartamentos es en promedio de 10 a 25 mil rublos.
Un proyecto de diseño de apartamentos es un evento serio que incluye muchos matices. Antes de elaborar un plan de este tipo, debe estudiar todos los puntos necesarios y seguirlos. Los expertos no recomiendan categóricamente desviarse del algoritmo para elaborar un proyecto de diseño, ya que esto está plagado de consecuencias desagradables.