Al elegir textiles para ventanas en un apartamento, no puede prescindir de un elemento interior como las barras de cortina de pared. Las fotos de las variedades existentes demuestran la originalidad de la abertura de la ventana en el interior. Muchas opciones para la ejecución de barras de cortina le permiten elegir una opción única y bastante funcional, que no solo complacerá a la vista, sino que también servirá durante bastante tiempo.

La barra de la cornisa está cubierta con imitación de piel de serpiente y complementada con elementos cromados.
Contenido
Barras de cortina de pared. Fotos y vistas
Los fabricantes modernos tienen una gran variedad de cornisas de pared. Los sistemas de suspensión de este tipo permiten soportar composiciones complejas formadas por un gran número de capas. Para telas ricas y pesadas con lambrequines, las cornisas cómodas de tres filas son adecuadas, lo que le permite fijar adicionalmente tul... Las opciones flexibles para los sistemas de fijación de cortinas son bastante funcionales y ligeras. Por lo general, se utilizan en ventanales donde las paredes tienen muchas curvas.

Cornisa para cortinas y al mismo tiempo un elemento lúdico en la habitación de los niños
Cornisas de madera
Dichos sistemas de sujeción para cortinas están bastante extendidos, ya que se consideran respetuosos con el medio ambiente. Para su fabricación se utilizan especies de madera conocidas. Puede ser cerezo, roble, nogal u otros, según las posibles preferencias del comprador.
La madera utilizada para la producción de cornisas suele tener fibras longitudinales. Destacan mucho a la hora de crear diseños originales. Los fabricantes están listos para ofrecer sistemas que pueden soportar de una a tres capas de tela. Esto fue posible uniendo filas adicionales a los aleros con clips de plástico.

Para decorar el interior de la sala y el comedor, se seleccionaron cornisas de madera oscura contrastantes.
Cornisas de metal
Las barras de cortina de pared de metal también se ven originales. Fotos de obras de diseño únicas, incluida la decoración de este elemento interior, sorprenden por su singularidad. El diseño de tales productos es bastante diverso. Vienen en casi cualquier tono metálico. Oro rico, latón austero: cualquier opción es decoración de interiores. Las cornisas con elementos de forja simplemente se ven mágicas.Las flores únicas, casi reales o los racimos de uvas se convertirán en una verdadera decoración de cortinas clásicas.
Los sistemas de aluminio hacen bien su trabajo. Su peso es relativamente pequeño, pero el precio es completamente democrático, en contraste con el costo de las cornisas de latón o acero. Es debido a su ligereza, así como a su alta resistencia, que el aluminio se está consolidando cada vez más en el mercado de productos similares.

Se utilizaron cornisas de metal con hermosos elementos de hierro forjado para decorar la habitación.
Barras de cortina de plástico
Otra opción económica son las barras de cortina de plástico para paredes. Las fotos de sistemas tan simples demuestran la posibilidad de su instalación incluso en locales que son complejos en arquitectura y diseño. Las estructuras flexibles también se pueden utilizar para aberturas de ventanas de formas inusuales. El único inconveniente de estos productos es su baja resistencia. Son propensos a cambiar de forma bajo el peso de cortinas pesadas, por lo tanto, requieren un reemplazo periódico.

Barra de cortina de plástico adecuada para soporte pulmonar cortinas gasa u organza
Tipos de ejecución de cornisas.
Hay varios tipos de cornisas de pared radicalmente diferentes. Muy a menudo, puede encontrar estructuras redondas que consisten en un tubo hueco. Suelen estar diseñadas para cortinas pesadas. Dichos sistemas soportan múltiples capas cortinas con lambrequines y otros elementos decorativos.
Los sistemas de perfiles no se consideran menos comunes. Estas estructuras cuentan con neumáticos especiales, a los que se adhieren los elementos que mueven la tela. A menudo están hechos de plástico y aluminio, son livianos y sostienen bien las cortinas.
Las cornisas de baguette en su diseño se asemejan a los sistemas de perfiles. Son bastante flexibles. Se pueden utilizar en habitaciones con muchos ángulos o, a la inversa, en habitaciones redondeadas. La tira decorativa es la principal característica distintiva de estas barras de cortina de pared. Las fotos de varias versiones de dichos sistemas de suspensión lo ayudarán a elegir una cornisa realmente hermosa e inusual, que se convertirá en un elemento memorable de la decoración de cualquier habitación.

No es necesario seleccionar elementos separados para cada ventana, puede usar una cornisa larga común
La barra de cortina de hilo es una de las variedades de barra de cortina de pared de uso prolongado. Las fotos de dichos sistemas, así como las instrucciones para su instalación, demuestran la facilidad de uso de las cornisas de cuerda. Puede disponerse de una a tres cortinas. Lo único negativo, debajo de telas pesadas, la cuerda se dobla y puede que no resista.
¡Aviso util! Para cortinas muy pesadas y grandes, puede usar barras de cortina eléctricas.
Características de la elección de sujetadores.
Antes de instalar la cornisa de la pared, debe decidir los sujetadores. Dependiendo del material de la cornisa, estos detalles pueden tener una gran diferencia. Además, la elección de los sujetadores está influenciada por el peso de las cortinas futuras y la calidad de las paredes de la habitación.
Artículo relacionado:
|
Para los paneles de pared de ladrillo, los tapones de corcho se utilizan con mayor frecuencia. Usted mismo los corta de madera. Es recomendable optar por rocas resinosas, pues las cornisas durarán mucho más.Dicho tapón se martilla en un orificio pretaladrado en la pared, y solo entonces la cornisa se une a él con un tornillo autorroscante convencional.

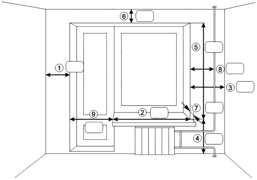
Plantilla de dimensionamiento para la selección de barras de cortina y cortinas: 1 - distancia desde la esquina izquierda a la ventana, 2 - ancho de la ventana, 3 - distancia desde la ventana a la esquina derecha, 4 - altura del alféizar de la ventana, 5 - altura de la ventana, 6 - distancia desde la ventana al techo, 7 - la distancia desde la pared hasta el borde del alféizar de la ventana, 8 - la distancia desde la ventana al tubo de calefacción, 9 - el ancho de la puerta del balcón
Si las paredes son viejas y están hechas de hormigón, que comienza a pintar con el tiempo, es mejor comprar tacos de plástico, llamados mariposa. Después de la instalación, las paredes de la pieza se separan en cuatro direcciones y no permiten que el soporte se caiga.

La fijación adicional en el centro de la cornisa no solo aumenta su resistencia, sino que también sirve como un limitador al cerrar las cortinas.
¡Aviso util! Las paredes hechas de placas de yeso no están diseñadas para aleros. Es posible que el yeso no soporte el peso de la estructura.
Algunas reglas para instalar cornisas.
Al observar reglas simples y algunas sutilezas de la instalación de cornisas, puede arreglar rápidamente la estructura sin llamar al maestro. A continuación se muestran algunos consejos de instalación:
- la longitud de la cornisa debe ser 30-50 cm más que el ancho de la ventana;

Colgando cortinas en soportes de aleros con ganchos de metal
- si el sistema de suspensión está montado directamente sobre la ventana, debe dejar unos 5 cm hasta el borde superior de la ventana para que las cortinas no interfieran con la apertura;
- Debe dejarse una distancia de unos 10 cm entre las cortinas y la pared, lo que es necesario para que el aire de los radiadores de calefacción entre libremente en la habitación.