Con el equipo adecuado, un par de asistentes y una buena base de información, hoy es muy posible construir una casa por su cuenta, incluso sin habilidades profesionales. La construcción de cualquier edificio se basa en sentar las bases. La base de pilotes se está volviendo cada vez más popular en la construcción de una casa privada. Consideraremos los pros y los contras de este tipo de base de estructura y sus variedades en este artículo, y también nos familiarizaremos con Tutoriales en video de bricolaje sobre la instalación de una base de pilotes.
Contenido
Tipos de base
Una de las partes importantes, aunque invisible desde el exterior, de la casa son los cimientos. La durabilidad y la calidad del edificio dependen de qué tan correctamente se realice la instalación de este sitio de construcción.
Según la tecnología de instalación y el campo de aplicación cimientos se puede clasificar de la siguiente manera:
- Base de tira utilizado principalmente en la construcción de poca altura. Se subdivide en prefabricados, que consisten en bloques, y monolíticos, en forma de encofrado en el que se vierte el hormigón.
- Una base monolítica, muy duradera, se utiliza en lugares donde existe peligro de hundimiento del suelo. Es una losa monolítica de hormigón armado.
- Fundación de columna colocado durante la construcción casas de un piso... Se lleva a cabo en forma de columnas, que luego se conectan con un fleje de vigas.
- La base de pilotes se ha generalizado recientemente debido a la confiabilidad, versatilidad y disponibilidad de la instalación de bricolaje.
Pila de cimientos y etapas de su instalación.
La cimentación de pilotes se utiliza en la construcción de edificios de diferentes pisos. Este tipo de cimentación no requiere un trabajo laborioso para cavar un pozo de cimentación, lo cual es una ventaja significativa sobre otros tipos de cimientos para una casa. Una de las principales ventajas de este método es la posibilidad de instalarlo en casi cualquier lugar, en cualquier suelo.
Para determinar los pros y los contras de la base de la pila, consideraremos sus variedades, una revisión en video de las etapas de colocación con nuestras propias manos y las características de la instalación de diferentes pilas.
Etapas de la colocación de una base de pilotes.
Antes de comenzar la disposición de cualquier base, es necesario realizar ciertos trabajos preparatorios y cálculos, que incluyen lo siguiente.
- análisis ingenieril-geológico del suelo;
- determinación del tipo de pilotes para la cimentación;
- dibujo detallado del plano de la casa mostrando todos los detalles de la estructura;
- cálculo de la carga sobre la base;
- dibujo de la parte subterránea;
- instalación de pilotes;
- cálculo y llenado con rejilla;
- instalación de un piso de sótano;
- cálculo del costo de la fundación.
Opciones de cimientos de pilotes
La base sobre pilotes tiene varias variedades, que difieren en la tecnología de instalación y el campo de aplicación.
Pilotes hincados
Se trata de varillas de hormigón armado que se clavan profundamente en el suelo. La tecnología de esta construcción se basa en cálculos precisos de la distribución de toda la carga del futuro edificio a estos cimientos. Las pilas se hunden en las profundidades hasta que caen en la zona más estable del suelo. Este tipo de cimentación se utiliza en la construcción industrial, ya que el trabajo de hincado de pilotes en el suelo se realiza con equipo especial pesado. Para una casa de campo o cabaña de verano, este tipo de pila no es adecuado, ya que es imposible instalarlos con sus propias manos.
Montones aburridos
Con este tipo de cimentación, primero es necesario perforar pozos en los que se colocan pilotes y se vierte concreto. Este tipo de montaje de soportes se usa con mayor frecuencia en la construcción de edificios de varios pisos. La laboriosidad técnica, los cálculos complejos y el alto costo del trabajo son las desventajas de la base en los pilotes de perforación.
Fundación sobre pilotes de tornillos
Este tipo de cimentación de pilotes es más preferible cuando se construye una casa de campo. La instalación de pilotes de tornillos por su cuenta (el video se puede encontrar en muchos sitios de construcción) es el trabajo más asequible en términos de precio y volumen. La base de dicha base son los tubos de acero con una rosca especial como un tornillo. Gracias a dicho corte, los pilotes se "atornillan" al suelo, y con la ayuda de palas helicoidales se sujetan de forma segura en él (como se muestra en el video). Si el suelo está demasiado suelto, use soportes de tornillos roscados en toda la tubería. El hormigón se vierte en tubos de acero, dando mayor estabilidad a la estructura.
¡Bueno saber! Una base de pilotes de tornillo es la mejor manera de crear una base para facilitar casa marco.
La base de tornillo de pilote, cuyos pros y contras se analizan a continuación, se puede colocar incluso sin la ayuda de un equipo especial, por lo que este método de organización de la base es el más asequible para la instalación de bricolaje.
Ventajas y desventajas del método de tornillo de pilotes.
Las principales ventajas de una cimentación sobre pilotes roscados son:
- Precio pagable;
- velocidad de trabajo;
- la posibilidad de autoensamblaje;

Para la estabilidad y resistencia de la base, las pilas de tornillos se atornillan antes de sumergirlas en tierra firme.
- tendido en casi cualquier suelo;
- independencia de la temporada.
- realizado sin excavación preliminar;
Las desventajas del método de tornillo de pila incluyen:
- susceptibilidad a la corrosión cuando se rompe la capa protectora de la tubería de acero;
- imposibilidad de instalación en lugares rocosos;
- instalación problemática cerca de otros edificios;
- la necesidad de cálculos precisos de la profundidad del soporte.
Las principales etapas del trabajo sobre la colocación de la base de tornillo de pilotes.
Siendo el método más avanzado en la actualidad, la versión de pilotes de tornillo de la disposición de la base atrae principalmente con la posibilidad de autoensamblaje. Por lo tanto, el futuro propietario de una casa de campo puede ahorrar significativamente en equipos costosos y constructores profesionales.
Artículo relacionado:
Reflujo para la base de la cimentación: características de selección e instalación. Qué materiales se utilizan para la producción de reflujos para la base. Cuál es mejor elegir y en qué caso. Instalación de reflujos.
La primera etapa del trabajo es un estudio del suelo, un cálculo detallado y un dibujo de un plano de la casa.
Por lo general, en la etapa inicial de la construcción, se llevan a cabo la nivelación del sitio de construcción y los movimientos de tierra asociados con la excavación de fosas de cimentación o zanjas. La colocación de la base sobre pilotes de tornillos no requiere tales acciones, lo que reduce la intensidad del trabajo y aumenta la velocidad del proceso.
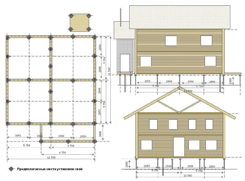
En la segunda etapa, se realiza el marcado de la instalación de pilotes debajo de la base: se colocan marcadores a intervalos de aproximadamente 2 m, los lugares donde los pilotes se torcerán en el futuro. Según el propósito del edificio en construcción, se seleccionan pilotes de cierto diámetro y peso.
El siguiente paso es apretar los soportes de los tornillos. La perforación superficial se lleva a cabo en las marcas. Las pilas se atornillan al suelo como un tornillo. Este trabajo se puede realizar tanto con la ayuda de mecanismos como a mano.
¡En una nota! En promedio, la colocación de una base de tornillos de pilotes puede llevar unos dos días.
Una vez instalados los soportes, se alinean verticalmente y se vierte la parte hueca de las tuberías con un mortero de arena-cemento, lo que aumenta la estabilidad de los pilotes y los protege de la corrosión.
La última etapa en la instalación de la cimentación es la unificación de los soportes con una reja monolítica y la posterior creación del sótano de la casa.
Cimentación de pilotes enrejados
Una vez instalados los pilotes, se conectan con una reja monolítica, sobre la que posteriormente se erige todo el edificio. Este diseño distribuye uniformemente la carga sobre los soportes de los cimientos y es la base del sótano de la casa.
La reja se realiza a modo de listón o monolítico y está formada por vigas de madera o losas de hormigón armado que unen los soportes de cimentación. Dependiendo de la ubicación, la cimentación de pilotes con reja monolítica se divide en: alta, intermedia y enterrada.
¡Importante! Debido a la disminución natural de la temperatura del suelo en la estación fría, ocurre un fenómeno dentro del suelo, llamado por los geólogos, levantamiento de suelo por congelación.
La humedad del suelo se congela en invierno y aumenta de volumen. Esto puede provocar la extrusión de los cimientos y, por lo tanto, de la casa. Para contrarrestar este fenómeno, los pilotes se unen con una reja alta a una altura de 0,1 - 0,15 m sobre el nivel del suelo. Por lo general, dicha rejilla se instala debajo de edificios que son livianos.
La rejilla intermedia se coloca a nivel del suelo utilizando una plataforma de arena o grava. La desventaja de este tipo de enrejado es que no está protegido de las heladas del suelo, que pueden arrancar pilotes y dañar la mampostería.
La rejilla baja se encuentra por debajo del nivel del suelo. Se baja a una profundidad de congelación en suelos agitados; en suelos ligeramente agitados, la estructura se coloca 0.2-0.3 m por debajo del nivel del suelo.
Al construir una casa privada, se usa con mayor frecuencia una base de pilotes altos con una rejilla monolítica. Al colocar una base sobre pilotes de tornillos, una viga de madera puede servir como rejilla, que se fija con pernos de anclaje.
Los pros y los contras de la base de rejilla de pilotes son los siguientes:
Ventajas de la cimentación de pilotes enrejados:
- Precio pagable;
- la capacidad de hacerlo usted mismo;
- instalación rápida;
- fiabilidad - casi sin contracción.
Contras del diseño:
- cálculo estricto de la rejilla de cimentación de pilotes;
- utilizado solo para edificios ligeros;
- el efecto de la corrosión en la pieza de acero.
Pila de cimientos. Pros y contras
Una de las principales ventajas de los cimientos de pilotes al construir una casa es la asequibilidad y los costos laborales. Este es el factor más atractivo para quienes construyen una casa con sus propias manos.Una ventaja importante es también la velocidad de disposición de la base y la capacidad de trabajar en cualquier época del año.
Además, la ventaja de esta opción para instalar los cimientos es la estabilidad y confiabilidad de la estructura: las hojas de los pilotes de tornillo compactan bien el suelo. Además, permite colocar la base en casi cualquier suelo.
Las desventajas de la cimentación sobre pilotes incluyen una posible contracción de la estructura. Para evitar tal fenómeno, es necesario realizar un estudio del suelo y cálculos precisos con un dibujo de una base de pilotes con una rejilla. El trabajo preparatorio minucioso se puede atribuir a las desventajas de la base del pilote.
La calidad del material utilizado es de gran importancia a la hora de disponer la base sobre pilotes. Si se viola la capa protectora, las estructuras de acero de la base están sujetas a corrosión.
Teniendo en cuenta los pros y los contras de la base de pilotes, elegirla como base de una casa de campo se considera hoy en día lo más óptimo y prometedor.