Es difícil imaginar condiciones de vida cómodas sin agua caliente. Pero hay muchas quejas sobre el trabajo del suministro de agua. El agua caliente se suministra a menudo a los apartamentos en edificios de varios pisos en las grandes ciudades de forma intermitente. En este caso, una caldera de calentamiento indirecto ayudará: el principio de funcionamiento de esta unidad es bastante simple y es posible crearlo incluso con sus propias manos. Pero de inmediato debe decirse: qué, dicho equipo proporciona la conexión al sistema de calefacción.

Una caldera de calefacción indirecta le permite ahorrar electricidad utilizando el portador de calor del sistema de calefacción.
Contenido
- 1 ¿Qué es una caldera de calefacción indirecta y para qué sirve?
- 2 Conexión de una caldera de almacenamiento a una caldera de gas.
- 3 Caldera de calefacción indirecta de bricolaje
- 4 Acumulador de calor para calderas de calefacción: características y conexiones del dispositivo.
- 5 Cómo comprar una caldera de calefacción indirecta correctamente: recomendaciones y modelos populares.
- 5.1 Características de la caldera de calentamiento indirecto Proterm 200 litros Protherm B200S
- 5.2 Características de la caldera de calefacción indirecta Dražice
- 5.3 Características técnicas de la caldera de calefacción indirecta ACV.
- 5.4 Calentador de agua Gorenje GBK80ORRNB6
- 5.5 Características del calentador de agua Bosch SK 400-3 ZB
- 5.6 Características del modelo BOSCH WSTB 160
- 5.7 Características de la caldera de calentamiento indirecto Baxi.
- 5.8 Características de la caldera de calentamiento indirecto Hajdu STA 400 C
¿Qué es una caldera de calefacción indirecta y para qué sirve?
Una caldera generalmente se llama calentador o tanque que suministra agua caliente a un apartamento o casa. En general, existen 2 tipos de tales unidades: calefacción directa e indirecta. La principal diferencia con la última versión del calentador de agua es que esta caldera genera el calor producido por el sistema de calefacción. La apariencia del tanque de calentamiento indirecto está asociada con un barril. Pero en el mercado moderno, puede encontrar modelos que tienen forma de cubo o paralelepípedo. Los primeros, que se fabrican con una caldera de calentamiento indirecto del mismo estilo, suelen instalarse directamente debajo de ella. Esta solución ahorra espacio en el lavadero.
Caldera de calentamiento indirecto: principio de funcionamiento
Se suministra agua a la unidad para 2 circuitos.El primero es el de calefacción, que está conectado al sistema de calefacción de la vivienda. En el segundo, el agua procedente del sistema de suministro de agua se calienta y posteriormente se distribuye a los puntos de toma de agua.
Los circuitos de calefacción se realizan en la unidad considerada mediante dos métodos:
- "Tanque en tanque". Por el nombre, queda claro que se trata de una caldera de calentamiento indirecto, cuyo diseño prevé la formación de un circuito al colocar un recipiente de acero de menor tamaño en el tanque principal;
- una bobina está montada en el tanque principal.
Ambos circuitos están conectados en paralelo al sistema de calefacción residencial. El refrigerante fluye de él a la caldera a través de una tubería. Para organizar la circulación efectiva del refrigerante, dicha tubería debe estar equipada con un sistema de mezcla de bomba.
¡Consejo útil! Al comprar una caldera para una caldera de gas, evalúe la capacidad de la última unidad. Debería ser suficiente para garantizar el funcionamiento simultáneo del sistema de calefacción y la caldera encendida para calentar.
Se suministra agua fría al tanque para calentar y los consumidores toman agua caliente. Debe tenerse en cuenta que muchos fabricantes producen una caldera de calentamiento indirecto con varios intercambiadores de calor. Este diseño funciona de manera más eficiente, pero es extremadamente raro en el mercado.
Pros y contras de una caldera de agua caliente indirecta
Las ventajas de la solución técnica implementada por este dispositivo incluyen:
- durante la temporada de calefacción, el cableado no está sobrecargado, ya que el dispositivo no funciona con la red;
- tanto el refrigerante como el sistema interno del calentador no entran en contacto con el agua del grifo. De ello se deduce que tal caldera de calentamiento indirecto durará mucho tiempo;
- el agua caliente comenzará a fluir al grifo inmediatamente después de encender la unidad, porque su funcionamiento se basa en el proceso de recirculación;
- Un sistema de calentamiento de agua bien diseñado basado en este dispositivo funcionará de manera eficiente con una cantidad óptima de costos en la etapa de operación.
Pero aquí hay algunos inconvenientes. Entre esos expertos se distinguen:
- la instalación de una caldera de calefacción indirecta con recirculación requiere un trabajo preparatorio importante que requiere costos financieros considerables, lo que afectará negativamente el presupuesto familiar;
- una caldera de este tipo cuesta mucho más que sus contrapartes eléctricas o de gas;
- el calentamiento inicial del agua dura entre 1 y 2 horas. Durante este período de tiempo, la calidad del sistema de calefacción puede deteriorarse notablemente;
- habiendo comprado una caldera de calefacción indirecta de 100 litros a un precio asequible, tendrá que asignar una habitación separada para instalarla. El hecho es que incluso con un volumen de capacidad interna aparentemente no tan grande, las dimensiones externas de dicho dispositivo son muy impresionantes. Por no hablar de la caldera de calentamiento indirecto de 200 litros. Pero la industria incluso produce muestras de 300 litros;

Una de las desventajas de utilizar una caldera de calefacción indirecta es la posibilidad de reducir la eficiencia del sistema de calefacción.
- Proporcionar agua caliente a la casa depende de si el sistema de calefacción está funcionando actualmente. Pero por razones obvias, no es necesario en la temporada de verano. Hay dos formas de salir de esta situación: la instalación de un sistema de suministro de agente de calefacción individual que sirva solo a la caldera, o la instalación de una caldera de calefacción indirecta combinada con un elemento de calefacción eléctrico.
Detengámonos en la última opción con más detalle. El más económico y por este motivo se ha vuelto tradicional en la caldera es un elemento calefactor de cobre. Sin embargo, debido a la intensa formación de incrustaciones a altas temperaturas en el agua dura, se descompone rápidamente. Además, estos depósitos reducen el grado de transferencia de calor del elemento calefactor, como resultado de lo cual aumenta el consumo de energía.
¡Consejo útil! La compra de una caldera de calefacción indirecta combinada con un elemento calefactor "seco" ahorrará en el pago de las facturas de electricidad.

La conexión de una caldera de calefacción indirecta es una interferencia con los sistemas de suministro de agua y calefacción, por lo tanto, antes de decidirse por la compra de un dispositivo, vale la pena consultar con especialistas.
Dicho elemento calefactor eléctrico está hecho de cerámica. Y llamaron al elemento calefactor "seco" porque está encerrado en un matraz de acero. Es decir, no hay contacto directo con el agua y, en consecuencia, no se forman escamas. La presencia de tal marco conduce a un aumento en el área de transferencia de calor y a una disminución en la intensidad del enfriamiento. Es por eso que se requiere menos electricidad para el funcionamiento de una caldera de calefacción combinada con un elemento de calefacción "seco".
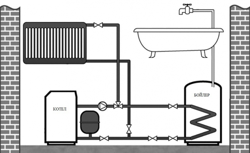
Conexión de una caldera de almacenamiento a una caldera de gas.
Es posible calentar agua en la unidad en cuestión utilizando una caldera de gas o combustible sólido, un calentador de agua solar o una bomba de calor. Además, su funcionamiento es posible en conjunto con equipos de calefacción de dos tipos: circuito simple y doble.
De acuerdo con el esquema de tuberías estándar para una caldera de calefacción indirecta, está conectado al sistema de calefacción, así como a las ramas de suministro de agua fría y caliente. En este caso, el agua fría ingresa por el fondo, el agua caliente se descarga del contenedor ubicado en la parte superior del tanque, pero el punto de recirculación se encuentra en el medio de la caldera. La dirección de movimiento del refrigerante calentado se invierte, de arriba a abajo. Es decir, desde la caldera de gas, ingresa a la tubería de derivación del calentador de agua ubicada en la parte superior y regresa a la tubería de calefacción a lo largo de la tubería de derivación inferior de la unidad.
Gracias a este esquema para conectar una caldera de calentamiento indirecto, la eficiencia de este dispositivo aumenta. Después de todo, el calor se transfiere primero a capas calientes de agua.
Características de conectar una caldera de calefacción indirecta a una caldera de doble circuito.
Para que la caldera funcione correctamente en conjunto con una unidad de calefacción con circuito de agua caliente, se utiliza una válvula de tres vías. Distribuye el flujo del medio de calefacción entre el circuito de suministro de agua adicional y el circuito de calefacción principal.
Un termostato está instalado en la caldera de almacenamiento indirecto. Es él quien genera las señales de control para la válvula de tres vías. Cuando la temperatura del agua en el tanque desciende por debajo de cierto nivel, la válvula, a la orden del termostato, se encenderá y redirigirá el flujo al ramal de suministro de agua caliente desde la tubería de calefacción. Las señales del termostato devolverán la válvula a su estado original si la temperatura del agua en el calentador excede un nivel preestablecido. El flujo del refrigerante se dirige luego a la tubería de calefacción.

Al conectar una caldera de calefacción indirecta, debe asegurarse de que todas las comunicaciones sean posibles y también comprar los sensores de presión necesarios
En la estación cálida, la unidad funciona de manera diferente: el flujo no se redirige, pero se controlan los modos de combustión de la caldera de gas. Cuando baja la temperatura del agua en la caldera, el termostato envía una señal correspondiente a la válvula de tres vías. Con este "comando", el último dispositivo "enciende" el quemador principal de la unidad de calefacción. Cuando la temperatura del agua supera un cierto valor, se detiene el suministro de gas al quemador.
¡Importante! Al configurar la temperatura máxima del agua en el depósito (también es la temperatura de activación automática del termostato), el usuario debe tener en cuenta que su valor debe ser menor que el valor de este parámetro configurado para la automatización de la caldera.
El esquema anterior funciona de manera más efectiva cuando se utilizan calderas de gas equipadas con automatización y una bomba de circulación. En este caso, la propia unidad de calefacción puede controlar la válvula de acuerdo con la señal recibida del termostato del calentador de agua.Tenga en cuenta que cuando se opera un sistema de calentamiento de agua con una válvula de tres vías, la prioridad del circuito del calentador es mayor que la del circuito de calefacción.
Diagrama de conexión de una caldera de calefacción indirecta a una caldera de circuito único
Para garantizar el funcionamiento conjunto efectivo de una caldera de calefacción indirecta con una caldera de gas de circuito único, se utiliza un circuito con dos bombas de circulación. Este tipo de conexión realmente puede reemplazar el circuito de válvula de tres vías descrito anteriormente. La separación de corrientes de refrigerante mediante bombas a través de diferentes tuberías es la característica clave de este tipo de conexión. La distribución de prioridad de contorno es la misma que en el caso anterior. Sin embargo, una prioridad más alta del circuito de suministro de agua sobre el circuito de calefacción se garantiza solo a través de un ajuste especial del algoritmo de activación de la bomba.
La activación alterna de las bombas también se controla mediante señales del termostato instalado en el tanque. Debe instalarse una válvula de retención delante de cada dispositivo. La creación de una tubería de este tipo para una caldera de calentamiento indirecto evita la mezcla de los flujos de portadores de calor.
Este esquema funciona de la siguiente manera: encender la bomba de agua caliente se acompaña de apagar la bomba de calefacción. Es decir, el sistema de calefacción comenzará a enfriarse. Sin embargo, no se observará una disminución notable en la temperatura interior debido a que el calentamiento de agua en una caldera de calentamiento indirecto con una caldera de gas durará un corto período de tiempo. Los habitantes de la casa sentirán esto solo en la puesta en marcha inicial.
A veces, para crear un área grande en un edificio con una temperatura agradable, los propietarios usan varias unidades de calefacción. Luego, se instala una bomba adicional en la tubería del calentador de agua de almacenamiento.
Características de la tubería para una caldera de calefacción indirecta con recirculación.
Si no se extrae agua caliente durante un período de tiempo prolongado, comenzará a enfriarse. Puede tomar varios minutos esperar hasta que la corriente caliente llegue desde la caldera hasta el consumidor final. La reducción del tiempo de drenaje del agua enfriada se garantiza mediante el uso de un esquema de tuberías para una caldera de calentamiento indirecto con recirculación. Esto se realiza organizando el movimiento forzado del flujo calentado a través de las tuberías cerradas en un anillo.
¡Consejo útil! Al elegir un esquema de tuberías para circuitos de calefacción y agua caliente (con o sin recirculación), es necesario tener en cuenta las características del sistema de calefacción, así como realizar cálculos precisos de la potencia del equipo y el nivel de demanda de agua caliente.
La solución de recirculación proporciona un suministro de agua caliente casi instantáneo a cualquier accesorio de plomería conectado. Proporciona que se instale otro circuito en la tubería de la caldera de calefacción indirecta, equipado con su propia bomba de circulación, y se instalen componentes estructurales adicionales:
- válvula de seguridad (diseñada para proteger el calentador de agua de alta presión);
- ventilación de aire automática (evita que la bomba se ventile);
- Tanque de expansión (realiza la función de compensación de presión en el circuito de ACS cuando los grifos están cerrados);
- válvula de retención (evita el reflujo de agua en la tubería).
Artículo relacionado:
Calderas para agua: un resumen de las mejores ofertas del mercado actual
Revisión de los mejores modelos y fabricantes. Variedades y reglas para elegir un calentador de agua adecuado. Drenaje de agua de la caldera.
Caldera de calefacción indirecta de bricolaje
Todo el trabajo consiste en ensamblar las partes constitutivas de la estructura. Como ejemplo, daremos la fabricación de un calentador de agua con bobina. El simple principio de funcionamiento de este dispositivo infunde confianza en que una caldera de calefacción indirecta de este tipo se puede crear de forma independiente.
Fabricación y selección de un tanque de almacenamiento para un calentador de agua de almacenamiento.
En la caldera, se utiliza un tanque como contenedor. El volumen de este componente de la estructura es un valor derivado de las necesidades de agua caliente de los habitantes de la casa. Este indicador se calcula teniendo en cuenta el hecho de que, de acuerdo con las normas, deben caer alrededor de 50-70 litros por miembro de la familia por día. Por lo tanto, si una familia consta de 4 personas, puede optar por una caldera de calefacción indirecta de 200 litros, cuyo precio de los componentes no supondrá una carga para el presupuesto familiar.
Sin embargo, no será posible prescindir de unos costes importantes, ya que el depósito para el dispositivo de calentamiento debe estar hecho de aleaciones de aluminio caras, acero inoxidable caro u otro material resistente a la corrosión, cuyo coste también es relativamente alto. Alternativamente, también es adecuado un cilindro de gas. Sin embargo, sus paredes primero deben limpiarse e imprimarse. De lo contrario, el agua olerá a gas.
Se realizan 5 orificios en el tanque: 1 en la parte inferior para conectar el grifo de drenaje, otro 1 en la parte inferior para el tubo de entrada, 1 en la parte superior para la toma de agua y 2 en el lateral para la instalación de la batería. Sabiendo que esta caldera de calefacción indirecta tendrá que funcionar al final de la temporada de calefacción, es necesario crear las condiciones para instalar el elemento calefactor perforando un orificio desde la parte inferior. Habiendo hecho agujeros, fije válvulas de bola o elementos de cierre en ellos.

El volumen del tanque de la caldera debe seleccionarse en función del número de personas que viven en la casa y los puntos de consumo de agua.
Fabricación de bobinas: se requieren materiales y descripción del proceso
Este elemento realiza la función de circuito de calefacción en la caldera de acumulación. Es decir, ingresa un refrigerante: agua caliente del sistema de calefacción. Por el contacto con la superficie calentada del serpentín, la temperatura del agua del grifo presente en el segundo circuito aumenta en consecuencia.
Un tubo de latón o cobre es adecuado para este componente. Su longitud y diámetro están determinados por el volumen del tanque. Para 10 litros, debe haber un promedio de 1,5 kW de salida de calor producida por el tubo serpentín.
¡Consejo útil! Para ahorrar dinero, puede utilizar un tubo de metal-plástico o el mismo elemento hecho de otro metal con buena transferencia de calor.
Espiral del tubo sobre el mandril cilíndrico. Para esto, es adecuada una tubería o un tronco de gran diámetro.
Al enrollar una bobina, es necesario seguir los giros, siguiendo las siguientes recomendaciones:
- no dejes que se toquen. Esto asegurará un mejor contacto de la superficie del serpentín con el agua calentada;
- no se recomienda un esfuerzo excesivo. Entonces no será fácil quitar la bobina del mandril;
- Calcule correctamente el número de vueltas en función de la altura y el volumen del tanque.
Aislamiento térmico del tanque e instalación de la estructura terminada.
La superficie exterior de la caldera de calentamiento indirecto de esta modificación debe cubrirse con una capa aislante del calor. Esta solución técnica aumentará la eficiencia de la unidad y reducirá las pérdidas de calor. Para aislar el contenedor, use espuma, lana mineral u otro material aislante del calor, que se puede fijar a la base con bridas, pegamento o alambre. Para que la apariencia del tanque sea atractiva, es mejor cubrir su cuerpo con una lámina de aislamiento o una lámina delgada de metal.
También puede crear un prototipo de construcción tipo sándwich. Esta opción prevé la instalación de la caldera creada en un tanque con un diámetro mayor. La cavidad formada entre las superficies se puede rellenar con espuma u otro material aislante del calor, formando así una especie de termo.
Puede comenzar a ensamblar la estructura después de preparar todas las partes requeridas y seguir el algoritmo de acciones:
- Monte la bobina dentro del tanque a lo largo de sus paredes o en el centro. Suelde las tuberías a las tuberías de entrada y salida del tanque;
- decidir cómo se instalará el calentador. Aquí hay dos opciones. Por lo general, los soportes se sueldan a la parte inferior de las calderas de calefacción indirecta de suelo. Si optó por una caldera de calefacción indirecta montada en la pared, entonces suelde, o mejor suelde, a la superficie posterior de la bisagra (o "orejas");

Las calderas modernas de calefacción indirecta están equipadas con dispositivos modernos de control de temperatura, así como con aislamiento térmico de alta calidad, que es difícil de repetir en calderas de bricolaje.
- instalar el elemento calefactor;
- cierre la caldera herméticamente con una tapa;
- conecte la bobina al circuito de calefacción. Al hacerlo, guíese por las reglas estándar para realizar este procedimiento;
- conecte las tuberías de entrada y salida de agua;
- coloque las tuberías hacia el baño o hacia la cocina en el punto de toma de agua.
Acumulador de calor para calderas de calefacción: características y conexiones del dispositivo.
El propósito de usar esta unidad es recolectar y almacenar el refrigerante calentado a una cierta temperatura para su posterior transferencia al sistema, cuando surja la necesidad. Al estar conectada al circuito de agua de la habitación, una batería de este tipo proporciona soporte para el régimen de temperatura, incluso si la fuente de calor está apagada.
¡Consejo útil!Si el calentamiento de agua de la casa se produce a partir de electricidad, el registro de la tarifa nocturna con precios reducidos por el costo de 1 kW / h. ahorrará en el pago de facturas. El sistema de calefacción se calentará lo suficiente por la noche y durante el día funcionará el acumulador de calor.
Este dispositivo también tiene otras funciones. Los principales incluyen:
- reduce el consumo de combustible en casi un tercio. En este caso, aumenta la eficiencia de la planta de combustible;
- protege los dispositivos de calefacción del sobrecalentamiento, acumulando el exceso de calor;
- calienta el agua para el sistema de ACS. Es decir, de hecho, este es uno de los tipos de caldera de calentamiento indirecto. El precio de esta unidad varía en un rango muy amplio: de 13 a más de 300 mil rublos;
- El tanque de almacenamiento de calor puede conectar varias fuentes de calor que funcionan con diferentes tipos de energía o combustible;
- el diseño del dispositivo permite la selección de refrigerante a diferentes temperaturas.
Dispositivo de almacenamiento de calor y conexión racional de dispositivos externos.
La parte principal de esta unidad es un tanque cilíndrico de acero inoxidable lleno de un líquido caracterizado por un alto coeficiente de transferencia de calor. Su flejado se realiza con material termoaislante. En combinación con la instalación de una camisa superior, esta solución de diseño aumenta el tiempo de enfriamiento del acumulador de calor. Dentro del tanque cilíndrico hay de 1 a 3 intercambiadores de calor. La cantidad de bobinas está determinada por las capacidades y necesidades de los propietarios.
El agua calentada de las calderas de combustible sólido o gas ingresa a la cavidad del tanque acumulador desde arriba, y el líquido enfriado se deposita más cerca del fondo y se bombea nuevamente a la caldera para su calentamiento.

Diagrama de un dispositivo de almacenamiento de calor con la capacidad de conectarse a fuentes de energía alternativas
El compartimento inferior suele tener una temperatura del orden de 35-40 ° C. Por lo tanto, es recomendable conectarlo al sistema de calefacción por suelo radiante. La temperatura de la parte media es de 60-65 ° С. Por lo tanto, se deben conectar dispositivos de calefacción. La parte superior del tanque está conectada al suministro de agua caliente. La temperatura del agua alcanza los 80-85 ° С.
Cómo comprar una caldera de calefacción indirecta correctamente: recomendaciones y modelos populares.
Al elegir un dispositivo para proporcionar agua caliente a un determinado objeto, su apariencia no debe ser el criterio principal. Es necesario tener en cuenta las características que inciden directamente en la eficiencia operativa de la unidad de este tipo.Se trata, en primer lugar, de su volumen. Además, debe tenerse en cuenta la carga máxima del calentador de agua.
Los expertos recomiendan partir de los siguientes valores:
- para 1 persona, un volumen de 50-60 litros será suficiente;
- para 2-3 personas necesitará una caldera con un volumen de 80-120 litros;
- para 3-5 personas, considere modelos de 120 a 200 litros.

Los fabricantes modernos ofrecen a los consumidores una amplia selección de calderas de calentamiento indirecto de varios tamaños y formas.
Las más populares son, a juzgar por las revisiones, las calderas de calefacción indirecta por debajo de las marcas presentadas.
Características de la caldera de calentamiento indirecto Proterm 200 litros Protherm B200S
Esta unidad está aislada con espuma de poliuretano. Las propiedades inherentes de este material mantienen la pérdida de calor al mínimo. El panel de control proporciona una indicación de la temperatura del agua en la caldera. El ánodo de titanio y la superficie esmaltada brindan una protección confiable de este calentador de agua contra la corrosión y la formación de incrustaciones. Un intercambiador de calor de acero gemelo se encuentra en la parte inferior de la unidad. Esto le permite aumentar significativamente el suministro de agua caliente y acelerar el proceso de calentamiento.
¡Consejo útil! Para lograr la máxima eficiencia de funcionamiento de la caldera de calentamiento indirecto Proterm de este modelo, utilícela en combinación con las calderas "Medved" y "Grizzly" del tipo estacionario del mismo fabricante de Eslovaquia.
A continuación se muestran las principales características técnicas del calentador de agua Protherm B200S:
Volumen, l | 200 |
La forma | Cilíndrico |
Tipo de asignación | Al aire libre |
Número de intercambiadores de calor, piezas | 1 |
Regulador de temperatura | Mecánico |
Temperatura del agua (máxima), ° С | 90 |
Pérdidas diarias de energía, kW | 2 |
Peso, kg | 90 |
Características de la caldera de calefacción indirecta Dražice
Si desea comprar una caldera de calefacción indirecta de 200 litros de pie, se recomienda considerar el modelo DRAZICE OKC 200 NTRR del fabricante checo. Esta empresa produce este tipo de equipos desde hace más de 60 años, mejorando constantemente su funcionalidad y diseño.

El modelo de caldera DRAZICE OKC 200 NTRR se puede conectar tanto al sistema de calefacción como a la red
La gama de modelos incluye unidades que proporcionan importantes ahorros de energía. La ventaja es el precio relativamente asequible de una caldera de calefacción indirecta de 200 litros Drazhice, alrededor de 33 mil rublos, y no en detrimento de la alta calidad del trabajo y la durabilidad. Otra ventaja se refiere a la cuestión de cómo conectar la caldera de calefacción indirecta Drazhice. Aquí hay dos opciones: al sistema de calefacción oa la red eléctrica.
Características técnicas de la caldera DRAZICE OKC 200 NTRR:
Volumen, l | 200 |
La forma | Cilíndrico |
Tipo de asignación | Al aire libre |
Número de intercambiadores de calor | 2 |
Regulador de temperatura | Mecánico |
Temperatura del agua (máxima), ° С | 110 |
Peso, kg | 108 |
Características técnicas de la caldera de calefacción indirecta ACV.
Una serie de calentadores de agua ofrecidos por la empresa belga ACV son unidades duraderas, confiables, duraderas, espaciosas y modernas. Para minimizar el nivel de pérdidas de calor, el fabricante prestó gran atención al aislamiento térmico. Está hecho de espuma de poliuretano, un material completamente ecológico, caracterizado por excelentes propiedades de absorción de ruido y una vida útil muy larga. La comodidad de uso se suma a la gran capacidad del tanque. Hablamos de la posibilidad de adquirir una caldera de calentamiento indirecto de 300 litros de este fabricante.
Las características técnicas del equipo ACV SMART SLE 300 se presentan a continuación:
Volumen total, l | 293 |
Entrada de calor, kW | 68 |
Tiempo de calentamiento hasta 80 ° С, minutos | 22 |
Productividad cuando se calienta a una temperatura de 40 ° C, litro / hora | 2100 |
Peso de la caldera vacía, kg | 87,0 |
La caldera ACV SMART SLE 300 se instala en una sala seca con temperatura superior a cero. En este caso, es necesario elegir la ubicación correcta para el calentador de agua.

El modelo de la caldera SMART SLE 300 de la empresa ACV está equipado con aislamiento térmico de alta calidad, lo que permite reducir la pérdida de calor durante el funcionamiento.
¡Consejo útil! Al instalar, es necesario minimizar la longitud de las comunicaciones de ingeniería. Por lo tanto, además de ahorrar dinero en la compra de elementos de etiqueta para tuberías, puede reducir aún más el nivel de pérdida de calor. Es decir, después de haber descubierto cómo conectar una caldera de calefacción indirecta de este modelo, asegúrese de que la distancia de los puntos de consumo de agua caliente desde la unidad sea lo más pequeña posible.
Calentador de agua Gorenje GBK80ORRNB6
Si está buscando un modelo compacto de calentador de agua de almacenamiento capaz de proporcionar agua caliente para una casa en la que viven 1-2 personas, los expertos recomiendan prestar atención a este producto del fabricante esloveno Gorenje.
La caldera compacta GBK80ORRNB6 tiene dos intercambiadores de calor tubulares. Su volumen es suficiente para dar servicio a dos puntos de toma de agua. La unidad está equipada con una unidad de control electrónico. La temperatura del ACS varía en el rango de 15-75 ° С.

La caldera de calentamiento indirecto de GBK80ORRNB6 tiene un panel de control conveniente que le permite controlar la temperatura del agua
La función de un calentador adicional se realiza mediante dos elementos de calentamiento "secos". Se implementan varios tipos de protección en el modelo: de calentamiento sin agua y sobrecalentamiento, de corrosión (se instala un ánodo de magnesio), de congelación (se implementa aislamiento térmico de alta calidad).
Otra ventaja significativa de esta unidad es la presencia de la función de controlar la legionelosis (una enfermedad pulmonar común, cuyo hábitat de patógenos es el agua caliente). En general, hoy es una de las mejores soluciones en cuanto a precio y calidad.
Características técnicas del calentador de agua Gorenje GBK80ORRNB6:
Volumen, l | 72,6 |
Un elemento calefactor | 2 bobinas |
Opción de alojamiento | pared |
Presión de agua (máxima), MPa | 0,6 |
Peso, kg | 51 |
Dimensiones totales, mm | 507×500×803 |
Características del calentador de agua Bosch SK 400-3 ZB
Los resultados del seguimiento del mercado moderno demuestran el hecho de que la gama de calderas de calentamiento indirecto producidas por la empresa alemana Bosch contiene un número muy limitado de artículos. Por tanto, este modelo merece una atención especial. Se distingue por su simplicidad de solución de diseño.
El Bosch SK 400-3 ZB es un tanque esmaltado con una bobina de acero inoxidable. El uso de un ánodo de magnesio para la protección contra la corrosión tampoco es sorprendente: este método para combatir este fenómeno se usa muy a menudo en equipos de este tipo. La capacidad de servicio está garantizada por un termómetro y una brida incorporados.
También es posible ajustar el funcionamiento de este modelo de calentador de agua conectando la recirculación de agua caliente con la sincronización posterior con la caldera de calefacción. El aislamiento térmico está hecho de espuma rígida, no de espuma de poliuretano, que, dado el mismo espesor, proporciona una protección menos confiable contra la pérdida de calor.
Características técnicas de la unidad Bosch SK 400-3 ZB:
potencia, kWt | 60 |
Volumen, l | 388 |
Productividad (máxima) en modo flujo, l / min., ΔT = 25 ° С | 24,2 |
Un elemento calefactor | 1 bobina |
Opción de alojamiento | Suelo |
Presión de agua (máxima), MPa | 1 |
Peso, kg | 150 |
dimensiones | 710×1681 |
Conexión del elemento calefactor | Imposible |
Características del modelo BOSCH WSTB 160
Vale la pena pensar en comprar este calentador de agua si se instala una caldera de gas en el hogar. Aunque aquí no hay posibilidad de conectar el elemento calefactor, el sistema de recirculación está funcionando.

La caldera BOSCH WSTB 160 tiene un diseño lacónico, por lo que es muy popular entre los consumidores.
Este modelo está adaptado para trabajar en duras condiciones operativas en los países postsoviéticos. Además, la unidad BOSCH WSTB 160 es adecuada para trabajar con agua dura.Para proteger el acero de la corrosión, la superficie del tanque se cubre con un compuesto vitrocerámico. Para reducir la pérdida de calor, se utiliza un abrigo de piel de espuma de poliuretano. La carcasa de la unidad es blanda, hecha de cloruro de polivinilo. Tipo de conexión: frontal, es posible utilizar un sensor de temperatura. El agua se calienta a 45 ° C en 37 minutos.
Características técnicas de la caldera de este modelo:
potencia, kWt | 20,8 |
Volumen, l | 160 |
Opción de alojamiento | pared |
Un elemento calefactor | 1 bobina |
Presión de agua (máxima), MPa | 1 |
Dimensiones, mm | 1193×550 |
Peso, kg | 42 |
Características de la caldera de calentamiento indirecto Baxi.
A menudo, los propietarios de casas de campo eligen una caldera, teniendo en cuenta, en primer lugar, la velocidad de calefacción y no su volumen. En este caso, conviene echar un vistazo más de cerca al producto del holding BAXI GROUP (Inglaterra), el modelo Premier plus 300.

Una caldera de calefacción indirecta de la empresa Baksi se puede conectar a cualquier tipo de caldera
¡Consejo útil! Si el material de fabricación de esta unidad - acero esmaltado o acero inoxidable - es crítico para usted, preste atención a su serie. En el primer caso, se indicará con la secuencia de caracteres "UB", y en el segundo, "INOX".
La característica clave de este calentador de agua es que el intercambiador de calor tiene un diseño específico: "bobina dentro de bobina". Y también debe tenerse en cuenta que la caldera de calentamiento indirecto Baksi es compatible con calderas de cualquier tipo. Además, esta unidad está bien protegida contra la corrosión. Las dimensiones bastante compactas y el bajo peso de este calentador de agua no se convirtieron en un obstáculo para equiparlo con una bomba térmica precisa.
Otra ventaja importante es la versatilidad de ubicación. El diseño de este modelo permite utilizar un circuito de recirculación. Además, es posible conectar un elemento calefactor (potencia óptima 2,7 kW).
Características técnicas del modelo de calentador de agua Premier plus 300 de BAXI:
potencia, kWt | 30 |
Volumen, l | 300 |
Diseño de elemento calefactor | Bobina en bobina |
Presión de agua (máxima), MPa | 0,7 |
Opciones de alojamiento | Piso y pared |
Conexión del elemento calefactor | tal vez |
Dimensiones, mm | 2040×552 |
Peso, kg | 60 |
Características de la caldera de calentamiento indirecto Hajdu STA 400 C
Un comprador potencial puede estar interesado en este modelo por la posibilidad de un ajuste más preciso en presencia de un intercambiador de calor. Por ejemplo, a una temperatura exterior negativa, esta unidad se puede reconstruir para que funcione junto con la caldera, y en el verano se puede conectar a Batería solar (cuando sea necesario, el elemento calefactor está conectado).

Algunos modelos de calderas Hajdu están equipados con una bomba de calor para mantener circulando el medio de calefacción.
El tanque y el intercambiador de calor están protegidos de la corrosión por esmalte y un ánodo de magnesio instalado. El aislamiento de espuma de poliuretano está protegido, a su vez, por una carcasa de plástico. Se puede conectar un sistema de recirculación de ACS.
Características del modelo STA 400 C:
potencia, kWt | 69 |
Volumen, l | 400 |
Productividad (máxima) en modo flujo, l / min., ΔT = 35 ° С | 28,3 |
Un elemento calefactor | 1 bobina |
Opción de alojamiento | Suelo |
Presión de Ode (máxima) | MPa 1 |
Peso, kg | 145 |
Dimensiones, mm | 1832×670 |
En conclusión, hay que decir que la elección e instalación de una caldera combinada para un hogar es una tarea responsable y difícil, que se puede resolver leyendo los diagramas de conexión, consejos y opiniones de especialistas, así como los comentarios de los usuarios de dichos sistemas.