Monet vakiokokoisten huoneistojen asukkaat eivät ole tyytyväisiä heille toimitettuihin perustietoihin. Ja tämä on melko ymmärrettävää, koska asuintila jaetaan usein siten, että perheelle eläminen tulee epämukavaksi. Jos tavoitteesi on rakentaa asunto uudelleen: mikä on mahdollista ja mikä ei - yksi yleisimmistä kysymyksistä tässä vaiheessa. Ota huomioon kaikki kiellot ja asiantuntijoiden suositukset tällä alalla.
Sisältö
Huoneiston kunnostaminen: mitä voi ja mitä ei voi tehdä
Lähes kaikkia muutoksia, joihin kerrostalojen asukkailla on varaa, hallitaan lainsäädännöllä. Siksi kaiken toiminnan perusta on asuntolaki, jossa säädetään erityisestä osasta, jonka tarkoituksena on säännellä tätä asiaa.
Uudistamiskiellot
Tarkastellaan yksityiskohtaisesti, mitä on ehdottomasti kielletty tehdä osana huoneiston uudistamista.
Rakennustyöt, jotka tähtäävät tukiseinien teknisten ominaisuuksien tuhoutumiseen tai heikentymiseen, on kielletty (osittainen tuhoaminen, harvennus, lisäkuormien luominen). Jotta kunnostaminen voidaan suorittaa turvallisesti kaikille talossa asuville, katso huoneiston tekninen passi. Kaikki kantavat seinät on merkitty kaavioon.
Kielto on vahvistettu paitsi näiden seinien purkamiselle myös lisäkuormien luomiselle niihin. Raskaiden väliseinien asentaminen edellyttää asianmukaista lupaa. Asuntojen uudelleenjärjestelyissä ilman hyväksyntää asuntolaki säätää vastuusta sakon muodossa. Huoneiston kunnostamiseksi ilman lupaa joudut maksamaan noin 4 tuhatta ruplaa.
Tärkeä! Jos kohtaat asunnon laittoman uudistamisen, asuntopalvelun henkilökunta kertoo sinulle, mistä valittaa.
Kuinka ymmärtää, mikä seinä kantaa? Ensinnäkin kaikkien ulkoseinien on oltava kantavia. Toiseksi nämä ovat seinät, jotka erottavat yhden huoneiston toisesta ja sisäänkäynnistä. Saadaksesi tarkkoja tietoja, katso vain huoneistosuunnitelma.Kaikki kantavat seinät ovat paljon paksumpia kuin väliseinät, ja ne on merkitty erityisellä varjostuksella tai lihavoitulla viivalla.
On kiellettyä käyttää yhteisiä rakennusviestejä oman huoneiston kunnostamiseen... Tässä tapauksessa ne tarkoittavat useimmiten kuuman veden ja lämmitysjärjestelmän käyttöä. Esimerkiksi lämpimien lattioiden asentamiseksi huoneistoon on välttämätöntä varustaa huone ylimääräinen vedenlämmityslaite. Muuten olet vaarassa luoda suuri kuormitus julkiselle viestinnälle ja joko riistää tämän mukavuuden joiltakin asukkailta tai laskea hanan veden lämpötilaa merkittävästi. Samasta syystä on kielletty lisäparistojen asentaminen parvekkeille ja loggioille.
Ilmanvaihtojärjestelmän, vesiputkien tai kaasuputkien häiriö on kielletty.... Kaikki näihin järjestelmiin vaikuttavat työt on sovitettava yhteen asiaankuuluvien organisaatioiden kanssa ja tehtävä vasta luvan saatuaan.

Keittiön seinien osittainen purkaminen on sallittua, jos huoneessa käytetään sähkökäyttöistä, ei kaasuliesi
Luonnollisesti herää kysymys keittiön ja olohuoneen yhdistämisestä, koska tämä on yksi yleisimmistä uudistamisvaihtoehdoista pienissä huoneistoissa. On olemassa kaksi vaihtoehtoa ongelman ratkaisemiseksi:
- kaasulieden korvaaminen sähköllä (tässä tapauksessa jopa huoneiden täydellinen yhdistäminen yhdeksi huoneeksi on sallittua);
- ylimääräisen oven tai ikkunan avaamisen asentaminen keittiöön (huoneiden täydellinen yhdistäminen purkamalla seinä tai luomalla avoin kaari ei ole sallittua).
Muiden kuin asuintilojen pinta-alan lisääminen asuntoja pienentämällä on kielletty... Tämä tarkoittaa, että osaa huoneesta on mahdotonta laajentaa ruokakomero tai käytävä. Asuntolaki ei myöskään säädä paneelitalon huoneiston uudistamista siten, että olohuoneet jäävät ilman valon tai lämmön lähdettä.
Huomautus! Kun suunnittelet rakennustöitä, älä unohda, että tuloksena olevan olohuoneen pinta-alan ei tulisi olla pienempi kuin 8 m².
On kiellettyä muuttaa radikaalisti kylpyhuoneen sijaintia... Kylpyä, pesuallasta tai suihkua ei voi asentaa suoraan alla olevien naapureiden olohuoneiden yläpuolelle. Kylpyhuoneen laajentamiseen voit käyttää vain vierekkäisiä muita kuin asuintiloja, esimerkiksi varastotilaa, käytävää jne.
Muutokset, jotka ovat sallittuja osana uudistamista
Harkitse, mitä kerrostalojen asukkaille on edelleen sallittua ja kuinka paljon maksaa asunnon uudelleenrakentaminen, jotta ymmärtäisit, miten voit tehdä asunnon uudelleen itse, legitimoida kaikki muutokset ja koskaan palata asiaan uudelleen.
Se, että asuntolaki säätää ja sallii tietyt muutokset, ei tarkoita lainkaan, että niiden täytäntöönpano voidaan toteuttaa vapaasti eikä sitä tueta millään asiakirjalla. Se, että jotkin muutokset ovat sallittuja, ei vapauta tarvetta laillistaa rakennuksen uudistamista. Joten mitä voidaan parantaa asuintilassasi?
Seinät, jotka eivät ole kantavia, saa purkaa... Ne voidaan purkaa kokonaan tai osittain, siirtää, muokata. Lisäksi uudet seinät voidaan pystyttää jakamaan nykyinen tila. Tässä ei kuitenkaan pidä unohtaa rakennuksen lattian kuormituksen sallittuja rajoja. On hyvin vaikeaa tehdä laskelmia itse, joten olisi parempi ottaa yhteyttä asiantuntijaan, jolla on kaikki tähän tarvittavat tiedot. Lisäksi hän kertoo sinulle, kuinka sopia asunnon uudistamisesta.
Hyödyllisiä neuvoja! Jos päätät asunnon sovitun uudistamisen yhteydessä asentaa ylimääräisen seinän tai siirtää olemassa olevan, kiinnitä huomiota kipsilevyyn.Se on kevyt materiaali, erittäin kätevä asennuksessa ja sisustuksessa.
Voit suurentaa asuintilaa purkamalla nykyisen huoneen ja loggian välisen seinän... Se vaatii myös asiantuntijan kuulemista, joka voi ehdottaa sopivinta uudistamisvaihtoehtoa. Koska ylimääräisen pariston asentaminen parvekkeelle on mahdotonta, sinun on mietittävä, kuinka varmistaa, että loggiasta ei tule ylimääräistä kylmää.
Pääpaino parvekkeen ja huoneen yhdistämisessä tulisi kiinnittää ulkoseinän eristykseen. Jos kaikki materiaalit on valittu oikein ja korkealaatuisia, pieni sähkölämmityslaite riittää pitämään huoneen vaaditun lämpötilan.
Kylpyhuoneen laajennus on sallittu vierekkäisten muiden kuin asuintilojen, kuten käytävän ja varastotilan, vuoksi... Niiden välinen seinä voidaan vetää alas ja suurentaa, mikä on kylpyhuoneen koko. Jos saat asianmukaisen luvan, voit myös asentaa porealtaan huoneistoon. Vaikka tällainen kylpyamme on melko raskas, lattian asianmukaisella järjestelyllä sen asennus ei aiheuta merkittävää kuormitusta rakennukselle.
Asiaankuuluvien palvelujen osallistuessa muutokset kaasu- ja vesihuoltojärjestelmien toimintaan sallitaan... Erityisen lisenssin avulla työntekijät voivat tehdä laskelmia ja työskennellä näiden viestien kanssa.
Voit lisätä huoneen pinta-alaa käyttämällä muuta kuin asuintilaa... Lähes kaikki vaihtoehdot ovat sallittuja tässä, lukuun ottamatta niitä, jotka koskevat huoneen yhdistämistä keittiöön, jossa on kaasuliesi.
Sallitaan jakaa olemassa olevat huoneet lisäväliseinillä... Esimerkkinä näet suunnitelmat kahden huoneen huoneiston uudelleenrakentamisesta kolmen huoneen huoneistoksi.
Asunnon uudelleenrakentamisen hyväksymiskustannukset ovat melko pienet, ja on täysin mahdollista tehdä kaikki lain vaatimusten mukaisesti. Alueen asuntopalvelusta saat selville, miten saat luvan asunnon uudistamiseen.
Kuinka laillistaa asunnon uudelleenrakentaminen itse
Saadaksesi luvan asunnon uudistamiseen itse sinun on suoritettava useita pakollisia vaiheita:
- hankkia asuntotarkastuksesta luvat työn suorittamiseen;
- laatia uusi asuntosuunnitelma;
- suorittaa kaikki kunnostamiseen liittyvät korjaustyöt;
- kutsua ja hyväksymään asuntotarkastuksen työntekijöistä koostuva toimikunta tarkistamaan ja rekisteröimään tehdyt muutokset.
Kuinka laillistaa jo tehty asunnon uudelleenrakentaminen
Jos et halua joutua vastuuseen, laiton laiton uudistaminen ei ole sinua varten. Oletetaan kuitenkin, että muutokset tehtiin aikaisemmin ilman sinun osallistumistasi. Kuinka järjestää asunnon kunnostaminen itse? Tarkastellaan menettelyä tässä tapauksessa.
Venäjän federaation lainsäädännön, eli asuntolain 4 artiklan 29 osan mukaan, jo toteutetut peruskorjaukset voidaan rekisteröidä vain tuomioistuimen kautta. Tätä varten sinun on toimitettava seuraavat asiakirjat:
- asiakirjat, jotka vahvistavat omistuksesi;
- asunnon tekninen passi (sekä uudet että vanhat versiot);
- todistus terveys- ja epidemiologiselta asemalta;
- johtopäätös tukirakenteiden tilasta (se voidaan hankkia luvan saaneelta suunnitteluorganisaatiolta);
- lausunto;
- valtion palontorjuntapalvelun johtopäätös uudistusten vaatimustenmukaisuudesta kaikkien paloturvallisuusstandardien kanssa.
Jos haluat lisätietoja asunnon uudelleenjärjestelystä sopimiseen liittyvästä menettelystä, ota yhteyttä teknisen inventoinnin toimistoon.Asiantuntijat kertovat sinulle, mitä tarvitaan asunnon uudelleenrakentamisen asianmukaiseksi laillistamiseksi, menettelyn kustannuksista ja mitä asiakirjoja on valmisteltava. Sinun on toimitettava asunnon omistustodistus ja tekninen passi, joiden perusteella laaditaan uuden teknisen passin hakemus.
Rekisteröimätön huoneiston uudistaminen voi johtaa moniin erilaisiin seurauksiin. Tämä koskee myös asuntojen siirtämistä omistajalta toiselle. Ja puhumme paitsi osto- ja ostotapahtumasta myös vaihdosta, lahjaksi hyväksymisestä ja perinnöstä. Toisin sanoen, jos jokin kiinteistötapahtuma on tarpeen, asunnon todellisen asettelun on vastattava asiakirjoissa mainittua. Muuten tapahtuu pitkä oikeudenkäynti ja rekisteröinti uudelleen.
Toinen tapaus, joka estää heidän oikeuksiensa täysimääräisen käytön asunnon omistajana, on muutos asumistilan rajoissa. Tämä voidaan tehdä liittämällä osittain portaikko. Lain mukaan kaikki muutokset vakiintuneisiin rajoihin merkitsevät olemassa olevien asiakirjojen tunnustamista pätemättömiksi. Joten on todennäköistä, että joudut todistamaan omistajuutesi tuomioistuimessa, jos asuintilaa laajennettiin ilman asianomaisten organisaatioiden lupaa.

Rakennusjätteen poistamista säännellään lainsäädäntöä noudattaen 3000 ruplaa tai enemmän sakon laiminlyönnistä
Kuten näette, alun perin on paljon helpompaa noudattaa oikeudellista polkua kuin sen jälkeen, kun uudistaminen on jo saatu päätökseen. Hyväksyttävän asuntoprojektin hinta on myös alhaisempi, jos kaikki tehdään ajoissa ja johdonmukaisesti.
Kuinka paljon huoneiston uudelleenrakentaminen maksaa
Ennen kuin aloitat asumistilan vaihtamisen, sinun on selvitettävä, kuinka paljon huoneiston uudistaminen maksaa. STT tarjoaa useita maksullisia palveluita, joita et voi tehdä ilman. Asunnon uudistamisen paperityökustannukset ovat melko hyväksyttäviä - noin 5 tuhatta ruplaa. Asunnon kunnostushankkeen kokonaiskustannukset voivat vaihdella 20-100 tuhatta ruplaa.
Alla on luettelo huoneiston kunnostamisen itsehyväksynnän kustannuksista:
- uuden teknisen passin maksu (huoneiston uudelleenjärjestelystä sopimisen kustannukset riippuvat suurelta osin asuinpaikkasi alueesta ja huoneiston pinta-alasta);
- valtion maksu uuden maarekisteripassin saamisesta;
- oikeudenkäyntien suorittamiseen liittyvät kustannukset (jos jo toteutettua uudistusta ollaan tekemässä): oikeudenkäyntimaksu ja tarvittaessa asianajajan palkkiot;
- uuden asuntoprojektin valmistelu ja hyväksyminen, jonka myöntää toimiluvan saanut organisaatio.
Tärkeä! Älä viivytä, ja on parempi tilata välittömästi huoneiston kunnostushanke. Parhaimmillaan et yksinkertaisesti voi myydä sitä tarvittaessa ja pahimmillaan saat erittäin suuren sakon.
Uusintamahdollisuudet erikokoisille huoneistoille
Yksi radikaaleimmista ratkaisuista asuintilan laajentamiseen on yksiö. Tätä varten kaikki seinät, jotka eivät ole kantavia (paitsi kylpyhuoneen seinät), puretaan ja korvataan kevyillä, läpikuultavilla. osiot... Tämä vaihtoehto on täydellinen, jos huoneistossa asuu yksi henkilö tai nuori pariskunta.
Harkitse erilaisia vaihtoehtoja kolmen, kahden ja yksiö.
Aiheeseen liittyvä artikkeli:
Olohuone yhdistettynä keittiöön: kuvia parhaista sisätiloista. Missä tällainen yhdistelmä on sopiva? Hyödyt ja haitat. Suunnittelutyypit, tilan toiminnallisen kaavoitusmenetelmät. Tyyli valinta.
Kolmen huoneen huoneiston kunnostaminen Hruštšovissa
Kolmen huoneen huoneiston kunnostaminen paneelitalossa vie paljon aikaa ja vaivaa.Siksi, ennen asennuksen aloittamista, kehitä yksityiskohtaisin suunnitelma ja sovita se yhteen asiaankuuluvien palvelujen kanssa. Tämä auttaa välttämään tarpeetonta vaivaa ja säästämään huoneiston uudelleenrakentamisen kustannuksia.
Mutta mitä, näyttää siltä, voidaan parantaa asunnossa, jossa on jopa 3 huonetta? Usein tapahtuu, että yksin tai kolmena yhdessä asuva perhe ei tarvitse niin monta huonetta, mutta keittiön koko jättää paljon toivomisen varaa. Tässä tapauksessa he tekevät (kuten voidaan nähdä lukuisista valokuvista) 3-huoneen Hruštšovin huoneiston uudistamisen yhdistämällä viereinen olohuone keittiöön. Voit nähdä esimerkkejä onnistuneista ratkaisuista tämäntyyppisille huoneistoille valokuvasta, jossa on 3-huoneen 64 neliömetrin huoneisto. m tai muu alue.
Huoneiston uudistamisen yhteydessä keittiön ja huoneen yhdistäminen yhdeksi alueeksi on melkein kivuton. Sinun tarvitsee vain sopia huoneiston uudistamisesta itse.
Erityistä huomiota on kiinnitettävä P-44T-sarjan 3 huoneen huoneiston uudistamiseen. Tämän tyyppisessä huoneistossa on loggia, joka voi täydellisesti auttaa laajentamaan tilaa.

Yhdistelmä Hruštšovin keittiössä ja olohuone sai tilavan ruokailutilan
Kahden huoneen huoneiston uudistamisvaihtoehdot
Internetistä yleisimmin löytyvät valokuvat 2-huoneen huoneiston uudistamisesta Hruštšovissa, mikä osoittaa koko tilan täydellisen tai osittaisen yhdistämisen. Lapsiperheille tätä vaihtoehtoa ei kuitenkaan käytännössä oteta huomioon, koska kahden huoneen huoneiston uudelleenrakentaminen Hruštšovissa on suunniteltu lisäämään mukavuutta eikä päinvastoin.
Asunnossa, jossa on 2 huonetta vierekkäin, ei ole niin paljon kunnostamisvaihtoehtoja (Hruštšovien kuva osoittaa hyvin tämäntyyppiset huoneistot). Täällä sinun täytyy miettiä, onko mahdollista jakaa huoneet kivuttomasti esimerkiksi pienellä salilla tai pukeutumishuoneella vai joudutko muuttamaan kaiken radikaalisti. Joka tapauksessa joudut uhraamaan osan yhden huoneen alueesta järjestelyn yhteydessä. Mutta tässä tapauksessa se on sen arvoista.
Yksi parhaista vaihtoehdoista 2 huoneen huoneiston uudelleenrakentamiseksi on jakaa suuri huone kahteen pieneen. Tämä on loistava ratkaisu perheelle, jossa on kaksi eri sukupuolta olevaa lasta, joista jokaisella on mahdollisuus saada oma huone. Toinen huone on tässä tapauksessa varattu vanhempien makuuhuoneelle. Keittiöllä on myös olohuoneen rooli, joten on suositeltavaa yhdistää se loggiaan tai parvekkeeseen.
Ennen kuin teet lopullisen päätöksen, katso mahdollisimman monta Internetissä esitettyä valokuvaa 2-huoneen huoneiston uudistamisesta Hruštšovissa.
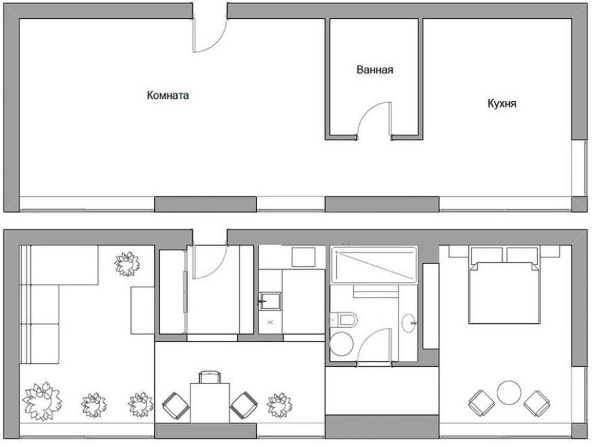
Yhden huoneen huoneiston uudistaminen Hruštšovissa
Yllättäen, mutta on mahdollista tehdä yhden huoneen huoneiston uudelleenjärjestely. Valokuvat onnistuneista ratkaisuista osoittavat tällaisten investointien toteutettavuuden. Yhden huoneen huoneiston uudistamiseen on paljon vaihtoehtoja, ja kaikki ne on suunnattu tilan visuaaliseen ja todelliseen laajentamiseen.
Saavutettavasta tavoitteesta riippuen voit toimia kahdessa suunnassa:
- studion uudistaminen yhden huoneen huoneistoksi;
- yhden huoneen huoneiston uudistaminen kahden huoneen huoneistoksi.
Se tapahtuu myös päinvastoin, kun omistajat haluavat tehdä studion yhden huoneen huoneistosta. Tässä tapauksessa sinun on toimittava keittiön ja huoneen yhdistämisen tavanomaisen järjestelmän mukaisesti. Internetissä on helppo löytää esimerkki tämän tyyppisen huoneiston uudistamisprojektista. Tällä tavoin huoneiston kunnostushankkeen hinta on alin.
Jos huoneiston pohjaratkaisu ei vastaa täysin toiveitasi, sitä voidaan muuttaa. Riittää kerätä kaikki tarvittavat asiakirjat ja kehittää uudelleen.Tietysti tämä vie paljon aikaa ja vaivaa, mutta voit laajentaa sitä osaa huoneistosta, joka on eniten kysyttävää perheellesi. Ja tällä on tietysti positiivinen vaikutus mukavuuteen asua siinä.