Iz ovog članka možete saznati s kojim se prednostima i nedostacima mora suočiti vlasnik ljetne vikendice tijekom gradnje takvog objekta kao što je kupalište: projekti i crteži struktura spojenih u jednu strukturu, varijabilnost unutarnjih rasporeda, najuspješniji i najpopularniji primjeri kombinacija, opisa i fotografija , prosječne cijene profesionalnih usluga - odgovore na sva ova pitanja sadrži ova publikacija.

Kombinirano kupalište s kućom bit će idealno mjesto za opuštanje, bez obzira na godišnje doba i vremenske prilike.
Sadržaj
Kupatilo: projekti, njihove značajke, prednosti i nedostatke
Projekti u kojima su kuća i sauna kombinirani u jednu strukturu vrlo su traženi među vlasnicima zemljišta. Ovaj je trend rezultat visoke funkcionalnosti zgrade i ugodnih uvjeta koje ima.
U većini slučajeva projekti kupaonica s dnevnim boravkom uključuju izgradnju ove strukture odvojeno od stambene zgrade, budući da je za opremanje parne sobe potreban zaseban komunikacijski sustav. Ovaj pristup je poznatiji, ali nije uvijek prikladan.
Bilješka! Ako vam ljetna vikendica ne dopušta kompaktno postavljanje dviju zgrada, možete koristiti jedino ispravno rješenje - kombinirati kupalište i kuću pod jednim krovom. Dakle, možete znatno uštedjeti prostor na teritoriju.
Prednosti projekata kuća s kadom pod jednim krovom
Mnogi vlasnici ljetnih vikendica pribjegavaju izgradnji kupke vlastitim rukama; projekti, fotografije i detaljni opisi na mreži dovoljni su da se sami nosite s tim zadatkom. Međutim, kao i svako gradilište, parna soba u kombinaciji sa stambenom zgradom ima i prednosti i nedostatke.

Glavna prednost zajedničkog smještaja kuće i kupke pod jednim krovom je ugodnost i udobnost stanovnika
Prednosti kuća i kupaonica izgrađenih pod jednim krovom:
- Prikladni uvjeti rada.Za posjet kupalištu ne morate nositi toplu odjeću.
- Smanjuje se rizik od prehlade. Kupatilo se može koristiti u preventivne svrhe, a odsustvo potrebe za izlaskom na hladnoću nakon parne sobe smanjuje vjerojatnost prehlade.
- Pristupačni trošak. Izgradnja kupališta u kući koštat će znatno manje od njegove izgradnje kao zasebne strukture. Osim toga, pojednostavljuje instalaciju inženjerskih mreža.
- Ušteda prostora. Ako je površina mjesta manja od 10 hektara, na nju je nepraktično postaviti nekoliko zgrada.
- Bez dodatnih troškova održavanja.
Prednosti takvih projekata su očite, ali nisu bez nedostataka.
Koji su nedostaci izgradnje kupatila
Glavne poteškoće s kojima se programeri moraju suočiti su poštivanje pravila i propisa. Materijal na temelju kojeg se gradi kuća s kadom, kao i građevinsko područje, mora udovoljavati zahtjevima zaštite od požara.

Imajući kupaonicu u stambenoj zgradi, morate se pridržavati svih inženjerskih i tehničkih standarda kako biste izbjegli kršenje mikroklime dnevnih soba
Ako zanemarite obvezna pravila i SNiP-ove, možete privući pozornost inspekcijskih agencija. Vatrogasne, sanitarne, opskrbne i ostale usluge možda jednostavno neće izdati dozvolu za puštanje objekta u pogon. U takvoj se situaciji uporaba kupke smatra ilegalnom i može dovesti ne samo do novčanih kazni, već i do prekida veze.
Ako se ne pridržavate inženjerskih i tehničkih standarda, možete poremetiti mikroklimu stambenih prostorija. Problem visoke vlažnosti posebno je relevantan za projekte kućnih kupaonica od cjepanica i greda, jer se drvo pod njegovim utjecajem deformira i urušava, prekriva se gljivicama i plijesnima.
Koristan savjet! Uređenje visokokvalitetnog ventilacijskog sustava u kadi, kao i točan odabir i ugradnja pare i hidroizolacijskih materijala pomoći će izbjeći probleme povezane s visokom razinom vlage u dnevnim boravcima.
Osim toga, kupalište treba zaseban kanalizacijski sustav. Ako se to ne učini, ispuštanje vode iz parne sobe u zajedničku cijev znatno će povećati opterećenje sustava, što može dovesti do njegovog neuspjeha prije planiranog vremena. Ako namjeravaju sklopiti kućno osiguranje, tvrtke takve objekte smatraju objektima visokog rizika. U tom će slučaju uvjeti police osiguranja biti manje atraktivni, a iznos plaćanja znatno manji.

Ako su obje zgrade izrađene od drveta, ako pogrešno pristupite gradnji kupke, struktura će patiti od vlage i pare
Značajke gradnje kupke: fotografija iznutra i izvana
Izgradnja kućišta, u kombinaciji sa saunom pod jednim krovom, ima određene značajke.
Projekti kupki u kući prikazani na fotografiji, koji se mogu naći na Internetu, imaju nekoliko varijacija:
- Kupatilo se nalazi na prvom katu stambene zgrade. U ovom se slučaju raspored obje strukture izrađuje u fazi izrade projekta.
- Podizanje punopravne kuće od trupaca kao produžetak na zid stambene zgrade. Da biste zatvorili kupku, potrebno je produžiti krov zgrade.
- Kupatilo i stambena zgrada povezani su jednim zidom. Ovaj projekt uvelike pojednostavljuje shemu povezivanja kupaonice i kuće u jedan kompleks, a također olakšava prijelaz s jednog dijela strukture na drugi.
Najlakši način za kretanje između struktura je ako je parna soba pričvršćena izravno na zgradu.
U ovom slučaju nudi se nekoliko opcija za kupke:
- ako je zgrada višerazinska, parnu sobu je moguće postaviti na podrum;

Kada kupalište i zgrada imaju zajednički zid, to uvelike pojednostavljuje njihovo povezivanje i prijelaz iz jedne prostorije u drugu.
- kupalište se može koristiti kao pomoćna soba ili produžetak stambene zgrade;
- parna soba može se kombinirati s kupaonicom i kupaonicom.
Ove se mogućnosti postavljanja kupke smatraju najpopularnijima, ali to ne znači da projekt višerazinske ili jednokatne kuće sa saunom ne može izgledati drugačije.
Bilješka! Ako su kuća i kupalište jedan kompleks, nema potrebe za opremanjem dodatne sobe za odmor. U ove svrhe prikladan je dnevni boravak ili druga soba u stambenoj zgradi. Sam projekt kupke mogu obuhvaćati samo svlačionicu i parnu sobu.
Odabir najboljeg projekta kupališta i cijena gotovih rješenja za ljetne vikendice
Ako vlasnik ne želi izgraditi nestandardnu strukturu na svom mjestu, tijekom procesa gradnje možete se snaći s gotovim projektom kupke po sistemu „ključ u ruke“. Najjednostavniji rasporedi uključuju uređenje saune ili parne sobe u zasebnoj sobi. Korištenje električnog kotla za grijanje prostorije eliminira potrebu za ogrjevnim drvetom i poboljšava sigurnost.
Neće biti suvišno organizirati zaseban izlaz na verandu ili ulicu iz kupaonice. Ako postoji veranda, moguće je instalirati vrata izravno između kupališta i stambene zgrade. U ovom slučaju vlasnik web mjesta također štedi novac izgradnja kupke, budući da postaje moguće izgraditi jedan zid manje. Istodobno, parna soba ostaje izolirana od opće zgrade.
Troškovi projekata kuća-kupališta iz bara (bez dorade):
Dimenzije zgrade, m | Ukupna površina unutarnjih prostorija, m2 | cijena, trljati |
7,6x7 |
53 |
499500 |
8,5x6,5 |
84 |
568800 |
7x6 |
84 |
588000 |
8x7,5 |
87 |
841750 |
8,5x10 |
116 |
926300 |
8,5x8,5 |
120 |
930800 |
8,5x8,5 |
124 |
945500 |
Troškovi projekata kupaonica s ključem u ključu |
||
7,6x7 |
53 |
808700 |
8,5x6,5 |
84 |
912900 |
7x6 |
84 |
944700 |
8x7,5 |
87 |
1363250 |
8,5x10 |
116 |
1493500 |
8,5x8,5 |
120 |
1515000 |
8,5x8,5 |
124 |
1522600 |
Izgradnja kupke u kući: projekti i izgledi
Najvažnija faza u procesu gradnje je faza projektiranja. Koliko će kućište biti udobno i praktično, ovisi o kompetentnom izboru planiranja. Osim toga, potrebno je odlučiti o mjestu kupke. Možete ga kombinirati s kupaonicom ili opremiti zasebnu parnu sobu.
Postoje i druge mogućnosti rasporeda, gdje se kupaonica stvara zasebno i podijeljena je u nekoliko funkcionalnih područja:
- praonica;
- sauna;
- soba za odmor.

Opcije rasporeda gdje se kupaonica nalazi odvojeno i podijeljena je u nekoliko funkcionalnih područja
Bilješka! Iz sigurnosnih razloga preporučljivo je koristiti isti materijal tijekom postupka gradnje. Ako je stambena zgrada izrađena od opeke, onda bi izvana s njom trebala biti ukrašena i kupka.
Pregled zanimljivih projekata kuća s garažom i saunom
Klasični projekti, gdje se kupalište nalazi odvojeno od zgrade, postupno gube svoju popularnost, dok vikendice s ugrađenim parnim sobama, naprotiv, postaju sve traženije među programerima. Takve strukture mogu uključivati dodatne komponente, poput garaže. Glavna prednost takvih projekata je njihova varijabilnost.
Garaža i sauna mogu se nalaziti na podrumskom katu, tj. u podrumu. U tom je slučaju prvi kat dodijeljen za uređenje stambenih prostora. U projektima jednokatnih kuća s kadom, sve sobe su na istoj razini. Kupatilo i kuća, ujedinjeni pod jednim krovom, mogu imati različite ulaze. U ovom su slučaju zgrade povezane pomoću prolaza koji vam omogućuje izlazak iz parne kupelji bez korištenja glavnog ulaza u stambenu zgradu.
Ako se planira razviti projekt dvoetažne kupaonice, tada će biti još više mogućnosti za postavljanje parne sobe. Mnogi programeri više vole "jednu i pol" zgradu s potkrovljem.
Kat potkrovlja može biti opremljen:
- soba za bilijar;
- radionica;
- vrtić;
- spavaća soba;
- ured itd.
Osim toga, mogu se mijenjati i drugi parametri. Na primjer, veličina garaže odabire se uzimajući u obzir dimenzije i broj automobila koji će se u njoj nalaziti.Ovisno o svojim željama, vlasnik ljetne vikendice može povećati ili smanjiti veličinu kupke, u njoj opremiti sobu za odmor, kupaonicu i druge prostore.
Projekt okvirne kuće-kupke: ušteda prostora kutnom konstrukcijom
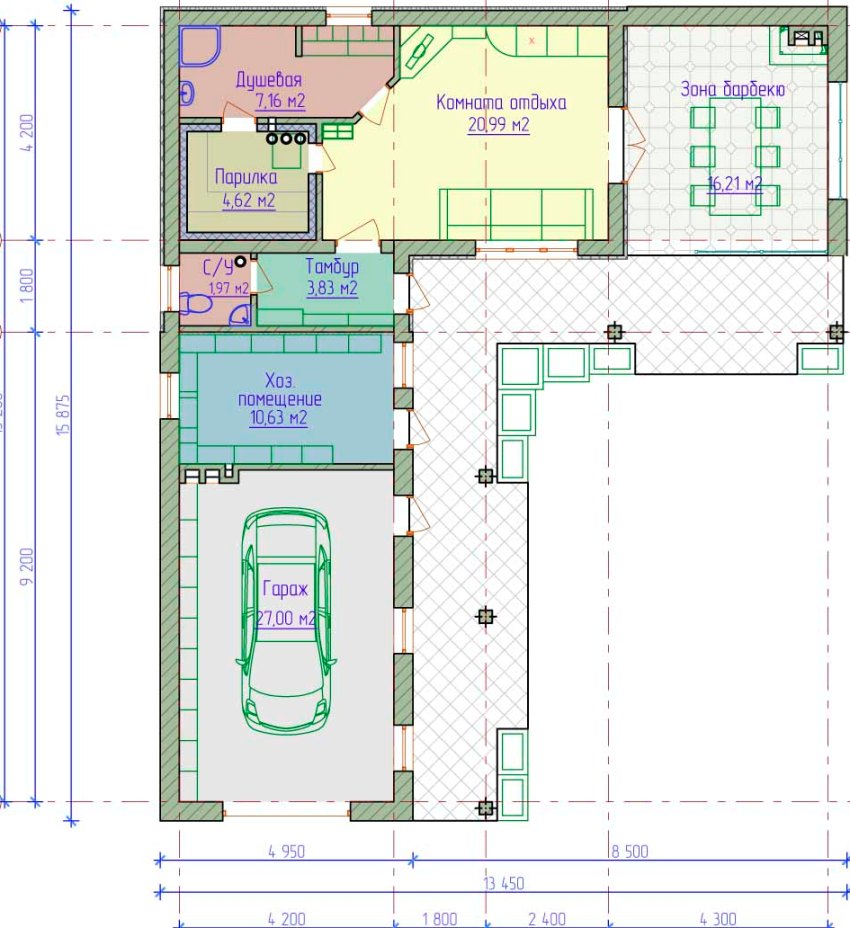
Za zajednički projekt idealan je raspored kuće u obliku slova "L". U ovom slučaju, područje teritorija koristi se maksimalno. U kutnim sobama možete stvoriti ugodne uvjete za vlasnike. Za smještaj takve kuće s garažom i kupalištem bit će dovoljna površina od 10x12 m. Ako je potrebno, ovaj se prostor može povećati ako to dopušta veličina prigradskog područja.
U projekt drvene kuće s kadom mogu se uključiti i drugi elementi:
- terasa;
- potkrovlje;
- kamin;
- ljetna kuhinja s nadstrešnicom;
- prostor za postavljanje roštilja i roštilja.
Povezani članak:
Uradi sam police za saunu: detaljne upute za montažu i ugradnju
Raznolikosti uređaja. Izračun dimenzija police u kadi. Uradi sam montažu i ugradnju kupaonice. Savjeti za njegu.
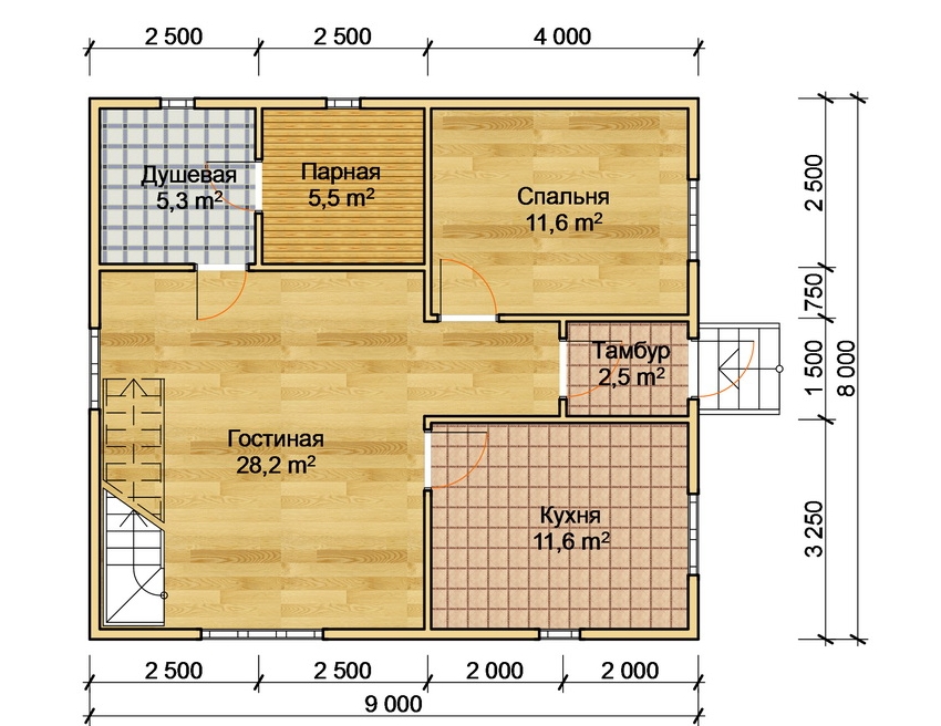
Kupatila veličine 9x15 m izgledaju prilično zanimljivo na fotografiji.Takvi su izgledi vrlo traženi među vlasnicima zemljišta. Ako teritorij nije toliko velik ili izgradnja kuće s velikim brojem elemenata prelazi proračun, možete se zaustaviti na projektu 8x8 m. Ova se opcija smatra prosječnom i omogućuje vam stvaranje svih potrebnih okolnosti u kući za život male obitelji, ali samo pod uvjetom da raspored pravilno će se sastaviti.
Zgrade dimenzija 6x8 m smatraju se najproračunskijom opcijom, u ovom slučaju raspored je posebno pažljivo osmišljen, jer će u suprotnom biti skučen. Takva se rješenja obično koriste kao projekti za pansione s kadom.
Koristan savjet! Maksimalna ušteda prostora na teritoriju može se postići projektiranjem male kuće s dva kata ili potkrovlje... Napušteno područje na ljetnoj vikendici može se koristiti za stvaranje staklenika, povrtnjaka, staklenika ili cvjetnjaka.
Projekt pansiona-kupališta s elementima zabave
Drvena kućica s kutnom konstrukcijom pogodna je za gostinjsku kuću. Takva zgrada može imati klasičnu postavku sa svim potrebnim sadržajima ili, pak, koristiti isključivo u zabavne svrhe za primanje gostiju.
U drugom slučaju, projekt pansiona s kadom ukupne površine 133,3 m² može obuhvaćati:
- terasa s pećnicom za roštilj;
- sauna;
- soba za bilijar;
- bazen;
- svlačionica.
Čak i ako će se gostinjska kuća koristiti u zabavne svrhe, stambeni dio ne treba zaboraviti.
Na 25 m² možete kompaktno smjestiti:
- spavaća soba;
- kuhinja;
- dnevna soba;
- ormar.
U ovom je slučaju najpraktičniji način pobijediti ograničeni prostor riješiti se pregrada. Podjela stambenog dijela na funkcionalne zone može biti uvjetna, kao u malim studio apartmanima. Takvom se projektu preporučuje dodati drugi kat ili potkrovlje kako bi se povećao unutarnji prostor.
Projekt saune sa sobom za opuštanje i kuhinjom za veliku obitelj
Jedna zgrada može kombinirati garažu, kupalište i životni prostor. Neki programeri idu i dalje stvaranjem dodatnog podrumskog poda. Projekt zgrade od 230 m² ima sve potrebno za život velike obitelji.
Ovo je područje dovoljno za organizaciju:
- dnevni boravak (zajednička soba);
- tri spavaće sobe;
- hodnik;
- tri kupaonice;
- sauna;
- velika terasa;
- dodatna soba za odmor.
Za izgradnju moderne kupaonice i kuće, preporučljivo je koristiti profiliranu gredu. Ovaj je materijal prikladan za izgradnju jednokatnih i dvokatnih zgrada s različitim rasporedima. Što se tiče unutarnjeg uređenja kupke, ova točka, u pravilu, nije navedena u projektu. Vlasnik može samostalno razviti dizajn, pokazujući maštu.
Koristan savjet! Za oblogu nije potrebno uzimati jednu vrstu drveta. Kombinacija nekoliko vrsta završnih obrada kupki će dati izvorni izgled. Naravno, svojstva materijala treba uzeti u obzir pri odabiru ovojnice kako bi se izbjegla buduća razočaranja.
Kako se provodi izgradnja kupališta za ljetnu rezidenciju
Pri odabiru projekta za izgradnju kupke, morate pažljivo razmotriti sve nijanse. Da bi se izbjegle pogreške, preporučljivo je razvoj objekta povjeriti profesionalcima koji će izvršiti sva potrebna mjerenja i izračune.
Prednosti projekata kuća s kadom, koje su razvili stručnjaci:
- projekt zgrade izrađuje se na temelju podataka dobivenih temeljitim proučavanjem uvjeta na lokaciji;
- usklađenost s tehničkim standardima;
- potpuna usklađenost projekta sa željama vlasnika;
- preliminarni izračun troškova gradnje;
- pomoć u odabiru najbolje opcije i prilagodbama bez ugrožavanja pouzdanosti i praktičnosti;
- visoka kvaliteta građevinskih radova.
Čitav tim profesionalaca radi na stvaranju projekta u građevinskoj tvrtki. U razvoju sudjeluju dizajneri, planeri, inženjeri sa građevinskom specijalizacijom. Zahvaljujući tome, projekti drvenih kupki i zgrada od drugih materijala trajni su, udobni i ugodni, kao i tehnički ispravni. Visoka točnost crteža omogućuje vam ubrzavanje gradnje, kao i uklanjanje mogućnosti pogrešaka.
Značajke rada s projektima ladanjskih kuća s kadom: izgradnja temelja i zidova
U gradnji bilo koje zgrade, a posebno u punopravnom kompleksu, najvažnija je faza izrada temelja. Trajnost i pouzdanost cijele konstrukcije ovisi o tome koliko je dobro izrađen ovaj element. Ako su kupalište i kuća pod istim krovom, svakako uzmite u obzir takvu nijansu kao vlažnost zraka. U takvim uvjetima korisnije je temeljni dio kuće i kupku postaviti odvojeno.
Vrsta temelja i njegovi parametri odabiru se uzimajući u obzir nekoliko čimbenika:
- vrsta materijala koji se koristi za izgradnju;
- konstrukcije zidova i pregrada;
- stupanj nosivih opterećenja.
U procesu izvođenja radova na polaganju temelja postavlja se kanalizacijski sustav. Parametri svih komunikacija promišljaju se u fazi planiranja. Pristup gradnji zidova ovisi o odabranom materijalu. Ako namjeravate koristiti drvenu gredu, svakako biste se trebali sjetiti takvog fenomena kao što je skupljanje.
Važno! Ako je kupka izrađena kao produžetak glavne zgrade, posebnu pozornost treba obratiti na spajanje konstrukcija. Inače, kupka se može deformirati, što će u budućnosti stvarati brojne probleme.
U projektima jednokatnih kupki moraju biti prisutni prozori, koji ne samo da će jamčiti udobnost, već će omogućiti i prostor prirodnom svjetlu. Prisutnost otvora u takvim strukturama vrlo je poželjna.
Ispravna izolacija kuće s kadom i krovnim radovima
Ako je kupalište izrađeno u kompleksu sa stambenom zgradom, krovna konstrukcija mora biti cjelovita.Zanemarivanje ovog zahtjeva može dovesti do uništenja. Projekt krova stvara se zasebno, jer će njegova površina biti velika, što znači da će se morati uzeti u obzir mnoge nijanse.
Posebnu pozornost treba obratiti na sljedeće točke:
- izračun visine;
- razvoj sustava odvodnje;
- postavljanje ventilacije i nape;
- polaganje sustava dimnjaka.
Nakon toga potrebno je izolirati zgradu. Na tržištu postoji mnogo kvalitetnih materijala koji su prikladni za ovu svrhu. Mineralna vuna, koja ima brojne prednosti, vrlo je tražena među programerima.
Korisne karakteristike mineralne vune:
- otpornost na vatru;
- ekološka čistoća;
- pristupačna cijena;
- jednostavan sustav instalacije.
Izolacijski materijali štite zgradu i iznutra i izvana. Sprječavaju istjecanje topline iz prostorija. Kada su radovi na izolaciji dovršeni, možete započeti završnu obradu.
Dizajn kupke sa sobom za opuštanje: fotografija iznutra kod kuće
Izbor završnog materijala postavlja opći ton za dekor. Osim ukrasne funkcije, obloga može obavljati i druge zadatke:
- hidroizolacija i izolacija prostora;
- produljenje vijeka trajanja;
- pružajući ljekoviti učinak na ljudsko tijelo (neki materijali oslobađaju korisne tvari u zrak pod utjecajem visokih temperatura).
Najbolje je koristiti bor kao ukras za sobu za odmor i svlačionicu. Pristupačan je, jednostavan za obradu i ima zanimljivu strukturu. Naprotiv, ovaj materijal nije prikladan za parnu sobu. Pod utjecajem visokih temperatura bor odaje smolu, što stvara brojne neugodnosti.
Važno! Nije dopušteno koristiti linoleum i ivericu za završnu obradu površina u kadi. Ovi materijali nisu klasificirani kao vatrootporni. Linoleum, zagrijavajući, otpušta otrovne tvari u zrak.
Poželjno je parnu i praonicu obložiti arišem ili lipom. Čak i uz značajno zagrijavanje ovih materijala, osoba koja dodirne njihovu površinu neće izgorjeti. Obje ove vrste drva dugo zadržavaju svoja ukrasna svojstva.
Druge pasmine također su prikladne kao završetak parne kupatila:
- Stablo breze;
- Joha;
- cedar;
- jasika.
Svi gore navedeni materijali imaju nisku razinu toplinske vodljivosti, pa nisu izloženi jakom zagrijavanju. Među korisnim svojstvima ovih stijena također je tendencija brzog sušenja na kraju kupališnih postupaka. Ostali materijali mogu se koristiti za završnu obradu površina u kadi. Glavna stvar je izbjegavati uporabu kemijskih premaza, koji zagrijavanjem mogu ispuštati otrovne tvari u zrak.

Drvo kao obloga omogućuje prolaz zraka što je više moguće i sprječava razvoj trulih bakterija mikroklime
Da bi se povećala razina nepropusnosti za ukrašavanje zidova, često se koristi podstava. Učvršćen je na sloju izolacije koji se sastoji od mineralne vune i aluminijske folije, a koristi se kao reflektor. Kao obloga za fasadu zgrade prikladni su sporedni kolosijek (metalni ili vinilni), imitacija drvene, drvene ili plastične obloge, kao i blok kuća.
Životni vijek cijele zgrade ovisit će o tome koliko je dobro sastavljen projekt. Zauzvrat, vlasnik može stvoriti bilo koji dizajn i uvjete unutar prostorija koji će osigurati udobnost korištenja.
Na mreži možete pronaći mnogo zanimljivih ideja za stvaranje jedinstvenog okruženja, na primjer, opremiti jacuzzi za pranje ili mali bazen ispod uklonjivog poda, u sobi instalirati hidromasažnu kadu izrađenu od bačve, tuš zamijeniti lijepom imitacijom vodopada itd.