Molti residenti di cottage suburbani ed estivi sognano di decorare il loro giardino con un elegante gazebo. Revisionano le pagine delle riviste virtuali alla ricerca di una soluzione interessante. Ed è, questo è un gazebo fai-da-te in legno: seguendo la tecnologia di costruzione e aderendo alle raccomandazioni di professionisti esperti, puoi costruire un padiglione unico che diventerà il luogo di vacanza preferito per tutta la famiglia e per i tuoi ospiti. L'auto-costruzione non solo salverà il tuo budget, ma ti permetterà anche di trarre molto piacere dal processo.
Soddisfare
- 1 Disegni fai da te e dimensioni del gazebo
- 2 Gazebo fai da te in legno: costruiamo una struttura passo dopo passo
- 2.1 Strumenti e materiali di base per la costruzione
- 2.2 Dispositivo di fondazione
- 2.3 Costruzione del solaio pergolato
- 2.4 Installazione sul tetto
- 2.5 Posa di tegole bituminose
- 2.6 Caratteristiche del design del gazebo esagonale
- 2.7 Disposizione di recinzioni gazebo in legno con le tue mani. Foto delle strutture finite
- 2.8 Design decorativo del gazebo
Disegni fai da te e dimensioni del gazebo
I modelli di pergolato sono molto diversi e interessanti. Alcune strutture differiscono in forme non standard, possono essere aperte o chiuse, essere dotato di barbecue e barbecue. Ma se decidi di costruire per la prima volta, è meglio scegliere una struttura aperta di forma semplice, ad esempio quadrata o esagonale. Disegni e schizzi nel progetto di un tale gazebo non saranno complicati e si presteranno bene allo sviluppo indipendente.

Originale sistemazione di un terrazzo con gazebo in legno e grigliate
Prima di tutto, devi decidere il design della struttura e scegliere un luogo per la futura costruzione. Lo sviluppo del progetto prevede due fasi: la creazione di uno schizzo e dei disegni strutturali in proiezioni di profilo e frontali. IN disegni gazebo vengono visualizzate le dimensioni, l'altezza del rack, la forma del tetto, la posizione dell'ingresso e l'altezza della recinzione. Se il tavolo deve essere installato in modo permanente e negozi, è necessario visualizzare la loro posizione nel piano.
Separatamente, vengono eseguiti uno schema di lavoro della fondazione e un disegno del tetto, indicandone forma, altezza, angolo di inclinazione. Il progetto prescrive schemi di unità tecniche (tetto, travi, gradini), tecnologia di costruzione, specifiche per i materiali della fondazione, pareti, tramezzi, pavimento, tetto. Prende anche in considerazione il consumo di una composizione speciale per un'efficiente lavorazione del legno da fattori esterni.
Se si prevede di dotare la struttura di illuminazione, le posizioni di installazione delle lampade e lo schema elettrico sono registrate sul disegno. Ciò vale anche per l'eventuale fornitura di acqua al padiglione.
Un progetto ben progettato è la chiave per una costruzione di successo.Calcoli accurati del numero di barre, pannelli, elementi di fissaggio, coperture, hardware e altri elementi necessari necessari consentiranno di acquistare un set completo di materiali per la costruzione ed evitare costi irragionevoli.
Consigli utili! I materiali devono essere acquistati con un piccolo margine, dato che alcune parti possono essere erroneamente danneggiate durante il processo di installazione o elementi difettosi possono essere trovati nei materiali acquistati.
Se dubiti delle tue capacità ingegneristiche e lo sviluppo di un progetto ti sembrerà difficile, puoi utilizzare disegni già pronti di pergole in legno con le tue mani. Foto, schizzi di tali edifici abbondano su Internet.
Gazebo fai da te in legno: costruiamo una struttura passo dopo passo
La realizzazione di un gazebo è un processo certosino che richiede attenzione, rispetto delle regole di installazione e stretta aderenza al progetto. Se tutto il lavoro viene svolto in una certa sequenza, il processo andrà facilmente e in soli due o tre giorni la struttura sarà pronta. Si consiglia di verificare in anticipo la disponibilità di tutti gli strumenti e di acquistare tutti i materiali richiesti secondo i calcoli, in modo che l'attività non si blocchi per mancanza di qualsiasi parte.
Strumenti e materiali di base per la costruzione
La lavorazione del legno richiede attrezzature e strumenti speciali. Verificare la loro disponibilità e praticità. Per lavorare avrai bisogno di:
- pala o trapano - per realizzare una fossa o fosse di fondazione;
- livello di costruzione, metro a nastro, quadrato;
- regola;
- scalpello, martello, chiavi inglesi, coltello per tetti;
- seghetto, seghetto alternativo o sega circolare;
- trapano o cacciavite;
- Bulgaro;
- asciugacapelli da costruzione;
- aereo elettrico;
- cavo di costruzione - per la marcatura;
- carta vetrata, pennelli, spatola;
La quantità di materiali necessari per la costruzione è presa in base alle specifiche:
- sabbia, pietrisco, cemento - a seconda del tipo di fondazione: colonnare o nastro;
- pannello per cassaforma - se si assume una base a strisce;
- una barra con una sezione diversa - 50x150 mm viene utilizzata per la reggetta inferiore, la trave centrale del telaio e il tronco del pavimento; 100x100 mm - per montanti, reggiatura superiore; 50x100 mm - utilizzato per travi angolari, ausiliarie e corte, nonché per ringhiere; 50x50 mm - per recinzione di colonnine;
- tavola del pavimento;
- rivestimento del tetto - pannelli di compensato di 12 mm di spessore;
- materiale di copertura - per lavori di isolamento;
- tegole flessibili (bituminose), colla bituminosa;
- elementi di fissaggio - viti, staffe angolari, angoli metallici, viti autofilettanti, chiodi per tetti;
- primer, mastice per legno;
- vernice, vernice.
Dispositivo di fondazione
Ad esempio, utilizzeremo un piccolo gazebo quadrato in legno con tetto a padiglione.
Scegliendo il posto giusto per gazebo, inizia a preparare il sito. È necessario rimuovere tutti i detriti, rimuovere arbusti e radici degli alberi lì. Se ci sono dossi o avvallamenti, vengono livellati.
Consigli utili! Se possibile, non installare un gazebo vicino alla carreggiata o al vicino recinzione, prova a posizionare il gazebo in un punto tale da consentire una bella vista sul giardino, sullo scivolo alpino o sul laghetto.
Successivamente, viene creato il markup per la struttura futura. Per fare ciò, guida nel primo cuneo e segna l'intero perimetro della struttura da esso, fissando gli angoli con cunei. Un cavo di costruzione viene tirato tra di loro. In questa fase, è molto importante mantenere l'angolo corretto, poiché ciò influirà successivamente sulla resistenza dell'intera struttura.Per verificarlo, è necessario controllare le diagonali del quadrato risultante. Se sono uguali, la marcatura viene eseguita correttamente e viene osservato l'angolo di 90 gradi.
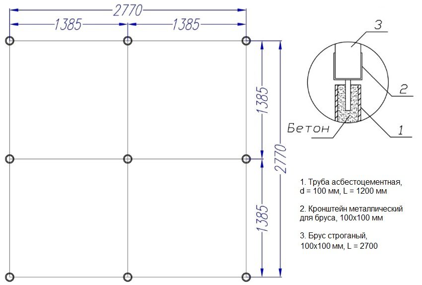
Fondamentalmente, per piccole strutture in legno, viene utilizzata una fondazione a strisce o colonnari. Poiché la costruzione di un gazebo quadrato in legno è piuttosto leggera, viene scelta una fondazione colonnare come base. Per fare questo, vengono realizzate fosse profonde fino a 80 cm, uno strato di sabbia (5-6 cm) viene posato sul fondo e versato con uno strato di cemento di circa 8-10 cm.
Quando la miscela di calcestruzzo si indurisce un po ', i rack vengono abbassati al suo interno. Devono essere installati verticalmente. Dopo che la livella ha effettuato l'allineamento verticale dei supporti, la loro posizione viene fissata con jib temporanei.
È possibile fissare i binari di supporto tramite ancoraggi regolabili. Per fare ciò, pezzi di tubi metallici di dimensioni adeguate vengono posizionati nelle fosse, una soluzione viene versata nella cavità del tubo e, dopo una leggera impostazione della soluzione, vengono installati elementi di fissaggio (ancoraggi). Quando il calcestruzzo è finalmente solidificato (almeno 48 ore), i montanti possono essere fissati. Dopo aver installato tutti i supporti, è necessario assicurarsi che la loro posizione sia corretta: la distanza tra i supporti adiacenti deve essere rigorosamente la stessa su tutta l'altezza dei supporti (inferiore, centrale e superiore).
Articolo correlato:
Cucina estiva nel paese: progetti, foto di idee interessanti. Tipi di progetti di cucine estive nel paese. I vantaggi degli edifici chiusi. Costruzione indipendente di una cucina estiva in campagna.
Costruzione del solaio pergolato
Il passo successivo dopo l'installazione dei supporti è la reggiatura inferiore dei montanti verticali. Per questo, viene utilizzata una barra con una sezione trasversale di 50x150 mm. Il telaio del pavimento viene eseguito montando ritardi, che si trovano a una distanza non superiore a 45 cm l'uno dall'altro. Ciò consentirà alla struttura del telaio di sostenere il peso della piattaforma di legno. I ritardi vengono fissati alle reggette orizzontali mediante staffe angolari, dopo aver praticato i fori di fissaggio per viti autofilettanti.
Successivamente, procedere all'installazione dei rack intermedi. Successivamente sosterranno il peso della struttura in legno del tetto e serviranno per il fissaggio del binario orizzontale superiore. I rack sono attaccati ai tronchi con chiodi. La stessa regola si applica qui come per i supporti angolari: tutti i rack devono essere installati rigorosamente in verticale.
Non appena il telaio del pavimento viene assemblato e vengono installati i supporti intermedi, si procede all'installazione del pavimento dal pannello. Per il pavimento viene utilizzata una tavola adatta all'uso esterno, che resiste bene agli effetti dei fattori naturali. Quindi non dovrai scoprire dopo un breve periodo di tempo che le assi sono marcite in alcuni punti.
Chiodi o viti autofilettanti vengono utilizzati per fissare la scheda alla cassa. Fissare la scheda utilizzando due chiodi o viti autofilettanti da ciascuna estremità.
Consigli utili! Se si utilizzano chiodi per fissare le tavole, è necessario praticare dei fori in anticipo. Ciò contribuirà a evitare di rompere il legno.
Dopo la posa del listone, procedere al collegamento orizzontale superiore dei supporti gazeboutilizzando una trave di 100x100 mm. La reggiatura fai-da-te dei pilastri di un gazebo in legno (gli esempi fotografici forniscono informazioni visive) viene eseguita tagliando le serrature dalle estremità del legno, che sono collegate tra loro e fissate con due chiodi.
Installazione sul tetto
Per un gazebo quadrato, il più attraente sarà un tetto composto da quattro falde. La costruzione del tetto inizia con la costruzione del telaio. Le gambe delle travi inclinate sono tagliate dal legno, sono fissate a coppie con chiodi ad angolo.I montanti ausiliari sono attaccati simmetricamente a ciascuna delle gambe inclinate principali. Sono fissati con un bordo alla trave di reggiatura, l'altro alle travi principali.
Consigli utili! Per lavorare sul tetto, invita un assistente, poiché è impossibile far fronte all'installazione da solo.
Quindi, procedere alla copertura del tetto. Per questo, puoi usare sia una tavola che un foglio di compensato. Il fissaggio dei pannelli di compensato viene effettuato sulla superficie delle travi con un passo di 20-25 cm utilizzando viti autofilettanti. La superficie dei fogli di compensato è ricoperta da materiale isolante per tetti: feltro per tetti e quindi piastrelle morbide (bituminose).
Posa di tegole bituminose
Le tegole flessibili sono leggere e facili da installare. Fissare il tetto flessibile al ponte con chiodi a testa larga. Le piastrelle della cornice sono montate sulle gronde su tutti i lati. Per facilità di installazione e buona flessibilità del materiale, viene utilizzato un asciugacapelli da costruzione. Successivamente, inizia la posa delle normali scandole flessibili. Quando si fissa la prima fila, è necessario scegliere una lunghezza di chiodi tale che possano passare attraverso la grondaia e le piastrelle ordinarie e raggiungere la base in legno del tetto del gazebo.
Prima di utilizzare la piastrella, rimuovere la pellicola protettiva da essa. I fogli sono sovrapposti. Durante la posa di ciascuna fila di materiale, i fogli vengono posizionati in modo che i ritagli della fila precedente siano coperti con le sporgenze di quella successiva. Quando si fissano le tegole, è necessario assicurarsi che i chiodi raggiungano la guaina del tetto nei punti del doppio strato di materiale. In caso contrario, le unghie verranno successivamente spremute e provocherà il distacco delle piastrelle.
Quando il materiale raggiunge la frattura del pendio, i bordi in eccesso delle tegole vengono tagliati a filo con la linea del pendio. In questi luoghi, il materiale viene inoltre unto con colla bituminosa.
Successivamente, iniziano a posare le piastrelle della cresta. Per fare ciò, un foglio di piastrella viene tagliato in tre parti e ciascuna piastra risultante viene posata con il lato adesivo sul colmo con una sovrapposizione di 5 cm. Fissare ogni piastra con i chiodi in quattro punti. Pertanto, vengono elaborati tutti i nodi delle piste.
Un tetto in tegole bituminose per un gazebo in legno con le tue mani (la foto lo illustra) sembra piuttosto attraente a causa della varietà di forme e colori. Uno dei vantaggi di una tale copertura del tetto è la silenziosità in caso di pioggia e grandine.
Consigli utili! Quando acquisti l'herpes zoster, assicurati che tutti i pacchetti corrispondano allo stesso lotto. Il materiale di lotti diversi può variare di colore.
I lavori di copertura in tegole vengono eseguiti con molta attenzione, cercando di non danneggiare il materiale con i chiodi.
Caratteristiche del design del gazebo esagonale
Tutte le fasi dell'auto-costruzione di un pergolato esagonale sono simili nell'installazione a una struttura quadrata. La fondazione, il pavimento e i pilastri del gazebo sono realizzati secondo i disegni disponibili. Per quanto riguarda il tetto di sei pendenze, si consiglia di realizzare il dispositivo a terra e la struttura finita viene sollevata e fissata al telaio del gazebo.
A causa dell'assenza di un elemento di supporto centrale nella struttura, è molto difficile collegare insieme tutte le travi. Pertanto, si consiglia di dare al legno la forma di un esagono, ciascun lato del quale dovrebbe corrispondere per dimensioni allo spessore delle travi. Le estremità delle travi sono tagliate ad angolo e, a loro volta, sono fissate con chiodi alla barra ritagliata con una sezione esagonale. L'altra estremità delle travi è inserita nelle scanalature, che sono pretagliate nella trave di reggiatura.
Quindi il telaio del tetto viene rivestito con una tavola o compensato e la struttura finita viene sollevata e montata sui montanti di supporto del gazebo.
Disposizione di recinzioni gazebo in legno con le tue mani. Foto delle strutture finite
L'aspetto del gazebo dipende in gran parte dal tipo di recinzione. Può essere solido o reticolare. A seconda delle preferenze, la ringhiera può essere costituita da ringhiere e colonnine, da due o tre elementi orizzontali in legno posti lungo ogni lato del gazebo, nonché sotto forma di rombi installati tra i supporti verticali della struttura. Alcune persone preferiscono organizzare una recinzione da una tavola del carro o da una casetta. Tutto dipende dalla tua immaginazione creativa e dalla disponibilità di tempo libero.
L'altezza delle recinzioni è tradizionalmente 75-85 cm, ma questo valore può essere modificato su richiesta. Le parti orizzontali della recinzione sono fissate con viti autofilettanti o angoli. Inoltre, le viti dovrebbero entrare nell'albero ad angolo. Si sconsiglia di utilizzare chiodi inseriti nelle estremità delle barre della balaustra attraverso la ringhiera per fissare le barre orizzontali. Questo può portare alla rottura del legno. Per fissare le balaustre alla ringhiera, si consiglia di utilizzare dei perni.
Le balaustre possono essere installate verticalmente, ad angolo, sotto forma di un diamante. Per fissare le balaustre inclinate nelle barre orizzontali, le scanalature sono disposte sopra e sotto con una certa angolazione. Anche le estremità delle balaustre vengono tagliate con un angolo appropriato, che vengono quindi inserite nelle scanalature.
Inoltre, per dare al gazebo un aspetto traforato, disporre sopra un bordo decorativo orizzontale. L'altezza del cordolo è un terzo dell'altezza della recinzione stessa. Lo schema del cordolo di solito segue la configurazione della ringhiera inferiore, ma puoi renderli diversi. La cosa principale è che non contraddicono lo stile generale del pergolato in legno.
Design decorativo del gazebo
Non appena tutto il lavoro è completato, si procede alla lavorazione delle superfici in legno. Se ci sono piccole crepe in alcuni elementi in legno, devono essere riempiti con stucco per legno. Dopo che lo stucco si è asciugato, iniziano a carteggiare tutti gli elementi. A tale scopo viene utilizzata carta abrasiva con rivestimento a grana media. Inoltre, tutte le superfici in legno vengono trattate con vernice in due strati e il secondo strato viene applicato dopo che il precedente si è completamente asciugato.

Vicino piscina gazebo montato su una piccola piattaforma di legno
Consigli utili! La verniciatura con vernice viene eseguita con movimenti uniformi della spazzola, prima lungo le fibre e poi trasversalmente. La vernice deve essere distribuita in modo sottile e uniforme sulla superficie, senza colare.
La durata di un gazebo in legno dipende in gran parte da come viene lavorato il legno.
L'interno del gazebo può essere molto vario. Può essere un tavolo di legno e panchine, realizzato in modo indipendente e fisso nella struttura. Molte persone preferiscono installare comodi mobili portatili nel gazebo sotto forma di lettini o poltrone in rattan... Puoi fornire elettricità al gazebo e installare bellissime luci attorno al perimetro. Alcuni portano l'acqua alla struttura del gazebo. Le belle piante rampicanti sono spesso piantate lungo la recinzione del gazebo.
Un simbolo di calma e tranquillità nel tuo giardino è un gazebo fai da te in legno. Seguendo tutte le raccomandazioni passo dopo passo, non è difficile assemblare la struttura da soli. E i prodotti fatti a mano si distinguono sempre per comfort e calore speciali.