Un elemento indispensabile in qualsiasi campo se hai bambini - terreno di gioco... Su di esso può essere installato un numero qualsiasi di strutture di vario tipo: una sandbox, piscina, swing - la scelta dipende dal tuo desiderio e dalle tue capacità finanziarie. La maggior parte degli oggetti per il parco giochi possono essere realizzati da soli. Ad esempio, uno scivolo per bambini fai-da-te è costruito in modo abbastanza semplice, fungendo da fonte di gioia per i bambini per molti anni.
Soddisfare
- 1 Requisiti per uno scivolo per bambini
- 2 Costruzione di diapositive fai-da-te: i materiali e gli strumenti necessari
- 3 Come realizzare uno scivolo per bambini con le tue mani: sequenza di installazione
- 4 Caratteristiche dell'utilizzo di materiali diversi per la costruzione di una diapositiva
- 5 Scivolo per bambini fai da te: consigli utili
Requisiti per uno scivolo per bambini
Lo scivolo per bambini può essere installato sia all'interno che all'esterno. Dovrebbe essere chiaro che uno scivolo per un bambino (è costruito per la casa o per la strada in questo caso non importa) deve soddisfare determinati requisiti:
- per la costruzione, è necessario utilizzare solo materiali ecocompatibili e sicuri per la salute del bambino. Non importa se stai costruendo uno scivolo in legno, metallo o plastica, il materiale non deve contenere elementi nocivi. Lo stesso vale per le pitture e le vernici con le quali aprirai la struttura. Un altro punto importante, sia per uno scivolo in plastica per bambini per una casa che per una struttura in legno, è la resistenza al fuoco;
- assicurarsi di utilizzare elementi strutturali come ringhiere e ringhiere. Non solo aiuteranno il bambino a mantenere l'equilibrio mentre si arrampica sulla collina, ma lo proteggeranno anche dalle cadute durante i giochi. Le ringhiere su uno scivolo per un bambino nel paese dovrebbero essere installate indipendentemente dall'età di tuo figlio;
- è meglio usare il legno per costruire una struttura. Gli scivoli in legno per bambini per la casa sono più piacevoli da usare grazie all'origine naturale del materiale. In condizioni esterne, gli scivoli in legno non si riscaldano rapidamente come quelli in metallo, quindi possono essere installati in qualsiasi luogo conveniente per te, e non solo nella parte ombreggiata del sito. Sul metallo caldo, il bambino può facilmente bruciarsi, l'albero non si riscalda a una temperatura pericolosa;
- uno scivolo da esterno in plastica per bambini è più leggero di uno in legno o metallo. Può essere facilmente spostato da un luogo all'altro, trasportato se necessario, ma il materiale stesso è meno resistente: può facilmente rompersi;
- lo scivolo deve essere posizionato lontano da alberi, luci, annessi e altre strutture. Questo viene fatto in modo che il bambino non si ferisca quando scende dalla collina. L'area intorno allo scivolo può essere seminata con erba del prato o una gomma speciale Rivestimento... Ricorda che la cosa principale è la salute del bambino, quindi qualsiasi scivolo per bambini all'aperto per una residenza estiva dovrebbe essere, prima di tutto, sicuro;
- la base deve essere rinforzata con un supporto metallico o cementata. Non fare affidamento sul fatto che il bambino non sposterà comunque la struttura: anche lo scivolo più resistente può ribaltarsi a causa dei giochi dei bambini;
- un punto importante è l'altezza dello scivolo per bambini costruito per dare con le tue mani. Deve corrispondere all'età del bambino, ad esempio l'altezza dello scivolo destinata ai bambini in età scolare non deve superare i 3,5 m.
Consiglio utile! Non devono esserci fessure e aperture nel design dello scivolo, altrimenti il bambino potrebbe rimanere bloccato o ferirsi gravemente durante il gioco.
Costruzione di diapositive fai-da-te: i materiali e gli strumenti necessari
Come fare una diapositiva in campagna con le tue mani senza troppe difficoltà? Se stiamo parlando di una struttura in legno, avrai bisogno di diverse travi in legno, assi piallate, doghe, rivestimento e Fibra di legno... È possibile collegare gli elementi tra loro utilizzando chiodi, bulloni di ancoraggio e viti.

La diapositiva per la diapositiva può essere acquistata da una produzione di fabbrica o puoi farlo da solo
A proposito, non è necessario utilizzare una rampa di legno: su di essa potrebbero staccarsi crepe o scheggiature, che possono ferire il bambino. Puoi acquistare scivoli di plastica e montarli su una struttura in legno.
Nel caso della costruzione in metallo, le cose sono un po 'più complicate. Qui avrai già bisogno di una saldatrice e una smerigliatrice per metallo. Tutte le cuciture e le giunture nelle strutture in legno e metallo devono essere accuratamente levigate in modo che il bambino non si ferisca accidentalmente durante il gioco. Le pendenze metalliche per uno scivolo per bambini dovrebbero essere verniciate con una vernice speciale che assorbirà i raggi del sole e impedirà al metallo di riscaldarsi fino alle alte temperature.
Come realizzare uno scivolo per bambini con le tue mani: sequenza di installazione
Se decidi di creare una diapositiva per un bambino da solo, dovresti seguire una certa sequenza di azioni:
- prima di tutto, devi preparare un piano di costruzione. Puoi prendere un layout già pronto da Internet o disegnarne uno tuo. I disegni pronti di uno scivolo per bambini in legno con le tue mani sono buoni perché indicano le proporzioni esatte degli elementi e le dimensioni delle singole parti;
- facendo riferimento allo schema, è necessario segare assi, doghe e travi. Inoltre, devono essere levigati in modo che le schegge non possano entrare sotto la pelle del bambino. Con l'aiuto di un aereo, i bordi smussati degli angoli delle parti vengono rimossi, il che aumenterà ulteriormente la sicurezza della struttura;
- il markup viene effettuato sull'area assegnata. Vale la pena allocare una trama con un margine se hai intenzione di costruire un complesso sportivo per bambini per una residenza estiva insieme a uno scivolo. La dimensione ottimale per una struttura senza estensioni aggiuntive è di 2 per 2 m;
- sotto i supporti vengono scavate depressioni di circa 60 cm in cui sono inserite travi di legno, le cui estremità dovrebbero essere coperte con uno speciale mastice impermeabilizzante. Questo viene fatto per prolungare la vita dei supporti.Nelle cremagliere vengono tagliate delle scanalature in cui vengono inserite le assi di legno di collegamento. Gli elementi del telaio risultante sono collegati tra loro tramite bulloni o viti autofilettanti;
- quindi il pavimento è montato. Quando costruisci uno scivolo con le tue mani per i bambini, ricorda: è importante che il pavimento sia il più resistente possibile, quindi vengono selezionate tavole spesse, che sono collegate con viti autofilettanti e avvitate al telaio mediante angoli metallici. Se non vuoi che l'acqua si accumuli sul fondo dello scivolo, dovresti lasciare piccoli spazi tra le assi, ma non abbastanza perché un bambino possa infilarci un dito;
- viene realizzata una rampa per scivoli per bambini. La sua larghezza non deve superare gli 80 cm La superficie del pendio è ricoperta di linoleum, lamiera zincata o plastica. Linoleum è l'opzione più economica, ma si deforma facilmente e si stacca. Il rivestimento metallico si riscalda notevolmente al sole e può anche piegarsi. L'opzione più affidabile sono gli scivoli in plastica per scivoli per bambini. La plastica non si surriscalda, non si arrugginisce né si piega, ma è più costosa del linoleum o del metallo;

Schema del dispositivo per la diapositiva per complesso sportivo per bambini
- la scala è montata. La dimensione ottimale delle tavole per realizzarlo è di 20 mm. Dopo aver montato la parte principale, viene installata la parte laterale. Per questo, la tavola segata con un angolo di 45 ° è fissata ai montanti con viti. Quindi le barre vengono avvitate alla scheda, su cui sono montati i gradini. Le foto di diapositive per bambini con le proprie mani in legno su Internet mostrano chiaramente come esattamente è necessario fissare gli elementi delle scale. Dopo l'installazione dei gradini, vengono installate le balaustre su cui sono fissate le ringhiere;
Consiglio utile! La ringhiera deve essere eseguita in ogni caso, indipendentemente dall'altezza dello scivolo o dall'angolo di inclinazione delle scale. Servono non solo per la sicurezza, ma anche per rendere più facile per il bambino mantenere l'equilibrio durante il sollevamento.
- le scanalature sono tagliate sul lato dei rack in cui sono installate le pareti laterali del compensato o Fibra di legno... Le pareti possono anche essere fatte di piccole assi o avere un aspetto originale;
- tutti gli angoli sporgenti, le teste dei chiodi e le viti vengono rimossi, tutte le superfici vengono accuratamente levigate e ricoperte con vernice o una speciale vernice protettiva.

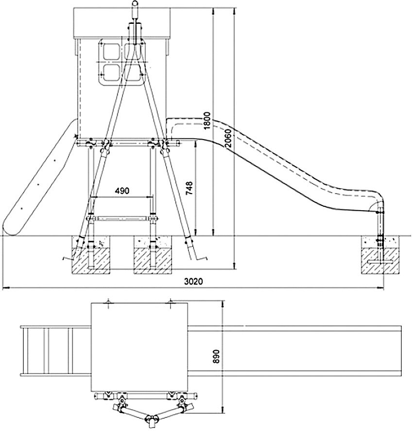
Disegno di uno scivolo per bambini per una residenza estiva. Dimensioni generali: lunghezza - 3020 mm; larghezza - 890 mm; altezza - 1800 mm. Peso massimo dell'utente - 100 kg, età minima del bambino - 3 anni
Un'interessante modifica del design può essere una diapositiva: una sandbox per bambini. In questo caso, la sandbox è organizzata o alla base dello scivolo, oppure puoi costruire una vasca con sabbia alla fine della discesa.
Caratteristiche dell'utilizzo di materiali diversi per la costruzione di una diapositiva
Se sei in dubbio su quale materiale costruire una casa con uno scivolo per bambini o un'altra struttura simile sulla tua trama personale, dovresti familiarizzare in dettaglio con le caratteristiche degli edifici dei due materiali più popolari: legno e metallo.
Pro e contro degli scivoli in legno
Le strutture in legno per i parchi giochi si sono dimostrate efficaci diversi secoli fa. Tutti gli scivoli per bambini con le proprie mani in legno sono costruiti secondo il layout classico, che include una scala e una rampa, una base, una piattaforma superiore e una parte protettiva. Inoltre, elementi aggiuntivi vengono spesso aggiunti a un progetto tipico, ad esempio un labirinto interno, una sabbiera, pendenze aggiuntive e molto altro. Poiché una tale struttura può essere realizzata in modo abbastanza semplice, tutto dipende esclusivamente dalla tua immaginazione.

L'installazione di uno scivolo di plastica è l'opzione migliore quando si costruisce uno scivolo progettato per bambini piccoli
Uno dei vantaggi significativi della creazione di uno scivolo in legno per bambini nel paese con le proprie mani è il basso costo di produzione. Il materiale stesso è relativamente poco costoso e non sono necessari strumenti specializzati per elaborarlo. Inoltre, la costruzione di una struttura da tavole e legno non richiede abilità e abilità di costruzione speciali da parte tua - a volte è sufficiente aderire rigorosamente allo schema trovato su Internet.
Articolo correlato:
Altalena per bambini per cottage estivi e le loro caratteristiche di design. Tipi di swing. Vantaggi e svantaggi delle strutture realizzate con vari materiali. Regole per la creazione di un'altalena per bambini in un'area suburbana.
Un altro vantaggio di questo design è la sua sicurezza ambientale. L'albero non provoca allergie, non emette sostanze nocive se riscaldato. L'unico punto controverso qui è la vernice dell'edificio, quindi assicurati di leggere le istruzioni quando acquisti vernice o vernice per coprire lo scivolo.
Consiglio utile! Il legno per lo scivolo deve essere di alta qualità, asciutto e ben levigato. Scegli le specie di legno più durevoli e per aumentare la resistenza all'umidità o alle temperature estreme, le tavole devono essere rivestite con un composto speciale.
Un elemento a cui prestare particolare attenzione quando si installa una struttura in legno è la discesa. È meglio non rischiare di utilizzare le proprie tavole piallate, ma acquistare materiale per una rampa fabbricata in fabbrica. Può essere linoleum, lamiera di acciaio inossidabile o plastica. Quest'ultima opzione è la più costosa, ma anche la più affidabile e durevole.

Casetta per bambini in legno con scivolo in plastica
Vantaggi e svantaggi della costruzione in metallo
Gli scivoli di metallo per bambini si trovavano in ogni cortile e, con le dovute cure, potevano durare più di una dozzina di anni. Le foto di diapositive per bambini in metallo con le proprie mani mostrano che in apparenza differiscono poco dalla loro controparte in legno.
Un vantaggio significativo di una struttura metallica è la sua forza. La struttura in ferro non necessita di lavorazioni e manutenzioni particolari, può sopportare temperature estreme, elevata umidità e grandi carichi meccanici. L'unica cosa che deve essere eseguita periodicamente con la slitta in metallo è rinnovare la vernice e assicurarsi che la vernice non si stacchi a causa della corrosione.
Come realizzare una diapositiva per bambini con le tue mani dal metallo? Per fare questo, hai bisogno di elementi già pronti, una smerigliatrice e una saldatrice. Particolare attenzione dovrebbe essere prestata alle cuciture, in quanto potenzialmente pericolose per il bambino. Anche la qualità della saldatura è di fondamentale importanza: più è alta, più forte sarà la struttura.
Lo svantaggio di uno scivolo in ferro è che si riscalda rapidamente al sole. Se installi una struttura del genere dove i raggi del sole cadranno costantemente su di essa, tuo figlio può facilmente bruciarsi. Pertanto, se decidi comunque di costruire un edificio con elementi metallici, dovresti scegliere un posto all'ombra o creare una tettoia speciale.

Uno scivolo in metallo con una pendenza in plastica, installato a piscina per bambini
Quando si costruisce uno scivolo con le proprie mani per i bambini, non è necessario utilizzare solo elementi in legno o metallo. Questi materiali possono essere combinati in diverse proporzioni, ottenendo così un design originale, affidabile e durevole.
Certo, puoi sempre chiederti dove acquistare uno scivolo per bambini per il paese. Questo può essere fatto in qualsiasi negozio specializzato o tramite Internet. Ma ricorda che solo un design fatto da te soddisferà tutte le tue esigenze e ti permetterà di realizzare le tue fantasie di design.
Scivolo per bambini fai da te: consigli utili
Ci sono una serie di punti che dovrebbero essere considerati affinché il progetto sia affidabile e sicuro:
- per una maggiore stabilità delle balaustre, la scala della struttura in legno deve essere ulteriormente rinforzata con doghe;
- disegni fai da te, video, foto di diapositive per bambini nella casa di campagna mostrano che le scanalature e le rotaie inserite in esse, quando imbullonate con bulloni, formano una struttura leggera, ma forte e stabile;

Quando si costruisce uno scivolo per bambini nel paese, è necessario calcolare attentamente l'altezza della struttura
- un'opzione eccellente per dipingere gli edifici è la vernice acrilica. È sicuro per la salute del bambino, protegge bene l'albero da tutti i tipi di influenze negative e sembra attraente. Inoltre, l'acrilico è famoso per la sua durata e non perde la saturazione del colore anche con un'esposizione prolungata alla luce solare diretta;
- un tipo conveniente di copertura per l'uso sotto la collina è l'erba artificiale o la gomma. Tale rivestimento non richiede cure particolari, non modifica le sue proprietà a seconda della stagione o del tempo atmosferico, crea una superficie sicura sotto la collina che proteggerà il bambino da lesioni in caso di caduta dalla collina.
Uno scivolo di plastica per bambini acquistato in un negozio o nel mercato delle costruzioni non è sempre l'opzione migliore. Sì, risparmi tempo e fatica costruendo, ma una struttura in legno o metallo non solo può costare meno, ma ti consente anche di creare un complesso sportivo a tutti gli effetti per un bambino, composto da un gran numero di elementi. A proposito, anche uno scivolo di plastica per bambini per una residenza estiva può essere integrato con elementi fatti in casa e trasformato in una struttura complessa ed emozionante per i giochi.
Uno scivolo affidabile e di alta qualità non è solo un buon modo per tenere impegnato tuo figlio durante la permanenza in una casa di campagna, ma anche un'opportunità per svilupparlo fisicamente. Man mano che il bambino cresce, la diapositiva può essere completata, migliorata e sempre più stimolato il bambino a uno stile di vita sano.