Įėjimo durys - pirmas dalykas, kurį mato svečiai, ir tuo pačiu jūsų pagrindinė apsauga nuo įsibrovėlių ir blogo norinčiųjų. Todėl šio elemento pasirinkimas turėtų būti vertinamas atidžiai, atsižvelgiant į visas specialistų rekomendacijas, taip pat į GOST reikalavimus ir standartus. Apsvarstykite, kokios gali būti priekinės durys: matmenys, dizaino ypatybės ir pagrindinės gamybos medžiagos.

Įėjimo durys parenkamos atsižvelgiant į nurodytą angos aukštį ir plotį, durų varčios storį ir pačių durų dizainą.
Turinys
- 1 Priekinės durys: dizaino dydžiai ir tipai
- 2 Standartiniai durų dydžiai: pagrindiniai parametrai
- 3 Ar galiu naudoti nestandartinio dydžio įėjimo duris
- 4 Kaip pasirinkti įėjimo duris su rėmu: matmenys ir dizainas
- 5 Standartiniai metalinių durų dydžiai su rėmu ir be jo
- 6 Metalinių durų pasirinkimo taisyklės: matmenys ir medžiagos
- 7 Geriausios įėjimo metalinės durys: matmenys su rėmu ir be jo, charakteristikos
- 8 Į ką dar reikėtų atkreipti dėmesį renkantis įėjimo duris: ekspertų patarimai
Įėjimo durys: matmenys ir dizaino tipai
Daugeliu atvejų Įėjimo durys turi didesnį plotį nei visos kitos namo angos. Kalbant apie dizainą, jis gali būti labai įvairus, ir šiuo klausimu vienintelis apribojimas yra gamintojo fantazija. Populiariausios įėjimo durų gamybos medžiagos yra metalas, medis ir MDF.

Kurias duris pasirinkti: geležines ar medines, priklauso nuo bendros namo išvaizdos ir biudžeto, kuris bus išleistas apsaugai nuo įsilaužimų.
Tarp durų gamybos medžiagos ir jos dydžio nėra jokio ryšio, todėl renkantis taikomi absoliučiai tie patys reikalavimai. Būtina atsižvelgti į daugybę dizaino ypatybių, kurios vis dėlto nėra susijusios su medžiaga.
Lengviausias būdas yra padalinti duris į grupes, atsižvelgiant į tai, koks jų dizainas:
- vienos varčios durys yra visiems žinomos ir netgi galima sakyti, kad standartinė versija yra drobė, įterpta į rėmą. Paprastai tokių durų plotis neviršija 100-110 cm. Vienos durys gali būti labiausiai paplitusios ir paprastos, arba jos gali tapti visų drąsiausių dizaino idėjų įgyvendinimu, iš tikrųjų puošiant namą;
- Dvivietės durys paprastai naudojamos privačiuose namuose, nes esant standartiniam atidarymo aukščiui, durų plotis padidėja maždaug 1,5–2 kartus. Tai tikrai patogesnis variantas, tačiau jo įgyvendinimui reikia daug laisvos vietos namo šonuose;
- durys su skersiniu. Norėdami rasti tokį sprendimą, turėsite padidinti durų angos aukštį. Be to, durų varčia gali likti standartinė, o viršutinė konstrukcijos dalis tvirtinama atskirai, nepažeidžiant konstrukcijos.Daugeliu atvejų šiam tikslui naudojami dekoratyviniai stiklo įdėklai, nes jie tarnauja kaip papildomas šviesos šaltinis ir vizualiai palengvina durų struktūrą.

Durys su skersiniu gali būti naudojamos kaip papildomas šviesos šaltinis, taip pat patalpai vėdinti be grimzlės
Naudingas patarimas! Jei to, ko iš tikrųjų norite, neįmanoma įdiegti, o turimi variantai jums netinka, turite pagalvoti apie alternatyvias galimybes. Pavyzdžiui, pusantros durys yra puikus kompromisas, jei nėra pakankamai vietos dviguboms durims. Šiuo atveju viena iš drobių yra mažesnė ir naudojama kaip dekoratyvinis įdėklas.
Standartiniai durų dydžiai: pagrindiniai parametrai
Nepaisant to, kokiai konstrukcijai pasirenkate pirmenybę, standartiniai įėjimo durų matmenys yra parametrai, su kuriais turite susipažinti bet kuriuo atveju:
- Priekinių durų aukštis. Paprastai standartinėms durims atidarymo aukštis yra apie 2070-2030 mm. Tačiau būtina tiksliai nustatyti vertę atskirai, pasitelkiant matavimus.
- Priekinių durų plotis. Mažiausias įėjimo durų plotis, kuris gali būti 900–910 mm, yra ir vienvėrės - 1010 mm. Pusantros durys yra skirtingo pločio - 1310 mm, 1310 mm ir 1550 mm. Dvivietės durys paprastai yra pastebimai platesnės - 1910 ir 1950 mm.
- Durų storis. Šiuo atveju nėra standartų, nes lapo storį lemia medžiaga, taip pat kai kurios kiekvieno konkretaus gaminio konstrukcijos ypatybės. Nepaisant to, turite suprasti, kad durų storis turi būti pakankamas, kad jos galėtų susidoroti su savo pagrindine užduotimi - apsaugoti namą. Būtent įėjimo durims yra svarbiausias varčios storis. Manoma, kad jei mes kalbame apie metalinį lakštą, tada jo storis turėtų būti ne mažesnis kaip 2 mm, kitaip galite sutelkti dėmesį į savo pageidavimus ir atidarymo parametrus.

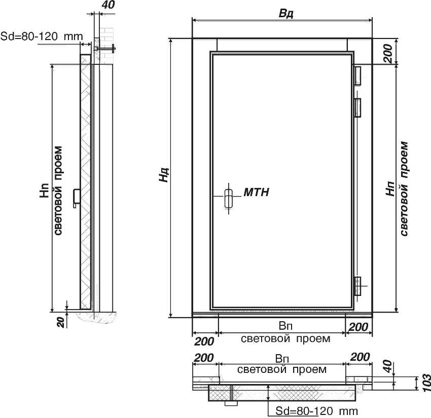
Scheminis matmenų atvaizdavimas priekinės durys
Lauko durys paprastai turėtų būti didesnės už visas kitas namo ar buto duris, nes tai leis ne tik laisvai įeiti į namus, bet ir prireikus įnešti krovinių.
Ar galiu naudoti nestandartinių dydžių įėjimo durys
Daugelyje šiuolaikinių namų, ypač jei jie buvo pastatyti pagal individualiai suprojektuotus projektus, į GOST tiesiog neatsižvelgiama. Tačiau nerekomenduojama pamiršti SNiP rekomendacijų, nors daugeliu atvejų jos taip pat apeinamos. Taigi privačiame name galite naudoti bet kokias nestandartinio dydžio duris.
Žinoma, turėsite susitarti dėl namo durų matmenų su standartiniais indikatoriais, tačiau nereikia tiksliai palyginti rodiklių. Pakanka pabandyti išlaikyti elementų santykį tarpusavyje, o visus reikiamus matavimus galima atlikti tiesiai statybvietėje.
Metalinių įėjimo durų arba medinės konstrukcijos dydis gali siekti 900-2000 mm pločio ir 2000-2400 mm aukščio. Toliau praplėsti duris nėra prasmės, nebent kalbėtume ne apie gyvenamojo namo statybą, o apie viešąją įstaigą, pavyzdžiui, mažą viešbutį, kavinę ar labai didelį namą.
Kaip pasirinkti įėjimo duris su rėmu: matmenys ir dizainas
Nepaprastai svarbu, kad geležinių įėjimo durų ar varčios, pagamintos iš bet kurios kitos medžiagos, matmenys teisingai atitiktų angą. Visų pirma, dėžę turėtų būti įmanoma lengvai įdėti į angą, kad aplink būtų mažų tarpų. Ši laisva erdvė leis pastatą išdėstyti kuo tolygiau, o tarpus galima lengvai pakeisti. Tai puikus pasirinkimas, tačiau jis toli gražu ne visada prieinamas, nes daroma prielaida, kad iš pradžių idealiai išlaisvintos durų angos ir galima atlikti visus reikiamus matavimus.
Na, kalbant apie dėžutės ir drobės korespondenciją, geriausia, kad šie du elementai iš pradžių būtų komplekte. Taigi, galite išvengti problemų, susijusių su jų neatitikimu. Jei kalbėsime apie atskirą šių elementų įsigijimą, tuomet drobę reikia pasirinkti labai atsargiai, nepamirštant, kad ji turi būti mažesnė nei anga, kitaip dėžutė paprasčiausiai netiks.
Priešingu atveju jums tiesiog reikia pabandyti pasirūpinti bent kelių milimetrų tarpais, kad durų judėjimas nieko neribotų.

Schema priekinės durys su dėžute
Naudingas patarimas! Planuodami pirkinį ir įėjimo durų įrengimas, nepamirškite apie tokias svarbias detales kaip slenkstis. Tai užtikrins aukštesnį durų konstrukcijos lygį ir išvengs skersvėjo.
Atsižvelgiant į visas rekomendacijas, taip pat į GOST, nebus taip sunku pasirinkti įėjimo durų dydį. Verta pasakyti, kad visi esami standartai nebuvo sugalvoti veltui, o daugeliu atvejų jų laikymasis leidžia suteikti namui patraukliausią išvaizdą ir tuo pačiu užtikrinti reikiamą lauko durų funkcionalumo lygį.
Standartinis metalinių durų su rėmu matmenys ir be jos
Prieš pradėdami rinktis įėjimo duris, turite susidoroti su kitu svarbiu parametru - įėjimo durų dėžių dydžiu. Akivaizdu, kad be pačios drobės yra ir ją laikanti konstrukcija, o skaičiuojant taip pat reikia atsižvelgti į jos dydį. Standartinius dydžius būtinai patvirtina GOST ir SNIP, ir jie apskaičiuojami remiantis metrine sistema.
Taigi pagal nustatytus standartus tarpdurys turėtų būti nuo 700 iki 1540 mm pločio, nuo 2055 iki 2050 mm aukščio ir 75 mm storio. Tuo pačiu metu optimalus plotis laikomas 900-1000 mm.
Ir jei nuspręsite dėl drobės dydžio, žinodamas durų angos plotį ir aukštį, tai nėra taip sunku, tada kai kurie sunkumai dažniausiai kyla dėl dėžutės. Pagal tuos pačius GOST, dėžutės dydis turėtų viršyti durų varčios dydį 60-70 mm. Leidžiamas nuokrypis yra 10-15 mm.
Svarbu! Renkantis angos rėmą angai, nepamirškite atsižvelgti į techninio tarpo poreikį, kuris leis jums įrengti konstrukciją kuo tolygiau. Paprastai nustatoma ribos nustatymo norma - 10–20 mm šoninėje ir viršutinėje dalyse ir 25–45 mm apačioje.
Metalinių durų pasirinkimo taisyklės: matmenys ir medžiagos
Dydis nėra vienintelis dalykas, į kurį reikia atkreipti dėmesį renkantis įėjimo duris. Kitos savybės yra ne mažiau svarbios, todėl prieš perkant patartina susipažinti su kiekvienu pasirinkimo kriterijumi, kad išsirinktumėte sau tinkamiausią variantą.
Taigi, apsvarstykime, į ką pirmiausia turite atkreipti dėmesį:
- gamybos medžiaga - konstrukcijos pagamintos iš plieno arba aliuminio. Pirmuoju atveju konstrukcija bus patvaresnė ir patikimesnė, o šilumos ir garso izoliacijos lygis bus didesne tvarka. Tačiau aliuminio lakštai yra lengvesni ir leidžia pateikti neįprasčiausias ir originaliausias idėjas;

Standartiniai dydžiai įėjimo metalinės durys
- atidarymo būdas taip pat yra labai svarbus. Žinoma, tai labai priklauso nuo lauko durų dydžio. Pavyzdžiui, privačiame name yra daug mažiau apribojimų, tačiau butuose turite prisitaikyti prie situacijos. Šiuo atveju durų dydis turėtų būti toks, kad jas būtų galima atidaryti be problemų, o pravažiavimas svetainėje buvo minimaliai ribotas;
- išorinė durų apdaila taip pat turi didelę reikšmę, nes ji atlieka apsauginę funkciją ir neleidžia prarasti funkcionalumo ir patrauklios durų išvaizdos dėl įvairių temperatūrų ir mechaninių poveikių. Geriausia šioje srityje yra milteliai ir ąžuolo plokštės;
- triukšmas ir šilumos izoliacija yra dar vienas privalomas kriterijus. Triukšmo izoliacijai ir lauko durų izoliacijai paprastai naudojama mineralinė vata arba putplastis;
- apsaugos sistema apsaugo duris nuo įsilaužimo ir netikėtų svečių apsilankymo. Be to, reikia atkreipti dėmesį į naudojamų jungiamųjų detalių kokybę, nes jos lemia ne tik patrauklią durų išvaizdą, bet ir jų patikimumą.
Naudingas patarimas! Paprastose namų duryse gali būti 1–4 klasės įsilaužimo spyna, tačiau jūs turite suprasti, kad tai nėra svarbiausias momentas, o pačių durų stiprumas taip pat turėtų būti tinkamas. Juk nebus jokios prasmės iš patikimo užrakto, jei pačias duris bus galima lengvai išmušti vienu smūgiu.

Įėjimo metalinių durų su rėmu matmenys gali būti pagaminti gamykloje arba sukurti pagal individualų planą
Geriausias indėlis metalinės durys: matmenys su rėmu ir be savybių
Kiekvienos įėjimo durys, be kitų, išsiskiria tam tikra ypatinga savybe, leidžiančia šį modelį pavadinti geriausiai. Apsvarstykime keletą durų variantų, kurie dėl vienų ar kitų priežasčių buvo įvardyti geriausiais.
- Geriausios durys su termine pertrauka yra šiaurinės. Šios durys gali patikimai apsaugoti nuo šalčio net esant lauko temperatūrai iki -40 laipsnių. Visos vietos, kurios laikomos probleminėmis įėjimo durims, šiuo atveju yra sandariai uždarytos. Tokios durys sveria daug - 100 kg, tačiau dėl aukštos kokybės polimerinės miltelinės dangos konstrukcija neatrodo sunki ir stambi. Kruopščiai naudojant tokias duris, gali tarnauti daugelį metų. Šio modelio buto įėjimo durų plotis gali būti 860 mm arba 960 mm, o aukštis visada yra standartinis - 2050 mm. Tokios drobės storis yra 80 mm.
- „Akron 1“ yra geriausios durys, kurias galite rasti savo bute. Kaip jau minėta, butų savininkai turi daug ribotesnį pasirinkimą, todėl jūs turite suprasti, kad Chruščiovo lauko durų dydis neleis jums klajoti. Šis modelis yra puikus mažo dydžio, patikimumo ir patrauklios išvaizdos derinys. Durų varčios storis - 65 m, taip pat yra 2 sandarinimo kontūrai. Konstrukcijoje yra antrosios atsparumo įsilaužimams klasės „Guardian“ spyna 10.11. Mineralinė vata naudojama šilumos ir garso izoliacijai užtikrinti.
- „Arma Standard-1“ - durys, pagamintos iš sulenkto metalinio profilio, turinčios standinančius šonkaulius, dėl kurių konstrukcija yra tankesnė. Visame šių durų komplekte yra viskas, ko jums reikia: akutė, tvirtinimo detalės, cilindro ir svirties užraktas. Taip pat yra papildoma apsauga nuo įsilaužimo - apsauginiai kaiščiai. Durys yra nudažytos milteliais iš išorinių veiksnių, kurios užtikrina patikimą jų apsaugą. Kai varčios dydis yra 880x2050 mm, šių durų storis yra 80 mm.

Įėjimo durys su terminiu pertraukimu gali užtikrinti patikimą apsaugą nuo šalčio net esant žemai nulio temperatūrai
Žinoma, turite pasirinkti įėjimo duris, atsižvelgdami į individualius norus, angos dydį ir finansines galimybes. Tačiau taupyti tokiu svarbiu dalyku tikrai neverta, nes būtent ji suteikia jums saugumą, šilumos ir garso izoliaciją iš išorinio pasaulio ir suteikia ramybės jausmą savo namuose.
Susijęs straipsnis:
Kaip pasirinkti įėjimo metalines duris į butą
Metalinių įėjimo durų kokybės vertinimo algoritmas pagal kelis kriterijus. Į ką jie atkreipia dėmesį.
Į ką dar reikėtų atkreipti dėmesį renkantis įėjimo duris: ekspertų patarimai
Be visų pagrindinių atsižvelgtų parametrų, ekspertai primygtinai rekomenduoja atkreipti dėmesį į keletą smulkmenų, kurie ateityje vaidina didelį vaidmenį durų funkcionalumui ir tarnavimo laikui:
- durų vyriai. Pirmas dalykas, į kurį turėtumėte atkreipti dėmesį, yra jų skaičius. Dizainas, kuriame yra mažiau nei trys vyriai, yra trumpalaikis;
- atkreipkite dėmesį į durų atidarymo kampą - maksimalus indikatorius gali būti 90, 120 arba 180 laipsnių;
- mažiausias leistinas durų varčios storis yra 40 mm, tačiau tuo pačiu metu tokios durys nebus visiškai apsaugotos. Todėl geriau atsisakyti tokio pirkimo;
- metalinis lakštas neturėtų būti mažesnis nei 0,5 mm storio. Plonesnis pagrindas, tuo trumpesnis durų tarnavimo laikas;
- svarbu atkreipti dėmesį į šarvų plokštės buvimą, nes ji laikoma privalomu elementu ir bet kokiu atveju turėtų būti įtraukta į rinkinį;
- dėžutės storis turėtų būti 2 kartus didesnis už durų varčios storį. Tai būtina, kad būtų galima laikyti jungiamąsias detales ir tuo pačiu metu nepakenkti konstrukcijai;
- geriau teikti pirmenybę modeliui su rutulinėmis kilpomis ir antpjovimais;
- visada pageidautina išlenkto profilio iš vienos dalies, nes jis yra patikimesnis;
- standiklių yra būtina sąlyga toms drobės vietoms, kurios yra labiausiai pažeidžiamos. Taigi struktūros stiprumas žymiai padidės.
Tai yra pagrindiniai aspektai, į kuriuos reikia atsižvelgti renkantis duris. Tarp antrinių taškų galima pastebėti keletą tokių aspektų: esant mangano plokštelei bus pašalinta rizika išgręžti duris. Be to, pageidautina, kad visas jungiamąsias detales gamintų viena įmonė.
Kalbant apie lauko durų išvaizdą, galite visiškai sutelkti dėmesį į savo pageidavimus. Vienintelis dalykas, kurį reikia suprasti, yra tai, kad tamsios durys išlaikys savo pirminę išvaizdą daug ilgiau.

Priekinių durų dizainas turėtų atitikti prieškambario interjerą ir būti tarsi namo tęsinys, jo dalis
Naudingas patarimas! Priešingai daugeliui įsitikinimų, toli gražu ne visada gerai, jei durų atidarymo kampas yra didelis. Privačiam namui yra prasminga pasirinkti maksimalaus našumo dizainą. Bet bute reikia atsižvelgti į visus dalykus, nes jei atidarant durys pasisuka 180 laipsnių kampu ir taip užstoja ar atsitrenkia į kaimyno duris, tame nėra nieko gero.
Kaip matote, renkantis įėjimo duris, turite atsižvelgti į daugelį parametrų, kurių pagrindiniai yra dizaino ypatybės ir matmenys. Geležinės durys turi būti tinkamai sutvirtintos ir aprūpintos patikima furnitūra. Ir, žinoma, svarbu, kad lauko durys jums patiktų vizualiai, nes teks jomis naudotis kiekvieną dieną.