Tidak perlu membeli meja khusus untuk mengatur sudut yang selesa untuk kerja kayu. Mempunyai kemahiran asas dalam bekerja dengan bahan ini, anda boleh membuat meja kerja pertukangan dengan tangan anda sendiri. Artikel ini mengandungi maklumat yang akan membantu anda dengan mudah dan cepat menangani tugas ini: dimensi struktur dan gambar yang optimum, cadangan berguna dan teknologi langkah demi langkah dengan penerangan terperinci mengenai semua tindakan, serta gambar visual.

Dengan kemahiran yang minimum, anda boleh membuat pertukangan Meja kerja DIY
Kandungan
- 1 Workbench: Ini adalah elemen utama bengkel pekerja kayu
- 2 Bahan untuk membuat bingkai dan penutup meja pertukangan
- 3 Jenis utama meja kerja: gambar struktur dan keburukan untuk pelbagai tujuan
- 4 Cara mengira dimensi meja kerja di garaj: dimensi yang disyorkan
- 5 Tempat terbaik untuk memasang meja kerja buatan sendiri
- 6 Teknologi penciptaan meja kerja pertukangan sendiri: lukisan, dimensi dan prosedur
Workbench: Ini adalah elemen utama bengkel pekerja kayu
Di mana-mana bengkel di mana mereka bekerja dengan kayu, terdapat meja kerja pertukangan. Tidak kira bagaimana bahan diproses (secara manual atau menggunakan alat elektrik), kehadiran elemen ini bukan sahaja dapat mengatur ruang kerja dengan cekap, tetapi juga menjadikannya lebih senang dan selesa. Semua ini akhirnya mempengaruhi hasilnya. Dalam keadaan seperti itu, produktiviti tuan dan kualiti kerjanya meningkat.
Meja kerja adalah meja kerja yang digunakan untuk memproses produk kayu secara manual atau mekanikal. Reka bentuk dan ciri ergonomiknya dirancang untuk membolehkan juruteknik memperbaiki bahagian dengan senang pada bahagian yang berbeza untuk tugas yang berbeza.
Meja kerja membolehkan anda melakukan operasi berikut:
- pemasangan struktur kayu;
- pembuatan bahagian kayu;
- memproses bahan kerja dengan komposisi varnis dan cara lain.
Catatan! Meja kerja tukang kayu tradisional dirancang untuk bekerja dengan kayu, panjangnya tidak melebihi 3-3.5 m. Untuk bekerja dengan benda kerja yang lebih panjang, anda harus menggunakan meja kerja tukang kayu.
Peranti meja kerja pertukangan: ciri reka bentuk
Meja kerja tukang kayu yang paling sederhana terdiri daripada dua elemen: meja kerja (atas meja) dan alas (bingkai yang menjalankan fungsi beban).Meja kerja tradisional mesti dilengkapi dengan naib. Bergantung pada lokasi, mereka boleh berada di depan atau di hujung. Dengan bantuan vise, kekosongan kayu dipasang pada kedudukan yang diperlukan.

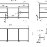
Peranti meja kerja pertukangan: 1 - pengapit depan; 2 - pengapit belakang; 3 - skru; 4 - kelainan; 5 - dulang; 6 - penekanan; 7 - soket untuk baji; 8 - baji; 9 - kaki depan; 10 - kaki belakang; 11 - ikatan (2 keping.); 12 - baji (4 pcs.)
Bahagian atas meja bengkel, serta rahang rompi, yang terbuat dari kayu, mempunyai lubang. Mereka digunakan untuk memasang berhenti dan penjepit, yang dapat memiliki ketinggian dan ukuran keratan yang berbeda.
Sebelum bekerja, hentian diatur dalam konfigurasi tertentu sehingga bahagian dapat diletakkan di antara mereka pada posisi yang diperlukan. Setelah benda kerja dipasang, ia dimampatkan menggunakan mekanisme skru yang dilengkapi dengan alat naib. Reka bentuk ini membolehkan anda memasang bahagian kayu dengan selamat pada kedudukan mendatar.
Wakil boleh digunakan untuk bekerja dengan benda kerja dengan ketebalan yang berbeza. Hentian dengan ketinggian yang berbeza disediakan khas untuk ini. Ukuran elemen ini dipilih supaya semasa pemprosesan bahagian itu tidak menonjol di tepi dan tidak mengganggu tuan.

Komponen penting dari meja kerja yang paling sederhana adalah bahagian atas meja dan bingkai sokongan.
Bahan untuk membuat bingkai dan penutup meja pertukangan
Dalam proses memproses kekosongan kayu, permukaan kerja dikenakan beban serius, oleh itu, peningkatan keperluan dikenakan ke atasnya. Baik itu sendiri atau meja kerja pertukangan lipat, strukturnya mestilah kuat dan kaku.
Rangka yang dibuat dengan baik mesti menahan semua jenis beban:
- Statik. Mereka timbul di bawah pengaruh berat yang besar jika benda kerja besar diproses di atas meja.
- Dinamik. Adakah kesan sampingan dari proses seperti penggerudian, menggergaji, mempengaruhi, dll.
Ciri kekuatan bingkai bergantung pada faktor seperti kebolehpercayaan pengikat (paku, bolt, mur, skru) dan jenis bahan dari mana ia dibuat. Alasnya terbuat dari kayu konifer, seperti pain. Walaupun linden atau maple juga sesuai untuk tujuan ini.
Meja kerja meja diperbuat daripada kayu dengan indeks kekuatan tinggi:
- beech;
- oak;
- maple;
- abu, dll.
Untuk membuat penutup meja pertukangan sendiri, para pakar mengesyorkan mengambil papan yang terpaku. Dalam kes ini, anda tidak perlu menghabiskan banyak masa dan usaha untuk memasang kayu. Lapisan penuh berupa papan terpaku akan menghilangkan keperluan untuk memotong bahan, memproses bahagian pinggirnya, dan kemudian gam dan sejajarkan. Perisai siap akan berharga lebih banyak, tetapi ia berbaloi.
Nasihat berguna! Dalam proses bekerja dengan kekosongan kayu, anda boleh merosakkan penutup dengan alat elektrik secara tidak sengaja. Untuk mengelakkan ini, lantai tambahan boleh dibuat untuk meja kerja dari papan lapis atau papan gentian. Ia dipotong mengikut bentuk dan dimensi penutup. Lebih baik jika lantai pelindung dibuat bersama dengan meja kerja.
Jenis utama meja kerja: gambar struktur dan keburukan untuk pelbagai tujuan
Lukisan jadual yang terdapat di Internet disajikan dalam pelbagai jenis. Untuk memilih pilihan terbaik untuk membuat meja kerja di rumah, lebih baik memutuskan terlebih dahulu mengenai jenis struktur dan konfigurasinya. Terdapat beberapa jenis meja yang digunakan untuk bekerja dengan kayu.
Pembinaan yang paling sederhana mempunyai meja kerja jenis pegun. Ia memerlukan sekumpulan alat minimum dan sedikit kesabaran untuk membuatnyaStruktur sedemikian digunakan terutamanya untuk memproses kayu kosong bersaiz besar.
Peranti yang lebih kompleks mempunyai meja kerja alat gabung lipat. Produk ini cukup padat. Berat badan mereka tidak melebihi 30 kg. Struktur sedemikian dianggap mudah alih dan, jika dikehendaki, ia dapat dipindahkan dengan mudah dari satu tempat ke tempat lain. Di bangku kerja lipat, bahagian sokongan bawah boleh dibuat dari logam. Ini dilakukan untuk meningkatkan kestabilan struktur. Meja bergerak direka untuk berfungsi dengan kepingan kayu kecil.
Meja kerja Joiner juga komposit. Dalam kes ini, semua elemen struktur terpaku dengan sambungan baut. Kelebihan jadual ini ialah semua komponennya boleh ditukar ganti. Sebaliknya, gambar meja kerja tukang kayu komposit cukup kompleks, begitu juga dengan teknologi pembuatannya. Hanya tuan yang berpengalaman yang dapat menangani tugas ini.
Sebelum mula membuat meja kerja, anda perlu memilih pilihan yang tepat. Dalam kes ini, spesifikasi kerja masa depan mesti diambil kira.
Terdapat beberapa jenis maksiat untuk meja kerja tukang kayu:
Artikel berkaitan:
Mesin hidraulik DIY: alat universal dari bicu
Pemilihan jenis dan reka bentuk struktur. Pemilihan bahan dan alat. Urutan pemasangan akhbar.
- Kerusi - alat ini jarang digunakan, kerana direka untuk kerja berat.
- Universal - direka untuk bekerja dengan bahan kerja kecil. Baut digunakan untuk mengikat pengikat ini ke penutup meja kerja.
- Istimewa - membolehkan anda menyesuaikan kedudukan benda kerja secara menegak dan melintang, yang sangat memudahkan kerja tuan.
- Manual - terdapat instrumental, putar dan bukan putar.
Catatan! Pada cakar jenis tangan yang tetap dan berpusing, lebar rahang adalah 8 cm.
Cara mengira dimensi meja kerja di garaj: dimensi yang disyorkan
Dimensi struktur dipilih secara individu, bergantung pada pilihan pemiliknya, serta mengambil kira jenis pekerjaan yang dicadangkan. Lebar struktur tipikal adalah dalam jarak 0,7-1,2 m, dan panjangnya dari 1,5 hingga 2 m. Bangku kerja adalah satu dan dua. Perbezaan antara reka bentuk ini adalah panjang dan bilangan unit laci. Sekiranya meja kerja tunggal, dalam kes ini, dimensi optimum meja adalah 0,8x0,8x1,5 m. Dalam struktur berganda, panjangnya meningkat menjadi 2,8 m.
Ketinggian meja kerja pertukangan dipilih dengan mengambil kira pertumbuhan tuan yang akan bekerja di belakangnya. Biasanya penunjuk ini berbeza-beza antara 85 hingga 95 cm. Cukup mudah untuk memeriksa kebenaran pengiraan. Sekiranya, berdiri di atas meja, tuan dapat dengan bebas meletakkan telapak tangannya di tutupnya, maka ketinggiannya dipilih dengan betul. Sangat penting untuk tidak keliru dengan penunjuk ini, kerana peregangan dan lenturan yang kerap berbahaya bagi punggung seseorang dan boleh menyebabkan keletihan yang cepat.
Perkara yang sama berlaku untuk struktur logam, yang juga dapat digunakan untuk kerja tukang kunci. Walau apa pun, meja kerja mestilah stabil dan sangat tahan lama. Ketebalan minimum penutup adalah 5 cm. Textolite atau linoleum digunakan sebagai pelapis, yang akan melindungi meja dari kerosakan. Di meja kerja tukang kunci, permukaan kayu di tempat kerja ditutup dengan penutup keluli. Ketebalan minimum lapisan ini ialah 5 mm.
Tempat terbaik untuk memasang meja kerja buatan sendiri
Pastikan anda mengambil kira ciri bilik sebelum membuat meja kerja tukang kunci do-it-yourself.Lukisan struktur masa depan, serta dimensinya, dipilih dengan mengambil kira semua keadaan:
- Jenis pembinaan - pegun atau bergerak.
- Bahagian atas meja mempunyai kawasan kerja tetap dengan dimensi tetap atau penutup lipat.
- Pengisian fungsional meja kerja adalah reka bentuk ringkas dalam bentuk meja atau versi fungsional dengan laci, rak atau pemegang alat tambahan.
- Konfigurasi meja - berbentuk sudut, lurus atau berbentuk U.
- Pilihan pemasangan adalah struktur yang dipasang di dinding atau meja berdiri bebas.
Lebih kerap daripada tidak, terdapat sedikit ruang di garaj atau bengkel. Atas cadangan pakar, struktur lipatan lebih disukai semasa membuat meja kerja do-it-yourself. Kebanyakannya tidak bergerak dan biasanya dipasang berhampiran dinding. Dalam kes ini, lebih baik menggunakan kawasan sudut bilik atau kawasan yang paling sedikit dihuni.
Sekiranya anda berhasrat untuk membuat meja kerja mudah alih yang padat dengan tangan anda sendiri, anda boleh memasangnya di mana sahaja. Setelah digunakan, struktur lipat hanya dikeluarkan ke tempat lain atau ditolak masuk.
Penting! Sekiranya bilik mempunyai tingkap atau ventilasi disediakan, draf mungkin berlaku. Tidak disyorkan untuk meletakkan meja kerja di kawasan yang mereka lakukan, kerana ini boleh menyebabkan masalah pada leher dan punggung, serta otot yang dipanaskan semasa bekerja.
Teknologi penciptaan meja kerja pertukangan sendiri: lukisan, dimensi dan prosedur
Pilihan yang paling sesuai untuk rumah persendirian atau garaj adalah reka bentuk penutup berengsel. Tidak seperti meja meja kerja yang lipat, permukaan kerjanya berputar dan tidak terungkap. Pilihan reka bentuk ini mempunyai struktur yang sama sekali berbeza, walaupun tidak kurang berfungsi dan padat.
Mobiliti dicapai kerana adanya roda yang dipasang di bahagian bawah. Untuk mengelakkan pergerakan struktur sewenang-wenangnya, disarankan untuk menggunakan penggelek dengan fungsi mengunci. Sebagai usaha terakhir, anda boleh memasang baji di bawah roda, tetapi pilihan ini tidak begitu mudah dan praktikal.
Laci dipasang di sebelah kanan struktur untuk penyimpanan barang-barang kecil dengan mudah. Sekiranya meja akan digunakan oleh tuan kiri, mereka harus diletakkan di sisi lain sehingga semua yang anda perlukan sudah dekat. Di samping itu, meja kerja dilengkapi dengan pemegang khas. Ia dibuat dari papan lapis berlubang dan dipasang di bahagian belakang kabinet. Oleh itu, menjadi mustahil untuk memaksimumkan penggunaan permukaan meja kerja dan mengatur ruang penyimpanan tambahan untuk alat kecil untuk pertukangan.
Di sebelah kiri atau kanan (untuk orang kidal) terdapat petak terbuka di dalam struktur. Ia sesuai untuk menampung peralatan tinggi yang sempit seperti mesin penggerudi. Rol yang dipasang di tepi atas meja sangat memudahkan pemprosesan kayu panjang, dan berkat soket berbilang soket, beberapa alat dapat disambungkan ke soket pada masa yang sama.
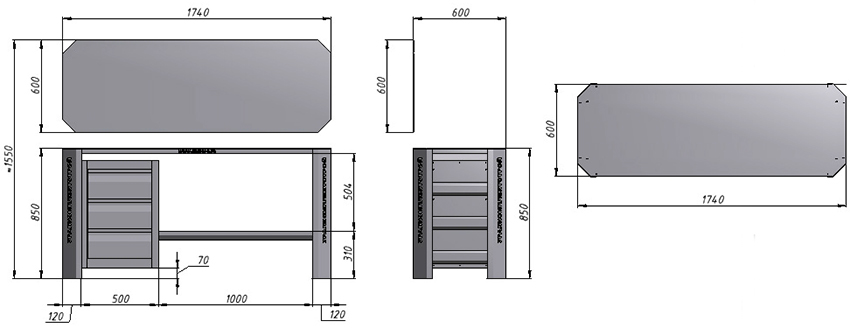
Lukisan meja kerja kayu diy dan bahan untuk kerja
Dengan fokus pada reka bentuk, anda perlu membuat semua bahagian yang diperlukan untuk pemasangannya. Dimensi keseluruhan meja kerja dalam kes ini ialah 175 cm (panjang) dan 76 cm (lebar). Ciri khas meja ini adalah penutup tiga lapisan, yang mempunyai margin kekakuan dan kekuatan yang meningkat. Tingkat atas dan bawah diperbuat daripada papan lapis dengan permukaan yang halus. Lapisan tengah bahagian atas meja adalah jenis-jenis, ia terbentuk dari papan.
Penting! Adalah mustahak untuk meninggalkan jurang antara papan di lapisan tengah meja. Ruang ini diperlukan supaya batang berulir dapat berputar dengan bebas.
Jadual yang mengandungi senarai bahan yang diperlukan untuk membuat meja kerja kayu kayu:
Jenis bahan | Kuantiti, pcs. | Dimensi, mm |
Kepingan papan lapis | 1 | 1.2x1.2 (8 mm) |
2 | 0.2x2.5 (8 mm) | |
3 | 1.2x2.5 (18-20 mm) | |
4 | 0.9x2.5 (25 mm) | |
3 | 1.2x2.5 (25 mm) | |
Papan lapis berlubang | 1 | 1.2x1.2 (8 mm) |
Batang berulir (pejantan) | 1 | M20 (180-200 mm) |
Kunci-kacang | 2 | M20 |
Mesin basuh | 4 | 20 mm |
Selak dengan rakan sejawat | 4 | — |
Pegang laci dan bahagian atas meja lipat | 8 | — |
Kastor perabot dengan sokongan rata untuk pemasangan | 4 | — |
Skru mengetuk sendiri atau skru kayu | 0.5KG | M8-M24 |
Skru mengetuk sendiri atau skru kayu | 0.5KG | M50 |
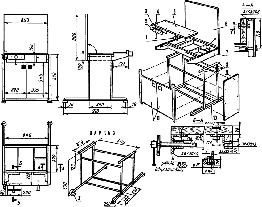
Meja kerja diy joiner: memasang pangkalan
Sebelum membuat meja kerja dari kayu, lebih baik menganggarkan jumlah kerja terlebih dahulu dan gariskan prosedurnya. Sebilangan besar bahagian meja dipasang dengan sambungan skru. Untuk memudahkan proses pemasangan, disarankan untuk membuat lubang di papan lapis di tempat yang sesuai. Untuk tujuan ini, anda perlu menggunakan gerudi, diameternya kira-kira 1/2 atau 1/3 kurang daripada diameter pengikat itu sendiri.
Setelah menyiapkan semua alat dan bahan yang diperlukan, dan juga dengan teliti mempelajari lukisan meja kerja tukang kayu, anda perlu membuat semua perincian strukturnya. Gergaji bulat sesuai untuk memotong kayu dan papan lapis. Selepas itu, bahagian hujung semestinya diampelas supaya tepi semua elemen licin. Ini bukan sahaja mempermudah proses pemasangan, tetapi juga menghindari masalah dengan penyambungan bahagian.
Pertama sekali, asasnya dipasang. Ia terdiri daripada pelat dasar di mana unit laci akan dipasang, kawasan terbuka untuk peralatan dan pengeras untuk mengukuhkan struktur. Untuk melakukan ini, anda perlu memasang bingkai dan memasang piring di atasnya. Untuk memperbaiki, gunakan pengikat M50.
Penting! Hanya kayu kering yang boleh digunakan untuk kerja. Kandungan kelembapan kayu yang optimum ialah 12%.
Cara membuat meja kerja dari kayu dengan tangan anda sendiri: pemasangan alas dan meja
Langkah seterusnya adalah pemasangan meja sisi. Dalam proses pemasangan elemen-elemen ini, sangat penting untuk mempertimbangkan bahawa papan lapis, yang dipasang di bahagian belakang struktur, harus dipasang tepat pada bingkai.
Perlu juga diperhatikan bahawa satah luar untuk alas kiri, digunakan sebagai penyokong, lebih panjang daripada bahagian dalamnya. Untuk menjadikan meja kerja do-it-yourself lebih kaku, elemen ini mesti dipasang bukan pada plat asas, tetapi tetap pada bingkai. Kabinet itu sendiri dipasang pada plat asas. Untuk ini, dua jenis pengikat digunakan. Bahagian bawah dipasang dengan skru M20-M24. Gunakan sudut untuk bahagian dalam.
Selepas batu curb dipasang, di dinding sisi dalamannya, anda perlu menentukan bahagian tengahnya dengan tepat. Penandaan ini diperlukan untuk memotong lubang-U untuk batang pangsi. Ini mesti dilakukan supaya pusat lubang-lubang ini terletak pada jarak 2.2 cm dari satah bawah penutup atas pada alas.
Setelah selesai, anda boleh meluncurkan batang berulir melalui lubang-lubang di empat bahagian atas. Pada masa yang sama, hujungnya harus menonjol dari meja kerja kira-kira 4-5 cm. Mereka dipasang (tanpa mengetatkan) dengan kunci dan pencuci.
Dengan menggunakan pengapit atau skru, anda perlu memasang jalur sokongan untuk bahagian atas meja. Mereka akan ditempatkan di sini buat sementara waktu - hanya untuk menyejajarkan kedudukan meja dan satahnya secara mendatar. Seterusnya, tiga lapisan penutup dipasang, yang dipasang dengan skru dan pelekat. Selepas itu, bar dikeluarkan dan hasilnya diperiksa. Bahagian atas meja hendaklah berpusing dengan bebas.
Kemudian permukaan sampul penutup (kedua putar dan pegun) diperkuat dengan rel. Akhirnya, anda perlu memasang pemegang pangsi dan selak pengunci.
Peringkat akhir memasang meja kerja tukang kayu
Apabila semua elemen bahagian bingkai dipasang, anda boleh mula memasang kotak dan kelengkapan. Pertama sekali, anda perlu memasang panduan di kabinet di sebelah kanan. Untuk memudahkan kerja, lebih baik menggunakan sisipan sementara dalam bentuk panel kayu.
Daripada rel kayu buatan sendiri, anda boleh menggunakan sistem pengeluaran kilang siap pakai yang boleh ditarik balik. Kelengkapan sedemikian (tertakluk pada kualiti tinggi) berfungsi dengan senyap dan boleh dipercayai. Panduan ini boleh direka untuk penyambungan penuh dan separa. Seterusnya, kotak simpanan dipasang. Untuk ini, skru dan pelekat berasaskan kayu digunakan. Ukuran fasad dipilih dengan mengambil kira dimensi kabinet.
Penting! Sangat penting untuk meninggalkan jurang kecil antara fasad (kira-kira 1-3 mm), jika tidak, laci tidak akan meluncur keluar dengan baik.
Sebagai penambahan berfungsi, bar bergerak boleh dipasang pada spacer, di mana satu atau lebih penggelek panduan akan bergerak. Jumlah mereka bergantung pada jenis pekerjaan yang akan dijalankan di bengkel. Untuk membolehkan roller bergerak bebas ke atas dan ke bawah, slot dibuat di bar bergerak untuknya, dan kemudian mur sayap dipasang, yang akan bertindak sebagai skru penjepit.
Roller dipasang di bahagian atas bar bergerak. Untuk melakukan ini, gunakan pemegang berbentuk U. Ia mesti mempunyai slot atau lubang di sisi yang dimaksudkan untuk paksi roller.
Kadang-kadang tukang menggunakan helah pertukangan lain, dan alat buatan sendiri yang dibuat dengan tangan mereka sendiri menjadi tambahan yang sangat baik untuk meja kerja dan peralatan lain:
- pendirian dan pemegang padat untuk pemotong;
- hentian gelongsor untuk gergaji miter;
- pad magnet pada rahang pengapit (paip);
- alat untuk membuat lubang sudut yang tepat dengan gerudi;
- bar panduan untuk gergaji bulat;
- mesin atas meja yang diperbuat daripada MDF untuk sander eksentrik, dll.
Seterusnya, anda perlu memasang alat pertukangan di meja kerja dengan tangan anda sendiri. Semasa memasang peralatan elektrik pada penutup berengsel, adalah mustahak untuk mengekalkan keseimbangan. Jangan memuatkan hanya satu sisi atau satu sudut meja kerja. Skru set tertutup sekurang-kurangnya 2/3 ketebalan di bahagian pangsi bahagian atas meja. Ini membolehkan anda mencapai fiksasi yang boleh dipercayai, kerana alat ganti elektrik mempunyai banyak berat. Di kawasan lateral di mana kawasan kerja tetap pegun, pengikat ini dapat meluas sepanjang ketebalan penutup.
Dalam bentuk siap, meja kerja buatan sendiri dengan meja berputar dan peralatan yang dipasang di atasnya sangat mudah dan berfungsi. Untuk melindungi kayu daripada kesan negatif kelembapan, disarankan untuk menutupnya dengan cat primer atau cat. Semua bahagian diproses sebelum pemasangan meja kerja dan mesti dikeringkan dengan sempurna. Lukisan juga akan meningkatkan penampilan desktop bengkel anda.