Setiap pemilik mahu menjaga keretanya dalam keadaan baik selama mungkin. Mendapatkan garaj yang kering dan berventilasi baik dianggap sebagai kejayaan yang jarang berlaku. Dan jika kita menganggap bahawa penduduk kota sering menyimpan tanaman mereka sendiri di ruang bawah tanah garaj, mewujudkan iklim mikro yang baik di dalamnya menjadi tugas nombor 1. Cadangan tajuk "Pengudaraan di garaj dengan tangan, skema, pengiraan dan kaedah pengudaraan anda sendiri" akan membantu anda menentukan pilihan sistem pengudaraan di garaj.

Pengaturan pengudaraan yang betul di garaj membantu menghilangkan pemeluwapan yang dihasilkan, penyingkiran gas ekzos dan asap beracun
Kandungan
Lakukan sendiri pengudaraan di garaj. Skema dan kaedah pengudaraan yang digunakan di garaj
Seperti bilik lain, garaj memerlukan pertukaran udara yang berkesan. Pengudaraan yang betul di garaj membantu menghilangkan pemeluwapan, asap ekzos dan asap beracun dari produk penjagaan kereta yang disimpan secara tradisional di sana. Pengudaraan di garaj melakukan beberapa fungsi penting, termasuk:
- penyingkiran kelembapan yang dihasilkan semasa memasuki garaj hujan, salji dan lumpur basah dari bahagian bawah kereta;
- penghapusan pengumpulan gas yang membahayakan kesihatan manusia (banyak pengguna kenderaan menghabiskan sebahagian besar masa lapang di garaj);
- mencegah pembentukan pemeluwapan di dinding dan siling bilik, serta di lubang pemeriksaan dan bilik bawah tanah;
- pengeringan kereta tepat pada masanya, perlindungan unsur-unsurnya daripada kakisan;
- perlindungan karat permukaan logam alat yang disimpan di garaj;
- mewujudkan iklim mikro yang kondusif untuk penyimpanan sayur-sayuran jangka panjang di bilik bawah tanah garaj.
Terdapat beberapa cara untuk mengudarakan garaj anda. Cara melakukan pemasangan sistem satu atau yang lain dengan tangan anda sendiri, anda boleh belajar dari banyak klip video di Internet.

Corak pergerakan udara dengan pengudaraan semula jadi garaj tanpa lubang pengebumian: 1 - arah udara; 2 - lubang pengudaraan di pintu garaj; 3 - kotak pengudaraan
Pengudaraan semula jadi. Gambar rajah pergerakan udara. Peranti pengudaraan DIY
Pengudaraan semula jadi di garaj adalah sistem pengudaraan yang paling biasa.Memandangkan bahawa alat pengudaraan semula jadi di garaj adalah mudah dan murah, banyak yang cenderung memilih sistem ini.
Skema pengudaraan garaj dengan kaedah semula jadi sedemikian rupa sehingga aliran udara masuk dan keluar dari ruangan melalui bukaan bekalan dan ekzos. Untuk memilih diameter lubang yang betul, anda perlu membuat pengiraan mudah.
Untuk mengatur pengudaraan garaj dengan tangan anda sendiri, anda memerlukan alat berikut:
- penebuk (untuk membuat lubang);
- pengisar (untuk memotong paip);
- paip plastik (boleh menjadi pembetung);
- jeriji pelindung dan penutup.
Berikut adalah penerangan langkah demi langkah pemasangan DIY:
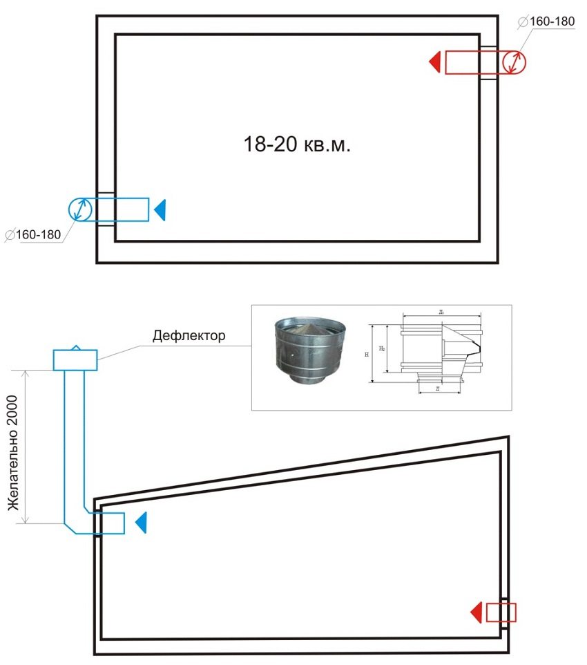
- Kami mengira luas lubang pengudaraan. Dengan mengambil kira norma, untuk kawasan garaj berukuran 6 x 3 m, lubang harus berdiameter 27 cm. Sekiranya dua lubang seharusnya, maka diameternya mestilah separuh dari hasil yang diperoleh.
- Kami membuat lubang pengudaraan di dinding, di mana saluran udara dari paip akan dipasang kemudian. Lubang harus berjarak 10 hingga 15 cm dari lantai garaj. Pukulan digunakan untuk karya-karya ini.
- Di dinding yang bertentangan, 10 cm di bawah siling, kami menyusun lubang untuk memasang paip keluar. Paip akan dibawa keluar dari bumbung garaj. Semakin tinggi paip di atas bumbung, pertukaran udara akan semakin intensif. Ketinggian minimum paip di atas bumbung ialah 50 cm.
- Selepas paip dipasang di bukaan, jurang antara paip dan dinding ditutup dengan sealant. Bukaan luar paip ditutup dengan jeriji untuk mengelakkan masuknya tikus kecil. Anda boleh mengelakkan pemendakan memasuki paip dengan memasang penutup pelindung.
Nasihat berguna! Gunakan untuk perlindungan paip pengudaraan gril berkualiti tinggi, akan membolehkan anda menyesuaikan kawasan saluran masuk bergantung kepada keadaan cuaca.
Skim pengudaraan semula jadi di garaj dengan tangan anda sendiri agak mudah dilaksanakan, tetapi harus difahami bahawa semasa tempoh hangat, peredaran udara akan menjadi tidak dapat dielakkan atau sama sekali tidak ada.
Anda dapat mengetahui dengan lebih terperinci bagaimana pengudaraan di garaj dibuat dengan tangan anda sendiri, dari contoh video.
Sistem pengudaraan paksa di garaj
Sistem pengudaraan paksa akan menyediakan pengudaraan garaj yang lebih cekap. Pengiraan kawasan garaj untuk sistem sedemikian tidak diperlukan, kerana aliran udara yang diperlukan disediakan oleh kipas yang dibina ke dalam sistem. Udara masuk dan dikeluarkan dalam jumlah yang cukup untuk garaj dan bilik bawah tanah dengan lubang melihat. Perlu diingatkan bahawa pengudaraan sedemikian di garaj melibatkan pembelian peralatan dan fungsi yang mahal dengan adanya elektrik.
Nasihat berguna! Pengudaraan mekanikal di garaj pada musim sejuk adalah sistem pengudaraan yang paling betul pada musim sejuk. Sekiranya perlu, ia boleh dilengkapi dengan pelbagai peranti untuk pemanasan udara.
Satu-satunya pilihan untuk pengudaraan garaj bawah tanah adalah penggunaan kaedah pengudaraan paksa.
Anda dapat melihat pilihan video mengenai cara membuat pengudaraan di garaj secara paksa dengan tangan anda sendiri.
Pengudaraan garaj gabungan
Alternatif untuk kaedah paksa adalah gabungan ventilasi di garaj. Kaedah ini menggabungkan pengambilan semula jadi udara bekalan dan penyingkiran udara ekzos dengan cara pengudaraan ekzos di garaj.Aliran keluar udara paksa disediakan oleh kipas yang dipasang di saluran. Sebaik sahaja udara tercemar dikeluarkan oleh sistem pembuangan, udara segar memasuki tempatnya melalui saluran bekalan.
Pengoperasian sistem pengudaraan bekalan dan ekzos di garaj tidak bergantung pada lokasi bukaan pengudaraan. Mereka boleh disusun di mana sahaja (walaupun di dinding yang sama), tetapi tidak saling bertentangan, untuk mengelakkan aliran udara yang stabil. Pengiraan luas bukaan ventilasi dilakukan seperti halnya ventilasi semula jadi. Semasa mengatur pengudaraan gabungan dengan tangan anda sendiri, disarankan agar anda terlebih dahulu menyelesaikan skema pengudaraan.
Artikel berkaitan:
|
Kaedah pengudaraan gabungan lebih murah dan optimum untuk garaj, walaupun ia juga bergantung pada elektrik.
Nasihat berguna! Memilih sistem pengudaraan gabungan untuk pengudaraan garaj, anda dapat menjimatkan elektrik dengan ketara berbanding dengan pengudaraan paksa.
Pemasangan ventilasi gabungan di garaj, video yang terdapat di rangkaian, menunjukkan dengan jelas pemasangan sistem dengan tangan anda sendiri.

Ruang bawah tanah plastik dengan pengudaraan - penyelesaian moden untuk mengatur ruang bawah tanah di bawah garaj
Sistem pengudaraan di ruang bawah tanah garaj. Gambar rajah pertukaran udara bilik bawah tanah
Penggunaan ruang bawah tanah dan bilik bawah tanah yang berkesan untuk menyimpan sayur-sayuran dan pemeliharaan hanya boleh dilakukan sekiranya pengudaraan yang betul tersedia. Pengudaraan di garaj dengan ruang bawah tanah boleh dilakukan secara semula jadi, mekanikal atau gabungan. Biasanya, untuk pengudaraan di bilik bawah tanah garaj, sudah cukup sistem pengudaraan semula jadi... Anda boleh melakukannya sendiri dengan sistem seperti menggunakan paip plastik untuk sistem kumbahan. Semasa pemasangan, anda mesti mematuhi cadangan berikut:
- skema pengudaraan bilik bawah tanah di garaj harus menyediakan bilangan putaran dan selekoh minimum paip;
- paip ekzos harus dilindungi untuk mengelakkan pemeluwapan;

Untuk pertukaran udara yang baik, paip pengudaraan bekalan dan ekzos hendaklah terletak di sudut bawah tanah yang bertentangan
- diameter hendaklah seragam sepanjang panjang paip;
- kemasukan paip luaran mesti ditutup dengan penutup pelindung untuk mengelakkan pemendakan masuk ke dalamnya.
Sebelum mengatur pengudaraan semula jadi, lakukan sendiri pengiraan luas lubang. Paip bekalan berasal setengah meter di atas lantai bilik bawah tanah dan dihala keluar. Cerobong dipasang di bawah ruang bawah tanah atau siling bawah tanah dan melangkaui bumbung garaj. Lokasi paip harus berada di sudut bawah tanah yang bertentangan.
Pilihan pengudaraan bilik bawah tanah dan ruang bawah tanah yang paling tepat pada musim sejuk adalah menggunakan kaedah paksa. Hampir tidak ada pertukaran udara di bilik-bilik ini dan mereka memerlukan pengudaraan yang berkesan menggunakan pemasangan pengudaraan mekanikal. Pengudaraan sedemikian akan menyumbang kepada pertukaran udara yang normal dan penciptaan iklim mikro yang diperlukan untuk mengawet makanan.
Anda dapat mengetahui bagaimana pengudaraan dilakukan di garaj dengan ruang bawah tanah dengan menonton arahan video dari alat pengudaraan.
Peranti pengudaraan di garaj logam
Pemasangan pengudaraan di garaj logam dilakukan dengan cara yang sama seperti di garaj konvensional. Ciri pengudaraan garaj besi adalah saluran masuk disusun di bahagian atas dinding, berusaha meletakkannya pada jarak tertentu dari kunci pintu.Ini akan membantu mengelakkan penggodaman. pintu gerbang melalui bukaan pengudaraan. Bukaan masuk dilengkapi dengan jeriji pelindung.
Contoh video yang terdapat di Internet menunjukkan alat pengudaraan di struktur besi garaj.

Skema pengaturan pengudaraan bekalan dan ekzos di garaj dengan bilik bawah tanah yang terdiri daripada beberapa ruang
Sebagai peraturan, tidak ada lubang pemeriksaan di kotak besi, jadi lubang atas cukup untuk pertukaran udara yang diperlukan. Aliran masuk tambahan aliran bekalan dapat dilakukan melalui beranda yang bocor di bawah pengaruh angin.
Sekiranya tidak ada pengudaraan, pemeluwapan muncul di permukaan garaj logam. Selain pengudaraan berkualiti tinggi, penebat lantai akan membantu mengelakkan pemeluwapan. Untuk melakukan ini, pertama, permukaan lantai ditutup dengan bahan bumbung, konkrit dan ditutup dengan linoleum.
Saranan dan maklumat mengenai cara membuat pengudaraan di garaj akan membantu mewujudkan keadaan yang optimum di mana keselamatan kereta dan tempat tinggal orang yang selesa di garaj akan terjamin.