Atap gudang tidak begitu popular di kawasan kami seperti gerbang klasik, tetapi ia mempunyai beberapa kelebihan tersendiri. Pemasangan struktur sedemikian bukan sahaja memungkinkan untuk menjimatkan bahan, tetapi juga untuk mengurangkan belitan bumbung, dan juga memberi bangunan yang asli. Di Internet, anda dapat menemui semua yang anda perlukan untuk membina struktur seperti bumbung bernada dengan tangan anda sendiri: gambar dan gambar, arahan video dan banyak lagi.
Kandungan
- 1 Projek rumah bumbung bumbung: apa yang perlu dipertimbangkan
- 2 Atap gable DIY: gambar dan foto, pentingnya mengambil kira angin naik
- 3 Hubungan antara sudut kecondongan dan bahan bumbung
- 4 Ciri-ciri penggunaan pelbagai bahan bumbung
- 4.1 Apa yang baik mengenai jubin logam
- 4.2 Pemasangan bumbung bangsal yang diperbuat daripada papan beralun
- 4.3 Atap Ondulin
- 4.4 Ciri bumbung dari jubin bitumen
- 4.5 Batu tulis sebagai salah satu bahan paling murah
- 4.6 Keluli bumbung dan aluminium - murah dan ceria
- 4.7 Jubin seramik - komitmen terhadap tradisi
- 4.8 Bagaimana bumbung bumbung dari pelbagai bahan kelihatan pada foto
Projek rumah bumbung bumbung: apa yang perlu dipertimbangkan
Pertama sekali, perlu dipertimbangkan nuansa struktur di mana bumbung dipasang. Contohnya, jika anda merancang untuk membina gazebo dengan atap bernada, maka ia boleh dibuat tanpa ventilasi. Ini bermaksud bahawa tidak perlu ada ciri reka bentuk khas yang akan membolehkan udara melewati penutup bumbung. Cukup untuk membersihkan struktur yang tidak berventilasi dari serpihan dan salji tepat pada masanya sehingga beban pada penyangga tidak melebihi norma yang dibenarkan.
Bumbung berventilasi dipasang di kawasan perumahan atau di mana peredaran udara semula jadi diperlukan. Pengudaraan disediakan melalui penggunaan bahan bernafas untuk penebat, wap dan kalis air, dan lubang pengudaraan khas dibuat pada bahan bumbung di sepanjang tepi bumbung. Struktur sedemikian memerlukan penyelenggaraan yang lebih teliti, kerana kelembapan lebih mudah menembus ke dalamnya.
Atap gable DIY: gambar dan foto, pentingnya mengambil kira angin naik
Sekiranya anda merancang bumbung bernada untuk mandi atau bangunan lain, maka titik yang sangat penting adalah arah lereng. Ia dipilih berdasarkan arah di mana angin paling sering bertiup di kawasan anda. Dengan lokasi lereng yang betul, serta sudut kecondongan yang optimum, angin itu sendiri akan meniup serpihan, air dan salji dari bumbung. Sekiranya parameter ini dihitung dengan tidak betul, maka dengan kelajuan angin yang tinggi, bumbung dapat dilarikan.
Adalah perlu untuk mengambil kira arah dan kelajuan rata-rata angin pada tahap reka bentuk struktur bumbung. Anda boleh mendapatkan data ini di pusat meteorologi tempatan anda.
Hubungan antara sudut kecondongan dan bahan bumbung
Sudut kecenderungan atap gudang untuk garaj, rumah mandi, bangunan kediaman atau bangunan luar tidak hanya bergantung pada kekuatan dan arah angin, tetapi juga pada jenis bahan bumbungyang anda pilih untuk digunakan. Kod bangunan moden mengesyorkan mematuhi parameter berikut:
- untuk batu tulis, jubin logam, papan beralun atau ondulin, sudut kecondongan harus lebih dari 12 °. Sudut 6-12 ° dibenarkan, tetapi kemudian anda harus menjaga tahap ketegangan sendi mendatar dan menegak yang tinggi antara kepingan bahan. Jika tidak, kelembapan akan meresap ke dalamnya, yang secara negatif akan mempengaruhi jangka hayat keseluruhan struktur, serta tahap penebat hidro dan haba;
- sudut kecenderungan jubin mestilah sekurang-kurangnya 10 °, untuk pasir-pasir atau seramik, dan sekurang-kurangnya 12 ° untuk bitumen. Sekiranya anda membuat atap garaj bernada tunggal dari kepingan keluli dengan tangan anda sendiri, maka sudut mestilah sekurang-kurangnya 17 °;
- untuk simen serpih minyak atau asbestos, sudut kecondongan optimum adalah yang melebihi 27 °;
- untuk semua bahan bumbung lain, nilai ini berbeza dari 20 hingga 30 darjah.
Nasihat berguna! Sekiranya anda tidak mahu bumbung didorong oleh salji yang turun, ditiup angin atau dibanjiri hujan, maka lereng harus lebih dari 30 °, memilih bahan yang sesuai untuk ini.
Ciri-ciri penggunaan pelbagai bahan bumbung
Dari gambar rumah dengan atap bernada, jelas terlihat bahawa pelbagai jenis bahan bumbung dapat digunakan untuk struktur seperti itu. Semasa memilih pilihan terbaik, kriteria tertentu mesti diambil kira.
Jenis bangunan... Keperluan bumbung sangat bergantung pada tujuan bangunan yang dimaksudkan. Terdapat perbezaan yang ketara antara bangunan kediaman, rumah mandi atau garaj dalam ciri reka bentuk yang mesti diambil kira semasa merancang bumbung. Sebagai contoh, untuk premis kediaman, anda perlu melengkapkan tahan lama, boleh dipercayai dan menarik bumbung, dan bangunan luar boleh ditutup dengan bahan murah tanpa rasa estetik khas.
Artikel berkaitan:
Dimensi kepingan ondulin. Arahan pemasangan untuk ondulin. Panduan langkah demi langkah untuk meletakkan ondulin di atas bumbung bernada. Ciri-ciri penciptaan dan reka bentuk elemen individu bumbung ondulin.
Hayat perkhidmatan bahan binaan... Sudah tentu, ketahanan atap dalam kebanyakan kes bergantung pada kualiti pemasangannya, tetapi bahan bumbung yang dipilih juga penting. Semasa memilih, perlu diingat bahawa rata-rata hayat perkhidmatan, misalnya, jubin semula jadi adalah 100 tahun, dan fleksibel - 20-40. Sekiranya anda merancang untuk membuat kayu bulat dengan bumbung bernada, maka anda boleh menggunakannya ondulin, ketahanannya antara 15 hingga 25 tahun.
Bentuk bumbung... Sekiranya anda merancang untuk membuat lereng lurus biasa, maka jenis bahan apa pun boleh digunakan untuk tujuan ini. Untuk projek dengan atap bernada dengan sejumlah besar struktur dalam bentuk menara, melihat tingkap atau tangga, jubin biasa tidak boleh digunakan, kerana penggunaan bahan akan terlalu tinggi. Sekiranya anda memerlukan bentuk cerun yang kompleks, maka untuk menutupnya, lebih baik membeli sirap atau bahan lain yang serupa dengan sebilangan besar elemen kecil.
Peluang kewangan... Dengan mengambil kira faktor ini, perlu mempertimbangkan bukan sahaja kos bahan bumbung itu sendiri, tetapi juga sistem kasau untuknya, pengikat dan pemasangan. Pilihan yang paling menjimatkan adalah papan beralun secara tradisional, ondulin atau jubin logam... Untuk memasang bumbung yang diperbuat daripada jubin seramik atau pasir-pasir, anda memerlukan sistem kasau yang rumit, dan juga pemasangan yang agak sukar, jadi bahan-bahan ini akan menelan belanja lebih tinggi.
Kerumitan meletakkan lapisan... Projek, gambar rumah dengan bumbung bernada selalu kelihatan menarik, tetapi jangan lupa bahawa, kemungkinan besar, pembina profesional terlibat dalam pemasangan. Sekiranya anda tidak mempunyai kemahiran pembinaan khusus, maka proses ini akan menjadi lebih sukar, dan hasilnya lebih buruk daripada pada gambar. Oleh itu, anda tidak boleh memilih bahan yang paling sukar untuk diletakkan di mana sahaja.
Sekiranya anda ingin bumbung kelihatan menarik dari sudut estetik, dan juga mempunyai prestasi tinggi, maka perhatikan kerumitan meletakkan satu atau lain-lain penutup atap.

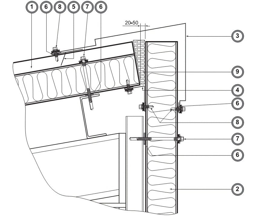
Lukisan reka bentuk rabung atap bernada: 1 - panel sandwic atap, panel sandwic 2 - dinding, elemen berbentuk 3, 4 dan 5, 6 - pita kedap, 7 dan 8 - skru penggerudian sendiri, 9 - penebat basalt
Penampilan... Parameter ini bergantung sepenuhnya pada keutamaan estetik anda, serta gaya umum di mana bangunan itu dibuat. Seperti yang anda lihat dalam foto, garaj dengan atap bernada juga terlihat sangat menarik, belum lagi bangunan kediaman. Perkara utama di sini adalah memilih tekstur dan warna bahan bumbung yang betul.
Setelah membiasakan diri dengan semua parameter di atas, anda boleh terus membeli bahan tersebut. Pasaran pembinaan moden menawarkan pilihan berikut:
- lantai profesional;
- ondulin;
- jubin logam;
- jubin bitumen;
- jubin seramik;
- kepingan aluminium;
- batu tulis;
- keluli bumbung;
- penutup membran.
Sekiranya anda tertanya-tanya bagaimana membuat bumbung bernada di gudang atau bangunan serupa lainnya, maka anda harus mempertimbangkan kelebihan dan kekurangan setiap jenis bahan.
Apa yang baik mengenai jubin logam
Jubin logam Merupakan bahan atap lembaran, ketebalan kepingannya hingga 0,6 mm. Di bahagian, kepingan jubin mempunyai struktur berlapis, dan lapisan atas ditutup dengan lapisan polimer khas. Terima kasih kepada ciri reka bentuk ini, bahan tersebut dicirikan oleh tahap kebolehpercayaan dan ketahanan yang tinggi.
Jangka hayat perkhidmatan, yang ditunjukkan oleh pengilang, kira-kira 15 tahun, tetapi dengan pemasangan dan penyelenggaraan yang betul, ia dapat dua kali lebih lama. Di samping itu, bahan ini mempunyai kelebihan berikut:
- menahan beban berat - hingga 1500 kg / m²;
- dicirikan oleh penampilan yang menarik dan pelbagai pilihan reka bentuk;
- senang dipasang, yang membolehkannya digunakan walaupun oleh pemula dalam industri pembinaan;
- tidak jarang melihat atap gudang yang diperbuat daripada jubin logam di foto rumah persendirian, yang dengan jelas menunjukkan bahawa permukaan bahan meniru jubin semula jadi;
- kit mengandungi semua pengikat dan komponen yang diperlukan untuk pemasangan;
- mempunyai berat badan yang rendah, yang mengurangkan beban pada sistem kasau;
- agak murah.
Tidak banyak kelemahan ketara dari jenis bahan bumbung ini, yang menjadikannya sangat popular di pasaran. Ciri rekaannya dapat meningkatkan kesan kebisingan dari angin, hujan es atau hujan, dan dengan konfigurasi atap yang rumit, terlalu banyak penggunaan bahan diperoleh.

Skema susunan atap yang diperbuat daripada jubin logam di atas lapisan lama: 1 - jubin bitumen, 2 - kasau, 3 - pelarik, 4 - jubin logam, 5 - sistem saliran
Nasihat berguna! Untuk atap yang diperbuat daripada logam, susunan penebat bunyi bertetulang adalah relevan, kerana hujan yang mengalir di atas bumbung tidak sesuai dengan keinginan semua orang.
Keistimewaan pemasangan jenis bahan ini merangkumi hakikat bahawa cerun cerun yang optimum untuknya mestilah sekurang-kurangnya 12 °. Juga, semasa memasang penebat, sangat penting untuk membuat lapisan penghalang wap, jika tidak, pemeluwapan akan terbentuk di bahagian dalam jubin. Lathing, menurut kebanyakan projek rumah bingkai dengan atap gudang yang terbuat dari jubin logam, terbuat dari kayu.
Hasilnya, kita boleh mengatakan bahawa jubin logam adalah salah satu bahan bumbung yang paling bersahaja dalam pemasangan, yang mempunyai banyak kelebihan.
Pemasangan bumbung bangsal yang diperbuat daripada papan beralun
Lembaran berprofil adalah kepingan logam beralun. Bumbung bernada yang terbuat dari papan bergelombang tidak kelihatan semenarik dari jubin logam, tetapi bahan itu sendiri akan dikenakan biaya lebih sedikit, jadi ini adalah pilihan yang baik untuk anggaran terhad. Kelebihan bahan termasuk yang berikut:
- jangka hayat yang panjang - dengan pemasangan yang betul, kira-kira 20 tahun;
- berat kepingan kecil bahan, yang menjadikannya lebih mudah untuk memasangnya sendiri;
- tahap kekuatan tinggi;
- kemudahan pemasangan dan kesederhanaan dalam operasi;
- pelbagai penyelesaian warna untuk pelaksanaan idea reka bentuk anda;
- pilihan saiz helai yang banyak.

Bumbung bangsal dari papan beralun rumah kecil di tingkat 1.5
Pilihan yang baik untuk mendirikan atap gerbang dari papan bergelombang adalah untuk garaj dan bangunan luar yang lain. Perlu diingat bahawa bahan tersebut juga mempunyai kekurangannya:
- peningkatan kesan bunyi dari hujan, hujan es atau tiupan angin. Anda boleh menyingkirkannya hanya dengan memasang lapisan penebat bunyi yang tebal dan memasang keseluruhan pai bumbung dengan betul;
- kerentanan terhadap kakisan. Sekiranya anda membuat atap gerbang dari papan bergelombang dengan tangan anda sendiri, maka anda perlu memantau integriti lapisan polimer bahan. Di tempat-tempat di mana ia tidak ada, karat cepat terbentuk, oleh itu, kawasan tersebut mesti segera ditutup dengan sebatian khas;
- penampilan bukan naskah berbanding dengan bahan bumbung lain.
Bagi ciri-ciri pemasangan bumbung seperti itu, mereka merangkumi hakikat bahawa semasa meletakkan, anda perlu bertindak dengan berhati-hati, dan anda hanya harus melangkah di dasar gelombang, jika tidak, anda berisiko merosakkan lembaran. Sekiranya anda ingin mengetahui cara membuat bumbung bernada di garaj atau bangunan luar sehingga dapat bertahan selama mungkin, maka sudut kecondongan harus 20-45 darjah. Dalam kes ini, salji atau serpihan tidak akan terkumpul di atas bumbung, kerana permukaan bahan yang halus dan halus.
Sistem penutup atap diperbuat daripada papan beralun dengan cara yang sama seperti jenis bahan bumbung yang lain. Untuk ini, papan kering dan balok digunakan, lebih baik jika ia diperbuat daripada kayu konifer. Bahan itu sendiri dicirikan dengan berat yang sangat rendah, sehingga penguatan tambahan kasau dan kasau dapat dihilangkan.
Foto gazebo dengan atap bernada yang terbuat dari papan bergelombang menunjukkan bahawa untuk struktur jenis ini, kalis air dan penebat tidak diperlukan, hanya satu lapisan bahan yang cukup. Sudah tentu, jika anda perlu membina gudang dengan atap bernada dari bahan ini, maka anda tidak boleh melakukannya tanpa pai atap minimum.
Papan beralun dipasang dengan skru mengetuk sendiri. Lembaran harus diikat antara satu sama lain dengan pertindihan 25-30 cm, dan ketika mengikat, anda perlu bergerak dari bawah ke atas. Langkah antara pengikat bergantung pada jenis kepingan dan ukuran gelombang, jadi parameter ini harus ditentukan semasa pembelian.
Nasihat berguna! Jangan pasangkan skru terlalu rapat, jika tidak, anda akan merosakkan penebat dan lapisan atas lapisan.Untuk mengelakkan titik lekapan dari kakisan, disarankan untuk menutupnya dengan cat atau varnis khas.
Seperti yang anda lihat, papan beralun dipasang semudah jubin logam, sementara mempunyai daya tarikan estetik yang sedikit lebih rendah, tetapi juga biaya yang lebih rendah. Pilihan yang baik untuk bangunan luar dan bangunan bukan kediaman.
Atap Ondulin
Ondulin juga disebut slate euro, dan kelihatan seperti lembaran serat selulosa bergelombang, yang diresapi dengan bitumen. Lapisan atas ondulin adalah lapisan khas yang melindungi dari kelembapan dan fenomena negatif yang lain. Sekiranya anda bercadang untuk membuat bumbung ramping ke rumah dari ondulin, maka anda harus menyedari sifat positif dan negatifnya.
Kategori pertama merangkumi yang berikut:
- tahap ketahanan yang tinggi terhadap pelbagai jenis pengaruh iklim negatif, misalnya, hujan atau salji;
- fleksibiliti membujur tinggi, yang membolehkannya tidak menembusi beban berat, tetapi hanya membongkok;
- kepingan berat yang sangat rendah - hanya 4 kg / m²;
- boleh dipasang di atas bumbung lama sebagai lapisan sekunder;
- ia mempunyai jangka hayat yang panjang - kira-kira 50 tahun;
- mempunyai ketahanan air yang tinggi.
Kekurangan bahan:
- penampilan yang tidak terlalu menarik, praktikalnya tidak ada pelbagai warna dan warna (biasanya hanya ada tiga pilihan di pasaran), corak lega lemah;
- kehilangan warnanya kira-kira 5 tahun selepas permulaan operasi;
- pada suhu rendah ia menjadi rapuh dan mudah pecah di bawah tekanan.
Dalam foto bumbung rumah persendirian bernada tunggal dari ondulin, jelas terlihat bahawa jenis bahan bumbung ini dicirikan oleh sudut cerun yang agak kecil - dari 6 darjah. Ngomong-ngomong, jenis lathing untuk bahan ini banyak bergantung pada kecerunan cerun.
Ondulin bagus kerana boleh digunakan untuk membina apa-apa jenis bangunan. Ini digunakan dalam pembinaan swasta, pertanian, dalam pembinaan bangunan industri dan bangunan luar rumah. Harganya tidak terlalu tinggi, jadi pilihan ini tidak akan mencecah dompet anda.
Ciri bumbung dari jubin bitumen
Kayap bitumen yang disebut berdasarkan gentian kaca atau selulosa organik. Lembaran bahan-bahan ini diresapi dengan bitumen (maka namanya), dan bahagian luar ditutup dengan granul basalt. Jenis bumbung ini jauh lebih mahal daripada yang sebelumnya, tetapi ini lebih daripada diimbangi dengan kelebihannya:
- semasa memasang jubin bitumen, peratusan sampah yang sangat kecil diperoleh;
- ia boleh diletakkan di lereng dengan geometri kompleks dan sebilangan besar struktur atas;
- mempunyai ciri-ciri bunyi dan kalis air yang sangat baik;
- berat bahan persegi meter hingga 20 kg;
- bertolak ansur dengan perubahan suhu dengan baik, serta suhu tinggi dan rendah;
- tidak terbakar, dan juga dicirikan oleh pemadaman diri;
- mempunyai penampilan yang menarik dan pelbagai pilihan warna dan reka bentuk;
- tahan lama - sehingga 60 tahun perkhidmatan;
- tahan terhadap tekanan mekanikal;
- dapat meniru corak jubin jenis lain.
Untuk rumah satu tingkat dengan bumbung bernada, sirap bitumen hampir merupakan pilihan yang ideal jika anda mempunyai cukup wang. Kelemahan bahan termasuk yang berikut:
- peningkatan kerapuhan bahan pada suhu rendah;
- pemasangan memerlukan peralatan sistem peti dan pengudaraan berterusan;
- harga tinggi.
Projek rumah satu tingkat dengan atap bernada terbuat dari jubin bitumen menunjukkan sudut cerun 18 darjah.
Batu tulis sebagai salah satu bahan paling murah
Kelebihan utama bahan bumbung seperti batu tulis adalah jangka hayatnya. Dengan pemasangan dan perawatan yang betul, ia melebihi 50 tahun, yang merupakan petunjuk yang sangat baik. Di samping itu, batu tulis mempunyai kelebihan berikut:
- sangat murah;
- tidak mengalirkan elektrik;
- tahan terhadap kakisan dan suhu tinggi.
Kekurangannya termasuk berat kepingan yang besar, akibatnya sukar untuk memasangkannya sendiri, serta kerapuhan batu tulis, bahaya debu asbes kepada kesihatan dan penampilan yang tidak menarik.
Nasihat berguna! Sekiranya anda memilih batu tulis sebagai penutup bumbung, maka kekaburan reka bentuknya dapat dicairkan dengan mengecat permukaan kepingan dengan cat khas.
Keluli bumbung dan aluminium - murah dan ceria
Dari segi kos, keluli bumbung boleh bersaing dengan batu tulis dan bahan lain yang murah. Kelebihannya termasuk kemudahan pemasangan dan operasi, berat badan rendah dan kemampuan untuk menutup cerun dengan konfigurasi yang kompleks. Parameter terakhir dicapai kerana kelenturan kepingan keluli yang luar biasa.
Malangnya, bahan ini juga mempunyai sejumlah kekurangan yang ketara. Yang utama adalah tahap kebisingan yang sangat tinggi semasa hujan. Sekiranya hujan atau hujan es, walaupun penebat bunyi berkualiti tinggi tidak dapat menyelamatkan bunyi kepingan keluli, oleh itu bahan jenis ini digunakan terutamanya untuk bangunan luar.
Kelemahan lain adalah penampilannya yang sederhana. Sangat indah untuk membuat bumbung bernada untuk mandi dari keluli atap seperti dari jubin logam - ia tidak akan berfungsi dengan semua keinginan, oleh itu, kepingan keluli digunakan di mana ekonomi berada di tempat pertama, dan bukan reka bentuk.

Untuk memberikan penampilan estetik pada bumbung keluli atau aluminium, anda boleh menggunakan lukisan
Atap yang diperbuat daripada kepingan aluminium dicirikan oleh kelebihan dan kekurangan yang hampir sama dengan keluli. Satu-satunya perbezaan yang ketara adalah kaedah pemasangan. Bumbung aluminium dipasang pada pelat dengan bantuan cleat - lidah khas yang membolehkan kepingan bergerak dengan perubahan suhu, sehingga menghilangkan ubah bentuknya.
Jubin seramik - komitmen terhadap tradisi
Projek sebuah rumah dua tingkat dengan atap bernada terbuat dari jubin seramik telah dianggap sebagai bangunan klasik selama lebih dari seratus tahun. Pada masa ini, bahan ini boleh dibuat dari tanah liat bakar atau campuran pasir dan simen. Sifat kedua-dua pilihan sangat serupa, tetapi yang kedua dicirikan oleh ketebalan dan reka bentuk kasar yang lebih besar.
Kelebihan sirap merangkumi kualiti berikut:
- tahap penebat haba dan bunyi yang tinggi;
- penentangan terhadap semua jenis pengaruh iklim;
- keramahan alam sekitar;
- hayat perkhidmatan yang sangat lama - lebih dari 100 tahun;
- banyak pilihan pilihan dan warna reka bentuk.
Sekiranya kita membincangkan kelemahan sirap, maka ini adalah banyak berat, kerana itu anda harus memasang sistem kasau bertulang, kerumitan dalam pemasangan dan kos yang agak tinggi. Sebaliknya, bumbung serpihan akan memberi rumah anda penampilan bangsawan, yang patut dibayar.
Bagaimana bumbung bumbung dari pelbagai bahan kelihatan pada foto
Sekiranya anda mahu rumah atau bangunan lain kelihatan semenarik mungkin, maka anda tidak boleh menggunakan bahan yang paling murah untuk mengatur atap. Sebagai contoh, jubin semula jadi dengan warna merah klasik akan segera memberitahu para tetamu tentang selera dan kesejahteraan anda.
Sekiranya anda menggunakan pilihan anggaran untuk bahan bumbung, maka cubalah memilihnya sedemikian rupa sehingga mewakili rumah anda dengan cahaya yang paling baik.Sebelum memilih bahan, disarankan untuk melihat foto bangunan dengannya di Internet, jadi anda akan mengetahui gambaran yang lebih lengkap mengenai kualiti estetiknya.