Tangga spiral dengan tepat dianggap sebagai ratu sistem tangga. Sentiasa mewah, dengan reka bentuk yang tiada tandingannya - struktur ini berfungsi sebagai elemen hiasan pusat di mana seluruh bahagian dalamnya terbentuk. Sistem tangga spiral sangat berfungsi, tetapi tidak memerlukan banyak ruang. Ulasan "Tangga berpusing ke tingkat dua di rumah persendirian: foto, harga struktur" akan membantu mengkaji pilihan tangga yang ada dan lebih mengutamakan reka bentuk yang berfungsi, selamat dan padat.
Kandungan
- 1 Tangga spiral: jenis struktur
- 2 Pengiraan tangga spiral
- 3 Tangga spiral DIY. Lukisan dan gambarajah struktur
- 4 Memasang tangga spiral dengan tangan anda sendiri yang diperbuat daripada logam: lukisan pembinaan
- 5 Pembinaan tangga spiral ke tingkat dua di rumah persendirian: foto di kawasan pedalaman
- 6 Tangga berpusing ke tingkat dua di rumah persendirian: foto, harga, pengeluar
Tangga spiral: jenis struktur
Tangga spiral adalah reka bentuk yang paling menarik dan tidak biasa. Mereka boleh berbeza dengan bahan yang digunakan untuk membuatnya dan gaya pembinaannya. Tangga spiral diklasifikasikan bergantung pada kaedah menyokong tapak (langkah):
- sokongan tangga di dinding dan tiang - dalam reka bentuk sedemikian, tangga tangga spiral berbentuk baji disokong oleh bahagiannya yang lebar di dinding perimeter, sementara bagian tangga yang sempit mempunyai penyokong dalam bentuk tiang tengah. Tiang penyokong terbuat dari batu atau boleh direkrut dari tangga tebal;
- cantilever mengikat langkah di sekitar tiang sokongan - langkah-langkah sistem skru seperti itu diarahkan ke tiang tengah dalam bentuk tiang. Pengikat tangga ternyata agak kaku, sehingga tangga seperti itu dapat dipasang secara pilihan di sebelah dinding;
- sokongan langkah pada tali busur melengkung dan pagar - reka bentuk tangga seperti itu tidak memberikan sokongan pusat. Tangga dipasang dalam tali busur melengkung, yang sekaligus berfungsi sebagai penghalang. Pembuatan struktur skru seperti itu penuh dengan kesulitan tertentu, namun ia mempunyai penampilan yang sangat menarik dan asli;
- langkahnya diikat dengan bahagian sempit pada paip sokongan selongsong - kaedah pengikat yang paling biasa: tapak logam dilengkapkan pada penyangga dalaman dalam bentuk paip. Dalam reka bentuk ini, adalah penting bahawa paip berdiameter sekurang-kurangnya 50 mm, kerana berfungsi sebagai elemen pendukung dalam sistem tangga.
Pelbagai bahan digunakan untuk pembuatan tangga spiral, termasuk:
- logam - keluli tahan karat, keluli aloi, tembaga, aluminium berus, besi tuang;
- kayu - oak, maple, beech, larch, pine dan lain-lain;
- batu, bata, seramik, kaca, marmar.
Pelbagai kombinasi bahan digunakan untuk membuat sistem skru, menghasilkan reka bentuk yang asli dan tidak biasa. Kelebihan utama mereka adalah kekuatan dan ketahanan tinggi terhadap beban berat.
Pengiraan tangga spiral
Pengiraan dimensi tangga spiral sangat bergantung pada tujuan struktur: sama ada ia akan menjadi primer atau sekunder. Sekiranya tangga memainkan peranan utama, disarankan agar ukuran langkahnya diambil tidak kurang dari 90 cm, dan diameter bukaan di mana ia akan dipasang adalah 200 cm. Ternyata diameter bukaan hendaklah lebih kurang 20 cm lebih dari panjang dua langkah. Ukuran bukaan ini dijelaskan oleh perlunya melengkapkan tangga spiral dengan pagar dan pagar. Kemudian antara pagar dan jurang 10 cm tetap di permukaan bukaan, yang akan memberikan sokongan yang selesa pada pegangan tangan. Bagi tangga spiral tambahan, bukaan dengan diameter 140 cm dan panjang langkah 60 cm sudah memadai.Biasanya, tangga seperti itu digunakan untuk naik ke loteng atau turun ke ruang bawah tanah.
Reka bentuk tangga spiral sedemikian rupa sehingga ketika bergerak di sepanjangnya, tidak sepanjang panjang tangga digunakan, tetapi hanya bahagiannya yang lebar. Jika, misalnya, tangga yang diproyeksikan memiliki lebar langkah 90 cm, maka bagian dari langkah ini akan dipasang pada tiang penyokong, di sisi lain pagar akan dipasang. Oleh itu, kira-kira 80 cm akan tinggal untuk berjalan.Tetapi memandangkan tangga struktur heliks mempunyai susunan larian, bahagian mereka yang melekat pada tiang akan tergantung di bahagian langkah seterusnya. Oleh itu, lebar langkah yang sesuai untuk pergerakan akan dikurangkan sebanyak 25% lagi. Hasilnya, ternyata dari keseluruhan langkah selebar 90 cm, sekitar 50 cm akan digunakan untuk pergerakan.
Untuk mencapai pergerakan yang lebih selesa, diameter bukaan dan dimensi tangga spiral dinaikkan. Walau bagaimanapun, ukuran bukaan tidak boleh lebih dari 300 cm, dalam hal ini, ruang di bawah tangga yang dihuni akan memungkinkan anda memasang struktur perarakan.
Tangga spiral DIY. Lukisan dan gambarajah struktur
Banyak gambar tangga spiral ke tingkat dua dengan tangan anda sendiri menunjukkan bahawa pengeluaran struktur sedemikian secara bebas adalah mungkin. Semasa mula membuat tangga, perlu menentukan tempat pemasangan, hitung semua parameter, fahami lukisan tangga spiral.
Sebagai contoh, pertimbangkan tangga spiral dengan tangga berbentuk baji kayu dan penyangga galas dalam bentuk tiang logam. Tangga seperti itu boleh dipasang di sebelah dinding dan di tengah-tengah bilik.
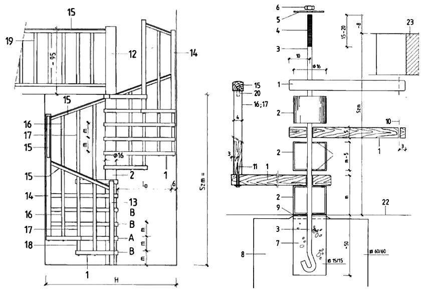
Gambar rajah tangga
Struktur tangga spiral didasarkan pada penyangga galas dalam bentuk batang, di mana langkahnya dipasang. Sebagai peraturan, paip logam besar digunakan untuk tiang penyokong. Langkahnya disokong oleh bushings yang terpasang di rak. Anda boleh membuatnya sendiri dengan memotong paip keluli menjadi silinder dengan ukuran tertentu. Di kedua sisi, lapisan dilas ke silinder sesendal dengan lubang untuk memasangkannya ke tiang sokongan.
Untuk memberi kesan estetik pada bushings, mereka ditampal dengan filem hiasan dengan tekstur yang sesuai.Ini boleh menjadi tiruan dari kayu atau marmar, bergantung pada kombinasi dengan bahan untuk tangga. Kadang-kadang unsur kayu silinder digunakan sebagai bushings. Perkara utama di sini ialah hujung semua bushing selari antara satu sama lain.
Bagaimana tangga spiral dibuat: prosedur pemasangan
Pemasangan tangga bermula dengan pemasangan sokongan galas. Panjangnya hendaklah 7 cm lebih tinggi daripada jumlah ketinggian bilik dan ketebalan papak atas. Benang sepanjang 20 cm dipotong di hujung atas penyokong, dan tepi bawah penyangga konkrit.
Semua bahagian tangga yang diperlukan mesti disediakan terlebih dahulu: tangga, bush spacer, manset, gandingan. Semua bahagian dipasang secara berurutan pada sokongan galas. Setelah tahap terakhir dipasang, seluruh sistem diamankan dengan menggunakan cakera dan memasang mur pengikat ke utas.
Nasihat berguna! Agar lama-kelamaan tangga tidak berderak ketika berjalan, perlu mengetatkan mur pengikat atas kerana tapak mengecut.
Seterusnya, semua elemen pagar diikat, penetapan tangga dan batang rintangan diperiksa dan mur pengikat atas akhirnya terpaku.
Penjelasan untuk gambarajah pemasangan Tangga:
1 - langkah tangga; | 12.13 - tiang pagar atas dan bawah; |
2 - bushing untuk langkah spacer; | 14 - tiang sudut pagar; |
3 - sokongan galas; | 15 - pagar; |
4 - benang untuk mengunci rak; | 16 - tiang pagar pendek; |
5 - cakera untuk kacang; | 17 - tiang pagar panjang; |
6 - kacang pengikat; | 18 - tiang pagar tambahan; |
7 - mengikat sokongan dengan konkrit; | 19 - langkan; |
8 - asas rumah; | 20 - pin penyambung; |
9 - langkan; | 21 - lapisan lengan; |
10 - lubang untuk pagar; | 22 - permukaan lantai; |
11 - mengikat pagar; | 23 - bertindih. |
Memasang tangga spiral dengan tangan anda sendiri yang diperbuat daripada logam: lukisan pembinaan
Tangga spiral yang terbuat dari logam boleh digunakan untuk kegunaan luaran dan dalaman. Sekiranya tangga logam dipasang di luar, ia harus selaras dengan bar tingkap dan pintu masuk. Dalam kes ini, reka bentuk tangga spiral palsu akan sangat sesuai. Sekiranya tangga dipasang di dalam rumah, adalah wajar reka bentuknya menyokong gaya dalaman. Tangga spiral yang diperbuat daripada logam boleh dibuat pasang, dilemparkan, dikimpal.
Apabila tangga logam spiral buatan sendiri, disarankan untuk membiasakan diri dan menggunakan skema dan lukisan struktur siap pakai yang disesuaikan dengan ukuran individu.
Pengiraan struktur logam
Pengiraan semua parameter sistem tangga dilakukan dengan mengambil kira perkara berikut:
- untuk menaikkan tangga dengan selamat, jarak antara putaran struktur skru bersebelahan mestilah sekurang-kurangnya 2 m;
- jika strukturnya adalah yang utama dan dipasang di dalam rumah, diameter bukaan harus sesuai dengan ukuran 200 cm, dan panjang tangga harus 80 cm;
- sokongan logam galas harus dipilih dalam bentuk paip dengan diameter sekurang-kurangnya 5 cm;
- lebar tapak (langkah) sepanjang garis tengah sekurang-kurangnya 20 cm;
- jika tangga spiral dikelilingi oleh dinding perimeter, jarak dari pegangan tangan ke permukaan dinding harus sekitar 10 cm sehingga ketika menaiki tangga lebih mudah memegang pegangan tangan;
- jangan meningkatkan sudut tangga di atas 45 darjah;
- tangga logam spiral mesti mempunyai pagar berkualiti tinggi dan stabil;
- Sebaiknya gunakan pelapis anti slip untuk pergerakan yang selamat di tangga tangga luar.

Untuk pergerakan yang selamat, lebih baik melengkapkan tangga spiral dengan pegangan tangan yang boleh dipercayai dan lapisan pelindung anti-slip
Setelah memutuskan untuk membuat tangga logam sendiri, anda perlu mengetahui bahawa struktur sedemikian memerlukan pengetahuan dan pengalaman dalam bekerja dengan mesin kimpalan. Struktur logam tangga spiral ke tingkat dua kelas ekonomi dikenakan pengeluaran sendiri. Peranti tangga sedemikian memperuntukkan pengikat tangga ke rak logam yang menyokong. Semua elemen tangga disediakan secara berasingan dalam persekitaran yang selesa, dan tangga itu sendiri dipasang di dalam rumah.
Penyediaan elemen dan bahagian tangga
Semua elemen tangga disediakan terlebih dahulu mengikut gambar dan gambar rajah:
- paip rak galas dipotong agar sesuai dengan ketinggian bilik;
- paip dengan diameter lebih besar dengan saiz yang sama;
- batang logam untuk membuat pemasangan bolt;
- sudut logam untuk membuat langkah.
Dari paip dengan diameter yang lebih besar, silinder dipotong untuk lengan baju, yang akan memperbaiki tangga pada ketinggian tertentu. Panjang lengan mesti sepadan dengan ketinggian anak tangga. Lengan lengan mesti diikat rapat ke tiub sokongan. Sekiranya terdapat jurang kecil di antara paip dan lengan, cincin juga dikimpal untuk ditutup. Setelah menyelesaikan kerja, semua pengelasan dibersihkan.
Sudut logam dipotong mengikut templat tangga dan bingkai untuk tangga dikimpal dari unsur-unsur ini. Sarung lengan dilekatkan pada setiap langkah dan jahitannya juga dibersihkan. Selak sedang disiapkan.
Tangga spiral mempunyai lebar langkah yang sangat sempit sepanjang garis perjalanan. Ketika bergerak di tangga seperti itu, kaki yang melangkah lebih dekat ke sokongan pusat terletak pada bahagian tangga dengan lebar yang lebih kecil. Ini boleh menyebabkan kaki tergelincir, terutama ketika bergerak ke bawah.
Nasihat berguna! Untuk kemudahan bergerak di sepanjang tangga spiral, tangga struktur tidak boleh dilengkapi dengan riser. Ini akan meletakkan kaki di belakang garis langkah di tempat yang sempit.
Seterusnya, semua bahagian dan elemen tangga spiral dipasang. Satu demi satu, sesendal dengan tangga diikat ke paip sokongan. Apabila semua langkah dipasang, kedudukannya diselaraskan mengikut gambar, dan semua bahagian dikimpal bersama. Semua kimpalan dibumikan. Permukaan logam tangga dirawat dengan buku asas dan dicat. Rangka tangga dipenuhi dengan bahan menghadap.
Apabila tangga dengan tangga dipasang, teruskan pemasangan pagar dan pagar.
Untuk kejelasan proses pemasangan, anda boleh menggunakan foto tangga spiral ke tingkat dua di rumah persendirian.
Pembinaan tangga spiral ke tingkat dua di rumah persendirian: foto di kawasan pedalaman
Tangga spiral ke tingkat dua rumah, selain beban fungsinya, membawa komponen hiasan utama. Dalam hal ini, bukan sahaja kebolehpercayaan dan kemudahan reka bentuk, tetapi juga reka bentuk yang sesuai dipertimbangkan.
Sekiranya anda lebih suka gaya minimalis atau berteknologi tinggi, adalah wajar untuk memilih struktur logam. Tangga ini kelihatan ringan dan akan selalu menarik perhatian. Jangan lupa tentang peranan warna tangga. Contohnya, jika tangga berwarna hitam, perabot gelap, lukisan atau permaidani hitam dan putih dengan gabungan jalur hitam dan putih akan menyokongnya dengan baik.
Sekiranya di kawasan pedalaman yang anda rancangkan, tangga diberi tempat untuk hiasan sekunder, anda harus memilih pilihan untuk reka bentuk yang dicat dengan warna cahaya. Tangga matte yang tidak memantulkan objek lain kelihatan lebih mudah daripada yang gelap dan hampir tidak dapat dilihat. Ramai orang memilih model yang dicat dengan warna terang, dan kadang-kadang dengan langkah berwarna.
Nasihat berguna! Untuk mengelakkan kecederaan semasa menaiki tangga, perlu melengkapkan struktur dengan pagar berkualiti tinggi, boleh padat. Perkara ini berlaku terutamanya bagi keluarga yang mempunyai anak kecil.
Tangga spiral yang terbuat dari kayu berharga sesuai untuk gaya klasik. Struktur sedemikian juga harus disokong oleh perabot yang sesuai, lebih disukai hampir selaras. Daya tarikan khas tangga kayu pasangkan pagar yang diperbuat daripada balusters yang diukir. Pagar yang ditempa digabungkan dengan tangga kayu kelihatan tidak kalah elegan.
Dengan menggunakan tangga spiral kayu untuk menghubungkan tingkat, anda boleh mengisi rumah dengan kehangatan dan keselesaan. Bagaimanapun, kayu adalah bahan yang menyerap tenaga cahaya matahari, angin, hujan dan memindahkannya ke seluruh ruangan.
Sekiranya anda ingin memberi cahaya dan ketelusan tangga, anda boleh menggunakan reka bentuk dengan tangga kaca. Pagar dalam struktur ini dapat dipilih dengan berbagai cara: pagar kayu dalam kombinasi dengan balusters aluminium, pagar aluminium mendatar atau pagar plastik lutsinar.
Tangga berpusing ke tingkat dua di rumah persendirian: foto, harga, pengeluar
Penggunaan tangga spiral tidak terhad hanya untuk rumah persendirian dan negara, mereka digunakan dengan senang hati di pejabat, hotel, pusat sukan, kelab dan tempat awam lain. Terima kasih kepada reka bentuk dan peralatan mereka yang tidak biasa dengan pelbagai elemen hiasan, tangga spiral sesuai dengan bahagian dalam bilik dengan hampir semua reka bentuk.
Dengan menghubungkan tahap yang berbeza antara satu sama lain, struktur heliks menjimatkan ruang yang diperuntukkan untuk pergerakan di sepanjangnya. Ini membolehkan anda meletakkan struktur walaupun di rumah dua tingkat di kawasan kecil. Fakta ini mempengaruhi populariti tangga spiral ke tingkat dua di rumah persendirian. Foto, harga produk yang dijual untuk pesanan dapat dilihat di laman web pengeluar. Sebagai peraturan, syarikat menawarkan tangga spiral siap pakai mereka (periksa harga dengan pengilang). Tetapi banyak dari mereka juga dapat merangkumi projek reka bentuk pelanggan itu sendiri, dengan mempertimbangkan ukuran individu dan keinginan peribadi.
Artikel berkaitan:
Tangga loteng dengan menetas: kesederhanaan, kepraktisan dan kemampuan. Jenis, kelebihan dan kekurangan. Cara membuat tangga lipat dengan menetas dengan tangan anda sendiri. Penggunaan ruang dengan bijak.
Tangga spiral ke tingkat dua di rumah persendirian (foto, harga ditunjukkan di laman web yang sesuai), yang ditawarkan oleh pengeluar, boleh dibuat dengan gaya apa pun: tangga persegi atau bujur, pagar palsu atau ukiran, elemen hiasan kayu atau kaca. Semuanya bergantung pada pilihan individu anda dan gaya bilik yang anda pilih.
Nasihat berguna! Mencari tukang tangga profesional tidak begitu mudah hari ini. Ikuti cadangan rakan, menjadualkan perbualan peribadi, mengetahui semua tempat menarik dan berkenalan dengan portfolio pakar.
Di mana untuk membeli tangga spiral yang murah ke tingkat dua? Di Internet anda boleh mendapatkan katalog produk dari pelbagai pengeluar. Model yang disajikan di dalamnya terbuat dari berbagai bahan: logam, kayu, digabungkan, dengan elemen sisipan yang terbuat dari kaca, marmar, seramik, tingkap kaca patri dan produk palsu.
Banyak syarikat, dalam usaha untuk menjadikan harga produk berpatutan bagi setiap pembeli, menawarkan sistem diskaun pada sistem tangga paling popular. Lihat harga untuk beberapa model struktur skru yang diperbuat daripada pelbagai bahan dari syarikat Mister Step:
Model tangga spiral | Bahan | Harga untuk 1 p / m, euro | ||
Langkah-langkah | Handrail | Balusters | ||
GENIUS 010 T, diameter 110-160 cm, tinggi 210-380 cm, langkah 21 -24 cm | Abu, beech | Abu, beech | Logam dengan kabel keluli tahan karat | dari 1250 |
SCENIK SATU T | Abu | Abu | Abu | dari 2290 |
GENIUS 030 T, diameter 110-160 cm, tinggi 210-380 cm, langkah 21 -24 cm | Abu, beech | Abu, beech | Logam dengan kabel keluli tahan karat | dari 1200 |
GENIUS 050 T, diameter 110-160 cm, tinggi 210-380 cm, langkah 21 -24 cm | Abu, beech | Abu, beech | Keluli tahan karat yang digilap dengan keluli tahan karat | dari tahun 1750 |
Sukan SCENIK | Pokok abu | Abu | Aluminium mesin dengan kabel keluli tahan karat | dari 2450 |
SCENIK CHIC-LINE Q | Pokok abu | Abu | Aluminium anodized dengan kabel keluli tahan karat | 2345 |
Untuk memesan reka bentuk tangga spiral dengan harga yang berpatutan, anda mesti memberikan data berikut kepada pengilang:
- rajah-pelan bilik di mana pemasangan tangga spiral dirancang;
- lokasi struktur relatif dengan bilik;
- dimensi bilik, menunjukkan ketinggian dan diameter lubang untuk tangga spiral;
- jenis model tangga ke tingkat dua, bahan pilihan untuk pembuatannya, ciri-ciri gaya umum bilik.
Dengan mengambil kira semua data, pakar dalam masa yang singkat akan membuat produk yang mesti mematuhi syarat dan piawaian operasi, tanpa mengira reka bentuk yang dipilih. Sebagai tambahan, demi keselamatan operasi, disarankan untuk memesan struktur tangga dengan peralatannya dengan pagar dan pagar.
Pelaksanaan tangga adalah jenis perkhidmatan yang agak baru dalam industri pembinaan. Selain reka bentuk yang diimport, terdapat banyak produk pengeluar domestik di pasaran.
Firma yang menjual tangga biasanya menerima pesanan untuk reka bentuk tersuai. Di samping itu, mereka menyediakan perkhidmatan untuk penghantaran dan pemasangan sistem tangga. Tetapi harus diingat bahawa kos tangga yang dibuat mengikut lukisan individu akan 20% lebih mahal daripada model standard. Terpulang kepada anda untuk memilih.