Papak lantai adalah panel mendatar yang dipasang di antara lantai. Papak interfloor digunakan dalam pembinaan kotej swasta, untuk bangunan bertingkat, dan juga untuk pembinaan bangunan perindustrian. Hari ini, anda boleh membeli hampir semua saiz papak lantai, tetapi produk standard akan berharga lebih murah. Syarat utama untuk membeli adalah memilih jenis dan bilangan panel yang betul.
Kandungan
- 1 Apa itu papak konkrit: harga jenis produk utama
- 2 Ciri-ciri pengeluaran papak konkrit dengan isipadu 2 m³ dan struktur dengan ukuran lain
- 3 Jenis papak lantai, ukuran, GOST: standard asas
- 4 Dimensi asas papak lantai inti berongga
- 5 Apa itu papak ribbed, ciri utamanya
- 6 Apa yang mempengaruhi ukuran papak lantai: ukuran standard produk monolitik
Apa itu papak konkrit: harga jenis produk utama
Tidak ada pembinaan yang lengkap tanpa menggunakan lantai konkrit bertetulang, yang membantu mempercepat pembinaan bangunan dengan ketara. Papak lantai konkrit bertetulang dengan pelbagai saiz digunakan untuk memisahkan lantai bawah dari lantai atas. Tugas utama produk adalah menyediakan struktur bangunan yang kaku. Semua papak berbentuk segi empat, diperbuat daripada pelbagai jenis konkrit, dan kekakuan tambahan pada panel disediakan oleh mesh logam dan dawai penguat.
Oleh kerana pemilihan jenis dan ukuran yang banyak, papak RC mempunyai pelbagai kegunaan. Struktur digunakan untuk membentuk pondasi bangunan dan memisahkan ruang bawah tanah dari lantai di atas, serta untuk menghiasi loteng. Dalam beberapa kes, produk konkrit bertetulang berfungsi sebagai bahan untuk pembinaan dinding.
Ia menarik! Penggunaan papak bukan sahaja mempercepat proses pembinaan, tetapi juga membantu memastikan kestabilan bangunan. Panel lantai direka untuk semua jenis beban. Mereka dianggap elemen terbukti dan boleh dipercayai yang memperkuat ketegaran struktur.
Terlepas dari ukurannya, papak dibuat dari campuran konkrit, yang menyediakan produk dengan kemampuan untuk menahan beban berat.Di samping itu, produk dicirikan oleh sifat pemadam kebakaran yang tinggi, praktikalnya tidak dipengaruhi oleh kelembapan dan suhu yang melampau. Pada asasnya, papak dikelaskan mengikut ciri pembuatan, kerana panel monolitik dan berongga berbeza bukan sahaja dari segi penampilan dan harga, tetapi juga pada ciri teknikal. Pengaruh utama terhadap harga papak konkrit bertetulang adalah ukuran dan jenis konkrit yang digunakan.
Senarai harga sering menunjukkan bukan sahaja kos per pinggan, tetapi juga parameter utama, dan juga menentukan berapa banyak pinggan yang dapat dihantar oleh mesin pada satu masa. Julat harga cukup besar - dari 350 hingga 10 ribu rubel, kerana penunjuknya dipengaruhi oleh banyak faktor.
Ciri-ciri pengeluaran papak konkrit dengan isipadu 2 m³ dan struktur dengan ukuran lain
Konkrit bertetulang adalah bahan yang terbuat dari campuran konkrit, diperkuat dengan batang atau kawat penguat. Kombinasi komponen inilah yang menjadikan kepingan konkrit bertetulang dengan pelbagai saiz sebagai bahan binaan yang tahan lama. Oleh kerana bar penguat keluli berada di dalam campuran konkrit, bar tersebut dilindungi dengan betul dari kakisan dan pengaruh persekitaran yang berbahaya.
Sebaliknya, elemen keluli meningkatkan ciri galas campuran konkrit, yang agak rapuh. Hasil daripada kombinasi ini, struktur konkrit bertetulang dicirikan oleh kemampuan untuk menolak pemampatan. Oleh itu, tanpa mengira saiznya, papak terdiri daripada unsur-unsur berikut:
- kelengkapan;
- konkrit, yang ringan, berat atau silikat.
Sisipan penguat adalah batang keluli atau ikatan dawai, yang seterusnya dibahagikan kepada jenis berikut:
- Pekerja. Mereka diletakkan di bahagian bawah produk konkrit bertetulang dan berfungsi dalam lenturan.
- Pemasangan. Mereka merupakan dasar atau kerangka struktur, tugas utama mereka adalah memberikan kelantangan papak dan memperbaiki penempatan batang penguat yang berfungsi.
Untuk penghasilan siling, konkrit berat dan tegang digunakan, terdiri dari air, campuran simen dan pengisi khas, yang terbahagi kepada jenis seperti:
- kasar, terdiri dari batu hancur atau batu kapur;
- berbutir halus, berdasarkan pasir kuarza.
Bahan aktif utama yang membentuk konkrit adalah simen dan air. Berkat interaksi mereka, batu simen diperoleh, yang menahan butiran pengisi bersama-sama, hasilnya monolit padat diperoleh.
Maklumat menarik! Oleh kerana simen tidak berinteraksi dengan pengisi, ia dianggap sebagai bahan lengai. Walau bagaimanapun, pengisi, tanpa mengira ukuran butiran, mempunyai kesan besar terhadap sifat dan struktur konkrit.
Sekiranya dalam pembuatan papak digunakan konkrit pra-pemampatan, yang disebut tegang, batang dalam keadaan sedikit tegang digunakan untuk memperkuatnya, yang secara signifikan meningkatkan kekuatan lantai. Jumlah produk akan dipengaruhi bukan hanya oleh ukuran papak konkrit, tetapi juga oleh ciri-ciri bahagian yang digunakan dalam pengeluaran.
Jenis papak lantai, ukuran, GOST: standard asas
Bangunan kerangka monolitik semakin popular, intinya adalah pembentukan satu papak berterusan di seluruh permukaan lantai. Kelemahan utama struktur monolitik adalah kos tinggi, keperluan untuk membuat kerangka awal dan proses penuangan konkrit tanpa henti. Itulah sebabnya produk konkrit bertetulang siap tidak kehilangan kaitannya dan digunakan secara aktif, terutama dalam pembangunan swasta.
Di samping itu, harga papak lantai konkrit yang lebih rendah dan ukuran produk, yang terdapat dalam sebilangan besar di kedai runcit, membolehkan anda memilih pilihan yang sesuai untuk setiap tapak pembinaan, bergantung pada anggaran dan idea seni bina yang diperuntukkan. Papak mudah dipasang dan membantu mempercepat proses pembinaan bangunan, dan untuk pemasangannya, kerja pemasangan tambahan tidak diperlukan. Kelebihan lain yang ketara ialah ketiadaan pengecutan pada papak lantai konkrit bertetulang.

Papak padat dicirikan oleh tahap kekuatan tinggi, berat tinggi dan sifat penebat bunyi dan haba yang rendah
Struktur sedemikian dicirikan oleh peningkatan ketegaran, tahan terhadap kelembapan dan suhu yang melampau, dan mempunyai sifat penebat haba dan bunyi yang tinggi. Struktur ketat gas juga digunakan dalam pembinaan bangunan kediaman. Dalam kebanyakan kes, beban yang dibenarkan pada papak lantai adalah 800 kg / m², dan tekanan maksimum yang dirancang produk bermula dari 8 kPa. Oleh kerana rumah yang dibina menggunakan papak lantai sudah lama dibina, jangka hayat yang panjang juga dapat diperhatikan. Dalam senarai yang dicadangkan, jenis dan ukuran papak lantai utama mengikut GOST dipertimbangkan:
- Berongga. Mereka mempunyai lebar dari 1 hingga 3,6 m, panjang dari 1,7 hingga 9 m. Ketebalan, bergantung pada model, bervariasi dari 16 hingga 30 cm. Mereka dibezakan dengan kehadiran lubang melalui lubang.
- Ribbed pasang siap. Menurut piawaian GOST, dimensi papak lantai bergaris diwakili oleh parameter seperti ketinggian - hingga 40 cm, lebar - hingga 3 m, panjangnya bervariasi dari 6 hingga 18 m.
- Struktur tambahan yang kukuh. Panjang - dari 1.8 hingga 5 m, tinggi - 12-16 cm.
Maklumat menarik! Semua ciri dan dimensi produk konkrit bertetulang (papak lantai) diatur oleh piawaian GOST 21924.2-84. Bergantung pada jenis produk, mereka juga dapat dilengkapi dengan outlet kelengkapan, serta potongan dan lubang tempatan.
Semasa memilih struktur konkrit bertetulang untuk pembinaan, sebagai tambahan kepada parameter utama, penting untuk mempertimbangkan berat produk, yang akan mempengaruhi jenis peralatan mengangkat yang digunakan. Selalunya di tapak pembinaan terdapat kren yang dirancang untuk mengangkat struktur dengan berat hingga 5 tan. Sebagai contoh, papak konkrit dengan isipadu 2 m³ atau lebih boleh menimbang dari tiga hingga 4.5 tan, yang mungkin terlalu banyak untuk kren konvensional.
Papak teras berongga: dimensi, jenis utama
Ini adalah jenis produk konkrit bertetulang yang paling biasa, yang paling sering dihasilkan oleh perusahaan perindustrian. Oleh kerana ciri-ciri dan pelbagai ukuran, papak konkrit inti berongga banyak digunakan untuk bangunan perindustrian, bertingkat dan swasta. Kehadiran rongga membantu mengatasi peletakan komunikasi dan pemanasan.
Permukaan panel inti berongga yang hampir rata dan licin membolehkan bukan sahaja memasang siling antara lantai dengan cepat, tetapi juga mempermudah kerja pelaksanaan reka bentuk lantai dan siling lantai. Kehadiran lompang tidak mempengaruhi keupayaan papak untuk menahan beban berat. Bergantung pada bahagian dalaman, serta bentuk dan diameternya, rongga jenis berikut dibezakan:
- bulat;
- bujur;
- separa bulat.
Sebagai tambahan kepada kenyataan bahawa kehadiran lompang mengurangkan jisim papak lantai dengan ketara, panel inti berongga mempunyai kelebihan lain, termasuk:
- Menjimatkan campuran konkrit semasa pengeluaran, yang mengurangkan kos produk siap.
- Sifat prestasi yang baik. Papak lantai inti berongga mempunyai kadar penebat bunyi dan haba yang tinggi, yang meningkatkan kualiti bangunan siap.
- Memudahkan proses meletakkan komunikasi.Rongga di dalam papak digunakan untuk meletakkan bukan sahaja kabel, tetapi juga saluran komunikasi lain, misalnya, paip dengan diameter yang berbeza.
- Banyak pilihan saiz dan harga papak lantai konkrit bertetulang. Dalam pengeluaran, anda dapat menjumpai panel dengan hampir semua ukuran, termasuk dimensi yang tidak standard, tetapi harganya lebih mahal.
- Meringankan keseluruhan struktur. Oleh kerana kepingan inti berongga mempunyai jisim yang lebih rendah, maka akan ada sedikit kesan pada landasan, yang secara positif akan mempengaruhi kestabilan keseluruhan struktur.
Ciri pengeluaran dan kelebihan menggunakan jenis produk tertentu
Bergantung pada spesifik pengeluaran, papak teras berongga dibahagikan kepada formwork berongga (PC), ringan berongga (PNO) dan formwork berongga (PB). Proses pengeluaran untuk pembuatan papak bentuk inti berongga kelihatan seperti ini:
- Penyelesaian konkrit dituangkan ke dalam formwork logam yang disiapkan dengan elemen tetulang dan mesh logam yang terletak di dalamnya.
- Kemudian, di bawah pengaruh getaran, konkrit dipadatkan dengan baik dan diproses dalam kotak hidroterma, suhu di mana 80 ° C, dan kelembapan mutlak mencapai 100%. Selama 7-12 jam, suhu di dalam kotak terus menurun.
- Setelah campuran benar-benar mengeras, papak konkrit bertetulang selesai dikeluarkan oleh pelat keluli tetap, yang memudahkan pemasangan panel. Di gudang, semua papak ditandai dan menerima dokumentasi teknikal.
Bagi papak konkrit ringan, ia dianggap sebagai versi papak PC moden, yang berbeza dengan ketebalan yang dikurangkan. Sekiranya ukuran standard papak lantai konkrit bertetulang adalah 22 cm, maka ketebalan versi ringan hanya 16 cm, yang seterusnya mempengaruhi berat dan isipadu akhir produk. Oleh itu, isipadu papak konkrit 2.4x1 m jenis ringan akan sama dengan 0.38 m³, dan isipadu papak PC standard dengan ukuran yang sama sudah mencapai 0.52 m³, sementara berat papak pertama adalah 550 kg, dan yang kedua - sudah 750 kg, yang mana menunjukkan perbezaan berat badan yang ketara.
Kerana kenyataan bahawa dalam pembuatan papak, tetulang yang lebih padat dengan penggunaan tetulang tebal digunakan, ia dapat menahan berat yang sama dengan papak PC berongga. Oleh itu, penggunaan papak PNO dianggap lebih ekonomik, kerana harganya sedikit lebih murah, dan beban pada pondasi akan lebih rendah. Oleh kerana plat sedemikian tidak mengeluarkan jumlah yang lebih banyak, lebih banyak piring dapat dibawa oleh satu mesin, yang dapat mengurangkan kos penghantaran produk.
Artikel berkaitan:
Blok konkrit bertetulang: bahan serba boleh untuk pembinaan bangunan yang boleh dipercayai
Skop penggunaan. Varieti blok mengikut jenis, saiz dan luas aplikasi. Prosedur memasang blok konkrit bertetulang.
Papak, yang dihasilkan tanpa menggunakan cetakan, dihasilkan dengan proses pemutus berterusan, dan bentuk akhir panel diberikan oleh mesin cetak. Prinsip pengeluaran ini memungkinkan untuk menghasilkan kepingan yang panjang - hingga 9 meter, yang, atas permintaan pelanggan, dapat dipotong menjadi panjang dengan ketepatan beberapa sentimeter. Ini memungkinkan untuk menggunakan kepingan lantai konkrit yang berlainan saiz untuk merancang elemen seni bina yang kompleks.
Pada dasarnya, ketebalan pelat adalah 22 cm, walaupun dalam beberapa kes anda boleh menemui produk lain dengan ketinggian. Kelebihan utama papak PB ialah kemampuan menggunakan produk dalam kedudukan menegak untuk pembinaan dinding.
Ia menarik! Sebilangan besar kilang perindustrian mengeluarkan papan formwork dengan tepat, kerana untuk pengeluarannya tidak diperlukan untuk membeli peralatan tambahan.

Dimensi papak inti berongga sesuai untuk rentang tumpang tindih hingga 12 m, dan bentuknya sesuai untuk meletakkan komunikasi
Dimensi asas papak lantai inti berongga
Dimensi standard papak lantai berongga sesuai dengan GOST 9561.91 berbeza dalam had berikut:
- panjangnya berbeza dari 1.5 hingga 9 m;
- lebar - dari 1 hingga 1.8 m;
- berat papak minimum ialah 500 kg;
- berat maksimum melebihi 4 tan.
Perlu juga diingat bahawa diameter lompang dalaman juga mempengaruhi kekuatan panel: semakin kecil ukuran lubang melalui, semakin lama produk tersebut dipertimbangkan. Sebagai contoh, pelbagai jenis plat 1PKK dan 2PKK dicirikan oleh dimensi yang serupa, hanya dalam kes pertama diameter lubang melalui adalah 159 mm, dan pada yang kedua - 140 mm, ini menunjukkan bahawa plat 2PKK mempunyai daya galas yang lebih tinggi.
Penunjuk beban yang dikira adalah jisim yang dapat ditahan lantai, termasuk nilai beratnya sendiri. Beban maksimum pada papak lantai bergantung terutamanya pada jenis konkrit dan ketebalan papak, yang paling sering sama dengan 22 cm. Dalam pengeluaran, terdapat pilihan untuk peningkatan kestabilan dengan ketebalan 30 cm - ini adalah papak bertanda 6PK, serta struktur ringan, tingginya 16 cm.
Sesuai dengan GOST, dimensi papak lantai PC harus seperti berikut:
Dimensi plat PC (panjang, lebar, tinggi), mm | Isipadu, m³ | Berat, t |
1980x990x220 | 0,44 | 0,61 |
2180x1190x220 | 0,571 | 0,85 |
2680x990x220 | 0,58 | 0,83 |
3180x1490x220 | 1,04 | 1,6 |
4180x1190x220 | 1,09 | 1,525 |
5080x990x220 | 1,11 | 1,475 |
6180x990x220 | 1,35 | 1,83 |
Menurut GOST, dimensi papak lantai PB adalah seperti berikut:
Dimensi (LxWxH), mm | Isipadu, m³ | Berat, t |
5380x1195x220 | 1,41 | 1,91 |
5980x1195x220 | 1,57 | 2,125 |
6580x1195x220 | 1,73 | 2,34 |
7180x1195x220 | 1,89 | 2,55 |
8960x1195x220 | 2,36 | 3,19 |
Jadual saiz GOST untuk papak lantai ringan:
Dimensi (LxWxH), mm | Isipadu, m³ | Berat, t |
6280x1190x160 | 1,20 | 1,7 |
5380x1190x160 | 1,02 | 1,4 |
3580x1190x160 | 0,68 | 0,92 |
4780x1190x160 | 0,91 | 1,25 |
5980x990x160 | 0,95 | 1,43 |
4780x990x160 | 0,76 | 1,1 |
2380x990x160 | 0,38 | 0,55 |
Papak lantai berongga inti PB, PK dan PNO banyak digunakan dalam pembinaan. Terlepas dari jenis yang dipilih, pada akhirnya, bagaimanapun, untuk sebilangan besar lantai, struktur kekuatan tinggi akan diperoleh. Walaupun kenyataan bahawa papan berbeza dalam cara pembuatannya, mereka tetap dirancang untuk menyelesaikan masalah yang serupa.
Apa yang anda dapat pelajari mengenai ciri dan dimensi papak lantai PC
Tidak setiap pembina diminta untuk mengkaji ciri-ciri pengeluaran pelbagai jenis panel sebelum membeli, tetapi setiap orang yang harus berurusan dengan pembelian bahan untuk pembinaan harus tahu bagaimana menguraikan penandaan yang ditunjukkan pada produk. Setiap produk dilabelkan sesuai dengan GOST 23009.
Produk biasanya ditandai dengan 3 kumpulan alfanumerik, dipisahkan dengan tanda sempang dan titik. Pada awalnya, jenis panel dan dimensi utama papak penutup, seperti panjang dan lebar, biasanya ditunjukkan. Penting untuk mengetahui bahawa semua nilai ditunjukkan dalam desimetres dan dibundarkan ke nilai keseluruhan terdekat. Di samping itu, sebutan menunjukkan daya galas lantai, atau dapat menjadi indikator beban yang dihitung, diukur dalam kilopascals atau kilogram per meter persegi produk.
Sekiranya papak yang diperbuat daripada konkrit prategasan dibeli, kelas keluli pengukuhan juga ditunjukkan. Jenis konkrit biasanya tidak ditunjukkan pada produk. Kumpulan penanda ketiga sering mengandungi ciri-ciri berikut:
- ketahanan terhadap gas;
- keupayaan untuk menahan kesan seismik;
- kehadiran elemen tambahan yang tersemat.
Sebagai contoh yang akan membantu anda memahami struktur penandaan, anda boleh mempertimbangkan papak inti berongga 1PK63.15-6AtVL, di mana:
- 1PC - bermaksud bahawa ini adalah papak inti berongga dengan lubang bulat;
- 63 - panjang bulat dalam decimetres, dalam milimeter ia akan menjadi 6280;
- 15 - nilai lebar bulat, apabila ditukar menjadi milimeter bermaksud 1490;
- 6 - beban panel maksimum ialah 6 kPa atau 600 kg per meter persegi;
- ATV - tanda yang menunjukkan kelas kelengkapan terpakai;
- L - surat ini bermaksud bahawa produk itu diperbuat daripada konkrit ringan.
Sekiranya produk mempunyai tanda jenis serupa 1PK 63.15-6AtV-C7, maka kita dapat mengatakan bahawa papak sedemikian dirancang untuk digunakan di kawasan yang mengalami peningkatan aktiviti seismik dan mampu menahan gegaran hingga 7 pada skala Richter. Inilah yang dikatakan tanda tambahan C7.
Perbezaan antara papak lantai PB (PPS) dan PC (PNO): saiz, harga dan parameter lain
Sekiranya kita membincangkan parameter ketebalan, semua jenis papak inti berongga berkisar antara 160 mm hingga 300 mm, tetapi 220 mm dianggap sebagai standard. Mengenai panjangnya, papak PB berbeza dalam dimensi yang meningkat - nilai maksimum di sini mencapai 12 m, sementara mungkin memotong produk dengan ketepatan 10 cm. Panjang kepingan PC standard hingga 7.2 m, sementara nada diatur dengan jelas, dan panjang maksimum Panel PNO mencapai 6.3 m.
Lebar panel jenis apa pun biasanya standard dan dicirikan oleh nilai berikut (dalam meter):
- 1;
- 1,2;
- 1,5;
- 1,8.
Papak PB paling kerap dihasilkan dengan lebar 1.2 m, lebih jarang anda dapat mencari pilihan 1 dan 1.5 m. Pengeluaran papak bukan formwork dengan lebar 1.8 m praktikal tidak dijumpai. Beban khas pada papak inti berongga ialah 800 kg / m². Walau bagaimanapun, muatan maksimum pada papak PC mencapai 1250 kg / m2, sementara papak PB dapat dipesan dengan muatan 1600 kg / m2.
Nasihat berguna! Sekiranya anda membeli papak dengan rongga terbuka di hujungnya, ia mesti ditutup menggunakan mortar simen dan penebat.
Perbezaan penting antara papan PC dan PB adalah kelancaran permukaan: sementara pilihan pertama tidak boleh membanggakan permukaan yang rata, papan PB, berkat melicinkan dengan alat penyemperit, mempunyai penampilan yang halus dan menarik. Ketumpatan purata papak konkrit, tanpa mengira jenisnya, adalah 1400-2500 kg / m³.
Jadual menunjukkan penyebaran harga bergantung pada parameter:
Jenis plat | Dimensi (LxWxH), mm | Berat, t | harga, sapu. (PC.) |
PC | 3380x1490x220 | 1,64 | 5360 |
2380x1490x220 | 1,2 | 3780 | |
2980x1190x220 | 0,97 | 3600 | |
2180x1190x220 | 0,82 | 2940 | |
PB | 2080x997x220 | 0,69 | 2914 |
2380x997x220 | 0,79 | 3334 | |
2180x1197x220 | 0,84 | 3677 | |
3180x997x220 | 1,05 | 4468 | |
PNO | 3180x990x160 | 0,95 | 4450 |
2380x1490x160 | 0,67 | 4624 | |
4780x990x160 | 1,1 | 6073 | |
1580x1190x160 | 0,3 | 2998 |
Apa itu papak ribbed, ciri utamanya
Papak lantai bergaris juga disebut berbentuk U. Mereka mendapat nama kerana dua tulang rusuk pengeras yang selari, jarak antara umumnya 600 mm. Kekakuan tambahan produk disediakan kerana pengukuhan, yang memungkinkan untuk mengurangkan penggunaan konkrit dan pada masa yang sama mengekalkan kekuatan yang mempengaruhi ketahanan struktur terhadap lenturan. Prestasi produk ditingkatkan dengan adanya pelbagai tulang rusuk melintang. Papak diperbuat daripada konkrit gred B15 atau B20. Dengan mengambil kira ciri luaran, panel dibahagikan kepada 2 jenis:
- Plat yang dibezakan dengan ketiadaan bukaan di rak ditandai dengan huruf PG.
- Blok di mana terdapat bukaan tersembunyi dicirikan oleh tanda PV. Kelebihan utama menggunakan plat ribbed jenama ini adalah kemungkinan melakukan saluran udara atau membuat poros pengudaraan.
Oleh kerana penampilan khas dan ciri khasnya, papak lantai berbentuk U lebih kerap digunakan dalam pembinaan struktur bukan kediaman seperti garaj atau gudang. Semasa mendirikan bangunan kediaman, tidak praktikal menggunakan papak seperti ini untuk membuat ruang antara lantai, kerana mereka tidak mempunyai permukaan rata seperti pilihan lantai yang lain. Siling yang tidak rata akan kelihatan jelek, tidak akan mudah untuk menutupnya secara estetik, dan akan ada kesukaran untuk meletakkan komunikasi.
Ia menarik! Dalam beberapa kes, plat ribbed digunakan untuk membuat rangkaian pemanasan atau bekalan air.
Ciri pembezaan utama panel ribbed berbanding dengan jenis lantai lain adalah ketinggiannya. Ketebalan papak konkrit berbentuk U biasanya dalam lingkungan 30-40 cm. Pilihan yang lebih tipis digunakan untuk pembinaan bangunan kecil dan untuk memisahkan loteng dari bilik. Papak setebal 40 cm sering dijumpai di tapak pembinaan untuk kemudahan industri.
Dimensi papak lantai bergaris juga berbeza antara satu sama lain: nilai parameter ini berada dalam jarak 1.5-3 m, dan setiap jenis mempunyai kelebihan tersendiri. Oleh itu, pembinaan menggunakan panel tiga meter akan lebih cepat kerana lebarnya lebih besar, yang akan mengurangkan bukan sahaja masa, tetapi juga kos tenaga kerja. Sekiranya anda menggunakan papak satu setengah meter yang lebih sempit, bangunan akan keluar lebih kuat.

Salah satu kelemahan elemen lantai bergaris adalah kemustahilan penggunaannya dalam pembinaan bangunan kediaman.
Ciri lain papak lantai konkrit bergaris: dimensi dan parameter lain
Berbanding dengan dimensi papan PC, papak lantai bergaris jauh melebihi panjangnya. Terutama dalam pengeluaran terdapat produk, panjangnya 6 atau 12 m. Untuk pengeluaran individu, pilihan untuk panel 18 meter juga tersedia. Seperti dalam kes lain, jisimnya juga bergantung pada ukuran plat, yang sangat penting untuk dipertimbangkan ketika mengangkut produk dan ketika membuat rancangan pemasangan.
Papak lantai untuk rumah berukuran 12 m dapat berat dari 4 hingga 7 tan, walaupun nilai rata-rata dianggap 1.5-3 tan. Sekiranya dikehendaki, anda boleh memesan kepingan yang diperbuat daripada konkrit ringan, yang akan mempengaruhi berat produk. Semua struktur berbentuk U dilengkapi dengan gelung pemasangan untuk kemudahan.
Semasa membeli, anda perlu memperhatikan kehadiran lubang yang dimaksudkan untuk meletakkan komunikasi, serta jenama konkrit yang digunakan dalam pengeluaran. Semua ciri ini akhirnya mempengaruhi daya galas bangunan. Menurut GOST, beban maksimum pada papak lantai bergaris ialah 180-830 kg / m².
Untuk harganya, papak berus, berbanding dengan papak PC, sedikit lebih murah, dan beratnya lebih ringan daripada papak inti berongga. Sebab utama mengapa ia dibeli lebih jarang daripada pilihan lain adalah kekonduksian sejuk yang tinggi.
Ketebalan papak lantai di rak atas tidak melebihi 5 cm. Ini bermakna walaupun pada suhu minus sedikit, rak nipis akan membiarkan sejuk di dalam bangunan dalam waktu yang singkat. Atas sebab ini, lantai bergaris memerlukan penebat tambahan, yang memerlukan kos masa dan kewangan yang tidak perlu.
Jadual menunjukkan ukuran papak lantai:
Dimensi (panjang, lebar), mm | Ketebalan, mm | Berat, kg |
1170-390 | 90 | 65 |
1370-390 | 76 | |
1570-390 | 87 | |
1770-390 | 100 | |
2370-390 | 120 | 154 |
2570-390 | 167 | |
2970x390 | 150 | 197 |
3170x390 | 206 | |
3370x390 | 227 | |
3570x390 | 240 |
Apa yang mempengaruhi ukuran papak lantai: ukuran standard produk monolitik
Dalam klasifikasi siling, papak monolitik menempati kedudukan khas kerana fakta bahawa ia dipasang hanya dalam kes khas. Ketebalan papak lantai monolitik bergantung terutamanya pada panjang produk:
- jika panjangnya 6.6 m, ketebalannya akan berada dalam jarak 16 cm;
- dengan panjang 3.6-4.2 m, ketebalannya tidak melebihi 12 cm.
Harga dan saiz kepingan konkrit bertetulang jenis monolitik secara langsung bergantung kepada ketebalan produk. Semakin tebal produk, beratnya lebih penting, tetapi harus diingat bahawa dengan penunjuk ini sama dengan 16 cm, produk akan mempunyai ciri penebat bunyi dan haba yang meningkat, dan plat nipis juga harus dilindungi dan kalis bunyi. Walaupun ukuran monolit juga diatur oleh piawaian GOST, ada kemungkinan untuk membuat produk buatan pesanan sesuai pesanan. Semasa memilih dimensi, anda perlu mengambil kira bahawa semakin besar dan berat produk, semakin sukar untuk menyampaikan dan menaikkannya ke ketinggian yang diinginkan.
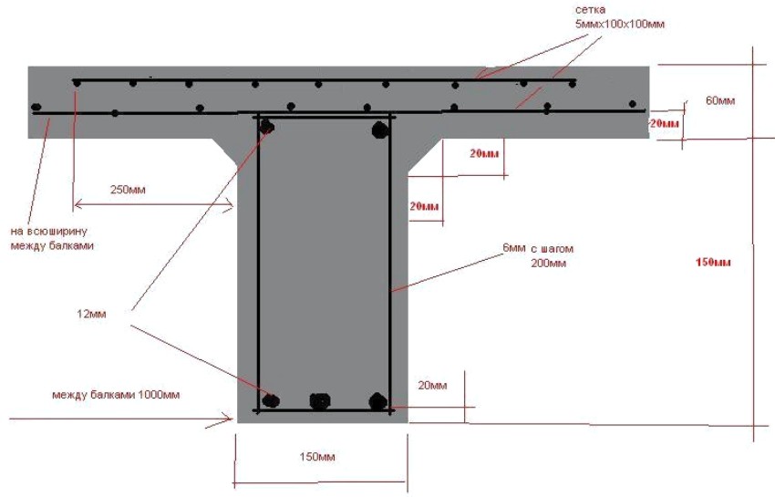
Penghasilan papak monolitik melibatkan penggunaan tetulang, yang menjadi asas struktur masa depan. Jaring penguat diletakkan supaya jarak di antaranya dan badan formwork tidak melebihi 3 cm.Bentuk bekam adalah struktur yang dapat dilipat yang digunakan untuk membentuk papak dan menyerupai kotak. Ketebalan batang keluli mestilah dari 1 hingga 1.2 cm. Untuk pengeluaran papak jenis ini, digunakan konkrit berkualiti tinggi jenama M200.
Nasihat berguna! Di lantai perdagangan, anda boleh menemui corak yang boleh digunakan semula yang membolehkan anda membuat papak sendiri. Kelemahan utama struktur monolitik adalah masa pemejalan yang panjang hingga 28 hari. Oleh itu, pembinaan lebih baik dilakukan pada musim panas, kerana kelembapan dan fros yang tinggi memanjangkan masa pengerasan.
Penting juga untuk mengambil kira bahawa papak konkrit monolitik dengan isipadu 2 m³, direndam di dasar, akan lebih berat daripada papak inti berongga atau bergaris, yang mesti diambil kira semasa mengira daya galas struktur sokongan bangunan. Untuk mengangkat papak, diperlukan kren tugas berat. Atas sebab inilah papak monolitik besar, berbeza dengan panel PC dan papak berbentuk U, dihasilkan secara langsung di tapak pembinaan.
Apakah jenis papak lantai konkrit bertetulang monolitik: saiz dan harga produk
Lantai monolitik dibahagikan kepada 3 jenis, masing-masing mempunyai perbezaan tersendiri, kaedah pemasangan dan kos akhir setiap keping. Terdapat pelbagai jenis:
- rasuk;
- tanpa bezel;
- bergaris.
Jenis balok yang bertindih, bergantung pada permukaan mana kepingan - licin atau ribbed, juga berbeza dengan sifat penggunaan struktur. Papak dengan permukaan bergaris diletakkan tegak lurus ke tepi, dan produk halus dipasang tegak lurus dengan papak. Kekakuan bangunan siap juga bergantung pada peletakan yang betul. Dalam pembinaan, 2 jenis rasuk digunakan:
- yang utama yang mempunyai diameter keratan rentas yang lebih besar;
- kecil - dengan diameter yang lebih kecil.
Untuk rentang ukuran yang signifikan, lantai dengan jarak tiga meter digunakan. Rasuk konkrit bertetulang monolitik diletakkan di dinding, yang kemudian disambungkan ke papak konkrit bertetulang utama dan juga diperkuat. Biasanya balok diletakkan pada jarak 1.3-5 m antara satu sama lain. Untuk mencapai ketegaran yang lebih besar, mereka juga dipasang pada tali pinggang konkrit bertetulang menggunakan sauh. Jenis balok tumpang tindih digunakan apabila sangat mustahak untuk mendapatkan siling yang sekata, yang sangat penting bagi bangunan kediaman. Harga balok bertetulang sehingga 6 m bermula dari 1213 rubel. sehelai.
Lajur dengan huruf besar yang dibuat dalam bentuk piramid terbalik digunakan untuk membuat lantai bukan gelang. Bahagian pin penguat ialah 8-12 mm. Modal dibezakan dengan pelepasan kelengkapan di kedua-dua belah pihak, yang pada gilirannya, memasuki papak dan menambah kekakuan pada struktur. Ketebalan span tanpa bingkai adalah 1 / 35-1 / 30 berbanding panjang produk itu sendiri.
Baru-baru ini, lajur dan papak konkrit dilekatkan pada masa yang sama. Harga secara langsung bergantung pada ukuran pertindihan dan berkisar antara 300 hingga 2500 rubel. untuk 1 m².
Tidak seperti papak ribbed, jenis lantai caisson dicirikan oleh fakta bahawa di sini tulang rusuk terletak di kedua arah. Kelebihan utama menggunakan lantai jenis ini ialah berat struktur yang dikurangkan, kekuatan lenturan yang lebih besar disediakan oleh mesh ribbed.
Semasa pembinaan, di persimpangan lajur dan lantai, untuk menjadikan struktur lebih dipercayai, tetulang digunakan, di mana pin tiang dimasukkan ke dalam rongga bekisting. Diameter keratan rentas pin sekurang-kurangnya 8 mm.
Kelebihan dan kekurangan utama penggunaan papak monolitik
Papak lantai monolitik, kerana ciri-cirinya, sering digunakan dalam pembinaan bangunan dengan reka bentuk seni bina yang kompleks dan sekiranya strukturnya mempunyai parameter yang tidak standard dan dicirikan oleh sudut dan bentuk yang kompleks. Kelebihan utama monolit adalah ketegaran bangunan yang meningkat, oleh itu ia digunakan dalam kes-kes apabila diperlukan untuk melaksanakan bangunan yang dirancang untuk beban berat.
Sebagai contoh, adalah relevan untuk menggunakan paparan monolitik dalam pembinaan bengkel industri, di mana tidak hanya terdapat beban statik, tetapi juga dinamik yang disebabkan oleh getaran berterusan peralatan. Kelebihan lain produk monolitik:
- Penjimatan semasa penghantaran. Oleh kerana saiznya besar, papak dipasang terus di tapak pembinaan, yang menjimatkan logistik, serta kerja memuat dan memunggah. Selain itu, tidak perlu melengkapkan gudang untuk penyimpanan.
- Ketersediaan bahan binaan yang digunakan untuk pembuatan. Beton selalu dapat dibeli atau dibuat dengan segera di tapak pembinaan, dan sisa logam besi sekunder juga sesuai untuk pengukuhan.
- Fasilitasi kerja hiasan dalaman. Berkat penggunaan bekisting, permukaan papak yang lebih rendah akan mempunyai permukaan yang rata dan licin, yang membolehkan anda melakukan kerja penamat dengan cepat dengan kos yang minimum.
- Peningkatan ciri penebat haba. Ketiadaan sendi di antara pelat meningkatkan keupayaan bukan sahaja untuk menahan haba, tetapi juga menyerap bunyi.
- Hayat perkhidmatan yang panjang. Kerana kenyataan bahawa konkrit melindungi batang keluli dari kakisan, yang seterusnya meningkatkan prestasi konkrit, bangunan akan tetap kuat untuk jangka masa panjang. Walau bagaimanapun, harus diingat bahawa jenis pertindihan lain mempunyai ciri-ciri ini.
- Pelbagai saiz dan bentuk. Oleh kerana papak monolitik dapat diberi bentuk apa pun dengan menggunakan bekisting, penggunaannya memungkinkan Anda merancang balkoni pencahayaan dari bentuk bulat, dan juga membuat selekoh yang lebih halus di fasad bangunan.
Bagi kekurangan, yang utama dianggap sebagai pekerjaan yang sukar secara teknikal, kerana paparan monolitik dimensi yang diperlukan dengan ciri kekuatan hanya dihasilkan oleh pakar berpengalaman dengan kemahiran yang sesuai. GOST tidak menyediakan standard untuk produk konkrit buatan sendiri. Parameter keseluruhan produk dikira secara berasingan dalam setiap kes, masing-masing, kos tambahan harus diperuntukkan untuk membayar kerja pakar penuangan. Kelemahan lain dari papak monolitik:
- Berat yang cukup besar. Ketiadaan lompang dan dimensi besar produk memberikan jisim yang besar kepada produk siap, yang memerlukan pembentukan asas yang lebih kukuh.
- Masa penyembuhan yang lama. Mengikut piawaian GOST, tempoh pengerasan konkrit pada formwork adalah 28 hari, yang memperpanjang tempoh pembinaan.
Agar tidak keliru ketika membeli papak untuk pembinaan, pertama sekali, selain ukuran, anda perlu bertanya kepada penjual mengenai asal barang dan reputasi pengeluar. Penting untuk memeriksa tahap konkrit dan kualiti panel siap. Anda tidak boleh membeli produk dengan pelanggaran integriti yang jelas, yang akan mengurangkan daya tahan struktur. Adalah mustahak untuk memastikan bahawa anda mempunyai pasport produk, dan kemudian, berdasarkan dimensi yang diperlukan, pilih bilangan plat. Perkara utama adalah untuk memahami bahawa kestabilan bangunan siap bergantung pada kualiti lantai.