Tempat tidur adalah elemen utama bilik tidur. Tahap keselesaan, fungsi tempat tidur dan kualiti tidur bergantung pada versi model. Pilihan tempat tidur harus didekati dengan tanggungjawab khusus, terutama ketika datang ke tempat tidur anak. Reka bentuk berkualiti tinggi, kuat dan tahan lama dengan penampilan estetik akan mahal. Kos untuk katil kanak-kanak sendiri akan lebih murah, dan hasilnya akan melebihi semua jangkaan.

Kandungan
- 1 Katil kanak-kanak DIY: keperluan reka bentuk asas
- 2 Katil DIY: dimensi, projek dan gambar rajah, lakaran dan lukisan
- 3 Dimensi buaian bergantung pada jenis pembinaan
- 4 Bahan untuk membuat katil bayi klasik dari usia 5 tahun
- 5 Cara membuat katil bayi anda sendiri untuk bayi baru lahir
- 6 Membuat buaian kayu tunggal dari umur 3 tahun
- 7 Pembuatan struktur dari 3 tahun dengan sisi: katil loteng kanak-kanak
- 8 Cara membuat katil transformasi sendiri: urutan tindakan
Katil kanak-kanak DIY: keperluan reka bentuk asas
Boks bayi yang dibuat sendiri untuk kanak-kanak mesti memenuhi syarat berikut:
- perabot ini harus dibuat secara eksklusif dari bahan semula jadi dan mesra alam;
- katil mesti mempunyai struktur yang boleh dipercayai, kuat dan stabil;

- produk tidak boleh mengandungi sudut tajam, tonjolan;
- permukaan semua komponen struktur mestilah licin, tanpa kerepek dan kekasaran;
- adalah perlu bahawa ukuran tempat tidur sesuai dengan ketinggian dan binaan kanak-kanak (dengan margin 25-30 cm panjang);
- struktur mesti mengandungi elemen pagar dan alat lain yang tidak termasuk kemungkinan terjatuh;
- katil untuk kanak-kanak harus mempunyai fungsi yang tinggi, yang dinyatakan dengan adanya laci, rak dan ceruk.
Tempat tidur kanak-kanak yang diperbuat daripada kayu mempunyai beberapa kelebihan:
- anda boleh yakin dengan kualiti bahan yang digunakan untuk pembuatannya, kerana banyak produk kedai kekurangan maklumat mengenai parameter reka bentuk;
- projek katil dibuat mengikut parameter individu, dengan mengambil kira keperluan dan keinginan peribadi;
- semasa pembuatan produk, adalah mungkin untuk memeriksa struktur kekuatan dan kestabilannya;
- kos kewangan yang besar tidak diperlukan;
- perabot buatan tangan memberikan keseronokan dan kesenangan estetika yang tiada tandingannya.

Pertama kali dibeli tilam, sesuai dengan parameter anak, ukuran tempat tidur yang tepat akan bergantung padanya
Katil DIY: dimensi, projek dan gambar rajah, lakaran dan lukisan
Hari ini katil kanak-kanak dipersembahkan dalam pelbagai jenis. Mereka berbeza dalam jenis pembinaan, dimensi, jumlah elemen penyusun, kehadiran alat perabot tambahan dan bahan pembuatannya. Walau bagaimanapun, tidak setiap model dapat dilakukan di rumah.
Model paling popular yang boleh anda buat adalah katil kayu do-it-yourself yang klasik. Foto-foto itu dengan jelas menunjukkan pilihan untuk produk dengan dan tanpa sisi, katil loteng dan susun tingkat. Di laman web khusus di Internet, anda boleh menemui pelbagai gambar tempat tidur kanak-kanak dan dimensi setiap elemen struktur individu.
Katil single klasik untuk kanak-kanak adalah yang paling senang dibuat. Ia membawa beban fungsional minimum, kerana hanya dapat dilengkapi dengan laci dobi. Reka bentuknya terdiri dari bingkai, kepala tempat tidur, papan kaki, pangkalan, dinding sisi dan kaki, yang jelas ditunjukkan oleh gambar tempat tidur bayi. Ukuran bingkai, untuk pembuatan balok kayu yang digunakan, bergantung pada dimensi tempat tidur, yang ditentukan oleh parameter tilam.
Pangkalannya boleh kukuh (dari kepingan papan serpai) atau kisi dalam bentuk lamela dengan lubang pengudaraan. Pilihan kedua lebih disukai. Papan kaki dan papan kepala biasanya diperbuat daripada kayu padu, papan lapis atau papan serpai. Struktur boleh mempunyai pelbagai bentuk.
Penting! Ketinggian kepala katil mestilah lebih besar daripada ukuran papan kaki.
Untuk memagar tempat tidur, dinding sisi depan dan belakang digunakan dalam bentuk dinding padu atau kisi. Kaki katil dibuat khas atau dibeli dari kedai. Dalam kes pertama, mereka boleh dilampirkan secara terpisah atau merupakan kesinambungan dari struktur utama satu bahagian.
Tempat tidur loteng dianggap lebih berfungsi. Tempat tidur terletak di tingkat atas. Di bawahnya, anda boleh mengatur sistem penyimpanan lengkap dengan meletakkan peti laci, almari pakaian atau rak. Pembentukan struktur sedemikian memerlukan kemahiran dan kebolehan dalam pengeluaran perabot. Untuk dua orang anak, anda boleh membuat struktur dua peringkat, penciptaannya juga memerlukan pengalaman tertentu dari tuan.
Dimensi buaian bergantung pada jenis pembinaan
Setiap jenis katil bayi mempunyai dimensi standardnya sendiri. Bayi berumur sehingga 6 bulan boleh tidur di dalam buaian kompak, yang menyerupai kereta bayi. Dimensi tempat tidur adalah 80x40 cm. Penyimpangan kecil disediakan untuk model reka bentuk yang berbeza.
Ukuran tempat tidur untuk bayi yang baru lahir dengan reka bentuk standard adalah 60x120 cm. Dinding sisi boleh ditanggalkan. Ketinggian tempat tidur yang relatif dengan lantai dapat diubah, yang memungkinkannya menyesuaikan diri dengan usia anak. Boks buaian sendiri dengan lebar 70 cm dan panjang 130 cm. Reka bentuknya dilakukan dengan pagar pelindung yang boleh ditanggalkan. Dimensi tempat tidur gelongsor, alat yang membolehkan anda mengubah ukurannya dengan pertumbuhan anak, dapat mencapai panjang 160-170 cm.
Nasihat berguna! Untuk kanak-kanak yang berputar dalam mimpi, disyorkan untuk memilih produk dengan lebar sekurang-kurangnya 80 cm.
Keperluan tempat tidur untuk anak remaja berbeza dengan keperluan tempat tidur untuk pelajar yang lebih muda. Gaya hidup dan irama hidup anak berubah. Dia bilik menjadi tempat untuk menerima tetamu.Ukuran standard katil remaja adalah 90x180 cm. Walau bagaimanapun, banyak ibu bapa menolak pemerolehan sedemikian, kerana reka bentuknya akan kecil dalam beberapa tahun. Pilihan terbaik adalah katil dengan ukuran 90x200 cm. Tempat tidur dewasa seperti itu bukan sahaja selesa, tetapi juga tahan lama.
Untuk dua orang anak, pilihan terbaik adalah katil dua tingkat... Ketinggian struktur mencapai 1.5-1.8 m, bergantung pada ketinggian siling di dalam bilik. Dimensi luar tempat tidur mungkin berbeza. Tempat tidur, yang terletak di tingkat kedua, memiliki dimensi 80x200 atau 90x200 cm. Tempat tidur di tingkat bawah boleh lebih pendek 20-30 cm.
Bahan untuk membuat katil bayi klasik dari usia 5 tahun
Untuk pembuatan kerangka, kayu padu harus digunakan. Oleh itu, lakukan sendiri katil kayu dicirikan oleh keselamatan, kekuatan, kebolehpercayaan, keramahan dan ketahanan persekitaran, tetapi dibezakan dengan harganya yang tinggi. Papan bermata lebih berpatutan. Papan perabot dalam bentuk piring kayu padat, dibuat dari batang kayu yang dilekatkan dari kayu semula jadi, telah membuktikan dirinya dengan baik. MDF ringan juga sesuai.
Nasihat berguna! Kayu padat berat tidak boleh digunakan kerana bahan tersebut akan menjadikan strukturnya berat dan tidak selesa untuk bergerak.
Untuk lamela, anda harus memilih bahan elastik. Papan lapis adalah penyelesaian yang baik. Papan partikel boleh digunakan untuk katil untuk kanak-kanak dari 2 tahun. Papan kepala dan papan kaki sering diperbuat daripada MDF atau papan serpai. Bahan ini juga dapat digunakan untuk pembuatan laci, rak, panel hiasan. Untuk penghasilan buaian yang terbuat dari kayu, diperlukan satu set alat minimum, yang terdiri dari jigsaw elektrik, gerudi dan penggiling.
Sebagai tambahan kepada bahan utama, anda memerlukan elemen tambahan:

- pengikat dengan diameter berbeza;
- gam joiner;
- sudut logam perabot khas;
- panel panduan untuk laci;
- kelengkapan;
- kertas pasir;
Artikel berkaitan:
Katil diy: langkah pemasangan untuk pilihan reka bentuk yang berbeza
Varieti pembinaan. Dimensi optimum. Bahan pembuatan. Urutan memasang katil yang terbuat dari kayu, papan serpai dan logam.
- pita kertas;
- noda;
- cat;
- varnis.
Cara membuat katil bayi anda sendiri untuk bayi baru lahir
Membuat buaian bayi klasik adalah proses yang mudah. Lukisan dimensi struktur kayu tradisional boleh didapati dari Internet. Langkah pertama adalah membeli tilam, ukurannya akan menentukan parameter tempat tidur.
Ukuran standard produk adalah 60x120 cm. Ketinggian sisi struktur, bermula dari lantai, mencapai 90 cm. Bahagian belakang kaki akan mempunyai ukuran yang lebih besar sama dengan 110 cm. Lebih baik jika tempat tidur terletak pada ketinggian 30-35 cm, yang akan membolehkan bayi 2-3 bertahun-tahun untuk memanjatnya tanpa halangan. Jarak antara bar menegak di kepala katil dan sisi katil hendaklah 10-12 cm.
Untuk pembuatan tali elemen dan sisi tempat tidur untuk bayi, papan dengan bahagian 35x70 mm digunakan. Tempat tidur di mana tilam akan diperbuat daripada enam balok dengan bahagian 30x50 mm. Lubang dengan kedalaman 25 mm dibuat dalam balok panjang untuk mengikat bingkai dengan lonjakan buta. Panjang anggota silang sama dengan lebar tilam tolak dua kali lebar balok. Untuk nilai yang dihasilkan, tambahkan nilai yang sama dengan jumlah dua kedalaman sarang.
Nasihat berguna! Untuk menghilangkan kesalahan dan mempercepat proses, tanda dibuat sekaligus pada semua bahagian yang serupa.
Cara membuat katil bayi untuk bayi yang baru lahir: urutan tindakan
Di kedua tepi balok kayu, duri dibuat (duri melalui digunakan untuk menghubungkannya). Lubang seperti itu dibuat dengan gergaji bulat, yang dapat disesuaikan pada ketinggian pintu masuk. Lonjakan mestilah setebal sama dengan soket. Prosedur ini adalah sama untuk semua bahagian yang serupa. Lebihan kayu dikeluarkan dengan gergaji.
Seterusnya, bahagian kerusi dilekatkan. Penting di sini untuk memantau keseimbangan semua sudut, yang seharusnya mempunyai nilai sama dengan 90 °. Untuk pembuatan batang katil, slats dengan bahagian 20x20 mm digunakan. Mereka mesti dilekatkan pada anggota silang punggung dan sisi dengan menggunakan tenon buta tunggal. Setelah bingkai belakang dipasang, panjang rod dikira, yang mana anda perlu menambah panjang lonjakan dua kali ganda.
Setelah membuat semua elemen tempat tidur, permukaan setiap bahagian mesti diampelas dengan teliti. Rasp itu melengkapkan semua sudut dan sudut yang tajam. Langkah seterusnya adalah melekatkan semua butiran sandaran di bahagian atas. Diperlukan untuk mengawasi segi empat tepat struktur.
Bahagian sisi katil dibuat, ukurannya berbeza. Palang melintang yang lebih rendah di bahagian belakang disambungkan dengan unsur-unsur ini. Panjang pintu belakang adalah sama dengan panjang kerusi dengan kelonggaran 1 cm. Untuk mendapatkan ketinggian sisi, perlu mengurangkan ketinggian bilah melintang bawah dari 90.
Untuk mendapatkan jalur yang boleh ditanggalkan di bahagian depan, panjang pinggirannya harus 15 cm lebih pendek daripada panjang elemen-elemen ini di sisi kedua. Lonjakan pada mereka dibuat menggunakan algoritma yang sama yang digunakan untuk pembuatannya di bahagian belakang.
Sisi dilekatkan ke ujung sedemikian rupa sehingga semua elemennya saling tegak lurus antara satu sama lain. Langkah seterusnya adalah memasang sisi dan belakang struktur menggunakan skru mengetuk sendiri untuk pemasangan. Kemudian penghad yang boleh dilepaskan untuk katil bayi dipasang dengan tangan anda sendiri. Ia dilekatkan pada papan luar dengan jalur elastik. Setelah selesai pemasangan, tempat tidur ditutup dengan papan lapis 3-4 mm, yang dipasang dengan kancing kecil.
Membuat buaian kayu tunggal dari umur 3 tahun
Susunan struktur untuk kanak-kanak merangkumi pangkalan dan sandaran belakang, yang ditunjukkan dengan jelas dalam lukisan katil. Lebar dan panjang produk ditentukan dimensi tilam... Bahagian bawah tempat tidur tidak boleh lebih dari 35 cm dari lantai sehingga anak dapat dengan mudah memanjatnya.
Rangka dibuat dari dua balok, yang terbuat dari papan bermata berukuran 50x100 mm. Panjang produk yang diperlukan diukur dengan ukuran pita, yang ditunjukkan dengan pensil. Menurut tanda, papan dengan ukuran tertentu digergaji menggunakan jigsaw dalam jumlah dua keping. Lem digunakan pada sisi setiap bar. Dengan menggunakan skru penoreh diri, jalur 25x50 mm dipasang di tempat-tempat ini untuk memasang lamela, dan hendaklah 10 cm lebih pendek daripada palang.
Bagaimana penyediaan asas untuk tilam katil bayi dari usia 2 tahun? Untuk ini, papan dipotong dari bilah (20x20 mm), panjangnya sesuai dengan lebar tilam. Jumlah mereka ditentukan berdasarkan pengisian ruang pangkalan yang lengkap. Produk dengan penekanan diikat selari antara satu sama lain dengan bantuan skru mengetuk sendiri ke jalur balok silang. Langkah di antara mereka tidak boleh lebih dari 10 cm.
Penting! Topi skru penoreh sendiri harus masuk sepenuhnya ke palang kayu, meninggalkan kemurungan kecil, yang dipenuhi dengan campuran dempul.
Kemudian anda perlu mengisar semua lubang untuk pengikat.Pada bilah yang melampau, potongan dibuat untuk kaki katil, yang diperbuat daripada balok 50x50 mm dalam jumlah 8 pcs. Empat keping di bawah kepala katil mestilah lebih panjang daripada potongan di bawah papan kaki. Bahan kerja dilekatkan berpasangan dan dipasang dengan skru penoreh sendiri.
Penciptaan elemen sisi katil untuk kanak-kanak dari 3 tahun
Langkah seterusnya adalah menggunakan gerudi elektrik untuk membuat lubang pada dowels di papan dengan alur selebar 25 mm, yang digunakan untuk membuat kaki dan kepala struktur. Mereka digerudi di hujung jalur. Anda harus berhati-hati semasa membuat lubang, yang harus berada pada tahap yang sama di semua papan. Perlu bahawa kedalaman mereka sama, sama dengan ½ panjang papan.
Papan kepala dan papan tempat tidur boleh dibuat dari kepingan papan serpai atau MDF yang padat. Elemen pertama lebih panjang daripada yang kedua. Lebar bahagian ditentukan berdasarkan nilai parameter tilam ini, yang ditambahkan ketebalan dinding berganda dari palang longitudinal bingkai tempat tidur. Produk boleh mempunyai bentuk bahagian hujung yang berbeza, iaitu bulat atau bergelombang. Sekiranya elemen sisi tempat tidur dibuat dengan pagar, maka 25 mm lagi harus ditambahkan pada lebar produk.
Nasihat berguna! Setelah memotong produk dari papan serpai atau MDF, permukaannya harus ditampal dengan pita kertas, yang akan menghalang pembentukan kerepek.
Sekiranya papan kayu digunakan untuk membuat elemen sisi tempat tidur untuk kanak-kanak dari 2 tahun, maka urutan tindakan berikut diperlukan. Bahagian yang sama panjang dipotong dari batang dengan ukuran 25x50 mm. Mereka dimasukkan ke dalam alur papan menegak yang diisi dengan gam. Lubang untuk dowel dibuat di kaki. Mereka menampung elemen struktur sisi. Bahagian mesti ditekan dengan ketat, tidak termasuk herotan dan retakan.
Setelah membuat penyokong menegak elemen sisi, mereka harus diikat dengan bingkai di sekeliling perimeter untuk membuat atap kayu. Langkah terakhir adalah memasang balok rabung, yang akan menghubungkan pangkal struktur kediaman dengan tangan anda sendiri. Setelah semua butiran produk disiapkan, tiba masanya untuk pemasangan mereka. Sebelumnya, setiap elemen diperiksa untuk keripik dan alur, yang ditutup dengan campuran dempul, dan permukaannya diampelas hingga halus. Selanjutnya, semua bahagian dirawat dengan primer atau noda. Setelah kering sepenuhnya, permukaan produk ditutup dengan cat.
Pembuatan struktur dari 3 tahun dengan sisi: katil loteng kanak-kanak
Terdapat beberapa jenis katil loteng. Strukturnya boleh terletak pada empat penyokong, yang terpasang pada dinding atau siling. Pilihan pertama adalah yang paling senang dihasilkan. Stoknya diperbuat daripada kayu padu. Untuk penghasilannya, anda memerlukan papan yang dilekatkan atau dikalibrasi dengan bahagian 40 mm, batang 50x50 mm, jalur yang dililit selebar 35 mm dan tebal 10 mm.
Dari papan, bingkai tempat tidur loteng do-it-yourself diketepikan, yang pada setiap arah mempunyai dimensi dalaman yang lebih besar 20 cm daripada dimensi tilam. Bingkai dari palang disekat ke bahagian bawah kotak siram dari dalam. Pangkalan rak dibuat dari jalur nipis. Elemen mestilah 20 mm lebih pendek daripada dimensi dalaman kotak. Jalur terletak pada jarak 50-65 mm antara satu sama lain dan diikat ke bingkai dengan skru mengetuk sendiri.
Ketinggian pagar tempat tidur kanak-kanak dari usia 3 tahun dengan tangan mereka sendiri ditentukan berdasarkan ketebalan tilam. Papan buaian harus naik 15-20 cm di atasnya. Di lokasi tangga di pagar, jarak sekitar 80 cm dibuat. Untuk pembuatan sisi, disarankan untuk menggunakan panel hiasan yang terbuat dari MDF atau papan serpai. Anda juga boleh melampirkan tempat tidur dengan bingkai yang terbuat dari balok kayu dengan bahagian 25x25 mm.Raknya akan bersandar pada kayu di mana pangkalan rak berlabuh berada. Mereka diikat dengan ikatan ke kotak yang menutupnya.
Nasihat berguna! Untuk mengelakkan tepi tajam palang masuk ke dalam tilam dan tidak merosakkan penutup tilamnya, ia mesti diketuk.
Stok dipasang dengan sambungan skru atau sudut logam ke bahagian atas. Untuk kebolehpercayaan, penyokong dipasang dengan rel dari hujungnya.
Organisasi zon bawah katil kanak-kanak dari 3 tahun dengan sisi
Di ruang kosong yang terbentuk di bawah katil loteng do-it-yourself, anda boleh memuatkan almari pakaian yang luas. Pintu dipasang paling baik di sisi struktur. Dinding kedua dalam kes ini akan menjadi titik tumpu tambahan. Di ruang kosong yang tinggal, anda boleh memasang rak dengan rak terbuka atau meja. Tempat tidur kanak-kanak dengan laci sangat popular, yang memenuhi ruang bawah tempat tidur.
Anda juga boleh meletakkan kabinet membujur di ruang kosong. Panel sokongan sisi akan mengalami tekanan minimum, dan ruang tidur tidak akan mengganggu akses percuma ke kabinet. Dindingnya dipasang dengan cara yang sama untuk kedua pilihan. Satu bahagian luar dijahit dengan papan serpai berlapis, yang mana rak mesti dilampirkan menggunakan pengesahan. Kemudian panel lurus dipasang, yang digunakan untuk menggantung pintu.
Ruang sisi sisi segi empat tepat yang dihasilkan dapat dibahagikan dengan partisi mendatar dan menegak ke dalam zon mana pun dengan laci dan rak terbuka. Di sini adalah wajar untuk ditetapkan meja, atas meja yang diperbuat daripada papan serpai berlapis. Ini hanya boleh dilakukan dengan ketinggian tempat tidur yang mencukupi. Salah satu panel sisi struktur akan berfungsi sebagai titik tumpu. Pilihan yang berbeza ditunjukkan dalam foto katil anak-anak yang diperbuat daripada kayu.
Nasihat berguna! Untuk penjimatan ruang tambahan, permukaan papan serpai berlamina boleh ditarik atau dilipat.
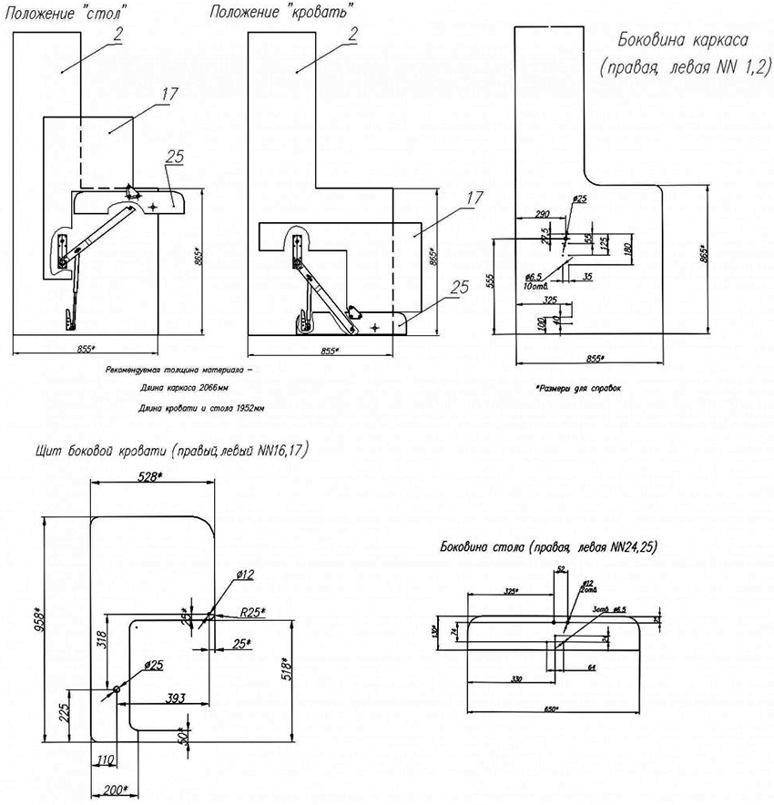
Cara membuat katil transformasi sendiri: urutan tindakan
Tempat tidur lipat boleh ubah terdiri daripada tiga elemen utama: tempat tidur, kotak dan mekanisme mengangkat. Dimensi tempat tidur adalah berdasarkan usia. Walau bagaimanapun, perlu memberikan margin yang besar, dengan mengambil kira pertumbuhan anak itu. Sebagai bahan untuk membuat buaian dengan tangan anda sendiri, anda boleh menggunakan kayu semula jadi, MDF atau papan serpai. Pilihan terakhir adalah yang termurah, memberikan struktur dengan berat badan rendah.
Kotak mesti cukup kuat untuk menahan beban dari tempat tidur bergerak dan mekanisme angkat. Ia terdiri daripada papan skirting, panel belakang dan jalur berhenti. Ukuran kotak dikira berdasarkan ukuran tilam dan tinggi kepala katil. Semua bahagian dipasang di lantai dan diperbaiki dengan skru mengetuk sendiri. Kotak itu dipasang di lantai atau pangkalan dan diikat ke dinding dengan sudut logam.
Tempat tidur tilam mestilah mudah diangkat dan dipasang pada kedudukan tegak. Rangka ortopedik buatan kilang sangat sesuai sebagai bahagian bergerak. Ia dilengkapi dengan kaki, ketinggiannya disesuaikan dengan dimensi yang diperlukan. Untuk mengelakkan tilam bergeser ke arah yang berlainan di sepanjang perimeter bingkai, diperlukan untuk membuat sisi dari papan kayu berkualiti tinggi.
Nasihat berguna! Selain itu, disarankan untuk memasang sistem penyeimbang atau penyerap kejutan gas.
Mekanisme mengangkat boleh dibuat secara bebas dari trunnion dengan galas atau dari langsir garaj. Pilihan yang lebih dipercayai ialah membeli kit kilang. Mekanisme mesti dipasang pada kotak dan tempat tidur.Bahagian depan tempat tidur dalam kedudukan tegak boleh dihiasi di bawah almari pakaian dengan pintu tiruan dengan pegangan atau membuat permukaan cermin monolitik.
Hari ini, di Internet, terdapat gambar terperinci dengan dimensi pelbagai reka bentuk untuk katil bayi. Mempunyai kemahiran yang minimum dan mempunyai keinginan yang besar untuk menggembirakan anak anda, anda boleh membuat katil tidur yang unik dengan tangan anda sendiri.