Pasar perabot moden dibezakan oleh pelbagai reka bentuk yang digunakan untuk tujuan yang berbeza. Rak dinding tidak terkecuali, tetapi tidak mustahil untuk mencari pilihan yang sesuai dengan bahagian dalaman tertentu. Dalam kes ini, anda boleh membuat pesanan untuk pengeluaran reka bentuk individu atau memasangnya sendiri. Tetapi pertama-tama anda perlu membiasakan diri dengan jenis rak yang biasa.
Kandungan
- 1 Cadangan untuk memilih rak yang betul untuk dinding
- 2 Bahan apa yang digunakan untuk membuat rak buat sendiri
- 3 Rak dinding: jenis reka bentuk yang paling biasa
- 4 Cara membetulkan rak dinding buatan sendiri: foto
- 5 Rak dinding: alat yang diperlukan untuk membuat
- 6 Apa yang perlu anda pertimbangkan semasa membuat gambar rak
- 7 Memasang rak kayu klasik dengan tangan anda sendiri
- 8 Rak dinding sudut DIY: algoritma pemasangan
- 9 Cara membuat rak gantung: reka bentuk bulat
- 10 Cara membuat rak dinding sendiri
- 11 Cara membuat rak paip dengan tangan anda sendiri
- 12 Rak dinding DIY untuk buku: menyediakan alat dan bahan
- 13 Membuat rak kayu untuk bunga dengan tangan anda sendiri
- 14 Rak TV dinding papan lapis DIY
- 15 Penyelesaian tersuai: rak palet pembinaan
- 16 Ciri-ciri hiasan struktur dinding: cara menghias rak
Cadangan untuk memilih rak yang betul untuk dinding
Rak yang dipasang di dinding adalah alternatif yang baik untuk struktur kabinet besar yang diperbuat daripada kayu, papan lapis dan bahan lain. Salah satu kelebihan utama perabot tersebut ialah ia tidak memakan banyak ruang. Ini menjimatkan ruang lantai yang boleh digunakan. Secara visual, produk sedemikian kelihatan lebih menarik daripada kabinet standard.
Rak kayu kelihatan hebat di bahagian dalaman moden (contohnya, berteknologi tinggi). Mereka boleh dibeli dibongkar. Pemasangan dilakukan secara bebas. Sekiranya perlu, produk dibuat dengan tangan. Pilihan kedua membolehkan anda menjimatkan kewangan dan membawa keaslian ke bahagian dalam bilik.
Rak yang dipasang di dinding boleh dipasang di mana-mana bilik. Ini boleh menjadi ruang tamu, bilik tidur, dapur atau bilik mandi. Reka bentuk buatan sendiri juga sesuai untuk lorong. Dalam kes ini, mereka boleh disesuaikan agar sesuai dengan kasut.
Mula-mula anda perlu menentukan rak yang akan digunakan. Ini akan membolehkan anda mengira dimensi struktur yang diperlukan, pilihan pemasangan, dan lain-lain. Rak rumah boleh direka untuk menyimpan buku atau pinggan mangkuk yang indah. Selalunya, reka bentuk seperti itu digunakan untuk tanaman dalaman.
Catatan! Di bilik mandi, rak buatan sendiri boleh disesuaikan untuk menampung kosmetik. Dalam kes ini, tidak perlu pengikat bertetulang. Bilik mandi dicirikan oleh kelembapan udara yang tinggi, oleh itu, bahan untuk produk mesti mempunyai ketahanan yang baik terhadap faktor ini.
Dalam beberapa keadaan, rak dibuat sebagai objek seni yang bebas. Penyelesaian reka bentuk sedemikian membolehkan anda menghias bilik dengan cara yang asli, menjadikannya lebih selesa dan selesa. Dalam kes ini, tidak perlu menyusun struktur yang kukuh. Bahan untuk elemen reka bentuk bebas dipilih bergantung pada gaya bilik dan pilihan individu pemiliknya. Untuk membuat rak dinding, anda perlu memberi perhatian kepada perkara berikut:
- beban pada struktur;
- pilihan penetapan;
- kefungsian.
Bahan yang digunakan untuk pembuatan produk ini mesti sesuai dengan tujuan ruangan di mana pemasangannya dirancang. Di samping itu, perlu ditentukan dalam reka bentuk struktur apa yang akan dibuat.
Bahan apa yang digunakan untuk membuat rak buat sendiri
Sebelum meneruskan pemasangan dan pemasangan rak, anda mesti memilih bahan dari mana ia akan dibuat. Terdapat banyak pilihan dalam kes ini. Selalunya, yang berikut digunakan untuk pembuatan elemen dalaman seperti:

Rak dinding adalah alternatif untuk struktur besar yang diperbuat daripada kayu, papan lapis dan bahan lain
- kayu;
- kaca;
- plastik;
- logam;
- Papan cip;
- drywall.
Kayu. Bahan ini adalah pilihan klasik dan paling kerap digunakan untuk memasang rak. Ini disebabkan oleh kemudahan pemprosesan dan penampilan kayu yang rapi. Oleh itu, bahan seperti itu sangat sesuai untuk membuat rak di dinding dengan tangan anda sendiri. Produk kayu mempunyai satu kelemahan - daya tahan lemah terhadap kelembapan yang tinggi. Oleh itu, tidak digalakkan menggunakan reka bentuk sedemikian di bilik mandi.
Kaca. Ia digunakan apabila perlu untuk menghiasi bahagian dalam bilik dengan gaya moden. Ia sesuai dengan nada sejuk: putih, kelabu dan hitam. Jauh lebih sukar untuk membuat rak dari bahan kaca daripada kayu. Dalam keadaan seperti ini, anda perlu membeli alat khas untuk memotong kaca dan menguasai asas-asas bekerja dengannya.
Plastik. Produk plastik mempunyai satu kelebihan - harga yang berpatutan. Pasar untuk reka bentuk sedemikian penuh dengan pelbagai peranti. Anda boleh membuat banyak rak sendiri dari plastik. Foto produk akan membantu anda memilih reka bentuk dan saiz yang diingini. Perabot plastik dipasang di bilik mandi dan balkoni. Ini kerana mereka tahan kelembapan.
Logam. Rak yang diperbuat daripada bahan ini dibezakan dengan kekuatan tinggi dan penampilannya yang rapi. Elemen penempaan dapat ditambahkan pada reka bentuk sedemikian.
Catatan! Untuk pengeluaran sendiri struktur logam sepenuhnya, anda perlu membeli peralatan kimpalan. Sekiranya logam dirancang untuk digabungkan dengan kayu atau beberapa bahan lain, maka pengikat khas digunakan.
Papan cip. Bahan ini mempunyai kos yang berpatutan dan digunakan untuk pemasangan pelbagai perabot, termasuk reka bentuk rak.Teknologi pembuatan dalam kes ini menyerupai algoritma tindakan yang digunakan ketika memasang produk kayu. Papan serpai, seperti kayu, tidak tahan terhadap kelembapan. Alternatif untuk struktur papan serpai adalah rak papan lapis. Tidak sukar untuk membuat produk dari bahan ini dengan tangan anda sendiri, kerana prosesnya agak mudah.
Papan Kering. Bahan ini sangat popular dalam pembinaan. Ia digunakan untuk banyak tujuan, termasuk ketika perlu mengaturnya rak dalam bentuk ceruk. Reka bentuk sedemikian popular, dan organisasi mereka tidak memerlukan kos kewangan yang besar.
Semasa memilih bahan untuk pembuatan rak, anda harus fokus bukan hanya pada aspek kewangan. Adalah sangat penting untuk menilai kemahiran dan kebolehan anda sendiri dan, berdasarkan panduan ini, memilih jenis produk yang sesuai.
Rak dinding: jenis reka bentuk yang paling biasa
Keserbagunaan alat moden membolehkan anda membuat produk dari sebarang kerumitan. Sebelum anda mula berkumpul rak, anda perlu memutuskan jenisnya. Kebolehcapaian operasi mereka bergantung pada ciri reka bentuk elemen dalaman ini. Mari pertimbangkan jenis rak yang paling biasa.
Piawai. Struktur segi empat tepat klasik yang dipasang di dinding adalah contoh gaya yang dikenali umum. Rak buatan sendiri jenis ini dianggap paling popular. Untuk menyelesaikannya tidak akan sukar bagi mana-mana orang yang tidak mempunyai pengetahuan dan kemahiran khas.
Sudut. Produk sedemikian berbeza kerana mempunyai struktur segitiga. Mereka terpaku di sudut-sudut bilik. Pengikat dipasang di kedua dinding. Pakar mengesyorkan menggunakan rak sedemikian jika anda perlu menyimpan sebanyak mungkin kawasan berguna di dalam bilik. Selalunya, produk sudut boleh didapati di bilik mandi atau dapur.
Berengsel. Sudah menjadi kebiasaan memasang rak sedemikian hanya pada permukaan rata. Sebagai peraturan, mereka berada di atas rata-rata. Ini diperlukan untuk menjimatkan ruang bilik. Foto rak berengsel membolehkan anda menilai kelebihannya berbanding versi klasik.
Luar. Struktur jenis ini paling kerap dipasang pada kaki dan tidak dilengkapi dengan pengikat tambahan. Dalam beberapa kes, mereka masih terpaku pada dinding, yang dapat meningkatkan kestabilannya dengan ketara.
Mod. Rak yang tidak biasa, elemen individu yang mempunyai dimensi yang unik. Arah mod dibuat banyak persamaan dengan abstraksi.
Maklumat berguna! Rak yang tidak biasa di dinding dapat menekankan gaya bilik dan memberikan keasliannya.
Eksklusif. Produk sedemikian dibuat dari pelbagai bahan yang ada. Dalam kes ini, semuanya bergantung pada imaginasi tuan. Bahan untuk pengeluarannya boleh menjadi palet pembinaan, bekas plastik, dll.
Cara membetulkan rak dinding buatan sendiri: foto
Pilihan penetapan bergantung pada peranti yang dimiliki produk. Faktor yang sangat penting yang mempengaruhi pilihan pengikat adalah bahan dari mana rak dibuat.
Struktur klasik, di mana bahan kayu digunakan, dipasang pada dinding dengan engsel. Adalah sangat penting untuk memperhatikan lebar produk: mestilah mencukupi, jika tidak, pemasangan engsel tidak akan berfungsi.
Untuk memperbaiki gelung, anda perlu menyediakan skru penoreh sendiri. Kaedah memasang rak ini ke dinding adalah paling tidak memerlukan tenaga kerja. Engselnya dilekatkan pada muka hujung rak. Selepas mengacaukan perlu menandakan lubang di dinding.Untuk melakukan ini, anda perlu melekatkan rak ke permukaan kerja.
Adalah sangat penting untuk memastikan bahawa struktur terletak dalam kedudukan mendatar yang tegas. Kemudian lubang dibuat di tempat tanda, dan paku dowel dimasukkan ke dalamnya. Selepas itu, rak digantung.
Terdapat pilihan pemasangan lain yang mempunyai kaedah pemasangan yang sedikit berbeza. Salah satunya memungkinkan penggunaan kurungan. Kaedah ini mudah dan membolehkan anda membuat rak di dalam bilik dengan cepat.
Kaedah paling menarik untuk memperbaiki rak kaca adalah tanpa sokongan. Dalam kes ini, elemen penetapan tersembunyi khas digunakan, yang terletak di badan rak. Untuk melakukan pengancing seperti itu, perlu mengebor lubang di bahagian akhir produk.
Walau bagaimanapun, tidak semua bahan dapat diperbaiki menggunakan kaedah tersebut. Sebilangan besar daripadanya tidak dirancang untuk menggerudi lubang. Kaca adalah contoh dalam kes ini. Oleh itu, bagaimana anda melindungi rak kaca? Ini adalah prosedur yang lebih kompleks yang memerlukan penjagaan dan ketepatan.
Artikel berkaitan:
Penyangkut dinding di lorong: kad pelawat setiap rumah
Cara memilih bentuk dan ukuran berdasarkan parameter lorong. Pilihan pemasangan. Produk buatan sendiri.
Pemasangan rak kaca: bagaimana membetulkannya sendiri
Untuk memperbaiki struktur kaca ke permukaan kerja, pengikat khas digunakan. Selalunya mereka terdiri daripada 2 bahagian. Kaca dipasang dan dijepit di antara mereka. Untuk pelindung, adalah kebiasaan menggunakan gasket yang terbuat dari bahan elastik. Bahagian bawah pemegang jenis ini dilengkapi dengan skru khas. Semasa mengetatkannya, ikat pinggang menutup kaca.
Catatan! Membuat rak kaca lebih sukar daripada membuat rak kayu. Untuk melakukan ini, anda memerlukan alat khas - pemotong kaca. Penting untuk diingat bahawa anda harus mengikuti arahan dengan jelas semasa membuat rak sedemikian dengan tangan anda sendiri. Foto struktur kaca buatan sendiri, serta video latihan akan membantu anda menilai kemampuan anda sendiri dengan betul.

Untuk membetulkan rak kaca gunakan pengikat khas "pelican"
Jenis pengikat kaca yang paling biasa adalah pengapit Pelican. Penjepit sedemikian mempunyai penampilan yang rapi, sebab itulah sering dipilih untuk memasang produk kaca. Ini boleh terdiri dari berbagai warna, yang memungkinkan anda memilih penahan sesuai dengan keunikan palet warna pada bahagian dalaman tertentu. Elemen ini digunakan untuk memasang rak kaca, julat ketebalannya bervariasi antara 8 hingga 34 mm.
Pengapit juga boleh digunakan untuk mengikat bahan lain. Walau bagaimanapun, dengan produk kaca, pengapit seperti organik mungkin. Untuk memasang rak dinding dengan tangan anda sendiri dari kaca, anda perlu membeli bahan dan klip itu sendiri. Sebaiknya beli kaca dengan bahagian tepi yang sudah siap. Setelah membeli semua elemen yang diperlukan, anda boleh terus ke pemasangan rak langsung.
Langkah pertama ialah memasang pengapit pada permukaan kerja. Di dinding, anda perlu membuat dua lubang di kedua sisi. Mereka harus sesuai dengan titik di mana rak buku kaca atau struktur lain yang menggunakan bahan serupa akan diperbaiki. Dowel dipasang di dalamnya.
Seterusnya, anda perlu mengeluarkan jalur hiasan dari pelekap pelekap, di mana terdapat 2 lubang. Setelah pengapit dipasang di dinding, masukkan kaca ke dalamnya dan ketatkan skru penyesuaian.
Rak dinding: alat yang diperlukan untuk membuat
Pemilihan alat adalah tahap awal yang sangat penting, di mana kemudahan dan kecekapan kerja akan bergantung. Untuk membuat kosong kayu, yang akan menjadi dasar rak, jigsaw elektrik paling sering digunakan. Sudah tentu, anda boleh menggunakan alat tangan, tetapi memerlukan lebih banyak masa untuk menyelesaikan bahagian tersebut.
Selepas memotong bahan kerja, anda perlu mengisarnya. Untuk melakukan ini, gunakan pengisar khas. Perlu diperhatikan bahawa lampiran mestilah dengan ukuran butiran yang berbeza - untuk kerja kasar, dan lebih lembut. Operasi manual ini boleh memakan masa beberapa jam.
Set alatan mungkin berbeza bergantung pada bahan apa yang telah dipilih sebagai pangkalan rak. Anda boleh membuat produk apa-apa kerumitan dengan tangan anda sendiri dari bahan sekerap.
Anda juga memerlukan gerudi elektrik untuk memasang rak. Alat ini sangat diperlukan dalam kes apabila papan serpai digunakan dalam pemasangan struktur. Pemutar skru atau pemutar skru biasa digunakan untuk mengetatkan skru.
Catatan! Pemutar skru biasa hanya digunakan apabila reka bentuk raknya ringkas dan tidak melibatkan banyak pengikat. Sekiranya terdapat sebilangan besar titik lekapan, tukang berpengalaman mengesyorkan menggunakan pemutar skru.
Untuk mengamankan elemen pemasangan, anda perlu membeli skru. Sudut rak juga dipasang menggunakan skru mengetuk sendiri. Sekiranya perlu, anda boleh menyembunyikan kepala skru di bawah palam khas. Barang-barang ini dipilih bergantung pada warna rak.
Kayu yang tidak dirawat mempunyai penampilan yang kurang rapi, jadi ia memerlukan penamat dengan cat dan bahan pernis. Lapisan lakuer juga meningkatkan ketahanan kelembapan bahan. Ia diaplikasikan ke rak menggunakan berus dari ukuran 40 hingga 80 mm. Alat lain yang mempermudah pemasangan struktur adalah segi empat sama. Ia menyelaraskan semua sendi sudut.
Apa yang perlu anda pertimbangkan semasa membuat gambar rak
Agar tidak melakukan kesalahan semasa pemasangan rak, disarankan untuk menyiapkan lukisan awal. Dalam rajah, semua ukuran dan bilangan pengikat mesti ditunjukkan.
Rak kayu dengan tangan anda sendiri boleh dibuat mengikut gambar individu, dan mengikut siap pakai, yang boleh didapati di Internet. Lukisan yang telah siap dapat diperbaiki, jika dikehendaki, dengan menambahkannya dengan parameter yang diperlukan.
Penting untuk diingat bahawa sebilangan bahan mempunyai batasan kekuatan. Sebagai contoh, rak boleh dibuat dari papan gentian 16 atau 18 mm, tetapi perlu dipertimbangkan bahawa jarak antara pengikat tidak boleh melebihi 1 meter. Jika tidak, struktur akan membengkokkan di bawah jisimnya sendiri dan berat objek yang terletak di atasnya. Perkara yang sama berlaku untuk rak papan lapis.
Kesukaran utama yang dihadapi oleh kebanyakan orang semasa membuat lukisan. terdiri dalam pemasangan unit individu. Untuk reka bentuk standard, diperlukan jumper yang dipasang di sudut. Dalam kes ini, untuk mengatur satu sambungan, diperlukan dua sudut. Salah satunya dipasang di sebelah kanan dan yang lain di sebelah kiri.
Memasang rak kayu klasik dengan tangan anda sendiri
Sebelum memulakan kerja, anda perlu menyediakan alat yang sesuai, dan anda juga perlu melakukan pemprosesan kayu. Untuk ini, seperti yang disebutkan di atas, mesin penggiling khas digunakan. Setelah menyediakan alat dan bahan itu sendiri, anda boleh mula menyusun strukturnya. Mari kita perhatikan lebih dekat proses ini.
Pertama sekali, angkat rak bawah di atas permukaan permukaan kerja kira-kira 1 cm.Selepas itu, anda boleh mula mengacaukan bahagian yang akan terletak di sisi ke pangkal. Semasa memasang rak buatan sendiri di dinding, anda perlu mengawal lokasi skru. Mereka harus memasuki kayu pada sudut tepat.
Pada peringkat seterusnya, anda perlu membalikkan benda kerja dan melakukan penanda yang sesuai dengan lokasi sel yang akan datang. Bilangan rak dalam kes itu ditentukan bergantung pada tujuan strukturnya.
Maklumat berguna! Sel boleh mempunyai dimensi yang sama atau berbeza. Semuanya bergantung pada kehendak individu tuan.
Seterusnya, anda perlu menghubungkan bahagian bawah rak dengan jumper, yang diskrukan pada kedudukan yang sama (terbalik). Kemudian anda boleh mula memasang muka sisi ke bar atas. Untuk membuat rak kayu dengan tangan anda sendiri, anda mesti mematuhi perintah yang diberikan dalam arahan dengan tegas.
Semasa mengikat elemen individu bingkai rak, strukturnya mungkin miring. Bagaimana anda membuat rak untuk mengelakkan ini? Pakar mengesyorkan menggunakan sudut tingkap rata semasa memasang produk. Mereka dipasang di bahagian bawah (di bahagian belakang). Sekiranya reka bentuk menyediakan pemasangan dinding belakang, maka dalam hal ini tidak perlu dilakukan tindakan ini.
Rak siap hendaklah diwarnai. Kemudian anda perlu menunggu sehingga ia kering, selepas itu anda boleh mula menggunakan komposisi varnis. Untuk melakukan lapisan berkualiti tinggi, perlu mencairkan varnis dengan pelarut dan menerapkannya dalam 3 lapisan. Penting untuk diingat bahawa penggunaan setiap lapisan berikutnya hanya dilakukan setelah lapisan sebelumnya kering.
Selepas pemasangan dan pengecatan, struktur siap dapat dipasang di permukaan kerja. Untuk melakukan ini, gunakan pelekap dinding khas untuk rak. Ini boleh menjadi engsel atau kurungan standard. Mekanisme pemasangan rak mesti diperhatikan untuk memastikan kebolehpercayaan produk yang diperlukan.
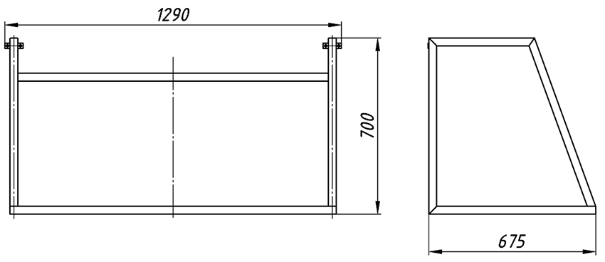
Rak dinding sudut DIY: algoritma pemasangan
Dari nama rak seperti itu menjadi jelas bahawa mereka dipasang di sudut-sudut bilik. Struktur ini boleh mempunyai ketinggian yang berbeza, dan mereka juga berbeza dalam jumlah tahap. Sebelum meneruskan pemasangan struktur kayu, disarankan untuk mempelajari video latihan, yang menunjukkan dan menerangkan dengan jelas setiap langkah pemasangan.
Pertimbangkan urutan pemasangan rak sudut standard. Pertama sekali, anda perlu menyediakan semua alat dan bahan yang diperlukan. Untuk membuat rak dengan tangan anda sendiri, bilah kayu dengan parameter 20x50 mm sesuai.
Untuk melengkapkan 2 bingkai, anda perlu memilih bilah genap, tanpa simpulan dan kecacatan lain. Untuk memasang struktur, anda perlu menyediakan 4 produk sepanjang 70 cm dan 6 bahagian (masing-masing 30 cm). Dianjurkan untuk merekatkan setiap komponen bingkai. Agar operasi berjaya, anda perlu menggunakan penjepit.
Kemudian anda boleh mula membuat rak dengan tangan anda sendiri. Bagaimana membuat lapisan untuk struktur sudut? Untuk ini, bahan paling kerap digunakan yang senang diproses (papan lapis, papan serpai, dll.).
Catatan! Rak boleh ditumpuk. Dalam kes ini, anda perlu melekatkan beberapa jalur bersama-sama dan memotong bahagian yang diperlukan. Dari luar, mereka diikat dengan keriting keriting.
Setelah membuat rak dari kayu dengan tangan anda sendiri, mereka harus dipasang dengan bingkai. Kemudian, jika perlu, strukturnya dipernis. Sekiranya bahan seperti papan serpai berlapis digunakan sebagai bahan rak, maka tidak perlu memoles bahagiannya.
Peringkat akhir melibatkan memperbaiki engsel dan meletakkan struktur di sudut.Perlu diperhatikan bahawa untuk versi sudut, adalah kebiasaan menggunakan kit yang merangkumi dua engsel.
Cara membuat rak gantung: reka bentuk bulat
Reka bentuk yang berbentuk bulat adalah penyelesaian yang tidak biasa dan bergaya untuk ruang tamu atau bilik tidur. Pilihan ini disyorkan untuk dipasang apabila tidak perlu menjimatkan ruang lantai yang boleh digunakan. Rak bulat agak besar.
Untuk menyelesaikan pemasangan struktur ini, anda harus memilih bahan sumber yang betul dan melakukan pengiraan awal dengan betul. Apa yang hendak dibuat rak jenis ini? Bahan yang paling sesuai untuk ini adalah kepingan papan serat. Ia mempunyai kekuatan yang baik, tetapi pada masa yang sama terdedah kepada ubah bentuk kerana kelenturannya yang besar.
Langkah pertama untuk membuat rak bulat adalah memotong jalur dengan panjang dan lebar yang diperlukan. Pertama, anda perlu menyediakan papan yang akan berfungsi sebagai rak. Seterusnya, tanda digunakan pada jalur. Dalam kes ini, diperlukan untuk membuat lekukan yang sesuai dengan jumlah pertindihan.
Untuk membentuk struktur bulat, anda perlu menghubungkan tepi jalur antara satu sama lain. Salah satu daripada mereka mesti pergi ke yang kedua. Kemudian mereka dipasang dalam satu kedudukan dengan menggunakan penjepit dan diikat dengan skru. Anda mesti berhati-hati semasa memasang rak sedemikian dengan tangan anda sendiri. Foto struktur siap, serta bahan video, membantu anda memahami dengan cepat bagaimana ia dipasang.
Sebelum akhirnya membetulkan struktur dengan skru, anda harus memastikan bahawa ia tidak diputarbelitkan. Anda juga perlu memeriksa lokasi rak yang betul dengan tangan anda sendiri. Dalam beberapa kes, gambar mungkin menunjukkan bukan hanya bebibir mendatar, tetapi juga wajah yang terletak di satah menegak. Bahagian seperti itu juga memerlukan pengesahan, yang mana alun binaan digunakan.
Pada peringkat seterusnya, produk tersebut dipernis. Di samping itu, ia boleh dicat. Untuk memasang struktur bulat, kaedah standard digunakan - engsel logam.
Cara membuat rak dinding sendiri
Jenis perabot yang agak menarik adalah rak gantung. Reka bentuk ini asli dan mampu menekankan bahagian dalaman, dibuat dengan gaya moden. Kelebihan lain dari rak gantung adalah kekompakannya.
Maklumat berguna! Pakar mengesyorkan memasang rak gantung di pangsapuri yang memerlukan penjimatan ruang kosong.
Untuk memasang rak gantung, anda mesti mengikut arahan dengan tegas. Produk seperti itu boleh digunakan untuk menyimpan barang-barang dalaman kecil atau untuk buku. Sangat sukar untuk membuat rak jenis ini dengan tangan anda sendiri, yang juga merupakan kelebihan. Mari kita perhatikan dengan lebih terperinci proses pemasangan struktur ini.
Pertama, anda perlu membuat draf awal. Ini harus mengandungi maklumat mengenai jumlah lapisan, ukurannya, dan juga mempertimbangkan jarak antara rak individu. Selanjutnya, tempat dipilih di dinding di mana struktur gantung akan dipasang.
Pada peringkat seterusnya, elemen panjang dan lebar yang diperlukan dipotong dari kayu atau beberapa bahan lain yang serupa dengan ciri-cirinya. Selepas itu, 4 lubang dibuat di setiap rak (2 dari satu tepi dan 2 dari yang lain). Penting untuk diingat bahawa lubang mesti mempunyai diameter yang sama. Pakar mengesyorkan menyediakan templat dengan lubang siap dengan ukuran yang sesuai untuk pekerjaan tersebut.
Langkah seterusnya untuk membuat rak asli untuk buku adalah menghiasnya.Pertama, produk diproses menggunakan kertas pasir atau penggiling. Pilihan kedua lebih dapat diterima, kerana penggunaan peralatan elektrik membolehkan anda mengatasi pekerjaan dengan cepat.
Kemudian anda perlu mengecat bahagiannya, selepas itu anda boleh mula memasangnya. Semasa menggantung rak, anda perlu mengambil kira berat objek yang akan terletak pada struktur. Sebagai contoh, jika ini adalah buku, maka disarankan untuk memilih kabel yang kuat yang dapat menahan berat badan mereka yang agak mengagumkan.
Ia mesti dipotong menjadi beberapa bahagian mengikut projek. Kemudian kabel disambungkan melalui lubang dan dipasang pada tahap yang berbeza menggunakan klip penjepit khas. Lubang harus dibuat di dinding untuk cangkuk dengan skru yang mana kedua-dua kabel dipasang.
Cara membuat rak paip dengan tangan anda sendiri
Jenis struktur ini kelihatan hebat dalam reka bentuk moden. Mereka boleh ditemui terutamanya di bahagian dalaman minimalis. Penggunaan paip adalah penyelesaian yang baik, kerana kerangka yang kuat dan boleh dipercayai dibuat dari mereka. Panjang rak sedemikian dan jumlah rak yang disertakan di dalamnya dapat disesuaikan dengan mudah mengikut kehendak pemiliknya.
Tahap pertama kerja adalah penyediaan rak kayu. Mereka mesti dirawat dengan minyak khas. Tindakan ini akan memberikan perincian tekstur yang halus. Boleh diterima menggunakan lilin untuk tujuan yang sama. Selanjutnya, rak boleh dipernis. Setelah diproses, anda harus menunggu sehingga produk kering dan terus ke peringkat seterusnya untuk membina rak dari paip.
Di sudut bahagian, anda perlu memasang bebibir yang mempunyai bentuk bulat. Mereka hendaklah lebih kurang 2 cm dari tepi rak. Kawasan yang diperlukan sesuai dengan sambungan ditandai dengan pensil.
Seterusnya, anda perlu melipat semua rak ke dalam timbunan dan mengepitnya dalam pengapit. Kemudian lubang harus dibuat di dua bahagian atas. Lubang dibuat di kawasan tengah bebibir. Penting untuk diingat bahawa papan seterusnya memerlukan gerudi diameter yang lebih besar. Ini disebabkan oleh fakta bahawa paip akan melaluinya. Gambar rak kayu sendiri, menunjukkan pelbagai peringkat pemasangan rak, membolehkan anda memahami ciri-ciri karya tersebut.
Peringkat seterusnya adalah perhimpunan. Setiap bebibir mesti diletakkan di rak bawah dan diikat. Pengikat dibuat sedemikian rupa sehingga produk tidak menutup lubang masuk di mana paip akan berada. Kemudian paip mesti dimasukkan ke dalam lubang di rak. Mereka mesti diikat pada kedua hujungnya. Gunakan sepana untuk menyambungkan setiap paip ke bebibir. Di bahagian atas, sangat penting untuk memasang gandingan.
Selalunya kaedah pemasangan ini digunakan untuk pembuatan rak di pantri. Bagaimana membuat rak yang serupa dengan tangan anda sendiri? Soalan ini dapat dijawab dengan melatih video yang menunjukkan dengan jelas setiap peringkat reka bentuk.
Maklumat berguna! Bahan paip boleh berbeza. Walau bagaimanapun, para pakar mengesyorkan menggunakan bahagian tergalvani, kerana ia berbeza dengan ciri teknikal yang paling sesuai. Mereka mempunyai kekuatan yang baik dan juga tahan terhadap kelembapan.
Setelah memasang semua elemen struktur, perlu mengacaukan bahagian bebibir ke hujung atas paip. Seterusnya, anda perlu memperbaikinya di palang atas. Selalunya, reka bentuk ini dilengkapi dengan kaki dengan roda, yang membolehkan anda membuat rak mudah alih.
Rak dinding DIY untuk buku: menyediakan alat dan bahan
Bahagian dalam bilik terdiri daripada pelbagai zon dan perabot.Rak adalah elemen reka bentuk yang sangat penting yang menjadikan bilik kelihatan lebih selesa dan selesa. Mereka boleh dilakukan secara bebas, kerana produk jenis ini tidak rumit. Untuk menjalankan pemasangan dengan betul, anda perlu membiasakan diri dengan cadangan pakar dan arahan langkah demi langkah.
Untuk pengeluaran sendiri, lebih baik memilih reka bentuk ringkas yang mengambil kira penggunaan bilah kayu. Bagaimana membuat rak buku?
Untuk memulakan, anda perlu membeli alat berikut:
- pemutar skru;
- gerudi elektrik;
- gergaji besi untuk kayu (dengan gigi kecil);
- pita pengukur;
- tahap.
Menyiapkan alat yang diperlukan adalah tahap penting yang mempengaruhi keselesaan kerja dan kelajuan pemasangan struktur. Daripada gergaji besi untuk kayu, anda boleh menggunakan jigsaw elektrik. Alat ini dapat mengurangkan masa pengeluaran rak dengan ketara.
Dari bahan yang anda perlukan untuk menyediakan:
- bilah - 20x40 cm;
- skru mengetuk sendiri.
Untuk memasang rak buku, sebagai peraturan, skru mengetuk sendiri digunakan, panjangnya 45 mm. Pengiraan bilangan mereka cukup mudah. 2 skru mengetuk sendiri digunakan untuk satu titik lekapan. Oleh itu, untuk mengira angka akhir, perlu mengalikan bilangan zon pengikat dengan 2. Pada akhir peringkat persediaan, anda boleh mula memasang rak buku.
Pemasangan rak buku DIY: prosedur
Dimensi rak masa depan dikira secara individu, bergantung pada kehendak pemilik dan dimensi bilik. Segera harus diperhatikan bahawa selalunya lebar 20 cm mencukupi. Semasa memasang rak, anda mesti berhati-hati untuk mengelakkan kesilapan.
Bagaimana membuat rak dengan tangan anda sendiri? Tahap awal pengeluaran diri struktur ini melibatkan pemasangan tangga. Ini adalah nama bahagian sisi, yang merupakan kerangka struktur. Langkah pertama ialah membuat rak. Selanjutnya, elemen melintang dipasang pada mereka, yang digunakan untuk memberikan ketegaran.
Catatan! Untuk mengikat anggota silang, perlu terlebih dahulu mengebor lubang yang sesuai di rak.
Pertama, anggota silang dipasang dengan satu skru mengetuk sendiri. Selepas itu, anda harus memeriksa kebenaran lokasinya, kerana ia mungkin menyimpang. Seterusnya, pengikat kedua dimasukkan.
Langkah seterusnya dalam memasang rak buku adalah menghubungkan tangga antara satu sama lain. Sebelum itu, anda perlu memeriksa ketepatan sudut. Untuk ini, petak pembinaan digunakan. Tangga dihubungkan melalui rel. Panjangnya harus sesuai dengan penunjuk reka bentuk yang ditentukan sebelumnya. Kemudian rel yang tinggal dibaiki.
Setelah bingkai dibuat, perlu diperiksa seberapa lancar struktur dipasang. Sekiranya kerja itu dilakukan dengan betul, maka anda boleh mula memasang rak buku ke dinding. Foto produk siap jenis ini membolehkan anda menilai kelebihannya. Setelah dipasang ke dinding, strukturnya dilengkapi dengan rak.
Oleh itu, membuat rak buku anda sendiri tidak sukar. Semua kerja dapat disiapkan dalam beberapa jam. Sebagai tambahan kepada kaedah ini, terdapat pilihan lain yang lebih asli untuk memasang rak untuk menyimpan buku.
Rak berengsel untuk buku dari laci: pilihan bukan standard
Rak dinding boleh dibuat dari barang-barang dalaman yang tidak perlu. Salah satu pilihan membolehkan penggunaan laci lama. Rak jenis ini dibuat menggunakan pembahagi yang memisahkan bahagian antara satu sama lain. Ini memerlukan alat dan bahan berikut:
- kotak;
- papan lapis;
- gam;
- kuku cecair;
- gelung;
- kertas pasir;
- cat atau varnis;
- berus;
- kuku dowel;
- penumbuk;
- gerudi 8 mm (untuk konkrit);
- pemutar skru;
- skru mengetuk sendiri;
- kertas dinding.
Kertas dinding digunakan untuk menghiasi bahagian belakang laci. Proses pemasangan rak terdiri daripada beberapa langkah yang perlu dikaji sebelum memulakan kerja. Perkara pertama yang perlu dilakukan untuk memasang rak buku yang tidak biasa adalah memotong unsur-unsur pembatasan dari papan lapis. Untuk kerja ini, anda perlu membeli jigsaw.
Maklumat berguna! Sekiranya anda mahu, anda boleh menggunakan gergaji besi dengan gigi halus, tetapi ini akan meningkatkan masa operasi dengan ketara.

Rak di dapur panjang keseluruhan permukaan kerja boleh menggantikan bahagian atas kabinet
Langkah seterusnya adalah memproses bahagian papan lapis. Mereka perlu diampelas dan dipernis. Pengisaran dilakukan menggunakan kertas pasir. Kemudian bahagiannya dipernis (sekurang-kurangnya 2 lapisan). Langkah seterusnya dalam memasang rak dinding untuk buku dari laci mengambil kira menghiasi dinding belakang dengan kertas dinding. Anda perlu memotong dari kanvas bahagian yang sesuai dengan dimensi dinding belakang, dan kemudian merekatkannya.
Spacer kayu dipasang dengan paku cair. Seterusnya, anda perlu memoles permukaan luar kotak. Ini diperlukan untuk melindunginya dari kelembapan dan faktor buruk lain. Untuk menjawab persoalan bagaimana membuat rak buku dengan cara ini, disarankan untuk menonton bahan video yang sesuai.
Pada peringkat terakhir, pengikat dipasang di dinding dan kotak dipasang di atasnya. Di bahagian belakangnya, anda perlu memasang gelung. Sekiranya tidak ada paku, anda boleh menggunakan skru mengetuk sendiri. Lubang dibuat di dinding dengan gerudi, selepas itu paku dowel harus dipasang di dalamnya. Rak digantung di atasnya, dan kerja itu berakhir di sana.
Membuat rak kayu untuk bunga dengan tangan anda sendiri
Bunga boleh menghidupkan bahagian dalaman mana pun. Terdapat banyak reka bentuk yang berbeza untuk meletakkan pasu tanaman anda. Untuk menjimatkan wang, anda boleh melakukannya sendiri. Sebelum mula membuat rak bunga, anda perlu mengira dimensinya dan membuat rancangan.
Pada peringkat awal merancang rak sedemikian, perlu menyediakan papan selebar 120 mm dan tebal 25 mm. Untuk memasang rak bunga dengan tangan anda sendiri dari kayu, anda perlu memilih papan sepanjang 130 cm. Ia perlu diampelas dengan penggiling atau kertas pasir.
Selepas itu, salah satu tepinya harus dipotong sehingga diperoleh sudut 90 °. Selanjutnya, secara terperinci, perlu dilakukan markup pada sudut tepat dengan langkah 20 cm. Kemudian papan dibahagikan kepada segmen yang setara. Semasa memotong bahagian, gergaji besi harus berada pada sudut. Ini akan membolehkan pemotongan lurus.
Hasilnya, anda harus mendapatkan 6 elemen kayu yang setara berukuran 20 cm. Sebelum pemasangan, setiap segmen harus dilapisi dengan kertas pasir. Selanjutnya, lubang dibuat di sepanjang tepi produk. Untuk tujuan ini, anda perlu menyiapkan latihan dan latih tubi.
Catatan! Semua peringkat ini adalah sejenis persiapan, yang diperlukan untuk membuat rak bunga tanpa kesilapan. Sebagai peraturan, mana-mana orang yang tidak mempunyai pengetahuan dan kemahiran khas dapat menangani pekerjaan tersebut.
Langkah seterusnya melibatkan pemasangan struktur secara langsung. Seluruh proses terdiri dalam memperbaiki segmen kayu bersama dengan skru mengetuk sendiri.
Kemudian pengikat dipasang pada struktur. Lubang untuk dowel dibuat di dinding. Pada peringkat akhir, produk siap digantung pada engsel.Foto rak bunga membolehkan anda memilih jenis pembinaan yang diperlukan, yang sesuai untuk bahagian dalam bilik tertentu.
Produk ini bersaiz kecil, sehingga dapat digunakan untuk tanaman yang tidak memakan banyak ruang. Sekiranya kerja telah dilakukan dengan betul, rak akan menyimpan bunga di dalam pasu.
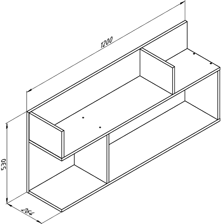
Rak TV dinding papan lapis DIY
Di bilik yang berukuran kecil, sering kali sukar untuk memperuntukkan ruang untuk TV. Contohnya ialah dapur. Biasanya, kawasan yang boleh digunakan di bilik ini dimanfaatkan secara maksimum. Di mana hendak memasang TV dalam kes ini? Peralatan tersebut boleh diletakkan di sudut rak. Mari kita pertimbangkan bagaimana memasang rak TV.
Harus diingat bahawa peranti moden paling kerap digantung di dinding menggunakan kurungan. Oleh itu, rak dalam kes ini biasanya bermaksud struktur tempat pemain DVD berada. Walau bagaimanapun, kadang-kadang perlu memasang peralatan asas di rak. Dalam kes ini, ada pilihan mudah yang membolehkan anda menyusun struktur sedemikian secara bebas.
Pada peringkat awal pemasangan rak TV yang dipasang di dinding, anda perlu menyediakan alat dan bahan yang diperlukan. Produknya terbuat dari papan lapis yang senang diproses. Pilihan terbaik untuk memasang TV anda ialah rak sudut. Tepi bahagian mesti diampelas, setelah itu ditampal dengan filem pelekat diri khas. Lukisan dalam kes ini dipilih bergantung pada bahagian dalam dapur.
Seterusnya, anda perlu memasang pengikat pada bahagian tersebut, dengan bantuan yang akan dipasang pada permukaan kerja. Untuk pemasangan, skru mengetuk sendiri digunakan, dimensinya dipilih mengikut lebar papan lapis itu sendiri. Pilihan terbaik untuk lokasi pengikat adalah bahagian bawah rak TV.
Pada peringkat seterusnya, rak dilekatkan pada dinding, di mana perlu menandakan tempat-tempat di mana lubang akan berada. Dengan bantuan gerudi elektrik dan gerudi dengan diameter yang diperlukan, lubang dibuat di permukaan kerja. Kemudian diperlukan memasukkan dowel yang dilengkapi paku ke dalam alur yang dihasilkan. Ini menyiapkan kerja, sekarang anda boleh mula memasang rak di dinding. Untuk TV, reka bentuk ini sesuai jika dimensi peranti tidak terlalu besar. Versi sudut menjimatkan kawasan dapur yang berguna.
Maklumat berguna! Setelah memasang rak, periksa sama rata. Untuk ini, tingkat bangunan digunakan. Lokasi yang sesuai dengan penempatan pengikat juga perlu diperiksa.
Penyelesaian tersuai: rak palet pembinaan
Rak boleh dibuat bukan hanya dari bahan tradisional. Sudah tentu, pilihan yang paling popular adalah membuat struktur dari papan lapis atau memasang rak papan serpai dengan tangan anda sendiri. Walau bagaimanapun, terdapat pilihan lain yang membolehkan anda memasang elemen dalaman ini.
Dalam reka bentuk moden, terdapat bahan yang sangat popular - palet bangunan. Mereka digunakan untuk membina bukan sahaja rak, tetapi juga elemen perabot lain yang lebih kompleks (contohnya, sofa). Palet boleh dibeli dengan sangat murah atau dijumpai di tapak pembinaan berhampiran.
Penggunaan palet dibenarkan sekiranya tuan tanah ingin membuat hiasan industri di dalamnya. Untuk memasang satu rak asli di dinding, anda perlu menyediakan dua palet kayu. Perkara pertama yang perlu dibuat adalah membuat rancangan. Maka anda perlu membongkar palet. Hasilnya adalah sekumpulan bahagian berikut:
- 8 papan - 100x22 mm (panjang 120 cm);
- 8 papan - 145x22 mm (panjang 120 cm);
- 12 rasuk - 14x100 mm;
- 6 rasuk - 145x145 mm.
Hampir semua struktur kayu dapat dipasang dari elemen palet individu. Dengan menggunakan bahan ini, tidak sukar untuk membuat rak dinding untuk bunga atau rak untuk kasut dengan mudah.
Setelah membongkar palet, perlu menyediakan satu set bahagian dari konstituen masing-masing, yang dimaksudkan untuk pembuatan rak berlapis-lapis. Anda memerlukan 4 papan dengan dimensi 640x145 mm, serta 2 papan masing-masing dengan dimensi berikut: 680x145, 840x145 dan 290x145mm. Di samping itu, perlu menyediakan dua bahagian 640x100 dan 840x100 mm, dua produk 290x50 mm dan dua kotak kayu 145x100 mm.
Sebelum mula membuat rak, anda harus memproses setiap bahagian. Untuk ini, digunakan penggiling elektrik khas atau kertas pasir.
Pemasangan rak DIY dari palet: tahap
Sangat penting untuk mengikuti susunan pembinaan rak palet yang diperlukan. Arahan langkah demi langkah tidak termasuk penyimpangan dari peraturan. Pertama sekali, asas struktur masa depan harus diselesaikan. Untuk melakukan ini, anda perlu menyediakan dua papan berukuran 640x100 mm dan pasangkan kotak-kotak di pinggirnya.
Kemudian anda perlu memasang papan lebar (290x145 mm) pada kotak-kotak. Fiksasi dilakukan sedemikian rupa sehingga bahagian-bahagiannya terletak tegak lurus dengan unsur-unsur struktur yang sempit. Struktur palet pelbagai peringkat boleh digunakan sebagai rak buku. Bagaimana membuat kes dengan tangan anda sendiri? Untuk melengkapkan kotak, perlu memperbaiki unsur-unsurnya yang tersisa.
Anda perlu mengacaukan dua papan ke sisi pangkal. Untuk ini, skru kayu khas digunakan. Dimensi satu bahagian adalah 840x100, dan yang kedua ialah 840x145 mm. Pada akhir kerja, anda harus memasang papan sisi di seberang dasar rak masa depan.
Catatan! Setelah memperbaiki bahagian seterusnya, disarankan untuk memeriksa ketepatan lokasi elemen individu dalam struktur, kerana peralihannya mungkin.
Seterusnya, palang dipasang. Untuk ini, dua papan digunakan yang mempunyai dimensi yang sama (680x145 mm). Foto rak buku jenis ini boleh dilihat di Internet. Ini akan membolehkan anda menentukan kesesuaian reka bentuk sedemikian untuk bahagian dalaman tertentu.
Pada peringkat seterusnya, anda perlu memasang dua papan di bahagian utama, yang dimensi 640x145 mm. Untuk melengkapkan rak yang tersisa, jalur digunakan, fungsinya adalah untuk membuat sokongan. Dimensi jalur sedemikian ialah 290x50 mm.
Tahap akhir pemasangan rak bertingkat jenis ini mengambil kira penetapan unsur-unsur yang tersisa dengan dimensi 640x145 mm. Pakar mengesyorkan untuk melindungi elemen seperti itu dari hujungnya. Untuk ini, skru kayu juga digunakan.
Cara membuat rak kasut dengan tangan anda sendiri dari palet
Banyak rak dan perabot lain yang boleh dibuat dari palet. Yang diperlukan hanyalah alat dan keinginan. Selalunya, struktur dibuat dari palet, yang dipasang di lorong dan digunakan untuk menyimpan kasut. Lebih-lebih lagi, pemasangan rak sedemikian boleh dilakukan tanpa menggunakan peralatan pembinaan elektrik. Mari kita lihat lebih dekat keseluruhan proses dari awal hingga akhir.
Perkara pertama yang perlu dilakukan semasa membuat struktur sedemikian adalah dengan mengoleskan palet. Untuk menjimatkan masa dan usaha, para pakar mengesyorkan menggilap hanya bahagian yang kelihatan. Setelah mengisar bahagian depan rak masa depan di lorong, perlu mengeluarkan habuk darinya.

Palet juga boleh digunakan untuk pembuatan rak untuk kasut
Pada peringkat reka bentuk seterusnya, anda perlu menggunakan primer khas untuk kayu ke permukaan palet. Ini akan melindungi bahan daripada kesan berbahaya dari acuan.
Kemudian anda perlu menutup permukaan palet dengan sebatian pewarna atau varnis. Oleh itu, rak diproses di lorong. Kaedah termudah untuk melakukan elemen dalaman ini dengan tangan anda sendiri. Setelah cat kering, letakkan palet di dinding. Sekiranya dikehendaki, struktur seperti itu juga boleh dihiasi dengan melukis lukisan di atasnya.
Ciri-ciri hiasan struktur dinding: cara menghias rak
Dalam kebanyakan kes, kerja memasang rak mengambil kira satu lagi perkara penting - hiasannya. Hiasan struktur membolehkan anda memberikan penampilan yang lengkap dan secara organik memasukkan bahagian perabot ini ke bahagian dalam bilik. Terdapat beberapa peraturan yang membolehkan anda menghias rak dengan betul.
Anda harus segera memperhatikan kombinasi warna, yang mematuhi aturan tiga warna. Nada utama adalah nada di mana struktur dicat. Item yang terletak di atasnya mesti dibuat dalam dua warna lain.
Maklumat berguna! Pakar mengesyorkan memilih warna tambahan supaya ia berbeza dengan warna yang utama. Ini akan menyerlahkan item di rak.
Silap mata lain ialah susunan barang segitiga di rak berengsel. Cukup mudah untuk mengatur struktur dengan tangan anda sendiri dengan cara ini. Item berwarna juga berbaris di rak sedemikian rupa sehingga segitiga khayalan terbentuk.
Sekiranya produk berada di tempat tinggi, maka disarankan untuk meletakkan objek kecil di atasnya. Oleh itu, yang terbaik adalah meletakkan barang-barang yang lebih besar pada lapisan bawah. Adalah wajar untuk menghiasi rak buku asli dengan bunga (semula jadi atau buatan). Periuk boleh diletakkan di tingkat atas.
Semasa meletakkan barang di rak, perlu dipertimbangkan mana yang paling kerap digunakan. Contohnya, barang yang anda perlukan perlu disimpan pada peringkat yang mudah dijangkau.
Rak rumah boleh dibuat sendiri. Ciri reka bentuk mereka bergantung terutamanya pada tujuannya. Dengan tangan anda sendiri, anda boleh membuat produk untuk ruang tamu, bilik tidur, dapur, bilik mandi, dan juga lorong. Semasa pemasangan, disarankan untuk mengikuti arahan dan tidak menyimpang daripadanya.