Pelbagai kaedah boleh digunakan untuk pemanasan rumah negara secara autonomi. Selalunya, pilihan jatuh pada dandang yang cukup mudah dikendalikan, menjimatkan dan tahan lama. Dandang gas untuk pemanasan dan bekalan air panas rumah persendirian adalah pilihan terbaik dari segi nisbah harga dan kualiti. Mari cuba tentukan jenis dandang gas yang ada untuk memanaskan rumah persendirian: bagaimana memilih model yang sesuai untuk kediaman anda.
Kandungan
Pilihan dandang untuk rumah yang berbeza
Dandang gas bukan satu-satunya pilihan. Jenis bahan bakar banyak bergantung pada jenis rumah dan ciri-ciri kawasan sekitarnya:
- jika perairan termal terletak berhampiran rumah, maka penyelesaian terbaik adalah menggunakan tenaga air untuk pemanasan;
- kayu bakar sangat sesuai untuk rumah taman;
- jika utama gas melintas di dekat rumah, maka ada baiknya membeli dandang gas.
Kekuatan dandang masa depan dikira dari parameter seperti keperluan air panas di rumah, dan juga kehilangan habanya. Semakin tinggi, anda memerlukan dandang.
Dandang pemanasan dibezakan bergantung pada jenis bahan bakar:
- berkuasa solar;
- pada bahan bakar cair, seperti minyak diesel, minyak bahan bakar, minyak tanah;
- pada bahan bakar gas;
- bahan api pepejal - gambut, arang batu, kayu;
- dikuasakan oleh elektrik;
- pada tenaga panas bumi, iaitu tenaga sumber semula jadi.
Dari semua jenis di atas, dandang gas adalah pilihan paling ekonomik untuk rumah persendirian, jadi kami akan mempertimbangkannya.
Dandang gas untuk memanaskan rumah persendirian: bagaimana memilih, apa yang harus dicari
Untuk mengira anggaran daya dandang untuk memanaskan rumah persendirian dengan tepat, paling mustahak menggunakan perkhidmatan jurutera pemanasan. Walau bagaimanapun, parameter ini dapat dianggarkan secara kasar dan bebas. Perlu diingat bahawa bilik dengan isipadu 30 meter padu memerlukan kira-kira 1 kW kuasa dandang. Sekiranya dandang juga akan digunakan untuk memanaskan air, maka parameter set harus digandakan.
Nasihat berguna! Formula ini hanya sesuai untuk bilik rata-rata. Sekiranya kita bercakap mengenai pemanasan beranda kaca, sambungan atau dapur musim panas, maka dandang yang lebih kuat diperlukan.
Perkara penting lain ketika memilih adalah lokasi dandang di dalam rumah. Terdapat sebilangan syarat mengenai cara memilih dandang gas untuk memanaskan rumah persendirian untuk parameter ini:
- mesti ada pengudaraan yang baik di bilik dandang. Sekiranya tidak dapat memastikan aliran udara semula jadi, anda perlu memasang sistem pengudaraan buatan;
- dandang gas untuk memanaskan rumah persendirian mesti dipasang di tingkat pertama atau tingkat bawah bangunan.Dalam kes ini, mesti ada satu lagi jalan keluar dari bilik;
- untuk kemungkinan penyelenggaraan normal peranti, bilik mesti mempunyai pencahayaan buatan atau semula jadi yang baik.
Kriteria pemilihan jenis dandang
Untuk akhirnya memutuskan dandang mana yang harus dipilih, perlu dipertimbangkan perkara berikut:
- kos peralatan tambahan - harga dandang gas litar dua lantai untuk pemanasan rumah persendirian akan jauh lebih tinggi jika anda juga membeli pam, alat keselamatan, tangki pengembangan dan peralatan lain. Anda juga perlu membeli cerobong sepaksi untuk dandang gas;

Untuk penyelenggaraan dandang gas yang normal, perlu bahawa bilik mempunyai pencahayaan buatan atau semula jadi yang baik.
- untuk memasang dandang jenis lantai, anda memerlukan draf semula jadi yang baik di dalam bilik dan cerobong berdiameter besar;
- kod dan toleransi kawasan bangunan mesti mematuhi keperluan peralatan;
- jika dandang dilengkapi dengan peralatan yang memungkinkan, jika perlu, memindahkannya untuk berfungsi menggunakan gas cecair, maka ia harus diberi keutamaan.
Nasihat berguna! Semua dandang moden dikuasakan oleh elektrik, jadi selalu bernilai menyediakan sumber kuasa sandaran jika terdapat lonjakan kuasa di rumah anda. Untuk ini, bekalan kuasa yang tidak putus untuk dandang gas sangat sesuai.
Oleh itu, pilihan dandang gas untuk memanaskan rumah persendirian bergantung pada jumlah bilik, kehadiran cerobong dan parameter lain.
Ciri-ciri sistem lantai dan dinding
Terdapat dua jenis dandang gas untuk rumah persendirian: berdiri lantai dan dipasang di dinding. Masing-masing mempunyai ciri tersendiri.
Dandang gas yang digantung di dinding
Dandang gas yang dipasang di dinding adalah unit pemanas yang padat dan mudah digunakan yang menghubungkan dalam reka bentuknya penukar haba, pembakar gas, pam yang dengannya anda dapat meningkatkan tekanan dalam sistem pemanasan, tangki pengembangan, alat pengukur untuk kawalan suhu dan sistem keselamatan terpasang. Oleh kerana itu, harga dandang gas litar dua yang dipasang di dinding untuk memanaskan rumah persendirian akan lebih tinggi daripada sistem lantai, tetapi ia juga akan memberikan lebih banyak kelebihan.
Draf dalam dandang gas yang dipasang di dinding boleh dipaksa atau semula jadi. Draf paksa bagus untuk jenis bangunan yang tidak mempunyai cerobong sendiri - maka kipas terbina dalam berfungsi, yang menghilangkan produk pembakaran melalui cerobong dandang sepaksi terpisah, yang dipasang di dinding. Sekiranya rumah itu mempunyai cerobong, maka lebih baik memilih model dengan draf semula jadi, harganya lebih murah.

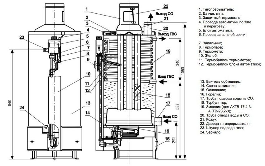
Peranti dandang gas yang dipasang di dinding: 1 - kipas ekzos asap; 2 - Sensor suhu NTC DHW; 3 - pembakar keluli tahan karat; 4 - elektrod kawalan nyalaan pengionan; 5 - elektrod pencucuhan; 6 - peranti anti skala magnetik; 7 - Sensor aliran air DHW (turbin); 8 - penyekat udara sejuk / pengatur draf berlebihan (versi F); 9 - kawalan penyingkiran produk pembakaran (suis tekanan); 10 - termostat keselamatan; 11 - Sensor suhu pemanasan NTC; 12 - tangki pengembangan tertutup; 13 - sensor tekanan dalam sistem pemanasan; 14 - pam edaran 3-kelajuan; 15 - pintasan automatik; 16 - ketuk untuk solekan dan pengisian; 17 - injap pelindung keselamatan 3 bar; 18 - kawalan penyingkiran produk pembakaran (sensor terma)
Selain pemanasan, fungsi penting kedua dandang gas adalah pemanasan air. Untuk ini, dandang litar tunggal atau dua litar digunakan. Litar tunggal, pada masa yang sama, dilengkapi dengan struktur yang berasingan, iaitu dandang... Terlepas dari jumlah litar, dandang dilengkapi dengan automasi, yang memungkinkan untuk mengatur modus operasi. Pada musim panas, dandang tidak menyala untuk pemanasan, dan dengan itu menjimatkan wang anda.
Bagaimana memilih dandang gas yang dipasang di dinding untuk memanaskan rumah persendirian? Perhatikan kekuatannya, bilangan litar, dimensi, penggunaan kuasa dan parameter lain.
Antara kelebihan dandang gas yang dipasang di dinding adalah seperti berikut:
- berat badan yang agak rendah - kira-kira 50 kg;
- dimensi padat, tidak memakan banyak ruang di dalam bilik;
- dandang gas yang dipasang di dinding, jika perlu, boleh ditukar untuk berfungsi pada gas cecair.
Nasihat berguna! Sekiranya anda mahu dandang tidak mengambil banyak ruang, maka pilih versi yang dipasang di dinding. Walau bagaimanapun, ingat bahawa versi lantai jauh lebih hebat.
Dandang gas berdiri lantai
Dandang lantai boleh digunakan kerana mereka dapat memanaskan bilik besar dengan berkesan - lebih dari 200 meter persegi. Berbanding dengan dandang yang dipasang di dinding, mereka mempunyai kecekapan yang lebih sedikit, namun, mereka memanaskan rumah dengan baik walaupun rumah besar dan memberikan iklim mikro yang selesa di dalamnya.
Artikel berkaitan:
Dandang gas lantai untuk pemanasan rumah. Pemilihan model yang optimum. Kelebihan dan jenis dandang. Peranti litar tunggal dan litar dua. Gambarajah sistem pemanasan.
Kelebihan lain dari sistem pemanasan bawah lantai adalah ketahanannya. Dandang besi tuang atau keluli yang baik dapat bertahan selama beberapa dekad. Sifatnya banyak bergantung pada bahan penukar haba.
Salah satu pilihan untuk sistem lantai adalah dandang gas keluli. Istilah penggunaannya berkadar terus dengan kualiti keluli, ketebalannya. Kelebihan dandang keluli adalah beratnya yang agak rendah. Kelemahannya adalah kerentanan tinggi terhadap kakisan. Dandang keluli boleh bertahan 15-20 tahun, tetapi hampir tidak lebih lama.
Jenis sistem pemanasan lantai kedua adalah dandang besi tuang. Ini adalah pilihan yang paling dipercayai dan tahan lama. Besi tuang tidak mudah terkena kakisan, menahan semua jenis tekanan mekanikal, ia jarang terbakar.
Agar dandang gas besi tuang dapat bertahan selama mungkin, beberapa peraturan mudah harus dipatuhi semasa pengoperasiannya. Sebagai contoh, anda tidak boleh mendedahkan penukar haba besi tuang yang cukup rapuh pada tekanan mekanikal, anda perlu memantau kebocoran dari sistem, dan juga disyorkan untuk menggunakan air yang disucikan. Jika tidak, skala boleh terbentuk di permukaan besi tuang, yang akan menyebabkan kemunculan mikrokrak.
Harga dandang gas yang berdiri di lantai untuk memanaskan rumah persendirian lebih rendah daripada yang dipasang di dinding, kerana kesederhanaan reka bentuknya. Walau bagaimanapun, dalam banyak aspek harga dandang bergantung pada pengeluar dan modelnya. Dalam beberapa kes, sistem lantai yang baik dapat lebih mahal daripada sistem dinding rata-rata.
Penggantian peralatan lama dan pemasangan dandang baru
Ia berlaku bahawa peralatan pemanasan dan, khususnya, dandang gagal. Sekiranya berlaku kerosakan, selalu ada penyelesaian radikal - untuk mengganti peralatan pemanasan sepenuhnya. Keputusan seperti itu sering dibuat jika dandang lama reka bentuk Soviet ada di rumah sebelumnya.Ia boleh diganti dengan dandang gas terpasang di dinding, yang akan memanaskan rumah dengan sempurna sehingga 200 m².
Penggantian peralatan pemanasan yang lengkap adalah penyelesaian untuk sekumpulan masalah sekaligus: paip lama, penyumbatan dalam sistem, pemindahan haba yang buruk. Sekiranya hanya dandang diganti, kotoran dan timbunan pada paip lama dapat dengan cepat menyebabkan kerosakan dan peralatan baru.
Piawaian dan keperluan untuk pemasangan dandang
Untuk memasang dandang gas di rumah, anda perlu mendapatkan izin. Ini hanya boleh dilakukan setelah memenuhi beberapa syarat:
- mesti ada pengudaraan yang baik di dalam bilik, dan juga sumber cahaya semula jadi untuk membuat servis dandang;
- ketinggian siling di bilik dandang tidak boleh kurang dari dua setengah meter, dan luasnya - 4 meter persegi, pintu - selebar 80 sentimeter;
- sistem bekalan kuasa mesti mempunyai perlindungan arus dan haba. Cara memilih penstabil voltan untuk dandang gas adalah titik terpisah yang juga harus diberi perhatian yang mencukupi;
- lebar cerobong mesti sesuai dengan output dandang. Sebagai contoh, jika daya berada dalam lingkungan 30 kW, maka diameter lubang asap mestilah sekurang-kurangnya 13 mm;
- dandang mesti dilengkapi dengan sensor suhu dan tekanan;
- anda tidak dapat memasang peralatan gas di ruang bawah tanah;
- dilarang meletakkan saluran paip gas di kawasan berbahaya kebakaran;
- tidak kira jenis saluran paip gas (terbuka atau tertutup), paip mestilah logam;
- di dalam bilik dengan dandang, mesti ada alat analisa aras gas dan injap elektrik yang dapat digunakan untuk mematikan bekalan gas.
Nasihat berguna! Untuk pemasangan dandang gas dan penyediaan semua dokumentasi yang diperlukan, anda memerlukan kemahiran dan alat khas. Sekiranya anda tidak mempunyai satu atau yang lain, lebih baik menghubungi organisasi khusus.

Pemasangan dandang gas yang berdiri di lantai biasanya lebih sukar dan lebih mahal daripada model yang dipasang di dinding
Mengganti peralatan lama
Sekiranya anda memutuskan untuk menukar peralatan pemanasan lama untuk yang baru dengan tangan anda sendiri, maka anda perlu melakukan ini mengikut urutan berikut:
- sistem lama dipusingkan. Paip yang tersumbat dapat mengurangkan hayat perkhidmatan bahkan dandang baru yang berkualiti tinggi, jadi lebih baik menyingkirkan kotoran dan penyumbatan menggunakan pemampat khas. Sekiranya mustahil untuk membersihkan paip, maka lebih baik menggantinya dengan yang baru;

Sekiranya, semasa mengganti peralatan pemanasan, tidak mungkin membersihkan paip lama, ada baiknya menggantinya dengan yang baru
- peralatan lama sedang dibongkar;
- dandang baru dipasang. Dalam kes ini, ambil kira semua cadangan yang dinyatakan dalam arahan operasi dandang;
- sambungkan dandang ke sistem gas serombong. Sekiranya rumah anda tidak mempunyai cerobong sendiri, maka anda harus berhati-hati membeli cerobong sepaksi untuk dandang gas. Arahan untuk dandang biasanya menunjukkan keperluan untuk parameter cerobong. Ini adalah titik yang sangat penting, kerana jika lebar atau ketinggiannya tidak mencukupi, produk pembakaran akan memasuki ruangan;
- dandang disambungkan ke saluran paip gas. Ini hanya dapat dilakukan oleh organisasi dengan kebenaran yang sesuai;
- dandang merempuh sistem pemanasan dan sistem PVA;
- kerja pentauliahan sedang dijalankan. Ini adalah titik yang sangat penting di mana operasi dandang yang cekap dan keseluruhan sistem bergantung.
Pemasangan dandang gas
Untuk memasang dandang gas baru, anda juga perlu melakukan beberapa langkah:
- periksa sama ada semua komponen ada - kit mesti termasuk templat pemasangan, jalur untuk menyambungkan gas dan air, saluran paip yang diperlukan dan dandang itu sendiri;
- pilih tahap untuk memasang bar berengsel, pasangkannya;
- pasang gasket untuk saluran paip air dan gas, tanggalkan palam pelindung;
- pasang dandang itu sendiri, sambungkan litar air dan sistem bekalan gas ke dalamnya;
- sambungkan bekalan kuasa, sambungkan dandang ke cerobong.
Anda juga harus mempertimbangkan momen dengan penurunan voltan, seperti yang disebutkan di atas. Penstabil voltan mana yang terbaik untuk dandang gas bergantung pada model kuasa dan peralatan.
Dandang gas TOP 10: gambaran keseluruhan model dan pengeluar terbaik
Anda boleh berhujah tanpa henti mengenai kelebihan model tertentu dandang gas. Pakar pemanasan mengesyorkan 10 model berikut yang telah membuktikan diri mereka dengan baik di pasaran antarabangsa.
BAXI SLIM 2300Fi
Dandang gas Itali dengan dandang terbina dalam dan ruang pembakaran tertutup. Sangat sesuai digunakan dengan sistem bekalan gas domestik. Ini benar-benar selamat digunakan, kerana mempunyai sekumpulan automasi yang besar untuk perlindungan dan kawalan.
Ia juga memiliki kemungkinan alat kawalan jauh dan fungsi pengaturan otomatis dan pemeliharaan suhu dalam rangkaian pemanasan. Nampak bergaya, boleh diubah menjadi kerja LPG, pembakarnya diperbuat daripada keluli tahan karat. Sistem diagnosis diri dimulakan jika perlu. Satu-satunya kelemahan dandang ini adalah harganya yang tinggi.
PROTHERM BEAR 40 TLO
Dandang gas kompak di lantai. Ia dicirikan oleh panel kawalan yang mudah digunakan untuk memantau status sistem dengan mudah. Dandang ini memerlukan dandang luaran untuk memanaskan air dalam sistem bekalan air. Di samping itu, dandang ini mempunyai sistem kawalan automatik untuk bekerja pada ketinggian, terdapat litar khas untuk insurans terhadap terlalu panas. Terdapat mod operasi musim sejuk dan musim panas dan kemampuan untuk beroperasi menggunakan gas cecair.
Titik lemah dandang ini adalah termokopel, yang harus diubah setelah beberapa tahun beroperasi secara aktif. Dandang tidak murah, tetapi ini diimbangi dengan kelebihannya. Harga purata ialah 378 ribu rubel.
KONORD KSC-GV-12N
Dandang pemasangan domestik dengan harga yang berpatutan. Ia dicirikan oleh prestasi, kebolehpercayaan dan ketahanan yang stabil. Tubuh dibuat menggunakan teknologi lancar khas, yang dapat menghilangkan masalah karat pada jahitan. Tahap nyalaan pembakar diatur secara automatik, sehingga meningkatkan kecekapan unit. Dandang boleh bertahan sehingga 15 tahun jika digunakan dengan teliti, dan ini adalah petunjuk kukuh walaupun untuk model asing.
Kelebihan lain adalah tahap kebisingan yang rendah. Dandang mudah dipasang dan cekap walaupun pada tekanan gas rendah. Kelemahan model ini adalah kawasan pemanasan yang agak kecil, jadi ada baiknya membelinya untuk rumah kecil. Harga modelnya adalah 85 ribu rubel.
AOGV-23,2-3 SELESA
Dandang sangat mesra alam. Ini bermaksud bahawa gas keluar lebih bersih daripada banyak model lain. Dari sensor hanya terdapat termometer dail. Terdapat fungsi pencucuhan piezo automatik.
Dandang, walaupun agak sederhana, tidak bersahaja dalam operasi, menjimatkan, mudah dikendalikan. Mengatasi tugasnya walaupun tekanan gas dalam sistem menurun. Kelemahannya termasuk kesederhanaan visual dengan latar belakang model asing yang lebih mahal. Harga rendah dandang pemanasan untuk rumah persendirian adalah kelebihan utamanya.
EKONOMI AOGV-11.6-3
Salah satu dandang lantai terkecil di pasaran domestik. Ia berfungsi hanya untuk pemanasan, tetapi memerlukan sedikit ruang dan beratnya sedikit.Adalah mungkin untuk membina semula untuk menggunakan gas cecair dan bukannya gas asli. Sangat senang dikendalikan.
Kestabilan operasi tidak bergantung pada voltan di rangkaian elektrik, jadi ia boleh digunakan walaupun lonjakan kuasa sering berlaku. Tekanan gas dalam rangkaian di bawah standard tidak mempengaruhi kualiti kerja.
Ciri khas lain adalah jangka hayat yang panjang kerana kesederhanaan reka bentuk. Dandang ini tidak boleh mempunyai kawasan pemanasan yang besar dan sistem perlindungan yang sempurna, tetapi kuasanya cukup untuk memanaskan rumah persendirian kecil.
BAXI LUNA 3 COMFORT 240 Fi
Harga tinggi dandang gas litar dua untuk memanaskan rumah persendirian lebih daripada diimbangi dengan kebaikannya. Dandang sangat baik untuk sistem gas domestik, menunjukkan operasi yang stabil pada tekanan gas di bawah yang diperlukan. Panel kawalan digital dan dipasang bukan sahaja pada dandang, tetapi juga di tempat yang sesuai untuk anda.
Seperti dandang moden yang lain, alat ini mengatur ulang operasi pada gas cair, mempunyai penapis terbina dalam untuk pembersihan air. Kelemahannya termasuk kepekaan yang tinggi terhadap penurunan voltan, oleh itu, penstabil harus segera dibeli bersama dengan dandang.
BOSCH GAZ 4000 W ZWA 24-2 A
Model ini sangat sesuai untuk memanaskan rumah dengan kawasan yang luas - hingga 300 meter persegi. Yang menarik perhatian adalah kemungkinan menyambungkan pengawal suhu bilik ke panel kawalan. Terdapat petunjuk kerosakan dan mod operasi, perlindungan terbina dalam daripada terlalu panas, kemungkinan kemacetan pam dan pembekuan.
Cerobong sepaksi untuk dandang gas jenis ini mesti dibeli secara berasingan. Titik lemah dandang ini adalah pam, dan pembaikannya agak mahal. Harga modelnya ialah 193 ribu rubel.
BUDERUS LOGAMAX U042-24K
Dandang Jerman yang terpasang di dinding sepenuhnya senyap. Air panas, sering digunakan bukan hanya di bangunan kediaman, tetapi juga di kemudahan industri dan di perumahan dan perkhidmatan komunal. Kuasa kerja dapat diselaraskan secara berterusan. Terdapat perlindungan terhadap terlalu panas, pembekuan, daya tarikan dan sensor tekanan. Berkesan dalam beberapa mod operasi: musim panas, musim sejuk, lantai hangat. Satu-satunya negatif: suhu air panas boleh turun naik. Dandang berharga kira-kira 220 ribu rubel.
PROTHERM GEPARD 23 MOV
Oleh kerana kekuatan tinggi model ini, cerobong untuk dandang gas di rumah persendirian harus cukup besar. Model ini dicirikan oleh kecekapan tinggi, harga berpatutan dan kemudahan pengurusan. Terdapat paparan LCD untuk menampilkan semua parameter operasi. Terdapat mod operasi musim sejuk dan musim panas, fungsi autodiagnostik. Minus - ia berfungsi hanya dengan air bersih, jadi anda perlu memasang penapis air... Harga - 187 ribu rubel.
VAILLANT TurboTEC PRO VUW INT 242-3-H
Versi dandang litar dua yang baik dengan keupayaan untuk menyesuaikan suhu air. Ia berfungsi di bawah tekanan yang berkurang, kelihatan bergaya dan mudah dikendalikan. Terdapat mod diagnosis diri. Panel kawalan adalah mekanikal. Terdapat sistem perlindungan pelbagai peringkat terbina dalam. Kekurangan - kelihatan bising, hanya berfungsi dengan air bersih.
Jawapan kepada persoalan bagaimana memilih dandang gas untuk memanaskan rumah persendirian agak rumit dan memerlukan pendekatan yang penuh perhatian. Dengan menumpukan pada nasihat artikel dan ulasan model terbaik TOP-10, anda pasti akan dapat membuat pilihan yang tepat dan membeli alat yang berkualiti untuk memanaskan rumah persendirian.