Kadang-kadang disarankan membuat dandang bahan api pepejal untuk pembakaran lama dengan tangan anda sendiri: gambar dan rajah boleh didapati secara bebas. Keupayaan untuk mengendalikan alat dan tangan yang mahir memberikan perkhidmatan yang baik ketika membina kediaman rumah atau musim panas anda sendiri. Selalu ada keperluan untuk membina beberapa jenis struktur sendiri. Bagaimanapun, ini dapat mengurangkan kos usaha. Unit pemanasan tidak terkecuali. Pada masa lalu, orang mengupah pembuat kompor untuk meletakkan batu bata ketuhar... Hari ini, dandang bahan api pepejal yang telah lama dibakar menjadi yang paling popular.
Kandungan
- 1 Prinsip operasi dandang bahan api pepejal dan perantinya
- 2 Cara membuat dandang bahan api pepejal yang terbakar lama dengan tangan anda sendiri: gambar dan gambar rajah
- 3 Bagaimana saya membuat dandang bahan api pepejal untuk pembakaran lama: ulasan dan cadangan
- 4 Dandang bahan api pepejal DIY (video)
Prinsip operasi dandang bahan api pepejal dan perantinya
Bahan bakar fosil pepejal adalah sumber tenaga paling kuno bagi manusia. Mustahil untuk meninggalkannya sepenuhnya, walaupun di dunia moden. Selain itu, selain kayu bakar dan arang batu, banyak jenis pepejal yang mudah terbakar telah muncul hari ini:
- briket gambut - gambut kering dan termampat menghasilkan banyak haba semasa pembakaran;
- briket dari sisa kerja kayu - habuk papan, serutan dan kulit pokok yang dimampatkan;
- arang birch - sama seperti untuk barbeku;
- sisa kitar semula dari tapak pelupusan;
- pelet pemanasan bahan api - bahan api halus yang diperoleh dengan menekan habuk papan. Boleh diberi makan secara automatik;
- habuk papan kering biasa.
Jelas bahawa semua bahan bakar ini diperoleh melalui pemrosesan pelbagai sampah, yang menyelesaikan masalah penggunaan di perusahaan dan sejalan dengan ekonomi "hijau".
Nasihat berguna! Bahan api yang paling mudah didapati di atas adalah habuk papan. Sekiranya anda bermaksud menggunakannya untuk pemanasan, pastikan kelembapannya kurang dari 20%. Petunjuk besar parameter ini tidak akan membenarkan penghasilan gas pirolisis, kerana sebahagian besar tenaga pemanasan akan mengeringkan bahan bakar.
Sebagai hasil daripada aktiviti manusia, sejumlah besar sampah dihasilkan yang dapat diubah menjadi bahan bakar bertenaga tinggi, yang menyebabkan munculnya di pasar dandang pemanasan bahan api pepejal yang lama. Tidak seperti dapur konvensional, unit ini tidak berfungsi pada pembakaran bahan bakar itu sendiri, tetapi pada pemisahannya akibat pemanasan. Di ruang kerja dandang seperti itu, produk penguraian gas bahan bakar pepejal dibakar. Skim operasi ini beberapa kali lebih efisien daripada pembakaran bahan bakar fosil konvensional.Gas pirolisis, mengeluarkan sejumlah besar tenaga.

Prinsip operasi dandang bahan api pepejal lama membakar
Peranti loji penjana gas tidak terlalu rumit. Anda juga boleh membina dandang bahan api pepejal dengan pembakaran lama dengan tangan anda sendiri. Lukisan versi termudah kelihatan seperti ini:
- tangki silinder tertutup, yang mempunyai menetas untuk menyimpan bahan bakar, peniup dan bukaan untuk memasang cerobong;
- pengedar udara terletak di dalam tangki, yang menghasilkan pusaran gas pirolisis. Ia dilekatkan pada tiub teleskopik yang bergerak. Struktur seperti omboh keseluruhan ini menekan bahan bakar dari atas. Pembakaran gas berlaku di atas omboh, dan pembakar bahan bakar di bawahnya;
- penukar haba dibina ke ruang atas di mana suhu maksimum dicapai.
Pembakaran perlahan bahan api pepejal berlaku di ruang bawah. Ia dicapai dengan menyesuaikan bekalan udara ke blower. Gas yang dikeluarkan membakar secara intensif di ruang atas dan memanaskan penyejuk.
Nasihat berguna! Anda tidak boleh menggunakan reka bentuk termudah untuk pembuatan dandang yang akan memanaskan bangunan kediaman secara berterusan. Untuk melakukan ini, anda perlu membeli produk siap, atau membuat pilihan yang lebih kompleks dan boleh dipercayai.
Dandang bahan api pepejal yang lama terbakar sangat diperlukan di rumah persendirian, di bangunan utiliti, garaj dan rumah hijau. Mereka akan sangat bermanfaat apabila terdapat industri pemprosesan kayu yang besar, kerana sampah diberikan di perusahaan seperti itu hampir tanpa bayaran. Unit-unit ini juga diperlukan di kawasan di mana terdapat gangguan bekalan gas secara berkala. Pemasangan sedemikian mempunyai banyak kelebihan, tetapi ada juga satu kelemahan penting - kos yang sangat tinggi. Itulah sebabnya hari ini adalah penting untuk membuat dandang bahan api pepejal untuk pembakaran jangka panjang. Lukisan untuk ini boleh digunakan dalam pelbagai tahap kerumitan. Ia bergantung pada tahap kemahiran.
Artikel berkaitan:
|
Cara membuat dandang bahan api pepejal yang terbakar lama dengan tangan anda sendiri: gambar dan gambar rajah
Sebelum memulakan pembuatan dandang, anda perlu memutuskan reka bentuknya. Pilihannya bergantung pada tujuan unit. Sekiranya ia bertujuan untuk memanaskan bilik utiliti kecil, garaj atau rumah negara, maka tidak perlu membuat litar air di dalamnya. Pemanasan bilik seperti itu akan berlaku secara langsung dari permukaan dandang, dengan perolakan jisim udara di dalam bilik, seperti dari tungku. Untuk kecekapan yang lebih besar, adalah mungkin untuk mengatur pukulan udara paksa unit menggunakan kipas. Sekiranya terdapat sistem pemanasan cecair di dalam bilik, perlu menyediakan peranti di litar dandang dalam bentuk gegelung dari paip atau reka bentuk serupa yang lain.
Rajah menghubungkan dandang bahan api pepejal ke sistem pemanasan
Pilihan pilihan juga bergantung pada jenis bahan bakar pepejal yang akan digunakan. Untuk pemanasan dengan kayu biasa, diperlukan peningkatan jumlah tungku, dan untuk penggunaan pelet bahan bakar kecil, sebuah wadah khas dapat diatur dari mana bahan bakar berbutir secara otomatis dimasukkan ke dalam dandang. Untuk pembuatan dandang pembakar panjang bahan api pepejal dengan tangan anda sendiri, anda boleh mengambil gambar sejagat. Ia sesuai untuk semua jenis bahan api pepejal yang digunakan.
Kami akan memberitahu anda langkah demi langkah bagaimana dan dari bahagian mana anda boleh membuat dandang pemanasan bahan api pepejal untuk pembakaran lama mengikut skema yang dicadangkan:
- kami akan menyiapkan tempat di mana unit masa depan akan dipasang. Pangkalan di mana ia akan berdiri mestilah rata, kuat, kaku dan tahan api.Asas konkrit atau besi tuang tebal atau plat keluli sangat sesuai untuk ini. Dinding juga mesti dilapisi dengan bahan tahan api sekiranya kayu;
- kami mengumpulkan semua bahan dan alat yang diperlukan: dari mana kami memerlukan alat untuk pengelasan busur elektrik, penggiling dan ukuran pita. Bahan: keluli lembaran 4 mm; Paip keluli 300 - mm dengan dinding 3 mm, serta paip lain berdiameter 60 dan 100 mm;

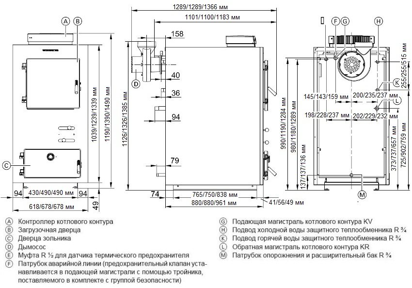
Struktur dan prinsip kerja dandang bahan api pepejal
- untuk membuat dandang bahan api pepejal untuk pembakaran lama, perlu memotong sekeping panjang 1 m dari paip besar 300 mm. Mungkin dan sedikit lebih sedikit, jika perlu;
- potong bahagian bawah dari kepingan keluli mengikut garis pusat paip dan kimpal, lengkapkannya dengan kaki dari saluran sepanjang 10 cm;
- pengedar udara dibuat dalam bentuk bulatan yang diperbuat daripada kepingan keluli dengan diameter 20 mm lebih kecil daripada paip. Pendesak dari sudut dengan ukuran rak 50 mm dikimpal ke bahagian bawah bulatan. Untuk ini, anda boleh menggunakan saluran dengan ukuran yang sama;
- dari atas di tengah pengedar kami mengimpal paip 60 mm, yang seharusnya lebih tinggi daripada dandang. Di tengah cakera pengedar, potong lubang di sepanjang paip, sehingga ada terowong yang melalui. Ia diperlukan untuk bekalan udara. Peredam dipotong di bahagian atas paip, yang memungkinkan untuk menyesuaikan bekalan udara;
- di bahagian paling bawah dandang, kami membuat pintu kecil, dilengkapi dengan kait dan engsel, yang menuju ke panci abu agar mudah membuang abu. Potong lubang untuk cerobong dari atas di dalam dandang dan kimpal paip 100 mm ke tempat ini. Pada mulanya, ia bergerak sedikit ke sisi dan naik 40 cm, dan kemudian tegak menegak ke atas. Laluan cerobong melalui siling bilik mesti dilindungi mengikut peraturan keselamatan kebakaran;
- kami sedang menyelesaikan pembinaan dandang pemanasan bahan api pepejal untuk pembakaran lama dengan membuat penutup atas. Di tengahnya mesti ada lubang untuk paip pengedar udara. Sentuhan dengan dinding dandang mestilah sangat ketat, tidak termasuk masuknya udara.
Nasihat berguna! Untuk menyalakan dandang bahan bakar pepejal buatan sendiri yang terbakar lama, yang gambarnya ditunjukkan di atas, perlu: tanggalkan penutup dan angkat pengatur, isi dandang dengan bahan bakar ke bahagian atas dan tuangkan dengan cecair mudah terbakar, letakkan semuanya di tempatnya dan lemparkan obor pembakar ke dalam paip pengatur. Apabila bahan bakar telah menyala, kurangkan aliran udara ke minimum sehingga hanya membara. Selepas itu, gas pirolisis akan menyala dan dandang akan menyala.

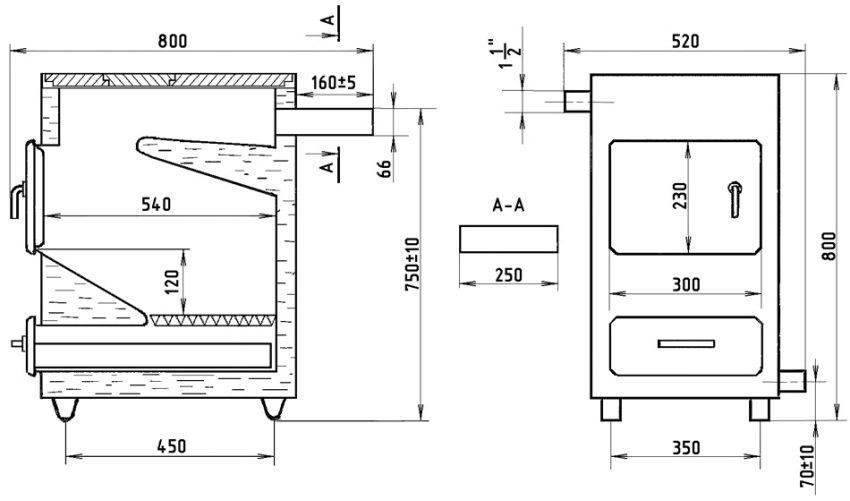
Dandang pembakar panjang - pandangan keratan
Bagaimana saya membuat dandang bahan api pepejal untuk pembakaran lama: ulasan dan cadangan
"Saya bekerja di kilang papan. Saya biasa membawa simpul dan memotong kereta. Saya belajar tentang dandang bahan api pepejal untuk pembakaran lama, membaca ulasan dan memutuskan untuk melakukannya. Berlaku. Sekarang memerlukan kayu bakar tiga kali lebih sedikit, dan jumlah haba yang sama ”.
Alexander Nikolaev, Syktyvkar
“Saya melihat kuali ajaib di garaj rakan. Kami sedang membaiki kereta bersamanya pada waktu pagi. Dia, ketika meletakkan kayu di dalamnya, tidak menyentuhnya hingga petang. Saya tidak dapat memahami apa-apa sehingga dia menjelaskan keseluruhan skema kepada saya. Di sini, saya juga mendapat idea untuk meletakkan diri saya di garaj. Seorang rakan mengatakan dia akan memberikan gambar. "
Nikolay Platonov, Surgut

Perbezaan normal dan dandang pirolisis
"Jika anda memutuskan untuk membuat, sebagai contoh, di dacha anda dandang bahan bakar pepejal dengan pembakaran yang panjang, yang ulasannya terdapat di rangkaian, kemudian lakukan semuanya dengan jelas mengikut skema yang mematuhi semua peraturan keselamatan. Dan kemudian, jiran saya membakar dacha saya ketika dia memasang dandang dalam lubang ”.
Andrey Shirshov, Tyumen
Peranti pemanasan yang dijelaskan di atas akan berfungsi dengan setia, membolehkan anda menjimatkan tenaga. Walau bagaimanapun, jangan lupa melakukan semuanya dengan cekap, tanpa menyimpang dari skema.