Dandang bahan api pepejal autonomi untuk memanaskan rumah persendirian yang dikendalikan dengan kayu, arang batu, kok, gambut, pelet, briket, butiran, dan menggunakan sisa kayu dan pertanian. Penjana haba mesra alam tidak bergantung pada bekalan gas dan elektrik terpusat. Model gabungan meningkatkan kualiti sumber utama atau simpanan, meningkatkan kecekapan, dan mengurangkan kos sistem pemanasan.
Kandungan
Dandang bahan api pepejal untuk memanaskan rumah persendirian: ciri reka bentuk
Bahan untuk pembuatan unit: besi tuang atau keluli dandang berkekuatan tinggi. Sifat bahan mempengaruhi jangka hayat dan inersia termal struktur. Dandang keluli sangat tahan terhadap ubah bentuk di bawah tekanan dan perubahan suhu. Besi tuang tahan terhadap kakisan.
Kelebihan dandang keluli: harga yang berpatutan, penampilan estetik, pemuatan yang mudah. Kelebihan peralatan besi tuang: kesederhanaan dalam operasi (mereka tidak memerlukan penyediaan khas air dandang), ketahanan, keupayaan untuk mengeluarkan haba untuk jangka masa yang panjang.
Unit besi tuang dipilih untuk rumah dengan kediaman tetap orang. Untuk kotej musim panas dan rumah desa dengan kediaman berkala, dandang keluli digunakan.
Set penjana haba yang lengkap dibahagikan kepada reka bentuk litar tunggal atau dua litar. Satu litar menyediakan dandang bahan api pepejal untuk memanaskan rumah persendirian. Dua cincin bebas membolehkan pemanasan bilik dan bekalan air panas.
Pergantungan tenaga disebabkan oleh peralatan unit dengan sistem bekalan udara paksa untuk pembakaran atau pemuatan bahan bakar automatik.
Pada masa pembakaran bahan bakar, dandang pemanasan tradisional dan pirolisis dibezakan. Penjana gas menyediakan penguraian bahan api jangka panjang dengan pembebasan haba, yang berlaku apabila terdapat kekurangan oksigen. Beberapa model menyediakan untuk memuatkan dandang bahan api pepejal untuk pembakaran lama seminggu sekali.
Dandang pirolisis diminati oleh pengguna kerana kebebasan tenaga, penggunaan bahan bakar ekonomi, keramahan alam sekitar dan kecekapan tinggi.
Peraturan cerobong untuk dandang bahan api pepejal
Keperluan tambahan untuk organisasi cerobong ditunjukkan oleh pengeluar dandang dalam dokumentasi teknikal. Pematuhan wajib terhadap cadangan diperlukan untuk mengekalkan proses pembakaran yang stabil, operasi unit yang selamat dan cekap.
Artikel berkaitan:
Dandang bahan api pepejal untuk pembakaran lama dengan litar air untuk rumah. DALAMid, peranti dan prinsip operasi dandang bahan api pepejal. Dandang pirolisis. Kriteria pemilihan dandang.
Dandang dengan arang batu terutama dilengkapi dengan cerobong seramik yang dapat menahan suhu hingga 1200 ℃. Gas serombong tidak meninggalkan timbunan pada permukaan seramik yang halus. Struktur bahan yang stabil tidak terkena kakisan dan tidak takut pemeluwapan. Unsur saluran udara, lapisan penebat, shell konkrit tanah liat diperluas digunakan untuk pemasangan bahagian cerobong dalaman dan luaran.
Cerobong logam diperbuat daripada keluli tahan panas yang tahan kakisan yang dapat menahan suhu 800 ℃. Reka bentuk cerobong keluli adalah paip sandwic: lapisan penebat haba terletak di antara cangkang logam luar dan dalam. Cerobong keluli sesuai dengan semua jenis dandang bahan api pepejal. Unsur wajib cerobong keluli adalah pemampas ubah bentuk linier. Unit ini diperlukan untuk menjaga keutuhan dan keketatan bushing paip melalui bumbung.
Batu bata tahan api, tradisional untuk perapian, perapian, dapur pemanasan, jarang digunakan untuk meletakkan cerobong asap. Pemasangan cerobong batu bata memerlukan kemahiran dan pengalaman dalam penghasilan kerja relau.
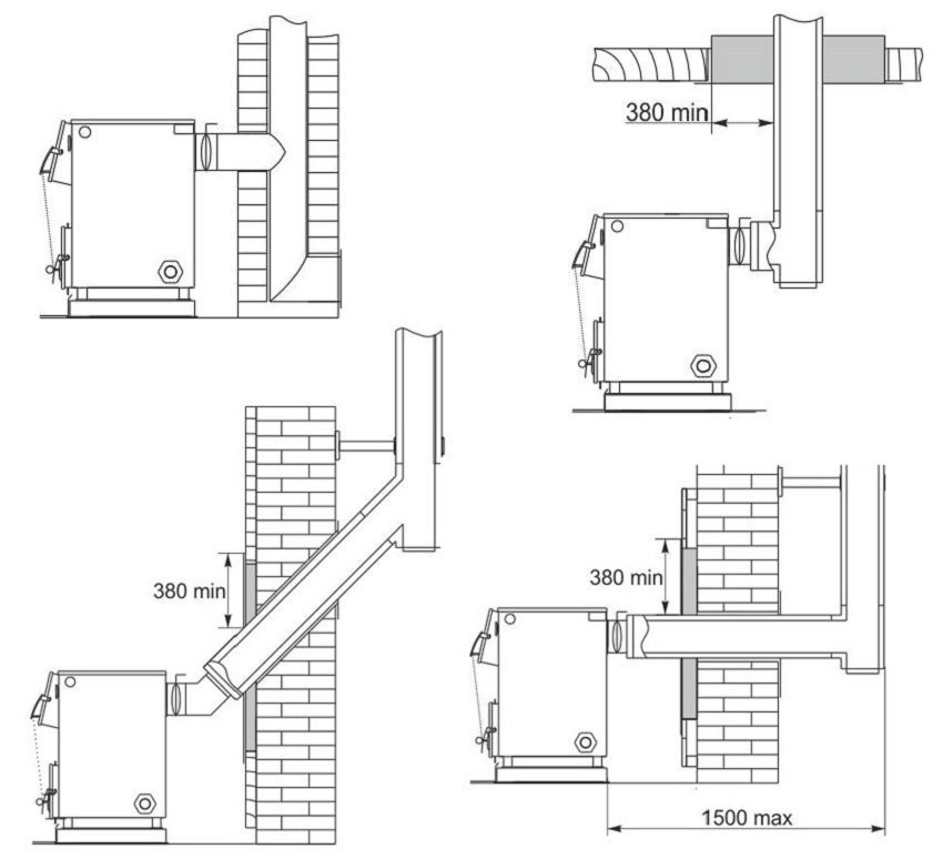
Keperluan untuk mengatur cerobong untuk dandang bahan api pepejal:
- penampang cerobong mestilah sesuai dengan ukuran paip cawangan dandang untuk mengeluarkan gas;
- ketinggian, diameter, panjang bahagian booster cerobong ditunjukkan dalam dokumentasi teknikal dandang;
- menegak struktur diperhatikan tanpa mengira lokasi cerobong (panjang bahagian cerun yang dibenarkan tidak melebihi 1 meter);
- cerobong berdinding dua (bertebat) yang diperbuat daripada paip logam digunakan di bilik sejuk dan di luar rumah (reka bentuknya menghalang penyejukan produk pembakaran, penurunan draf dan penampilan pemeluwapan);
- pada bahagian berpusing, penetasan disusun untuk membersihkan cerobong;
- perhatikan jarak pencegahan kebakaran antara cerobong dan struktur yang mudah terbakar;
- kepala cerobong dilengkapi dengan deflektor dan penahan percikan api.
Penting! Sekeping T yang dipasang di bawah sambungan antara dandang dan cerobong menghalang pemeluwapan memasuki ruang pembakaran.

Dandang bahan api pepejal dengan bekalan bahan bakar automatik dalam sistem pemanasan rumah persendirian
Gambar rajah pendawaian untuk dandang pemanasan bahan api pepejal
Sambungan langsung dandang ke litar pemanasan berbahaya kerana pembentukan perbezaan suhu pada penukar haba. Apabila keadaan "titik embun" tercapai, kondensat terbentuk di dalam ruang pembakaran. Persekitaran yang agresif menyumbang kepada reaksi oksidatif, pembentukan deposit dan pemusnahan permukaan dalaman penjana.
Penting! Inersia proses pembakaran bahan api pepejal adalah ciri yang mesti diambil kira semasa menyambungkan dandang ke paip. Peredaran yang tidak seimbang dan terganggu boleh menyebabkan mendidih air dandang dan kerosakan pada penjana haba.
Cara untuk mengoptimumkan operasi unit bahan api pepejal:
- tangki simpanan haba antara dandang dan litar pengguna;
- pemisah hidraulik litar (dandang dan sekunder);
- kumpulan keselamatan dengan injap pelepasan yang boleh disesuaikan (dekat atau di atas dandang);
- tangki pengembangan (terbuka atau diafragma);
- saluran udara untuk mengeluarkan udara dari sistem.
Penting! Dandang disambungkan dan disalurkan hanya dengan paip logam. Pilihan yang ideal adalah skema paip pemanasan dandang mengikut projek, yang dikembangkan oleh pakar pemanasan.

Skema paip dandang bahan api pepejal: 1 - cerobong; 2- termostat overhed; 3 - dandang bahan api pepejal; 4 - kumpulan keselamatan dandang; 5 - elektrik atau dandang gas; 6 - penumpuk haba (tangki penyangga); 7 - injap tiga hala dengan pemacu elektrik; 8 - pemisah udara; 9 - pam edaran; 10 - injap pencampuran tiga hala; 11 - injap periksa; 12 - sensor tampalan; 13 - injap solekan; 14 - perlindungan daripada berjalan kering; 15 - tangki pengembangan; 16 - sensor suhu luar; 17 - automasi bergantung kepada cuaca; 18 - pengatur bilik; 19 - radiator pemanasan; 20 - pam edaran; 21 - injap pencampuran tiga hala
Jenama dandang bahan api pepejal buatan Rusia
Analisis ciri teknikal akan membantu mendapatkan idea umum dandang bahan api pepejal untuk pembakaran lama. Ulasan pengguna di forum bebas memberikan penilaian objektif terhadap perkembangan domestik.
Jadual 1. Dandang bahan api pepejal Zota Mix dan Pellet yang dihasilkan oleh peralatan pemanasan dan kilang automasi (Krasnoyarsk):

Jadual 1. Dandang bahan api pepejal Zota Mix and Pellet dihasilkan oleh peralatan pemanasan dan kilang automasi (Krasnoyarsk)
Kelebihan:
- Kecekapan dandang julat model Zota Mix - 80%, Pelet - 90%;
- Dandang bahan api pepejal gabungan Zota Mix beroperasi pada sebarang jenis bahan bakar (gas cecair atau semula jadi, elektrik, bahan bakar cair);
- ruang pembakaran dan kotak abu terletak di dalam jaket air;
- peredam cerobong boleh laras, pengatur daya tarikan mekanikal dan penyedut udara oleh ejektor, yang dipasang di pintu relau, memastikan pembakaran bahan bakar lengkap dengan draf minimum;
- permukaan luar badan ditutup dengan sebatian polimer anti-karat;
- pintu yang boleh ditanggalkan di belakang panel depan menyediakan akses untuk membersihkan cerobong;
- kemungkinan pembaikan.
Kekurangan:
- anda memerlukan bekalan bahan bakar dan tempat menyimpannya;
- kos penghantaran, pemunggahan dan penyimpanan kayu bakar, arang batu, briket;
- penurunan prestasi dandang Zota Mix ketika menggunakan bahan bakar berkualiti rendah (arang batu coklat sebanyak 10 ÷ 20%, kayu bakar mentah sebanyak 60 ÷ 70%);
- untuk Zota Mix - pemuatan bahan bakar secara manual, pembersihan panci abu, dinding relau, saluran gas dan paip serombong;
- penyediaan wajib air dandang (kekerasan hingga 2 mg-eq / l);
- pemasangan di bilik berasingan;
- untuk dandang garis Zota Mix, perlu memasang penumpuk haba, alat penghilang asap, dandang.
Jadual 2. Gabungan alat bahan api pepejal dengan litar air (AKTV). Pengilang Sibteploenergomash LLC (Novosibirsk):

Jadual 2. Gabungan alat bahan api pepejal dengan litar air (AKTV). Pengilang Sibteploenergomash LLC (Novosibirsk)
Kelebihan:
- versi anggaran dandang bahan api pepejal dengan litar air untuk rumah (harga 11,000 ÷ 25,000 rubel);
- saiz padat;
- penukar haba air merangkumi kotak api dari semua sisi (kecuali bahagian depan);
- laci abu tarik;
- soket pemasangan untuk pengatur draf;
- keupayaan untuk menyambung ke cerobong mana-mana konfigurasi;
- penukar haba keluli membolehkan penyambungan dipermudahkan untuk pemanasan paip (tanpa pencampuran);
- reka bentuk disesuaikan untuk berfungsi pada gas dan elektrik.
Kekurangan:
- reka bentuk ketinggalan zaman, automasi primitif berkualiti rendah;
- ciri teknikal yang dinyatakan oleh pengeluar (kuasa, kawasan yang dipanaskan dan kecekapan), menurut ulasan pengguna, tidak sesuai dengan petunjuk sebenar.
Jadual 3. Dandang pirolisis bahan api pepejal Bourgeois & K dari NPO TES LLC (Kostroma):
Kelebihan:
- menyediakan pembakaran bahan api yang stabil dari sebarang tahap dan tahap kelembapan;
- operasi dandang yang cekap dari satu tab selama 8 jam;
- penggunaan bahan api yang menjimatkan;
- keserasian penjana dengan sistem peredaran semula jadi atau paksa;
- unit mesra alam, bahan bakar melalui kitaran pembakaran lengkap tanpa menghasilkan pelepasan berbahaya ke atmosfera;
- reka bentuk kotak api menyediakan jalan keluar ke mod operasi yang berkesan dalam 40 minit.
Kekurangan:
- pemasangan yang kompleks: sambungan mesti dibuat oleh pekerja perusahaan khusus yang dilesenkan untuk jenis aktiviti ini (jika tidak, jaminan dari pengilang tidak terpakai untuk unit);
- pengisian bahan bakar manual dan pembersihan ruang pembakaran;
- berat badan yang besar.

Pemasangan dan pengoperasian dandang bahan api pepejal mesti dilakukan sesuai dengan peraturan keselamatan kebakaran
Untuk memanaskan pondok negara, garaj atau rumah hijau adalah mungkin untuk membuat dandang bahan api pepejal untuk pembakaran lama dengan tangan anda sendiri. Video dengan bahan mengenai topik ini boleh didapati di Internet. Tetapi ingat bahawa syarat utama untuk menggunakan peralatan pemanasan adalah keselamatan kebakaran. Dan hanya pengeluar yang bertauliah yang dapat menjamin pemenuhan syarat ini dalam keadaan operasi dan pemasangan peralatan yang betul.