Perancangan pembinaan yang betul dapat dilihat pada hasil akhir. Projek rumah bata merangkumi beberapa dokumen yang mengandungi semua maklumat yang diperlukan untuk pembinaan bangunan. Anda boleh membuat rancangan sedemikian sendiri, atau menggunakan versi siap pakai yang diambil dari Internet. Semasa pembangunan projek, perlu dipertimbangkan semua kod dan peraturan bangunan, serta keperluan seni bina.
Kandungan
Apa kelebihan membina rumah bata
Bata adalah bahan yang sangat tahan lama. Struktur yang dibuatnya mempunyai jangka hayat yang panjang. Kebolehpercayaan struktur bata telah diuji mengikut masa. Penting untuk diingat bahawa dinding yang terbuat dari bahan semacam itu memberikan pertukaran udara, yang menyumbang kepada penciptaan iklim mikro yang baik di tempat tinggal.
Kelebihan lain dari bahan tersebut adalah bahawa ia mempunyai kemungkinan seni yang cukup luas. Untuk memastikan ini, anda hanya perlu melihat foto fasad tersebut. Bata penamat juga merupakan bahan biasa. Pelbagai warna dan tekstur membolehkan setiap orang membuat pilihan, dengan mengambil kira ciri-ciri individu bangunan.
Dengan bantuan batu bata, anda boleh membina struktur dengan gaya klasik dan moden. Hampir semua aliran seni bina sesuai dengan bahan ini. Kelebihan dinding bata adalah ketahanan mereka terhadap api. Kualiti memadam kebakaran meningkatkan keselamatan bangunan.
Nota! Apabila memilih syarikat pemaju yang berkelayakan, semua kerja dilakukan dengan cepat dan berkualiti tinggi berdasarkan turnkey. Anda boleh membina rumah bata di hampir mana-mana laman web.
Kelebihan lain dari bahan ini adalah ketahanannya terhadap faktor persekitaran yang buruk. Ciri-ciri teknikal bata memastikan ketahanannya yang tinggi terhadap turun naik atmosfera, angin, dan turun naik suhu.
Pondok bata dan rumah persendirian yang selesa.Mereka dibezakan dengan penampilan mereka yang rapi. Keramahan persekitaran bangunan seperti itu juga dianggap sebagai kelebihan utama.
Oleh itu, bangunan batu bata adalah pilihan yang bagus untuk wilayah mana pun. Semasa membuat projek untuk bangunan masa depan, banyak nuansa mesti dipertimbangkan. Adalah sangat penting untuk mengkaji beberapa aspek negatif dari bahan tersebut. Ini akan membolehkan anda menilai kemungkinan membina rumah tersebut.
Kekurangan membina rumah dari bahan bata
Bangunan bata kelihatan kukuh dan ketat. Dia mewujudkan kebolehpercayaan dan keselesaan. Walau bagaimanapun, bahan tersebut mempunyai beberapa aspek negatif yang harus diberi perhatian. Kelemahan utama adalah kos tinggi rumah bata. Harga inilah yang sering menjadi faktor penentu ketika memilih bahan binaan.
Dinding bata memerlukan penebat tambahan. Rumah ini bertebat dari dalam dan dari luar. Sekiranya anda mahu, anda boleh melakukannya tanpa penebat, tetapi ini memerlukan pembinaan dinding tebal, yang akan mempengaruhi kos akhir projek. Semasa melaksanakan projek untuk rumah bata dengan loteng, penebat diperlukan dalam semua keadaan, termasuk untuk penebat bahagian dalam bumbung.
Kelemahan lain dari bangunan bata adalah hygroscopicity bahan ini. Properti ini menentukan daya serap produk. Kelembapan yang diserap oleh bata dari udara mempunyai kesan buruk terhadap ciri teknikalnya dan mengurangkan jangka hayat operasinya.
Harga akhir rumah bata juga termasuk kos yang diperlukan untuk mengatur asas yang boleh dipercayai. Reka bentuk ini sangat berat dan oleh itu memerlukan asas yang kuat.
Walaupun terdapat semua kekurangan yang berkaitan dengan pembinaan bangunan tersebut, rumah-rumah bata terus menduduki kedudukan utama dalam pasaran harta tanah. Bahan ini dapat digunakan untuk membangun bukan hanya bangunan kediaman, tetapi juga bangunan tambahan.
Projek khas dan individu rumah bata
Projek siap merangkumi beberapa komponen. Pertama sekali, ia merangkumi dokumentasi yang mengandungi semua maklumat yang diperlukan mengenai bahan-bahan yang akan digunakan dalam pembinaan rumah. Dan juga projek ini mempunyai maklumat yang membolehkan anda melakukan pembinaan langkah demi langkah dan pendaftaran objek yang telah siap.
Sekiranya terdapat keperluan untuk melaksanakan semua pekerjaan dalam waktu sesingkat mungkin, menggunakan projek siap dari rumah bata akan membantu menjimatkan masa. Pelan khas merangkumi semua maklumat yang anda perlukan, tetapi anda harus berhati-hati ketika memilihnya. Ini disebabkan oleh fakta bahawa beberapa projek mungkin tidak sesuai dengan ciri-ciri individu dari tapak di mana pembinaan akan dijalankan.
Nota! Pilihan projek standard boleh didapati di laman web khusus di Internet. Cukup untuk memasukkan pertanyaan yang sesuai ke bar carian penyemak imbas. Sekiranya projek itu tidak memenuhi ciri wilayah laman web tertentu, anda boleh menghubungi pakar yang akan membetulkannya.
Projek khas pondok bata, dan juga rumah persendirian, dapat disemak semula mengikut pilihan tertentu. Sekiranya anda mahu, anda boleh membuat perubahan pada lokasi bukaan tingkap dan pintu. Ia dibenarkan untuk menyesuaikan ukuran dan bentuknya. Anda juga boleh mengubah jalan komunikasi kejuruteraan (talian elektrik, bekalan air, dll.).
Sekiranya perlu, projek siap dilengkapi dengan penyelesaian reka bentuk baru.Di dalam bangunan seperti itu, oven bata dapat dipasang, sesuai dengan projek yang telah disiapkan sebelumnya. Harga untuk rumah dan kediaman musim panas dengan struktur pemanasan seperti itu bergantung pada ciri reka bentuknya.
Projek pembinaan sepenuhnya individu dibangunkan hanya dalam keadaan yang teruk. Contohnya, jika tidak mungkin untuk memasang struktur dengan ciri standard, juga atas permintaan pelanggan. Perlu diingat bahawa membuat rancangan sedemikian memakan masa dan mahal.
Cara merangka projek untuk rumah bata
Perkara pertama yang perlu dilakukan sebelum membuat projek pembinaan batu bata ialah mengkaji ciri-ciri wilayah di mana kerja pembinaan akan dijalankan. Sangat penting untuk menentukan jenis tanah, kerana bergantung pada kriteria ini asas apa yang diperlukan untuk bangunan kediaman masa depan. Ciri-ciri lain dari plot tanah juga perlu diambil kira, termasuk:
- kemungkinan kemerosotan laman web;
- lokasi jalan dan ketibaan;
- kedalaman air bawah tanah.
Projek pondok bata dan rumah persendirian mengambil kira apa sahaja perkara kecil yang boleh mempengaruhi pembinaannya. Sekiranya tanah di laman web ini tidak stabil dan mengalir, maka perlu memilih pangkalan yang sesuai. Jenis asas monolitik tidak digunakan dalam kes ini. Pilihan dibuat antara struktur kolumnar dan papak.
Sebelum memulakan kerja, gambar rajah laman web dibuat. Ini berisi maklumat tentang lokasi bangunan kediaman, serta kemudahan rumah tangga. Perlu menandakan semua struktur, seperti sumur, tangki septik, dan lain-lain. Juga perlu untuk menunjukkan sama ada dinding rumah bata akan dilindungi dari luar atau dari dalam.
Nota! Tahap air bawah tanah yang tinggi memerlukan pengaturan sistem yang akan mengalihkan air dari laman web ini. Komunikasi ini disebut saliran.
Pilihan yang agak biasa adalah membuat projek untuk rumah bata dengan garaj. Dalam kes ini, jenis garaj, dimensinya dan ciri-ciri lain ditentukan, di antaranya perlu diserlahkan elemen reka bentuk. Laluan ke bangunan mestilah percuma. Semua ini diambil kira dalam dokumentasi reka bentuk, yang dipersetujui dengan pelanggan.
Dokumentasi apa yang diperlukan untuk projek pondok bata yang lengkap
Semua dokumentasi yang diperlukan untuk pelaksanaan projek pembinaan bata dibahagikan kepada tiga bahagian. Bahagian pertama disebut seni bina. Ini merangkumi data umum yang mengambil kira keunikan susun atur struktur. Bahagian lain juga perlu dikaji, kerana ini membantu memahami persoalan bagaimana membina rumah bata turnkey. Harga bangunan siap bergantung kepada kerumitan projek. Bahagian seni bina projek merangkumi maklumat berikut:
- pelan lantai;
- bahagian seni bina;
- bahagian depan bangunan;
- pelan bumbung;
- Nota penjelasan.

Projek ini terdiri daripada pelan lantai dan bumbung, bahagian seni bina, bahagian depan bangunan, dan arahan penjelasan
Bahagian kedua adalah bahagian yang membina. Ini termasuk lukisan lantai, struktur kekuda, serta dinding penutup dan galas. Di rumah bata, partisi tebal paling kerap dibuat yang dapat menahan beban tinggi. Ciri-ciri batu juga diambil kira di sini.
Bahagian terakhir dipanggil kejuruteraan. Ini disebabkan oleh fakta bahawa ia mengandungi maklumat tentang semua sistem penting yang akan diletakkan di dalam bangunan. Antaranya ialah bekalan air, pembentungan, pemanasan dan sistem pengudaraan, serta saluran elektrik.
Artikel berkaitan:
Projek rumah moden: kesederhanaan selaras dengan fungsi
Keistimewaan dan kelebihan rumah gaya moden. Tahap reka bentuk. Penciptaan sendiri projek. Contohnya rumah siap.
Cara merangka projek untuk rumah bata satu tingkat
Untuk memastikan keselesaan hidup maksimum di bangunan bata di masa depan, perlu dilakukan pada peringkat reka bentuk untuk menentukan jumlah bilik dan dimensinya. Data ini wajib dicatatkan dalam dokumentasi projek. Kedudukan relatif setiap bilik adalah titik yang sangat penting yang memerlukan kajian yang teliti.
Arkitek wajib mendengar kehendak pelanggan dan menunaikannya, jika mereka tidak bertentangan dengan kod dan peraturan bangunan. Projek rumah bata turnkey, yang hanya terdiri daripada satu tingkat, memerlukan pembahagian kawasan yang boleh digunakan dengan betul. Untuk mencapai fungsi maksimum dari ruang dalaman bangunan satu tingkat dengan bata, sebagai peraturan, jumlah koridor dan jalan masuk diminimumkan.
Maklumat berguna! Semasa merancang rumah satu tingkat, anda juga mesti mengambil kira bahawa anda perlu meminimumkan jumlah bilik. Pematuhan dengan peraturan ini memudahkan pengoptimuman ruang di rumah bata. Pembinaan projek turnkey memerlukan perbelanjaan besar, yang juga dicatatkan dalam dokumen khas - anggaran.
Terdapat beberapa cara biasa untuk meningkatkan kawasan yang boleh digunakan di bangunan satu tingkat. Contohnya, bilik besar boleh dibahagikan kepada zon berfungsi, dan dalam kes ini, pilihan untuk mengatur loteng sangat popular. Projek rumah bata dengan tempat tinggal, yang terletak di bawah bumbung, adalah penyelesaian yang sangat baik.
Semasa merancang struktur bata satu tingkat, perlu dipertimbangkan untuk digunakan. Sekiranya kediaman tetap dirancang di rumah seperti itu, maka ia dilakukan dengan cara yang berbeza daripada, misalnya, rumah negara. Perlu diingat bahawa projek rumah bata dengan tingkat bawah tanah popular kerana pengembangan ruang yang boleh digunakan.
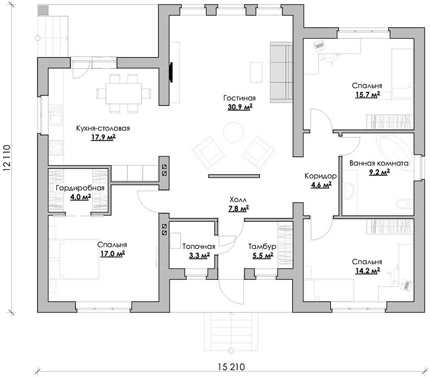
Contoh projek khas rumah bata satu tingkat
Pemilihan jumlah lantai dilakukan terutamanya bergantung pada ciri-ciri individu wilayah di mana kerja pembinaan akan dilakukan. Anggaran jumlah penduduk juga mempengaruhi penentuan jumlah tingkat.
Bangunan bata satu tingkat sering dipilih kerana ekonomi. Kos membina rumah bata jenis ini kira-kira dua kali lebih rendah daripada kos membina struktur dua tingkat. Dimensi laman web juga diambil kira semasa memilih jumlah peringkat.
Sehingga kini, pemaju telah mengenal pasti beberapa pilihan rumah standard yang dicirikan oleh fungsi maksimum. Untuk memilih bangunan yang sesuai, anda perlu membiasakan diri dengan bangunan khas dengan kawasan yang berbeza.
Salah satu jenis bangunan bata satu tingkat yang paling biasa adalah rumah dengan ukuran 6 x 9 m. Struktur seperti itu dapat diperluas dengan pemanjangan. Selalunya terdapat garaj yang berdekatan dengannya. Projek rumah bata dengan dimensi seperti itu memiliki tata letak khas berikut: ruang tamu, beranda, bilik mandi, ruang dapur, dan juga 2 kamar tidur. Kadang-kadang jumlah bilik tidur dapat ditingkatkan menjadi 3, tetapi penyelesaian ini memerlukan kehadiran beranda yang wajib.
Pilihan tipikal lain ialah bangunan berukuran 8 x 10 m. Bangunan ini mempunyai bentuk segiempat tradisional. Lantai bawah tanah dianggap atribut wajib struktur ini. Bumbung bangunan sedemikian paling tinggi. Ini perlu untuk mempermudah organisasi loteng di bawahnya.Bilik yang serupa boleh dilengkapi sebagai bilik tidur atau pejabat peribadi. Penyelesaian ini akan membebaskan ruang maksimum pada tahap pertama.
Nota! Rumah satu tingkat dengan loteng disyorkan untuk pasangan tanpa anak atau dengan satu anak.
Tidak kurang popular adalah projek rumah 9 x 9 m. Dalam kes ini, jumlah bilik tidur meningkat menjadi 5. Kehadiran ruang tambahan membolehkan anda melengkapkan bilik simpanan dan bilik persalinan.
Dan, akhirnya, pilihan lain adalah rumah seluas 12 x 12 m. Bangunan satu tingkat seperti ini mempunyai banyak ruang yang boleh digunakan, yang membolehkan anda menerapkan susun atur yang paling sesuai untuknya. Bangunan jenis ini sedang dibina tanpa loteng. Foto-foto projek rumah bata dengan kawasan seperti itu boleh didapati dengan mudah di Internet. Ruang dalaman bangunan seperti itu terbahagi kepada dua zon. Yang pertama merangkumi semua bilik utiliti yang diperlukan, dan yang kedua dikhaskan untuk mengatur ruang peribadi penghuni.
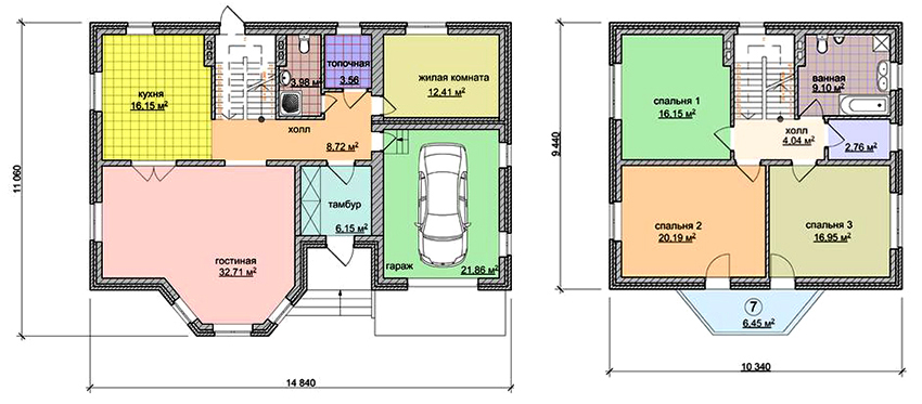
Projek rumah bata dua tingkat: ciri penciptaan
Untuk membina bangunan bata dua tingkat memerlukan lebih banyak bahan, yang tentunya akan mempengaruhi kos kewangan. Walau bagaimanapun, struktur seperti itu membenarkan harganya. Dalam beberapa kes, pembinaan bangunan tersebut adalah satu-satunya jalan keluar yang betul. Sebagai contoh, ini berlaku dalam keadaan ketika dimensi laman web tidak membenarkan pembinaannya seluasnya.
Tingkat dua menghilangkan sekatan perancangan yang wujud di bangunan satu tingkat. Sebelum memulakan kerja pembinaan, perlu membuat projek. Foto rumah bata jenis ini membolehkan anda menghargai kelebihannya.
Susun atur standard mengambil kira penempatan bilik tidur di tingkat dua. Kawasan tahap kedua juga digunakan untuk melengkapkan kawasan kerja. Sebaliknya, ruang tamu, dapur dan ruang makan terletak di tingkat bawah.
Bangunan dua tingkat dengan loteng tidak selalu menjadi pilihan yang baik. Ini disebabkan oleh fakta bahawa pemasangan bumbung yang sesuai dan bekalan utiliti ke tingkat ketiga secara signifikan dapat mempengaruhi kos akhir pembinaan.
Rumah yang mempunyai kawasan yang cukup membolehkan anda tidak perlu risau tentang ketebalan dinding. Di sebuah rumah bata, partisi jenis-beban, biasanya, terdiri daripada tiga baris batu bata dan memakan banyak ruang.
Nota! Bangunan dua tingkat adalah pilihan terbaik. Rumah sedemikian mengekalkan keseimbangan antara kos kewangan dan ruang berguna, yang memungkinkan untuk melaksanakan susun atur yang kompeten.
Projek rumah dua tingkat bata: susun atur dan dimensi bangunan
Ramai orang tertanya-tanya apakah dimensi optimum untuk struktur bata dua tingkat. Pemilihan ukuran bergantung pada banyak faktor. Pertama sekali, perlu dipertimbangkan jumlah penduduk. Untuk keluarga 3-6 orang, bangunan seluas 140-160 m² sangat sesuai. Di rumah sedemikian, anda boleh meletakkan semua premis rumah dan peribadi yang diperlukan.
Strukturnya, dengan dimensi yang serupa, berisi ruang tamu yang luas, 3 bilik tidur, dapur dan 2 bilik mandi. Memfokuskan pada harga rumah bata turnkey, perlu membuat projek. Pertama, pertimbangkan ciri-ciri susun atur tingkat pertama.
Kawasan tingkat pertama kediaman seperti itu cukup untuk melengkapkan ruang tamu yang besar. Dianjurkan untuk membaginya menjadi kawasan fungsional yang berasingan. Studio ruang tamu selalunya merangkumi ruang memasak dan ruang makan.Sekiranya projek rumah itu menyediakan kehadiran teres, maka pilihan terbaik adalah mengatur jalan keluar dari ruang tamu.
Foto projek rumah bata membolehkan anda menghargai kelebihan struktur dua tingkat. Tingkat bawah juga merangkumi kemudahan seperti bilik tidur tetamu dan bilik utiliti. Keistimewaan susun atur bangunan sedemikian membolehkan anda membuat kediaman yang unik dan luas. Semasa membuat projek, seseorang tidak boleh melupakan kod dan keperluan bangunan. Tingkat dua boleh memuatkan tiga bilik tidur, misalnya, dua untuk kanak-kanak dan satu untuk bilik tetamu, serta bilik mandi. Sebagai peraturan, bangunan sedemikian dirancang bersama dengan teras.
Projek dan harga rumah bata turnkey untuk pelaksanaannya
Sebelum memulakan pembinaan, perlu mengira kos kewangan, termasuk kos tambahan. Harga dan reka bentuk rumah bata berkaitan langsung. Selain membeli bahan, membayar untuk projek dan kerja tukang, anda juga perlu mengambil kira kos lain, seperti:
- membersihkan tempat;
- penyelarasan laman web;
- perkhidmatan topografer;
- penyewaan peralatan penggerudian;
- pendawaian komunikasi kejuruteraan.
Oleh itu, harga membina rumah bata turnkey ditentukan bergantung pada banyak faktor standard dan individu. Rata-rata, struktur satu tingkat berharga pelanggan kira-kira 1.5 juta rubel, dan satu dua tingkat - 3 juta rubel. Pengiraan kos tepat dilakukan secara berasingan untuk setiap projek dan mengambil kira nuansa berikut:
- jenis asas;
- ketebalan dinding (galas dan penutup);
- kos bahan;
- kos komunikasi kejuruteraan;
- jenis bumbung;
- kos kertas kerja.
Maklumat berguna! Jumlah akhir bergantung pada jumlah bilik di dalam bangunan. Dan juga kos pembinaan rumah bata dipengaruhi oleh hiasan dan hiasannya.
Semasa memilih projek yang diperlukan, para pakar mengesyorkan memilih dimensi bangunan, dengan mengambil kira prospek. Jika tidak, apabila ahli keluarga baru muncul, ruang tinggal mungkin tidak mencukupi.
Merangka bangunan batu bata adalah usaha serius yang memerlukan pendekatan profesional yang kompeten. Tidak digalakkan melakukan ini sendiri. Semasa memilih jenis pembinaan, ciri-ciri individu di lokasi, keadaan cuaca di wilayah tertentu dan kemampuan kewangan pelanggan diambil kira.