Projek rumah satu tingkat dengan garaj menarik pemaju dengan seni bina dan keindahan fungsinya. Oleh itu, semakin banyak orang lebih suka penyelesaian seperti itu, yang menyediakan semua yang mereka perlukan untuk kehidupan di luar bandar. Artikel ini akan membantu anda memahami kelebihan dan kekurangan projek tertentu, serta memberikan contoh ilustrasi susun atur dan foto bangunan yang berjaya dari bahan yang berbeza.
Kandungan
- 1 Nuansa dan perkara penting dalam pembinaan rumah satu tingkat dengan garaj
- 2 Kelebihan dan kekurangan projek siap rumah satu tingkat dengan garaj
- 3 Projek rumah satu tingkat dengan garaj: bangunan pelbagai bentuk
- 4 Gambaran ringkas projek rumah satu tingkat yang terbaik
- 5 Mengkaji projek moden rumah satu tingkat dengan garaj sehingga 150 m²
- 6 Bahan untuk pembinaan bangunan dengan garaj: gambar rumah dan ciri projek
Nuansa dan perkara penting dalam pembinaan rumah satu tingkat dengan garaj
Kehidupan yang selesa di luar bandar tidak mungkin dilakukan tanpa kereta, jadi syarikat pembinaan kreatif ketika membuat projek untuk bangunan dengan garaj. Tidak kira kawasan rumah masa depan dan susun aturnya, ketersediaan premis untuk kenderaan memerlukan pematuhan terhadap peraturan tertentu.
Pastikan untuk memperhatikan nuansa seperti:
- keselamatan;
- kebolehpercayaan dan kekuatan asas;
- sistem pengudaraan;
- dimensi optimum premis, khususnya garaj;
- bentuk seni bina bangunan;
- bahan untuk pembinaan.
Catatan! Pintu masuk ke rumah dengan garaj mestilah mudah, dan ukuran bilik itu sendiri harus sesuai dengan dimensi kenderaan.
Tidak ada satu projek rumah satu tingkat yang indah dengan garaj yang lengkap tanpa pintu pagar. Reka bentuk ini dianggap sebagai salah satu elemen utama susunan bangunan dan mempengaruhi penampilannya.Dalam kebanyakan kes, pemilik perumahan pinggir bandar lebih suka sistem automatik yang sangat dipercayai dan selesa.
Lebar pintu minimum ialah 2.5 m. Angka ini dapat dilebihi sedikit. Sekiranya ia dirancang untuk membina sebuah garaj untuk dua buah kereta, bilik tersebut mesti dilengkapi dengan pintu pagar yang besar. Pada masa yang sama, ketinggian struktur tetap standard, ia adalah 2.1 m.
Kelebihan dan kekurangan projek siap rumah satu tingkat dengan garaj
Mana-mana projek bangunan kediaman mempunyai kelebihan dan kekurangan. Sekiranya anda tidak mengambil kira susun atur rumah dengan garaj dan bahan dari mana ia dibuat, kelebihan bangunan satu tingkat berikut dapat dibezakan:
- Bangunan satu tingkat tidak mempunyai tangga, jadi mereka mempunyai keadaan tempat tinggal yang selamat untuk orang tua dan kanak-kanak.
- Semua kerja persiapan dan pembinaan memerlukan lebih sedikit masa daripada yang diperlukan oleh struktur dengan beberapa tingkat.
- Kos pembinaan pondasi dikurangkan - tidak ada asas tugas berat yang diperlukan untuk menampung berat struktur berat dengan beberapa tingkat.
- Rumah satu tingkat jauh lebih senang dan senang dijaga.
- Untuk pelaksanaan projek rumah satu tingkat dengan garaj di bawah satu bumbung, lebih sedikit ruang yang diperlukan di lokasi daripada untuk pembinaan struktur yang terpisah.
- Anda tidak perlu pergi ke luar untuk masuk ke dalam kereta.
- Malah sambungan yang tidak dipanaskan akan jauh lebih panas daripada garaj yang terpisah.

Sebuah rumah satu tingkat sedang dibina dengan cepat, dan pembinaannya akan dapat dilaksanakan secara ekonomi.
Syarikat pembinaan, serta pemilik perumahan pinggir bandar, juga memperhatikan beberapa kelemahan yang berkaitan dengan pelaksanaan projek bangunan kediaman satu tingkat dengan garaj:
- Dimensi dan bentuk bangunan bergantung sepenuhnya pada ukuran plot.
- Kadang-kadang rumah satu tingkat lebih mahal untuk pemaju daripada bangunan dua tingkat. Ini disebabkan oleh peningkatan luas bumbung, dan juga panjang komunikasi.
- Keistimewaan mengoperasikan garaj menjadikannya bilik bahaya kebakaran, jadi anda perlu mengambil langkah perlindungan khas untuk mencegah kebakaran di rumah.
Penting! Projek ini semestinya menyediakan pengudaraan paksa berkualiti tinggi, dan ini tidak hanya berlaku untuk garaj, tetapi juga untuk rumah secara keseluruhan. Jika tidak, iklim mikro di premis kediaman tidak menguntungkan, dan udara akan lembap.
Projek rumah satu tingkat dengan garaj: bangunan pelbagai bentuk
Bentuk bangunan adalah konsep yang luas. Ini merangkumi bukan hanya geometri dinding, tetapi juga bentuk bukaan tingkap dan pintu, jenis bumbung, parameter beranda dan kanopi pelindung di atasnya, dll. Semua elemen ini mempengaruhi bahagian luar bangunan. Bentuk rumah boleh mempunyai geometri yang betul atau salah.
Jenis struktur berikut dianggap betul (dari sudut pandang geometri):
- segi empat tepat dan padu;
- Rumah berbentuk U dan L;
- H- dan T-seperti.
Bangunan berbentuk U-, T-, L- dan H sesuai untuk satu keluarga besar atau beberapa generasi sekaligus. Rumah sedemikian mempunyai banyak kelebihan. Mereka membenarkan anda menambahkan pintu masuk individu untuk projek untuk setiap keluarga, dan juga memberi ruang peribadi kepada semua penduduk. Sudah tentu, dalam kes ini, beberapa premis bertujuan untuk rekreasi bersama.
Semasa mengembangkan projek untuk bangunan dengan geometri yang tidak teratur, mereka paling kerap bermula dari bentuk tapak di mana rumah itu akan dibina. Untuk mencapai keharmonian, pemaju biasanya mengulangi bayangannya dalam seni bina. Tugas ini tidak mudah dan memerlukan pendekatan individu, kerana projek seperti itu cukup kompleks.
Pembinaan sebuah rumah yang berbentuk tidak teratur digunakan terutamanya untuk alasan estetik, bukan praktikal.Bangunan dengan seni bina sedemikian menonjol dengan latar belakang umum, ia unik dan kelihatan tidak biasa. Lebih-lebih lagi, untuk mencapai bentuk yang tidak teratur, sama sekali tidak perlu melanggar geometri dinding. Cukup untuk melengkapkan bumbung dengan reka bentuk tidak standard yang asli.
Projek dan gambar rumah satu tingkat berbentuk persegi dan segi empat tepat
Projek rumah berbentuk kubus yang indah satu tingkat menarik pemaju dengan kadar penjimatan haba yang tinggi. Bangunan-bangunan ini mempunyai struktur sederhana yang memanaskan dengan cepat dan menyejukkan dengan perlahan. Kesan penjimatan haba dicapai kerana kawasan hubungan permukaan dinding dengan persekitaran luaran sangat kecil. Bangunan persegi ringkas, cepat dan senang dibina. Di sinilah senarai kelebihan mereka berakhir.
Pembahagian ruang dalaman di sebuah rumah persegi disertai dengan kesulitan tertentu. Adalah sangat bermasalah untuk menyusun susun atur yang selesa, kerana dalam projek-projek bangunan seperti itu, terdapat hampir selalu ruang bersebelahan. Penempatan premis seperti itu disertai dengan ketidakselesaan tertentu bagi penghuni.
Di samping itu, sangat sukar untuk memasukkan premis teknikal dan ekonomi ke dalam projek bangunan persegi, misalnya, pantri, bilik dobi, bilik dandang, dan lain-lain. Oleh itu, jika anda ingin memperoleh sebuah rumah kecil dengan garaj, anda harus meninggalkan struktur kubik.
Catatan! Bangunan kubik biasanya didirikan di pondok musim panas untuk kegunaan bermusim. Mereka tidak mempunyai syarat untuk kediaman tetap.
Tidak seperti struktur persegi, rumah segi empat sangat diminati. Dalam projek bangunan seperti itu, anda boleh merangkumi banyak bilik terpencil, memperuntukkan kawasan untuk garaj atau bilik utiliti terbina dalam. Bangunan dalam bentuk segi empat tepat membolehkan anda membahagi bahagian dalam rumah menjadi bahagian "bising" dan "tenang". Kelebihan ini juga berguna sekiranya anda ingin mencari ruang rehat sejauh mungkin dari garaj.
Projek rumah satu tingkat dengan loteng akan menjadi alternatif yang sangat baik untuk pemilik kawasan pinggir bandar yang tidak mampu membina bangunan dua tingkat. Struktur segi empat tepat sangat sesuai untuk tujuan ini.
Rumah segi empat tidak bersaiz kecil, yang merupakan kelemahan yang ketara. Pembinaan bangunan sedemikian memerlukan kawasan yang luas. Pada masa yang sama, syarat tambahan dikemukakan untuk laman web ini. Permukaannya mestilah rata, dan bentuknya mestilah berkadar dan simetri.
Apakah ciri-ciri projek rumah satu tingkat berbentuk L dan berbentuk U
Bangunan sudut mempunyai seni bina yang asli dan estetik. Dengan kekompakan luaran, bahagian dalamnya cukup luas. Bentuk sudut membolehkan anda mengatur teres yang selesa. Dinding bangunan akan melindungi ruang ini dari angin. Projek sedemikian sesuai untuk pemilik kawasan pinggir bandar yang berbentuk sudut atau persegi, di mana mustahil untuk membina sebuah rumah segi empat tepat.
Sambungan tambahan secara organik sesuai dengan susun atur struktur berbentuk L, oleh itu, di dalam rangkaian anda dapat menjumpai banyak projek rumah satu tingkat dengan garaj dan beranda atau teres. Biasanya unsur-unsur ini diletakkan di sudut dalam, yang membentuk gerbang bangunan. Selalunya, teras juga diberi bentuk sudut yang menyokong ciri-ciri geometri kediaman.
Sekiranya bangunan mempunyai satu pintu masuk, maka biasanya terletak di sayap, digabungkan dengan teras. Walau bagaimanapun, projek dengan dua pintu masuk bebas mendapat permintaan yang lebih tinggi. Mereka diletakkan di atas kabel yang berbeza.
Berbanding dengan bangunan standard, rumah sudut mempunyai lebih banyak pilihan ruang dalaman. Tata letak sering merangkumi kawasan "tenang" dengan pejabat dan bilik tidur di satu sayap, sementara yang lain disediakan untuk dapur dan ruang tamu. Projek sedemikian boleh melibatkan banyak premis untuk pelbagai tujuan, jadi rumah sudut sangat selesa dan sesuai untuk kediaman tetap. Pintu masuk ke garaj boleh dilakukan dari jalan dan dari tempat.
Nasihat berguna! Semasa mengembangkan projek untuk rumah berbentuk L, sangat penting untuk mengambil kira lebar kabel. Sekiranya sayap pendek bangunan dibuat lebih lebar, keseluruhan struktur akan kelihatan lebih menarik dan harmoni.
Projek rumah berbentuk U memungkinkan untuk merealisasikan potensi yang tersembunyi di bangunan sudut ke tahap yang lebih besar. Pada masa yang sama, seni bina mereka kelihatan lebih organik dan seimbang.
Satu bangunan akan menampung semua premis yang diperlukan untuk kehidupan yang selesa dan selesa:
- ruang tamu;
- kolam renang;
- Bangunan teknikal;
- zon hadapan;
- garaj, dll.
Bangunan berbentuk U membolehkan anda mengawal tahap pencahayaan. Bilik-bilik dapat diposisikan sehingga sejumlah cahaya siang masuk ke setiap kamar. Dengan merancang rumah besar dengan betul, anda dapat mengelakkan keperluan memasang telaga cahaya yang memberikan akses ke sinar matahari di kawasan pedalaman.
Gambaran ringkas projek rumah satu tingkat yang terbaik
Kawasan rumah satu tingkat boleh berbeza. Syarikat pembinaan menawarkan projek standard rumah satu tingkat sederhana 8x8, 8x10 dan 10x10 m dengan susun atur bilik berubah-ubah.
Nasihat berguna! Semasa menyiapkan projek untuk rumah satu tingkat, sangat penting untuk mempertimbangkan kemungkinan pengembangan di masa depan. Mungkin pada masa akan datang, pemilik ingin menambah luas bangunan, jadi disarankan untuk memikirkan susun atur dengan mengambil kira nuansa ini.
Sekiranya dikehendaki, pemilik plot tanah dapat memperluas projek semasa proses pembinaan atau mengubahsuai rumah yang sudah siap:
- Menambah bumbung dengan loteng pada struktur - penambahan ini tidak akan mempengaruhi harga pembinaan terlalu banyak, tetapi pemiliknya akan mempunyai lantai tambahan di mana mungkin untuk mengatur bilik tidur atau pejabat.
- Untuk membuat atap bernada - untuk ini salah satu dinding dinaikkan, akibatnya ruang tambahan (ceruk) terbentuk, yang dapat digunakan mengikut budi bicara anda.
- Sekiranya saiz laman web membenarkan, anda boleh menambah luas rumah dengan menambahkan bilik tambahan kepadanya.
- Tambahkan ruang bawah tanah atau ruang bawah tanah - ruang ini sesuai untuk mengatur sauna, garaj atau bilik simpanan besar.
- Aturkan bumbung rata - jika laman webnya kecil, bumbung rata boleh menjadi pengganti penuh untuk kawasan rehat terbuka.
Artikel berkaitan:
Projek rumah dua tingkat dengan garaj: kesatuan keselesaan dan seni bina laconic
Bata, konkrit busa, konkrit berudara sebagai bahan binaan asas. Teknologi rangka wayar. Bangunan dengan rumah besar, balkoni, teres.
Projek rumah satu tingkat: gambar dan nuansa pembinaan bangunan 8x8 m dengan tiang
Projek bangunan dengan tingkat bawah mendapat permintaan tinggi di kalangan pemaju. Struktur sedemikian mempunyai banyak kelebihan:
- membolehkan anda menjimatkan bahan binaan;
- tingkat bawah tanah akan berfungsi sebagai asas tambahan;
- di ruangan bawah tanah, anda boleh meletakkan garaj atau melengkapkan bilik utiliti, membebaskan ruang tamu di bahagian atas;
- ruang bawah tanah sesuai untuk memasang peralatan pemanasan dan komponen nod dari sistem bekalan air, yang akan mengeluarkan semua unsur yang tidak sedap dipandang dari tempat tinggal;
- ruang bawah tanah boleh digunakan sebagai bilik bawah tanah dengan syarat yang diperlukan untuk menyimpan pemeliharaan dan penuaian.
Kelemahan projek tersebut termasuk kos tinggi, serta keperluan sistem pengudaraan dan kalis air berkualiti tinggi di ruang bawah tanah. Selain itu, tidak setiap laman web sesuai untuk pembinaan bangunan dengan ruang bawah tanah.
Sebelum memilih projek rumah satu tingkat dengan ruang bawah tanah dan garaj, anda perlu mencari jawapan kepada soalan berikut:

Di sebuah rumah kecil satu tingkat, ruang bawah tanah dapat berfungsi sebagai ruang bawah tanah atau bilik utiliti
- Berapakah kedalaman jadual air bawah tanah? Sekiranya air bawah tanah dekat dengan permukaan, pembinaan ruang bawah tanah tidak mungkin dilakukan.
- Berapakah cerun plot tanah? Sekiranya tapak pembinaannya landai dengan teruk, meratakan kawasan yang luas akan memakan kos yang tinggi.
- Jenis tanah apa yang akan dibina bangunan? Sebuah rumah dengan kawasan batu dan kawasan paya tidak serasi.
Kelebihan dan keistimewaan projek rumah satu tingkat 8 hingga 10 m
Rancangan untuk rumah satu tingkat 8 x 10 m tersebar luas, kerana kebanyakan orang yang tinggal di luar bandar mempunyai kereta, dan kadang-kadang beberapa. Rumah dengan ukuran sebegini memungkinkan untuk melengkapkan garaj yang baik di mana anda dapat menyembunyikan kereta anda dari kesan keadaan cuaca yang buruk. Sekiranya perlu, perluasan dibuat dan sistem komunikasi dimasukkan ke dalamnya tanpa banyak kesukaran.
Kelebihan susun atur rumah satu tingkat 8 x 10 m, termasuk garaj:
- Keselesaan - pintu garaj melindungi kereta daripada kesan negatif dari pelbagai faktor persekitaran, dan ukurannya memudahkan membawa benda besar ke dalam rumah.
- Kos efektif - tidak perlu membina pondasi dan dinding yang terpisah untuk garaj, yang akan dipisahkan dari bangunan utama dengan hanya satu partisi. Oleh kerana salah satu dindingnya biasa, ini memungkinkan untuk menjimatkan bahan binaan.
- Fungsi - Garaj boleh digunakan sebagai bilik simpanan yang sesuai untuk menyimpan barang-barang besar seperti kereta bayi dan skuter, basikal, peralatan sukan dan peralatan taman.
Nasihat berguna! Untuk menyimpan barang di garaj sebaik mungkin, disarankan untuk memasang rak di dinding, rak alat khas dan pemegang basikal. Mereka akan mengosongkan ruang dalaman, dan juga menjaga ketenteraman di dalam bilik.
Projek rumah satu tingkat 8 x 10 m mempunyai kekurangan:
- Sekiranya garaj tidak terlindung, maka sejuk dari bilik ini akan meresap ke dalam rumah.
- Sekiranya sistem pengudaraan tidak dipasang dengan betul atau tidak berfungsi dengan sangat cekap, gas ekzos kenderaan akan mencemarkan udara di kawasan tempat tinggal.
Kelebihan dan kekurangan rumah satu tingkat 10 x 10 m dengan loteng
Luas rumah satu tingkat berukuran 10x10 m adalah kira-kira 150 m². Bangunan dengan dimensi sedemikian memungkinkan untuk menampung keluarga besar dengan anak-anak dengan selesa.
Kelebihan struktur dengan lantai loteng:
- menjimatkan bahan binaan (tidak seperti pemanjangan dalam bentuk lantai dua penuh, loteng besar di bawah atap gable sudah termasuk dalam anggaran);
- jika anda menggunakan ruang lantai loteng dengan betul, anda boleh menggandakan fungsi bangunan;
- bumbung besar mengekalkan haba lebih lama, yang menjimatkan pemanasan;
- meletakkan komunikasi ke lantai loteng tidak memerlukan banyak usaha dan kos yang serius;
- ruang di bawah bumbung boleh digunakan untuk melengkapkan kawasan rekreasi dengan meletakkan ruang biliar atau perpustakaan di sana;
- bahagian dalam loteng akan kelihatan sangat asli.
Kekurangan projek rumah satu tingkat yang besar dengan loteng:
- jika teknologi pembinaan lantai loteng dilanggar, ruang di bawah bumbung akan
- sejuk; kerana dinding loteng berada pada sudut, tingkap khas dipasang di ruangan ini, harganya 2-3 kali lebih tinggi daripada kos struktur konvensional (yang sama berlaku untuk perabot, selalunya ia dibuat mengikut pesanan);
- jika terdapat banyak salji pada musim sejuk, bilik di bawah bumbung akan menjadi gelap.
Mengkaji projek moden rumah satu tingkat dengan garaj sehingga 150 m²
Bangunan dengan keluasan 150 m² boleh memuatkan keluarga 4-5 orang. Projek rumah satu tingkat moden dengan garaj boleh merangkumi ruang tamu, tiga bilik tidur, dapur. Tambahan yang sangat baik untuk struktur seperti itu adalah lantai loteng atau ruang bawah tanah, yang membolehkan anda menyembunyikan pendawaian komunikasi.
Bangunan sedemikian mempunyai banyak kelebihan:
- untuk pembinaan, pelbagai bahan boleh digunakan, misalnya, blok busa, batu, kayu, dan lain-lain;
- saiz padat, yang memungkinkan pembinaan rumah di kawasan kecil;
- peluang untuk mengurangkan kos utiliti, kerana ruang tamu yang memerlukan pemanasan kecil.
Projek moden rumah satu tingkat dalam kategori ini merangkumi bangunan dengan ukuran 11x11, 10x12 dan 12x12 m, serta bangunan dengan loteng dan garaj.
Nasihat berguna! Sekiranya garaj tidak berada di ruang bawah tanah, ia akan menyembunyikan ruang di dalam rumah. Pemilik petak kecil sangat menyedari kekurangan tempat tinggal. Untuk mengimbangi kekurangan ini, disarankan untuk menambah rumah satu tingkat dengan loteng.
Projek rumah satu tingkat dengan garaj: gambar dan kelebihan bangunan berukuran 10x12 dan 12x12 m
Rata-rata, ukuran ruang tamu adalah 140 m² (dengan syarat bahawa projek rumah satu tingkat dengan garaj 10x12 m mempunyai loteng). Seni bina bangunan dan susun atur premis dapat berubah-ubah. Apabila memilih pilihan yang sesuai untuk rumah dengan dimensi seperti itu, sangat penting untuk mempertimbangkan berapa banyak orang yang akan tinggal secara kekal di bawah satu bumbung.
Tidak kira projek yang dipilih, bangunan satu tingkat dengan dimensi 10x12 dan 12x12 m mempunyai sejumlah kelebihan:
- jika anda ingin meningkatkan kawasan yang boleh digunakan di bangunan sedemikian, anda boleh membuat loteng dengan membina atap gable;
- ketiadaan tangga menjadikan rumah ini selamat untuk kanak-kanak dan orang tua, kerana tidak perlu menaiki tangga ke tingkat dua (jika projek tersebut melibatkan loteng, lebih baik mengatur bilik tidur penyewa ini di tingkat pertama);
- Bahagian luar bangunan boleh dipelbagaikan dengan menambahkan elemen seni bina, seperti tingkap teluk atau tingkap panorama, lengkungan dan perincian hiasan lain.
Projek bangunan berukuran 10x12 dan 12x12 m membolehkan anda mengatur tiga bilik tidur di rumah atau mengambil salah satu daripadanya untuk ruang makan (jika anda menggabungkannya dengan ruang tamu, susun atur akan menjadi lebih luas).
Ciri-ciri rumah kampung: projek bangunan lestari dari bar
Di antara semua pilihan yang ada, tempat khas dihuni oleh rumah-rumah kampung satu tingkat yang diperbuat daripada kayu. Rakaman bangunan seperti itu boleh berbeza - dari 6x6 hingga 11x11 m. Itu bergantung pada projek yang dipilih dan ukuran kayu. Bahan semula jadi mendapat permintaan tinggi di kalangan pemaju. Projek rumah kampung, dilaksanakan di kawasan pinggir bandar, kelihatan cantik dan harmoni, sesuai dengan pemandangan semula jadi. Sekiranya anda mengikuti teknologi pembinaan, bangunan seperti itu akan dapat berfungsi untuk jangka masa panjang.

Rumah desa yang diperbuat daripada kayu dicirikan oleh keramahan alam sekitar, ketahanan dan pemuliharaan haba yang baik.
Kelebihan projek rumah satu tingkat dengan bar dengan garaj:
- untuk pembinaan, kayu biasa dan berprofil dapat digunakan, oleh itu, projek rumah kampung mempunyai banyak pilihan reka bentuk;
- bahannya tahan lama dan mesra alam;
- kayu mewujudkan keadaan iklim yang selesa untuk manusia;
- bahan binaan selamat untuk kesihatan penduduk;
- pemasangan komunikasi di rumah tidak memerlukan banyak usaha (kayu sesuai untuk diproses, jadi mudah untuk menggerudi lubang di dinding dan meletakkan pendawaian);
- kayu mempunyai sifat penjimatan panas yang baik, ia tidak membiarkan sejuk di luar, oleh itu, rumah kayu sesuai untuk kawasan dengan musim sejuk.
Penting! Kayu menyerap kelembapan dengan baik, jadi dinding mesti ditutup kalis air. Di samping itu, bahan tersebut boleh menderita acuan dan pelbagai mikroorganisma. Untuk mengelakkan ini, pokok itu harus dirawat dengan agen antiseptik dan pelindung.
Adakah mungkin untuk membuat projek untuk rumah satu tingkat dengan garaj dan rumah mandian di bawah satu bumbung?
Sekiranya anda mengedarkan ruang dalaman dengan betul, maka adalah mungkin untuk meletakkan sauna atau mandi di dalam bilik. Pilihan susun atur ini dapat dilihat pada contoh bangunan 13x16 m. Luas kawasan premis adalah kira-kira 130 m². Dalam kes ini, anda dapat melihat bagaimana pemboleh ubah susun aturnya dibuat berdasarkan projek yang sama.
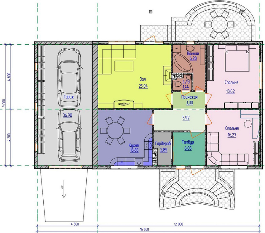
Dalam kes pertama, projek rumah satu tingkat dengan sauna dan garaj merangkumi premis berikut:
- dua bilik tidur (saiz 13.7 dan 13.2 m);
- ruang tamu (21.6 m);
- dapur digabungkan dengan ruang makan (13.2 m);
- garaj (23.2 m);
- bilik persalinan dan bilik teknikal (setiap bilik berukuran 5.7 m);
- bilik mandi kecil (6.8 m).
Oleh kerana kawasan bilik mandi kecil, hanya ada ruang untuk mandi. Dalam keadaan ini, ukuran bilik memungkinkan pemasangan sauna moden, yang dibuat dalam bentuk kabin kompak. Kelebihan projek ini ialah dari bilik persalinan anda boleh pergi terus ke garaj, dan dari sana anda mempunyai akses ke jalan melalui bilik teknikal.
Dalam kes kedua, ukuran bilik mandi meningkat kerana ruang ganti, yang dikeluarkan dari susun atur. Kawasan ini cukup untuk melengkapkan rumah mandian di rumah. Lebih-lebih lagi, kedua-dua projek ini mempunyai dua pintu masuk dari sisi bangunan yang berlainan, yang sangat mudah (dari sisi beranda dan teras tertutup).
Bahan untuk pembinaan bangunan dengan garaj: gambar rumah dan ciri projek
Pelbagai bahan boleh digunakan untuk membina bangunan satu tingkat dengan garaj. Pilihannya bergantung pada kemungkinan anggaran pemilik, ciri-ciri seni bina bangunan, pada projek itu sendiri, dan juga sifat tanah di mana rumah itu akan berdiri.
Untuk pembinaan perumahan pinggir bandar, bahan berikut biasanya digunakan:
- batu bata;
- kayu;
- konkrit selular (blok gas dan buih).
Catatan! Sebelum membeli bahan, perlu mengira dimensi bangunan masa depan dengan teliti. Dokumentasi reka bentuk harus memperincikan jenis pekerjaan yang dicadangkan, prosedur pelaksanaannya, dan juga menyusun senarai bahan yang diperlukan. Berdasarkan data ini, pengiraan dibuat.
Blok apa yang lebih baik untuk membina garaj dari: projek berdasarkan blok konkrit dan busa berudara
Konkrit gas dan busa adalah jenis bahan yang sama - konkrit berudara. Perbezaan di antara mereka hanya terletak pada teknologi pembuatan, yang, sebagai akibatnya, mempengaruhi parameter teknikal dan operasi unit-unit ini.
Bahan untuk pembinaan bangunan konkrit berudara mempunyai ketebalan standard:
- 200 mm;
- 375 mm;
- 400 mm;
- 500 mm.
Semasa mengembangkan projek untuk rumah satu tingkat dengan garaj yang terbuat dari blok busa atau blok gas, sangat penting untuk mempertimbangkan ciri iklim di wilayah ini. Faktanya ialah konkrit mempunyai sifat hygroscopic; oleh itu, dinding bangunan mesti dilindungi daripada kesan faktor persekitaran yang merugikan. Untuk ini, bahan penamat digunakan sebagai:
- berpihak;
- berlian palsu;
- menghadap bata;
- plaster hiasan, dll.
Ketumpatan bahan minimum ialah 300 kg / m². Indikator ini dipilih dengan mempertimbangkan tugas-tugas yang akan digunakan blok-blok tersebut. Sebagai contoh, untuk pembinaan dinding yang menanggung beban, produk dengan ketumpatan sekurang-kurangnya 400 kg / m² akan diperlukan. Partisi di dalam rumah, yang tidak menjalankan fungsi menahan beban, boleh dibina dari bahan yang kurang padat, yang pembeliannya akan lebih murah.
Penting! Untuk melaksanakan projek rumah konkrit berudara satu tingkat dengan garaj, anda perlu menggunakan bahan dengan ketumpatan yang sesuai. Jangan memandang rendah keselamatan.
Cara melaksanakan projek rumah satu tingkat dengan garaj bata
Dalam dokumentasi reka bentuk bangunan sedemikian, batu bata silikat atau seramik diletakkan. Pemilihan bahan bergantung pada ciri iklim kawasan di mana rumah itu akan berada. Dengan mengambil kira kriteria ini, ketebalan batu di dinding galas beban boleh berbeza-beza dalam jarak 250-640 mm.
Penggunaan teknologi inovatif yang bertujuan untuk penjimatan tenaga membolehkan anda mengurangkan jisim batu bata di dinding rumah yang sudah siap. Sekiranya projek rumah bata satu tingkat dengan garaj menyediakan tembok berterusan dinding luaran setebal 640 mm, ciri bangunan dapat diperbaiki dengan mengubah pendekatan pembinaannya. Untuk ini, ketebalan batu dikurangkan menjadi 250 mm, dan busa polistirena yang diekstrusi (150 mm) ditambahkan sebagai pemanas. Untuk hiasan dinding, anda boleh menggunakan batu bata menghadap (120 mm).
Selalunya, bata seramik berongga digunakan untuk pembinaan pondok negara. Kekosongan udara di dalam produk meningkatkan sifat penjimatan haba dari batu. Bata pepejal lebih sesuai untuk mengatur riser pengudaraan. Versi bahan ini lebih berkesan daripada modul tanah liat yang diperluas. Bata padat juga sesuai jika projek menyediakan perapian di rumah.
Ciri-ciri projek rumah bingkai satu tingkat dengan garaj
Rumah yang dibina menggunakan teknologi bingkai kurang dipercayai dan tahan lama daripada bata atau struktur konkrit berudara. Walau bagaimanapun, kos pelaksanaan projek tersebut jauh lebih rendah, dan jangka masa jauh lebih pendek. Selain itu, bangunan kerangka relatif ringan, sehingga dapat dipasang pada pondasi tiang atau tiang. Yayasan sedemikian tidak memerlukan kos yang tinggi dan didirikan dengan cepat.
Dokumentasi reka bentuk bangunan bingkai biasanya merangkumi lukisan dinding luaran dan dalaman. Maklumat terperinci mengenai semua nuansa reka bentuk sangat diperlukan, kerana ia digunakan secara langsung dalam proses pembinaan. Oleh itu, kos projek itu sendiri mungkin lebih tinggi daripada yang berlaku dalam pembinaan bangunan konkrit bata atau berudara.
Rumah bingkai adalah struktur kayu. Kayu digunakan sebagai rak penahan beban, yang dilapisi dengan papan dengan bagian 40x150 atau 50x200 mm. Di barat, bangunan bingkai sangat popular, tetapi di negara kita bangunan seperti ini hanya dikendalikan mengikut musim.
Memerlukan banyak masa untuk memilih projek yang siap atau membangunkan yang baru. Semakin berhati-hati susun atur dipikirkan dan semua nuansa diambil kira, rumah akan lebih selesa dan selesa pada akhirnya.