Brazer logam sendiri adalah pembantu yang sangat diperlukan di rumah persendirian atau di pondok musim panas. Dimensi, foto brazer siap yang diberikan dalam artikel ini akan membantu anda mengatasi susunannya sendiri. Produk sedemikian sering digunakan semasa percutian di alam semula jadi, namun, untuk memahami peranti apa yang diperlukan, anda perlu memahami jenisnya. Lukisan barbeku logam yang siap dengan ukuran kotak dan sokongan boleh digunakan dalam kerja sebagai sampel.
Kandungan
Varieti braziers
Pilihan paling mudah barbeku dimensi logam do-it-yourself, yang gambarnya diberikan di bawah, adalah "akuarium" segi empat tepat biasa dengan kaki. Arang dituangkan ke dalam pangkalannya, kerana panas dihasilkan. Walau bagaimanapun, terdapat banyak reka bentuk moden yang pada asasnya berbeza dari standard. Mereka lebih halus dan cantik.
Terdapat beberapa pilihan untuk pelaksanaan barbeku:
- pegun... Struktur yang cukup besar, paling kerap dipasang pada pangkalan yang tegar. Barbeku logam boleh menjadi elemen reka bentuk laman web yang menarik dan sekaligus indah. Untuk mengesahkan ini dan foto barbeku dengan kedai berasap diperbuat daripada logam dengan tangan anda sendiri (gambar model sedemikian boleh didapati di Internet). Pengrajin moden akan menawarkan pelbagai bentuk produk tersebut, dari mana anda boleh memilih versi asli untuk kegunaan rumah. Ia akan berlangsung selama bertahun-tahun;
- mudah alih... Perbezaan utama antara struktur tersebut adalah kekompakan dan lipatannya. Berat mereka jauh lebih ringan daripada rakan sejawatnya dan boleh muat di dalam troli kereta dengan mudah. Satu-satunya kelemahan produk mudah alih boleh dianggap kerapuhan. Mereka dibuat dari kepingan logam yang lebih nipis untuk mengurangkan berat keseluruhan. Bahan yang terlalu nipis sering berubah bentuk dan terbakar;
- mudah alih... Biasanya ini adalah struktur yang agak besar, selalunya jenis yang tidak dapat dipisahkan, dilengkapi dengan roda untuk memudahkan pergerakan di sekitar laman web ini. Barbeku logam buatan sendiri sering dihiasi dengan unsur-unsur palsu. Ukuran, gambar produk seperti itu sangat pelbagai dan di antara sebilangan besar pilihan, anda boleh memilih yang paling sesuai.

Mudah alih panggangan barbeku dengan roda
Kita juga harus menyebutkan pemanggang elektrik.Untuk kemudahan pengguna, ia menyediakan putaran lidi automatik. Pada brazier seperti itu, daging digoreng sama rata. Terdapat juga spesimen elektrik yang menggunakan spiral pemanasan dan bukannya arang batu.
Panggangan logam luaran do-it-yourself yang paling mudah. Foto, lukisan
Panggangan mudah alih yang paling mudah dan senang dibuat ialah dua pendirian logam kecil dalam bentuk huruf "P", yang tersangkut ke tanah. Secara semula jadi, tidak ada tempat untuk arang di dalamnya; mereka diletakkan di atas tanah tepat di antara tiang.
Artikel berkaitan:
Bender paip diy untuk paip profil. Terdapat beberapa cara yang memungkinkan untuk membuat bender paip untuk paip profil dengan tangan anda sendiri dari kaedah improvisasi. Apa itu penyekat paip dan untuk tujuan apa diperlukan.
Kekurangannya:
- ketinggian rendah tidak membenarkan menggoreng daging semasa berdiri;
- ruang terbuka adalah kehilangan haba yang agak besar.
Produk seperti itu boleh diambil dengan senang hati. Ia memerlukan sedikit ruang dan juga memuatkan beg galas. Untuk pembuatannya, anda memerlukan dua sudut, panjangnya sama dengan panjang barbeku, serta empat rak logam dan bahagian untuk mengikat struktur. Foto barbeku logam menunjukkan kesederhanaan peranti sedemikian.
Nasihat berguna! Untuk barbeku standard, biasanya kepingan logam dengan ketebalan sekitar 2 mm. Semakin besar ketebalannya, strukturnya akan lebih tahan lama, oleh itu sebilangan tukang menggunakan logam 5 mm.
Brazier logam DIY. Lukisan, gambar
Tidak sukar untuk memasang brazier logam pegun dengan tangan anda sendiri. Untuk membuat brazier segi empat tepat yang paling mudah, anda memerlukan:
- kepingan keluli;
- kelengkapan atau sudut untuk rak;
- pengisar dengan batu yang sesuai;
- gerudi;
- gas atau mesin kimpalan elektrik.
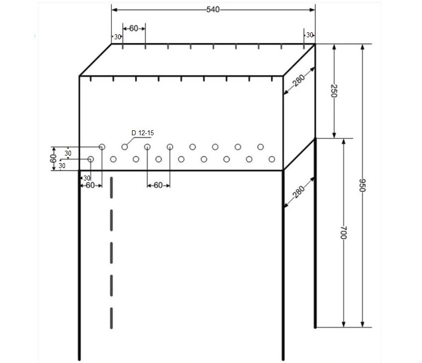
Anda harus terlebih dahulu menyiapkan lukisan reka bentuk masa depan. Di sini anda perlu menyediakan ketinggian produk siap, lebar dan panjangnya, tandakan jarak antara slot perforasi, serta cari chamfers untuk lidi. Jarak standard antara slot pengudaraan di brazier logam dengan tangan anda sendiri ialah 7-8 cm, jaraknya disusun pada jarak yang hampir sama dari bahagian bawah struktur. Jumlah chamfers bergantung pada berapa banyak lidi yang anda rancangkan untuk digunakan. Nombor standard mereka adalah 8.
Baja logam buat sendiri: gambar dan gambar. Arahan pembuatan langkah demi langkah
Bagaimana membuat brazer logam dengan tangan anda sendiri? Lukisan, gambar rajah, foto, bahan video yang terdapat di Internet boleh menjadi contoh untuk pengeluaran sendiri produk berkualiti tinggi dan tahan lama. Ukuran barbeku logam dipilih secara individu, bergantung pada jumlah lidi yang diinginkan dalam satu tab:
- Batasan dinding dan bahagian bawah produk masa depan ditandakan pada logam.
- Lembaran dipotong sepanjang garis yang dilukis.
- Lubang berlubang dibuat dengan gerudi.
- Chamfers dipotong di tepi atas dinding panjang.
- Semua bahagian dihubungkan dengan kimpalan.
- Kaki diasah dari bawah, memotong sudut dengan penggiling.
- Rak dikimpal ke kotak.
Nasihat berguna! Kaki barbeku boleh dibuat dari batang. Untuk melakukan ini, benang dipotong di bahagian atasnya, dan kacang bersaiz sesuai dikimpal ke bahagian bawah kotak. Rak dari sudut, disambungkan ke struktur utama dengan bolt, dapat mengatasi beban dengan baik. Mereka boleh dilepaskan jika perlu.
Baja logam yang boleh dilipat. Dimensi, foto
Anda tidak perlu menggunakan mesin kimpalan untuk membuat barbeku logam dengan tangan anda sendiri. Lukisan, gambar produk tersebut akan memberitahu anda cara memasang struktur dengan betul. Ukuran kotak yang optimum untuk reka bentuk masa depan ialah 70x30 cm.Semasa memotong kepingan logam, biarkan kira-kira 4 cm pada sendi. Slot kecil dibuat di dinding dan kepingan dibengkokkan sehingga sudut dan bahagian bawah struktur dapat digabungkan. Lubang untuk skru digerudi pada setiap bahagian, termasuk pada kaki.
Panggangan seperti ini senang dipasang dan dibongkar, jadi senang untuk membawanya ke alam semula jadi. Pemasangan brazier seperti itu hanya memerlukan beberapa minit.
Nasihat berguna! Sekiranya perincian strukturnya dihubungkan dengan kit badan perabot, maka brazer buatan sendiri yang diperbuat daripada logam dapat dilipat setelah akhir memasak.
Idea kurang bernas asal
Cukup mudah untuk membuat pembuat kebab dari tong logam biasa. Sedia kurang ajar boleh dalam dua versi: dengan penutup dan tanpa. Untuk melakukan ini, tong dipotong menjadi dua bahagian yang tidak sama, yang lebih kecil akan berfungsi sebagai penutup. Tepi acuan logam yang dihasilkan dibersihkan dengan teliti dari burr dan sisa. Kaki dari sudut atau paip nipis dikimpal ke bahagian bawah, bertujuan untuk menggoreng. Slot pengudaraan dibuat, dan rak kecil dikimpal ke tepi dinding. Lebih baik meletakkan panggangan pada mereka, serta tusuk sate.
Bahagian atas yang lebih kecil juga melecur di tepi dengan sudut, engsel dilekatkan pada kedua bahagian dan strukturnya dihubungkan bersama. Cukup mudah untuk membuat smokehouse dari barbeku logam seperti itu dengan tangan anda sendiri. Foto, saiz produk sedemikian akan membantu anda menyusun struktur rumah yang diperlukan secara bebas.
Pereka utama moden membuat reka bentuk yang benar-benar unik untuk menggoreng dalam bentuk peti lanun, kereta kecil atau lokomotif wap. Ia dihiasi dengan corak atau bunga palsu. Barbeku seperti itu akan menjadi elemen hiasan yang indah dari pondok musim panas atau plot bersebelahan.
Perlindungan kakisan
Sebarang produk logam mesti dilindungi daripada kakisan. Untuk melukis, sebatian khusus yang tahan panas tinggi biasanya digunakan. Terdapat cara lain untuk melindungi diri anda. Bluing dianggap agak biasa. Hasil daripada proses ini, filem hitam sepenuhnya muncul di kepingan logam, yang melindungi produk dari suhu tinggi.