En skjermpartisjon for et rom er et noe glemt element i interiøret, like verdt å bli kalt både for innredning og møbler. Allsidigheten av funksjonalitet og raffinement i utførelsen har blitt et fantastisk funn i moderne interiørdesign. Takket være volatiliteten til en lett, bærbar design, vil design aldri bli kjedelig. Etter å ha vist litt fantasi, kan du lage en skjerm for rommet med egne hender.
Innhold
Skjermpartisjon for rommet: praktisk og variasjon av modeller
Etter å ha kjøpt en skjerm til et rom, kan det ved første øyekast virke som et ganske useriøst og ikke-funksjonelt element. Men det er i lettsindighet, uoverensstemmelse og evnen til å umiddelbart modulere rommet i et rom at de viktigste fordelene med dette møbelet manifesteres. Og om nødvendig kan skjermen lett fjernes, og tar dermed ikke mye plass.
Klassiske modeller av skjermer består av tre separate seksjoner, forbundet med hengsler og foldes som et trekkspill. Rammen er vanligvis laget av lett materiale som tre eller plast. For fylling brukes tekstiler, lær, tykt papir, hyssing, polykarbonat og andre materialer. Slike skjermsparere fungerer utmerket som avgrensning av boareal i små rom.

Den klassiske versjonen av skjermen er en sammenleggbar skjerm, rammen kan være laget av tre, metall eller plast
En lettere versjon av trepartisjoner er skjermer, dyktig laget av rotting eller pilvev. Hyggelige og rolige farger på produkter fra rav til oliven vil understreke interiørets naturlighet. Etter å ha dekorert utsøkte og vektløse bambusskjermer med klatrende innendørs planter, kan de brukes som dekor dekorert som et hage lysthus.
Smidde metallskjermer er visuelt lette og gjennomsiktige, men strukturene deres er ganske massive. Slike produkter utfører snarere en dekorativ komponent, siden for å brette eller brette dem, må det gjøres en viss innsats. I tillegg, hvis føttene ikke er utstyrt med hæler, kan de skade gulvet. Openwork og grasiøs, de vil legge til et snev av romantisk stemning i interiøret.Egnet for romslige rom i private hytter eller store leiligheter.
Universelle skjermerskillevegger med hyller eller lommer, kan de samtidig skille en del av rommet fra en annen og fungere som stativer og hyller. Med tanke på preferanser kan bøker, figurer, vaser og andre dekorative gizmos plasseres i lommene og i hyllene til slike skjermsparere. Hvis du dekker skrivebordet med en slik skjerm, brukes lommene som blyantvesker til kontorrekvisita.
Skjermdesignen er representativ for stasjonære plasseringsmodeller. Disse skjermsparene brettes ikke og er permanent montert på gulvet. Skjermrammen kan være laget av tre eller metallstang. Skjermmaterialet kan være av plast, tekstiler og til og med en flettet metallkabel. Det er skjermmodeller av rimelige romskjermer, hvis ben er utstyrt med hjul for fri bevegelse. De kan legges ut, de er kompakte og passer for beskjedne leiligheter.
Skjermer-skillevegger for boligerom
For å bringe et element av originalitet inn i interiøret, er det ikke nødvendig å kjøpe designermodeller til en høy pris, du kan kjøpe en billig skjerm for et rom fra en samling fotopartisjoner med et bilde som samsvarer med stilen og stemningen. Produktkatalogene har utrolig mange alternativer med hvilken som helst historie, som passer for forskjellige stiler. Et slikt anskaffelse vil være veldig nyttig for både et lite rom og et romslig rom.
Skjermer i interiøret: bilder av perfekte modeller
Funksjonene til en så delikat gjenstand som en skjerm er ganske forskjellige. Hun takler lett oppdelingen av rom, lukker fra nysgjerrige øyne det kreative rotet til en studie eller en umontert seng, beskytter mot irriterende sollys eller fungerer bare som et element av dekor. Noen modeller er laget av fuktbestandige materialer og kan brukes på bad.
Terskjermer i orientalsk stil dekorert med maleri ser uovertruffen ut. Motivene til bildene kan være veldig forskjellige: trær, blomster, fugler, dyr, menneskelige figurer. Skillevegger ser spesielt luksuriøse ut, hvis fylling er helt utskåret eller innlagt med perler. Slike produkter vil bli en upåklagelig dekor for tilhengere av kolonistilen.
En dyktig valgt skjerm laget av trerammer dekket med silke stoff kan ikke bare tjene som skillelinje for et rom, men understreke også den utmerkede smaken til husets eiere. Ved hjelp av en nesten vektløs skjerm-skillevegger du kan visuelt balansere massiviteten til hovedmøblene og oppdatere det allerede kjente interiøret. Modellen med forskjellige størrelser ser spesielt interessant ut.
Nyttige råd! En lav skjerm med farget glass eller frostet glass kan brukes som gardin ved å plassere den på vinduskarm.
Små modeller av sammenleggbare smidde strukturer brukes som et sprut for en peis, som ser mer harmonisk ut i en slik ramme. En sammenleggbar skjermpartisjon med speilvendte dører vil lukke en del av rommet fra utsikten, og utvide den andre halvdelen av rommet optisk.Dette designalternativet vil ikke bare dekorere et lite rom, men vil avlaste følelsen av trange kvadratmeter.
En skjerm laget av gjennomsiktig tregitter, malt hvit, skaper en følelse av feiring i rommet og gir det et elegant og friskt utseende. Ved første øyekast, tilsynelatende skjøre, er en slik modell forbundet med en grønn hage, avslapning og havet. Hvis skjermens sted er bestemt som stasjonær, kan den dekoreres med dekorative levende eller kunstige planter.
Alternativer for bruk av skjerm til barnerom
Bevis for den utrolige allsidigheten til skjermpartisjonen på rommet er bruken i barnerom. Det er mange alternativer, og de er alle funksjonelt berettigede. Hovedformålet med skjermen i barnehagen er å dele rommet inn i et arbeidsrom og et sove- eller lekeområde. Det er bedre å kjøpe en skillevegg til et barns rom laget av naturlig, trygt og lett materiale.
En lett konstruksjon med rammer laget av trebjelker og stoff festet med bånd vil gjøre. Slike skillevegger er lettere å ta vare på: ettersom de blir skitne, kan tekstiler lett og raskt fjernes for rengjøring eller vasking. Det er veldig praktisk å bruke i en barnemodell med innebygde hyller, lommer, samt rammer for fotografier og tegninger.
Nyttige råd! En skjerm med hyller som er plassert i et barnerom, må være stabil for å unngå utilsiktet velte.
Mens babyen sover, kan du skjerme barnesengen fra vinduet med en skjerm, og beskytte den mot sollys eller lys bordlampe, som brukes av det eldre barnet når det gjør leksjoner. Hvis barnehagerommet er beregnet for både en gutt og en jente, ved hjelp av en skillevegg, kan du organisere et behagelig skiftområde.

Dessuten er en skjerm en fin måte å løse problemet med å bytte klær hvis to barn av forskjellige kjønn bor i rommet.
For en ung familie med et lite barn, som hittil bare har et lite studio leilighet, kan du kjøpe en dekorativ skjerm med et dobbeltsidig mønster. Det vil være en rask måte å lage et koselig hjørne for babyen din. De velger en modell, på den ene siden som et barns tegning påføres, på den andre - et ornament som passer for hele rommet.
Ofte er skjermsparere med PVC-skjermer installert i barnerom, hvor lyse bilder av ditt favoritt eventyr og tegneseriefigurer blir brukt. En slik fargerik ting vil helt sikkert bare bidra til det gode humøret til barnet ditt. En av de kreative bruken av en skjerm til et barnerom er en dukketeaterforestilling.
Baderomsskjerm
En sammenleggbar skjermpartisjon er veldig praktisk for installasjon i et romslig bad med vindu: det kan brukes som et gardin for å blokkere et vindusåpning, eller ved å flytte det, skape et sted for et lite garderobe. Du kan installere en skjerm med lommer for oppbevaring av lite badetilbehør, og ved å utstyre skilleveggen med kroker, er det praktisk å plassere noen husholdningsklær på den.
Nylig har baderomsskjermer blitt populære. Slike design ser mer presentabelt ut enn tradisjonelle gardiner, og på grunn av den gjennomsiktige fyllingen overbelaster de ikke rommet. Baderomsskjermen lar deg bruke rørleggerarbeid både for å ta bad og som dusjkabinett.En slik barriere beskytter rommet kvalitativt mot vanndråper når du tar en dusj.
Det er flere designalternativer for baderomsskjermen. Dette kan være en modell med et skjelett av flere seksjoner. Vanligvis er de to ytre seksjonene faste, mens de to andre beveger seg langs aluminiumsprofilen ved hjelp av ruller. Antall rammer i modellen bestemmes av badets oppsett og selve badets plassering.
Rammeløse skjermer er laget av 8 mm glass uten rammer. For nøyaktig aksept av vannprosedyrer kan du bruke en ensidig fast skillevegg, festet med den vertikale siden mot veggen, vannrett til siden av badet. Det er skjermer med ett panel festet til veggen med hengsler, som gjør det mulig å åpne.

Rammeløs glasspartisjoner - det mest praktiske alternativet for badet
Nyttige råd! Veldig praktisk for badet er modellen med en rammeløs skjerm med to vinger, hvorav den ene er fast, og den andre kan åpnes med en 360 ° rotasjonsvinkel.
Hvor å kjøpe en romdeler
Du kan kjøpe en eksklusiv modell av en skjerm ved å bestille et produkt på en møbelfabrikk eller ved å kontakte et smidd produktselskap. Men du må være forberedt på at arbeidet med en individuell ordre og størrelse vil koste deg en ganske krone. Det er mye mer lønnsomt å kjøpe en billig romdeler i en nettbutikk eller på et nettsted som selger dekorative møbler til interiøret.
Online kataloger tilbyr et stort utvalg dekorative skillevegger av forskjellige design til rimelige priser. Utvalget av modeller som bruker fotoutskrift, telles i hundrevis av alternativer. Et praktisk søkesystem hjelper deg med å finne produktet du liker på bilde eller pris. Bedriftens spesialister kan gi råd om valg av produkt og beregning av kostnadene (i tilfelle bestilling i henhold til individuelle størrelser). Rabatter og kampanjer er mulig, alle varer er garantert.
Etter å ha brukt tjenestene til nettbutikker, kan du velge en partisjonsskjerm som oppfyller dine preferanser når det gjelder design, funksjoner, størrelser, materialer for produksjon og pris. På sidene finner du billige, enkle produkter som til og med studenter kan kjøpe, samt velge elegante modeller ved hjelp av rottingvev eller dekorert med utskjæringer. Det viktigste er at modellen er i tråd med stilen på rommet ditt.
Mange bruker fotoalternativer for skjermer som et eksempel for å prøve å lage en unik partisjon i rommet med egne hender. Dette vil ikke bare hjelpe bilder av produkter, men også gjør-det-selv skjermmesterklasser lagt ut på Internett. Ved å lage et slikt element alene, er det mulig å legemliggjøre din personlige kreative ide i det.
Hvordan lage en skjerm for et rom med egne hender
At en gjør-det-selv skillevegg for et rom vil være mye billigere er hevet over tvil, men i tillegg vil en slik ting ha enhver sjanse til å bli en ekte dekorasjon av rommet. Å lage en enkel skjerm er ikke vanskelig, og den fascinerende prosessen med å lage den vil gi deg mye glede.
Verktøy og materialer for produksjon
En liten semi-antikk skjerm vil se passende ut i nesten alle rom. Vintage-dekorelementer har lenge blitt en uunnværlig egenskap for moderne interiør: de skaper en nostalgisk varm atmosfære i rommet. I tillegg, etter å ha inngjerdet med en skjerm, vil det være hyggelig å sitte i en lenestol og lese en fascinerende bok.
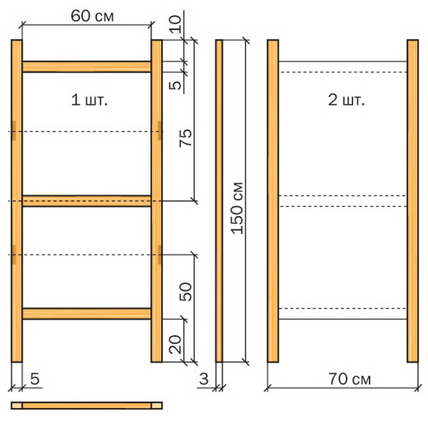
Før du lager en skjerm med egne hender, må du sørge for at du har alt nødvendig verktøy og materiale på lager. For å lage en liten skjermpartisjon av tre, bestående av tre seksjoner, trenger du:
- en trebjelke med et snitt på 40 x 40 mm - for å lage en ramme, trenger du 6 barer ca 2 m lange og det samme antall elementer er litt kortere;
- et stykke stoff, helst tett og ugjennomsiktig - for å fylle delene av skjermen;
- sider med tekst eller dikt kuttet fra bøker, aviser, personlige notatbøker, dagbøker - for å dekorere lerretet. Hvis du trenger utklipp i fremtiden, kan du bare lage kopier for arbeid;
- te bryggeløsning - nødvendig for å gi papirarkene et eldre utseende. Det anbefales å utarbeide en sterk løsning;
- saks, pensel, PVA lim, tre lakk;
- hammer, firkant, målebånd, skrutrekker;
- negler, skruer;
- byggestifter - for å feste stoff på rammer;
- dørskjul - du trenger 4 små pene hengsler for å koble sammen skjermseksjonene;
- flette til dekorasjon.
Nyttige råd! Andre materialer kan brukes til produksjon av skjermer, for eksempel bambusstenger, aluminiums- eller plastprofiler.
Sekvens av arbeid
Arbeidet begynner med montering av rammekarmene. Stengene må justeres til rammens dimensjoner og kobles til rammer. Når du fester stengene, bør du bruke en firkant for å opprettholde en rett vinkel og forhindre at klaffene skjeves. Rammeelementene er koblet til hverandre ved hjelp av selvskruende skruer eller negler. Ferdige strukturer lakkeres og får tørke helt.
Neste trinn blir å koble seksjonene sammen. Bruk først et målebånd på hver ramme, og merk hengselens festepunkter. Det er nødvendig at avstanden fra øvre og nedre takhøyde til hengslet for hver av de tre seksjonene er på samme nivå. Hengslene er nøye festet med selvskruende skruer.
Deretter begynner de å kutte stoffet. 3 stykker av passende størrelse er kuttet ut av den. Før stoffet festes til rammene, er det dekorert. En te-løsning påføres de tilberedte papirsidene med en pensel. Før påføring skal tebladene filtreres grundig gjennom en fin sil. For å forhindre at papiret krøller seg etter tørking, bør hvert behandlede ark strykes med et strykejern. Når alle laken er tørre, limes de på stoffet.
Hvert ark er dekket med et tynt lag PVA-lim og limt på lerretet. Når du utfører denne prosedyren, må du passe på at limet ikke lekker på stoffet. Etter det, la limet tørke helt. Det tilberedte stoffet er fylt i delene av skjermen. Ved hjelp av en stiftemaskin er et lerret festet til en av sidene av rammen, og deretter trekker du stoffet og fester det til resten av rammeelementene. Den anbefalte avstanden mellom stiftene er 4-5 cm.
Relatert artikkel:
Foto i moderne stil: soverominteriør med to typer tapet og detaljene i skapelsen
Foto av soveromsinteriør i moderne stil. Soverom med to typer tapet. Valg av materialer og optimale kombinasjoner. En rekke stiler.
Den siste fasen av arbeidet er å gi skjermen et estetisk utseende. For dette er linjene for å feste stoffet til rammen lukket med flette. Dette kan gjøres med lim. Forsikre deg om at båndet ligger nøyaktig i forhold til rammeelementene. Din unike romdeler er klar til bruk!
Nyttige råd! Det er tusenvis av alternativer for skjermdesign. Ved å lagepartisjonere selv, kan du øke antall seksjoner på din egen måteskjønn og ordne hver av dørene forskjellig. Ser veldig elegant utdekorativ skjerm, hvis rammer er fylt LED-krans.
Romregulering ved hjelp av romskjermer, partisjoner, lar det deg endre konfigurasjonen av rommet på forespørsel, noe som gir hele interiøret mysterium og mysterium. Og som unødvendig brettes den nesten vektløse bærbare designen raskt og enkelt sammen uten å rote i rommet.