Każdy właściciel wiejskiego domu wie, jak ważne jest posiadanie nie tylko samochodu, ale także specjalnie do niego wyposażonej przestrzeni, w której można stworzyć komfortowe warunki do przechowywania i serwisowania auta. Obecnie istnieje kilka opcji umieszczenia garażu na stronie. W artykule rozważymy projekty domów z garażem pod jednym dachem: zalety i wady takiego rozwiązania, a także cechy planowania i budowy.

Budując dom, należy wziąć pod uwagę wielkość i funkcjonalność wszystkich pomieszczeń gospodarczych, w tym garażu.
Zadowolony
- 1 Projekty domów parterowych z garażem pod jednym dachem: zalety i wady
- 2 Plan domu piętrowego z garażem
- 3 Ogólne cechy projektu i układu domu z garażem
- 4 Domy z garażem na 2 samochody: projekty, plany i cechy konstrukcyjne
- 5 Style i materiały do budowy domu z garażem pod jednym dachem: przykłady zdjęć
- 6 Projekty domów z garażem i wanną pod jednym dachem: cechy kombinacji
Projekty domów parterowych z garażem pod jednym dachem: zalety i wady
Wielu tak twierdzi garaż powinny być zlokalizowane oddzielnie od budynku, aby uniknąć niedogodności związanych z jego użytkowaniem. Jednak często zdarza się, że powierzchnia terenu nie pozwala na wydzielenie na to osobnej przestrzeni i trzeba uciekać się do łączenia tych dwóch budynków, łącząc je pod jednym dachem. Warto zaznaczyć, że takie rozwiązanie ma swoje zalety:
- jeśli ta opcja zostanie wybrana, koszty finansowe budowy niewątpliwie zmniejszą się. Wzniesienie dwóch oddzielnych budynków jest zawsze droższe niż jednego złożonego budynku;

Obecność garażu pod jednym dachem wraz z domem pozwoli na komfortową obsługę samochodu w zimnych porach roku
- o wiele wygodniej jest obsługiwać garaż połączony z domem, ponieważ w chłodne dni można wsiąść do samochodu bez wychodzenia na zewnątrz. Ponadto taka kombinacja pozwala na przechowywanie w garażu wielu rzeczy niezbędnych dla gospodarstwa domowego, dla których niewygodne byłoby wejście do garażu, gdyby znajdował się on oddzielnie od domu;
- dzięki takiemu połączeniu znacznie oszczędza się miejsce. Takie racjonalne rozwiązania pozwalają na umieszczenie wszystkiego, czego potrzebujesz, nawet na najmniejszej wielkości witryny.
Wadą tego rozwiązania jest potrzeba wysokiej jakości izolacji cieplnej i akustycznej pomiędzy tymi dwoma pomieszczeniami, gdyż w przeciwnym razie chłód z garażu będzie przenikał do sąsiednich pomieszczeń, a odgłos pracującego silnika samochodu będzie przeszkadzał domownikom.

Poprzez połączenie domy z garażem, możesz znacznie zaoszczędzić użyteczny obszar witryny
Projekty domów z garażem pod jednym dachem: opcje umieszczenia
W procesie wyboru lub opracowywania projektu ważne jest, aby z wyprzedzeniem pomyśleć o tym, jak te obiekty zostaną umieszczone względem siebie. I w tym przypadku główne pytanie dotyczy tylko garażu, ponieważ lokalizacja domu jest prawie zawsze oczywista.
Garaż można zlokalizować według jednej z trzech zasad:
- garaż podziemny jest budowany bezpośrednio pod samym budynkiem, z grubsza mówiąc, w piwnicy lub na parterze. Takie rozwiązanie pozwala znacznie zaoszczędzić miejsce, a także zmniejszyć ilość niezbędnej pracy z glebą. Ponadto jest to idealne rozwiązanie, jeśli istnieje potrzeba zbudowania garażu dołączonego do domu na działce położonej na zboczu;
- garaż nadziemny dolny znajduje się u podstawy domu, tak że wszystkie pomieszczenia mieszkalne znajdują się niejako nad nim. Ta metoda jest również skuteczna w zachowaniu przestrzeni terytorium, jednak w tym przypadku wysokość domu wzrasta;
- boczny garaż naziemny znajduje się po prawej lub lewej stronie domu. Jego główną wygodą jest możliwość uzupełnienia go do już gotowego domu, gdyż w przypadku dwóch pierwszych opcji oba lokale powinny być projektowane i budowane jednocześnie.
Domy parterowe z garażem: projekty fotograficzne
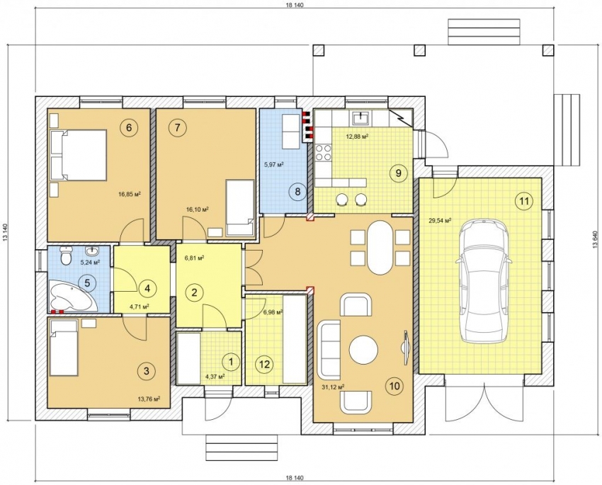
Domy parterowe są znacznie częstsze niż budynki dwu- lub trzypiętrowe. Wynika to z wielu czynników, w tym z prostoty ułożenia pod nią fundamentu, a także z prostoty realizacji projektu. W końcu budynek parterowy nie wymaga podłóg ani schodów. W kwestii łączenia garaż domy parterowe są najwygodniejsze, ponieważ eliminują konieczność tworzenia różnic w poziomie dachu.

Boczny garaż naziemny jest uważany za jedną z najbardziej praktycznych i wygodnych opcji umieszczenia pomieszczenia gospodarczego na samochód.
Niezwykle ważne jest zwrócenie należytej uwagi na rozplanowanie parterowego domu z garażem, a wszystkie lokale usytuować w taki sposób, aby uniknąć niepożądanych sąsiedztw. Na przykład dotyczy to pokoju dziecinnego i garażu, które nie powinny ze sobą sąsiadować. Najlepiej byłoby, gdyby między salonami a magazynem znalazło się pomieszczenie gospodarcze, kuchnia lub łazienka.
Pomocna rada! Nie jest wcale konieczne, aby garaż i dom znajdowały się blisko siebie. Pozostawiając między nimi niewielkie przejście, które może stać się np. Spiżarnią, stworzysz rodzaj poduszki powietrznej, która zapewni dodatkową izolację cieplną i akustyczną.
Jeśli mówimy o specyfice aranżacji dachu dla takiej konstrukcji, to w tym celu najczęściej uciekają się do aranżacji dachu dwuspadowego, ponieważ jest to najprostsza i najtańsza opcja pod względem finansowym. Jednak niektórzy właściciele, którzy nie chcą stosować standardowych rozwiązań w swoim domu, znajdują ciekawsze opcje.
Można więc zaprojektować dach dwuspadowy nad domem i dach płaski nad garażem. Taka zepsuta konstrukcja wygląda świetnie, ale system odwadniający w tym przypadku wymaga szczególnej uwagi.
Plan domu piętrowego z garażem
Właściciele terenu mogą z różnych powodów uciekać się do budowy dwupiętrowego domu. Ktoś kieruje się liczbą osób mieszkających w domu, podczas gdy ktoś po prostu chce zbudować duży i luksusowy dom. Natomiast w przypadku projektów domów 2-kondygnacyjnych z garażem najczęściej jest to podyktowane brakiem wolnego miejsca na działce. Dlatego taka opcja posiadania wygodnego mieszkania ze wszystkimi udogodnieniami, nawet na bardzo skromnym terenie, dla wielu staje się jedynym rozwiązaniem problemu.
Istnieje ogromna liczba układów dwupiętrowego domu z garażem.Wśród nich są zarówno dość proste projekty, jak i złożone projekty wielopoziomowe. Uważa się jednak, że najczęstszą opcją jest to: garaż znajduje się w piwnicy, na pierwszym piętrze znajduje się salon, kuchnia, łazienka, a także pomieszczenia gospodarcze (spiżarnia, piec), na drugim pokoje dzienne. Schody służą do łączenia wszystkich poziomów.
Pomocna rada! Jeśli rozbudujesz piwnicę, dodatkowa przestrzeń może służyć jako miejsce do aranżacji werandy. Patrząc na zdjęcie 2-kondygnacyjnego domu z garażem można mieć pewność, że taki dodatek nadaje budynkowi wyrafinowanego wyglądu. Ponadto takie rozwiązanie pozwoli mieć dodatkowo wyposażoną strefę rekreacyjną.
Inne zdjęcieprojekt domu piętrowego z garażem, na co zdecydowanie warto zwrócić uwagę - wydłużony budynek, na końcu którego znajduje się garaż. Ta opcja jest bardzo wygodna, jeśli chodzi o konieczność wysiadania i wchodzenia, ponieważ bramy boksu będą miały wyjście bezpośrednio na ulicę.
Ale w tym przypadku najlepiej jest zapewnić obecność dwóch wejść do domu naraz - z zewnątrz (czyli od strony garażu) i od podwórka. Podobnie jak w poprzednim projekcie najlepiej jest mieć w sąsiedztwie lokale niemieszkalne (łazienka, kuchnia, spiżarnia), a wszystkie salony na ostatnim piętrze wyposażyć.

Projekt domu z dwuspadowym dachem i wbudowanym garażem
Ogólne cechy projektu i układu domu z garażem
Niezależnie od tego, jaki projekt domu z garażem wybierzesz, istnieją pewne zasady, od których przestrzegania zależy powodzenie realizacji przedsięwzięcia. Dlatego przy wyborze konfiguracji budynku bardzo ważna jest znajomość niuansów łączenia tak różnorodnych pomieszczeń, jak salony i garaż. Zwróćmy też uwagę na pewne subtelności:
- każda decyzja podjęta na korzyść jednej lub drugiej opcji układu musi być skoordynowana ze służbami przeciwpożarowymi i sanitarnymi. Jest to niezwykle ważne zarówno dla komfortu życia, jak i dla braku problemów przy sprawdzaniu przez odpowiednie służby;
- większość projektów zakłada jednoczesną budowę domu i garażu, gdyż budynki te będą montowane na wspólnym fundamencie. Głównym zagrożeniem w przypadku niezastosowania się do tego zalecenia jest wielopoziomowe posadowienie budynków, związane z osiadaniem części, która została wybudowana jako pierwsza;
- wydajny system wentylacji jest kolejnym obowiązkowym wymogiem dla tego typu budynków. W przeciwnym razie wszystkie nieprzyjemne zapachy, które są naturalne dla garażu (dym, olej, benzyna) mogą przedostać się do części mieszkalnej domu, powodując dyskomfort w gospodarstwach domowych;
- hydroizolacja jest nie mniej ważna. Aby zapewnić odpowiedni poziom wilgotności w zespole samochodowym, ważne jest, aby na etapie planowania ułożyć wysokiej jakości drenaż.
Pomocna rada!W przypadku ustawiania garażu z boku po wybudowaniu domu niezwykle ważne jest zachowanie wiązki ścian. Należy to uwzględnić w projekcie i obserwować na wszystkich etapach budowy.
Domy z garażem na 2 samochody: projekty, plany i cechy konstrukcyjne
Ponieważ na terenie często brakuje miejsca na zbudowanie oddzielnego garażu, często trzeba się uporać z tym, że rodzina ma nie jeden, ale dwa samochody na raz. To oczywiście najpopularniejszy i najwygodniejszy środek transportu, ale jak można rozwiązać problem przechowywania i utrzymania innego samochodu? Rozważać projekty domów z garażem na 2 samochody.
Powiązany artykuł:
Zrób to sam wentylację w garażu. Schemat, obliczenia i metody wentylacji garażu
Urządzenie wentylacyjne w piwnicy i piwnicy garażu.Metalowa wentylacja garażu.
Jakie są wymagania dotyczące projektu domu z garażem na 2 samochody?
Aby korzystanie z garaży w kolejnych latach było komfortowe, nawet na etapie planowania i budowy, konieczne jest przestrzeganie pewnych norm, wśród których najważniejsze to:
- powierzchnia przeznaczona na jeden samochód nie powinna być mniejsza niż 18 m². Jest to konieczne przede wszystkim po to, aby w garażu zmieścił się prawie każdy samochód osobowy. Przecież nawet jeśli dziś wymiary twojego samochodu są bardzo skromne, to za kilka lat wszystko może się zmienić i trzeba to wziąć pod uwagę;

Projekt domu z garażem na 2 samochody
- normy przewidują dostępność wolnej przestrzeni w następujący sposób: po prawej i lewej stronie 70 cm oraz co najmniej kolejne 70 cm nad głową z przodu iz tyłu samochodu;
- brama do garażu powinna być taka, aby wyjście nie było trudne. Zazwyczaj standardowe wymiary to odpowiednio 2,5x2 m szerokości i wysokości. Standardy wysokości garażu w domu prywatnym przewidują również, że sufit boksu samochodowego musi wynosić co najmniej 2,2 m.
Pomocna rada! Ponieważ samochód jest wykonany z metalu, łatwo ulega korozji, jeśli jest przechowywany w nieodpowiednich warunkach. Dlatego wskazane jest zapewnienie wysokiej jakości systemów ogrzewania i wentylacji.
Style i materiały do budowy domu z garażem pod jednym dachem: przykłady zdjęć
Oglądając zdjęcia garaży w domach prywatnych, należy zauważyć, że często ta część budynku wygląda nieorganicznie w swoim otoczeniu. Często garaż wygląda nienaturalnie na tle wykwintnego domu, psując percepcję całego obrazu swoim wyglądem.

Obecność garażu w domu może doprowadzić do powstania „wysepek zimna”, dlatego niezwykle ważne jest zwrócenie należytej uwagi na izolację budynku
Zastanów się, jakie materiały można wykorzystać do budowy, a także jakie style projektowania są najbardziej odpowiednie do budowy.
- Dwór rosyjski lub prościej dom drewniany z garażem lub bez. Z reguły takie drewniane konstrukcje są popularne poza miastem i rzadko są wznoszone w granicach dużych osad. Przeglądając projekty domów z baru z garażem widać, że tak znajomy materiał jak drewno może posłużyć do realizacji bardzo nietypowych, ale raczej praktycznych pomysłów.
- Dom w stylu angielskim wyróżnia się prostotą i jednocześnie wyrafinowaniem. Proste linie i geometryczne kształty można uzupełnić kolumnami lub sztukaterią, co odróżnia dom od reszty. Do budowy można użyć różnorodnych materiałów. W tym można znaleźć projekty domów z bloków piankowych z garażem.
- Styl empirowy to najbardziej uroczysty styl, w którym każdy element budynku powinien nadawać świąteczny nastrój. Nie jest to najłatwiejsze rozwiązanie, jeśli chodzi o konieczność aranżacji garażu dołączonego do domu. Zdjęcia jednak doskonale pokazują, jak skuteczny może być wynik, jeśli podejdziesz do tego problemu z należytą uwagą.
Pomocna rada! Wśród niestandardowych pomysłów można rozważyć projekt parterowego domu z poddaszem użytkowym i garażem. Realizacja takiego pomysłu stworzy dodatkową przestrzeń życiową nawet w przypadku konieczności połączenia garażu i górnych pomieszczeń z istniejącym domem.
Najlepsze materiały do realizacji projektów domów z garażem: przykłady zdjęć
Jeśli chodzi o wybór najbardziej odpowiedniego materiału budowlanego, warto dokładnie rozważyć wszystkie zalety i wady każdej opcji. Rzućmy okiem na najpopularniejsze:
- domy drewniane najlepiej „oddychają” i są wysoce przyjazne dla środowiska.Jeśli chodzi o główne twierdzenia - łatwopalność i skłonność do gnicia, nowoczesne kompozycje przetwórcze już dawno rozwiązały te problemy. Zatem jedyną istotną wadą tego rozwiązania jest wysoki koszt materiału;
- bloczki z pianobetonu lub betonu komórkowego - materiały o doskonałych właściwościach termoizolacyjnych. Wśród innych zalet warto zwrócić uwagę na doskonałe właściwości dźwiękochłonne, niepalność i dość wysoki wskaźnik wytrzymałości. Nie zapominaj jednak o wadach, na przykład w przypadku stosowania zaprawy cementowo-piaskowej do murowania zapewniona jest obecność zimnych mostów, a specjalny klej będzie kosztował kilka razy więcej;
- cegła jest niekwestionowanym liderem od wielu lat. Cechy tego materiału obejmują dużą wagę, co jest powodem konieczności położenia niezawodnego fundamentu. Ponadto kosztu cegły nie można nazwać niskim, co jednak jest w pełni uzasadnione jej wytrzymałością, właściwościami termoizolacyjnymi, a także długą żywotnością.
Projekty domów z garażem i wanną pod jednym dachem: cechy kombinacji
Pomimo tego, że realizacja planu domu parterowego z garażem jest sama w sobie trudnym zadaniem, wielu właścicieli nie poprzestaje na tym, tworząc dodatkowo inne konstrukcje - altanę, saunę, werandę itp. Często przewidziane w projektach domów parterowych z garażem oraz taras z sauną, która sama zajęłaby zbyt dużo wolnego miejsca na terenie obiektu.

Kraj dom z bali można zaprojektować z maksymalną wygodą, na przykład z wbudowaną sauną i garażem
Takie rozwiązanie ma swoje trudności, ale jednocześnie zachowuje zalety, które istnieją w przypadku dowolnej kombinacji - oszczędność czasu, wysiłku, materiałów budowlanych. Ponadto nie ma potrzeby pokonywania znacznej odległości od jednego obiektu do drugiego.
Możesz również rozważyć interesującą opcję bardziej racjonalnego wykorzystania dostępnych zasobów. Na przykład garaż można ogrzać z pieca, który znajduje się w wannie. Czasami ta opcja jest również używana do częściowego ogrzewania domu. Jednak w tym przypadku ważne jest, aby ten moment zaprojektować tak, aby ciepło z pieca nie zniknęło, ale można było je wykorzystać.

Projekt domu z garażem i sauną pod jednym dachem
Ważny! Tę metodę ogrzewania najlepiej stosować jako dodatkowe ogrzewanie. Ponadto metoda ta nie jest zbyt skuteczna w przypadku lokali, których powierzchnia przekracza 100 m².
Przeglądając zdjęcia domów parterowych z garażem, a także bardziej rozbudowanych budynków, w których przewidziano strych lub wannę, nie sposób nie zauważyć, że takie rozwiązanie to nie tylko okazja do zaoszczędzenia pieniędzy. Dla wielu jest to okazja do zaprojektowania najwygodniejszego w użytkowaniu domu, który pozwala na wygodne przechowywanie i konserwację samochodów w rodzinie.