Sa una, ang pangunahing gawain ng lagari ay ang makakita ng kahoy. Kung susubukan mo, ang aparato ay maaaring bigyan ng higit na pag-andar. Ang mga produktong gawa sa bahay na chainaw ay kapansin-pansin sa iba't-ibang. Bilang karagdagan sa katotohanan na ang iba't ibang mga nozzles ay magagamit sa mga retail outlet, tulad ng isang gilingan, isang corroder o isang bomba, maraming gumagamit ng mga improvisadong paraan at lumikha ng mga bagong aparato. Kaya, mula sa mga chainaw ay gumagawa sila ng mga moped, snowmobile, electric generator at iba pang mga aparato na angkop para sa pang-araw-araw na buhay.
Nilalaman
- 1 Anong mga produktong lutong bahay ang maaaring magawa mula sa Druzhba chainaw at iba pang mga aparato
- 2 Ang pangunahing mga attachment ng chainaw na nakakuha ng katanyagan
- 3 Paano gumawa ng isang winch at isang lagarian mula sa isang chainaw gamit ang iyong sariling mga kamay
- 4 Paano bumuo ng isang lawn mower gamit ang mga tool sa kamay
- 5 Motor-cultivator, snow blower, ice drill at do-it-yourself drills
- 6 Gawang bahay na chainaw: motor na palabas at iba pang mga paraan ng transportasyon
- 7 Mga tampok sa disenyo ng isang snowmobile at snowmobile
- 8 Paano gumawa ng isang moped mula sa isang chainaw o isang bisikleta na may motor
- 9 Ano pa ang magagawa mong homemade mula sa isang chainaw
Anong mga produktong lutong bahay ang maaaring magawa mula sa Druzhba chainaw at iba pang mga aparato
Kahit na walang paggamit ng mga karagdagang bahagi, ang chainaw ay may kakayahang magsagawa ng isang malawak na hanay ng mga gawain. Kung bibili ka ng mga karagdagang attachment para sa klasikal na disenyo, ito ay magpapalawak sa mga posibilidad ng paggamit ng aparato sa bukid at makuha ang mga sumusunod na aparato:

Para sa isang chainaw, maaari kang bumili ng mga espesyal na attachment o gawin ang kinakailangang tool sa paggamit nito
- snow blower;
- pamutol ng brush;
- bomba para sa pumping water;
- pamutol ng gas;
- gummer.
Ang ilang mga artesano, armado ng pangunahing kaalaman sa mekanika, ay lumilikha ng mga karagdagang aksesorya para sa mga chainaw gamit ang kanilang sariling mga kamay, na maaaring makabuluhang mapalawak ang saklaw ng tool. Upang muling idisenyo ito, kailangan mong maunawaan ang prinsipyo ng pagpapatakbo ng isang unibersal na motor drive, na madaling gamitin para sa paggawa ng iba pang mga aparato. Kaya, pagkuha ng isang motor mula sa isang chainaw, posible na lumikha ng mga sumusunod na aparato:
- ice screw o drill;
- engine ng bangka;
- isang kotse o bisikleta na may motor;
- lawn mower;
- generator
Ang dahilan para sa katanyagan ng mga produktong gawa sa bahay mula sa Druzhba-4, Shtil o Ural chainaws ay isang malaking bilang ng mga kalamangan:
- malakas na makina;
- magaan na timbang at compact na laki;
- ang kakayahang gamitin sa matinding kondisyon.

Bilang panuntunan, ang mga produktong gawa sa bahay ay ginawa mula sa mga chainaw na "Ural", "Druzhba", "Calm"
Ito ay kagiliw-giliw na! Ang mga produktong gawa sa bahay mula sa chainal ng Ural o mga aparato ng anumang iba pang tatak ay pinahahalagahan dahil sa mga kakaibang gawain ng trabaho at ang kakayahan ng tool clutch upang protektahan ang mga bahagi at mahahalagang bahagi mula sa mga overload dahil sa sobrang pag-init o iba pang mga pagkasira. Gayundin, ang higpit ng motor ay ginagawang posible na gamitin ang aparato sa anumang posisyon.
Ang pangunahing mga attachment ng chainaw na nakakuha ng katanyagan
Kung bibili ka ng mga espesyal na attachment para sa instrumento, magiging napakadaling i-install ang mga ito, dahil dito hindi mo kailangang baguhin o i-disassemble ang instrumento ng instrumento. Ang lahat ng mga handa nang aparato ay partikular na idinisenyo para sa pag-install sa isang chainaw. Ang isa pang mahalagang bentahe ng pagbili ng isang chainaw ay ang awtonomiya nito. Ito ay dahil sa ang katunayan na ang lahat ng mga de-koryenteng aparato ay nangangailangan ng isang 220 V outlet. Gamit ang isang chainaw, posible na gumamit ng mga produktong gawa sa bahay sa patlang, maging isang drill, ice screw o cororder.
Ang do-it-yourself na kalakip na gilingan para sa chainaw ay nagbibigay-daan sa iyo upang mapatakbo ang kagamitan hindi lamang bilang isang pamutol ng gas, kundi pati na rin bilang isang gilingan ng anggulo. Ang nguso ng gripo ay konektado sa aparato sa pamamagitan ng isang espesyal na pin, at nagsisimulang paikutin gamit ang isang sinturon mula sa isang kalo na nakakabit sa baras ng drive sprocket. Kaya, ang kabit ay naka-install sa halip na ang gabay bar. Mahalagang piliin ang tamang lapad ng bilog ng nguso ng gripo, para dito kailangan mo munang pag-aralan ang mga tagubilin para sa Druzhba chainaw o iba pang pamamaraan na ginamit upang makagawa ng isang kapaki-pakinabang na aparato.
Mahalaga! Nagbabala ang mga eksperto na hindi posible na mag-install ng isang adapter sa lahat ng mga modelo upang magkasya ang base.

Ang Coroder ay isa sa pinakatanyag mga attachment ng chainaw
Ang isa pang karaniwang pagkakabit sa mga gumagamit ay ang cororder, na ginagamit upang putulin ang bark mula sa mga puno. Gayundin, ang nozzle ay popular sa mga sumali, dahil sa tulong nito madali itong malinis na hindi ginagamot na kahoy mula sa bark, mga buhol at paglago. Ang ilang mga tao ay gumagamit ng isang nguso ng gripo upang lumikha ng paayon o nakahalang na mga uka sa troso. Talaga, mayroong dalawang uri ng mga cororder:
- Tambol. Ang pangunahing lugar ng aplikasyon ay ang pagtanggal ng bark, ang pangalawang pangalan ay ang debarker.
- Disk. Ginamit upang lumikha ng iba't ibang mga uri ng mga uka.
Mayroong maraming mga nozzles sa pagbebenta na naiiba sa lapad ng mahigpit na pagkakahawak, mas madalas ang mga ito ay 80 at 100 mm. Sa kaso ng pagkakapurol ng mga kutsilyo mayroong posibilidad ng pangalawang paghigpit. Kung ang mga kutsilyo ay ganap na wala sa order, mas mahusay na bumili ng isang bagong hanay mula sa tagagawa. Ang nozel mismo ay isang pamutol o tambol na naka-mount sa isang pagpupulong ng tindig. Ang pagpapatupad ay isinasagawa ng isang belt drive, at ang bilis ng pag-ikot ay kinokontrol ng lakas ng pagpindot sa hawakan ng accelerator. Ang diameter ng pulley ay nakakaapekto rin sa bilis: mas malaki ito, mas mataas ang bilis. Kasama ang mga Stud para sa pag-install ng nozel.
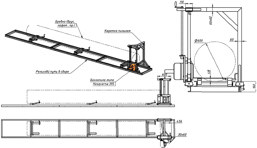
Paano gumawa ng isang winch at isang lagarian mula sa isang chainaw gamit ang iyong sariling mga kamay
Ang mga produktong gawa sa bahay mula sa "Ural" ay madalas na tumutulong sa konstruksyon. Kaya, kapag nagtatayo ng mga gusali mula sa isang solidong kagubatan, kailangan mong matunaw ang mga troso sa troso. Ginagawa ng gilingan mula sa gerilya ng Ural na posible upang maisagawa ang aksyon na ito nang mabilis hangga't maaari, tumpak, habang pinapanatili ang kawastuhan ng hiwa. Ang pangunahing bentahe ay na hindi na kailangang magsagawa ng anumang mga kumplikadong pagbabago. Ang aparato ay kailangan lamang na ligtas na maayos sa isang gawang bahay na frame, na maaaring gawin ng mga sulok ng metal o hugis na mga tubo. Ang log para sa pagproseso ay inilalagay sa mga nakahandang gabay.
Hindi mo kailangang lumikha ng mga guhit ng isang gilingan sa kahoy gamit ang iyong sariling mga kamay, dahil ang isang malaking bilang ng mga ideya ay magagamit sa network na angkop kahit para sa isang tao na walang karanasan.
Ang kaligtasan ng paggamit ng istraktura ay natiyak ng katotohanan na hindi mo kailangang ilipat ang iyong sarili sa pag-log. Para sa hangaring ito, ginagamit ang isang karwahe na may lagari, na, depende sa kapal ng log, ay naayos sa kinakailangang taas. Kapag nakabukas, ang frame ay tumpak na gumagalaw at ang hiwa ay mananatiling maayos at makinis. Maaari mong gamitin ang aparato hindi lamang para sa solidong troso, kundi pati na rin para sa mga lagari ng lagari, upang mag-ani ng kahoy na panggatong.
Ito ay kagiliw-giliw na! Kailangan mong maging handa para sa katotohanang sa proseso ng trabaho ay mabubuo ang isang malaking halaga ng sup, dahil ang isang kadena ng malaking kapal ay ginagamit para sa paglalagari.
Ang isang homemade winch ay magiging isang mabuting katulong din sa panahon ng pagtatayo, sapagkat makakatulong ito sa iyo na madaling maiangat ang mga naglo-load sa taas, ilipat ang pinutol na puno. Bilang karagdagan, gamit ang isang winch, posible na maglabas ng isang natigil na kotse o hilahin ang isang bangka mula sa tubig papunta sa baybayin. Ang kahusayan ng trabaho ay depende sa gear ratio ng gearbox; sa ilang mga modelo, ang tagapagpahiwatig ay maaaring umabot sa 1.5 tonelada.

Ang isang lagarian mula sa isang chainaw ay magbibigay-daan sa iyo upang madali at mabilis na gawing bar ang mga troso
Upang gawing maginhawa ang aparato upang magamit, kakailanganin mong gumawa ng isang solidong frame gamit ang hinang. Ang motor, gearbox at drum na may braking system ay dapat na matatag na naayos sa frame. Upang ayusin ang frame sa katawan, ang mga butas at lug ay dapat ibigay sa pamamagitan ng kung saan ang aparato ay maaaring mai-install sa anumang ibabaw.
Paano bumuo ng isang lawn mower gamit ang mga tool sa kamay
Upang mabilis na makayanan ang matangkad na damo o maglinis ng damuhan, ang isang lawn mower ay dapat naroroon kasama ng mga tool ng may-ari. Maaari kang bumili ng isang ordinaryong bersyon ng pabrika ng kagamitan, na kung saan ay maginhawa upang magamit, ngunit dapat tandaan na ang presyo ng isang lawn mower ay magiging makabuluhan. Ang isang self-made homemade na produkto mula sa isang Druzhba chainaw ay nagkakahalaga ng isa at kalahating beses na mas mura kaysa sa isang aparato sa pabrika, at ang lakas ay sapat na para sa karaniwang paggamit ng sambahayan.
Anuman ang uri ng konstruksyon na napili, ang trimmer ay binubuo ng isang drive, frame, control system at mga kutsilyo. Para sa kaginhawaan ng pagpapatakbo, ang aparato ay karagdagan na nilagyan ng mga gulong, binti, hawakan at isang proteksiyon na pambalot kung saan nakolekta ang pinutol na damo. Ang proseso ng paggawa ng isang lawn mower ay nagsisimula sa paglikha ng isang frame ng isang maginhawang sukat, madalas na nakatiklop mula sa mga sulok ng metal. Ang pinakamainam na sukat ay 25 × 25 cm. Sa pangkalahatan, ang pag-unlad ng trabaho sa paggawa ng kagamitan ay ganito:
- Gamit ang mga bolt, ang mga hawakan ng bakal ay nakakabit sa tapos na frame, at ang mga gulong ay naka-mount sa mga bahagi ng gilid.
- Naunang pinag-aralan ang mga katangian ng Ural chainsaw o anumang iba pang modelo, ang hawakan at gulong ay tinanggal mula sa aparato.
- Ang natitirang kagamitan ay nakakabit sa base gamit ang mga studs na may mga mani. Dapat itong gawin upang ang poste ng gearbox, na nakabukas sa 90˚, ay nakaharap pababa.
- Sa susunod na yugto, kinakailangan upang pahabain ang gas cable, at mula sa dalawang mga tubo ay gumawa ng isang sliding shaft na konektado sa gearbox.

Ang isang mower na ginawa mula sa isang chainaw ay nagkakahalaga ng mas mababa kaysa sa isang binili
Nakatutulong na payo! Ang ilang mga tao ay gumagawa ng kanilang sariling mga kutsilyo ng mower, halimbawa, mula sa mga bahagi ng isang lagari. Mas madali ang pagbili ng isang natapos na produkto, na kung saan ay nakakonekta sa baras gamit ang mga bolt o isang welding machine.
Ang mga elemento mula sa mga lumang carriage o wheelbarrow ng sanggol ay kinuha bilang mga gulong. Kung gumagamit ka ng maraming mga tubo ng iba't ibang mga diameter para sa pagmamanupaktura, ito ay magiging isang aparato na may isang teleskopiko na sistema ng trabaho na maaaring baguhin ang haba.
Ito ay lalong mahalaga kung ang aparato ay madalas na ginagamit ng mga tao na may iba't ibang laki. Gayundin, ang paglikha ng isang telescopic shaft ay makakatulong upang ayusin ang taas ng damo pagkatapos na maipasa ang lawn mower. Upang makapaghatid ang aparato ng mas mahaba, hindi mabigo pagkatapos ng pulong na may matitigas na bato at mahusay na labanan ang mga maliliit na bushe, dapat itong nilagyan ng de-kalidad na mga kutsilyo na bakal. Para sa maginhawang paggamit, pinapayuhan na dagdagan ang kagamitan ng mower ng isang catcher ng damo upang hindi mo kolektahin ang mga labi ng pinutol na damo.
Motor-cultivator, snow blower, ice drill at do-it-yourself drills
Ang isang chainw motor ay perpekto din para sa paglikha ng isang motor-magsasaka na dinisenyo para sa pag-aararo ng mga lupang birhen (para sa mga ilaw na lupa). Upang gumana sa mga siksik at basang lupa, ang lakas at metalikang kuwintas ng makina ay malamang na hindi sapat, ngunit upang paluwagin ang ibabaw na layer at alisin ang mga ugat ng mga damo na natitira sa lupa, ang magsasaka mula sa chainaw ay magiging sapat.Ang pangunahing bahagi ng aparato ay isang umiikot na pamutol, dahil kung saan gumagalaw ang kagamitan sa paligid ng site.
Kung sa nagtatanim ang baras na may mga pagbabahagi ay napalitan ng isang auger, at ang istraktura ay nilagyan ng isang aparato ng pag-inom at isang tubo para sa pagtatapon ng niyebe, ang magsasaka ay nagiging isang snowblower. Ang isang motor mula sa anumang lagari na may lakas na 3-5 lakas-kabayo ay magiging higit sa sapat upang malinis ang maluwag na niyebe sa site. Mahalaga lamang na gumawa ng isang maginhawang mekanismo ng tornilyo. Para sa mga ito, ang mga blades na gawa sa makapal na goma ay madalas na ginagamit. Ang mga bahagi na gawa sa galvanized steel ay angkop bilang isang aparato ng paggamit. Ang pagtapon ng niyebe ay maaaring magawa nang madali sa pamamagitan ng pag-install ng isang malaking diameter na plastik na tubo.
Ang pagbabarena ng yelo o frozen na lupa na may mga tool sa kamay ay isang mahaba at pisikal na hinihingi na gawain. Ang paggawa ng isang motor-drill gamit ang iyong sariling mga kamay ay lubos na magpapadali sa gawaing ito. Sa kasong ito, bilang karagdagan sa motor, kinakailangang magkaroon ng isang gearbox na kinokontrol ang bilang ng mga rebolusyon bawat minuto, dahil ang aparato ay hindi nangangailangan ng isang malakas na pag-ikot tulad ng isang chainaw.
Nakatutulong na payo! Kung wala kang sapat na kaalaman tungkol sa pagpapatakbo ng gearbox, maaari kang humingi ng tulong ng isang inhinyero na tutulong sa iyo na pumili ng tamang mekanismo. Ang kinakailangang uri ng aparato ay pinili depende sa mga katangian ng motor.
Upang lumikha ng isang motorsiklo o yelo na tornilyo gamit ang iyong sariling mga kamay, ang unang bagay na kailangan mong gawin ay upang gumawa ng isang maaasahang kaso, na kung saan ay isang pinutol na pyramid, na binubuo ng dalawang mga parihaba na magkakaibang laki. Kakailanganin mo ang isang gilingan, isang welding machine at metal pipes. Nasa loob ng frame na ito na mai-install ang gearbox, ayon sa pagkakabanggit, ang mga sukat ng katawan ay direktang nakasalalay sa mga sukat ng gearbox.
Para sa pagiging maaasahan, inirerekumenda ng mga eksperto ang pagkuha ng isang bahagi mula sa isang mahusay na motor-drill na gawa sa matibay na bakal bilang isang tornilyo, dahil ang materyal na may mababang kalidad ay hindi makatiis ng mabibigat na karga. Ang isa pang mahalagang isyu ay ang maaasahang pangkabit ng drill, na maaaring isagawa gamit ang isang ordinaryong tubo, naayos sa magkabilang panig na may mga dowel o studs. Ang pamamaraang ito ng pangkabit ay magpapahintulot sa iyo na baguhin ang mga drill o gumamit ng iba pang mga kalakip para sa trabaho.
Gawang bahay na chainaw: motor na palabas at iba pang mga paraan ng transportasyon
Ang mga motor na Chainsaw outboard ay unang ginamit noong World War II sa Timog-silangang Asya, sapagkat ang mga lagari mismo ay maraming beses na mas mura kaysa sa mga motor. Noong una, ginamit ang mga stick ng kawayan upang ikabit ang poste, na pinalitan ng mga bago kapag naubos na. Upang makagawa ng isang produktong gawa sa bahay mula sa "Kalmadong" chainaw, kailangan mong alisin ang gulong mula sa aparato, at sa lugar nito mag-install ng alinman sa isang handa nang tagabunsod ng bangka o isang gawang bahay. Upang mai-mount, kakailanganin mong bumili ng isang espesyal na adapter.
Pagkatapos ang isang gawang bahay na motor ng boat ng boat na naka-attach sa likuran ng bangka upang ang propeller ay lumubog sa tubig sa isang tiyak na anggulo. Sa ilang mga kaso, ang isang reducer ay ginagamit sa halip na isang adapter. Sa pangkalahatan, ang gayong disenyo na gawa sa bahay ay itinuturing na isang pangkabuhayan na pagpipilian na nagbibigay-daan sa iyo upang mapabilis ang paggalaw sa ibabaw ng tubig, na lalong mahalaga para sa mga mangingisda o mangangaso. Ang motor ay nagbibigay ng isang mahusay na pagsakay para sa isang maliit na bangka at matipid nang sabay.

Kahit na ang isang nagsisimula ay maaaring gumawa ng isang gawang bahay motor na bangka mula sa isang chainaw
Nakatutulong na payo! Hindi lahat ng mga modelo ng saw ay idinisenyo para sa tuluy-tuloy at tuluy-tuloy na operasyon. Samakatuwid, mahalagang subaybayan ang antas ng pag-init ng aparato at i-off ito sa oras upang payagan itong lumamig.
Mga tampok sa disenyo ng isang snowmobile at snowmobile
Ang isang chainaw snowmobile ay itinuturing na isa sa pinakamahirap na aparato na gawa sa bahay, dahil ang paggawa nito ay mangangailangan ng isang malaking bilang ng mga karagdagang bahagi, kabilang ang:
- frame;
- katawan;
- mga track at front ski;
- manibela;
- kontrol na binubuo ng isang hawakan at isang klats.
Kaugnay na artikulo:
Chainsaw chain hasa ng hasa: isang maaasahang katulong para sa DIYer
Device, prinsipyo ng pagpapatakbo at mga katangian. Mga tampok ng kamay at nakoryente na tool. Repasuhin ang pinakamahusay na mga modelo.
May isa pang komplikasyon. Para gumalaw ang isang snowmobile, kailangan itong lagyan ng suspensyon at paghahatid, kaya't magiging mahirap para sa isang baguhan na makayanan.
Ang paglikha ng isang snowmobile mula sa isang chainaw gamit ang iyong sariling mga kamay ay nagsisimula sa isang sumusuporta sa frame, na kung saan ay isang profile ng bakal na may sukat na 20x20 o 20x30 cm. Ang swing arm ay responsable para sa shock pagsipsip ng likod ng suspensyon, at ang uri ng motorsiklo na steering fork ay responsable para sa suspensyon sa harap.

Upang makagawa ng isang snowmobile mula sa isang chainaw, kakailanganin mong bumili ng maraming mga karagdagang bahagi
Ito ay kagiliw-giliw na! Ang isang mas kumplikadong disenyo ay binubuo ng dalawang ski, ang manibela ay hindi lamang maaaring i-on ang ehe, ngunit hilahin din ang mga lever ng steering link. Sa kabila ng katotohanang ang pamamaraang ito ay mas mahirap sa teknikal, nagbibigay ito ng mas maginhawang kontrol.
Bilang karagdagan, ang isang do-it-yourself snow scooter na may motor ay kinumpleto ng isang centrifugal clutch na may isang V-belt at chain. Upang madagdagan ang puwersa ng traksyon, ang isang gear ay nakakabit sa track shaft, na ang lapad nito ay lumampas sa bahagi ng drive ng shaft na shaft. Para sa normal na pagpapatakbo ng isang aparatong ginawa sa bahay, kailangan mong kumuha ng motor na may lakas na hindi bababa sa sampung horsepower.
Ang isang mas simpleng pagpipilian ay isang snowmobile, na may katulad na pamamaraan ng paggamit, ngunit isang propeller driven driven na sasakyang panghimpapawid na gumagalaw sa niyebe. Dahil sa pinasimple na disenyo, ang mga sled ay hindi naiiba sa mataas na kapasidad sa pagdadala, kakayahang dumaan at katatagan. Ang pangunahing bentahe ay ang simpleng disenyo at kadalian ng paggawa. Ang umiikot na tornilyo, na naka-install sa likod ng driver, ay dapat na sarado na may isang takip na proteksiyon na gawa sa pinong mata. Isinasagawa ang kontrol sa pamamagitan ng pag-on ng ski, throttle at preno. Ang pinakamainam na lakas ng engine ay itinuturing na 5-6 horsepower.
Paano gumawa ng isang moped mula sa isang chainaw o isang bisikleta na may motor
Ang isang homemade moped mula sa isang chainaw ay malamang na hindi maikumpara sa isang pang-industriya na bersyon ng aparato, ngunit ito ay mahusay na gawin bilang isang uri ng laruang pang-adulto. Sa pangkalahatan, ang aparato ay hindi isang moped, ngunit isang bisikleta na pinapatakbo ng isang chainaw. Ito ay dahil sa ang katunayan na ito ay ang lumang frame mula sa sasakyang ito na madalas na ginagamit.
Ito ay kagiliw-giliw na! Ang mga mas advanced na artesano ay hindi kumukuha ng isang nakahandang frame mula sa isang lumang bisikleta, ngunit nang nakapag-iisa gumawa ng isang welded na istraktura para sa hangaring ito mula sa mga metal na tubo o isang parisukat na profile. Ngunit ang pangunahing mga yunit, kabilang ang mga bearings, ginusto na gumamit ng mga pabrika.
Bago mo ilagay ang engine mula sa chainw sa bisikleta, dapat mong alagaan ang pagkakaroon ng mga bahagi, tulad ng:
- frame;
- engine na may tangke ng gas;
- gearbox na may ratio na gear 18: 1;
- shock absorbers;
- preno.
Ang anumang engine para sa isang bisikleta mula sa isang chainaw ay dapat na suplemento ng isang gearbox upang posible na makontrol ang pag-ikot ng mga gulong. Minsan, sa halip na isang gearbox, ginagamit ang mga pares ng gear, na konektado sa pamamagitan ng isang kadena mula sa isang bisikleta. Kung gagawin namin ang bersyon ng mountain bike bilang batayan, kung gayon ang isang gearbox na may ratio na gear na 1:15 o 1:20, na pupunan ng isang variator, ay mas angkop. Ang pangunahing bentahe ng isang bisikleta sa bundok na may isang chainaw motor ay na, hindi tulad ng isang maginoo na aparato, makakabilis ito sa 30 km / h.
Ang isa pang madaling ipatupad na sasakyan ay isang chainaw kart, na kahawig ng isang pinasimple na modelo ng kotse, na pangunahing ginagamit para sa mga karera ng circuit. Ang aparato ay wala ng isang solidong katawan, walang mga shock absorber dito. Ang minimum na bilang ng mga bahagi ay nagbibigay-daan upang magaan ang istraktura at ibigay ito sa isang mataas na bilis ng paggalaw.

Ang isang bisikleta ay mangangailangan hindi lamang isang engine ng chainaw, kundi pati na rin ang isang gearbox.
Ang frame ay madalas na luto nang nakapag-iisa mula sa isang profile sa metal, at ang mga lumang cart ay ginagamit bilang isang donor ng gulong. Ang isang kadena ng bisikleta ay ginagamit bilang isang biyahe patungo sa likuran ng ehe, at kailangan ding isang link ng pagpipiloto. Upang tipunin ang katawan, kakailanganin mong gumamit ng isang welding machine. Isinasaalang-alang ng ilan ang karton na gawa sa kamay bilang isang kotse na pinapatakbo ng gasolina para sa mga bata, ngunit tandaan na ang sasakyan ay may kakayahang isang disenteng bilis.
Ano pa ang magagawa mong homemade mula sa isang chainaw
Maaaring magamit ang chainaw motor para sa independiyenteng paggalaw ng halos anumang sasakyan. Kaya, ang isang bata o matanda na iskuter ay maaaring nilagyan ng isang drive, na maaaring mapabilis sa bilis na 10-15 km / h. Ang mga pangunahing bentahe ng paggamit ng isang iskuter ay mataas ang kakayahang maneuverability at hindi na kailangan para sa malaking espasyo sa imbakan. Bukod dito, para sa pagmamanupaktura, hindi mo kailangang i-disassemble ang chainaw sa mga bahagi. Kakailanganin lamang na alisin ang gulong at ang chain ng lagari, na pinalitan ng bisikleta at nagsisilbing bahagi na nagpapadala ng metalikang kuwintas sa likurang gulong.
Bilang karagdagan sa paggawa ng mga sasakyan, gamit ang ilang bahagi ng lagari, posible na lumikha ng isang maliit na mobile power plant na umaabot sa lakas na 5 kW. Upang lumikha ng isang generator, ang isang chainaw ay mangangailangan ng isang motor, isang frame na bakal, isang de-koryenteng kahon ng pamamahagi na may mga naka-plug-in na socket, at isang gearbox, na kung saan ang metalikang kuwintas ay ibibigay sa generator shaft.
Ang ilang mga gawang bahay na chainaw chain ay popular sa mga farriers, halimbawa, ang ilan ay lumilikha ng solidong huwad na mga kutsilyo. Upang gawin ito, ang kadena ay nahahati sa mga piraso, kung saan ang mga base ng mga talim ay pagkatapos ay hinang sa pamamagitan ng pag-init ng mga ito sa 850 ° C. Ang tinunaw na kadena ay pinindot hanggang sa mawala ang mga walang bisa sa pagitan ng mga link.
Upang lumikha ng mga produktong gawa sa bahay mula sa isang chainaw, kailangan mong malaman ang mga pangunahing kaalaman ng simpleng mekanika, dahil kailangan mong maayos na ikonekta ang lahat ng mga elemento nang magkasama. Hindi ka dapat bumili ng isang mamahaling tool para sa pag-imbento; ang mga modelo ng badyet ng mga chainaw ay angkop din para dito. Kapag bumibili, dapat mong isaalang-alang na ang lagari ay dapat na madaling i-disassemble, at ang mga piyesa para dito ay dapat na magagamit para maibenta. Para sa paggawa ng mga aparato, mas mahusay na kumuha ng mga nakahandang guhit, lalo na kung walang nakaraang karanasan sa paglikha ng mga yaring-bahay na aparato.