Nhà tắm là một công trình, trong khuôn viên có bầu không khí ngự trị, có lợi cho hòa bình, thư giãn và một thú tiêu khiển thú vị. Nội thất đóng một vai trò quan trọng trong việc tạo ra những điều kiện đó, mà thành phần chủ đạo là đồ nội thất. Nội thất nhà tắm là một loại vật dụng nội thất đặc biệt, có tính chất đặc thù. Nhiều lựa chọn về mẫu mã, nhiều kiểu dáng và sắc thái, vẻ đẹp của hình dạng và đường nét - tất cả những điều này là đặc trưng của đồ nội thất bằng gỗ.
Nội dung
- 1 Yêu cầu đối với đồ đạc trong bồn tắm bằng gỗ
- 2 Đồ nội thất bằng gỗ cho phòng tắm và phòng xông hơi khô là trung tâm của bất kỳ phong cách nội thất nào
- 2.1 Bồn tắm bắt đầu với một cái móc áo: đồ nội thất phòng thay đồ
- 2.2 Nên đặt đồ đạc gì trong phòng xông hơi ướt: mẹo và thủ thuật
- 2.3 Làm thế nào để có được đồ nội thất tiện dụng để thư giãn trong bồn tắm
- 2.4 Điều gì để từ chối và điều gì nên thích trong thiết kế của phòng nghỉ
- 2.5 Lựa chọn đồ nội thất tối ưu cho phòng tắm trong phòng nghỉ
- 3 Giá cả phải chăng, rẻ, thoải mái: đồ nội thất phòng xông hơi khô tự làm
Yêu cầu đối với đồ đạc trong bồn tắm bằng gỗ
Để trang bị một căn phòng cho một phòng tắm không phải là dễ dàng như thoạt nhìn. Sự kết hợp của "phong cách và thoải mái" là khá thất thường. Không nên cho phép sự đơn giản của thiết kế trở nên thô sơ, và theo đuổi sự độc đáo, người ta phải cố gắng không để mất đi sự thoải mái. Những phẩm chất đặc biệt nào nên đồ nội thất gỗ để tắm?

Khi lựa chọn đồ nội thất cho phòng tắm, bạn cần nhớ rằng nó phải kết hợp được các yếu tố như tiện dụng, đơn giản và phong cách
Bạn có thể xác định các yêu cầu cơ bản cho các hạng mục nội thất từ mục đích của chúng. Họ tắm hơi và nghỉ ngơi. Độ ẩm cao đòi hỏi sức bền và khả năng chống ẩm từ vật liệu. Thư giãn đòi hỏi công thái học và cảm nhận trực quan dễ chịu. Đồ đạc không thể chiếm phần lớn không gian trong phòng, nếu không sẽ không đáp ứng được các điều kiện về tiện nghi và thoải mái. Vì vậy, nội thất phòng xông hơi khô phải có những đặc điểm sau:
- khả năng chịu nhiệt và độ ẩm của vật liệu sản xuất;
- tỷ lệ kích thước của đồ nội thất với các thông số của căn phòng;
- sự phù hợp của các hình thức với mục đích và ứng dụng;
- tính thẩm mỹ;
- trang trí thiết kế.
Khi lựa chọn đồ nội thất cho phòng tắm, điều rất quan trọng là không để phòng quá tải, để không tạo ra rào cản đối với sự lưu thông không khí. Chỉ yêu cầu mua hoặc sản xuất những món nội thất thực sự cần thiết.
Đồ nội thất bằng gỗ cho phòng tắm và phòng xông hơi khô là trung tâm của bất kỳ phong cách nội thất nào
Nội thất phòng tắm bằng gỗ là một truyền thống đã có từ xa xưa.Không một loại vật liệu xây dựng nào được tạo ra bằng công nghệ hiện đại lại có chất lượng gần bằng gỗ để trở thành nguyên liệu chính cho đồ nội thất trong phòng tắm.
Không có một phong cách trang trí nội thất nào mà gỗ lại không thích hợp. Các sản phẩm chạm khắc là đặc trưng của phong cách ethno; mô hình cách điệu - cho đất nước; các yếu tố chức năng đục đẽo giới thiệu các tác phẩm kinh điển; hình dạng hình học chính xác, đồng đều, phù hợp với công nghệ cao; sự tương phản màu sắc và các chi tiết lớn là đặc trưng của người tiên phong. Tất cả các ý tưởng sáng tạo và ý tưởng thiết kế đa dạng có thể được hiện thực hóa với sự trợ giúp của gỗ. Những phẩm chất sau đây khiến nó trở thành nguyên liệu thô tuyệt vời để sản xuất đồ nội thất:
- trọng lượng thể tích thấp;
- khả năng gia công bằng các dụng cụ cắt;
- dễ kết dính;
- dẫn nhiệt thấp.
Chất liệu này còn có thêm một ưu điểm không thể chối cãi - thân thiện với môi trường, an toàn cho sức khỏe.
Bồn tắm bắt đầu với một cái móc áo: đồ nội thất phòng thay đồ
Phòng đầu tiên của phòng tắm là phòng thay đồ. Nó có thể được sử dụng theo nhiều cách khác nhau. Nhưng có một điều là bất biến: nó nằm ở phía trước của các phòng chính. Vì vậy, hầu hết một phòng thay đồ được đặt trong đó. Trong phòng thay đồ, bạn cần trang bị móc treo hoặc lắp tủ quần áo (có thể kết hợp hai phương án), đặt kệ để giày dép.
Một chiếc mắc áo tốt hơn cho những chiếc áo khoác ngoài, một chiếc tủ đựng quần áo cho những thứ còn lại. Không mong muốn làm cho nó bị điếc, đóng lại, vì sẽ không được cung cấp đủ thông gió. Một lựa chọn thú vị sẽ là phiên bản tủ, các cánh cửa được làm dưới dạng lưới hoặc kết cấu nhẹ khác, tức là chúng có tính chất trang trí. Ngoài ra, không khí sẽ đi qua chúng một cách tự do.
Nếu không gian cho phép, sẽ rất hữu ích khi kê một chiếc bàn nhỏ để bạn có thể đặt điện thoại di động, chìa khóa để không gây trở ngại khi cởi quần áo. Nếu bạn tự do phát huy trí tưởng tượng của mình, giá để giày sẽ trở thành một điểm nhấn thiết kế thực sự của phòng thay đồ.
Lời khuyên hữu ích! Khi xác định kích thước của giá để giày, cần phải lưu ý rằng giày và ủng mùa đông cao hơn nhiều so với giày, giày thể thao và dép đi trong nhà. Nếu bạn không tính đến điều này, thì vào mùa đông, những đôi giày sẽ đứng cạnh kệ, không hoàn toàn thẩm mỹ và cần thêm không gian.
Các kệ chính dành cho giày dép. Cái trên cùng có thể được sử dụng như một chiếc ghế dài. Một lựa chọn tốt là làm cho toàn bộ cấu trúc dưới dạng một chiếc ghế dài với lưng cho phép bạn ngồi thoải mái (quan trọng đối với những người đã quen ngồi trên giày) và bảo vệ bức tường khỏi bụi bẩn và cọ xát.
Để tạo ấn tượng tổng thể của bồn tắm dễ chịu, cần phải tạo ra một nội thất thú vị đã có trong phòng thay đồ. Nó là mong muốn để làm đồ nội thất từ một loại gỗ. Trong phòng thay đồ, gỗ thông rẻ tiền sẽ khá được chấp nhận. Các đồ nội thất chính nên có cùng màu. Bạn có thể sử dụng các sắc thái khác, nhưng chỉ để trang trí các đồ nội thất riêng lẻ.
Ví dụ, nếu phong cách cổ điển được chọn, thì tất cả đồ nội thất hoặc tất cả các bộ phận phía trước phải tương ứng với thiết kế này. Một chiếc giá treo được làm đầy sáng tạo với móc, nĩa và thìa sẽ trông rất cô đơn nếu chẳng hạn, tay nắm tủ hoặc chân giá giày không được tạo theo cùng một kiểu dáng. Tuy nhiên, ý thức về tỷ lệ là quan trọng ở đây để không gây khó chịu cho du khách.
Nên đặt đồ đạc gì trong phòng xông hơi ướt: mẹo và thủ thuật
Kết cấu chính bằng gỗ của phòng xông hơi ướt là mái che. Chúng được làm bằng gỗ, và nếu bạn áp dụng trí tưởng tượng sáng tạo của mình, chính những tấm rèm cửa sẽ tạo nên một nội thất độc đáo, đặc biệt trong căn phòng này. Thông thường, các thiết kế như vậy được thực hiện dưới dạng các bước khép kín. Nhưng bạn có thể sắp xếp chúng dưới dạng kệ treo theo chiều ngang, tức làvới các bước mở. Sự sắp xếp như vậy không chỉ trông thú vị mà còn mở rộng không gian về mặt thị giác, tăng vùng không khí, điều quan trọng đối với điều kiện vật chất (với nhiệt độ trong phòng này).
Một số du khách tắm cảm thấy không thoải mái ngay cả khi ở bậc dưới của tán cây. Không có hại gì cho họ khi làm một chiếc ghế dài nhỏ và đặt nó dọc theo bức tường ở lối vào. Phiên bản đơn giản nhất của nó bao gồm các yếu tố sau:
- một tấm ván nhám, chiều rộng là 50 mm, chiều dài là 1100-1200 mm;
- 4 dầm 50x50 mm dài 700 mm;
- viên chéo 50x50, dài 900-1000 mm;
- 2 thanh 50x50 mm dài 400 mm.
Chúng tôi làm chân hình chữ thập từ các thanh dài 700 mm. Tại điểm liên kết, trước tiên bạn phải làm mẫu cho độ dày của các thanh và độ sâu 25 mm, kết nối các chân bằng vít tự khai thác. Ở phía trên có gắn một thanh, với sự trợ giúp của chân sẽ được cố định vào ván ghế. Sau khi lùi lại 100 mm so với mép trong (dọc theo chiều dài) của bảng, bạn cần gắn các chân vào đó. Sau đó, cần phải tăng cường cấu trúc bằng một thanh 900 mm, đặt nó vào các khớp hình chữ x của chân. Tất cả các chốt phải được làm bằng vít tự khai thác.

Các tấm che cho phòng xông hơi ướt không chỉ có hình dạng cổ điển mà còn có kiểu dáng khác lạ đầy phong cách
Một băng ghế như vậy, được làm bằng các khoảng trống có cùng độ dày, sẽ trở thành một cấu trúc thẩm mỹ và đáng tin cậy, hài hòa hoàn hảo với rèm cửa ở dạng các bậc khép kín. Có thể được hoàn thành với một chiếc ghế đẩu trang trí. Một chiếc tủ mở với các giá nhiều tầng, nơi bạn có thể đặt chậu và gấp chổi cũng sẽ rất hữu ích.
Lời khuyên hữu ích! Khi chọn một mô hình mái che, phải tính đến an toàn. Thiết kế phải thoải mái để bạn có thể thoải mái lên xuống kệ.
Làm thế nào để có được đồ nội thất tiện dụng để thư giãn trong bồn tắm
Nghỉ ngơi là để thư giãn. Và trên hết là với cơ thể. Cần phải thực hiện một tư thế thoải mái sẽ làm giảm căng cơ. Đồ nội thất được làm bằng gỗ, là một vật liệu cứng, cần đặc biệt chú ý đến hình dáng của nó.
Bài viết liên quan:
Đồ nội thất bằng gỗ: dễ dàng và độc quyền trong bất kỳ nội thất nào
Tính năng và lợi ích. Đặc tính nguyên liệu và lựa chọn nguyên liệu. Ý tưởng với hình ảnh và hướng dẫn từng bước để làm đồ nội thất cho các phòng và ngôi nhà bằng tay của chính bạn.
Thông thường, ghế dài được sử dụng để thư giãn trong bồn tắm. Sự hiện diện của tựa lưng giúp bạn có thể ngả lưng và thư giãn cột sống. Điều quan trọng là phải tính đến chiều rộng của băng ghế dự bị và khoảng cách từ phía sau. Nếu băng ghế rộng, bạn cần phải di chuyển ra xa để sử dụng tựa lưng, vì như vậy chân sẽ không thoải mái. Khi mua đồ nội thất hoàn thiện, hãy chắc chắn để đánh giá khía cạnh này. Cần thiết là mép ngoài của băng ghế phải có đường vát tròn, độ cao của lưng sao cho có thể làm giãn cột sống cổ.
Nếu kết cấu bằng gỗ được sử dụng thay vì chân cho bàn, cần đánh giá xem các chân sẽ ở vị trí nào trên bàn, liệu có thực sự là "thực tế không có chỗ nào để đặt chúng" hay không. Thật tiện lợi khi xà ngang, một thanh tăng cứng cho bàn, ở mức độ và hình dạng như vậy mà bạn có thể đặt chân lên nếu muốn (trong bồn tắm, điều này không mâu thuẫn với nghi thức).
Ghế đẩu là không thể chấp nhận được đối với phòng thư giãn trong bồn tắm. Nếu không gian cho phép bạn sử dụng ghế thay vì ghế dài (chúng cung cấp nhiều chỗ ngồi hơn), tay vịn sẽ là một chi tiết tuyệt vời. Ghế nên được sử dụng khi đặt xung quanh bàn, giữ khoảng cách ít nhất 20 cm giữa chúng.
Điều gì để từ chối và điều gì nên thích trong thiết kế của phòng nghỉ
Tình trạng cơ thể sau phòng xông hơi ướt và đồ nội thất tiện nghi mang đến cho một người cơ hội thư giãn.Việc thực hiện mong muốn này phần lớn phụ thuộc vào nội thất của căn phòng. Nhà tắm - một tòa nhà bổ sung trên trang web, tương ứng, có kích thước nhỏ. Và ngay cả căn phòng lớn nhất trong nhà tắm (phòng thư giãn) thường chỉ có diện tích từ 16-20 m².
Nếu thiết kế của đồ nội thất đơn giản và khiêm tốn, bạn nên trang trí nội thất phòng tắm với các mảng tường làm bằng chất liệu tự nhiên, khăn tắm, kệ đựng bát đĩa và các chi tiết khác.
Lời khuyên hữu ích! Bạn không nên treo tranh bằng kỹ thuật truyền thống (sơn dầu, màu nước,…) trong phòng nghỉ. Nhiệt độ giảm, độ ẩm không thể tránh khỏi có ảnh hưởng bất lợi đến tình trạng của họ. Một lớp phủ vecni đặc biệt giữ cho bạt trong thời gian ngắn.
Trong những phòng tắm có diện tích khiêm tốn, phòng thư giãn thường được kết hợp với phòng thay đồ. Trong những trường hợp như vậy, một bức bình phong gỗ được thiết kế nghệ thuật, hài hòa với đồ nội thất chính sẽ hoàn thành tốt chức năng của một vách ngăn và trang trí cho căn phòng.
Nếu phòng nghỉ chỉ có thể kê một chiếc bàn và những chiếc ghế dài, bạn không nên tuyệt vọng. Một vài túi lanh, được trang trí bằng các yếu tố tự nhiên (đậu Hà Lan, hạt thông hoặc lanh, hạt hướng dương), chứa đầy các loại thảo mộc thơm để uống trà, được treo khéo léo trên tường, sẽ tạo cho căn phòng một nét độc đáo.
Chỉ nên trang trí trần nhà trong phòng giải trí nếu nó cao. Các chùm tia, lưới, đèn, được xây dựng thành các khu được thiết kế đặc biệt, làm cho phần trên của căn phòng trở nên biểu cảm, nhưng ở vị trí thấp, chúng "đè bẹp", "hạ cánh" căn phòng. Sự ấm cúng được tạo ra bởi ánh sáng lan tỏa dịu nhẹ.
Chỉ nên bổ sung nội thất bằng các loại cây trồng trong nhà nếu có thể tạo điều kiện cần thiết cho chúng:
- đủ ánh sáng;
- độ ẩm không khí - ít nhất 60%;
- khả năng cung cấp dịch vụ chăm sóc liên tục.
Trên các bức ảnh được đề xuất - một phòng thư giãn trong bồn tắm. Những ý tưởng thiết kế sáng sủa và độc đáo sẽ giúp bạn đưa ra lựa chọn, quyết định phong cách trang trí phòng. Nếu không thể hiện thực hóa toàn bộ ý tưởng, bạn có thể sử dụng các yếu tố thiết kế mà bạn thích.
Lựa chọn đồ nội thất tối ưu cho phòng tắm trong phòng nghỉ
Nghỉ ngơi trong nhà tắm có những điểm khác biệt đáng kể so với nghỉ ngơi trong bất kỳ phòng nào khác: tình trạng thể chất đặc biệt, ham muốn giao tiếp, không muốn nghỉ hưu. Do đó, phòng nghỉ cần có một bộ bàn ghế (hoặc đồ nội thất chỗ ngồi khác) để mọi người lại với nhau bên tách trà. Yêu cầu bắt buộc: bề mặt của đồ nội thất đó phải được chà nhám hoàn hảo để cơ thể không cảm thấy khó chịu khi chạm vào. Điều cần thiết là kích thước của mặt bàn cho phép lắp đặt các ổ cắm với mứt và mật ong, cũng như một samovar - một thuộc tính cần thiết của một bồn tắm Nga thực sự.
Nếu các thông số của phòng cho phép và thêm vào đó, có kinh phí thì việc mua một chiếc tủ là rất đáng giá. Điều này phù hợp với quan điểm vệ sinh: các món ăn sẽ được để ở một nơi được chỉ định đặc biệt, và không được cất giữ trong một hộp ngẫu nhiên hoặc nơi thích hợp khác. Nhưng nó nhất thiết phải bổ sung cho thiết kế của phòng thư giãn trong bồn tắm, hài hòa với phần còn lại của đồ nội thất, và không được coi là một món đồ độc lập.
Nếu có không gian trống, bạn có thể kê một chiếc sofa có kích thước nhỏ gọn hoặc một góc êm ái với chiếc bàn trang trí nhỏ - tạo nơi cho những ai muốn trò chuyện riêng tư, nói chuyện điện thoại hoặc chỉ thay đổi tư thế. Một vài chiếc bàn nhỏ đầu giường, nơi bạn có thể để tạm mỹ phẩm và các vật dụng vệ sinh cá nhân khác cũng không bị đau. Yêu cầu cơ bản đối với nội thất phòng vệ sinh:
- chức năng;
- tính thực tế;
- tính thẩm mỹ;
- tuân thủ phong cách.
Lời khuyên hữu ích! Khi mua đồ nội thất bọc cho phòng thư giãn trong bồn tắm, bạn phải chọn loại vải bọc không hút ẩm. Ngay cả khi thông gió tốt nhất cũng sẽ không khô đúng cách.
Giá cả phải chăng, rẻ, thoải mái: đồ nội thất phòng xông hơi khô tự làm
Nếu có mong muốn, bạn hoàn toàn có thể tự làm đồ nội thất cho phòng tắm, ngay cả khi chỉ cần có những kỹ năng tối thiểu trong việc làm việc với gỗ. Điều này đòi hỏi một bộ công cụ nhất định, điều này phụ thuộc vào tình trạng của gỗ mua (đã qua xử lý hay chưa) và vào mô hình đã chọn. Bộ công cụ cơ bản như sau:
- cưa tay hoặc điện;
- giấy nhám hoặc máy mài;
- máy bay cơ hoặc điện;
- máy khoan;
- Cái vặn vít;
- dụng cụ đo lường: thước dây, thước kẻ, thước cặp, thước cặp.
Làm đồ nội thất cho phòng tắm và phòng xông hơi khô từ gỗ sẽ mất một chút thời gian. Trong quá trình này, sẽ không có khó khăn nào nếu bạn tính toán chính xác và công cụ được sử dụng đang hoạt động.
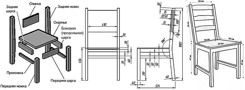
Bản vẽ và sơ đồ để lắp ráp đồ nội thất cho một bồn tắm bằng tay của chính bạn
Nhìn bề ngoài đơn giản nhưng đòi hỏi phải tuân thủ những quy tắc nhất định đối với vị trí của các bộ phận riêng biệt đó chính là giá đỡ. Đối với cấu trúc nhiều tầng này, kích thước tối ưu của các kệ, khoảng trống giữa chúng và các bức tường của phòng xông hơi ướt là rất quan trọng. Không nên chọn dầm lớn để làm khung. Có đủ kích thước là 50x70 mm hoặc 60x70 mm. Tải nặng sẽ được duy trì và sẽ không có vấn đề về sấy khô.
Khoảng cách khuyến nghị từ sàn đến kệ dưới cùng là ít nhất 400 mm, giữa các kệ - 500 mm. Kệ trên cùng phải rộng ít nhất 600 mm. Cần để khoảng cách giữa các tấm ván với tường khoảng 100 mm và giữa các tấm ván với nhau lên đến 10 mm. Khe hở là cần thiết để cung cấp thông gió. Chiều cao giữa kệ trên và trần nhà không được nhỏ hơn 1100 mm.
Lời khuyên hữu ích! Nếu nội thất cho bồn tắm bằng gỗ thông, cần làm nóng phòng xông hơi ướt 3-4 lần trong thời gian vắng khách, đưa nhiệt độ lên mức tối đa. Điều này sẽ giúp loại bỏ nhựa khỏi gỗ.
Bạn hoàn toàn có thể tự làm bàn ăn. Sau khi xem ảnh đồ nội thất cho bồn tắm, có bản vẽ trước mặt với các kích thước đã được xác minh và trình tự lắp ráp dễ hiểu, bạn có thể yên tâm sản xuất. Tùy chọn được đề xuất là một bảng cổ điển, cơ sở. Nếu muốn, nó có thể được bổ sung bằng các yếu tố trang trí.
Đối với bảng, bạn sẽ cần một bộ vật liệu sau:
- bảng cho mặt bàn 10x50x1200 mm (8 chiếc.);
- thanh cho chân 50x50x650 mm (4 chiếc.);
- thanh cho dầm dọc 25x100x1050 mm (2 chiếc);
- thanh cho xà ngang 25x100x750 mm (4 chiếc.).
Trình tự thực hiện:
- Chúng tôi đặt các tấm ván đã qua xử lý, sử dụng vít tự khai thác và keo dán gỗ, chúng tôi buộc chúng (đặt với mặt rộng với mặt bàn) bằng hai thanh ngang, ở các đầu của chúng được cắt ra làm chân.
- Sau đó, sử dụng keo và vít tự khai thác, chúng tôi gắn các chân bằng cách chèn chúng vào các vết cắt.
- Chúng tôi bố trí các dầm dọc, gọt chân và cũng gắn chúng bằng keo và vít tự khai thác.
- Chúng tôi áp dụng các lớp phủ bảo vệ và trang trí.
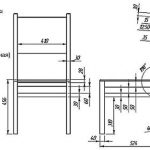
Việc xây dựng hóa ra không thô, ổn định và linh hoạt. Bạn có thể đặt băng ghế gần nó, Nhiều cái ghế, ghế sofa nhỏ và ghế bành. Ghế cũng có thể được làm bởi chính bạn. Các khoảng trống sau phải còn trong kho:
- bảng ghế 50x100x500 mm (5 chiếc.);
- thanh để buộc 50x100x490 mm (2 chiếc.);
- thanh cho dầm dọc 25x100x475 mm (2 chiếc.);
- thanh cho xà ngang 25x100x540 mm (2 chiếc.);
- giá để lưng 50x50x580 mm (2 chiếc.);
- bảng cho mặt sau 50x100x540 mm (2 chiếc.);
- thanh để chân sau 50x50x610 mm (2 chiếc.);
- thanh để chân trước 50x50x600 mm (2 chiếc.);
- kê tay 25x70x467 mm (2 chiếc).
Các bước lắp ráp:

Nếu bạn thực hiện tất cả các bước lắp ráp một cách chính xác, bạn sẽ có được một thiết kế chất lượng cao.
- Các tấm ván, khối cố định, tay vịn, thanh thẳng đứng và chân trước phải được cắt ở góc 90 °. Các chùm được đặt ở góc 45 °. Chân sau - ở góc 11 °. Trên một mặt của tựa lưng, cần cắt 200 mm ở góc 5 °.
- Đặt các tấm ván cách nhau 10 mm, buộc chặt chúng bằng các thanh. Sau đó cố định các thanh ngang dọc và thanh ngang.
- Gắn và gắn vào xà ngang tựa lưng. Gắn các tấm ván cho mặt sau vào giá đỡ.
- Gắn chân vào xà dọc, đặt tay vịn vào chân và cố định.
Tất cả các kết nối nên được thực hiện bằng vít tự khai thác và keo dán gỗ. Đồ nội thất phòng xông hơi khô Do-it-yourself làm bằng gỗ là sức mạnh, độ tin cậy và tính kinh tế.
Bộ nội thất làm sẵn cho phòng tắm và phòng xông hơi khô: điều kiện lựa chọn
Nếu không có cơ hội hoặc cảm hứng để tự lắp ráp, bạn có thể mua đồ nội thất cho phòng tắm và phòng xông hơi khô. Các mạng lưới giao dịch có rất nhiều mẫu mã đa dạng, từ bàn và ghế dài cách điệu dệt kim thô sơ đến tủ gỗ sồi chạm khắc và ghế bập bênh có thiết kế riêng. Sự lựa chọn chủ yếu phụ thuộc vào sở thích và khả năng tài chính.
Một số mẹo chung để giúp bạn tránh những sai lầm khi mua hàng:
- khi mua đồ nội thất làm sẵn, hãy chắc chắn yêu cầu một tài liệu chính thức nơi ngày mua được ấn định và các đặc tính của hàng hóa, nếu không, nếu cần thiết, sẽ không có ai để yêu cầu bồi thường;
- kiểm tra kỹ hàng hóa về các khuyết tật vật liệu: phoi, vết nứt, chỗ dán;
- chọn đồ nội thất bền (gỗ chất lượng cao và dây buộc chắc chắn) - đây là chìa khóa cho độ bền của nó.
Giá nội thất nhà tắm phụ thuộc vào loại gỗ sử dụng, công nghệ sản xuất và chất lượng sơn phủ. Một thiết kế đơn giản của một chiếc ghế dài với một lưng cây dương sẽ có giá 3.500 rúp. Giá của một chiếc ghế làm bằng chất liệu tương tự, không trang trí, là 1650 rúp, một chiếc bàn có kích thước trung bình (150x70 cm) là 3000 rúp. Giá của các mô hình đồ nội thất độc quyền đạt 150 nghìn rúp.
Nội thất phòng tắm: một vài mẹo "hot" để lựa chọn
Cơ sở của thiết kế nội thất phòng thư giãn trong bồn tắm chính là đồ nội thất. Trang trí tường, đèn chiếu sáng, rèm cửa sổ bổ sung và làm nổi bật phong cách đã chọn.
Không nhất thiết đồ đạc của tất cả các phòng phải cùng loại, nhưng sự tương phản trong trường hợp này là không phù hợp, vì các phòng có diện tích nhỏ và nằm cạnh nhau. Những bức ảnh đề xuất về thiết kế của một bồn tắm với một phòng thư giãn bên trong đã minh chứng rõ ràng điều này.
Nó là cần thiết để giữ cho đồ nội thất sạch sẽ hoàn hảo. Sự hiện diện của các vệt, vệt và vết trầy xước gây khó chịu. Các phần đính kèm và kết nối nên được xem xét định kỳ để đảm bảo rằng đồ nội thất không đột ngột bị nứt hoặc vỡ.
Nên sử dụng vật liệu tự nhiên để sản xuất đồ nội thất. Khi chọn đèn, bát đĩa, dép đi trong nhà, khăn ăn và các vật dụng khác sử dụng trong phòng tắm, bạn phải cố gắng đảm bảo tính tự nhiên và thân thiện với môi trường. Điều này mang lại sự hài hòa và có tác dụng có lợi đối với nhận thức tâm lý về môi trường, về tâm trạng.
Phòng tắm, được trang bị hợp lý và nội thất trang nhã, là niềm tự hào thực sự của chủ nhân và là nơi tuyệt vời để thư giãn và giao tiếp.