Para muchos, una acogedora casa de campo es un sueño de toda la vida, donde cada hora que se pasa a solas con la naturaleza contribuye a la relajación. Es importante que la carcasa no solo sea hermosa, sino también cómoda y multifuncional. La realización de un sueño comienza con la creación de un proyecto, cuya base son los dibujos de la casa, que contienen un diseño detallado y un esquema de comunicación. Este material te dirá cómo organizar adecuadamente la etapa constructiva.

Antes de la construcción, debe hacer un dibujo de la casa para evitar errores que pueden retrasar el proceso durante mucho tiempo.
Contenido
- 1 Cómo hacer un proyecto: pasos preparatorios para crear un dibujo
- 2 Características de la elaboración de proyectos de casas: dibujos como parte principal de la planificación.
- 3 Estructura del proyecto de la casa: plan de construcción, dibujos y dimensiones.
- 3.1 Lista de dibujos arquitectónicos de casas requeridos con dimensiones
- 3.2 Dibujos seccionales de la casa y la imagen de fachadas de diferentes lados.
- 3.3 Sección constructiva: cómo dibujar dibujos y diagramas de elementos individuales.
- 3.4 Sección de ingeniería: planos de salas y comunicaciones
- 3.5 Sistema de alarma antirrobo en los planos de la casa
- 4 Documentación adjunta para el proyecto y planos de construcción.
- 5 Programas informáticos para diseñar casas: asistentes confiables en la creación de proyectos.
Cómo hacer un proyecto: pasos preparatorios para crear un dibujo
Antes de hacer un dibujo de una casa privada, debe decidir cuál será su propósito directo: si servirá como un lugar de vacaciones suburbano en el verano o como vivienda para que toda la familia viva durante todo el año. También hay que tener en cuenta el número de hogares. En este caso, debe tener en cuenta el estilo de vida de los miembros de la familia, sus gustos, preferencias y pasatiempos.
Si los futuros habitantes de la casa son partidarios de un estilo de vida tranquilo, entonces el edificio debe ubicarse en un área que esté ubicada lejos de la carretera y las áreas vecinas. Lo mejor de todo: en la parte trasera del jardín. Para las personas abiertas y sociables, se puede construir una casa al comienzo del sitio, exponiendo la fachada de la cabaña y el hermoso paisaje frente a ella. En términos técnicos, los datos geodésicos obtenidos a través del estudio del territorio son especialmente importantes. Indicarán características de la superficie, composición del suelo y pendientes, lo que le permitirá crear un plano del área.
Para simplificar el diseño de la casa, el proceso se divide convencionalmente en etapas, que luego se muestran en las siguientes secciones del proyecto de la casa terminada:
- incompleto;
- arquitectónico;
- constructivo;
- ingeniería y técnica;
- diseño o decoración.
Una vez que haya decidido la ubicación y el propósito de la futura casa, puede comenzar a diseñar la casa. Para ello, realice bocetos iniciales.Si tienen habilidades artísticas básicas, los propietarios podrán hacerlo por su cuenta, incluso sin un programa informático especial para construir una casa. Sobre la base de los bocetos, se elabora el boceto principal. De acuerdo con él, todos los demás dibujos detallados se preparan y determinan con el diseño del futuro edificio.
Que considerar al dibujar un diagrama de casa
Ya en la etapa de elaboración de un boceto, debe determinar claramente el número de pisos, el tipo de techo, la apariencia de la fachada y las partes frontales de la casa, hasta el número de ventanas, balcones, la presencia de una terraza o ático. El proyecto de diseño también incluye bocetos de una vista del edificio en secciones longitudinales y transversales, que indican las características de diseño y los materiales a partir de los cuales se supone que se erigirá la casa.
¡Consejo útil! Los diseñadores experimentados desaconsejan hacer que los dormitorios sean muy espaciosos, ya que los espacios grandes pueden crear una sensación de ansiedad en sus ocupantes. Por lo tanto, los dormitorios deben ser compactos y cómodos.
Antes de dibujar un plano de la casa, debe determinar la ubicación del sitio y estudiar la orientación relativa a los puntos cardinales. Con base en estos datos, se determina la ubicación de las habitaciones. Su número depende de cuántas personas vivirán en el edificio y de la frecuencia con la que vendrán invitados durante mucho tiempo. La ubicación del local y la finalidad funcional de cada uno de ellos también es un elemento importante.
A continuación, debe determinar qué habitaciones específicas se asignarán a los miembros de la familia y cuáles, a los huéspedes y empleados, si se supone que se formará cierto personal. No se olvide del diseño de las instalaciones en las que se reunirá toda la familia: un comedor, un vestíbulo o una sala de estar.
Es importante tener en cuenta las preferencias y pasatiempos de los habitantes de la casa para descubrir la necesidad de incluir en el diseño de un gimnasio, piscina o sauna, invernadero o invernadero, una biblioteca con oficina o un taller espacioso.

Al elaborar un borrador de diseño de una casa, debe tener en cuenta todos los deseos de los futuros residentes.
Características de la elaboración de proyectos de casas: dibujos como parte principal de la planificación.
Una vez decidido el diseño de la casa, debe imaginar mentalmente la vida de la familia en el edificio, pensar en todos los elementos para no perderse nada. Por lo tanto, no debe apresurarse a crear el diseño final de la casa. Los dibujos y planos terminados de la casa deben ser lo más perfectos posible para que el resultado final satisfaga a todos los miembros del hogar, y la vivienda construida durará el número máximo de años sin reconstrucciones ni modificaciones. La versión final del boceto debe discutirse en el consejo de familia, teniendo en cuenta todos los detalles, hasta el más mínimo detalle.
En primer lugar, el número deseado de pisos se indica en el diagrama de la casa. Puede ser una casa espaciosa de un piso, una cabaña compacta de dos pisos o una lujosa mansión de dos pisos con un ático. El diseño interno que se muestra en los dibujos de los edificios debe incluir las siguientes zonas:
- salas;
- cuartos de servicio;
- áreas comunes;
- dependencias adicionales.
Una casa de un piso se delimita en zonas mediante tabiques, además de colocar locales del mismo tipo de funcionalidad en un ala. En las cabañas de dos pisos, los dormitorios, las habitaciones de invitados y los cuartos de los niños se encuentran tradicionalmente en el segundo piso, y en el primer piso hay instalaciones de servicios públicos y oficinas para uso común.
Estructura del proyecto de la casa: plan de construcción, dibujos y dimensiones.
Antes de hacer un proyecto usted mismo en casa, debe tener una idea clara de qué tipo de documento es y en qué secciones consta. En primer lugar, es el asistente y guía principal durante la fase de construcción, lo que ayudará a crear una casa de acuerdo con todas las reglas, la hará confiable, cómoda y funcional, y lo más importante, segura para vivir.
¡Importante! Construir una casa sin proyecto es un gran riesgo. Sin información completa sobre la futura casa, es imposible controlar todos los costos, calcular la cantidad requerida de materiales y el tamaño de las instalaciones. La construcción caótica puede tener consecuencias nefastas en forma de hundimiento de los cimientos, escaleras incómodas y habitaciones pequeñas.
En segundo lugar, un proyecto es un documento que proporciona control sobre la calidad de la construcción y el consumo de materiales. En ausencia de documentación presupuestaria, no solo la calidad será baja, sino que la construcción en sí no será líquida. Es simplemente imposible diseñar una casa como un inmueble.
El proyecto de la casa consta de dos partes principales:
- arquitectónico y constructivo, que incluye planos arquitectónicos de las fachadas y esquemas constructivos detallados con dimensiones y materiales;
- ingeniería y diseño, por regla general, que consta de dibujos de un sistema de suministro de agua, alcantarillado, sistemas eléctricos, de calefacción y ventilación.
La versión clásica del proyecto con dibujos de una casa de dos pisos incluye las siguientes secciones:
- arquitectónico, detallado por piso;
- constructivo con una distribución detallada de la casa;
- plan de instalación de cableado;
- esquema de plomería y alcantarillado;
- plan de instalación del sistema de calefacción y ventilación;
- proyecto de instalación de gas;
- pasaporte del proyecto y nota explicativa.

Las partes principales del proyecto de la casa son arquitectura y construcción e ingeniería y diseño.
¡Consejo útil! Los dibujos se pueden hacer a mano o puede utilizar programas informáticos especiales para el diseño del hogar en línea.
Lista de dibujos arquitectónicos de casas requeridos con dimensiones
Los dibujos arquitectónicos y de construcción implican una indicación de las dimensiones exactas, contienen características de los parámetros generales de la casa, estructuras individuales, estructuras y sus partes. Incluye planos detallados para cada uno de los pisos, previendo la ubicación de salas de estar y cuartos de servicio. Se indica el área de todos los elementos, la altura de los techos, la ubicación de las aberturas para ventanas y puertas.
Por ejemplo, los dibujos de una casa de dos pisos con un ático en la sección arquitectónica y de construcción están organizados en el siguiente orden:
- plan de sótano;
- Mapa de la planta baja;
- plano del segundo piso;
- plano del ático.
También en esta sección debe colocarse un plano de la estructura de la armadura del techo. Para dibujar un dibujo, es necesario representar el sistema completo de elementos estructurales de la estructura del piso en sección. La tabla que se adjunta al dibujo indica la especificación de las partes de la estructura de la armadura del techo, una lista completa de la gama de materiales y su cantidad. El plano del techo se elabora por separado, indica la forma, las dimensiones, la inclinación del techo y los ángulos de inclinación, así como la ubicación de las salidas de ventilación, ventanas abuhardilladas, trampillas, ventanas del ático.

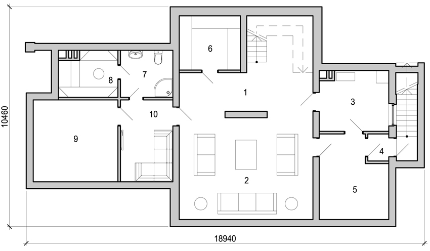
Planta sótano, donde 1 - hall, 2 - sala de recreación, 3 - sala de calefacción y lavandería, 4 - vestíbulo, 5 - trastero, 6 - trastero, 7 - baño, 8 - sauna, 9 - gimnasio, 10 - terraza
Los dibujos de casas privadas incluyen sin falta varias secciones que muestran todos los elementos de la estructura a lo largo o ancho. Se realizan secuencialmente desde el techo hasta los cimientos. Así, la sección muestra las dimensiones y ubicación del piso, todos los pisos y el techo. Debería haber cinco cortes similares hechos de diferentes lados.
Dibujos seccionales de la casa y la imagen de fachadas de diferentes lados.
Es imposible dibujar un proyecto de casa sin la imagen de todas las fachadas, que demuestran claramente el estado externo de la entrada frontal, vista trasera y lateral. Por lo tanto, debe haber cuatro hojas donde sea necesario dibujar dibujos que representen:
- fachada frontal;
- fachada lateral No. 1 (lado derecho);
- fachada lateral No. 2 (lado izquierdo);
- frente a la parte trasera de la casa.
El dibujo de la fachada de la casa muestra los bocetos iniciales y el plano del edificio.Se puede crear fácilmente utilizando programas informáticos especiales, por lo tanto, antes de dibujar un proyecto de casa, debe pensar cuidadosamente en todo, consultar con especialistas de diferentes perfiles en construcción y acordar todos los detalles con los miembros de la familia. La versión final debería gustar a todos los miembros del hogar.
Después de los dibujos de las fachadas, una lista separada en la tabla indica la especificación de los elementos de la carpintería: puertas y ventanas, y se tiene en cuenta el método de apertura. Para cada producto, se indican formas claras, parámetros, se determina la presencia y cantidad de vasos. Una casa de dos pisos puede tener hasta tres docenas de nombres de tales productos.
¡Consejo útil! Puede crear un proyecto para una pequeña casa de dos pisos por analogía con los dibujos de apartamentos. El primer piso se basa en el plano de un apartamento de dos habitaciones, y el segundo piso incluye un dormitorio, dos habitaciones y un baño adicional.
Sección constructiva: cómo dibujar dibujos y diagramas de elementos individuales.
La sección constructiva es una parte ya detallada del proyecto, que contiene datos generales e individuales, varios diseños de elementos de construcción: cimientos, escaleras, pisos, estructuras de celosía. También se incluyen en esta parte dibujos detallados de todas las unidades, que indican las características específicas de los productos y materiales.
El dibujo de la sección transversal de los cimientos descifra las dimensiones de las fortificaciones en tiras de la casa, la profundidad de su ocurrencia y los materiales que son necesarios para su construcción. La imagen de la base se presenta en forma de planos-dibujos:
- plan de cimentación general;
- diagramas de sección longitudinal;
- dibujo de secciones transversales.
Ciertos tipos de dibujos proporcionan una sección losas de piso, sus secciones longitudinales y transversales a diferentes alturas:
- plano de planta en el punto +0,00;
- alrededor de + 3,00;
- a una altitud de +6,00.
Los nodos de partes estructurales son objetos de una estructura especial, incluidas escaleras y tramos, tanto en el exterior como en el interior del local. Aquí están los cálculos exactos de resistencia y estática. En esta sección del proyecto, en tablas separadas, se recogen las características y secuencia de uso de los materiales, en particular:
- refuerzo de acero;
- elementos de hormigón armado;
- vigas de madera.
Sección de ingeniería: planos de salas y comunicaciones
La sección de ingeniería contiene diagramas y dibujos de sistemas de suministro eléctrico, suministro de agua, alcantarillado, ventilación y calefacción. Las tablas de decodificación incluyen datos de especificaciones del equipo y cálculos generales. Estos son componentes separados del edificio ubicado dentro de la futura casa.
La sección de plomería contiene un plano para la ubicación de los servicios públicos en el sótano y en cada piso. El diagrama del sistema de alcantarillado se realiza de manera similar. A veces, estos dos planos se muestran en un dibujo. También hay un diagrama axonométrico de la instalación de suministro de agua fría y caliente.

Los dibujos de suministro eléctrico, sistemas de suministro de agua, sistemas de alcantarillado, ventilación y calefacción se realizan en la etapa de ingeniería.
En la sección de instalación de calefacción, se presentan dibujos del piso, comenzando desde el sótano, y un esquema general de calefacción para toda la casa. Los equipos de gas y los sistemas de suministro de energía se muestran en dibujos separados con diseños individuales de instalaciones eléctricas y de gas.
Para evitar un peligro atronador, es necesario incluir la instalación de un dispositivo de protección contra rayos en el modelado de las casas, ya que la falta de dicha protección no solo puede conducir a la destrucción, sino que también representa una amenaza para la vida y la salud de los habitantes de la casa. El pararrayos se instala de acuerdo con un esquema separado con la participación de especialistas calificados.
Artículo relacionado:
Proyectos de casas modernas: sencillez en armonía con la funcionalidad.
Características técnicas de la casa de campo en estilo moderno. Cuál es mejor: proyectos terminados estándar o diseño individual. Etapas de la creación.
Sistema de alarma antirrobo en los planos de la casa
Antes de diseñar una casa usted mismo, debe considerar la necesidad de instalar sistemas adicionales, por ejemplo, una alarma antirrobo. Su diseño es el desarrollo de un plan separado que prevé la estructura de una red de dispositivos de ingeniería. El objetivo principal es brindar diferentes grados de protección a las obras. La elaboración de planos de un sistema de seguridad para una casa es un proceso individual, ya que prevé el funcionamiento de una alarma en condiciones específicas.
Al crear un proyecto de este tipo, se deben considerar una serie de reglas y regulaciones. En particular, al elaborar dibujos, debe actuar de acuerdo con las normas de SNiP y otros documentos de naturaleza técnica. Factores clave a considerar:
- el propósito de las instalaciones, según el cual se selecciona el equipo de cierta complejidad;
- el área del objeto que está sujeto a protección, así como las características de su arquitectura y diseño;
- definición del tipo de alarma, que puede ser cableada e inalámbrica.

Disposición de los sensores de seguridad, donde el sensor de apertura está marcado en amarillo, el sensor de movimiento es rojo, la rotura del vidrio es verde, el lector es azul, la sirena es azul y la zona de detección de movimiento es rosa
El plan del proyecto de alarma está sujeto a aprobación obligatoria en las organizaciones relevantes, y solo después de que se elaboran los dibujos detallados del sistema de seguridad de la casa.
Documentación adjunta para el proyecto y planos de construcción.
Un proyecto de construcción no es solo un conjunto de bocetos, dibujos y tablas, contiene información detallada sobre cada una de las etapas de construcción y sobre áreas de trabajo individuales. Esto hace posible terminar con una compleja construcción de capital.
¡Consejo útil! Es de fundamental importancia ubicar la habitación de los niños al lado de la habitación de los padres, para que ante la menor necesidad del niño, los padres estén ahí. Si en el momento de la construcción los niños aún no están en la familia o aún son pequeños, debe pensar de antemano en la presencia de una sala o zona de juegos especial. Si el espacio lo permite, se pueden asignar varias salas para juegos infantiles a la vez.
Cada proyecto, además de los dibujos ya enumerados, incluye sin falta los siguientes documentos:
- características arquitectónicas y estructurales;
- descripción de la funcionalidad del edificio;
- datos técnicos y económicos, como área, capacidad cúbica, altura;
- descripción de soluciones de ingeniería;
- tipos, lista y cantidad de materiales de construcción y acabado.

Guiado por el proyecto, puede organizar el proceso de construcción, establecer la secuencia de obras y determinar los costos financieros
El pasaporte arquitectónico contiene una copia de la licencia de diseñador, una nota explicativa, colores de fachada, planos de planta, secciones axiales y un plano del techo.
Programas informáticos para diseñar casas: asistentes confiables en la creación de proyectos.
La tecnología informática moderna le permite visualizar rápidamente todos los deseos y representar la casa de sus sueños. Además, gracias a programas especiales, puede realizar de forma independiente el diseño 3D de la casa. Incluso los usuarios sin experiencia pueden hacer esto usando, por ejemplo, Google SketchUp. En este servicio, puede diseñar cuartos residenciales y de servicios públicos.
Con la ayuda de la planificación de viviendas en línea directamente en el navegador, puede crear modelos de edificios con una indicación de las dimensiones exactas e incluso la textura de los materiales. Los programas sin conexión implican descargarlos e instalarlos en una PC, por lo que la computadora debe tener suficiente RAM.
El constructor de casas le permite diseñar una casa de campo de lujo virtual o una pequeña casa de campo utilizando muestras y detalles individuales.Dichos programas permiten no solo diseñar diferentes modelos, sino también hacer una lista de materiales y piezas requeridas para la compra, e incluso calcular el costo aproximado del proyecto.
Los productos electrónicos populares incluyen AutoCAD y KOMPAS-3D. Estos son programas universales que se pueden utilizar para crear proyectos para casas e interiores. Su principal desventaja es su elevado precio. Más económico, pero menos funcional, Ashampoo Home Designer es la elección perfecta para aquellos que son nuevos en el diseño.
Los dibujos de casas particulares son el elemento principal en un proyecto de construcción. No solo la confiabilidad de la estructura en sí depende de su correcta implementación, sino también la duración del servicio de comunicaciones y sistemas de apoyo a la vivienda, lo que la hace duradera, cómoda y acogedora para una familia. Por lo tanto, se debe abordar el tema de la creación de dibujos con el mayor cuidado y responsabilidad.