Si prefieres los materiales de construcción naturales, presta atención a las vigas de madera: la mejor solución para un hogar en términos de seguridad ambiental. El artículo se centrará en los tipos de madera existentes, las ventajas y desventajas de cada uno de ellos. Podrá estimar los costos de construcción con este o aquel material y tomar una decisión informada, averiguar el costo de varios tipos de madera y los precios de los materiales de aislamiento.
Contenido
- 1 Especificidad de proyectos de casas de un piso desde un bar y precios de construcción.
- 1.1 Vigas de madera: la mejor solución para tu hogar
- 1.2 ¿Por qué es más rentable comprar una casa con una barra perfilada que una casa de madera?
- 1.3 Calentar una casa desde un bar: cuánto cuesta construir una cabaña, teniendo en cuenta el costo del aislamiento
- 1.4 Desventajas de construir casas a base de madera.
- 2 Proyectos comunes de casas desde un bar: precios y fotos.
- 2.1 Características, fotos y dibujos gratuitos de proyectos de casas desde un bar.
- 2.2 Ventajas y desventajas de las casas de un bar, cuánto cuesta un edificio terminado llave en mano
- 2.3 Casas de campo de madera perfilada: proyectos y precios para la compra de material.
- 2.4 Beneficios de las estructuras de madera perfilada y los precios de la construcción
- 2.5 Desventajas de la construcción basada en material perfilado.
- 2.6 Construcción de casas a partir de madera de chapa laminada: proyectos y precios para la compra de espacios en blanco.
- 2.7 Casas de madera laminada encolada llave en mano: costo de construcción y defectos de material
Especificidad de proyectos de casas de un piso desde un bar y precios de construcción.
Los expertos recomiendan pensar antes de construir una casa de troncos llave en mano cuánto cuesta esa construcción con todos los costos de materiales y el pago por los servicios de los trabajadores. Quizás la compra de una estructura prefabricada en algunas circunstancias será menos problemática y costosa.
¡Consejo útil! Para llegar a algún tipo de decisión informada, primero debe decidir el tipo de edificio, seleccionar el material y comparar los precios.
Vigas de madera: la mejor solución para el hogar
Las ventajas de esta tecnología constructiva son suficientes para que cada año se encuentren más adeptos.
Ventajas de las cabañas de madera:
- respeto al medio ambiente y limpieza;
- alto rendimiento de aislamiento térmico;
- sistema de construcción simple;
- asequibilidad.
La mayoría de los desarrolladores se sienten atraídos por las propiedades de rendimiento de la madera, a partir de la cual se fabrican los cortes de madera.
El mercado de la construcción ofrece varias variedades de madera:
- perfilado
- afilado
- pegado;
- doble.
Cada uno de los tipos de material enumerados va acompañado de sus propias ventajas y desventajas. Por ejemplo, una madera ordinaria llamada madera con bordes le permite construir casas de madera llave en mano al mayor costo presupuestario.Sin embargo, la construcción que utiliza este material requiere contracción durante al menos un año. Además, la madera común es propensa a agrietarse.
El tipo de material adhesivo es más resistente a los cambios de deformación, sin embargo, el costo de tal construcción es mucho mayor. La principal ventaja de los productos perfilados es el tratamiento con impregnaciones especiales que reducen la inflamabilidad.
El uso de madera perfilada abre amplias posibilidades de diseño. El material es fácil de manipular y se puede utilizar para construir edificios de formas inusuales.
¿Por qué es más rentable comprar una casa con una barra perfilada que una casa de madera?
Debido a que la conexión entre los elementos perfilados se realiza mediante cerraduras y un sistema de ranuras, se asegura un ajuste perfecto y, como resultado, aumenta la capacidad de retención de calor. En términos de apariencia, este material es muy estético.
¡Consejo útil! Teniendo en cuenta la alta decoratividad del material, las paredes del edificio se pueden dejar en su forma original, abandonando el uso de la decoración. Sin embargo, se requerirá un mantenimiento regular de la madera. Para ello, será necesario impregnar el material de vez en cuando con agentes protectores especiales que eviten el ennegrecimiento y la pudrición.
Los edificios de estructura en el tema del aislamiento acústico son significativamente inferiores a las casas de troncos. La madera natural tiene excelentes propiedades de absorción acústica. Si se planea construir un edificio sobre la base de una barra para uso durante todo el año, se debe realizar un aislamiento adicional. En este caso, el grosor de la capa de material aislante térmico será significativamente menor que el indicador requerido para la construcción del marco.
Los costos más mínimos para materiales de aislamiento Irá acompañado de construcción sobre la base de una barra de 200x200 mm. Entonces, el costo de una casa de un piso a 6x6 m será de aproximadamente 300 mil rublos.
Artículo relacionado:
Proyectos de casas desde un bar para residencia permanente: construimos viviendas cómodas. Tipos de madera. Proyectos de casas de madera de chapa laminada. Casa finlandesa, cabaña con garaje. Proyectos de casas de madera perfilada.
Calentar una casa desde un bar: cuánto cuesta construir una cabaña, teniendo en cuenta el costo del aislamiento
El material de aislamiento debe crear un cierto efecto para realizar su función al nivel adecuado. Las condiciones climáticas óptimas para la vida se crean en los casos en que la temperatura interior no disminuye bajo la influencia de cambios en el entorno externo. Sin embargo, en este caso, debe excluirse por completo la posibilidad de que aparezcan factores que contribuyan al deterioro de la madera.
En las casas de troncos, el aislamiento se realiza en casi todas partes:
- Fundación;
- paredes
- aberturas de ventanas;
- puertas;
- suelo;
- techo.
Precios medios de los calentadores:
Tipo de aislamiento | Nombre del material | unidad de medida | Costo, frote. |
Mezhventsovy | Lana de oveja | corriendo. metro | 34 |
Lino | metro | 6 | |
Yute | 8 | ||
Linaza | 4 | ||
Espuma de poliuretano | Rociado | m² | 600 |
Penoplex | Extrol | m³ | 4500-5500 |
Tecnoplejo | 4000-5000 | ||
Kinplast | 3400-4800 | ||
Teploizoplit | 4000-4500 | ||
Espuma de poliestireno | Espuma de poliestireno | 1700-3700 | |
Lana mineral | Izovol | 2000-8500 | |
lana mineral de roca | 1800-2500 | ||
Isoroc | 1900-7600 | ||
Izobel | 1700-2000 |
La tabla muestra los precios medios para la compra de aislamiento. Si realiza el procedimiento usted mismo, puede lograr ahorros significativos.
¡Nota! La lana mineral es un aislamiento certificado. Sin embargo, según los expertos, no es adecuado para casas de troncos y se considera peligroso para la salud, especialmente con una instalación incorrecta.
Desventajas de construir casas a base de madera.
En comparación con la tecnología de construcción de marcos, las casas de un bar tienen algunas ventajas, pero aquí hay algunas desventajas:
- los edificios requieren tiempo para encogerse (al menos un año);
- alta probabilidad de grietas superficiales;

La casa de madera mantiene de forma independiente la humedad óptima, el equilibrio de oxígeno y distribuye el calor
- los efectos negativos de la humedad pueden dañar el edificio;
- existe la necesidad de un sellado cuidadoso de las grietas;
- alto nivel de riesgo de incendio.
Por sí solo, el período de contracción para muchos propietarios no presenta ningún inconveniente particular, ya que dicho esquema permite dividir los costos en varias partes. Esto es muy beneficioso en la mayoría de situaciones. La actitud negativa hacia las casas desde una barra apareció debido a grietas y cambios de deformación que se producen durante el proceso de secado.
Los desarrolladores modernos a menudo recurren al ahorro, utilizando materiales con un nivel de secado insuficiente para el trabajo. En algunos casos, las grietas causan daños importantes en el frente de la casa. Tenemos que realizar trabajos de rejuntado y acabado del edificio desde el exterior.
Se cree que las casas basadas en madera son más ecológicas que las casas de madera. Sin embargo, la construcción de casas llave en mano económicas a partir de madera laminada encolada no puede considerarse completamente segura. El material encolado se obtiene mediante secado artificial. La madera está cubierta con impregnaciones especiales, por lo que se pierden sus propiedades naturales.
¡Consejo útil! Debido al alto riesgo de incendio, el tendido de alambres y cables debe realizarse con cuidado. Usa una flauta especial. Se recomienda que sea de metal, ya que las paredes de los edificios de madera tienen mayores propiedades de inflamabilidad.
Proyectos comunes de casas desde un bar: precios y fotos.
El trabajo en la construcción de casas de madera se lleva a cabo utilizando madera como material de construcción. Las opiniones difieren en cuanto a qué opción de materia prima es mejor y los expertos no pueden llegar a una decisión inequívoca. Lo único que se puede hacer es analizar las características de cada uno de los materiales, resaltar las ventajas e inconvenientes y, en base a la información recibida, llegar a una determinada conclusión.
Para la construcción de cabañas, se utilizan los siguientes tipos de madera:
- usual;
- perfilado
- pegado.
Características, fotos y dibujos gratuitos de proyectos de casas desde un bar.
El trabajo de construcción con madera convencional le permite lograr un enfoque individual para el diseño del proyecto. En este caso, no se requiere un ajuste preliminar de los elementos de madera; se pueden utilizar materiales de varios tipos y características externas para la decoración de interiores.
Muchas empresas venden madera ordinaria para la construcción de casas, ya que se considera el material más simple de todas las variedades. Esta materia prima es la más respetuosa con el medio ambiente, ya que el mínimo esfuerzo lo realizan los seres humanos en el proceso de obtención.

Una de las ventajas de las casas de madera es la ausencia de la necesidad de decoración de interiores.
Las características externas de la madera no planificada son bastante modestas e impresentables en comparación con el material encolado o perfilado. Es imperativo que cuando trabaje con él, deberá realizar el acabado y algunos procedimientos preparatorios. Sin embargo, comprar una madera ordinaria tiene sus propias ventajas, ya que el precio del material sin cepillar es más democrático que el de otros tipos de madera.
¡Nota! La siguiente tabla muestra los precios promedio para la compra de madera. Estos valores pueden fluctuar según la región y la empresa que vende los materiales de construcción. En las ciudades donde se desarrolla la industria de la madera, el costo de la madera es mucho menor que donde no se desarrolla esta industria.
Precios para la compra de madera:
Parámetros dimensionales de la pieza de trabajo, cm. | El volumen de materias primas en una pieza, m³ | Número de espacios en blanco, pcs / m³ | Costo, frotar / m³ |
10x10 | 0,06 | 16,6 | 6000 |
10x10 | 0,09 | 11,1 | 6000 |
10x20 | 0,12 | 8,5 | 6000 |
15x15 | 0,135 | 7,4 | 6100 |
15x20 | 0,18 | 5,5 | 6100 |
20x20 | 0,24 | 4,16 | 6100 |
Ventajas y desventajas de las casas de un bar, cuánto cuesta un edificio terminado llave en mano
La mayoría de la gente prefiere comprar una casa de troncos llave en mano barata, ya que tales edificios tienen muchas ventajas:
- Precio asequible: dado que la producción de madera va acompañada del uso mínimo de equipos y tecnologías de procesamiento, el costo del material sigue siendo el más bajo en comparación con otras opciones para la madera.
- Amplia variedad: el material tiene varios parámetros dimensionales y también se presenta en casi todas partes, lo que elimina los problemas con la compra.
- Sistema de construcción de muros simple: la construcción no solo se simplifica tanto como sea posible, sino que también se reduce en el tiempo.
¡Consejo útil! Puede comprar una casa confeccionada en un bar sobre la base de proyectos cuidadosamente diseñados en cualquier empresa que brinde un servicio de construcción de casas llave en mano. Muy a menudo, estas empresas pueden ofrecer una amplia selección de proyectos listos para usar.
Precios para casas de troncos de dos pisos:
Parámetros dimensionales, m | Superficie de la casa, m2 | precio, frotar. |
6x6 | 51,7 | 455400 |
6x9 | 72,4 | 753250 |
7x7 | 70,5 | 745750 |
7x8 | 77,5 | 802075 |
7x9 | 88,1 | 1175500 |
7.3x10 | 93,6 | 1250000 |
8x8 | 92,7 | 1200750 |
9x10 | 106 | 1433000 |
10x12 | 148,7 | 1834250 |
11x12 | 157,2 | 1842050 |
Las desventajas de una barra convencional también están disponibles:
- se producen grietas y cambios de deformación en el proceso de contracción y secado del material;
- la ejecución del revestimiento exterior es obligatoria;
- en el proceso de cambios de deformación durante la contracción, las paredes están sujetas a distorsión, se pueden formar espacios entre los elementos;
- Se requiere tratamiento con agentes antisépticos, de lo contrario la madera se volverá azul.
Casas de campo de madera perfilada: proyectos y precios para la compra de material.
La madera perfilada es un material de construcción natural y de alta tecnología. Los árboles coníferos sirven como materia prima para su fabricación. Después de recibir los espacios en blanco, se prestan a un procesamiento especial: fresado. Como resultado de esta manipulación, se obtiene una determinada forma de los productos.

Un proyecto interesante de un gran piso casas de madera con buhardilla
La mayoría de las veces, las partes que sobresalen están ubicadas en el exterior de los espacios en blanco y planas en el interior, mirando hacia la casa. Sin embargo, algunos fabricantes producen productos planos en ambos lados o, por el contrario, convexos.
Precios para la compra de madera perfilada:
Tamaño de la sección, cm | Dimensiones totales de la pieza de trabajo, cm | El volumen de materias primas en una pieza, m³ | Número de espacios en blanco, pcs / m³ | Costo, frotar / m³ |
10x15 | 9,2 x 14,2 | 0,09 | 11,1 | 7300 |
15x15 | 14,2 x 14,2 | 0,135 | 7,4 | 7300 |
15x20 | 14,2 x 19,2 | 0,18 | 5,5 | 7300 |
10x20 | 9,2 x 19,2 | 0,12 | 8,4 | 7300 |
20x20 | 19,2x19,2 | 0,24 | 4,16 | 7300 |
Cortar cuencos sobre material | ||||
10x15 | 9,2 x 14,2 | 0,09 | 11,1 | 9300 |
15x15 | 14,2 x 14,2 | 0,135 | 7,4 | 9300 |
15x20 | 14,2 x 19,2 | 0,18 | 5,5 | 9300 |
10x20 | 9,2 x 19,2 | 0,12 | 8,3 | 9300 |
20x20 | 19,2x19,2 | 0,24 | 4,16 | 9300 |
La madera perfilada es una madera maciza que se ha sometido a un procesamiento exterior de alta calidad. Debido al hecho de que la estructura natural del material no se altera, las estructuras de madera pueden "respirar".
¡Nota! La madera perfilada es un material 100% natural. No contiene sustancias de origen químico o sintético.
Beneficios de las estructuras de madera perfilada y los precios de la construcción
Dado que la estructura natural de la madera no se altera durante la producción de los espacios en blanco, se conservan todas las propiedades naturales del material.

Proyecto de una casa compacta de un piso hecha de madera: 1 - terraza, 2 - vestíbulo, 3 - recibidor, 4 - sala, 5 - cocina, 6 - dormitorio, 7 - baño, 8 - infantil
Como resultado, obtenemos muchas ventajas de la construcción de casas de troncos:
- intercambio de aire normal, nivel de humedad natural y condiciones climáticas óptimas dentro del local;
- atractiva fachada de la casa incluso sin acabados adicionales;
- alto nivel de aislamiento térmico;
- falta de borradores;
- la presencia de ranuras le permite colocar las piezas de trabajo lo más apretadas posible, gracias a lo cual la humedad no puede ingresar a los huecos y causar focos de descomposición allí;
- a pesar del alto costo en comparación con la madera ordinaria, el material del perfil es mucho más barato que el encolado;
- calidez de los locales en invierno;
- el porcentaje total de contracción es: alerce - 4.5%, pino y cedro - solo 3.5%;
- no es necesario calafatear las juntas;
- para el aislamiento, basta con colocar yute en ranuras;
- Esquema de construcción de edificios simple y rápido.
Precios para la construcción de casas con un ático de madera perfilada:
Parámetros dimensionales, m | Superficie de la casa, m2 | precio, frotar. |
6x6 | 50,4 | 505200 |
6x9 | 75,6 | 760250 |
7x7 | 68,6 | 743350 |
7x8 | 78,4 | 790100 |
7x9 | 88,2 | 870300 |
8x9 | 100,8 | 999350 |
8.5x9 | 76,5 | 1005350 |
8x14 | 107,1 | 1263850 |
9x9,8 | 123,2 | 1154200 |
Desventajas de la construcción basada en material perfilado.
A pesar de todos los beneficios que promete la construcción de una casa sobre la base de una barra, el material perfilado también tiene desventajas:
- el acabado se puede realizar solo después de que la madera haya alcanzado el indicador requerido de su humedad relativa;
- después del secado pueden aparecer grietas, este momento depende de la época del año;
- La construcción de un edificio a bajas temperaturas va acompañada de grietas mínimas, que serán pequeñas. El calor, por el contrario, provoca la aparición de grandes daños en el material;
- en una barra cuadrada, aparecen grietas desde diferentes lados.
¡Nota! El número de grietas también puede verse afectado por el tamaño de la sección de material. Las palanquillas tienen una tensión interna que surge bajo la influencia de una contracción desigual, debido a esto, el material se cubre con grietas en aquellos lugares donde la sección tiene un área grande.
Construcción de casas a partir de madera de chapa laminada: proyectos y precios para la compra de espacios en blanco.
La madera laminada encolada es un material que consta de tablas encoladas. La tecnología para crear tales espacios en blanco es bastante costosa, tanto en términos de dinero como de tiempo. Por lo tanto, el costo casas hechas de madera de chapa laminada suficientemente alto.
Ventajas materiales:
- debido a las excelentes características decorativas del edificio, no necesitan acabados adicionales;
- durante el funcionamiento, la madera no sufre cambios de deformación, como encogimiento, pérdida de forma, torsión o agrietamiento;
- las piezas de trabajo no tienen tensión interna, como la madera maciza;
- la madera no se dobla y no se encoge;
- tiene una estructura densa y alta resistencia (estos valores superan los de una barra sólida en un 50-70%);
- Se excluyen los cambios de deformación bajo la influencia de la humedad, ya que las tablas se apilan una encima de la otra durante el proceso de encolado de modo que la dirección de las vetas de la madera sea perpendicular;
- sistema de instalación rápida;
- invulnerabilidad a microorganismos e insectos;
- durabilidad y resistencia al fuego.
Precios por la compra de material encolado:
Tamaño de la sección, cm | Costo, frotar / m. |
8x8 | 300 |
10x10 | 380 |
15x15 | 750 |
20x20 | 1110 |
10x15 | 570 |
15x20 | 970 |
20x25 | 1400 |
10x20 | 700 |
Casas de madera laminada encolada llave en mano: costo de construcción y defectos de material
El material no tiene muchos inconvenientes, pero aún los tiene. En primer lugar, es un precio elevado, que supera tres veces el coste de una barra maciza. En segundo lugar, la madera laminada encolada es menos ecológica que la convencional y el perfil.
¡Nota! La presencia de un adhesivo en las piezas de trabajo reduce la transpirabilidad del material.
Precios para la construcción de casas de dos pisos hechas de material encolado:
Parámetros dimensionales, m | Superficie de la casa, m2 | precio, frotar. |
9,4 x 9,1 | 128,3 | 2938800 |
9,4 x 11,2 | 157,92 | 5009750 |
10,2 x 7,9 | 80,5 | 2843675 |
11,4 x 8,8 | 120,7 | 4954350 |
11,4 x 15,9 | 271,5 | 6103200 |
11,7 x 14,9 | 261 | 5706200 |
14,5 x 13 | 282,7 | 6159800 |
Características de una barra doble: diseños de casas, precio de construcción.
Como material de construcción, la madera doble puede proporcionar varios beneficios:
- ausencia casi completa de contracción;
- peso ligero, que simplifica no solo el transporte, sino también la construcción;
- ausencia de grietas y deformaciones;

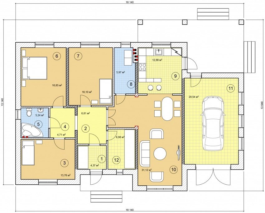
Proyecto de un piso casas con garaje y una distribución conveniente: 1 - vestíbulo, 2 - hall de entrada, 3 - dormitorios, 4 - recibidores, 5 - baños, 6 - dormitorios, 7 - dormitorios, 8 - lavandería, 9 - cocina, 10 - sala-comedor, 11 - garaje, 12 - guardarropa
- si se planea construir un baño, no es necesario instalar un material de barrera de vapor;
- sin necesidad de pasadores ni sellos entre cables;
- alta capacidad para mantenerse caliente.
Precios para la construcción de casas con ático de doble barra:
Parámetros dimensionales, m | Área de la casa, m2 | precio, frotar. |
6x8 | 62,4 | 4831500 |
7x7 | 63,7 | 5599000 |
8,4 x 13,7 | 149,5 | 6788000 |
8,4 x 17,8 | 194,3 | 7504000 |
8.5x8.5 | 93,6 | 6204500 |
9,3 x 6,5 | 78 | 6009600 |
11,6 x 7,7 | 115,7 | 6454500 |
La madera doble le permite completar la construcción de una casa en 1-2 meses. Las paredes obtenidas como resultado de dicha construcción no necesitan acabados adicionales, ya que las características externas de la casa son las mismas que en el caso de utilizar material encolado.
Como aislamiento interno, que se rellena entre los elementos de una doble barra, se utiliza:
- lana ecológica;
- lana mineral;
- serrín;
- celulosa a granel.
Teniendo en cuenta las desventajas y ventajas de cada uno de los materiales, así como los precios de compra y construcción, podemos concluir: las propiedades beneficiosas de los materiales inciden directamente en su coste y en el precio final de la edificación.
La madera simple es el material más simple y asequible. La construcción sobre la base de una viga doble se considera la más cara y de alta calidad. Las opciones de material perfilado y encolado en esta cadena ocupan una posición media, tanto en términos de durabilidad y calidad, como en términos de precios.