Muy a menudo, al organizar el patio de una casa o jardín privado, columpio... Estas estructuras están hechas de madera, neumáticos de automóvil y otros materiales disponibles. Pero para lograr un resultado realmente de alta calidad, use dibujos y fotos de un columpio de jardín hecho de metal con sus propias manos: las dimensiones y las características de rendimiento de estos productos le permiten usarlos durante mucho tiempo.
Contenido
- 1 Clasificación de columpios de jardín de bricolaje hecho de metal: fotos y características
- 2 Dibujos y fotos de un columpio de jardín con sus propias manos hechas de metal: dimensiones y tecnología.
- 2.1 Una breve clasificación de un columpio de jardín de metal.
- 2.2 Tecnología de oscilación de bricolaje de un tubo perfilado
- 2.3 Lista de herramientas y materiales necesarios
- 2.4 Dibujos y fotos de un columpio con sus propias manos hechas de metal: la etapa preparatoria.
- 2.5 Montaje de bricolaje según dibujos de un columpio de un tubo de perfil: parte del marco
- 2.6 Tecnología de montaje de asiento de columpio de madera.
- 2.7 Hacer una visera para una estructura
- 2.8 La etapa final de construcción.
Clasificación de columpios de jardín de bricolaje hecho de metal: fotos y características
Se utilizan diversos materiales para la construcción de estructuras metálicas. Por lo tanto, existen muchas soluciones de diseño. Esto se evidencia en numerosas fotos de columpios de jardín hechos por usted mismo hechos de metal, que se pueden encontrar en Internet.
Para la fabricación de estructuras, se utilizan las siguientes opciones de materiales:
- esquinas de metal;
- perfiles cuadrados;
- Vigas en I (vigas de acero);
- tubos (perfil redondo);
- marcas (perfiles de aluminio).
¡Nota! Sobre la base de estos elementos, con igual éxito, ambos bancos tipo familiar, y mecedoras pequeñas para bebés.
Antes de comenzar a planificar y desarrollar dibujos de columpios de jardín con sus propias manos hechas de metal, debe decidir el tipo de diseño futuro. Para hacer esto, puede estudiar los sistemas listos para usar que ofrece la industria moderna.
Cómo hacer un columpio de jardín con sus propias manos de metal: fotos y ejemplos de productos
Si tiene dudas sobre cómo hacer un columpio de bricolaje para niños, tome las opciones hechas en fábrica como ejemplo.Dichos productos tienen un diseño calculado correctamente y están representados por una gran cantidad de soluciones de diseño interesantes. Solo necesita crear un swing similar a partir de materiales de desecho.

Mecedorasuspendido de un marco de metal en cadenas
Clasificación de productos de los fabricantes:
- construcciones de jardín independientes. Este tipo de producto se puede instalar en cualquier lugar que estime conveniente, ya que no requiere de soportes ni suspensiones adicionales. Este tipo de columpio puede ser no solo de metal, sino también de madera;
- Columpio de sofá que puede ser utilizado tanto por adultos como por niños. En el segundo caso, el producto permite que varios esquiadores se sienten en el banco al mismo tiempo. Las construcciones son cómodas y seguras, equipadas con un cómodo respaldo. Para el período de fuertes lluvias o en invierno, el columpio se puede quitar fácilmente, ya que su estructura tiene una estructura de bloques. Los productos pueden ser de metal o madera;
- construcciones con respaldo abatible y mosquitera. Se pueden utilizar como columpio de metal para niños para regalar. Puede agregar otros accesorios para mayor comodidad;
- Columpio, realizado mediante forja, que tiene muchas ventajas.

Fábrica Columpio de jardín metal, instalado en el jardín de una casa particular
Foto de un columpio de jardín con sus propias manos, creado forjando
Los columpios de este tipo se fabrican principalmente para su instalación en los territorios de las casas de campo. Para crear estos productos, necesitará habilidades para manejar una máquina de soldar y metal, o puede contratar a un asistente. En este caso, el columpio es más duradero y poderoso que otras opciones para estructuras metálicas. Además, obtienes un producto original que puede convertirse en un interesante complemento decorativo para el paisaje y el exterior de la casa.
Los productos de metal forjado son caros. Pero se justifica por sus excelentes características decorativas.
¡Aviso util! Use diseños similares para mantener el diseño general de su hogar y el área circundante, con cercas, rejas en las ventanas, farolas, bancos, balcones, barandas de escaleras, marquesinas o glorietas construidas con esta tecnología. Para lograr la unidad en el diseño, use el mismo patrón o uno similar en todos los elementos enumerados mediante la forja.
Características de un columpio de jardín con sus propias manos hechas de metal.
Las estructuras metálicas tienen la mayor cantidad de ventajas sobre los productos basados en otros materiales. Es por eso que en Internet hay tantas fotos y dibujos de columpios para niños con sus propias manos hechas de metal.
Características técnicas y operativas del columpio a base de metal:
- La larga vida útil es uno de los principales beneficios. El metal no es susceptible a los efectos destructivos de factores tales como, por ejemplo, procesos de descomposición. También se excluyen las roturas por secado;

El capullo de mimbre con marco de metal se convertirá en una decoración inusual del patio de una casa privada
- practicidad: las influencias ambientales que son perjudiciales para los edificios (radiación ultravioleta, lluvia y otros tipos de precipitación) no pueden afectar las características de resistencia del material;
- confiabilidad: debido a la mayor resistencia del metal y su durabilidad, las estructuras resultantes son muy fuertes;
- presupuesto: el metal en la compra tiene un costo más bajo que la madera de alta calidad (la madera de baja calidad no podrá garantizar la resistencia del producto, por lo tanto, no se usa para crear un columpio);
- una variedad de modificaciones: la variedad de columpios modernos, que se pueden comprar o fabricar de forma independiente, es extremadamente amplia, lo que le permite elegir un diseño que satisfaga plenamente las preferencias individuales.
Contras del columpio de metal casero
A pesar del atractivo externo de los productos metálicos, por sí mismos no podrán encajar armoniosamente en el paisaje de una cabaña de verano, como es el caso de un columpio de madera. Esto requerirá apoyar estilísticamente su diseño agregando elementos similares al exterior de la casa o jardín.
¡Nota! Las estructuras metálicas se pueden hacer a mano, sin embargo, debe estudiar la tecnología de soldadura y adquirir las habilidades adecuadas, así como comprar o alquilar el equipo necesario.
Una de las características positivas del material, a saber, la dureza del metal y su estructura fuerte, también puede considerarse una desventaja. Por un lado, un columpio fuerte y sólido es lo que necesitas para una residencia de verano, por otro lado, puede provocar lesiones graves que una persona puede recibir como consecuencia de un golpe. En comparación con la madera, que es de naturaleza blanda, el metal es mucho más peligroso.
Artículo relacionado:
Columpio de bricolaje para una residencia de verano: fotos e instrucciones paso a paso. Recomendaciones para la fabricación de columpios para niños y adultos en su casa de veraneo. El uso de materiales disponibles para crear estructuras.
Los productos metálicos están sujetos a corrosión. El óxido puede provocar un deterioro gradual, por lo que la durabilidad de una estructura solo puede garantizarse con el cuidado adecuado. Para evitar la aparición de corrosión, es suficiente cubrir el metal con una capa de una composición de pintura destinada a superficies metálicas y condiciones exteriores de manera oportuna.
Dibujos y fotos de un columpio de jardín con sus propias manos hechas de metal: dimensiones y tecnología.
El columpio de jardín de bricolaje puede tener un tipo diferente de marco. En base a esta característica, se distinguen las siguientes opciones de diseño:
- plegable;
- soldado.
Los tipos de columpios soldados requieren el uso de una máquina de soldar y otros equipos especiales. Como resultado, obtendrá una parte de soporte fuerte y rígida, que le permitirá operar la estructura durante muchos años sin ningún riesgo para la salud.
Si no sabe cómo manejar una máquina de soldar, elija un columpio con un diseño plegable. El principio de ensamblaje del marco consiste en torcer todos los elementos del producto con pernos y tuercas. Cualquiera puede hacer este trabajo.
¡Nota! Con el tiempo, en los columpios de jardín de metal hechos a mano, las roscas en las juntas bajo peso y otras cargas se aflojan gradualmente. Como resultado, aparece una reacción (espacio libre). Puede provocar la destrucción de la estructura, como resultado de lo cual es posible que una persona se lesione. Para evitar esto, asegure los elementos con ranuras y contratuercas. No olvide apretar regularmente las juntas con una llave.
Una breve clasificación de un columpio de jardín de metal.
La forma más fácil es crear una estructura de acuerdo con los dibujos confeccionados de un columpio de jardín con sus propias manos de metal.Considerando los diagramas, se puede ver que la configuración de los soportes es diferente.
La base del marco en forma de A consta de dos vigas que están interconectadas en la parte superior. Hay un suéter en medio de su altura. Está diseñado para aumentar la rigidez de la estructura. Hay soportes sin dintel, que tienen forma de L.
Otro tipo de soporte son los elementos con travesaño que forman una base en forma de U. Crear una estructura de este tipo requiere menos esfuerzo, pero el swing es menos estable. Su funcionamiento será a largo plazo y seguro si los soportes de la base se colocan en agujeros profundos en el suelo y bien hormigonados.
Además, todos los productos metálicos se pueden dividir en dos grupos:
- estacionario: la parte de soporte del columpio está hormigonada de manera confiable;
- portátil: se fija con pernos de anclaje o refuerzo doblado, que se clava en el suelo.

Un columpio de metal ubicado en el jardín de una casa particular se convertirá en un lugar favorito para relajarse
Tecnología de oscilación de bricolaje de un tubo perfilado
Los columpios colgantes se consideran las opciones de diseño más comunes. Son cómodos, prácticos y cómodos. Equipe el producto con un toldo para protegerlo de la luz solar directa. Gracias a esto, el asiento no se sobrecalentará y el proceso de conducción será aún más cómodo.
Para hacer un dosel para un columpio infantil hecho de metal con sus propias manos, puede usar textiles, lona, madera con tejas blandas en forma de techo. Pero el material más adecuado es el policarbonato celular. Las láminas de policarbonato son transparentes, por lo que no estará oscuro debajo del dosel. Al mismo tiempo, dispersan perfectamente la luz solar directa.
Lista de herramientas y materiales necesarios
Antes de hacer un columpio de jardín con sus propias manos, asegúrese de tener las herramientas adecuadas:
- muelas;
- nivel de construcción y cinta métrica;
- máquina de soldar y equipo de protección (para trabajar con la máquina);
- taladro eléctrico;
- un juego de taladros diseñados para trabajar con superficies de metal y madera;

Móvil silla colgante columpio con estructura de metal
- destornillador;
- un juego de llaves;
- Tornillos autorroscantes diseñados para fijar la lámina de policarbonato.
Para trabajar, también necesitará comprar materiales, a saber:
- perfil metálico (tubos y esquinas);
- tablas o bloques de madera para montar el asiento;
- pernos equipados con cabezas semi-avellanadas (para el montaje del asiento);
- arandelas y tuercas para tornillos (para montaje de asiento);
- cierres de acero inoxidable o galvanizados (mosquetones, colgadores de cojinetes, cáncamos, cadenas);
- anclajes de gran longitud o barras de refuerzo dobladas (para fijar la estructura a la base);
- una hoja de policarbonato celular (techo de dosel);
- agentes protectores para el marco (imprimación con propiedades anticorrosivas y composición de pintura para superficies metálicas);
- agentes protectores para la madera a partir de la cual se creará el asiento (manchar, composición de barniz, un juego de pinceles para tratamiento de superficies).

La elección de diseños al crear un columpio de metal con sus propias manos es extensa y limitada solo por su imaginación.
Dibujos y fotos de un columpio con sus propias manos hechas de metal: la etapa preparatoria.
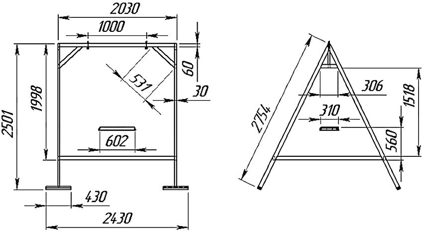
En esta etapa, se selecciona el área para montar el columpio, se determinan las dimensiones de la estructura. El tamaño óptimo del banco colgante es de 1,5 m, suficiente para que dos personas se sienten en el columpio o una para acostarse.
¡Aviso util! Asegúrese de dejar un espacio entre la estructura del bastidor y el lateral del banco.El tamaño mínimo es de 300 mm.
De acuerdo con los dibujos de un columpio de jardín con sus propias manos desde un perfil, la estructura consta de los siguientes elementos:
- marco de soporte de forma rectangular en la base;
- paredes laterales hechas de un par de tubos, soldados entre sí;
- Barra transversal ubicada horizontalmente para colgar el banco.
Esta información ayudará con el montaje posterior. Gracias a esta estructura, la estructura adquiere el nivel de rigidez requerido. Al elegir el ancho de base correcto, puede construir un producto muy estable. Toma la regla como base para tu trabajo: cuanto mayor sea el ángulo en el vértice del triángulo entre la base y los lados, más estable será la estructura.

Diagrama de un marco de columpio hecho de metal con postes en forma de A: 1 - brida; 2 - nuez 3 - barra transversal; 4 - tuerca de ojo; 5 - soporte del marco de soporte; 6 - refuerzo de marco; 7 - perno
Los parámetros dimensionales generales se calculan de forma individual. Los indicadores relativos a la visera de policarbonato y el banco colgante se ajustan para ellos. Los expertos recomiendan que es obligatorio preparar dibujos que indiquen todos los parámetros dimensionales de la estructura, para que sea más conveniente trabajar con el material. Posteriormente, esto le evitará errores y le ahorrará tiempo.

Los tamaños de varios columpios móviles de metal. Se pueden hacer diseños similares con sus propias manos.
Montaje de bricolaje según dibujos de un columpio de un tubo de perfil: parte del marco
Se recomienda comenzar a ensamblar el marco desde las partes laterales. Para hacer esto, según los dibujos, debe marcar las tuberías y cortarlas con una amoladora. Compruebe la precisión dimensional antes del montaje. Los cuatro elementos de la pared lateral deben ser similares entre sí. Deben conectarse en pares utilizando el método de soldadura. Como resultado, debe tener dos piezas idénticas en forma de L.
Además, el extremo afilado, ubicado en la parte superior de cada una de las partes, se corta en un nivel. Este procedimiento se realiza de manera que se pueda formar una pequeña área de apoyo para asegurar la barra horizontal.
¡Aviso util! Utilice una plantilla preparada previamente para el trabajo.
El ancho del marco de soporte (lado corto) debe dimensionarse para coincidir con la distancia que se forma entre los tubos emparejados de las partes laterales de la estructura. La máquina de soldar solda las paredes laterales al marco de soporte rectangular, y luego la barra transversal horizontal (sobre los postes laterales).
Todas las etapas del montaje de la pieza del marco deben obedecer estrictamente las leyes de la geometría: los postes laterales son de tipo vertical, la barra transversal horizontal (viga), diseñada para colgar el banco, corre paralela a la base. Utilice el nivel del edificio para controlar los parámetros de montaje.
Tecnología de montaje de asiento de columpio de madera.
El montaje del banco es un paso importante en la construcción. Especialmente si crea un columpio infantil de metal de acuerdo con los dibujos con sus propias manos. En la base del asiento, debe haber una base de marco hecha de una esquina de acero. Para obtener banco con un respaldo cómodo, colóquelo en un cierto ángulo con respecto al asiento. El ángulo óptimo es de 120 °.
Para hacer una curva correcta de la esquina, corte un triángulo (60 °) en un estante.El marco para el asiento está hecho de un perfil de metal rectangular mediante un método de soldadura. Las partes laterales deben conectarse a lo largo de las zonas del borde utilizando puentes horizontales. La zona de conexión también debe estar en el lugar donde se dobla la estructura.
¡Aviso util! Si lo desea, puede mejorar la estructura agregando apoyabrazos al asiento. Mejorarán la comodidad y la seguridad.
Ya sea que esté haciendo un diseño de columpio para niños o haciendo un producto para adultos, el respaldo y el asiento deben ser completamente lisos. Para estos fines, son adecuados los bloques o tablas de madera, cuidadosamente procesados con papel de lija (primero con granos gruesos, luego con finos).
Las tablas se cortan al tamaño requerido y se unen al marco a través de orificios pretaladrados con pernos para que sus cabezas queden empotradas. Antes del ensamblaje final de la estructura, los elementos de madera se tratan con una composición antiséptica y de barniz, y los elementos metálicos, con una imprimación y pintura.
Los pernos de ojo están montados en las esquinas de la parte del marco del banco. Las cadenas irán unidas a las orejetas de estos pernos con mosquetones o acoplamientos roscados. Para colgar el banco, también deberá instalar pernos de argolla en las esquinas del producto o sobre los bordes del asiento.
Hacer una visera para una estructura
El proceso de fabricación de la visera es opcional. Pero si crea un diseño de columpio con sus propias manos para niños, debe pensar en la comodidad y la protección contra el sol abrasador y la precipitación.
Para hacer esto, debe hacer una estructura rectangular, que se basará en un marco de metal, reforzado con puentes. Sobre la estructura se fija una lámina de policarbonato celular. La instalación de la visera se lleva a cabo en un ligero ángulo, por lo que la precipitación fluirá libremente.
Para completar la parte del marco de la visera, tome varios perfiles metálicos con una pequeña sección cuadrada. Todos estos elementos se sujetan mediante soldadura, después de lo cual la visera se puede unir a la parte superior del marco del columpio. Esto también se hace usando una máquina de soldar.
Una vez finalizado todo el trabajo de montaje, la estructura se somete al procesamiento final. La superficie del columpio se cubre con una imprimación, después de lo cual se pinta en el color que desee.
La etapa final de construcción.
Cuando la pintura está completamente seca, se une una hoja de policarbonato al marco de la visera. Para hacer esto, use tornillos autorroscantes con arandelas de sellado.
¡Aviso util! Cubra la parte final de las hojas con un perfil de polímero. Protegerá la estructura hueca de policarbonato de insectos y polvo, preservará su belleza y pulcritud.
Una amplia gama de colores es una de las ventajas del policarbonato. Puedes elegir el color de la visera para que coincida con el color del columpio o, por el contrario, hacer que contraste. Además, el color del material tiene un impacto directo en el nivel de dispersión de la luz solar.

Uno de madera actúa como base para colgar un columpio de metal. pérgola
El producto terminado debe fijarse de forma segura en un sitio de hormigón. Si la estructura se está construyendo sobre un terreno de alta densidad, se pueden usar varias abrazaderas hechas de barras de refuerzo para asegurar el marco. Primero, se deben afilar los extremos de las abrazaderas, lo que permitirá clavar las varillas a 0.5 m de profundidad en el suelo sin ningún problema.
Es mejor usar pernos de anclaje como sujetadores en un sitio de concreto. Están preinstalados en ubicaciones apropiadas.Después de apretar las tuercas, corte el exceso de hilo con una amoladora. Esto completa la construcción de la estructura.