¿Por qué debe atender la pregunta de cómo ventilar adecuadamente el baño? La correcta disposición de la ventilación en el baño depende no solo de mantener una temperatura agradable en el vestidor, cuarto de lavado, baño de vapor, sala de descanso, sino también de la seguridad, así como de la vida útil del edificio y sus partes. Al diseñar un baño y comenzar su construcción, debe recordarse que la ventilación en el baño con sus propias manos debe hacerse teniendo en cuenta ciertas sutilezas y matices. Con sus propias manos, con la ayuda de instrucciones, fotos y videos, se pueden realizar todas las etapas de la instalación de ventilación en el baño y la sala de vapor.

La ventilación correctamente dispuesta en el baño asegurará una temperatura agradable dentro de la sala de vapor y prolongará la vida útil de los elementos de madera.
Contenido
- 1 El principio de funcionamiento del sistema de ventilación en el baño.
- 2 Tipos de ventilación
- 3 Dependencia del sistema de ventilación del baño del tipo de edificio.
- 4 Planificación del sistema de ventilación del baño: sutilezas y matices.
- 5 Ventilación en el baño ruso
- 6 Diagramas básicos del dispositivo de ventilación en el baño.
El principio de funcionamiento del sistema de ventilación en el baño.
El funcionamiento del sistema de ventilación se basa en leyes físicas bien conocidas y su diseño es simple y directo. Para una circulación de aire continua, se requieren dos tipos de aberturas:
- afluencia;
- cansada.
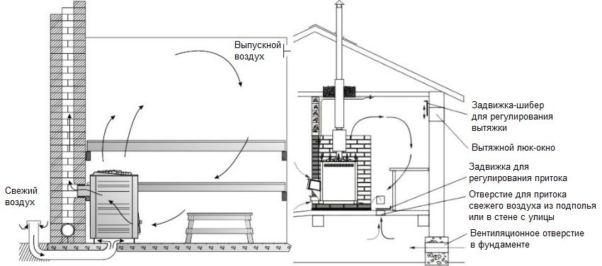
Se necesitan entradas de aire para que entre aire fresco en la habitación. Con una ventilación adecuada en el baño, deben ubicarse lo más cerca del piso y cerca de la estufa. Con esta disposición, el aire entrante se calienta rápidamente y la temperatura alta se mantiene estable en el baño.
Las aberturas de escape están diseñadas para eliminar el aire humidificado sobrecalentado y el monóxido de carbono de la sala de vapor. Deben colocarse lo más alto posible, es decir, justo debajo del nivel del techo, y frente a las aberturas de suministro para crear y mantener un intercambio de aire constante.
¡Consejo! Un orificio de escape en el techo conducirá a un enfriamiento rápido de la habitación, por lo tanto, tal disposición no es deseable.
No hay dificultades con la localización fundamental de las aberturas de suministro y escape al organizar la ventilación en un baño con sus propias manos. Pero la tarea de mantener una temperatura alta en una sala de vapor mientras se elimina eficazmente el aire de escape y el monóxido de carbono no es fácil.
También debe prestar atención a mantener la temperatura agradable para los procedimientos sanitarios e higiénicos y para el descanso, en todas las partes. balneario: vestidor, lavadero, sala relax. Y si tiene que crear e implementar un esquema de ventilación en un baño con sus propias manos, debe pensar en el desempeño correcto del trabajo.
Ventilación natural
Este tipo de ventilación funciona debido a la diferencia de temperatura y presión dentro y fuera de la habitación. Su eficiencia depende de la ubicación de las aberturas de entrada y salida de aire. La solución más adecuada es que las aberturas de suministro están ubicadas en el piso, a una altura de 250-350 mm, junto a la estufa, y las aberturas de escape están en la pared opuesta a ellas, por debajo del nivel del techo en 150-200 mm.
Artículo relacionado:
Las mejores fotos de terminar el baño en el interior y una descripción de las etapas de trabajo. Pasos a seguir a la hora de reformar una sauna. Materiales recomendados y reglas de instalación. Impermeabilización y aislamiento de paredes.
Los sistemas de ventilación natural no son adecuados para la ventilación de una sala de vapor o sala de vapor, ya que el aire frío en esta sala se acumula cerca del piso y el aire caliente, en la parte superior. La configuración del movimiento de los flujos de aire va acompañada de dificultades, pero con la ubicación correcta de los elementos de ventilación en la sala de vapor de un baño ruso, es posible hacer frente a este problema con sus propias manos.

La ventilación natural no es adecuada para una sala de vapor, es recomendable equiparla en una sala de relajación.
Ventilación forzada
Para este tipo de ventilación en la sala de vapor de un baño ruso o sauna, se pueden distinguir dos subespecies:
- Ventilación con ayuda de sistemas electrónicos especiales que controlan la temperatura y humedad del aire, con ayuda de automatismos que regulan su entrada y filtración. Estos sistemas son bastante caros y a menudo superan el presupuesto.
- Sistema de ventilación combinado, cuando por el uso de ventiladores se obtiene un efecto de ventilación natural.
Dependencia del sistema de ventilación del baño del tipo de edificio.
Ventilación natural, sujeto a la ubicación correcta de las rejillas de ventilación y la correspondencia de sus tamaños con los volúmenes del local, funciona bien en un baño ruso ensamblado desde registros o madera.
El edificio del marco es una estructura sellada. Es aconsejable utilizar ventilación forzada en los baños de estructura. La entrada en la pared exterior de la sala de vapor debe estar equipada adicionalmente con un soplador.
En un edificio hecho de ladrillos o bloques de espuma, solo es posible la ventilación forzada.

El tipo de sistema de ventilación se selecciona según los materiales con los que se construye el baño.
Planificación del sistema de ventilación del baño: sutilezas y matices.
Antes de continuar con la elección del esquema de ventilación en el baño y el dispositivo de su construcción con sus propias manos, debe comprender las complejidades y los matices del diseño.
¡Hecho! Incluso pequeños errores en la disposición de las aberturas de entrada y salida tienen consecuencias no deseadas. En la sala de vapor, o bien bajará la temperatura constante del aire o aumentará la concentración de monóxido de carbono.
Al construir cualquier baño, la ventilación del baño y su diagrama esquemático se colocan durante el proceso de construcción. La pregunta "cómo hacer la ventilación en el baño" debe resolverse en la etapa de diseño.
Los conductos de ventilación del vestidor, cuarto de lavado, baño de vapor, baños y aberturas para la entrada de aire fresco y la eliminación de una mezcla de gases de monóxido de carbono con masas de aire caliente y húmedo residual deben colocarse en las etapas apropiadas de construcción. Las válvulas de compuerta y rejillas para ajustar los tamaños de las aberturas de entrada y salida y las secciones de los conductos de ventilación ya están instaladas en la etapa de acabado de las instalaciones.

La planificación del sistema de ventilación debe llevarse a cabo en la etapa de desarrollo del proyecto de diseño del baño.
Básicamente, el funcionamiento de la ventilación del baño depende de dos factores:
- las dimensiones de las aberturas de ventilación, tanto de suministro como de escape, que están determinadas por el volumen de la habitación, ya sea un vestidor, una sala de lavado, una sala de vapor o un baño;
- la posición relativa de los orificios de ventilación.
Dimensiones de ventilación
Las dimensiones de las aberturas de ventilación dependen del volumen de una habitación en particular: vestidor, baño de vapor, cuarto de lavado o sala de descanso. Es muy importante tanto calcular con precisión el tamaño de estas aberturas como asegurarse de que se pueda cambiar. Para ajustar los espacios en las aberturas, se instalan puertas con pestillo y rejillas.
Tenga en cuenta que será difícil calentar la habitación a la temperatura correcta con grandes ventanas de ventilación. Existirá el peligro de un consumo excesivo constante de combustible y electricidad, o dificultades para ajustar la sección transversal de los conductos de ventilación, es decir, la distancia a la que deberá abrir cada abertura con sus propias manos.
¡Consejo! El área de la abertura de ventilación se determina a razón de 24 cm² por 1 m³ del volumen de la habitación ventilada. Para una buena corriente de aire fresco desde el exterior, la abertura de escape debe ser más grande que la entrada.
Si el área de los orificios de ventilación es insuficiente, la temperatura, la humedad y la concentración de monóxido de carbono en la habitación pueden elevarse a valores críticos.

El tamaño óptimo de la abertura de ventilación se calcula a razón de 24 cm cuadrados por 1 metro cúbico de volumen de la habitación.
La posición relativa de los orificios de ventilación.
El funcionamiento de cualquier sistema de ventilación se basa en la sustitución de las masas de aire caliente, que se ponen en movimiento bajo la presión del aire procedente del exterior, más frío y más pesado. Es importante poder regular la dirección del flujo de calor proveniente de hornosinstalado en el baño. La ventilación de la sala de vapor a menudo está equipada con más de una entrada, pero dos por esta misma razón. Para localizar los flujos de calor, basta con crear un hueco de cierta anchura en uno de ellos o en ambos con ayuda de válvulas.

Disposición de las aberturas de ventilación dentro de la sala de vapor para la entrada de aire fresco y la eliminación del aire contaminado.
Ventilación en el baño ruso
La calidad del sistema de ventilación del baño, diseñado y ensamblado a mano, se establece en la etapa del proyecto.
Las corrientes de aire que circulan en el local tendrán diferentes temperaturas, pero la incomodidad de esto debe sentirse lo menos posible.
¡Consejo! El confort en el baño depende no solo de la ausencia de cambios bruscos de temperatura “horizontalmente”, es decir, al pasar de una habitación a otra: del baño al vestidor o del baño de vapor al lavadero. Es necesario un movimiento vertical suave de las masas de aire: la temperatura del aire en el piso no debe ser mucho más baja que la temperatura al nivel de la altura humana promedio.

El microclima en el baño depende directamente del número de orificios de ventilación, su tamaño y ubicación.
La uniformidad del flujo de entrada, mezcla y eliminación de masas de aire depende del número de aberturas de suministro y escape, sus tamaños, ubicación entre sí y dispositivos de calefacción, así como el equipo con dispositivos de control adicionales.
Diagramas básicos del dispositivo de ventilación en el baño.
Cualquier esquema de ventilación para un baño está diseñado con un objetivo en mente: mantener la temperatura, la humedad y la frescura del aire en la sala de vapor. Las instalaciones del baño, y especialmente la sala de vapor, están expuestas al agua y al vapor, por lo que necesitan ventilación y secado periódicas. Pero la ventilación y el secado serán ineficaces si no se organiza una ventilación adecuada en el baño. La correcta y constante ventilación del baño de vapor reduce significativamente los efectos de la madera absorbiendo la humedad.

La función principal de la ventilación del baño es mantener la temperatura, la humedad y la frescura del aire en la sala de vapor.
Ventilación del piso del baño
El intercambio de aire en los cuartos de baño se facilita mediante el dispositivo de un piso ventilado.
Un suelo de madera en contacto constante con el agua pierde su validez a los 5 años. Requisitos de ventilación a través del suelo:
- para crear una corriente, haga pequeños orificios de ventilación en la base del baño;
- coloque el piso, dejando espacios de hasta 1 cm entre las tablas;
- coloque aberturas de entrada en paredes paralelas (recordando protegerlas con rejillas de roedores);
- para que el horno funcione con una campana adicional, coloque el piso de acabado sobre el nivel del ventilador;
- salir después de usar el baño puertas Ábralo hasta que el piso de la habitación esté seco.
Ventilación en el baño.
Con sus propias manos, en presencia de instrucciones de foto y video, la ventilación en la sala de relajación del baño y en el vestidor es más fácil de hacer, ya que no hay contacto directo con el agua en ellas. Se usa ventilación de tipo natural o combinado, cuando el aire fresco ingresa a través del conducto de suministro y se extrae con un ventilador a través del conducto de escape de la sala de vapor, el vestíbulo o el baño. También es posible instalar ventiladores, que requerirán una salida directa a la calle y una conexión a la fuente de alimentación.
Ventilación en el baño de lavado
Para el intercambio de aire en la sala de lavado, a menudo se realiza un sistema de ventilación forzada, que es impulsado por un motor eléctrico. Los flujos de aire se dirigen hacia el vestíbulo. Los canales de suministro y escape están hechos de la misma sección, la entrada del primero se establece por encima del nivel del suelo (2 m) y la salida del segundo está por encima del techo.
Ventilación en el baño de vapor.
Los requisitos para el microclima de la sala de vapor son especiales. Debe calentarse rápidamente, debe mantener un nivel de humedad óptimo y estar libre de corrientes de aire. Por lo tanto, para la sala de vapor, la posición y las dimensiones correctas de los canales de suministro y escape, que se colocan durante la construcción, son relevantes. Para regular la entrada y salida de aire, los amortiguadores en las rejillas de ventilación son suficientes, pero con un gran volumen de la habitación, es posible que se necesite un ventilador de inyección o extracción.
Los principios generales anteriores para diseñar la ventilación en un baño, los videos y las fotos, adjuntos a las instrucciones de la red u otros recursos, deben ayudar a quienes desean construir un baño con sus propias manos a llevar este deseo a una encarnación específica.