Kaikki pienten huoneistojen omistajat haluavat säästää tilaa ja tehdä jokaisesta neliömetristä asunnon toimivaksi. Kylpyhuone ei ole poikkeus. Kulmainen suihkukaappi 90x90, jossa on korkea tarjotin, auttaa selviytymään tästä. Se on erittäin mukava, moderni ja vie huomattavasti vähemmän tilaa kuin tavallinen kylpyamme. Tämä tuote on käytännöllisten ihmisten valinta, jotka haluavat tehdä kodistaan mukavan ja mukavan.

Nykyaikaisilla suihkukaapeilla, joissa on 90x90-syvyys, voi olla monia toimintoja - se voi olla sauna, vesihieronta tai höyryasennus
Sisältö
Suihkukaapit korkealla alustalla: käytön edut
Nykyaikaiset putkimarkkinat täydentyvät yhä useammilla uusilla vaihtoehdoilla. Siksi erikoisliikkeistä on helppo löytää halpoja kulmasuihkuja jokaiseen makuun. Tällaiset tuotteet ovat erittäin suosittuja, koska niillä on useita etuja. Pienimpäänkin kylpyhuoneeseen mahtuu helposti 70x70 kulmasuihku. Sen käyttö vapauttaa tilaa muille asioille, kuten pesukoneelle.

Tärkeä etu syville kuormalavoille on, että niiden avulla on helpompaa ylläpitää alla olevaa piilotettua tietoliikennettä.
Tämä on tällaisen kopin tärkein etu, koska 1 neliömetrissä. m sisältää kätevän laitteen hygieniatoimenpiteiden suorittamiseen. Optimaalinen ja suosituin koko on 90x90 cm. Tällaisessa suihkukaapissa kuka tahansa voi tuntea olonsa mukavaksi, seinät eivät rajoita sitä, ja itse rakenne sopii helposti kylpyhuoneeseen.
Useimmiten nuoret perheet valitsevat kulmasuihkun, jossa on korkea lava 100x100 tai 90x90. Loppujen lopuksi syvän kuormalavan ansiosta voit imeä itse siihen, pestä lapsesi tai pestä pieniä pyykkejä. Tällaisten mökkien merkittäviä etuja ovat myös seuraavat ominaisuudet:
- Suihkukaapin sisätilan lämmitys. Ilma lämpenee nopeasti ja lämpötila kestää pitkään.
- Lavan kapasiteetti. Tämän ansiosta voit käydä paitsi suihkussa myös kylvyssä. Tuotteen mitat antavat pestä sekä aikuisille että lapsille.
- Viestinnän piilottaminen. Erityinen metallirunko piilottaa helposti kaikki putket.
- Pienin loukkaantumisriski ja naapureiden tulvien todennäköisyyden puuttuminen. Mökistä vesi ei putoa kylpyammeen lattialle, mikä tarkoittaa, että korjauksen liukuminen tai pilaaminen itsellesi ja alla oleville naapureillesi on mahdotonta.
- Korkea puoli mahdollistaa rentouttavien jalkakylpyjen tekemisen.
- Lisäksi monet suihkut on varustettu erilaisilla lisävarusteilla, jotka tekevät suihkusta mukavampaa. Esimerkiksi vesihierontatoiminto auttaa lievittämään väsymystä työpäivän jälkeen, ja radio piristää sinua.

Suihkulla varustettu suihku on mahdollisuus yhdistää harmonisesti kaksi komponenttia: suihku ja pieni kylpyamme
Hyödyllisiä neuvoja! 90x90-suihkukaappi, jossa on korkea tarjotin, ei ole täysin mukava vanhuksille, koska heidän ei ole kovin kätevää astua tuotteen korkean puolen yli. Tässä tapauksessa on parempi ostaa kulmainen suihkukaappi 100x100 matalalla kuormalavalla.
Joissakin nykyaikaisissa malleissa on erityinen istuin, jolla voit istua alas tauolla suihkussa käyessä tai mukavasti istua valitulla kylpyammeella.
Kulma-suihkukaappien koot: tuoteparametrit
Voit ostaa kulmasuihkun, jossa on sekä korkeat että matalat kuormalavat. Valmistajat jakavat tuotteensa myös geometrisen periaatteen mukaan:
- puoliympyrän muotoinen - sopii keskisuuriin kylpyhuoneisiin kerrostaloissa;
- neliö - pienille kylpyhuoneille;
- kulma - epätyypillisille asetteluille;
- suorakulmainen - keskisuurille ja suurille huoneille.
Pienet mökit sopivat erinomaisesti huoneistoihin, pieniin maalaistaloihin ja kesämökkeihin, kylpyihin ja saunoihin. Saatavilla on myös suuria mökkejä, joissa on ylelliset varusteet. Tällaisissa mittasuhteissa on vakiona kulmaiset suihkukaapit: 80x80, 70x90; 90x90; 100x80. Nämä tuotteet on varustettu tavallisella ominaisuusjoukolla.
Suihkukaappien keskikoko sopii tavalliselle keskimääräiselle perheelle. Koska seinät eivät rajoita korkean miehen liikkeitä ja ovat mukavia pienen lapsen uimiseksi, korkea lava mahdollistaa uinnin istuen. Tällaisia moderneja tuotteita täydennetään lisätoiminnoilla, esimerkiksi vesihieronnalla. Tällaisten suihkuhuoneiden koot: 100x100; 110x80; 120x80; 120x120.
Suurten tilavien mökkien omistajat voivat varata kylpyhuoneita, joiden pinta-ala on 15 neliömetriä. m ja yli. Suurten suihkuhuoneiden koot: 130x130; 140x140; 150x90; 170x90.
Tuotetta valittaessa on parempi antaa mieluummin kulmasuihkukaappi. Se on tilavampi kuin saman kokoinen suorakulmio tai neliö. Kulmasuihkussa oleva henkilö on sijoitettu kulmasta kulmaan, ei keskelle.

On tärkeää ottaa huomioon paitsi suihkukaapin koko myös sen huoneen mitat, johon se on tarkoitus asentaa.
Nykyaikaiset suihkukaapimarkkinat tarjoavat valtavan määrän tuotteita, joista on helppo eksyä. Kun valitset tuotetta, sinun on luotettava seuraaviin ominaisuuksiin:
- ulottuvuus suihkuhuone;
- kuormalavan korkeus;
- koppi merkki;
- tuotemalli;
- design.
Erityistä huomiota olisi kiinnitettävä suihkukaapin laatuun. Loppujen lopuksi tämä asia ei ole halpaa, mikä tarkoittaa, että sitä ei usein voida muuttaa.
Hyödyllisiä neuvoja! Etusijalle olisi asetettava kulmasuihkut, joissa on tunnettujen tuotemerkkien kylpyamme, mallit, joilla on todistettu maine. Loppujen lopuksi on parempi asettaa pyöreä summa kerran kuin käyttää jatkuvasti rahaa rakennekorjauksiin.

Ennen suihkukaapin asentamista sinun on mitattava kattojen korkeus, koska joissakin malleissa lava ylittää 40 cm ja rakenne ei välttämättä sovi
Suosituimmat tuotemerkit ovat nyt Polar, Niagara, Timo, Erlit, Roca. Tarkastellaan yleisimpiä malleja yksityiskohtaisemmin.
Halvat Polar-kulmaiset suihkukaapit 80x80
Tämä 80x80-kulmasuihkukaappi, jossa on korkea tarjotin, on universaali vaihtoehto mihin tahansa huoneeseen. Tämä malli on kompakti, mutta suuri ihminen ei ole täysin mukava käydä suihkussa.
Malli on varustettu sekoittimella, pieni hylly, tässä käytetään alumiiniprofiileja ja kaaria.Ovet on valmistettu mattasävytetystä lasista. Suihkuhuoneessa on 4 mm paksu turvalasi, maalattu valkoiseksi. Suihkupää on kiinnitetty joustavaan letkuun. Lava on 40 cm korkea ja varustettu metallirungolla. Valmistuksen aikana käytetään vahvistusta, joka antaa lisälujuuden lavalle.
Tämän 80x80-kulmasuihkun korkeus on 200 cm, joten tuote sopii täydellisesti huoneeseen, jossa on matala katto.

Hongkongin saniteettitavaravalmistaja Polar on todistanut itsensä globaaleilla markkinoilla, sen suihkut ovat laadukkaita kohtuullisin kustannuksin.
Suosittu malli: suihkunurkka 90x90 Niagara
Esittelemme teille Niagaran korkealla varustetun suihkun.
Rakennekehys on valmistettu lujasta alumiiniseoksesta. Lavan jalat ovat säädettävissä. Ohjaamon takaikkuna on valmistettu karkaistusta lasista. Lasiverhot matta, aallotettu, 5 mm paksu. Tuotteen yläosa on peitetty vettä hylkivällä materiaalilla. Ovet on suunniteltu siten, että rikkoutuessaan ne eivät siroteltu palasiksi, vaan rakeiksi, mikä vähentää loukkaantumisriskiä.
Suihkukaapin profiili on kromattu. Suihkuhana on valmistettu messinkiseoksesta. On mahdollista vaihtaa tilaa. Hygieniatuotteille on hylly. Tuotteen valmistaja antaa tuotteelle yhden vuoden takuun.

Menestyksekäs malli saniteettitavaravalmistaja Niagaran 90x90-kulmaputkesta, jonka seinät ja lava on valmistettu korkealaatuisesta eurooppalaisesta valkoisesta akryylistä
Luotettavat Timo-kulmasuihkut
Tämän mallin valmistaja on suomalainen yritys Timo. Tuotteen kulmasuihkualusta on valmistettu akryylilevystä. Tällä materiaalilla on pitkä käyttöikä. Liukuovet, asetettu itsesäätyville rullille. Varustettu suihkukaapilla, jossa on luotettava ja laadukas vesihierontajärjestelmä.
T-jäykkyystekniikan ansiosta rakenteen profiili kestää muodonmuutoksia. Sen pinta käsitellään suojaavalla kiteisellä oksidikalvolla. Käsittelymenetelmä - sähkökemiallinen anodisointi - varmistaa materiaalin kestävyyden mekaanisille vaurioille.
Varustettu laajalla suihkuhuoneella: sadesuihku, sekoitin useilla käyttötavoilla, sisäinen ilmanvaihto, koristeellinen valaistus. Ohjaussarja sisältää kaukosäätimen. Mallin lasi on karkaistu, loukkaantumaton - se hajoaa rakeiksi.
Lavan muoto on puoliympyrän muotoinen. Asennus on yksinkertaista, mutta se vaatii ohjeiden noudattamista. Tämän mallin hinta on keskimääräistä korkeampi.

Tunnetun suomalaisen valmistajan Timon erinomaisen laadukas suihkukaappi, jossa kaikki on suunniteltu pienimpään yksityiskohtiin asti
Suihkukaappi 120x80, syvällä alustalla Erlit
Tämän mallin valmistaja on kiinalainen Erlit-yritys. Tämän suihkuhuoneen pääominaisuus on epäsymmetrinen muoto. Paletissa on vahvistettu runko. Mallin etulasit ovat mattapintaisia, takaseinät valkoisia. Liukuovet karkaistua lasia 4 mm paksu. Koppi on varustettu kaikilla perustoiminnoilla. On myös muita vaihtoehtoja: ilmanvaihto, vesihieronta, sadesuihku. Ohjaus suoritetaan kaukosäätimellä. Suihkupää on asennettu kiskoon, ja siellä on myös useita hyllyjä.
Useimmiten tällaiset kopit valitaan asennettaviksi omakotitaloihin ja huoneistoihin. Huolimatta hyvästä laadusta ja laajasta ominaisuuksista, malli on halpa. Lisäksi tällaiset mökit on valmistettu yksinomaan ympäristöystävällisistä materiaaleista. Ja johtuen siitä, että lava on varustettu sifonilla, kopin omistaja on suojattu viemärin epämiellyttäviltä hajuilta. Suihkun viemäri suljetaan ja avataan painamalla jalkaa.
Tilava kulma-suihkukaappi 120x120 Rocalta
Suihkuhuone 120x120 on suunniteltu asennettavaksi suuriin kylpyhuoneisiin. Mökin ovet metalliprofiiliin kiinnitettävä liukuva, valmistettu kahdesta versiosta: valkoinen ja hopea. Etuosa koostuu 2 osasta: 2 ovea ja 2 kiinteää lasia ovien sivuilla. Lasin paksuus 4 mm. Tämän mallin käyttäjien arvostelut ovat erittäin myönteisiä.

Eurooppalaisten valmistajien Roco-kokoelma suihkukaappeja, jotka on erityisesti suunniteltu suurille kylpyhuoneille, on täydellisyyden ja hienostuneen tyylin huippu
Vaihtoehtoinen vaihtoehto: kulmasuihkukaappi, jossa on matala pohja
Tämä malli on erinomainen korvaava edellä kuvatuille tuotteille syvällä lokerolla. Tällaisen suihkun erikoisuus on erityisessä viemäröintijärjestelmässä, joka ei pidä vettä laitteen sisällä. Tämän ansiosta et pelkää voimakkainta veden painetta. Tämä pätee erityisesti silloin, kun käytetään ominaisuuksia, kuten sadesuihkut ja vesihieronta. Toinen etu on matala kynnys, joka ei aiheuta vaikeuksia suihkuun astumisessa ja siitä poistumisessa.
Aiheeseen liittyvä artikkeli:
Suihkukaapit: koot ja hinnat, kylpyhuoneen valokuvat
Katsaus valmistajiin. Pieni kylpyhuone. Tee-se-itse suihkukaappi laatoista.
Kulmasuihkukaappi 90x90 ja matala kuormalava ilahduttaa kuluttajia erilaisilla malleilla. Tuote näyttää kevyeltä lasin ja peilipintojen käytön vuoksi. Kulmasuihkukaappi, jossa on matala 80x80 astia, on hieno sisustus pienelle kylpyammeelle. Lisäksi tämän kokoinen malli on erittäin helppo käyttää. Lisäksi tässä kompaktissa tuotteessa on kaikki tarvittavat toiminnot. Kulma-suihkukaappi 100x100 matalalla kuormalavalla on kalliimpaa, mutta tämä malli on paljon mukavampi.

Jos perheessä on vanhuksia tai vammaisia, on suositeltavaa valita suihkukaappi, jossa on matala kuormalava, johon on helpompi päästä sisään ja ulos.
Kuinka valita sifoni suihkukaappiin, jossa on korkea tarjotin
Liemi on tärkein osa suihkukaapia. Se estää viemärin epämiellyttäviä hajuja pääsemästä kylpyhuoneeseen. Liemi itsessään on kaareva putki, jonka läpi käytetty vesi kaadetaan suihkualtaasta. Useimmiten käytetään tavanomaista vesitiivistettä. Mutta nyt on olemassa nykyaikaisempia vaihtoehtoja - automaattiset sifonit napsautettavalla suljinjärjestelmällä.
Napsautus-napsautusjärjestelmän avulla voit sulkea sulkimen yhdellä painalluksella jalkaasi erityisellä painikkeella vetääksesi vettä pannuun. Samanlaisella liikkeellä vesi tyhjennetään. Se on kätevää, mutta tällainen sifoni on kalliimpaa kuin tavallisesti.
Sifonit eroavat toisistaan muodoltaan. Ne ovat putki, pullo ja aallotettu. Jälkimmäinen tyyppi sopii mihin tahansa suihkuhuoneeseen, koska se on helppo asentaa jopa vaikeimmin käytettävissä oleviin paikkoihin.
Kun ostat suihkukaapin, sinun ei tarvitse huolehtia liemestä. Mutta tämä osa suihkukaapista kuluu nopeasti ja se on vaihdettava. Tätä varten sinun on tiedettävä tyhjennysaukon halkaisija. Standardissa se on 45-60 cm.
Hyödyllisiä neuvoja! Ostamalla uuden sifonin, jotta et erehdy, on parempi ottaa kulunut osa mukaasi.
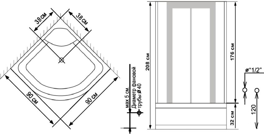
Kulmasuihkukaappi 90x90 korkealla: asennusominaisuudet
Tärkeintä muokkauksen aikana on välttää virheitä. Yleisimmät virheet ja niiden ratkaiseminen:
- Tuotteen huono tiivistys. Tämä aiheuttaa kosteutta suihkukaapin alla. Tämän haitan poistamiseksi on tarpeen peittää osien liitokset silikonitiivisteellä.
- Väärä viemäriputken ja auton pohjan välinen suhde. Tässä tapauksessa vesi valuu hitaasti ja pysähtyy. Poikkeaman korjaaminen on helppoa: sinun on säädettävä kuormalavan jalat.
- Väärin asennetut ohjaimet ovien avaamiseen. Tämän korjaamiseksi on suositeltavaa järjestää ala- ja yläprofiili uudelleen.
- Suihkualtaan tasoa ei ole asetettu riittävästi. Tässä tapauksessa osa vedestä ei tyhjene. Ongelman ratkaiseminen on helppoa: sinun on kohdistettava kopin jalat.
Kuinka koota kulmasuihku
Halutessasi voit koota minkä tahansa kopin omin käsin. Ensinnäkin sinun on valmisteltava kaikki työkalut ja noudatettava selkeästi suihkun ohjeita. Sitten olet täysin varma kopin oikeasta asennuksesta.
Asennusprosessi on tavallisesti jaettu seuraaviin vaiheisiin:
- Suihkukaappi on asennettu metallipohjaan kylpyhuoneen kulmassa.
- Putket kiinnitetään ohjaamon sisempään pohjaan. Muodosta riippuen ne kiinnitetään ristiin tai yhdensuuntaisesti.
- Jotta öljypohja ei pääse roikkumaan kerätystä vedestä, rungon alle asetetaan tiilet.
- Seuraavaksi suoritetaan putkityöt: viemäröinti, lisälaitteiden asentaminen. Kaikki tämä on kuvattu yksityiskohtaisesti ohjeissa.
- Viimeisessä vaiheessa ohjaamon ovet ja katto asennetaan.
Hyödyllisiä neuvoja! Suihkukaapin pinta on käsiteltävä erityisesti suunnitelluilla tuotteilla. Tuotteiden käyttö, joissa on paljon hankaavia aineita, on ehdottomasti kielletty.
Kaikkien käyttösääntöjen noudattaminen takaa suihkunurkkauksen pitkän ja turvallisen käytön. Jos et ole varma kyvyistäsi, on parempi ottaa yhteyttä asiantuntijaan kopin asentamiseksi.
Suihkukaapin purkaminen on helpompaa kuin kokoaminen. Voit tehdä tämän seuraavasti:
- Irrota ohjaamo vedestä ja virtalähteestä.
- Poista vanha tiivistysaine.
- Poista sekoitin ja hyllyt.
- Poista ovet ja lasi.
- Poista runko ja lava.
Ohjeet rakenteen kokoamiseksi auttavat suihkuhuoneen purkamisessa oikein. Järjestelmän avulla voidaan tarkistaa heidän toimintansa oikeellisuus.
Kulmasuihkut: koot, hinnat ja valokuvat
Korkean kuormalavan omaavien suihkukaappien hintaluokka on riittävän laaja ja riippuu monista tekijöistä. Kustannukset liittyvät suoraan tällaisiin ominaisuuksiin:
- valmistuksen aikana käytettyjen materiaalien laatu;
- valmistajamaa;
- mallin toiminnallinen täyteys;
- ohjaamon mitat;

Kulmasuihkukaappien hinnat vaihtelevat suuresti paitsi kokoonpanoerojen lisäksi myös alkuperämaasta riippuen
- kuormalavan syvyys.
Myös saman mallin hinta voi vaihdella ostopaikasta riippuen. Jokainen myyjä voi tehdä eri hinnoittelun. Merkkituotteet ovat aina kalliimpia. Lisäksi valmistusyritykset voivat sisustaa tuotteita kalliilla kivillä, kulta- ja hopeakoristeilla, norsunluusta tai marmorista. Joissakin malleissa on viihdyttäviä ja rentouttavia toimintoja: radio, valaistus, puhelin, vesihieronta, istuminen. Tällaisen toiminnallisuuden läsnäolo lisää tuotteen kustannuksia.
Putkimarkkinoiden johtajat ovat italialaisia suihkuja. Niitä pidetään luotettavimpina, tyylikkäimpinä ja siksi kalliimpina kuin toiset. Seuraavaksi hinnassa ovat valmistajat Amerikasta, seuraavina saksalaiset ja suomalaiset tuotemerkit.
Halvimmat suihkukaapit ovat 70x70 Don-joelta. Tällaisilla laatikoilla on erilaisia suunnitteluvaihtoehtoja. Tämän kokoisten perinteisten mallien hinta on noin 11 tuhatta ruplaa. Pienissä mökeissä on erilainen kokoonpano, joten kaikilla malleilla on erilaiset hinnat. Koon 90x90 ja poikkeuksellisen muotoisten tuotteiden hinta on noin 21 tuhatta ruplaa. Eksklusiivisten mallien lisätoiminnoilla hinta on 40 tuhatta ruplaa.

Usein 90x90-kulmahytti, jossa on syvä kuormalava, on kalliiden, tunnettujen tuotemerkkien tuote, jolla on merkittävä vaikutus sen kustannuksiin
Optimaalisesti valittu suihkukaappi tekee kylpyhuoneen tilasta mahdollisimman toimivan ja tilavan. On parasta valita kulmasuihkukaappi, jossa on korkea tarjotin, joka antaa sen toimia kylpyammeena. Tavallisessa pienessä huoneessa 90x90-kulmasuihku sopii parhaiten.Nykyaikaisten suunnitteluideoiden ansiosta yksinkertaisesta vakiokaapista on tullut poikkeuksellinen kohokohta.