La disposizione della trama personale viene eseguita con vari metodi: vengono installati capannoni e gazebo, vengono posati i percorsi, vengono rotte aiuole e aiuole. Il tocco finale è l'arredamento da giardino. Una panchina da giardino con schienale con le tue mani è adatta per organizzare una piccola area ricreativa: disegni e diagrammi di bellissimi disegni, nonché consigli per la loro creazione, puoi trovare in questo articolo.
Soddisfare
- 1 Tipi di disegni e foto di panchine da giardino
- 2 Esempi e tecnologie per creare panchine e panchine da giardino con le tue mani
- 3 Realizzare panchine da giardino in legno con le tue mani in stile etnico
- 4 Panca fai-da-te in alternativa a una panchina per una residenza estiva
- 5 Disegni di panchine per una residenza estiva con le tue mani: foto e descrizioni
- 5.1 Panca da giardino fai da te con schienale: disegni costruttivi per due persone
- 5.2 Panca fai-da-te per una residenza estiva in legno: istruzioni passo passo
- 5.3 Panca da giardino fai da te da materiali di scarto: l'uso di pallet
- 5.4 Disegni di una panchina da giardino con schienale in legno con le tue mani: design "Transformer"
- 5.5 Tecnologia di produzione di un banco di trasformazione
- 5.6 La fase finale della costruzione di un banco di trasformazione
Tipi di disegni e foto di panchine da giardino
La gamma moderna di mobili da giardino è piuttosto ampia. La classificazione dei prodotti viene effettuata sulla base delle seguenti caratteristiche:
- caratteristiche;
- Materiale;
- funzionalità.
Foto di panchine da giardino con le tue mani, il loro lato funzionale
Vengono valorizzate le caratteristiche funzionali dei mobili insieme alla loro praticità e durata. Tutti i prodotti sono divisi in due grandi gruppi:
- panchine utilizzate esclusivamente per sedersi;
- panche multifunzionali (il prodotto può svolgere diverse funzioni: essere una panca, una sedia a dondolo o un tavolo).
Consiglio utile! Usa il design insolito della panca trasformabile per risparmiare spazio in giardino. Può essere facilmente convertito in una scrivania o in un tavolo da pranzo all'aperto.
Molti proprietari di case installano panchine oscillanti.Per crearli, vengono utilizzati materiali di diversi tipi e alle strutture stesse può essere data una forma interessante. Per rendere comoda una panchina del genere, è imperativo costruire una tettoia sopra di essa. Fornirà protezione dal sole e dalla pioggia.

Una panca altalena è un'ottima opzione mobili da giardino
Le panchine con schienale, che hanno un tipo di posizionamento stazionario, sono popolari per fare le proprie mani. Molto spesso sono fatti di cemento o mattoni e per l'installazione viene selezionato un posto speciale. Tali prodotti non temono l'influenza del sole e dell'umidità.
Ci sono panche pieghevoli di piccole dimensioni e un design mobile. Torneranno utili se il cottage estivo viene utilizzato raramente. Durante l'assenza dei proprietari, le panche pieghevoli vengono spostate nel garage per lo stoccaggio o in casa.
Foto di panchine di campagna con le tue mani in legno e metallo
I prodotti in metallo hanno le caratteristiche di resistenza più elevate. Sono affidabili, durevoli e possono essere utilizzati tutto l'anno. Le strutture metalliche sono senza pretese in termini di manutenzione. È sufficiente coprire periodicamente la loro superficie con un agente anticorrosivo, che proteggerà i banchi dagli effetti dannosi dell'umidità.
Una panca realizzata interamente in metallo avrà un aspetto molto massiccio, quindi i design moderni sono realizzati utilizzando modelli forgiati. Va ricordato che per questo è necessario acquisire una saldatrice.
La maggior parte dei proprietari di aree suburbane che decidono di realizzare una panchina per una residenza estiva con le proprie mani preferiscono il legno. Questo materiale diventa la base per creare panchine con un bel design, prestazioni eccellenti e una consistenza calda. Indipendentemente dal design del giardino o del cortile, i prodotti in legno possono sempre adattarsi armoniosamente al paesaggio.
Consiglio utile! Prendi quercia o larice per lavoro.
Ai fini della protezione, la superficie del prodotto deve essere rivestita con vernice o vernice. Ciò eviterà danni al legno causati da insetti, funghi, muffe, umidità e sole. Usare una lacca come finitura aiuterà a preservare le venature naturali del legno.

I prodotti in metallo sono caratterizzati da elevata resistenza e lunga durata con una manutenzione minima
Foto di panchine con le tue mani in pietra
Se preferisci le opzioni pratiche per le panchine, dovresti prestare attenzione ai prodotti in pietra. Questo tipo di materiale si distingue per il suo basso costo e la lunga durata e le strutture sono durevoli, affidabili ed esteticamente attraenti.
La pietra appartiene alla categoria dei materiali di origine naturale. Nonostante ciò, i progetti di tali panchine non saranno sempre in grado di supportare ogni design e stile del giardino. Sul sito devono essere presenti elementi in pietra come aggiunta. Le panchine sembrano particolarmente vantaggiose sullo sfondo di un edificio residenziale, parzialmente in pietra.
Un buon insieme sarà fatto di pietra:
- passi;
- brani;
- serbatoi;
- gabbioni;
- aiuole.
I supporti per recinzioni, gazebo e tende da sole possono essere realizzati in pietra parzialmente o completamente. Se almeno uno di questi elementi è presente sul sito, le panchine in pietra verranno sempre a posto. Tuttavia, va ricordato che tali prodotti non hanno il dorso.
Foto fai-da-te di panchine da giardino: plastica e altri materiali fatti in casa di successo
I prodotti in plastica presentano una serie di vantaggi, tra cui:
- semplicità e peso ridotto della struttura, grazie ai quali il trasporto del materiale non causa difficoltà e la panca stessa può essere spostata da un luogo all'altro;
- redditività;
- un'ampia selezione di combinazioni di colori, che consente di realizzare un prodotto che successivamente si adatterà bene al design del giardino;
- praticità (le strutture abbattibili sono facilmente smontabili e si inseriscono nel bagagliaio e sono facilmente assemblabili anche in cantiere)
Consiglio utile! Usa i disegni delle panchine da giardino fai-da-te per creare strutture composite. Potrai dotare il tuo prodotto di caratteristiche prestazionali positive insite in ogni tipologia di materia prima utilizzata.
Combinazioni combinate di materiali diversi per consistenza, consistenza, colore e origine sono utilizzate non solo per scopi decorativi. L'opzione più comune è una combinazione di pietra e legno.
Le strutture in legno e completate da elementi in pietra o metallo sembrano originali. In tali progetti, il legno crea una trama morbida e bella, mentre la pietra e il metallo sono responsabili della forza.
Esempi e tecnologie per creare panchine e panchine da giardino con le tue mani
I modelli da banco e da banco hanno alcune caratteristiche distintive. Costruire una panchina è il modo più semplice per organizzare un'area salotto nel tuo giardino. Il prodotto non ha schienale e, a differenza della panca, ha un design esterno semplice.
Una panca in legno fai-da-te con schienale può avere un design decorativo più complesso:
- forma non standard;
- braccioli;
- una struttura decorata con elementi intagliati e forgiati.
Idee più semplici per creare panchine da giardino
Per ravvivare il design di una semplice panchina, non è necessario inventare un disegno complesso e un puzzle sulla creazione di accessori aggiuntivi per il giardino. È sufficiente utilizzare due scatole di legno e diverse assi.
In questo caso, le scatole funzioneranno come supporti. Dopo aver realizzato la panchina, puoi riempirli di terra e organizzare una piccola aiuola. Un sedile è fatto di assi, che viene installato tra le scatole. Il materiale deve essere carteggiato bene con carta vetrata, rimuovere tutte le irregolarità e sbavature.
Consiglio utile! Dalle panchine basate su scatole, puoi realizzare una panca da giardino con schienale con le tue mani. È sufficiente installare la struttura al muro e inchiodare diverse assi nel punto richiesto come schienale sul suo piano.

Figura: 1-1. Schema di una panchina con scatole di legno per fiori: 1 - progettazione di una panchina e calcolo dei materiali: A - tronchi (2x4 assi 17 1/2 "di lunghezza - 6 pezzi, 2x4 assi 20 1/2" di lunghezza - 4 pezzi); B - il fondo della scatola (3/4 compensato 20 1/2 "x 20 1/2" - 2 pezzi); C - finiture (1x4 tavole, lunghezza 23 1/2 "- 16 pezzi); D - lamelle laterali (assi 1x6, 25 "di lunghezza - 32 pezzi); E - finiture per rivestimento superiore (2x4 tavole 45 "di lunghezza - 8 pezzi); F - telaio del sedile (2x4 tavole 63 "di lunghezza - 2 pezzi, 2x4 tavole di 17 1/2" di lunghezza - 2 pezzi); G - strisce trasversali (1х2 tavole lunghe 17 1/2 "- 5 pezzi); H - sedile (assi 1x4 60 "di lunghezza - 5 pezzi); 2 - rivestimento laterale; 3 - installazione delle pareti della fioriera; 4 - dimensioni di montaggio delle pareti della scatola; 5 - schema del dispositivo del fondo della scatola per i fiori
Le strutture in legno presentano un certo inconveniente. Il materiale stesso richiede cure costanti, e in questo caso anche l'albero viene a contatto con il terreno, periodicamente è necessario annaffiare le piante. Per rendere la panca più pratica, le scatole di legno possono essere sostituite con piedistalli in cemento o pietra. Le aiuole in cemento possono essere realizzate indipendentemente o acquistate in un negozio.
Per il sedile, utilizzare tavole trattate o mezzo tronco tondo. La scelta delle materie prime dipende dallo stile del design del giardino o del cortile.Si consiglia di fissare il sedile con angoli metallici, fissati al calcestruzzo mediante tasselli, e al legno tramite bulloni o viti autofilettanti.

Figura: 1-2. Schema di una panchina con fioriere in legno: 6 - dimensioni di montaggio del telaio del sedile; 7 - rafforzare la struttura della panchina; 8 - installazione delle guide del sedile; 9, 10 - installazione in scatola
Come supporti possono essere utilizzati vasi con bonsai o cespugli ornamentali. L'unico, ma molto importante requisito è che il contenitore deve essere molto resistente. Un foro viene praticato nel sedile a forma di vaso di fiori nel punto in cui si trovano solitamente le gambe delle panchine. La dimensione del foro deve essere abbastanza grande da creare le condizioni per la crescita e il mantenimento delle piante, tuttavia, non deve superare le dimensioni del contenitore. Infatti, la seduta in doga è posta sopra i vasi da fiori ed è fissata dalla forza di gravità e dal peso della seduta.
Realizzare panchine da giardino in legno con le tue mani in stile etnico
Le indicazioni di design in stile etno e rustico sono spesso utilizzate nel design degli interni. Una casa di campagna, un cottage o un cottage estivo è il luogo ideale per creare un angolo ecologico e naturale, adatto alle vacanze in famiglia. Questo disegno può essere continuato in giardino. Per fare questo, è sufficiente creare una panca con schienale con le proprie mani da tronchi (Fig.1) e altri materiali naturali.
Consiglio utile! Per la realizzazione della struttura si possono utilizzare tronchi con o senza corteccia. Per elaborare il materiale o lasciarlo nella sua forma originale, dipende dai tuoi desideri e dal design del sito.
Tecnologia fai-da-te per realizzare una panchina di campagna da un registro
Per formare un sedile, è sufficiente segare il tronco dell'albero nel senso della lunghezza. Questo può essere fatto esattamente al centro (nella zona del diametro) o avvicinando la sega al bordo (nella zona del diametro medio). Lo schienale è costituito da un tronco d'albero più sottile, oppure puoi tagliarlo più vicino al bordo. Di conseguenza, questo elemento dovrebbe essere più sottile e leggero della parte del sedile.
Le gambe possono essere fatte dai resti di un tronco. Sono collegati alla parte del sedile tramite perni metallici. Questo è fatto in questo modo:
- Nelle parti da collegare vengono praticati dei fori per i perni nei punti appropriati. Il diametro del foro dovrebbe essere leggermente inferiore al diametro del dispositivo di fissaggio.
- Il perno viene inserito in uno dei fori a circa metà della sua lunghezza.
- Sopra il bordo libero del perno, la seconda parte collegata viene spinta e anche martellata. In questo caso i colpi non cadono sul perno, ma sul legno.
Gli elementi di fissaggio sono martellati con una mazza o un martello. Poiché il legno è un materiale abbastanza morbido nella struttura, i colpi di martello possono danneggiarne la superficie. Per evitare ciò, è necessario posizionare una scheda non necessaria sotto lo strumento.
I pin garantiscono un collegamento sicuro di tutte le parti. Per migliorare la fissazione, è possibile installare 2-3 pin.
Stile etnico nelle panchine da giardino con schienale con le tue mani: idee aggiuntive
Nello stile etnico, puoi creare un design con prestazioni non standard. Un punto culminante può essere, ad esempio, la realizzazione di una panchina utilizzando rami curvi di diverso diametro. Prima di assemblare il prodotto, questi rami vengono lavorati e levigati. In altre parole, la corteccia viene rimossa da loro e quindi la superficie viene levigata con carta vetrata. Per assemblare il sedile è necessario utilizzare una tavola non tagliata. È gestito in modo simile.
Nota! Tutti gli elementi di questa struttura hanno forme arrotondate e le assi del sedile sono rivolte in avanti.
Se il tuo cottage estivo ha una recinzione di vimini, puoi utilizzare la stessa opzione di design con alcune modifiche. Le tavole del sedile corto possono essere sostituite con quelle lunghe posizionandole nel senso della lunghezza. La parte posteriore è formata secondo il principio della tessitura da rami di medio spessore, che si piegano bene.
Non è necessario avere abilità speciali per creare un retro di vimini. Potresti non ottenere un risultato molto preciso, ma non è necessario. La parte posteriore dovrebbe essere semplice e discreta, la tessitura ruvida aumenterà solo le sue proprietà decorative. I rami possono essere posizionati strettamente o, al contrario, lasciare spazi tra loro in modo che la tua panca "respiri".
Panca fai-da-te in alternativa a una panchina per una residenza estiva
Nonostante l'assenza di uno schienale, questo schema (Fig. 3-1) per realizzare una panca sembra piuttosto attraente a causa delle peculiarità del materiale con cui sarà realizzato. La struttura stessa ha una struttura molto semplice, quindi tutti possono far fronte alla tecnologia della sua creazione.
Le gambe avranno bisogno di una barra arrotondata. Se hai tronchi di piccolo diametro, puoi risparmiare sull'acquisto di materiale e tagliarli tu stesso. L'aspetto originale della panca è ottenuto grazie al fatto che le barre sono impilate una sull'altra e fisse. Il risultato sono bellissimi supporti per il prodotto.

Figura: 3-1. La procedura per realizzare una semplice panca di legno: 1 - redigere un disegno di progetto
Calcolo dei parametri e dei materiali richiesti
L'altezza della panca può essere regolata in base alle proprie esigenze. Questo indicatore dipende anche dal diametro del legname che verrà utilizzato nel lavoro. Per calcolare la quantità di materiale, è necessario determinare quante barre verranno impilate una sopra l'altra per formare l'altezza richiesta di una delle gambe.
Tabella dimensionale:
Parametro del prodotto | Indicatore, cm |
Lunghezza | 120 |
Altezza | 38 |
Larghezza | 45 |
Sedile (sezione) | 4x9 |
Nel nostro caso sono necessarie 5 barre, la cui lunghezza è 0,45 m. Formula di calcolo: 5x0,45 = 2,25 m. Sulla base di questo, per la costruzione di due supporti, saranno necessari 4,5 m di legno (2,25x2). Il sedile sarà composto da cinque assi lunghe 1,2 m, per realizzarlo avrai bisogno della seguente quantità di materiale: 5x1,2 = 6 m.

Figura: 3-2. La procedura per realizzare una semplice panca di legno: 2 - segare il legno per le gambe della panca; 3 - praticare fori nei dettagli delle gambe; 4 - preparazione delle tavole per la seduta; 5 - lavorazione dei bordi delle parti del sedile
Consiglio utile! Per arrotondare i bordi del legno, puoi usare taglierina o acquistare materiale profilato già pronto. Il suo costo è più alto, ma il legno profilato è molto più conveniente nel lavoro.
Fase iniziale: preparazione del materiale
Per cominciare, vengono preparate le assi per il sedile. Il materiale viene tagliato nel numero richiesto di tavole della lunghezza appropriata e lavorato. Gli angoli acuti dovrebbero essere arrotondati. Approfitta delle opportunità fresa o una levigatrice. Se non hai a portata di mano uno strumento del genere, sarà sufficiente carteggiare i bordi con carta vetrata.

Figura: 3-3. La procedura per realizzare una semplice panca di legno: 6, 7 - segnare i dettagli delle gambe; 8 - praticare fori nei punti designati; 9 - applicare un rivestimento protettivo alle parti del sedile
La levigatura con carta vetrata è un processo lungo e laborioso. Per semplificare il tuo lavoro, puoi ordinare la molatura del materiale in una segheria. Dopo che le tavole sono state preparate, devono essere aperte con un composto per verniciatura. Può essere una vernice completamente trasparente o una composizione colorata (la scelta di un top coat dipende solo da te).
Le barre, progettate per formare le gambe della panca, sono strettamente impilate l'una accanto all'altra in modo che i loro bordi formino una linea retta. Utilizzare una matita e un quadrato per contrassegnare le aree in cui verranno installati gli elementi di fissaggio. Le linee devono essere distribuite su tutta la lunghezza con incrementi di 7-10 cm.

Figura: 3-4.La procedura per realizzare una semplice panca di legno: 10, 11 - fissaggio delle gambe al sedile; 12 - vista del prodotto finito
Assemblaggio di una struttura in legno: fissaggi di montaggio
Perni di metallo verranno utilizzati come elementi di fissaggio. Un sostituto alternativo per loro possono essere dei perni di legno. Per l'installazione di elementi di fissaggio, vengono realizzati fori, il cui diametro è leggermente inferiore al diametro dei perni e la profondità è la metà della lunghezza del perno.
Per fissare le parti, gli elementi di fissaggio verranno martellati in una delle barre e l'elemento successivo verrà spinto attraverso il foro sopra di esso.
Consiglio utile! L'assemblaggio di una struttura utilizzando perni è un metodo affidabile di fissaggio. Per aumentare la forza del fissaggio, è possibile utilizzare un adesivo durante l'installazione, ma questa tecnica renderà la struttura non separabile.
La connessione a perno viene utilizzata anche nel processo di creazione, secondo i disegni, di una panca da giardino fai-da-te in legno, il cui design è dotato di uno schienale. Un risultato di qualità può essere ottenuto solo se tutti i fori sono posizionati rigorosamente uno sopra l'altro. Di conseguenza, tutte le parti durante l'assemblaggio dovrebbero formare una linea di bordo uniforme.
Dopo aver disegnato le linee di marcatura, è necessario misurare la distanza dal bordo, che dovrebbe essere la stessa. Si consiglia di creare un modello per questi scopi. Basta prendere un pezzo di tavola, la cui larghezza è di 1,5 cm, servirà come una sorta di limitatore. In altre parole, i fori saranno separati dal bordo di una distanza pari alla larghezza di questa striscia. Posizionare il modello lungo la linea del bordo e contrassegnare le intersezioni con i segni perpendicolari esistenti.
Articolo correlato:
Panche da giardino in metallo fai da te: disegni e foto delle strutture. Una descrizione dettagliata del processo tecnologico di creazione di una struttura conveniente basata su un tubo sagomato. Disegno di un banco trasformatore.
L'installazione dei perni dovrebbe essere sfalsata, quindi dovresti posizionare i fori non ad ogni intersezione delle linee, ma uno dopo l'altro. I fori sono fatti anche sull'altro lato della barra. Dovrebbero essere sfalsati rispetto ai fori praticati in precedenza. Di conseguenza, quando le gambe sono collegate al sedile, ci saranno un paio di perni per ciascuna barra.
La fase finale della creazione di una panchina in legno
Da un punto di vista tecnologico, il tipo di connessione precedentemente descritto può essere considerato corretto. Tuttavia, lo schema della sua installazione è piuttosto complicato per una persona che non possiede le competenze necessarie.
C'è un modo più semplice per fissare la struttura:
- Le barre sono impilate l'una sull'altra.
- Le parti piegate sono fissate con morsetti.
- I fori passanti sono realizzati in tre punti (al centro e ai bordi).
- Attraverso i fori, le parti sono fissate con una lunga forcina (non dimenticare di mettere le rondelle sotto il dado e la testa).
Dopodiché, le assi del sedile vengono inchiodate a queste gambe (dall'alto), oppure puoi creare una connessione a pin qui.
Consiglio utile! Per nascondere il posizionamento delle unghie, prepara un correttore con una miscela di segatura molto fine e mastice progettato per il legno. Scegli il mastice da abbinare al negozio. Ricopri tutte le articolazioni con questa miscela. Dopo l'asciugatura, la superficie deve essere levigata.
Quando l'assemblaggio è completo, carteggiare tutte le parti. La loro superficie dovrebbe essere il più liscia possibile. La finitura può quindi essere applicata. Utilizzare una vernice o una pittura per legno destinata all'uso esterno per questo scopo. È meglio se il rivestimento è traslucido. In questo modo puoi lasciare visibile il motivo naturale del legno.
Disegni di panchine per una residenza estiva con le tue mani: foto e descrizioni
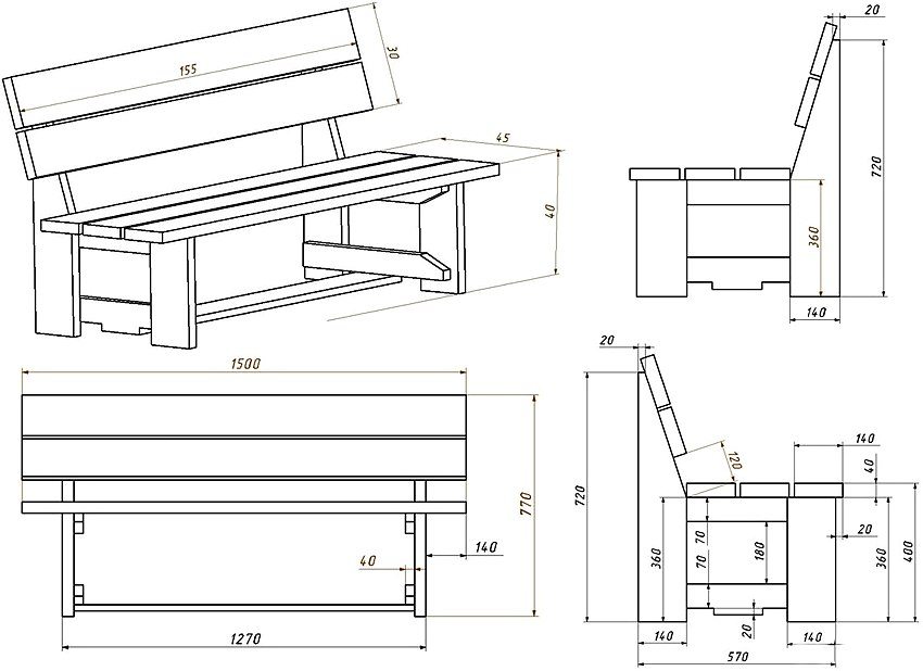
La panca, per la presenza dello schienale, ha un design più confortevole rispetto alla panca. Puoi appoggiarti e rilassare la schiena. La capacità di tali prodotti può essere diversa, ma di solito vengono elaborati disegni fai-da-te di panchine da giardino in legno per 2-4 persone. Questo viene fatto perché una struttura lunga necessita di supporto aggiuntivo. Di conseguenza, il processo di creazione di un prodotto diventa più complicato. C'è infatti abbastanza spazio per 2-4 persone, quindi puoi limitarti a realizzare le strutture più semplici.

La panca, per la presenza di uno schienale, ha una struttura di seduta più comoda rispetto ad una panca
Panca da giardino fai da te con schienale: disegni costruttivi per due persone
Per realizzare una panca fai-da-te con schienale in legno secondo questo progetto (Fig.4), è necessario acquisire i seguenti strumenti:
- trapano;
- una serie di trapani;
- seghetto;
- aereo.
Nota! La struttura è predisposta per l'installazione in giardino, balcone o terrazzo.
Non ci vorrà più di un giorno per completare tutto il lavoro sulla creazione di una panchina. Il materiale principale sarà un blocco quadrato di pino. I parametri della sua sezione sono 6x6 cm Avrai bisogno anche di "venti" tavole. Prima di tagliare queste tavole, devono essere affilate fino ad ottenere parti con dimensioni di 5,8x5,8 cm.
Panca fai-da-te per una residenza estiva in legno: istruzioni passo passo
L'assemblaggio di una panchina da blocchi di pino viene eseguito nella seguente sequenza:
- utilizzando tasselli e adesivo, montiamo le gambe per i lati a forma di U. Quindi, utilizzando lo stesso metodo di fissaggio, fissiamo le doghe (5,8x2 cm) e le barre del proiettile (3,5x3,5 cm) montate sui lati;
- utilizzare un pennarello per contrassegnare la posizione dei fori di risposta per l'installazione dei tasselli;
- collegare la parete laterale e la guida longitudinale. Per segnare la posizione della parete laterale è opportuno utilizzare un distanziatore di 2 cm di spessore;
- fissare tutti gli elementi mentre si praticano i fori con i morsetti. Ciò consentirà di ottenere un accoppiamento accurato tra le parti strutturali collegate;
- carteggiare bene tutte le parti prima dell'assemblaggio finale.
L'ultima fase della costruzione è l'applicazione di un agente protettivo e un top coat.

Per una maggiore durata, le strutture in legno devono essere trattate con un agente protettivo e una mano di finitura
Panca da giardino fai da te da materiali di scarto: l'uso di pallet
Un design interessante di una panchina può essere creato da materiali di scarto come i pallet (Fig.5). Può essere installato non solo in giardino, ma anche in terrazza e anche all'interno della casa di campagna. Per il lavoro sono necessari tre pallet.
Fasi di produzione:
- uno dei pallet è diviso a metà. Queste metà saranno successivamente la parte posteriore del prodotto. Il taglio deve essere fatto in modo che dopo il montaggio, le parti dello schienale e del sedile formino una figura geometricamente regolare e tutti i bordi coincidano;
- battere gli altri due pallet insieme con i chiodi. Fissiamo loro le metà posteriori;
- un materasso di dimensioni adeguate deve essere posizionato sopra la struttura. Puoi usare i cuscini del tuo vecchio divano, sostituire prima il rivestimento o cucirne di nuovi. Puoi anche posizionare diversi piccoli cuscini sullo schienale.

Usare i pallet di legno è un modo divertente per creare un originale mobili da giardino
Consiglio utile! Puoi lasciare il materasso tranquillo o fissarlo con cinghie. Per una maggiore funzionalità, è possibile aggiungere ruote al design.
Disegni di una panchina da giardino con schienale in legno con le tue mani: design "Transformer"
Per la fabbricazione della struttura, dovrai acquistare legname di pino.
Materiali per il lavoro:
Tipo di materiale | Quantità, pz. | Dimensioni sezione, cm | Lunghezza, cm |
Tavola | 6 | 3x10 | 100 |
Tavola | 2 | 3x10 | 32 |
Bar | 4 | 3x6 | 80 |
Bar | 2 | 3x6 | 50 |
Tecnologia di produzione di un banco di trasformazione
Seguendo le istruzioni passo passo, è possibile creare una panchina interessante, il cui design può essere trasformato in un tavolo con due panchine (Fig.6).
Le fasi principali della realizzazione di una panchina:
- Dopo aver creato le parti di supporto secondo il disegno, attaccare 3 schede a una di esse. Un posto sarà formato da queste tavole. Non dimenticare di fare un passo indietro dalla parte terminale di 5 cm.4 viti autofilettanti devono essere installate in ogni scheda. Due di loro fisseranno il sedile al supporto da un lato, gli altri sono progettati per fissare il sedile all'altro supporto (sull'altro lato del prodotto);
- per ogni area di assemblaggio nodale, sarà necessario installare 4 dispositivi di fissaggio;
Consiglio utile! Applicare la colla per legno su queste aree durante il montaggio. La composizione adesiva aumenterà la forza di fissaggio e la durata dell'intera struttura.
- dopo che tutte le parti sono state preparate per il lavoro, le gambe con lo schienale e il supporto del sedile devono essere segate dall'estremità con un angolo di circa 75º. Utilizzando viti autofilettanti progettate per la lavorazione del legno, collegare le gambe a coppie con le barre centrali. La lunghezza ottimale degli elementi di fissaggio è di 5 cm;

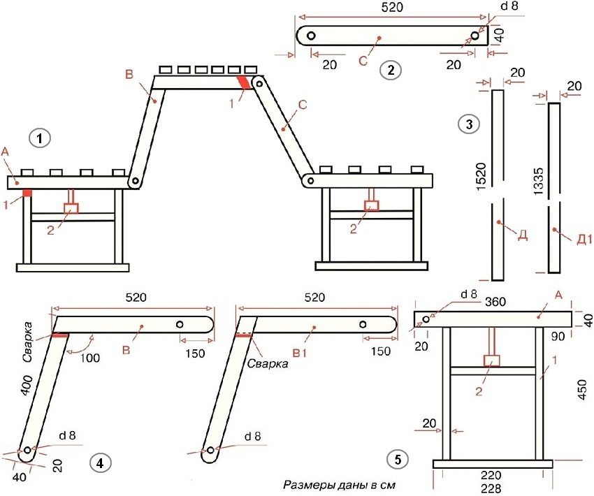
Figura: 6. Schema di realizzazione di un trasformatore da banco: 1 - schema cinematico del trasformatore in posizione "tavola" (1 - limitatori di posizione B (tubo 20 × 20 mm, lunghezza 35-49 mm), 2 - asta di sostegno); 2 - particolare C (tubo 40 × 20-2 pz.); 3 - ponti di collegamento (tubo 20 × 20 mm). D - per una panchina esterna, D1 - per una interna; 4 - parti B, B1 (tubo 40 × 20 mm). B1 è speculare rispetto a B; 5 - gamba da banco (4 pezzi), dove: A - tubo d'acciaio 40 × 20 mm, 1 - ponticelli (tubo 20 × 20 mm - 4 pezzi), 2 - asta di supporto
- quindi viene eseguita la parte posteriore. Nel processo di trasformazione, si trasforma in un tavolo. Trova il bordo longitudinale del pannello di supporto. La sua lunghezza è di 32 cm. Qui è necessario attaccare tre assi lunghe 150 cm. In questo caso, la distanza dall'estremità in questo caso sarà già di 8 cm;
- le schede sono montate in modo tale da formare uno spazio di 1 cm tra gli elementi adiacenti;
- nella tavola di supporto, è necessario praticare 3 fori, il cui diametro è di 0,8 cm.È meglio eseguire questa procedura in anticipo. Questi fori verranno utilizzati per fissare lo schienale della panca in posizione orizzontale.
La fase finale della costruzione del banco del trasformatore
Per creare gli assi di rotazione, praticare 2 fori nella parte superiore della gamba posteriore. Lo schienale verrà fissato alla base del prodotto mediante una coppia di bulloni M8.
Uno dei fori realizzati sarà assiale, l'altro sarà regolare. Per semplificare il funzionamento del banco, dotare il bullone nella zona del foro assiale di un dado a 6 facce; per il secondo è adatto un dado ad alette. Dovrebbe piegare le antenne. A causa di questa semplice manipolazione, il dispositivo di fissaggio può essere girato / avvitato senza l'uso di strumenti aggiuntivi, ma solo con la forza della mano.
Al termine di tutto il lavoro, è necessario controllare le prestazioni della struttura. Inclinare lo schienale e avvitarlo in posizione. Rimuovere il dispositivo di fissaggio dal foro e spostare lo schienale in posizione orizzontale. Per ripararlo, posizionare il bullone nella sua posizione originale e fissarlo con un dado. La struttura è completamente pronta per l'uso operativo.
Quando crei panchine, puoi sperimentare. La cosa principale è che il prodotto è durevole e pratico.