Konsep "membuat dengan tangan anda sendiri" menyiratkan manifestasi kreativiti, iaitu penafsiran bebas dari semua jenis cadangan praktikal. Setelah memahami semua kehalusan, tidak akan sukar untuk melengkapkan lukisan kerusi tangga yang terbuat dari kayu, memasang struktur dengan tangan anda sendiri, dan juga memprosesnya. Tangga kayu mempunyai banyak kelebihan, dan cukup mudah untuk membuatnya sendiri, berkat kelenturan bahan.
Kandungan
Stepladder DIY: bagaimana memilih bahan yang betul
Tahap kebolehpercayaan keseluruhan struktur, dan juga jangka hayatnya, secara langsung bergantung pada bahan mentah yang dipilih untuk pembuatannya. Walaupun dalam keadaan menyusun gambar tangga kayu dalam proses membuat dengan tangan anda sendiri, jika bahan berkualiti rendah digunakan, tangga tersebut tidak dapat memiliki kekuatan dan kebolehpercayaan yang tinggi. Itulah sebabnya sangat penting untuk tidak membuat kesilapan dalam pemilihan bahan.

Untuk membuat barang yang boleh dipercayai dan tahan lama, anda mesti menggunakan bahan berkualiti tinggi sahaja.
Bersama dengan produk kilang, tangga buatan sendiri dirancang untuk menahan beban yang besar: berat seseorang, serta banyak alat dan semua jenis alat yang diperlukan untuk bekerja. Dalam hal ini, kualiti kayu sangat penting. Sudah tentu, syarat ini tidak terpakai untuk kerusi tangga kayu. Terlepas dari pengubahsuaian, keadaan yang paling penting adalah ketiadaan retakan, serpihan dan reput pada bahan.
Selain itu, kayu yang dipilih untuk pembinaan mesti dikeringkan dengan teliti. Kandungan kelembapan yang dibenarkan tidak boleh melebihi 12%.
Penting! Penggunaan kayu yang terlalu lembap dari masa ke masa akan menyebabkan ubah bentuk, dan kemudian merosakkan struktur.
Sekiranya kelembapan melebihi nilai yang ditentukan, bahan mesti dikeringkan di kawasan yang berventilasi baik, sambil mengelakkan cahaya matahari langsung.
Diameter palang juga memainkan peranan penting. Walaupun tali panjang sangat panjang, bahagiannya hendaklah berukuran 4x4, 6x6 atau 3x5 cm.Ini tidak akan mempengaruhi berat struktur, namun kebolehpercayaan tangga akan terjamin sepenuhnya. Mengenai dimensi dan jenis kayu yang tepat, masuk akal untuk membicarakannya hanya jika dimensi struktur masa depan diketahui.
Stepladder buatan sendiri: beberapa perkataan mengenai aksesori
Dengan membuat struktur itu sendiri, anda boleh memperbaikinya dengan menambahkan elemen individu. Sebagai contoh, jarum mengait logam direka untuk memberikan langkah pemasangan yang lebih dipercayai.
Mereka terletak di bawah tangga di lubang khas dan dilekatkan dengan mur dan selak. Panjang unsur-unsur ini secara langsung bergantung pada ukuran tapak (lebar tangga) dan tahap ketebalan tali. Lebih-lebih lagi, diameternya tidak boleh kurang dari 8 mm. Jika tidak, mereka akan membengkokkan di bawah berat beban. Terima kasih kepada jari-jari jari bahawa tekanan yang dibenarkan meningkat, yang mana tangga tangga kayu dapat bertahan di masa depan.
Tali nilon atau rantai besi digunakan untuk menyambungkan penyokong dan bahagian utama di kedua-dua belah pihak, sekaligus menghalang mereka bergerak.
Melindungi penutup lantai dari calar dan mencegah tergelincir adalah tugas utama yang disebut "kasut". Mereka diperbuat daripada getah, dan idealnya mestilah keras, kerana muncung lembut mempunyai jangka hayat yang pendek. Selain itu, reka bentuknya boleh dilengkapi dengan cangkuk baldi dan aksesori alat lain. Semuanya hanya bergantung pada keperluan pengguna.
Dimensi anak tangga: rahsia pengiraan yang betul
Terlepas dari apa sebenarnya yang diputuskan untuk dirancang, baik tangga penuh atau tangga dengan tangan anda sendiri, lukisan dimensi adalah syarat terpenting untuk memulakan kerja.
Bercakap tentang ketinggian tangga masa depan, seseorang tidak boleh melupakan apa sebenarnya yang dimaksudkan. Sebagai contoh, untuk kegunaan rumah tangga, panjang linier dianggap optimum dalam jarak 1.5-1.7 m. Dengan mengambil kira ketinggian kebanyakan tempat tinggal, dan juga ketinggian rata-rata orang dewasa. Ini cukup untuk mencapai siling, berada di tangga atas.
Sekiranya tangga lipat dibuat untuk digunakan di bilik-bilik besar, ketika mengira ketinggian struktur, perlu dipertimbangkan sama ada seseorang tidak hanya dapat mencapai rak atas, tetapi juga meletakkan sesuatu di atasnya.
Catatan! Ketika melakukan kerja di plot kebun, anak tangga kayu 3 langkah akan menjadi pilihan terbaik. Agak stabil, reka bentuk ini akan memberi peluang untuk mengumpulkan hadiah alam dengan mudah dari kebanyakan jenis pokok berbuah.
Ukuran tapak diambil berdasarkan ukuran kasut ke-45. Oleh kerana anak tangga dimaksudkan untuk kerja yang selesa dan selamat pada ketinggian, lebar langkah harus sekurang-kurangnya 30 cm. Dan jika reka bentuk produk menyediakan platform atas, penunjuk ini dapat ditingkatkan hingga 45 cm. papan boleh diaplikasikan dengan palang.
Bagi bilangan langkah, penunjuk ini harus ditentukan secara bebas. Selalunya jarak antara tangga dibuat dalam jarak 20-30 cm. Dalam kes ini, ketinggian keseluruhan struktur, dan juga cerunnya, harus dipertimbangkan. Sebagai peraturan, proses pengiraan tidak memperoleh bilangan langkah genap. Penyelesaian yang optimum dalam kes ini adalah untuk mengurangkan selang waktu antara laman web yang berfungsi dan yang terakhir. Dengan mempertimbangkan semua nuansa ini, tidak akan ada kesulitan dengan penambahan.
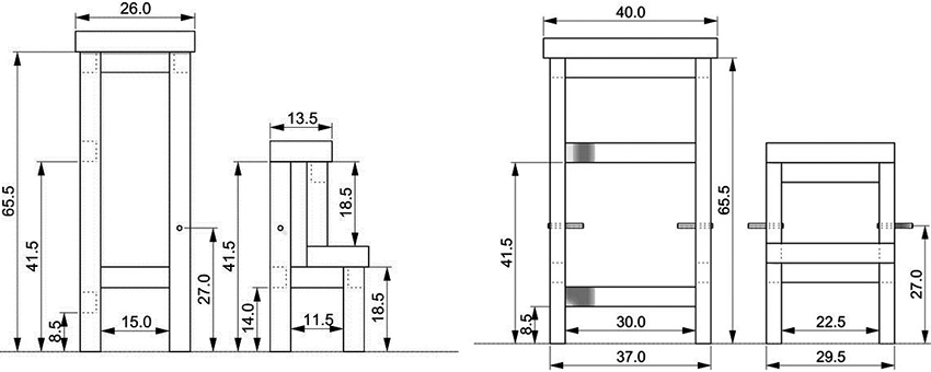
Kriteria penting lain dalam proses mengira ukuran produk masa depan adalah panjang langkahnya.Terlepas dari jumlah tangga tangga kayu (2, 4, 6 atau 8), penunjuk ini berubah ke arah penurunan ketinggian struktur. Oleh kerana produk sedemikian dipasang dalam bentuk piramid dengan bahagian atas terpotong, panjang langkah yang disyorkan adalah dari 55 hingga 35 cm - untuk langkan bawah dan atas, masing-masing. Ini cukup untuk memberi keselesaan semasa pendakian dan turun.
Terima kasih kepada cadangan di atas, anda dapat mengira dimensi struktur dengan mudah dan memahami teknologi pembuatannya, tanpa mengira tahap kerumitan gambar tangga yang diperbuat daripada kayu dengan tangan anda sendiri.
Tangga kayu kayu DIY: panduan terperinci
Bercakap tentang cara membuat tangga dengan tangan anda sendiri dari kayu, perlu diperhatikan bahawa pertama-tama anda perlu membuat lukisan produk masa depan. Adalah perlu untuk membayangkan dengan jelas bagaimana struktur akan kelihatan, untuk menentukan konfigurasi dan parameter asasnya. Dalam proses mengerjakan lukisan, anda juga perlu memikirkan jenis pengikat dan membentuk senarai bahan yang diperlukan untuk merancang tangga.
Membuat tangga logam dengan tangan anda sendiri adalah tugas yang agak sukar. Ini memerlukan banyak alat khas, serta kemahiran bekerja dengan produk logam. Itulah sebabnya struktur kayu sangat popular.
Untuk tali busur kayu tangga untuk rumah, balok sering digunakan berukuran kira-kira 5x5 cm, dan untuk tangga - papan selebar hingga 4 cm. Mereka mesti dipelihara sesuai dengan ketinggian struktur. Untuk memastikan kestabilan tangga, hujung balok bawah harus dipotong pada kira-kira 30 °.
Setelah balok dari dimensi yang diperlukan telah dipotong, proses membuat langkah dapat dimulakan. Panjang tangga bawah mestilah kira-kira 65 cm, yang lebih tinggi - tidak lebih dari 35 cm. Anda harus menyesuaikan dimensi yang sudah dalam proses pembinaan tangga. Setelah menyiapkan langkah dengan ukuran yang diperlukan, disarankan untuk menghitungnya di bahagian belakang untuk mengelakkan kekeliruan.
Penting! Untuk memberikan kestabilan pada produk, ia harus dibuat sedemikian rupa sehingga bahagian bawahnya lebih lebar daripada bahagian atas.
Sekiranya reka bentuk produk menyediakan platform tambahan, ia harus dibuat dari bahan yang sama dengan langkah-langkahnya. Bahagian kedua tangga, yang merupakan sokongan, dipasang mengikut prinsip yang sama. Satu-satunya perbezaan adalah bahawa langkah-langkah, untuk meningkatkan kekuatan, diganti dengan palang, yang dipaku pada arah melintang atau menyerong.
Perkara utama bahagian yang paling menarik dalam proses pembuatan
Semasa membuat tangga kayu dengan tangan anda sendiri, bolt digunakan untuk mencapai sambungan semua elemen yang boleh dipercayai, engsel khas digunakan untuk memberi mobiliti ke bahagian produk, dan pembatas atau spacer untuk memperbaiki kedudukan, yang menghalang kaki daripada meluncur di permukaan.
Bagaimana membuat tangga sendiri? Proses pemasangan harus dimulakan dengan penyambungan palang dan tali busur. Untuk ini, skru mengetuk sendiri diletakkan di hujungnya, di titik pemasangan tangga, dengan memasukkan ke dalam. Diperlukan untuk memproses semua sendi dengan gam kayu. Langkahnya hendaklah selari dengan lantai semasa tangga dilabuhkan. Sekiranya struktur dilengkapi dengan platform, perlu memasang sokongan tambahan.
Unsur-unsur bergerak tangga mesti dihubungkan dengan menggunakan engsel. Dalam kes ini, anda perlu menjaga kehadiran perhentian perjalanan, yang harus dipasang pada bahagian akhir.Elemen ini adalah kunci kepada kestabilan dan kebolehpercayaan produk.
Sekiranya langkah tangga melipat diikat dengan menggunakan gam, untuk meningkatkan tahap kekuatan struktur, tali busur ditarik bersama menggunakan batang logam. Mereka diletakkan di bawah tangga: di bawah tangga pertama, di tengah, dan juga di bawah tangga yang terletak di bahagian atas. Batang membantu memberi kekuatan pada tangga.
Untuk melindungi tangga dari proses pembusukan, agen antiseptik harus digunakan pada bahagian kayu, yang membentuk filem dengan kesan penghalau air. Di samping itu, anda boleh menutup produk dengan varnis tanpa menyentuh unsur struktur logam.

Sebaiknya sambungkan perincian tangga depan dengan menggunakan skru penoreh sendiri dan pemutar skru
Mengikuti cadangan di atas, anda boleh dengan mudah membuat tangga dengan tangan anda sendiri. Mengikuti arahan langkah demi langkah adalah kunci kejayaan.
Transformer tangga kerusi: arahan untuk pembinaan diri
Semasa merancang kerusi tangga pengubah dengan tangan anda sendiri, gambar adalah perkara pertama untuk menyiapkan diri. Bukan sahaja penampilan akhir produk bergantung pada seberapa betul pengiraannya, tetapi juga ciri-ciri terpentingnya: kemudahan, kekuatan dan kestabilan.
Oleh kerana kerusi seperti itu terutama merupakan perabot, ia harus menjadi tambahan yang baik untuk bahagian dalam. Di samping itu, najis seperti itu berfungsi sebagai struktur tangga miniatur. Ini akan membantu anda dengan mudah ke rak yang terletak di ketinggian, dan juga akan menjadi pembantu yang sangat berharga dalam proses penggantian mentol di kandil.
Ia menarik! Kerusi pengubah kayu berbeza dengan tangga untuk menggunakan tangga, anda perlu membalikkan produk, atau lebih tepatnya, meletakkan separuh daripadanya ke sebaliknya.

Kerusi tangga pengubah bukan hanya produk yang berfungsi, tetapi juga perincian dalaman yang menarik
Anda boleh merancang kerusi seperti itu dengan kemahiran mengendalikan kayu sekurang-kurangnya minimum. Ini disebabkan oleh fakta bahawa pemprosesan beberapa elemennya berlaku menggunakan mesin penggilingan atau gerudi dengan muncung tertentu. Dalam kes ini, adalah lebih penting untuk mengira petunjuk yang diperlukan supaya selepas pemasangan semuanya berubah menjadi satu milimeter.
Bangku kayu pengubah yang dirancang untuk dibuat dengan tangan anda sendiri boleh dicirikan oleh konfigurasi sewenang-wenangnya. Walau bagaimanapun, perlu mengira petunjuk berikut:
Artikel berkaitan:
Tangga langkah teleskopik: penyelesaian terbaik untuk kerja yang selesa dan selamat
Kawasan permohonan. Kelebihan produk. Jenis struktur. Ciri tangga teleskopik. Penarafan produk transformasi.
- panjang kaki sokongan;
- ketinggian belakang;
- bilangan langkah;
- dimensi langkah;
- saiz tempat duduk.
Semasa membentuk gambar kerusi tangga, perlu diingat bahawa tahap ketinggian produk semasa pengoperasiannya bergantung pada panjang kaki penyangga. Di samping itu, kaki yang lebih panjang dapat dipasang, yang diletakkan pada sudut untuk meningkatkan kestabilan struktur.
Adapun sandaran, ia harus diposisikan sehingga ketika produk berubah menjadi tangga, ia berada di tingkat lantai dengan penyangga dasar, pada sudut yang tepat ke permukaan.
Tempat duduk dibahagikan kepada beberapa bahagian untuk melipat struktur. Dalam kes ini, engsel piano adalah pilihan terbaik untuk menghubungkan bahagian tempat duduk. Jumlah langkah bergantung pada ketinggian akhir produk. Selalunya tidak ada lebih dari 5 daripadanya.
Agar tidak bimbang kaki kerusi boleh keluar dari alur, tidak tahan dengan beban, disarankan untuk menggunakan batang logam yang dilengkapi dengan kacang, dengan mengencangkan bahagian di sisi.
Kerusi tangga langkah diy: arahan langkah demi langkah
Pertama sekali, untuk menyelesaikan kerja, anda perlu menyimpan bahan tertentu. Senarai tersebut merangkumi item berikut:
- papan atau papan lapis setebal 2 cm;
- cat dan varnis;
- jigsaw dilengkapi dengan pemacu elektrik;
- gerudi;
- pemutar skru;
- palu;
- Gam PVA;
- kertas pasir;
- berus;
- skru mengetuk sendiri;
- gelung;
- tuala kayu.
Pertama sekali, dengan menggunakan corak kertas yang sudah siap dari papan atau papan lapis, anda harus memotong kekosongan di mana anda harus membuat lubang untuk dowel atau memotong alur, lekukan dan paku.
Penting! Permukaan mesti diampelas dan diresapi dengan sebatian yang mempunyai fungsi pelindung kelembapan.
Kemudian diperlukan untuk merekatkan paku pada dowel kayu, dan kemudian memalu mereka ke lubang yang disiapkan di tempat duduk, belakang dan tangga menggunakan palu. Ingin memberi kekuatan pada struktur, lebih baik menggunakan skru mengetuk sendiri. Anda perlu memasang gelung di alur yang telah dibuat sebelumnya dan memperbaikinya. Langkah seterusnya adalah mengamplas permukaan permukaan tangga, terutama di kawasan pemprosesan sekunder. Selepas itu, anda perlu menggunakan minyak dan cat noda dan varnis atau pengeringan.
Semasa membuat bangku tangga dengan tangan anda sendiri, perlu diingat bahawa elemen produk tidak boleh saling mengganggu semasa memandu. Dua langkah di bahagian bawah, yang menyerupai kerusi kompak, berputar dengan menggunakan pin. Semasa melipat, mereka diletakkan di dalam produk. Dalam kes ini, anda boleh memikirkan pengikat tambahan. Penyelesaian terbaik adalah kunci, yang berfungsi untuk memperbaiki struktur dalam bentuk yang belum dibuka.
Kekompakan produk memberikan sikap penuh perhatian terhadap pembuatan elemen dan terus ke pemasangan. Lukisan merangkumi maklumat mengenai dimensi yang mesti diperhatikan. Jika tidak, proses membongkar dan melipat struktur mungkin menjadi sukar atau bahkan mustahil.
Walaupun tangga, seperti struktur lipat yang lain, tidak menyusahkan semasa penyimpanan, mereka masih memerlukan sejumlah ruang. Kerusi yang boleh berfungsi sebagai tangga sangat padat sehingga mereka tidak memerlukan ruang tambahan sama sekali. Permintaan "bagaimana merancang kerusi pengubah dengan tangan anda sendiri" sering kali ditemui, yang mengesahkan populariti produk sedemikian.
Tangga kecil: nuansa reka bentuk
Bagi seseorang yang terbiasa merancang semuanya sendiri, maklumat mengenai spesifik pemasangan bahagian tangga sama sekali tidak menarik. Bagi tukang rumah yang kompeten, tidak sukar untuk menyusun kerusi tangga dengan menggunakan gambar siap dengan tangan anda sendiri. Tetapi beberapa aspek sangat memerlukan perhatian khusus.
Semasa menandakan tali pengikat, untuk menentukan titik pemasangan langkah, lokasi penggerudian juga harus ditunjukkan. Untuk mencapai kekuatan, dalam beberapa kes adalah wajar untuk memperkuat unsur-unsur dengan ujung logam. Sekiranya atas sebab tertentu ini tidak dapat dilakukan, anda boleh menggunakan skru yang kuat.
Berkenaan dengan pengancing yang disebut "kasut", anda harus tahu bahawa ia juga mempunyai keistimewaannya sendiri. Pertama sekali, potongan tali yang lebih rendah hendaklah sedikit bulat. Ini akan meningkatkan kemudahan memasang tangga di mana-mana tempat dan mengurangkan keausan tumit.
Di samping itu, perlu menentukan kaedah penetapan "kasut" dengan betul. Sekiranya RTI (produk teknikal getah) dicirikan oleh keanjalan yang mencukupi, skru mengetuk sendiri boleh digunakan. Apabila diketatkan dengan kuat, kepala mereka tenggelam ke dalam getah dan tidak meninggalkan calar di lantai.Namun, kerana dimensi pengikat seperti itu tidak signifikan, ia dapat memecahkan barang getah dengan cepat. Itulah sebabnya mesin basuh mesti diletakkan di bawah kepala.
Penting! Semasa menggunakan barang getah keras, anda hanya boleh menggunakan gam. Tidak akan berjaya memasukkan kepala ke dalam getah seperti itu, yang bermaksud bahawa lantai tidak akan tergores oleh kaki strukturnya, tetapi oleh pengikatnya sendiri.
Agar kaki anak tangga tidak tersebar semasa seseorang berada di atasnya, penghalang yang disebut harus dipasang pada kira-kira separuh ketinggian tali pengikat. Peranti ini sering diabaikan oleh pengrajin rumah, tetapi rantai yang dipasang atau cangkuk panjang sering menyelamatkan anda dari jatuh dari struktur mini.
Bagaimana membuat tangga dengan tangan anda sendiri sedemikian rupa sehingga memberi keselesaan semasa bekerja? Pakar mengesyorkan memasang beberapa cangkuk di dinding sisi tali pengikat. Pada mereka, anda boleh meletakkan baldi larutan atau cat, bekas untuk menuai atau beg dengan alat yang diperlukan.
Fakta bahawa struktur yang dilengkapi dengan peranti sedemikian akan jauh lebih senang digunakan adalah jelas. Di samping itu, sekurang-kurangnya satu bahagian paip plastik boleh dipasang di bahagian atas. Hasilnya adalah kes berfungsi di mana anda boleh meletakkan tukul, pemutar skru, atau aksesori lain yang sangat berguna untuk bekerja.
Tangga kayu: sentuhan akhir pembuatan
Sudah sebelum akhir kerja, masih ada sedikit yang tersisa - cukup lengkapkan platform atas dan pasangkan penghad khas yang tidak akan membenarkan tangga menempuh jarak yang lebih jauh daripada yang dirancang. Bagi pembinaan laman web ini, proses ini tidak akan menimbulkan kesukaran. Ia hanya perlu dipotong dari sebarang bahan, misalnya dari papan lapis. Di samping itu, ia mesti dipasang pada tahap atas struktur dengan kaedah bergerak. Untuk ini, engsel standard akan menjadi pilihan yang sangat baik.
Agar platform dapat menjalankan fungsi menahan secara bersamaan, kait khas harus dipasang di sisi yang berlawanan, dengan mana ia akan melekat pada tangga atas tangga kedua. Dengan memilih pembatas, anda boleh memilih tali asas yang menghubungkan tangga di bahagian bawah. Anda hanya perlu mengatur struktur pada kedudukan kerja dan mengikat bahagian bawah dengan kabel plastik.
Terlepas dari apa sebenarnya yang diputuskan untuk dirancang dengan tangan kita sendiri: bangku tangga atau struktur penuh yang diperbuat daripada kayu - semua elemen produk mesti menjalani proses penggilingan dan pemprosesan dengan penyelesaian khas.
Pertama sekali, dengan menggunakan kertas pasir, perlu mengisar semua bahagian yang akan disentuh oleh tangan manusia. Permukaan mesti memperoleh kelancaran sehingga semasa operasi tangga, kebarangkalian menggerakkan serpihan tidak termasuk sepenuhnya. Di samping itu, perlu membersihkan permukaan sekiranya mereka mengalami kerosakan pada acuan.
Cara memanjangkan jangka hayat produk siap: ciri perlindungan
Untuk menjadikan tinja kayu tangga tahan terhadap pengaruh luaran, produk harus diresapi dengan sebatian khas - noda. Alat ini bertindak sebagai antiseptik, mencegah reput, serta penampilan acuan di permukaan kayu.

Untuk melindungi kayu, anak tangga menggunakan noda, cat, minyak pengeringan, dan impregnasi antiseptik lain
Catatan! Pemprosesan elemen struktur dengan noda kayu harus dilakukan sehingga saat pemasangannya. Ini akan memungkinkan untuk memperpanjang jangka hayat produk dengan ketara.
Pertama sekali, kayu mesti dirawat dengan antiseptik impregnasi, yang akan menjadi perlindungan yang dapat dipercayai terhadap pembusukan dan membuat filem dengan kesan penghalau air.Penyelesaian optimum adalah varnishing. Dalam kes ini, lebih baik mencuba untuk tidak menyentuh titik lampiran. Mengenai cat, ia tidak akan selalu sesuai, tetapi hanya sesuai sebagai pilihan sekiranya berlaku kecemasan. Sekiranya anda melakukan semuanya dengan betul, anak tangga akan menggembirakan anda selama lebih dari satu tahun.
Berdasarkan cadangan di atas, kita dapat menyimpulkan bahawa sama sekali tidak sukar untuk menjadikan produk dalam keadaan berfungsi. Tepat mengikut prinsip yang sama, anda boleh merancang tangga dari paip profil mengikut gambar dengan tangan anda sendiri. Perbezaan antara ia dan tangga kayu hanya terletak pada bahan, serta alat yang diperlukan untuk kerja dan kaedah menghubungkan bahagian-bahagian struktur.
Oleh itu, tidak sukar untuk membuat tangga atau tangga dengan tangan anda sendiri, yang gambarnya sudah siap terlebih dahulu. Perkara utama adalah dengan mengambil kira semua nuansa operasi struktur selanjutnya dan memilih dimensi semua bahagian dengan betul. Di atas adalah kaedah membuat beberapa produk yang paling ringan dan berpatutan untuk reka bentuk. Dengan mendekati proses pemprosesan mereka secara kreatif, anda boleh mendapatkan reka bentuk yang asli dan sangat cantik.