Walaupun tidak ada rumah untuk kediaman tetap atau sementara di wilayah pondok musim panas, masih ada keperluan untuk membina jamban. Keperluan semula jadi manusia membuat diri mereka terasa, walaupun anda datang ke negara ini hanya beberapa jam untuk mengusahakan dan menyiram tanah. Penyelesaian yang rasional dalam kes ini adalah tandas sendiri. Arahan langkah demi langkah cukup mudah, dan pembinaannya sendiri tidak mahal.
Kandungan
- 1 Cara membuat tandas di negara ini dengan tangan anda sendiri: maklumat umum
- 2 Tandas tandas untuk plot peribadi
- 3 Almari tanpa kolam air: jenis utama dan ciri-cirinya
- 4 Tandas untuk diberikan dengan tangan anda sendiri. Arahan langkah demi langkah untuk membuat reka bentuk yang paling popular
- 5 Pembinaan tandas untuk kediaman musim panas: lukisan dengan dimensi untuk reka bentuk jenis "Birdhouse"
- 6 Berdasarkan gambar, kami membina tandas di negara ini dengan tangan kami sendiri, seperti "Shalash"
- 7 Cara membuat tandas di negara ini dengan tangan anda sendiri: gambar dan arahan langkah demi langkah untuk membuat tandas gambut
Cara membuat tandas di negara ini dengan tangan anda sendiri: maklumat umum
Walaupun nampaknya, pada pandangan pertama, keutamaan bangunan, reka bentuk tandas di pondok musim panas tergolong dalam kategori struktur asas. Pembinaannya harus dimulakan terlebih dahulu. Banyak yang akan bersetuju bahawa tanah di luar bandar dapat dilakukan dengan mudah tanpa pagar, rumah negara dan bangunan lain, tetapi jamban adalah bahagian yang tidak dapat dipisahkan dari keselesaan, tanpanya mustahil untuk mengendalikan laman web ini.
Catatan! Sudah tentu, tandas desa di jalan, dibuat dengan tangan anda sendiri, tidak akan menggantikan bilik mandi biasa, yang hanya menyediakan kemudahan minimum. Walau bagaimanapun, percutian musim panas adalah mustahil tanpa mereka, tidak mungkin bekerja sepenuhnya di laman web ini.
Terdapat sebilangan besar standard kebersihan dan kebersihan sesuai dengan pembinaan tersebut. Oleh itu, tidak perlu terlebih dahulu membiasakan diri dengan mereka sebelum memulakan kerja.
Piawaian kebersihan dan kebersihan untuk pembinaan tandas
Memasang tandas di kawasan pinggir bandar adalah perkara mudah, yang, dengan kajian yang tepat, tidak memerlukan penglibatan pakar. Walau bagaimanapun, pembinaan seperti itu masih disertai oleh beberapa keanehan.
Piawaian asas:
- Pertama sekali, perlu memastikan bahawa pembinaan struktur tidak akan menimbulkan kesulitan kepada jiran.
- Tempat pemasangan struktur dipilih dengan sangat berhati-hati. Tahap pembinaan ini mesti dilaksanakan dengan sepenuhnya mematuhi standard kebersihan untuk kawasan bilik mandi. Pelanggaran peraturan ini dapat menyebabkan pencemaran serius di daerah sekitarnya (tanah, air bawah tanah), yang akan dikenakan denda dari perkhidmatan kebersihan dan bahkan masalah kesihatan.
- Pada tahap pengembangan gambar, suatu metode harus dipikirkan sesuai dengan mana tong akan dikosongkan.
- Pilihan reka bentuk dibatasi oleh beberapa faktor. Salah satunya ialah cakrawala air di kawasan pinggir bandar. Sekiranya permukaan air sangat tinggi, bah mesti ditutup sepenuhnya.
Peraturan mudah ini akan membantu menghilangkan masalah dengan operasi selanjutnya.
Cara memilih dan membuat tandas di negara ini dengan tangan anda sendiri: foto dan jenis struktur
Di pondok musim panas, ada kemungkinan untuk membina pelbagai struktur. Terdapat banyak pilihan untuk dipilih, jadi anda harus dipandu oleh beberapa kriteria. Pilihan reka bentuk dapat dipengaruhi oleh:
- saiz belanjawan yang tersedia untuk pemaju;
- anggaran kekerapan bilik mandi;
- tahap ketinggian ufuk air;
- jumlah wang yang dirancang untuk diperuntukkan untuk penyelenggaraan tandas pada masa akan datang.
Catatan! Semua tandas luar dikelaskan berdasarkan satu kriteria - kaedah pembuangan sampah.
Tandas tandas untuk plot peribadi
Jamban bah adalah yang paling popular dan meluas. Dan tidak hanya di pondok musim panas, tetapi juga di halaman perkampungan.
Pembinaan struktur sedemikian dengan tangan anda sendiri, sebagai peraturan, tidak disertai dengan kesukaran, kerana sistem pembetung dalam hal ini digantikan oleh lubang yang dalam. Ia mengumpulkan sisa cecair, yang dibuang dengan penyejatan dan penyerapan secara beransur-ansur melalui tanah. Hanya kadang-kadang diperlukan untuk memanggil trak kumbahan untuk mengosongkan dan membersihkan bah sepenuhnya.
Kekerapan memanggil pembetung bergantung pada seberapa dalam lubang dan seberapa baik strukturnya dibuat. Prosedur pembuangan sampah sangat jarang berlaku. Dalam kebanyakan kes, masalah ini diselesaikan dengan mengisi lubang. Selepas itu, tangki pengumpulan sampah baru digali di dekatnya.
Bahagian tandas di atas boleh menjadi struktur yang diperbuat daripada pelbagai bahan:
- profil logam;
- papan;
- kepingan batu tulis;
- batu bata, dll.
Komponen yang paling penting dalam reka bentuk berkualiti tinggi adalah kebolehpercayaan dasar bingkai dan ketersediaan pengudaraan yang berkesan.
Ciri-ciri tandas kayu untuk kediaman musim panas dengan gambar tangan anda sendiri
Banyak pemilik rumah lebih mengutamakan struktur kayu. Pilihan ini disebabkan oleh fakta bahawa teknologi membina kerangka papan sangat sederhana dan tidak memerlukan kemahiran yang serius, dan harganya rendah.
Produk kayu dapat digayakan sebagai pondok dongeng atau rumah, berkat yang anda dapat memperoleh bukan hanya bangunan yang berfungsi, tetapi juga estetika. Sebagai bahan penamat untuk bingkai, anda boleh menggunakan lapisan bukan papan. Ini akan menjadikan bahagian tandas di bahagian atas kelihatan sangat menarik dan bergaya.
Catatan! Salah satu kelebihan produk kayu adalah pergerakannya. Sekiranya lubang yang diisi terkubur untuk menggali yang baru di tempat lain, tidak perlu membina semula rumah tersebut. Cukup sekadar memindahkan bingkai ke lokasi yang diinginkan.
Kekurangan struktur yang diperbuat daripada kayu
Semasa memilih bahan ini, jangan lupa tentang kekurangan kayu. Ia dipengaruhi oleh banyak faktor negatif yang mengurangkan jangka hayat bangunan. Faktor-faktor ini merangkumi:
- pengaruh cahaya matahari langsung (di bawah pengaruh mereka, keretakan kayu, runtuh dan cacat);
- hentaman sinaran ultraviolet di permukaan pokok membawa kepada kepupusannya;
- kelembapan, yang semestinya menyertai operasi tandas mana-mana, menyumbang kepada perubahan ubah bentuk bingkai;
- kulat dan jamur, akibat terkena kelembapan, tumbuh secara intensif di kayu, menyokong proses pembusukan, kelembapan dan bau yang tidak menyenangkan.
Kaedah khusus dalam bentuk impregnasi pelindung akan membantu mengelakkan kerosakan awal tandas di bawah pengaruh keadaan operasi yang negatif. Untuk meningkatkan jangka hayat papan atau bahan berasaskan kayu lain, anda harus mengecat permukaan produk dengan komposisi pewarna yang dimaksudkan untuk keadaan luar. Kayu itu dipraproses dengan primer.
Mereka yang menyukai keindahan kayu semula jadi boleh dinasihatkan untuk menggunakan varnis lutsinar sebagai bahan pelindung. Ia akan mengekalkan corak semula jadi pokok.
Tandas mandiri di negara ini: gambar dan ciri struktur dari profil logam
Jamban, yang diperbuat daripada profil logam, menawarkan beberapa pilihan pemasangan. Dalam kes pertama, bingkai kayu dijadikan asas untuk menggambar tandas untuk kediaman musim panas. Pilihan lain melibatkan penciptaan pangkalan dari paip berbentuk logam, dihubungkan dengan pengelasan. Untuk melakukan ini, adalah mustahak untuk mempunyai mesin kimpalan dengan anda dan mempunyai kemahiran untuk mengatasinya.
Kemudian asas kayu atau logam dilapisi dengan kepingan profil. Rivet atau skru penoreh diri boleh digunakan sebagai pengikat. Anda boleh membeli mesin basuh pelindung khas untuk skru penoreh sendiri, yang akan menghalang kelembapan memasuki pengikat, sehingga melindunginya dari kerosakan karat.
Walaupun pembinaan struktur sedemikian tidak memerlukan banyak masa dan usaha, tandas profil logam mempunyai satu kekurangan yang ketara. Pada musim panas, strukturnya sangat panas. Oleh itu, disyorkan untuk memasang produk logam di tempat yang sentiasa berada di tempat teduh.
Nasihat berguna! Gunakan kepingan busa polistirena untuk pelapisan dalaman. Mereka akan memastikan dalamannya sejuk.
Lembaran logam yang dilapisi dilapisi dengan lapisan pelindung khas pada peringkat pengeluaran. Terima kasih kepada lapisan ini, bahan tersebut dilindungi dari kelembapan, jadi kepingan profil dapat digunakan dengan selamat untuk pemasangan struktur yang diletakkan di luar rumah.Kelebihan tandas profil yang paling baik adalah kelajuan pemasangannya.
Lukisan tandas bata buat rumah negara: ciri reka bentuk
Pembinaan almari bata mempunyai kesukaran tersendiri. Pertama sekali, ini disebabkan oleh fakta bahawa jika perlu untuk memindahkan struktur, ini tidak akan berfungsi. Oleh itu, disarankan untuk mempelajari pelbagai projek tandas di negara ini dengan tangan, gambar dan ciri laman web anda sendiri. Anda juga harus meramalkan kaedah yang sesuai dengan mana kolam air akan dibersihkan. Di samping itu, bangunan bata akan memerlukan pemasangan lantai konkrit.
Sebenarnya, tandas bata adalah struktur modal yang tidak memerlukan kerja pembaikan selama beberapa dekad. Kos pembinaannya jauh lebih tinggi daripada ketika menggunakan kayu atau kepingan berprofil. Tetapi anda boleh menjimatkan wang sekiranya bata kekal setelah pembinaan garaj atau rumah.
Catatan! Pembinaan tandas di pondok musim panas dari bata yang sama dari mana rumah dan garaj dibina akan memungkinkan untuk mencapai kesatuan di bahagian luar halaman. Oleh itu, reka bentuk laman web akan dalam gaya yang sama, yang kelihatan sangat mengagumkan dan harmoni.
Oleh kerana berat struktur bata siap sangat besar, asas besar dan kukuh harus diletakkan di bawahnya, seperti yang disebutkan sebelumnya. Profesional menasihatkan memilih asas jenis pita untuk tujuan ini. Ia mempunyai banyak faedah:
- kerja tanah minimum;
- penggunaan serbuk simen yang sangat kecil untuk mengisi;
- keselamatan tinggi;
- kebolehpercayaan (disediakan di hampir semua jenis tanah).
Untuk produk yang mempunyai struktur lebih ringan dari bahan lain, asas kolumnar dapat digunakan.
Almari tanpa kolam air: jenis utama dan ciri-cirinya
Kolam air dianggap sebagai kaedah termudah dan paling murah untuk menyelesaikan masalah dengan tandas di plot peribadi. Tetapi dalam kes ini, terdapat batasan berkenaan dengan struktur jenis ini. Pemasangan jamban pit tertakluk kepada syarat berikut:
- tanah di kawasan pinggir bandar terdiri daripada tanah kapur atau serpih;
- air bawah tanah mengalir terlalu dekat ke permukaan;
- tandas dijangka digunakan oleh sebilangan besar orang.
Semua faktor ini tidak memungkinkan mengatur tandas berdasarkan kolam air di wilayah pinggir bandar. Jalan keluar dari situasi ini adalah pembinaan jamban dengan jenis yang sama sekali berbeza, berdasarkan prinsip tindakan yang berbeza.
Jenis bilik mandi tanpa lubang saliran:
- almari backlash;
- almari serbuk;
- almari kering atau tandas kimia.
Setiap struktur mempunyai ciri tersendiri: peranti, teknologi pembinaan, keperluan operasi.
Almari backlash: gambar tandas untuk kediaman musim panas dan ciri-cirinya
Almari backlash adalah sejenis pembinaan yang diperbaiki berdasarkan tangki air. Ia berbeza dengan versi standard hanya kerana tangki simpanan sisa ditutup sepenuhnya.
Catatan! Peranti alas belakang membolehkan pemasangan mangkuk tandas di dalam bilik yang dipanaskan, iaitu di rumah, dan tangki simpanan boleh terletak pada jarak dari itu. Selalunya ia diletakkan di sebelah dinding tempat bilik mandi dipasang.
Bahagian penghubung antara pemacu dan mangkuk tandas paip menonjol. Ia boleh menegak atau miring. Elemen ini dirancang untuk memasukkan sisa ke dalam pemacu, dan dalam mod graviti.
Kerana keunikan reka bentuknya, almari backlash memerlukan servis pembetung, yang secara berkala dapat mengosongkan tangki simpanan. Tetapi tidak seperti tandas konvensional berdasarkan kolam air, pilihan ini lebih bersih dan senang digunakan.
Untuk memudahkan kerja pembetung, lubang digali semasa mengatur almari backlash. Bentuknya mestilah memanjang. Ini akan membolehkan pemasangan selang trak penyedut.
Reka bentuknya juga mempunyai kekurangan. Contohnya, semasa musim sejuk, prosedur pembersihan tidak boleh dilakukan. Banyak pemilik menyelesaikan masalah ini dengan memasang sistem khas untuk memanaskan pemacu.
Ciri-ciri almari serbuk di pondok musim panas mereka
Jamban jenis ini dicirikan oleh bekas pengumpulan kecil. Kapasiti simpanan maksimum di bawah kerusi ialah 20 liter.
Memasang almari serbuk berguna jika air bawah tanah menghampiri permukaan. Keadaan ini boleh menjadi masalah untuk dikendalikan. pilihan tandas lain, tetapi almari serbuk dapat berfungsi sepenuhnya walaupun dalam keadaan seperti itu.
Kelebihan reka bentuk termasuk tahap minimum kos untuk susunannya. Pada masa yang sama, skema untuk menukar sampah menjadi baja organik mesra alam sangat mudah dan juga murah.
Nama tandas ini diberikan kerana prinsip operasinya. Faktanya adalah bahawa sampah di tangki simpanan, sebagaimana mestinya, "serbuk" dengan komposisi kering. Untuk tertidur, campuran gambut-habuk papan atau gambut biasanya digunakan. Ini menghilangkan kemungkinan proses pembusukan, itulah sebabnya tidak ada bau yang tidak menyenangkan di tandas.
Semasa bekas terkumpul, semua sampah yang ada di dalamnya dan ditutup dengan gambut dipindahkan ke bekas yang telah disediakan sebelumnya lubang kompos... Di sini mereka akan dikompos.

Lukisan almari serbuk: 1 - lubang pengudaraan 25x25 cm, 2 - penutup tempat duduk tandas, 3 - tempat duduk tandas, 4 - tangki simpanan, 5 - pintu, 6 - penyokong bata, 7 - bantal tanah liat, 8 - transom kaca
Catatan! Pembinaan almari serbuk boleh dibuat pegun dan mudah alih. Dalam kes kedua, tandas membolehkan anda membawa struktur bersaiz kecil ke dalam rumah semasa hujan atau pada waktu malam.
Apakah reka bentuk almari kering
Almari kering sangat popular sekarang ini di kalangan penduduk musim panas. Reka bentuknya terdiri daripada tandas kompak, yang dicirikan oleh sistem penggunaan operasi yang mudah. Prinsip pengoperasian almari kering serupa dengan pekerjaan yang dilakukan oleh almari serbuk. Proses pemprosesan, serta penguraian sisa dilakukan dengan menggunakan campuran gambut.
Beberapa model membenarkan penggunaan produk biologi untuk pemprosesan sisa. Bahan ini boleh dalam bentuk cecair atau kering. Mereka mengandungi kultur bakteria khas.
Dalam model dengan prinsip tindakan kimia, ubat-ubatan yang berasal dari bahan kimia bertindak sebagai bahan aktif yang meningkatkan penguraian sisa. Apabila memilih pilihan yang sesuai, jangan lupa tentang keselamatan. Ubat yang berkesan dan selamat adalah mahal.
Sebilangan pemilik pondok musim panas, kerana tidak mengetahui, menggunakan bahan seperti formaldehid, peluntur dan lain-lain untuk pembuangan sampah. Penggunaannya dilarang sama sekali, kerana komposisi bahan ini sangat toksik.
Harga purata untuk ubat yang layak:
Nama ubat | Bentuk pelepasan (kelantangan) | Kos, rubel |
Bio Kegemaran | cecair (950 g) | 700 |
TRIT Mikrozim SEPTI | cecair (250 g) | 700 |
Atmosbio | serbuk (300 g) | 600 |
Saneks | serbuk (100 g) | 230 |
Tamir | cecair (350 g) | 200 |
Tandas untuk diberikan dengan tangan anda sendiri.Arahan langkah demi langkah untuk membuat reka bentuk yang paling popular
Memasang tandas di luar memerlukan pematuhan dengan syarat dan peraturan tertentu. Keperluan yang paling penting untuk pemasangan struktur jenis apa pun adalah ketiadaan sentuhan langsung sampah di tangki simpanan dengan air bawah tanah. Interaksi komponen ini harus diminimumkan.
Penting! Paras air bawah tanah adalah perkara pertama yang dinyatakan sebelum pembinaan. Pembinaan tandas hanya dapat dilakukan sekiranya angka ini lebih dari 2.5 m di bawah tanah.
Tandas di negara ini: bagaimana membina struktur sendiri dan memasangnya di tempat yang betul
Sebelum anda mula membuat gambar dan merancang struktur itu sendiri, anda harus menjaga pilihan tempat yang tepat untuk penempatannya.
Keadaan berikut boleh mempengaruhi pemasangan bangunan:
- Jarak minimum antara tandas dan sumber air terdekat adalah 30 m. Lebih baik jika air terletak pada jarak yang lebih jauh. Dalam beberapa kes, lokasi geologi takungan mungkin terletak lebih rendah daripada tahap pembinaan tandas. Maka struktur tersebut perlu dipindahkan ke zon lain. Sebagai jalan keluar dari keadaan ini, anda boleh menggerakkan tandas lebih rendah daripada sumber air yang terletak.
- Di wilayah pondok musim panas mungkin ada ruang bawah tanah atau bilik bawah tanah. Dengan jenis penempatan, lubang ini boleh berdekatan dengan almari, jadi struktur tandas harus terletak pada jarak sekurang-kurangnya 15 m dari bangunan tersebut.
- Dari bangunan kediaman dan bangunan lain di lokasi, indentasi sekurang-kurangnya 8 m dilakukan.
- Tempat di mana haiwan tinggal atau menetap hendaklah terletak pada jarak sekurang-kurangnya 5 m dari tandas.
- Ruang hijau hendaklah ditanam pada jarak 1 m.
- Jarak sekurang-kurangnya 1 m mesti ditinggalkan ke pagar yang memisahkan wilayah berdekatan, yang mungkin milik jiran.
Catatan! Arah angin juga sangat penting. Berhati-hatilah untuk tidak mengganggu jiran dengan bau yang tidak menyenangkan.
Memilih bilik tandas di kawasan pinggir bandar
Pilihan reka bentuk moden memberikan banyak variasi. Penduduk musim panas boleh membina bahagian struktur di atas tanah secara bebas atau membeli produk yang sudah siap. Banyak syarikat membenarkan membeli tandas kayu murah untuk kotej musim panas.
Harga purata untuk jenis struktur kayu siap biasa:
Model, ciri | Dimensi (lebar / panjang / tinggi), mm | Harga, rubel |
DT-4 | 1100/1100/2700 | dari 15000 |
DT-1 | 1000/1000/2500 | dari 12000 |
Kayu | 1000/1000/2300 | 13000 |
DT-3 (taman) | 1100/1000/2800 | dari 17000 |
DT-4 (dengan tingkap dan bumbung) | 1100/1100/2700 | dari tahun 18000 |
Dachny | 1100/1100/2700 | 18000 |
Kayu | 1000/1000/2500 | 12000 |
Besar (dengan tiruan bar) | 2500/2000/2300 | 30000 |
Blok utiliti tandas | 3000/2000/2300 | 35000 |
Segi empat tepat | 1000/1200/2100 | 15500 |
Euro | 1000/1000/2300 | 8700 |
Kabin, siap dan juga yang boleh anda bina sendiri, terdiri daripada beberapa jenis:
- rumah burung;
- pondok;
- pondok;
- rumah.
Semuanya mempunyai ciri, ukuran dan struktur masing-masing.
Artikel berkaitan:
Pembinaan tandas DIY di negara ini, gambar, dimensi. Apakah jenis tandas mandiri. Memilih tempat terbaik untuk membina tandas di kawasan pinggir bandar.
Pembinaan tandas untuk kediaman musim panas: lukisan dengan dimensi untuk reka bentuk jenis "Birdhouse"
Struktur "Birdhouse" terdiri dari kayu, yang dapat dilapisi dengan jenis bahan lain. Pembinaan atap tunggal atau gable dibenarkan. Jenis almari ini dipasang sebagai struktur overhead di atas cesspool.
Projek khas "Birdhouse" dengan parameter dimensi:
Unsur struktur | Saiz, m |
Dinding belakang (tinggi) | 2 |
Lebar | 1 |
Dinding depan (tinggi) | 2,3 |
Kawasan pangkalan | 1x1 |
Nasihat berguna! Sekiranya anda tidak cukup kuat dalam membuat gambar, gunakan pilihan siap pakai. Berdasarkannya, anda boleh membuat projek peribadi.
Semasa memasang struktur tandas kayu, perlu untuk mengawal penempatan permukaan secara menegak dan mendatar. Untuk tujuan ini, disyorkan untuk menggunakan tingkat bangunan.

Lukisan tandas "Birdhouse": 1 - tali, 2 - tiang, 3 - pintu, 4 - pemegang, 5 - pintu silang anggota, 6 - dinding depan, 7 - kasau atap, 8 - atap, 9 - riser pengudaraan, 10 - deflektor, 11 - dinding sisi, penutup 12 - tangki air, penyokong bata 13, dinding belakang 14 -
Bahan untuk pembinaan "Birdhouse"
Untuk melaksanakan kerja, jaga ketersediaan:
- bahan bumbung - dalam jumlah 2 m²;
- curb konkrit (2 pcs., panjang - 2 m) atau blok simen pasir (4 pcs.);
- sekatan pintu (2000x900 mm);
- pasir;
- lapisan (40 pcs., 87x3000 mm);
- papan bermata (4 pcs., 50x100x6000 mm; 3 pcs., 32x90x6000 mm);
- lembaran profil yang diperbuat daripada keluli tergalvani (2000x1520x0.4 mm);
- bar kayu (1 pc, 50x50x600);
- aksesori untuk pintu (selak, engsel, pemegang);
- pengikat (skru, paku);
- bahan untuk lapisan atas (komposisi cat atau cat).
Untuk melindungi struktur, anda harus membeli busa. Selepas akhir pembinaan, bingkai dilapisi dari dalamnya. Anda boleh membuat hiasan dalaman dengan bahan yang cantik (pilihan).
Cara membina tandas di negara ini dengan tangan anda sendiri: pembinaan "Birdhouse" tahap demi tahap
Arahan untuk pembinaan Birdhouse (panduan langkah demi langkah):
- penganjuran pusat tangkapan air. Ukuran minimum tangki ialah 1x1x2 m. Bantal yang diperbuat daripada runtuhan atau batu bata yang pecah dibuat di bahagian bawah;
Penting! Berdasarkan dimensi kolam air, dimensi bahagian atas tanah dipilih. Setuju pada tahap ini pada peringkat perancangan.
- pembinaan yayasan. Untuk ini, curb konkrit dipasang supaya tepi lubang terletak pada jarak tidak lebih dari 0,2 m darinya. Curb akan memainkan peranan pertindihan. Proses memasang curb melibatkan penggalian sehingga dasar konkrit naik di atas permukaan tanah tidak lebih dari 0,1-0,15 m. Sekiranya blok pasir-simen digunakan, mereka harus digali di sudut. Keseluruhan bingkai akan dipasang pada mereka pada masa akan datang;
- pemasangan bahan bumbung. Bahan diletakkan di atas pangkalan dalam 3-4 lapisan sebagai penebat dari kelembapan;
- pembinaan bahagian atas tanah (bingkai yang diperbuat daripada kayu), penamatnya. Papan kayu atau lapisan boleh digunakan sebagai bahan pelapis bingkai. Lantai diperbuat daripada papan tebal. Ketebalan minimum untuk penutup lantai adalah 4 cm. Dianjurkan untuk menggunakan spesies kayu dengan ciri kekuatan yang meningkat. Spesies ini termasuk larch, beech, oak, dll.
Kerja akhir penciptaan "Birdhouse"
Karya akhir merangkumi peringkat berikut:
- membentuk lubang di lantai. Dalam kes ini, bentuk slot boleh menjadi sewenang-wenang (bulat, berbentuk berlian, bujur, dalam bentuk jantung), yang utama ialah diameternya sekurang-kurangnya 30 cm;
- pemasangan struktur pintu. Untuk kemudahan, slot kecil dalam bentuk tingkap dapat dibuat di daun pintu sehingga sinar matahari dapat meresap ke dalam bingkai. Tingkap ini boleh dibiarkan bebas atau berkaca;
- susunan bumbung. Bumbung Birdhouse boleh ditutup dengan pelbagai jenis bahan. Lembaran simen asbestos, penutup atap, kepingan berprofil yang diperbuat daripada keluli sangat sesuai untuk tujuan ini;
- memohon lapisan penamat. Permukaan produk harus dirawat dengan varnis atau cat. Adalah disyorkan untuk menggunakan pewarna minyak.
Semasa mengatur tandas, jangan lupa tentang organisasi pengudaraan.Malah pilihan paling mudah akan mencukupi. Sistem ini direka untuk mengeluarkan udara dari lubang sampah ke luar. Paip boleh digunakan sebagai bahan untuk pembuatan pengudaraan. Diameter minimum produk ialah 10 cm.
Untuk memasang paip di catwalk tandas, dan juga di bumbungnya, dibuat slot dengan diameter yang sesuai. Paip mesti naik sekurang-kurangnya 0.2 m di atas bumbung.
Catatan! Semua kawasan di mana elemen ini melintasi bingkai kayu ditutup dengan teliti. Deflektor dipasang di hujung sistem. Dia akan dapat membentuk tahap tujahan yang diperlukan untuk pengekstrakan udara.
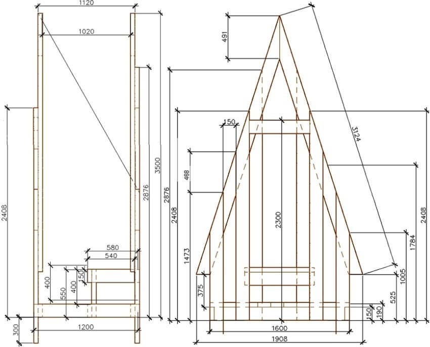
Berdasarkan gambar, kami membina tandas di negara ini dengan tangan kami sendiri, seperti "Shalash"
Struktur di atas tanah "Shalash" mempunyai struktur yang lebih kompleks daripada struktur "Birdhouse". Tetapi semua kerja yang dihabiskan untuk pembinaannya membenarkan dirinya sendiri, kerana pada akhirnya anda mendapat penampilan tandas yang menakjubkan.
Ramai penduduk musim panas memperagakan reka bentuk sedemikian rupa sehingga kelihatan seperti rumah peri. Berkat ini, pilihan reka bentuk yang sangat menarik boleh didapati di laman web. Untuk inspirasi, anda boleh menggunakan gambar tandas untuk kediaman musim panas dengan tangan anda sendiri, di mana terdapat banyak di Internet.
Pembinaan objek seperti "Shalash" dimulakan dengan pembentukan sebuah cesspool. Parameter dimensi dapat diambil dari projek biasa sebelumnya. Di kawasan di mana sudut lubang terletak, ceruk harus dibuat. Blok konkrit akan diletakkan di dalamnya. Sangat penting untuk menjaga geometri yang tepat. Untuk membuat struktur itu berbentuk segi empat, perlu mengukur jarak antara blok konkrit. Ingatlah untuk memeriksa asas secara menyerong. Mereka juga perlu diukur dan harus sama.
Nasihat berguna! Rel rata boleh digunakan untuk mengawal mendatar. Ia sesuai dengan dua blok yang berdekatan antara satu sama lain. Di atasnya adalah tingkat bangunan. Ketinggian maksimum asas konkrit ialah 0.15 m. Pada ketinggian ini, elemen ini mesti naik di atas tanah.
Cara membina tandas di negara ini dengan tangan anda sendiri: gambar dan arahan langkah demi langkah untuk pembinaan "Shalasha"
Menurut arahan mudah ini, anda boleh memasang tandas dengan mudah berdasarkan gambar yang telah disediakan.
Pembinaan bertahap:
- pemasangan asas pada bahan penebat terhadap kelembapan. Cukup untuk menggunakan bahan bumbung, yang dirancang hanya untuk tujuan ini. Bahan dilapisi dalam beberapa lapisan. 2-3 lapisan akan mencukupi;
- pemasangan bahagian bawah bingkai. Untuk ini, bar dengan bahagian 50x50 mm digunakan. Ukuran pangkal adalah 1x1 m. Pemalu dilakukan dengan menggunakan papan tepi. Formwork pelik ini ditutup dengan papan lantai;
- pembuatan lubang teknologi. Slot bentuk apa pun yang anda suka dibuat di bahagian bawah. Sekatan ukuran yang sama berlaku di sini seperti dalam kasus Birdhouse;
- pemprosesan asas kayu dengan agen antiseptik. Anda perlu menggunakan antiseptik ke permukaan pangkal dari semua sisi. Semasa melakukan tandas dengan tangan anda sendiri, ikuti arahan untuk memastikan bahawa semua tindakan yang anda lakukan adalah betul;
- pemasangan bahagian belakang dan depan bingkai. Untuk menyelesaikan langkah ini, gunakan gambar yang anda ada, atau lakarkan. Malah gambar yang diambil dari rangkaian akan berlaku sekiranya anda cukup mahir dalam ukuran dan mempunyai kemahiran mengendalikan kayu.
Tahap akhir pembinaan "Shalash"
Pada peringkat akhir pembinaan, semua bahagian dipasang dan rangka dimuktamadkan. Kerja selanjutnya adalah seperti berikut:
- menyelesaikan bahagian "Shalasha".Dinding belakang dan depan dari dalam dilengkapkan dengan papan klap;
- pemasangan dinding depan dan belakang. Bahagian-bahagian ini dipasang di lantai dan dipegang bersama dengan sisa-sisa sisa dari bekerja dengan papan;
- pemasangan pelarik kayu dari papan. Selepas pembuatan elemen ini, sarungnya dilakukan;
- organisasi bumbung. Dengan bantuan papan, panjangnya mestilah sekurang-kurangnya 1.8 m, bumbung untuk "Shalash" dibuat. Untuk melakukan ini, bahan tersebut mesti diletakkan di bahagian belakang dan depan struktur dan memperbaikinya dengan pengikat pada bilah kayu. Hasilnya adalah bumbung;
- peletakan bahan bumbung;
Nasihat berguna! Dalam kes ini, penamatnya boleh jadi sama sekali. Walau bagaimanapun, penting untuk mengekalkan keseluruhan gaya pembinaan. Sekiranya anda membuat rumah yang hebat, tidak digalakkan menggunakan jubin logam atau papan beralun. Pilih bahan yang sesuai dengan reka bentuk anda. Dalam keadaan melampau, anda boleh menggunakan bahan yang sama yang meliputi bumbung bangunan kediaman di laman web ini atau bumbung bangunan di sekitarnya (garaj, gazebo, gudang).
- pemasangan rabung (elemen bumbung). Bahagian atas bumbung boleh dihiasi dengan patung yang terbuat dari kayu. Ini akan membolehkan anda membuat gaya reka bentuk yang konsisten;
- pemasangan struktur pintu. Sebelum memasang pintu, betulkan pemegang dan pasangkannya terlebih dahulu. Dari luar, anda boleh memaku kincir angin yang mempunyai bentuk sewenang-wenangnya;
- mengaplikasikan penamat akhir. Kayu hendaklah dilapisi dengan pernis atau cat berasaskan minyak.
Tandas versi ini di halaman belakang membolehkan khayalan berkeliaran dan tidak membataskan reka bentuk. Gunakan banyak bahan foto dan video untuk mencari idea menarik untuk rumah dongeng anda.
Cara membuat tandas di negara ini dengan tangan anda sendiri: gambar dan arahan langkah demi langkah untuk membuat tandas gambut
Tandas gambut tidak kurang popular di kalangan penduduk musim panas, kerana mereka dapat menawarkan banyak kelebihan kepada banyak pemilik kawasan pinggir bandar. Kaedah menaburkan sisa dengan substrat gambut dibenarkan sekaligus dengan beberapa kelebihan:
- Gambut mempunyai sifat penyerapan bau yang baik. Dengan itu, anda dapat melupakan saat-saat tidak menyenangkan yang berkaitan dengan operasi tandas di jalan.
- Oleh kerana tahap hygroscopicity tinggi, substrat menyerap kelembapan dengan baik, kerana frekuensi membersihkan pemacu dapat dikurangkan. Dengan kata lain, tandas boleh dikendalikan untuk jangka masa yang lebih lama tanpa perlu mengosongkan tangki simpanan.
- Campuran yang diproses dapat digunakan untuk menyuburkan kawasan ini, kerana gambut, bahkan dalam bentuk tulennya, mengandungi bakteria dalam komposisinya, yang menyumbang kepada transformasi sisa organik menjadi kompos berkhasiat untuk tanah.
Catatan! Struktur tandas gambut buatan kilang tidak perlu dihubungkan ke sistem perkhidmatan: pembentungan, rangkaian elektrik dan bekalan air. Mereka boleh dianggap bebas dan autonomi.
Ciri-ciri produk gambut pengeluaran kilang
Tandas jenis gambut buatan kilang mempunyai prinsip operasi khas. Reka bentuk mereka dirancang untuk memisahkan produk buangan manusia kepada beberapa pecahan: cecair dan pepejal.
Sekiranya sebilangan besar orang tinggal di kawasan pinggir bandar atau jika anda hanya merancang untuk menggunakan tandas dengan kerap, selang khas atau sistem saliran boleh digunakan untuk mengalirkan pecahan cecair yang telah dibersihkan.
Pada masa ini, pecahan pepejal terkumpul di bahagian bawah tangki simpanan. Kluster ini senang dikeluarkan. Untuk melakukan ini, keluarkan bekas itu dan kosongkan isinya ke dalam lubang kompos.Pengilang melengkapkan tangki simpanan tandas gambut dengan pemegang untuk memudahkan pengangkutan.
Kelebihan utama produk siap termasuk sistem operasi yang mudah. Kandungan bekas digelengkan, setelah itu drive dibilas, diisi dengan substrat gambut dan dipasang kembali.
Harga purata untuk produk kilang:
Nama model | Jenis produk | Kapasiti, l | Kos, rubel |
Gambut | tandas gambut | 110 | 24310 |
Termo | tandas gambut | 110 | 32510 |
Ekomatik | tandas gambut | 230 | 40110 |
Biolan Eco | tandas kompos | 200 | 38000 |
Komplet Biolan | tandas gambut | 140 | 21900 |
Membeli produk siap sangat memudahkan tugas mengatur bilik mandi di laman web ini. Bagi mereka yang ingin menjimatkan wang, di bawah adalah arahan langkah demi langkah mengenai cara membuat reka bentuk tandas gambut sendiri.
Panduan almari gambut DIY
Untuk membuat tandas dengan prinsip rawatan sisa berasaskan gambut, bahan berikut mesti disediakan:
- pengikat (skru, paku);
- papan;
- kepingan papan lapis.
Nasihat berguna! Gunakan tempat duduk tandas biasa untuk keselesaan tambahan. Ia mesti dibeli terlebih dahulu di mana-mana kedai.
Arahan langkah demi langkah:
- pemasangan kotak. Empat papan kayu dihubungkan antara satu sama lain dengan skru mengetuk sendiri. Untuk memudahkan kerja seterusnya pemasangan tangki simpanan, disarankan untuk membuat potongan di bahagian depan produk;
- sarung bahagian atas kotak. Gunakan kepingan papan lapis untuk menutup bahagian atas kotak. Jangan lupa memotong lubang di dalamnya terlebih dahulu, di mana bekas itu akan berada;
- pemasangan kaki. Kaki yang stabil dipasang ke bahagian sudut kotak. Ketinggian mereka dikira dengan mengambil kira bahawa tangki simpanan sampah boleh diganti dengan mudah;
- membetulkan tempat duduk ke lubang teknikal. Pilihan kilang boleh digunakan untuk tandas gambut yang dijual sebagai alat ganti. Ia boleh dibuat dari plastik atau kayu, serta bahan lain;
- pemasangan tangki simpanan di bawah bukaan teknikal. Untuk tujuan ini, baldi plastik dengan isipadu yang sesuai digunakan. Gambut dituangkan terlebih dahulu ke bahagian bawahnya. Ketebalan interlayer tidak lebih dari 5 cm.
Harga purata untuk tempat duduk kilang:
Nama | Bahan produk | Kos, rubel |
Biolan Huussikka (tempat duduk termal) | plastik polipropilena | 1500 |
Separett (tempat duduk termal) | plastik polipropilena | 1250 |
Kekkila (tempat duduk termal) | polipropilena yang diperluas | 1850 |
Biolan Pehvakka (tempat duduk termal) | plastik polipropilena | 1650 |
Penduduk musim panas (tempat duduk di lubang) | Styrofoam | 250 |
Separett 500 PRIVI (tempat duduk termal dengan pemisah untuk pecahan cecair) | plastik polipropilena | 4550 |
Cara membina tandas di negara ini dengan tangan anda sendiri, video dan cadangan tambahan
Arahan yang disebutkan sebelumnya tidak termasuk dimensi struktur almari gambut, kerana pembinaan struktur sedemikian di laman web ini tidak disertai dengan kesulitan. Sebagai bahagian di atas tanah, anda boleh membuat gerai jenis "Shalash".
Cadangan tambahan:
- Untuk kemudahan penggunaan, lebih baik membeli beberapa baldi dengan penutup terlebih dahulu.
- Prosedur mengosongkan tangki (baldi) akan menjadi lebih mudah jika sampah dibuang ketika tahap pengisian mencapai sepertiga dari jumlah keseluruhan.
- Adalah mungkin untuk meningkatkan kecekapan pemprosesan sisa dengan gambut menggunakan bahan tambahan khas dalam bentuk pemecut biologi.
- Untuk mencapai hasil yang berkualiti, hanya pengisi buatan kilang yang harus digunakan.
Nasihat berguna! Segera aturkan lubang kompos untuk membuang sampah dari tandas, atau membuangnya di kawasan yang ditentukan.Lama kelamaan, anda boleh menggunakan produk yang diproses untuk menanam sayur-sayuran di kebun anda (pembajaan tanah).
Gunakan bahan video untuk melihat teknologi untuk membuat tandas di plot peribadi secara visual.
Sedikit khayalan dan ketekunan, dan tandas anda di jalan akan berubah dari keperluan biasa menjadi tambahan hebat yang menghiasi kawasan setempat.