Bagi banyak orang, kehadiran mandi di pondok musim panas mereka akan kelihatan seperti kemewahan. Tetapi jika dana belanjawan membolehkan anda memperoleh sauna sendiri, mengapa tidak mempertimbangkan pilihan yang lebih menarik daripada gabungan standard bilik wap dan bilik basuh. Dari artikel ini, anda dapat mengetahui apa kelebihan mandi dengan kolam: projek dan jenis struktur utama, ciri reka bentuk dan pembinaan bangunan, contoh penyelesaian reka bentuk yang berjaya.
Kandungan
- 1 Mandi dengan kolam: projek dan ciri utamanya
- 2 Cara mandi dengan kolam dengan tangan anda sendiri: arahan langkah demi langkah
- 2.1 Tahap pertama pembinaan mandi dengan kolam: foto dan perihalan kerja tanah
- 2.2 Pemasangan bekal untuk mandi dengan kolam besar dan pengisian lantai
- 2.3 Cara memasang kolam di rumah mandian: menuangkan dinding dan kerja kalis air
- 2.4 Tahap akhir pembinaan mandi dengan kolam renang: menyelesaikan kerja
- 3 Projek mandi yang menarik: foto bilik wap dengan kolam renang
Mandi dengan kolam: projek dan ciri utamanya
Perubahan suhu badan yang tajam akibat mencelupkan seseorang ke dalam air sejuk setelah mengunjungi bilik wap memberi kesan positif pada badan. Rehat seperti ini bukan sahaja dapat meningkatkan mood anda, tetapi juga menguatkan sistem imun anda. Oleh itu, dalam foto mandi yang indah, bersama dengan ruang istirahat, bilik mandi dan bilik basuh, anda dapat melihat kolam atau badan air lain yang sesuai dengan ruang dan menyediakan keadaan yang ideal untuk bersantai sepenuhnya.
Berbanding dengan merancang sauna konvensional, merancang sauna dengan kolam mungkin kelihatan seperti usaha yang lebih rumit. Oleh itu, disarankan untuk mempercayakan karya ini kepada profesional.
Tidak setiap bilik mempunyai syarat yang diperlukan untuk membuat struktur sedemikian. Dan ini tidak hanya berlaku untuk projek mandi dengan kolam di bawah satu bumbung, di mana struktur tersembunyi dipasang. Kesukaran timbul walaupun bekerja dengan jenis produk daratan. Faktanya ialah kehadiran kolam di dalam bilik menyebabkan peningkatan tahap kelembapan yang ketara. Agar operasi mandi selesa dan selamat sepenuhnya, anda harus menjaga kalis air sepenuhnya. Memerlukan perlindungan kelembapan:
- dinding;
- lantai;
- siling;
- pendawaian elektrik.

Merancang mandi dengan kolam adalah tugas yang agak sukar, jadi lebih baik mempercayakannya kepada pakar
Perhatian khusus harus diberikan kepada projek mandi dengan kolam yang terbuat dari kayu, kerana kayu tanpa persiapan yang betul cepat merosot di bawah pengaruh kelembapan.
Nota! Kolam ini termasuk dalam perencanaan pada tahap pengembangan proyek. Selepas mandi dibina, tidak mungkin lagi untuk menambahkannya ke bangunan yang sudah siap, atau prosedur ini terlalu memakan masa dan mahal.
Ciri-ciri pembinaan kompleks mandi dengan kolam renang
Dalam proses membangunkan projek, sangat mustahak untuk memikirkan nuansa seperti jenis kolam, jenis pondasi yang sesuai untuk pembinaannya, serta susun atur yang akan menyumbang untuk mewujudkan keadaan operasi yang optimum.

Pembinaan kompleks mandi perlu dimulakan dengan rancangan terperinci
Sekiranya kolam kecil dalam bentuk mangkuk plastik digunakan untuk melengkapkan tempat mandi, masalah pembinaan biasanya tidak timbul. Untuk memasang struktur, anda perlu menggali lubang dengan ukuran yang sesuai dan meletakkan bekas kedap udara di dalamnya. Selalunya, produk sedemikian dilengkapi dengan sistem komunikasi yang boleh ditanggalkan, tetapi terdapat juga jenis pegun. Projek dengan kumpulan lata memerlukan penyertaan pakar yang berkelayakan, jadi anda tidak boleh melakukannya sendiri dalam kes ini.
Sebelum anda membuat kolam pegun di tab mandi, anda perlu mengatur dan menyambungkan bekalan air dan sistem pembetung anda sendiri. Tidak mungkin lagi untuk membatasi diri untuk mengatur longkang biasa, seperti di bilik basuh. Tugas ini semakin rumit oleh fakta bahawa untuk pembinaan sistem pembentungan tempatan, perlu mendapatkan kebenaran daripada pentadbiran tempatan.
Cara membuat kolam sendiri: pembangunan projek
Semasa merancang kolam di kompleks mandi, perlu mengambil kira beberapa perkara penting:
- Kawasan lokasi kolam. Bekas berisi air boleh dipasang di dalam tab mandi, di jalan atau di bilik yang disediakan khas untuk tujuan ini.
- Syarat Penggunaan. Sekiranya kolam itu digunakan oleh orang tua dan kanak-kanak, anda perlu mempertimbangkan kedalamannya dengan teliti, serta kehadiran elemen seperti keturunan dan pegangan tangan yang mudah.
- Keselesaan. Di kompleks mandi, bekas kecil paling kerap dipasang. Dimensi kolam yang optimum ialah 2x3 m, 2x2 m dan 3x3 m.
Keputusan mengenai pilihan bentuk, serta nisbah ukuran bilik mandi dan kolam renang, dibuat oleh pemilik, berdasarkan pilihan peribadi. Sebuah wadah dengan air dapat memiliki dinding yang dinaikkan, struktur jenis sudut, atau dapat dilengkapi dengan bak mandi dengan tingkap panorama, dari mana anda dapat melihat keindahan pemandangan sekitarnya.
Mengikut jenis penempatan, kolam renang dalaman dan luaran. Pemilihan reka bentuk sangat bergantung pada ukuran mandi. Walaupun kolam kecil boleh dibina ke dalam struktur yang padat, tetapi untuk ini tetap diperlukan untuk menyediakan ruang yang terpisah dalam reka bentuk bangunan. Keputusan bergantung pada apakah pemilik laman web ini bersedia untuk memotong kawasan dalaman mandi. Jika tidak, lebih baik memasang kolam di luar bangunan.
Nasihat berguna! Sekiranya pemasangan kolam dalam ruangan seharusnya dipasang, disarankan untuk memilih bilik sedekat mungkin dengan bilik wap. Ini dilakukan supaya jalan dari bilik yang dipanaskan ke air sejuk memerlukan sedikit masa.
Jenis kolam: gambar dan ciri reka bentuk
Jenis kolam yang ada boleh dibahagikan kepada dua kategori. Sebilangan struktur mudah alih (fon mudah alih yang disebut), yang lain tidak bergerak. Produk jenis mudah alih dicirikan oleh sistem pemasangan yang mudah.Untuk pengeluaran mangkuk seperti itu, plastik dengan margin keselamatan yang meningkat digunakan. Berkat penggunaan teknologi moden, strukturnya ditutup sepenuhnya.
Rangkaian produk sedemikian agak pelbagai. Dalam katalog pengeluar pada foto kolam mandi, anda dapat melihat mangkuk plastik dengan pelbagai kedalaman, bentuk dan ukuran. Sekiranya dikehendaki, pemiliknya dapat membina semula struktur sedemikian menjadi takungan pemanasan buatan. Untuk tujuan ini, peralatan khas disediakan. Pemanasan air dilakukan oleh elemen pemanasan elektrik. Peralatan sedemikian biasanya disertakan dengan arahan, di mana pengeluar memberikan cadangan untuk pemasangan.
Beranda sesuai untuk mengatur kolam renang luaran. Dibolehkan menggunakan laman web yang berasingan untuk tujuan ini, tetapi dengan syarat ia berada di kawasan berdekatan dengan tempat mandi. Bagi struktur jenis pegun, proses pemasangannya lebih rumit dalam pelaksanaannya. Sistem pegun merangkumi:
- skimmer;
- muncung kembali;
- sistem penapis dan unsur-unsur lain.
Tanpa pengalaman dan pengetahuan yang relevan, sangat sukar untuk memasang kolam pegun di rumah mandian. Sebelum meneruskan penyusunan struktur seperti itu, adalah mustahak anda membuat projek terperinci, yang akan mencerminkan semua ciri. Lebih-lebih lagi, kolam renang itu sendiri dan rumah mandian pada amnya.
Penting! Sebaiknya sediakan kolam mini yang dipanaskan dengan tangan anda sendiri di dalam rumah. Sekiranya struktur sedemikian terletak di luar rumah, kos pemanasan air akan meningkat dengan ketara.
Berapakah kos untuk membina projek sauna turnkey dengan kolam renang: harga bangunan siap
Banyak syarikat pembinaan menawarkan penyelesaian siap untuk pemilik pondok musim panas. Semasa memesan dari syarikat seperti itu, pembuatan mandian turnkey dengan kolam renang, anda boleh mengandalkan pelaksanaan yang berkualiti tinggi dan pantas, serta jaminan bahawa strukturnya akan bertahan cukup lama dan akan memenuhi semua standard dan keperluan keselamatan.
Kos purata projek siap
Nama Projek | Dimensi bangunan, m | Luas, m2 | harga, sapu. |
Projek sauna dengan kolam renang dan ruang rehat | 9.44x5.92 | 45,6 | 571500 |
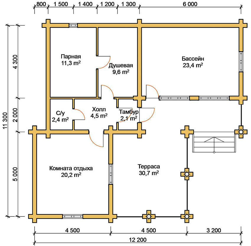
Sauna dengan kolam renang dan beranda | 5.5x12.2 | 55,24 | 611400 |
Mandi dengan ruang rehat dan beranda | 6.4x11.8 | 68 | 737600 |
Mandi dengan dua pintu masuk | 9.4x11.8 | 74 | 796000 |
Projek sauna dengan kolam renang dan teres | 8.7x14.7 | 117,23 | 911400 |
Mandi sudut | 12.2x13.5 | 121,1 | 925000 |
Cara mandi dengan kolam dengan tangan anda sendiri: arahan langkah demi langkah
Mula-mula anda perlu memutuskan lokasi kolam. Dalam kes ini, perlu dibangunkan pada ukuran mandi yang dimaksudkan. Sekiranya bangunan mempunyai ruang dalaman yang cukup, kolam renang dapat diatur di dalam bangunan di ruangan yang terpisah. Semasa membina mandi kecil, lebih baik mengambil takungan buatan di luarnya.
Terlepas dari jenis pemasangan mana yang dipilih, dimensi dan parameter kolam ditentukan pada tahap pengembangan projek. Jauh lebih mudah untuk mengatasi pekerjaan tanah, yang dilakukan dalam proses mengatur font, jika dilakukan pada tahap meletakkan fondasi bangunan.
Pakar mengesyorkan melengkapkan kolam secara serentak dengan bangunan mandi. Ini dilakukan dengan alasan bahawa peletakan sistem pembetung dan pembekalan air dilakukan dengan mengambil kira keanehan penempatan fon, dan operasinya tidak lengkap tanpa peredaran air berterusan. Selain itu, cecair di kolam perlu dibersihkan secara berkala, jadi sangat penting untuk merancang sistem bekalan dan saliran cecair dengan betul.
Tahap pertama pembinaan mandi dengan kolam: foto dan perihalan kerja tanah
Setelah menyelesaikan pengiraan yang sesuai dan menyesuaikan dokumentasi reka bentuk, anda boleh meneruskan kerja tanah.Mula-mula anda perlu menandakan tapak pembinaan.
Untuk ini, gambar dari projek sauna dengan kolam dipindahkan ke kawasan tersebut. Untuk tujuan ini, anda boleh menggunakan pasak kayu, yang dihalau ke sudut bangunan masa depan dan sepanjang perimeternya. Selepas itu, tali kuat ditarik di antara mereka.
Penting! Sebelum mula menggali lubang, anda perlu memutuskan jenis tangga di kolam renang. Ini boleh menjadi pegun (dalam hal ini, strukturnya kelihatan seperti langkah-langkah yang terbentuk di salah satu dinding fon) atau ia boleh diletakkan secara terpisah. Selalunya, pemilik memilih pilihan terakhir untuk menjimatkan ruang.
Setelah menyelesaikan penandaan tapak pembinaan dan memikirkan semua perkara yang disertakan, anda boleh meneruskan pekerjaan yang paling sukar - menggali lubang untuk memasang kolam. Tahap ini dapat dilakukan secara bebas, atau anda boleh menggunakan peralatan khas untuk tujuan ini.
Artikel berkaitan:
Mandi: susun atur dan penyelesaian yang menakjubkan untuk bangunan padat
Pembangunan projek dengan parameter yang optimum, dengan mempertimbangkan ukuran kawasan pinggir bandar, keperluan pemilik dan jumlah orang.
Setelah mencapai kedalaman yang diperlukan, bantal pasir dan kerikil mesti terbentuk di dasar lubang. Kerikil (batu hancur) dan pasir dituangkan dalam lapisan. Ketebalan optimum setiap lapisan tersebut ialah 15 cm. Dalam proses melaksanakan kerja ini, bahagian belakang dipadatkan dengan teliti. Untuk hasil terbaik, taburkan pasir dan kerikil dengan air.
Pemasangan bekal untuk mandi dengan kolam besar dan pengisian lantai
Apabila lubang sudah siap, dinding dan bahagian bawahnya disusun dengan bahan atap. Untuk menjadikan lapisan itu padat, jalur bahan digulung ditindih dengan tumpang tindih 15-20 cm, dan jahitan di antara mereka diproses dengan bitumen cair atau bahan lain dengan sifat yang sesuai. Seperti inilah kerja kalis air utama.
Seterusnya, struktur formwork dipasang. Untuk ini, disarankan untuk menggunakan papan. Skru sesuai sebagai elemen penetapan. Pemasangan bekisting di bawah tab mandi panas dilakukan dengan cara yang hampir sama dengan pemasangan struktur untuk menuangkan pondasi untuk mandi kayu dengan kolam. Hanya ada satu pengecualian: hanya bahagian dalam yang perlu dipasang; dinding lubang akan melakukan fungsi sempadan luar.
Kemudian lapisan pertama mortar simen mesti dicurahkan ke bahan bumbung. Ketebalan yang disyorkan ialah 10-15 cm. Sebaiknya gunakan simen M-400. Anda boleh membuat penyediaan penyelesaiannya sendiri. Untuk ini, satu bahagian simen, 4-5 bahagian batu hancur dan 3 bahagian pasir dicampurkan dalam bekas khas. Semua ini diisi dengan air, jumlahnya kira-kira 50% daripada jumlah jisim campuran.

Untuk lantai, lebih baik menggunakan simen gred M-400, ketebalan penuangan yang disyorkan adalah 10-15 cm
Apabila lapisan pertama konkrit mengeras, mesh penguat diletakkan di atasnya, yang terbentuk dari batang keluli dengan diameter 1-1.2 cm. Ukuran sel yang ideal adalah 15x15 cm. Semasa pemasangan lapisan pengukuhan, kawasan di mana batang bersilang dihubungkan dengan penjepit plastik khas. Kawat merajut juga boleh digunakan untuk tujuan ini.
Penting! Jaring hendaklah 5 cm di atas pangkal. Untuk mendapatkan pelepasan yang diperlukan, disarankan untuk menggunakan klip plastik.
Bahagian kedua larutan konkrit dituangkan ke lapisan penguat. Ketebalan lapisan ini hendaklah 10-15 cm.
Cara memasang kolam di rumah mandian: menuangkan dinding dan kerja kalis air
Dinding fon juga memerlukan peneguhan. Prosedur untuk melaksanakan prosedur ini tidak berbeza dengan skema yang digunakan untuk membentuk dasar kolam. Untuk menghilangkan kemungkinan jahitan, dinding dituangkan dengan sekali jalan.Jika tidak, kekuatan struktur akan diragui. Tidak sukar untuk mengira jumlah campuran konkrit yang diperlukan untuk membuat dinding kolam di dalam tab mandi dengan tangan anda sendiri. Untuk melakukan ini, anda perlu membiak satu sama lain parameter mangkuk seperti ketinggian, ketebalan dan panjang dinding sepanjang perimeter. Ini akan membolehkan anda menentukan kapasiti padu yang diperlukan.
Apabila konkrit setelah mencurahkan benar-benar mengeras dan kering, permukaan lantai dan dinding mesti ditutup dengan teliti. Untuk ini, lapisan geotekstil dibentangkan, dan kemudian penutup, terdiri dari filem PVC. Hasilnya adalah kalis air yang boleh dipercayai dan berkesan.
Setelah kerja kalis air selesai, tangki ditutup dengan lapisan plaster. Sebaiknya gunakan bahan berasaskan silikon untuk tujuan ini. Proses permohonan bergantung pada pengeluar yang dipilih. Arahan terperinci disertakan dengan setiap bungkusan plaster. Agar hasilnya berkualiti tinggi dan tahan lama, sangat mustahak untuk mengikuti cadangan ini.
Nota! Menyiapkan asas dengan menggunakan plaster akan memudahkan pemasangan penamat. Oleh itu, tahap kerja ini tidak boleh dikecualikan dari skema pembinaan umum.
Tahap akhir pembinaan mandi dengan kolam renang: menyelesaikan kerja
Setelah mencurahkan, mangkuk kolam yang sudah siap perlu diselesaikan. Pelbagai bahan boleh digunakan untuk tujuan ini. Dalam foto mandi di dalam dan di luar, anda dapat melihat kolam yang ditutup dengan kerajang PVC, dihiasi dengan jubin porselin atau mosaik kaca.
Pilihan bahan bergantung pada anggaran dan pilihan peribadi pemilik. Kos jubin yang diperbuat daripada porselin jauh lebih rendah daripada harga mozek. Pelapisan dinding dan lantai di kolam dengan bahan ini jauh lebih mudah dan cepat. Sebaliknya, mozek memungkinkan reka bentuk yang unik dan tidak dapat diulang. Pada asasnya, anda boleh membuat corak dan hiasan yang tidak biasa.
Bagi filem yang diperbuat daripada polivinil klorida, ia dianggap paling mudah dari segi kerja pemasangan. Walau bagaimanapun, julat kemasan ini sangat terhad, begitu juga julat warnanya.
Projek mandi yang menarik: foto bilik wap dengan kolam renang
Struktur kolam, serta penamatnya, dapat memiliki berbagai jenis desain. Untuk pembinaan, disarankan untuk menggunakan landasan jalur atau kolumnar, walaupun konkrit juga sesuai. Pilihan pertama digunakan dalam keadaan di mana projek atau medan tidak mempunyai syarat yang sesuai untuk pemasangan tiang sokongan.

Projek sauna dengan kolam renang: teres - 20,3 m², ruang bersantai - 14,3 m², bilik wap - 5,2 m², kolam renang - 21 m²
Kadang-kadang, atas sebab kepraktisan, jenis asas lain boleh digunakan. Sebagai contoh, jika pembinaan mandi kecil dilakukan di lereng, pilihan terbaik adalah struktur yang dipegang oleh tiang skru. Untuk membuat mandi yang cantik, disarankan untuk menggunakan bar. Bahan ini boleh diprofilkan atau dilekatkan. Ukuran bahagian yang disyorkan adalah 10x15 cm. Jika mandi terletak di kawasan dengan keadaan iklim yang keras, diameter kayu harus ditingkatkan menjadi 15x15 cm.
Projek asal rumah mandian dengan kolam renang dan barbeku di teres terbuka
Pilihan yang sangat baik untuk membina plot bersaiz sederhana adalah sauna dengan teres luaran dan kolam renang. Dimensi bangunan seperti itu adalah 9.5x12 m. Untuk menjimatkan ruang di dalam bangunan, kolam dipindahkan ke teras bersama dengan kawasan rekreasi (barbeku).
Nasihat berguna! Dengan menghilangkan penggunaan barbeku, anda boleh menukar teres, sambil mendapatkan ruang berasingan untuk kolam renang dan beranda yang indah dengan kaca untuk bersantai setelah menjalani rawatan air.
Pintu masuk ke tempat mandi dari teres adalah melalui lorong, di mana pengunjung boleh meninggalkan pakaian luar mereka. Sekiranya dikehendaki, di sebelahnya, pemilik dapat melengkapkan ruang tamu atau bilik yang dirancang untuk bersantai. Kawasan projek ini membolehkan anda mengatur semua bilik yang diperlukan untuk keselesaan semasa mandi:
- ruang masuk dengan almari pakaian (3.33 m²);
- bilik tetamu atau bilik rehat (18.88 m²);
- bilik mandi (4.72 m²);
- relau (4.72 m²);
- bilik mandi (10.45 m²);
- bilik wap (11.74 m²).

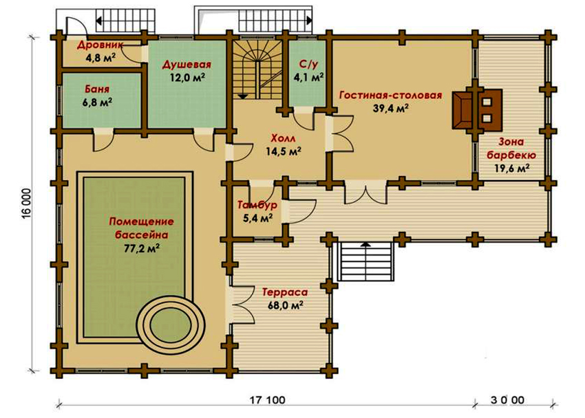
Projek sauna dengan bilik wap, bilik cuci, ruang bersantai, beranda dan kolam renang di teres terbuka
Kelebihan mandi seperti itu ialah adanya koridor kecil (5.29 m²) yang menghubungkan bilik dalaman. Oleh itu, tidak ada bilik (selain dari ruang tamu) yang boleh dilalui.
Projek mandi yang mengagumkan dengan kolam renang: gambar bangunan berskala besar
Pemilik plot tanah yang luas mampu membina rumah mandian yang besar. Untuk kemudahan, adalah wajar untuk melengkapkan struktur sedemikian dengan dua pintu masuk. Dalam projek 12x18 m, teknik ini baru dilaksanakan. Anda boleh memasuki bangunan dari dua sisi: dari beranda dan dari teres.
Pintu masuk dari beranda menuju ke ruang depan kecil. Bilik yang ringkas antara jalan dan bilik lain ini berfungsi sebagai sejenis kunci udara yang tidak membenarkan udara sejuk masuk ke dalam struktur. Dari ruang rehat anda boleh sampai ke mana-mana tempat mandi. Susunan bilik ini adalah optimum dan membolehkan anda bergerak di dalam bangunan dengan mudah, tanpa menimbulkan kesulitan kepada para tetamu. Pintu masuk kedua dari jalan adalah melalui teres. Hampir separuh daripada jumlah ruang diperuntukkan untuk pemasangan kolam mandi. Luas takungan buatan adalah 62.46 m².
Nasihat berguna! Sekiranya perlu, dimensi kolam dapat dikurangkan, dan ruang kosong dapat digunakan untuk melengkapkan bilik tidur atau dapur. Berkat ini, mandi tidak hanya mungkin untuk bersantai, tetapi juga untuk kediaman tetap atau sementara.
Peluang perancangan yang lebih banyak dapat diperoleh dengan menambah kawasan berguna mandi dengan membina loteng. Kosnya lebih rendah daripada membina tingkat dua. Tetapi mungkin untuk mengatur premis untuk mewujudkan keselesaan tambahan. Pada gambar mandi dengan loteng anda dapat melihat bilik tidur moden dan selesa, bilik biliard, gimnasium kecil dengan peralatan senaman, dll.
Dengan membina lantai loteng di atas tab mandi dengan dimensi 11x14 m, luas kawasan dalaman dapat ditingkatkan menjadi 260 m². Dalam kes ini, ruang bawah tanah bangunan akan digunakan untuk menampung bilik teknikal. Di tingkat pertama, adalah wajar untuk melengkapkan bilik-bilik utama:
- bilik persalinan;
- bilik mandi;
- bilik wap;
- tandas;
- bilik mandi.
Loteng dapat digunakan untuk menampung kamar mandi, kamar tidur dan dapur. Projek berskala besar bagus kerana kehadiran ruang kosong yang mencukupi membolehkan anda membuat susun atur yang akan memenuhi keperluan dan kehendak peribadi pemiliknya, tanpa mengambil kira rakaman.
Apa yang boleh menjadi kolam mandi: reka bentuk dan ciri reka bentuk
Cara termudah untuk mendapatkan bilik wap di negara ini ialah memilih projek siap pakai dan mengupah pakar untuk melaksanakannya. Sekiranya anda ingin mendapatkan sesuatu yang asli, anda harus bekerja keras dan mengambil bahagian dalam pembangunan skema pembinaan tab mandi. Dalam kes ini, anda boleh mendapatkan reka bentuk yang benar-benar unik. Teras, yang dirancang dalam bentuk langkan di dinding - tingkap teluk, kelihatan agak luar biasa. Ia boleh berbentuk separa bulat atau polyhedron.

Terdapat banyak jenis kolam, anda boleh membeli versi siap pakai atau membuat pesanan mengikut reka bentuk anda
Lebih baik menggunakan kolam renang mini di sauna kompak. Isi padu bekas tersebut berbeza dari 1 hingga 6 m³.Mereka diperbuat daripada kaca gentian, kayu atau akrilik dan boleh dipasang di dalam bangunan dan di luar. Kolam dengan fungsi spa kelihatan seperti tab mandi besar yang dilengkapi dengan sistem hydromassage. Mereka dijual siap pakai dan sangat sesuai untuk bersantai, tetapi sama sekali tidak sesuai untuk berenang dan bermain air. Bagi pencinta mobiliti, kolam renang dengan reka bentuk lipat sesuai. Mereka terdiri dari bingkai di mana filem PVC diregangkan.
Untuk membuat kompleks mandi untuk bersantai dengan keadaan yang ideal di pondok musim panas, anda hanya perlu memilih kolam dengan sedar dan mengembangkan projek untuk pemasangannya dengan betul. Berbagai jenis pasaran moden dan katalog syarikat pembinaan tidak hanya dapat merancang rancangan mandi dengan kolam, tetapi juga untuk melaksanakan projek ini.