Pengiraan tangga yang cekap dan tepat adalah jaminan pengoperasiannya yang selesa dan selamat. Bagi mereka yang memutuskan untuk membuat dan memasang struktur itu sendiri, anda perlu mengetahui cara mengira tangga ke tingkat dua dengan betul. Bergantung pada pilihan jenis tangga, pengiraannya boleh menjadi lebih rumit. Adalah mungkin untuk memperoleh struktur berfungsi hanya jika semua standard teknikal dipatuhi dan semua parameter utama tangga diambil kira: panjang, lebar, sudut kecondongan, kedalaman dan ketinggian tangga.
Kandungan
- 1 Cara mengira tangga ke tingkat dua: parameter pengiraan asas
- 2 Pengiraan tangga ke tingkat dua dengan selekoh 90 dan 180 darjah
- 3 Ciri-ciri mengira tangga ke tingkat dua dengan tangan anda sendiri: reka bentuk skru
- 4 Pengiraan tangga "langkah angsa"
- 5 Parameter reka bentuk pegangan tangan, pegangan tangan dan pagar untuk tangga
- 6 Mengira tangga dengan kalkulator dalam talian
Cara mengira tangga ke tingkat dua: parameter pengiraan asas
Oleh kerana setelah memasang tangga ke tingkat dua, anda tidak perlu merasa bahawa terlalu curam atau sempit, sangat sukar untuk mendaki atau tidak selesa untuk turun di atasnya, anda perlu bertanya terlebih dahulu bagaimana pengiraan tangga ke tingkat dua. Untuk melakukan ini, anda perlu membiasakan diri dengan jenis struktur tangga dan keperluan untuknya.
Jenis struktur tangga
Satu jenis atau yang lain tangga ke tingkat dua dipilih berdasarkan ciri reka bentuk bangunan, tujuan tangga, gaya umum dalaman dan ketersediaan ruang kosong untuk pemasangannya.
Jenis struktur tangga utama:
- tangga berarak lurus dengan satu jarak;
- berbaris tunggal dengan putaran 90 darjah dengan jejari (berpusing) langkah;
- berbaris tunggal dengan putaran 180 darjah dengan jejari (berpusing) langkah;
- dua-arah lurus, dihubungkan oleh platform;
- L-berbentuk dua-march, dihubungkan oleh platform;
- Berbentuk U dua-march, dihubungkan oleh platform;
- tiga perarakan, dihubungkan oleh dua laman web;
- skru (spiral).
Tangga yang dipasang di dalam rumah atau apartmen adalah sederhana - ia merangkumi struktur lurus, dan tangga dengan platform. Tangga di rumahyang mengandungi beberapa penerbangan adalah kanan (belok mengikut arah jam) dan kiri (belok berlawanan arah jam). Reka bentuk yang lebih kompleks - putar dan tangga spiral.
Keperluan utama untuk operasi tangga adalah:
- kemudahan dan keselamatan semasa menaiki tangga;
- tangga hendaklah terletak sedekat mungkin dengan pintu masuk ke bangunan rumah;
- tangga harus dikerahkan dalam langkah ke pintu masuk ke bilik di mana ia dipasang. Sekiranya tidak ada kemungkinan untuk keseluruhan struktur, maka perlu untuk membelok sekurang-kurangnya beberapa langkah pertama ke pintu masuk;

Pemilihan parameter langkah yang betul akan memastikan keselamatan dan kemudahan pergerakan menaiki tangga
- tangga harus mengambil ruang sesedikit mungkin, tetapi dengan mengambil kira keselamatan strukturnya;
- tapak pemasangan tangga dibekalkan dengan pencahayaan tambahan.
Nasihat berguna! Sekiranya tangga yang dirancang akan berada di bilik tetamu, laluan dari pintu masuk ke tangga mesti dialihkan ke dinding bilik, ia tidak boleh melintasi ruangan secara menyerong.
Elemen asas struktur tangga
Untuk mengira struktur tangga, perlu menavigasi di bahagian-bahagian penyusunnya.
Bahagian utama tangga merangkumi elemen berikut:
- penerbangan tangga - elemen struktur yang menghubungkan dua platform dan terdiri daripada langkah-langkah;
- kosour - balok penyokong dengan potongan segitiga, di mana langkahnya dilekatkan dari atas. Hujung tangga dengan pengancing sedemikian kelihatan apabila dilihat dari sisi;
- tali busur adalah balok penyokong di mana langkah dimasukkan dari dalam ke soket atau alur khas;
- tapak - permukaan mendatar langkah;
- riser - sisi menegak luar tangga, lebarnya sama dengan ketinggian tangga;
Nasihat berguna! Agar tangga masuk lebih terang dan penampilannya agak terang, disarankan untuk tidak menggunakan riser di dalamnya.
- langkah berliku - langkah, satu pinggirnya lebih kecil daripada yang lain. Mereka digunakan untuk membalikkan tangga;
- platform - permukaan mendatar yang menghubungkan penerbangan tangga;
- balusters - tiang menegak yang menyokong pagar dan menonjol sebagai pagar untuk penerbangan tangga;
- alas sokongan - balusters yang dipasang pada awal dan di akhir penerbangan tangga adalah pengikat untuk pegangan tangan dan pegangan tangan;
- pagar, pegangan tangan - pagar yang terletak di atas balusters, yang dipegang oleh ketika turun atau naik tangga.

Unsur-unsur tangga: 1 - perarakan; 2 - platform; 3 - pagar; 4 - balok galas (tali atau tali busur); 5 - garisan pucuk; 6 - langkah permulaan; 7 - peringkat output; 8 - tapak; 9 - riser; 10 - alas sokongan; 11 - balusters
Setelah membiasakan diri dengan elemen utama struktur tangga, anda dapat mula mengira tangga dengan selamat tanpa rasa takut akan keliru dalam konsep dan nama bahagian penyusunnya.
Parameter pengiraan sistem tangga
Bagi mereka yang memutuskan untuk secara bebas mengira tangga ke tingkat dua, perlu membuat projek. Menurut projek itu, anda dapat mengira dimensi struktur: panjang dan lebar tangga, bilangan tangga, sudut kecenderungan. Adalah perlu untuk mengira tangga secara berurutan agar tidak melakukan kesalahan pada nilai yang diperlukan, kerana bahkan salah perhitungan kecil dapat menyebabkan akibat yang tidak diingini semasa pengoperasian sistem tangga.
Pengiraan struktur tangga merangkumi beberapa perkara:
- sudut kecondongan (curam) tangga... Sudut kecondongan tangga, di mana pergerakan di sepanjangnya akan cukup selesa, adalah dari 40 hingga 45 darjah. Tetapi untuk meletakkan struktur sedemikian akan memerlukan banyak ruang, yang tidak selalu mungkin. Oleh itu, reka bentuk sedemikian jarang sekali digunakan. Oleh itu, struktur tangga disusun dengan cerun yang lebih curam 36 darjah. Menaiki tangga seperti itu akan cukup mudah, yang tidak dapat dikatakan mengenai turun (mungkin hanya dengan belakang anda ke hadapan). Perlu juga diperhatikan bahawa jarak dari permukaan kaki ke tumpang tindih atau ke elemen yang menonjol lebih dari 2 m.Peraturan ini diambil kira semasa mengira tangga putar dengan platform dan jejari (penggulungan) langkah;
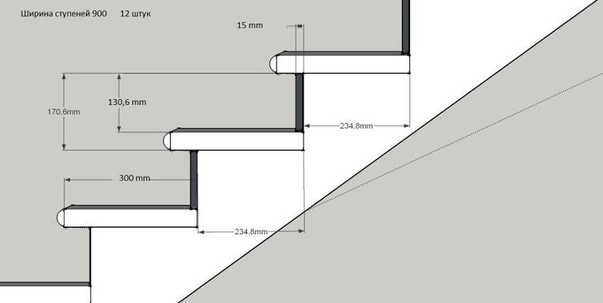
- ukuran dan bilangan langkah... Jumlah langkah dalam satu perarakan mestilah dari 3 hingga 18 buah. Untuk kemudahan menaiki tangga, disarankan untuk melakukan beberapa langkah ganjil dalam satu penerbangan. Semasa mengira langkah tangga, mereka dipandu oleh formula, yang menunjukkan bahawa dua ketinggian tangga dengan lebar tapak (permukaan tangga) harus sama dengan langkah rata-rata seseorang, iaitu sekitar 60 cm. Dengan pengiraan sederhana, anda dapat mengetahui bahawa lebar langkah yang disyorkan adalah 27 -28 cm, dan ketinggian anak tangga, yang disebut riser, idealnya adalah 17-18 cm. Dalam pengiraan tangga kayu, lebar overhang (cerat) juga diperhitungkan. Kira-kira 4 cm dilepaskan di atasnya. Saya ingin perhatikan satu perkara yang lebih penting: tangga sepanjang sepanjang tangga mesti mempunyai ketinggian dan lebar yang sama, supaya pergerakan di sepanjangnya mudah dan selamat;
- lebar tangga (perarakan)... Lebar tangga ke tingkat dua bergantung pada intensiti penggunaannya. Piawaian menetapkan lebar tangga sekurang-kurangnya 100 cm, maksimum 140 cm. Dengan lebar ini, satu atau dua orang dapat bergerak di sepanjang tangga, serta mengangkat perabot besar. Walau bagaimanapun, untuk tangga yang luas, ruangan ini tidak mempunyai kekurangan ruang. Selalunya dalam praktiknya, ada tangga dengan jarak 70-90 cm. Dengan lebar ini, sangat mungkin bagi seseorang untuk bergerak bebas dan memanjat objek dan barang kecil ke tangga. Lebar struktur penerbangan dua penerbangan atau lebih semestinya sama sepanjang keseluruhannya.
Nasihat berguna! Sekiranya tangga mempunyai dua atau lebih penerbangan yang bergerak di arah yang bertentangan, mesti ada jurang sekurang-kurangnya 50 mm di antara mereka.
Pengiraan tangga ke tingkat dua dengan selekoh 90 dan 180 darjah
Memandangkan struktur single-march lurus untuk pemasangan memerlukan ruang yang mencukupi, struktur putar dengan platform atau tangga jejari digunakan di pondok dan pondok musim panas. Semasa mengira tangga dengan pendaratan ke lantai dua dengan putaran 180 atau 90 darjah, peranti jalur segi empat atau persegi diambil kira, dari mana putaran dibuat dengan bilangan darjah yang sesuai.
Pnasihat berguna! Semasa mengira tangga dengan platform, perlu dipandu oleh fakta bahawa panjang platform antara penerbangan harus lebih dari 140 cm (dua langkah), dan lebarnya harus sesuai dengan lebar tangga penerbangan.
Semasa mengira tangga ke tingkat dua dengan belokan 90 dengan penggulungan, fakta bahawa terdapat tiga atau lebih penggulungan per giliran diambil kira.
Keperluan asas untuk struktur putar:
- lebar langkah berpusing dari tepi lebar hendaklah sekurang-kurangnya 40 cm, dan di tengah - sekurang-kurangnya 20 cm;
- jejari pusing tangga ialah 30 cm;
- semua langkah perarakan, termasuk yang membelok, harus mengulangi barisan perbarisan secara berkala. Ini akan memastikan selesa berjalan menaiki tangga.
Dalam pengiraan tangga dengan langkah putar 180 dan 90 darjah, perlu diingat bahawa lebar tapak (tangga) di bahagian paling sempit hendaklah sekurang-kurangnya 14 cm. Kemudian, lebar langkah larian di zon garis tengah akan optimum untuk menggerakkan seseorang, kerana ia berada di sepanjang garisan ini akan dipindahkan di sepanjang bahagian tangga yang berpusing.
Ciri-ciri mengira tangga ke tingkat dua dengan tangan anda sendiri: reka bentuk skru
Pembinaan tangga spiral (spiral) adalah lingkaran tangga, yang satu sisi lebih lebar daripada yang lain.Kelebihan utama sistem skru adalah kawasan yang jauh lebih kecil yang ditempati oleh tangga, berbanding dengan rakan yang bergerak.
Artikel berkaitan:
Tangga ke tingkat dua pada bingkai logam: keindahan, keanggunan, kemudahan pemasangan. Jenis dan jenis bingkai logam. Pagar logam. Tangga buatan sendiri.
Untuk memasang struktur lingkaran, luas bulatan cukup mencukupi, di tengahnya terdapat rak galas sokongan.
Semasa mengira tangga spiral, harus diingat bahawa jari-jari bulatan di mana ia berada akan panjang langkah. Sekiranya panjang tangga tangga spiral adalah 100 cm, maka struktur sedemikian akan mengambil kawasan 1.5 kali lebih sedikit daripada struktur gerakan lurus dengan panjang tangga yang sama.
Dalam struktur skru, yang sepenuhnya terdiri dari langkah memutar, lebar langkah di bahagian sempit dan lebar masing-masing adalah 10 dan 25 cm. Ketinggian tangga dikira sama dengan sistem tangga pertengahan penerbangan.
Semasa mengira tangga spiral, perkara-perkara berikut mesti diambil kira:
- tentukan lokasi pemasangan pos sokongan pusat;
- lebar span dan panjang langkah dikira sebagai jarak dari sokongan pusat ke garis sempadannya;
- bentuk langkah adalah trapezoid, lebar pinggir sempit yang tidak boleh kurang dari 20 cm, dan lebarnya - kurang dari 40 cm;
- untuk pergerakan yang mudah, ketinggian tangga tangga spiral dibuat lebih kecil daripada yang disyorkan untuk penerbangan tangga lurus;
- penting untuk pergerakan yang selesa ialah jarak antara selekoh tangga: sekurang-kurangnya dua kali ganda diameternya.
Pengiraan tangga "langkah angsa"
Tangga yang sangat padat "langkah angsa" - dipanggil kerana bentuk tangga, dipasang secara simetri berbanding garis perjalanan dan berkaitan dengan langkah angsa. Mereka dipasang terutamanya apabila diperlukan untuk menjimatkan ruang dengan ketara dan mempunyai sudut kecenderungan 45-65 darjah. Untuk pergerakan yang selesa, tangga seperti itu mempunyai permukaan tapak yang lebar hanya setengah panjang tangga. Langkah selebihnya dikurangkan minimum.
Semasa mengira tangga "angsa langkah", apabila sudut kecenderungan struktur dan kawasan yang didudukinya ditentukan, parameter berikut diambil kira:
- lebar tapak di tempat sandaran kaki kira-kira 30 cm. Kadang-kadang lebar yang lebih kecil digunakan untuk membuat tangga menjadi padat;
- lebar bahagian sempit langkah dapat ditentukan berdasarkan penyelesaian reka bentuk dan bahan yang digunakan untuk pembuatannya;
- jurang antara tangga di tangga sedemikian tidak menutup;
- ketinggian langkah yang disyorkan adalah 15 cm, walaupun sering ditingkatkan untuk menjimatkan ruang yang dihuni tangga. Walau bagaimanapun, anda tidak boleh menjadikan ketinggian tangga terlalu tinggi - ini akan memberi kesan negatif terhadap keselamatan pergerakan menaiki tangga.
Perlu diperhatikan bahawa tangga "angsa" dapat berjalan dengan menggunakan tali senar atau tali busur, dan juga tali spiral.
Parameter reka bentuk pegangan tangan, pegangan tangan dan pagar untuk tangga
Setelah memutuskan parameter utama tangga ke tingkat dua, mereka mula mengira pagar dan pagar tangga. Pada peringkat pengiraan ini, anda harus menentukan:
- ketinggian pagar (balusters);
- panjang dan lebar pegangan tangan dan pagar;
- ketinggian alas sokongan (balusters ekstrem).
Lebar pegangan tangan dan pegangan tangan yang disyorkan adalah 10 cm. Berkat ukuran ini, mana-mana orang akan merasa selesa bersandar pada mereka. Ketinggian tangga pegangan tangga yang optimum ialah 90 cm. Dalam kes ini, balusters akan mempunyai ketinggian sekitar 80 cm.Tetapi di sini adalah perlu untuk mempertimbangkan fakta bahawa balusters dimasukkan ke dalam alur khas, sehingga kedalamannya diambil kira ketika menentukan ketinggian rak.
Semasa mengira ketinggian alas sokongan, kaedah pemasangannya diambil kira. Sekiranya baluster sokongan dipasang di tangga, maka ketinggiannya akan bertepatan dengan ketinggian semua balusters. Sekiranya dipasang di lantai, jarak dari lantai ke tangga harus diambil kira.
Panjang pegangan tangan dan pegangan tangan sepadan dengan panjang keseluruhan tangga tangga. Di beberapa model tangga, terdapat pagar yang menonjol sedikit melebihi batas perarakan. Kami mencadangkan agar anda membiasakan diri dengan pelbagai gambar pagar tangga.
Mengira tangga dengan kalkulator dalam talian
Kaedah lain untuk mengira struktur tangga ke tingkat dua adalah dengan mengira tangga dengan kalkulator dalam talian. Data yang diminta dari parameter tangga dimasukkan ke dalam bidang yang ditentukan khas. Dengan menggunakan bantuan kalkulator, anda boleh membuat pengiraan yang tepat dan betul untuk tangga reka bentuk apa pun: berbaris, berpusing, berpusing, digabungkan.
Bagaimana cara mengira tangga ke tingkat dua dengan kalkulator? Untuk melakukan ini, anda perlu menetapkan parameter utama dalam talian:
- jenis tangga;
- ketinggian dan panjang bukaan;
- bilangan dan kedalaman langkah;
- tempat pemasangan tangga - berhampiran dinding atau di tengah-tengah bilik. Sekiranya struktur dirancang di sepanjang dinding, maka pagar pegangan tangan dan tangga boleh disusun hanya di satu sisi;
- bilangan perarakan dalam struktur yang dirancang ditentukan bergantung pada kawasan bilik;
- ketinggian siling dan kawasan yang dihuni tangga masa depan - data diperlukan untuk mengira sudut kecenderungan struktur yang boleh diterima.
Sekiranya semua data awal dimasukkan ke dalam bidang kalkulator yang sesuai dengan betul, anda dapat memastikan ketepatan pengiraan dan output lukisan berwarna atau hitam putih.
Nasihat berguna! Untuk mendapatkan pengiraan yang betul menggunakan kalkulator, semua pengukuran parameter input utama mesti dilakukan dengan satu ukuran pita.
Perlu diingat bahawa program kalkulator dalam talian berdasarkan standard teknikal dan keperluan GOST untuk struktur tangga.
Setelah membuat pengiraan tangga yang kompeten ke tingkat dua, anda boleh membuat dan memasang struktur secara bebas, dan yakin bahawa ia akan memenuhi semua standard operasi yang diperlukan.