Pembakar pelet dipasang pada dandang bahan api pepejal dan digunakan untuk mengatur pemanasan ruang. Ia boleh dibeli siap pakai, tetapi harganya agak tinggi. Sekiranya perlu, peranti sedemikian boleh dibuat secara bebas. Pembakar pelet do-it-yourself boleh dibuat dari bahan yang berbeza dan mempunyai reka bentuk yang ringkas dan lebih kompleks.
Kandungan
- 1 Mengapa anda memerlukan pembakar pelet: ciri peranti
- 2 Pelet: apa itu? Ciri-ciri bahan api terperinci
- 3 Ciri reka bentuk pembakar pelet
- 4 Pembakar pelet DIY: varieti
- 5 Bagaimana cara membuat lukisan pembakar pelet dengan betul?
- 6 Pembakar pelet DIY: peringkat persediaan
- 7 Bagaimana cara automatik proses dan mengkonfigurasi pembakar pelet?
- 8 Pellet burner Zota Fox 25: model yang boleh dipercayai dan cekap dengan fungsi yang luas
- 9 Pembakar pelet automatik Teplodar APG-25
Mengapa anda memerlukan pembakar pelet: ciri peranti
Pelet adalah bahan bakar berkualiti tinggi yang dapat bersaing dengan kayu bakar biasa. Untuk pembuatan bahan mentah seperti itu, kayu dan sisa pertanian, serta gambut, digunakan. Pelet adalah butiran kecil.
Apa kelebihan pelet tersebut daripada bahan bakar standard? Pertama sekali, perlu diperhatikan kecekapan tinggi bahan mentah. Kayu bakar biasa setelah terbakar memberikan tenaga 40 hingga 80%. Selebihnya bahan dikitar semula, jadi kemungkinan ekonomi pemanasan sedemikian dipersoalkan.
Dandang dengan pembakar pelet dapat meningkatkan kitar semula bahan sehingga 90%. Ini adalah salah satu kadar pembakaran tertinggi di antara semua jenis bahan bakar. Perlu diingatkan bahawa bahan mentah berbutir tidak digalakkan untuk beberapa jenis dandang. Sebagai contoh, bahan api seperti itu boleh merosakkan peralatan yang berdasarkan pirolisis.
Maklumat berguna! Semasa memilih pembakar, anda perlu memperhatikan kekuatannya. Hari ini anda boleh membeli model yang menyesuaikan penunjuk ini secara automatik. Contohnya ialah pembakar pelet Zota.
Semasa pemprosesan bahan bakar, suhu di dalam pembakar boleh mencapai 1000 ° C. Oleh itu, langkah yang sangat berhati-hati harus diambil semasa menggunakan alat tersebut.Ini benar terutamanya untuk reka bentuk do-it-yourself. Kesalahan pemasangan atau operasi yang tidak betul boleh menyebabkan kebakaran.
Pelet: apa itu? Ciri-ciri bahan api terperinci
Bahan mentah ini sangat memerlukan tenaga. Berkat ini, ia telah tersebar luas. Satu kilogram pelet berbutir semasa pemprosesan mengeluarkan kira-kira 5 kW / jam haba. Ini menunjukkan bahawa untuk organisasi pemanasan rumah persendirian standard, yang mempunyai ukuran rata-rata, ia akan mengambil kira-kira 2 kg bahan per jam.
Pelet untuk pembakar dimasukkan ke dalam peranti kira-kira 1-2 kali sehari. Semasa memuatkan bahagian baru bahan mentah, disarankan untuk membersihkan panci abu dari produk pembakaran. Pembakar yang dibeli memerlukan pembersihan mingguan, dan alat buatan sendiri menjadi kotor lebih cepat. Peranti DIY disyorkan untuk dibersihkan kira-kira 3 hari sekali. Jika tidak, ia akan gagal dengan cepat.
Beberapa model pembakar tidak memerlukan pemuatan selama 5 hari. Contohnya ialah pembakar pelet APG-42. Model ini sesuai dengan dandang Teplodar-Cooper.
Kelemahan pembakar pelet adalah pembakaran terbalik, yang disertai dengan penembusan zon pirolisis ke dalam bunker yang dimaksudkan untuk menyimpan dan membekalkan bahan bakar. Ini menyebabkan asap di ruangan di mana peralatan pemanasan berada, dan ada juga risiko kebakaran.
Pelet dari habuk papan atau sisa kitar semula yang lain dapat diletupkan jika terdapat lebihan udara di dalam struktur, yang akan menyebabkan sejumlah besar sampah (abu). Bekalan udara mesti diselaraskan dengan tepat, jika tidak, tidak hanya kelebihannya, tetapi juga kekurangannya dapat menyebabkan operasi yang tidak efektif dan penyumbatan alat yang cepat.
Keperluan untuk bahan bakar berbutir di udara terutama ditentukan oleh mod pembakaran. Mencari rejimen yang betul adalah yang terpenting dan sangat penting. Pembakar masuk ke mod operasi dalam 5 peringkat. Sebelum menggunakan peranti, anda mesti membiasakan diri dengan setiap fasa dengan lebih terperinci.
Langkah pertama adalah menyala. Pembakar dandang pelet dinyalakan menggunakan batang pemetik seramik khas, yang, apabila dihidupkan, memanaskan hingga suhu yang sangat tinggi (900-1100 ° C). Peranti buatan sendiri dapat dinyalakan dengan obor biasa.
Catatan! Dalam keadaan apa pun, cecair mudah terbakar tidak boleh digunakan untuk menyalakan pembakar. Dalam kes ini, proses pembakaran akan segera masuk ke dalam bunker, akibatnya kebakaran akan terjadi.
Tahap kedua dalam penyediaan peralatan untuk operasi adalah pelancaran. Sangat penting untuk menyesuaikan bekalan udara yang betul untuk menyesuaikan api pembakar. Kemudian peranti di-overclock. Pada ketika ini, pembakar memasuki mod operasi biasa.
Setelah pecutan, perlu untuk menyesuaikan udara agar suhu penyejuk yang betul di bahagian belakang ditetapkan di dalam peranti. Kemudian anda perlu menghentikan bekalan bahan bakar berbutir dan menetapkan intensiti udara yang diperlukan.
Ciri reka bentuk pembakar pelet
Tugas utama mana-mana pembakar adalah memastikan pemanasan dandang yang seragam. Matlamat ini dicapai melalui pemprosesan bahan bakar berbutir. Dari sudut pandangan struktur, pembakar adalah ruang pembakaran yang paling sering menyerupai paip dalam bentuk. Pembakaran di dalam alat sedemikian berlaku kerana bekalan udara yang berterusan.
Penghantaran bahan api dilakukan oleh alat khas - auger.Untuk suntikan udara, kipas disediakan dalam struktur, operasi yang tidak membenarkan api padam. Pembakar boleh mempunyai pelbagai bentuk yang tidak mempengaruhi kecekapan peranti dengan ketara. Ruang yang mempunyai keratan rentas bulat adalah yang paling biasa. Ini kerana mereka adalah yang paling senang dibuat. Walau bagaimanapun, pilihan segi empat tepat adalah perkara biasa.

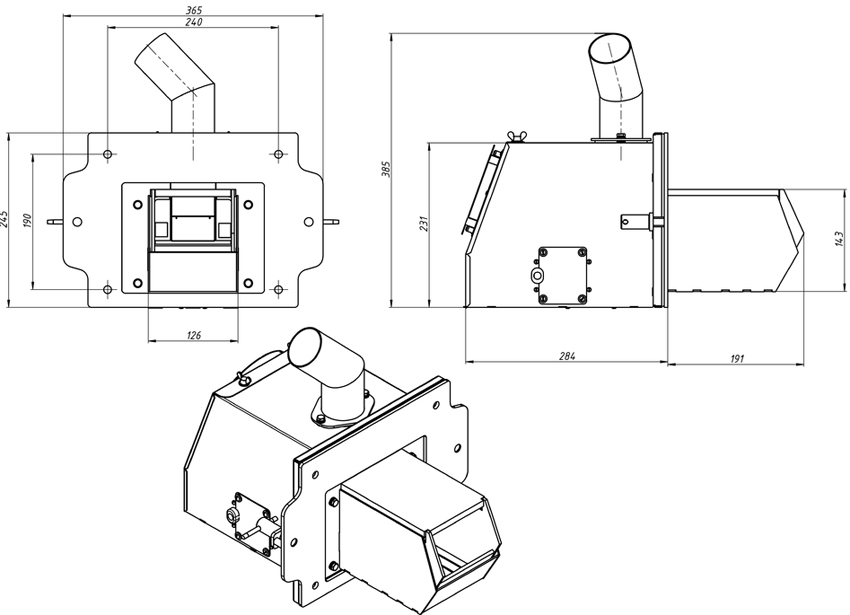
Peranti pembakar pelet, di mana 1 - paparan LCD, 2 - tombol kawalan, 3 - bateri sandaran, 4 - soket penyambung, 5 - sensor tahap bahan bakar, 6 - termostat keselamatan, 7 - sensor foto, 8 - motor auger dalaman, 9 - penyala , 10 - auger dalaman, kotak api, 11 - parut pembakaran, 13 - kipas
Pembakar bulat yang digunakan untuk memproses pelet mempunyai asas rata. Ini digunakan untuk mengandung bahan bakar dan dipasang secara eksternal ke permukaan depan. Perlu diingatkan bahawa sebilangan pembakar mempunyai kemampuan untuk menyambungkan modul GSM. Contohnya ialah pembakar pelet Terminator 15. Harganya kira-kira 75 ribu rubel.
Prinsip operasi peranti ini agak mudah. Pertama, habuk papan dimasukkan ke dalam hopper, setelah itu mereka dihantar melalui saluran ke pembakar. Blower udara mengekalkan tahap nyalaan yang diperlukan di dalam peranti. Produk pembakaran terkumpul di dalam kuali abu. Sebaiknya bersihkan petak ini sekurang-kurangnya sekali seminggu.
Pembakar pelet DIY: varieti
Peranti yang digunakan untuk memproses bahan mentah berbutir dibahagikan kepada dua jenis, bergantung pada prinsip operasi - dengan pengambilan dan gravitasi paksa. Pilihan peralatan ini atau jenis bergantung terutamanya pada keadaan operasi individu.
Catatan! Pilihan pembakar yang paling biasa memerlukan ketersediaan elektrik yang wajib. Dalam kes ini, elektrik diperlukan untuk operasi mekanisme yang memastikan bekalan bahan bakar berbutir tanpa gangguan. Pembakar pelet automatik (dengan pengambilan paksa) dianggap sebagai penyelesaian terbaik untuk mengatur pemanasan bangunan.
Peranti jenis ini merangkumi beberapa mekanisme di mana butiran dibekalkan. Yang pertama beroperasi dengan sistem pneumatik. Mekanisme kedua dilengkapi dengan alat khas - auger. Keselamatan dalam sistem dijamin oleh reka bentuk saluran, dipasang dari bawah ke atas, di mana butiran diberi makan.
Peranti automatik mempunyai satu kelebihan utama - keselamatan kebakaran. Peranti sedemikian digunakan dalam peralatan dari pengeluar yang berbeza. Sebagai contoh, mereka disatukan ke dalam dandang Teplodar. Pembakar pelet, ulasan yang kebanyakannya positif, mempunyai kos yang agak tinggi. Harga beberapa model melebihi 150 ribu rubel. Lebih banyak pilihan belanjawan boleh dibeli dengan harga 60-80 ribu rubel.
Reka bentuk jenis pneumatik menawarkan keselamatan maksimum. Ini kerana sistem pakan pelet memberikan bahan bakar dalam bahagian kecil. Oleh itu, tidak terlewat dalam saluran komunikasi. Untuk pembakar seperti itu, adalah mungkin untuk memasang hopper besar, yang tidak memerlukan beban yang kerap. Peranti jenis ini boleh dibeli jika dikehendaki. Pada masa ini, pembakar pelet pneumatik Obshchemash sangat popular.
Mekanisme makan yang berkaitan dengan jenis skru merangkumi dua unit utama. Dengan bantuan auger pertama, bahan bakar berbutir diambil dari bunker. Pengoperasian peranti ini membolehkan anda memindahkan pelet ke penerima lain. Auger kedua kemudian mengarahkan bahan mentah terus ke pembakar.
Kelemahan peranti di mana bekalan bahan bakar dilakukan secara paksa adalah turun naiknya. Sekiranya berlaku gangguan bekalan elektrik, pembakar berhenti berfungsi.
Pembakar pelet graviti: ciri reka bentuk
Peranti jenis ini, yang beroperasi pada bahan bakar pelet, mempunyai prinsip pemakanan pelet yang berbeza. Segera dikatakan bahawa unit seperti itu lebih senang digunakan. Kelebihan utama mekanisme graviti adalah bahawa ia tidak memerlukan sambungan wajib ke saluran elektrik.
Dalam kes ini, pelet terletak di hopper dan dapat memasuki saluran yang bersambung dengan beratnya sendiri. Terdapat beberapa syarikat domestik popular yang terlibat dalam pengeluaran unit tersebut (Pelletron, Begemot). Pembakar pelet jenis ini sangat mudah dimulakan - dengan mengubah kedudukan peredam. Penting untuk diingat bahawa draf pengatur dipasang di cerobong asap, yang juga dapat disesuaikan.
Catatan! Kelemahan utama semua struktur graviti adalah bahawa ia tidak memberikan keselamatan yang tinggi semasa operasi seperti rakan sejawatnya. Semasa operasi, ada kemungkinan pencucuhan bahan bakar berbutir di bunker. Peningkatan risiko pencucuhan wujud kerana ciri reka bentuk hopper, yang berhubungan langsung dengan lubang di mana bahan bakar dibekalkan.
Kecekapan alat graviti agak lebih rendah daripada analog yang beroperasi kerana pasokan bahan bakar berbutir secara paksa. Memasang pelet pelet jenis ini bukanlah tugas yang sukar. Ia dapat disambungkan sepenuhnya hanya dalam beberapa jam.
Untuk meningkatkan petunjuk keselamatan kebakaran pada peranti ini, banyak pengeluar memasang peredam khas di atasnya. Mereka dilengkapi dengan sensor termal yang, sekiranya api memasuki saluran yang menghubungkan ke hopper, dipicu dan menyekat laluannya.
Bagaimana cara membuat lukisan pembakar pelet dengan betul?
Sebelum memulakan reka bentuk bebas pembakar yang bertujuan untuk pemprosesan bahan bakar pelet, disarankan untuk melengkapkan lukisannya sendiri. Gambar rajah mesti mengandungi maklumat mengenai semua unit dan perincian. Lukisan memerlukan menentukan elemen utama:
- kamera;
- tong bahan api;
- skru;
- kipas.
Gambar rajah harus mengandungi semua dimensi produk yang diperlukan. Semasa membuat gambar pembakar pelet dengan tangan anda sendiri, anda harus ingat bahawa perincian pelaksanaannya bergantung pada seberapa boleh dipercayai alat untuk memproses butiran bahan bakar.
Sebelum mula membuat rajah, disarankan untuk menghitung dimensi hopper yang diperlukan terlebih dahulu. Semasa melakukan pengiraan, anda harus mengambil kira kawasan yang akan dipanaskan oleh struktur. Perlu juga diperhatikan bahawa parameter hopper mempunyai pengaruh langsung pada frekuensi pembersihan.
Kipas dikendalikan oleh unit elektronik. Semasa membuat rajah, anda perlu ingat bahawa prestasi unit utama peranti bergantung pada ketersediaan elektrik.
Artikel berkaitan:
Cara membuat dandang bahan api pepejal yang terbakar lama dengan tangan anda sendiri: gambar
Peranti dan prinsip operasi. Cara melakukannya sendiri. Lukisan dan rajah untuk penghasilan sendiri. Cadangan.
Oleh itu, tidak sukar untuk membuat lukisan pembakar pelet dengan dimensi dengan tangan anda sendiri. Sekiranya perlu, anda boleh menggunakan skema siap pakai, yang mana banyak terdapat di Internet. Tetapi dalam keadaan seperti itu, diperlukan untuk memilih gambar yang akan memenuhi syarat tertentu.
Pembakar pelet DIY: peringkat persediaan
Sebelum memulakan pemasangan pembakar yang memproses bahan bakar berbutir, anda perlu melakukan beberapa persediaan. Pertama sekali, anda perlu mengira kawasan yang akan dipanaskan oleh peranti ini. Mengetahui penunjuk ini, tidak akan sukar untuk mengira kuasa pemanas yang diperlukan. Semasa mengira penunjuk daya unit pelet, faktor-faktor berikut diambil kira:
- suhu purata tahunan di wilayah tertentu;
- kawasan bangunan;
- ketinggian siling di bangunan;
- bilangan bukaan pintu dan tingkap;
- bahan binaan dari mana dinding, lantai dan siling dibuat.

Sebelum membuat pembakar dengan tangan anda sendiri, anda perlu mengira luas bilik yang akan dipanaskan
Maka anda harus menyediakan semua alat yang akan digunakan semasa memasang pelet pembakar dengan tangan anda sendiri. Bahan video dan fotografi membantu mendapatkan idea mengenai proses ini, jadi disarankan untuk mempelajarinya secara terperinci.
Adalah perlu untuk menentukan indeks rintangan pemindahan haba dari bahan yang digunakan. Pekali ini akan diperlukan pada masa akan datang untuk mengira kehilangan haba. Kekuatan peralatan pemanasan mestilah sekurang-kurangnya 10% lebih tinggi daripada kehilangan haba.
Maklumat berguna! Terdapat kalkulator dalam talian khas yang membolehkan anda menentukan kekuatan dandang. Mereka boleh didapati dengan mudah di Internet menggunakan bar carian penyemak imbas.
Pakar mengesyorkan membeli pembakar pelet siap pakai. Harga peranti ini berbeza dari 50 hingga 200 ribu rubel. Agak sukar untuk membuat peranti seperti itu, kerana banyak nuansa kerja mesti diambil kira. Model yang dibeli juga dilengkapi dengan sensor terma yang diperlukan, yang menjadikan operasi mereka mudah dan selamat.
Cara membuat pembakar pelet buatan sendiri: cadangan asas
Unsur struktur yang paling kritikal yang merupakan sebahagian daripada pembakar pelet adalah bakul. Semasa membuat elemen seperti itu sendiri, harus diingat bahawa ada satu masalah umum - pelekat butiran di dinding belakang, yang condong dan mempunyai slot. Untuk menyelesaikan masalah, anda perlu membuat slot dengan cara yang berbeza. Pilihan standard membolehkan slot yang kukuh, tetapi struktur yang lebih selular adalah disyorkan.
Ukuran ideal slot dinding belakang mestilah lebih kecil 2 mm daripada ukuran pelet bahan api sekunder. Jurang antara dinding belakang dan bahagian bawah bakul mestilah sekurang-kurangnya 6 mm. Dinding depan juga mempunyai slot, tetapi dalam keadaan ini mestilah berterusan.
Sebelum memulakan kerja, disarankan untuk mempelajari video yang menunjukkan pemasangan pembakar pelet. Ulasan mengenai pelbagai peranti do-it-yourself juga akan membantu anda memilih pilihan peranti yang diinginkan.
Saluran terletak di bawah bahagian bawah bakul yang dimasukkan ke dalam pembakar. Ia diperlukan untuk udara sekunder. Ketinggian saluran hendaklah lebih kurang 29 mm. Penyimpangan 1 mm dibenarkan di sini. Dinding belakang itu sendiri tidak tegak lurus, tetapi condong. Sudut kecondongan adalah 45 °.

Dianjurkan untuk membuat ukuran dinding belakang keranjang 2 mm lebih kecil dari ukuran butiran bahan bakar pelet
Harga pembakar pelet, yang dibeli siap pakai, adalah beberapa kali lebih tinggi daripada kos versi pasang siap. Oleh itu, pembuatan peranti ini secara bebas dapat menjimatkan wang dengan ketara.
Ukuran bakul dengan dulang dipilih mengikut keperluan individu. Dalam kes ini, perlu memberi tumpuan kepada petunjuk yang menentukan berapa banyak bahan bakar yang akan diproses dalam 1 jam operasi pembakar. Pilihan terbaik adalah peranti dengan dimensi 13x13 cm. Kedalaman bakul sedemikian mestilah kira-kira 10-12 cm.Peranti sedemikian membolehkan anda membakar kira-kira 2-3 kg bahan bakar berbutir dalam 1 jam.
Membuat hopper untuk pembakar pelet dengan tangan anda sendiri
Elemen kedua yang diperlukan bagi mana-mana pembakar yang dipasang pada peralatan pemanasan adalah sebuah hopper. Masalah yang paling biasa berlaku semasa operasi peranti buatan sendiri adalah berkaitan dengan penembusan api ke dalam struktur ini. Untuk memasang bunker yang boleh dipercayai, disarankan untuk menggunakan gambar siap dari bunker Teplodar atau Pelletron yang popular. Pembakar pelet boleh dibuat dalam kapasiti apa pun, tetapi lebih baik menggunakan peranti 15 kW standard sebagai contoh.
Kelantangan bunker juga dipilih secara individu. Anda boleh membuat kotak yang berisi 17 atau 34 kg bahan bakar berbutir. Untuk pembuatan ruang pembakaran, bahan seperti keluli tahan karat digunakan secara tradisional. Lebih-lebih lagi, ketebalannya sekurang-kurangnya 2 mm.
Catatan! Dinding keluli bergabung menggunakan peralatan kimpalan.
Dimensi hopper dipinjam dari mana-mana model yang sesuai (contohnya, Pelletron 15). Pembakar pelet merangkumi saluran udara sekunder, yang paling baik dilakukan dalam bentuk huruf "L". Ini akan meningkatkan kecekapan peranti operasi dengan ketara.
Sebagai tambahan, pembakar harus dibekalkan dengan tiupan. Ini akan memungkinkan untuk mempermudah pelancarannya, kerana reaksi terhadap draf dalam struktur cerobong akan berkurang. Untuk peranti dengan kuasa 15 kW, kipas 20 W sesuai. Pakar mengesyorkan membeli kipas yang disebut siput. Ini disebabkan oleh fakta bahawa pengoperasian peranti sedemikian adalah yang paling mudah untuk dikawal.
Susunan lebih lanjut dandang pelet dengan tangan anda sendiri
Pemasangan badan peranti dijalankan dalam beberapa peringkat. Anda boleh mengatasi tugas ini sendiri, tetapi anda perlu memahami nuansa karya dengan jelas. Tubuh paling baik dilakukan dalam satah mendatar. Ini kerana susunan ini membolehkan kecekapan peralatan maksimum.
Dianjurkan untuk menggunakan batu bata (fireclay) sebagai bahan untuk pembuatan casing tersebut. Prosesnya kelihatan sangat mudah. Anda perlu memasang kotak dan meletakkan penukar haba di dalamnya. Perlu diingatkan bahawa sarung bata dibuat tanpa penutup atas. Penukar haba mesti mempunyai saluran keluar untuk menyambungkan paip pemanasan.
Jangan lupa bahawa pembakar mesti dilengkapi dengan alat kawalan khas. Pembakar pelet boleh sepenuhnya mekanikal, tetapi dalam kes ini jauh lebih sukar untuk menyesuaikannya. Peraturan dilakukan dengan mempertimbangkan karakteristik individu perangkat dan luas ruangan yang dipanaskan.
Penggunaan batu bata untuk memasang kandang dianjurkan kerana mempunyai sifat penebat yang baik dan mampu menyimpan haba lebih banyak daripada bahan biasa lain seperti keluli dan besi tuang. Foto pembakar dan peralatan pemanasan lain boleh didapati dengan mudah di Internet.

Untuk membuat penukar haba, anda perlu memotong paip dengan keratan rentas segi empat tepat dan menyambungkannya bersama
Pertama sekali, penukar haba dihasilkan. Untuk melakukan ini, perlu menyiapkan paip dengan keratan rentas segi empat tepat. Kemudian mereka perlu dipotong (sesuai dengan gambar) menjadi kepingan panjang yang diperlukan. Selepas itu, segmen individu dihubungkan bersama menggunakan pengelasan. Ia diperlukan untuk menyediakan bekalan paip ke penukar haba. Kemudian cerobong dengan panci abu dipasang.
Bagaimana cara automatik proses dan mengkonfigurasi pembakar pelet?
Dandang pelet buatan sendiri mempunyai satu ciri - ketiadaan peranti dalam reka bentuk yang menyediakan aliran draf semula jadi. Seperti yang anda ketahui, mustahil untuk mengekalkan nyalaan di dalam peranti tanpa draf, oleh itu, kipas diperlukan. Untuk memastikan kelancaran dandang, auger juga digunakan, yang bertanggung jawab untuk menghantar bahan bakar dari hopper ke ruang pembakaran.
Untuk mengautomasikan sepenuhnya aliran kerja dan, jika perlu, mencapai penyesuaiannya, perlu menggabungkan pengawal ke dalam reka bentuk. Peranannya dimainkan oleh unit kawalan pembakar pelet.
Catatan! Pengendalian mekanikal dilakukan dengan cara pengatur sederhana.
Tugas utama yang memastikan operasi normal peralatan pemanasan adalah mencapai keseimbangan antara dua petunjuk utama. Yang pertama adalah isipadu bahan bakar berbutir, dan yang kedua adalah kadar aliran udara. Sekiranya dapat menyesuaikan indikator-indikator ini dengan betul, nyalaan akan menyala penukar haba secara merata.
Semua nilai yang diperlukan dapat disesuaikan menggunakan modul kawalan pembakar. Apa ini? Unit kawalan memberikan kawalan penuh terhadap operasi unit pemanasan. Sejauh ini pilihan terbaik adalah membeli peranti baru.
Model yang dibeli mempunyai keupayaan untuk menyambung dengan cepat ke elemen kerja utama dandang pelet. Akibatnya, pengawal akan mengatur kadar pengisian bahan bakar berbutir serta kecepatan kipas. Penyesuaian pembakar pelet membolehkan paparan, yang terletak di unit kawalan.
Perlu diperhatikan bahawa auger mesti mempunyai sensor yang memantau keperluan untuk membekalkan bahan bakar berbutir. Ia berfungsi seperti berikut: ia mengesan bila auger penuh dan menghantar isyarat ke peralatan. Selepas itu, makanan pelet ditangguhkan.
Pellet burner Zota Fox 25: model yang boleh dipercayai dan cekap dengan fungsi yang luas
Pembakar pelet jenis ini digunakan dalam dandang Zota dari siri Fox. Ia digunakan dalam unit pemanasan, reka bentuknya tidak termasuk plat yang terbuat dari bahan besi tuang. Sehingga kini, pembakar seperti itu telah membuktikan dirinya hanya dari sisi terbaik. Ia dibezakan oleh kecekapan dan kebolehpercayaannya, serta jangka hayat yang panjang.
Pembakar pelet Zota Fox memproses bahan bakar pelet. Ukuran setiap pelet yang digunakan dalam kes ini antara 6 hingga 8 mm. Kekuatan unit ini diatur oleh sistem automatik. Penunjuk ini boleh berbeza (dari 5 hingga 25 kW).
Memasang pembakar pelet Zota pada dandang pemanasan bahan api pepejal membolehkan anda mengautomasikan aliran kerjanya. Peralatan yang dilengkapi dengan unit pemprosesan butiran mempunyai kelebihan tertentu:
- mengurangkan kos pemanasan bangunan kediaman;
- peningkatan dalam tempoh kerja semasa memuatkan satu bahagian bahan bakar berbutir;
- mengekalkan suhu yang diperlukan di dalam bilik.
Maklumat berguna! Petunjuk kuasa pembakar yang digunakan untuk memproses pelet ditentukan bergantung pada kawasan bilik yang dipanaskan. Perlu diperhatikan bahawa peranti 1 kW mampu memberikan haba ke ruangan dengan luas 10 m².
Kuasa pembakar disesuaikan secara automatik. Untuk ini, modul kawalan khas disediakan dalam reka bentuk. Pembakar pelet Zota Fox (5-25 kW) mempunyai banyak fungsi tambahan yang mudah diaktifkan dan dikonfigurasi pada panel kawalan. Ini termasuk penyalaan automatik bahan bakar berbutir, permulaan dan penutupan cepat, pembersihan pembakar automatik dan mod lain.
Keselamatan pada alat seperti itu dilaksanakan oleh sensor yang mengatur suhu pembakaran bahan bakar. Peranti ini juga boleh disambungkan ke modul GSM atau termostat yang dipasang di bilik yang dipanaskan. Kos pembakar tersebut adalah kira-kira 75 ribu rubel.
Pembakar pelet automatik Teplodar APG-25
Peranti ini automatik. Ia mempunyai banyak faedah. Produk syarikat ini berkualiti tinggi dan jangka hayat yang panjang. Pembakar jenis ini dilaksanakan bersama dengan hopper, yang dihantar dibongkar. Selain hopper, kit ini termasuk auger yang memberikan pelet, dan juga panel kawalan.
Model ini mempunyai banyak kelebihan. Salah satunya adalah kemudahan pemasangan. Sekiranya dikehendaki dan dengan kemahiran tertentu, penyambungan model sedemikian dapat diselesaikan hanya dalam 30 minit. Pembakar pelet Teplodar memerlukan penyesuaian awal, yang dibuat sesuai dengan keperluan. Hopper tidak boleh diisi terlalu kerap (2 kali seminggu sudah cukup).
Dalam kes ini, panci abu dibersihkan dari produk pembakaran tidak lebih dari 2 kali seminggu. Sebagai peraturan, hanya satu masa yang mencukupi. Harus diingat bahawa, selain APG-25, terdapat pengubahsuaian yang lebih kuat yang dihasilkan oleh pengeluar ini. Sebagai contoh, model APG-42 telah tersebar luas.
Peranti ini dipasang pada peralatan pemanasan Cooper. Pembakar pelet jenis ini dilengkapi dengan skru yang diperbaiki, yang meningkatkan kebolehpercayaan keseluruhan struktur dan jangka hayat operasinya. Panel kawalan mempunyai paparan yang mudah dan difahami, yang menunjukkan semua parameter operasi peralatan pemanasan yang diperlukan.
Oleh itu, untuk menghasilkan pembakar yang memproses pelet pelet, pertama sekali perlu mengira daya dan menyiapkan lukisan. Semasa bekerja, anda mesti berhati-hati, kerana sebarang kesalahan yang dilakukan semasa pemasangan struktur boleh menyebabkan kebakaran pelet di hopper.