Di laman web syarikat pembinaan, anda boleh menemui beribu-ribu projek yang indah dan praktikal di domain awam. Tetapi setiap pemilik pondok musim panas mempunyai idea tersendiri tentang apa yang seharusnya menjadi rumah mandi dengan loteng: bermula dengan bahan yang akan dibina bangunan itu, diakhiri dengan susun atur, susunan ruang dalaman dan membahagikannya menjadi zon berfungsi. Artikel ini akan membantu anda membuat projek yang sangat selesa dan selesa.

Sauna dengan loteng adalah tempat yang berfungsi sepenuhnya untuk bersantai untuk seisi keluarga atau bersama rakan
Kandungan
- 1 Mandi dengan loteng: kelebihan dan kekhususan projek
- 2 Ciri-ciri membina tab mandi: projek, harga dan bahan
- 2.1 Pilihan bahan untuk pelaksanaan projek rumah mandi dengan loteng
- 2.2 Projek mandi rumah dengan loteng dan beranda untuk penggunaan sepanjang tahun
- 2.3 Projek praktikal dan praktikal rumah mandian dengan loteng dan teres
- 2.4 Ciri-ciri projek mandi 6 hingga 6 dengan loteng dan ruang berehat
- 2.5 Projek sauna ergonomik dengan garaj di bawah satu bumbung
- 3 Cara memilih dan melaksanakan projek mandi dua tingkat
Mandi dengan loteng: kelebihan dan kekhususan projek
Mengambil penyelesaian yang tidak biasa untuk membina pondok musim panas di rangkaian, semakin kerap anda dapat mencari gambar mandi yang menarik dengan loteng. Tidak jarang pemilik tanah menggunakan elemen seni bina ini untuk memperbaiki dan memperluas kemungkinan susun atur bangunan seperti itu.
Lantai loteng sesuai untuk mengatur premis untuk pelbagai tujuan:
- tandas;
- gim dengan peralatan senaman;
- bilik biliard;
- pantri untuk menyimpan peralatan mandi, tuala, dll.
Tetapi penyelesaian terbaik adalah menggunakan loteng untuk mengatur bilik untuk hiburan yang menyenangkan.
Kelebihan menggunakan projek mandi dengan loteng
Selalunya, ruang di bawah bumbung digunakan sebagai loteng, di mana barang-barang hanya disimpan. Namun, para pereka dapat menemukan penggunaan yang lebih baik untuknya setelah permintaan untuk bangunan dengan lantai loteng meningkat.
Kelebihan projek sedemikian jelas:
- Pemiliknya berpeluang menjimatkan ruang kosong dengan ketara, serta mengagihkan kawasan yang boleh digunakan secara rasional.
- Projek mandi dengan loteng 6x8 m dan lebih boleh dianggap sebagai rumah tumpangan yang sesuai untuk kediaman sementara saudara-mara dan rakan-rakan yang datang berkunjung ke negara ini.
- Rumah mandi dengan loteng kelihatan lebih menarik daripada bangunan satu tingkat biasa.Lebih-lebih lagi, kos struktur sedemikian jauh lebih rendah daripada harga bangunan dua tingkat.
Nasihat berguna! Sekiranya anda melihat dinding hujung loteng, anda boleh mendapatkan beranda yang indah. Ruang ini juga dapat digunakan untuk membuat elemen struktur lain, misalnya, untuk mengatur teras atau balkoni terbuka.

Rumah mandian dengan loteng akan menjadi sudut rehat yang selesa pada bila-bila masa sepanjang tahun
Sekiranya anda menggunakan ruang di bawah bumbung dengan bijak, anda dapat mengurangkan kos pemanasan. Lantai loteng boleh dipanaskan dengan dapur sauna, kerana keadaan mikroklimatik yang selesa akan dijaga di kawasan ini. Sekiranya tempat mandi direka khas untuk operasi pada musim panas, ruang di bawah bumbung boleh berfungsi sebagai ruang tamu. Penyelesaian yang sangat baik ialah mengatur dapur musim panas dengan pemandangan indah dari tingkap.
Kekhususan projek kompak rumah mandian dengan loteng
Malah projek bangunan khas boleh berbeza dari segi ukuran dan susun atur dalaman. Selalunya, pemilik pondok musim panas, kerana kekurangan ruang kosong, lebih suka bangunan kompak. Atas sebab ini, yang paling popular adalah projek mandi dengan loteng 6x6 m dan 4x6 m.
Walaupun ukuran dan kesederhanaan tata letaknya jelas, bangunan seperti itu dapat menyediakan semua syarat untuk berehat yang baik. Mereka sesuai untuk keluarga dengan sebilangan kecil orang atau pemilik kawasan pinggir bandar dengan kawasan kecil.
Projek mandi biasa dengan loteng 6 x 4 m biasanya merangkumi set premis standard:
- bilik wap;
- ruang depan;
- bilik mandi;
- beranda atau teres.
Beberapa reka bentuk yang padat tidak menganggap kehadiran beranda atau teres. Dalam kes ini, seluruh kawasan kawasan masuk diperuntukkan untuk susunan bilik rehat. Di loteng, ruang tamu diatur untuk para tetamu. Terdapat juga pantri untuk menyimpan aksesori mandi. Tempat untuk memasang tangga dipilih agar tidak merosakkan bahagian dalam.
Kelebihan mandi dengan loteng 6x6 m dan 4x6 m adalah juga bahawa bangunan seperti itu memerlukan ruang minimum di pondok musim panas dan membolehkan anda menyelamatkan wilayah yang berdekatan. Pada masa yang sama, susun atur, seperti dimensi dalaman premis, boleh berubah atas permintaan pemaju.
Nota! Ketinggian minimum siling di loteng hendaklah 2-2.5 m.

Lantai loteng mestilah rendah, kerana bilik yang lebih tinggi dianggap sebagai lantai penuh dan dikenakan cukai
Ciri-ciri membina tab mandi: projek, harga dan bahan
Praktikal mandi yang luar biasa dengan loteng membolehkan anda melaksanakan sepenuhnya pelbagai susun atur dan penyelesaian reka bentuk. Sekiranya anda ingin berusaha sendiri untuk merancang bangunan, ada banyak peluang untuk penjelmaan idea asli.
Atas struktur paling penting dari lantai loteng adalah struktur tangga. Tanpa itu, pendakian ke tingkat atas mandi tidak mungkin dilakukan. Kekhususan lain dari bangunan loteng adalah struktur bumbung khas. Kita tidak boleh lupa bahawa ruang di bawah bumbung agak terhad. Untuk mengeluarkan rakaman berguna maksimum daripadanya, disarankan untuk membuat atap gable dengan struktur yang patah.
Pilihan yang tidak sesuai untuk projek mandi 2 tingkat dengan loteng adalah bumbung bernada. Malah jenis atap gable tradisional tidak akan membawa keselesaan yang diinginkan. Selalunya, pemaju menggunakan struktur bumbung jenis khemah.
Berdasarkan geometri dan parameter bumbung, pilihan mengangkat ke loteng dipilih. Yang paling praktikal dan boleh dipercayai adalah struktur tangga jenis perarakan. Proses pemasangan mereka di kawasan terhad disertai oleh banyak kesukaran.Untuk projek berukuran 3x4 m atau 4x4 m, lebih baik memilih pilihan reka bentuk lain. Tangga Boltsev mempunyai sifat yang hampir sama dengan alat perarakan. Langkah-langkah produk sedemikian terpaku pada dinding.
Penting! Baut-tangga tidak dapat dipasang di bak mandi yang dibuat menggunakan teknologi bingkai. Struktur sedemikian memerlukan sokongan galas yang kukuh. Dalam kes lain, tidak ada sekatan.
Tangga spiral dianggap paling tidak senang dari segi operasi. Tetapi mereka mempunyai penampilan yang luar biasa dan berkesan menjimatkan ruang dalaman. Produk sedemikian sesuai untuk mandi kompak.
Pilihan bahan untuk pelaksanaan projek rumah mandi dengan loteng
Terdapat pelbagai jenis bahan binaan di pasaran yang dapat digunakan untuk membina tempat mandi. Projek mandi dengan loteng yang terbuat dari kayu (terpaku atau diprofilkan), balok busa, balak (bulat) sangat diminati.
Bahan lain juga sesuai untuk tujuan ini:
- batu bata;
- blok kayu;
- konkrit berudara;
- blok kerangka.
Sekiranya konkrit berudara, bata atau konkrit busa digunakan untuk pembinaan tab mandi, anda tidak boleh melakukannya tanpa kerja menghadap dalaman dan luaran. Keperluan ini disebabkan oleh ciri teknikal bahan-bahan ini. Sekiranya dinding bata tidak mempunyai penebat tambahan, bilik di dalam tab mandi akan menjadi sejuk.

Kayu adalah bahan yang paling popular untuk pembinaan tempat mandi di garis lintang kita
Perkara yang sama berlaku untuk projek mandi dengan loteng yang terbuat dari blok busa dan konkrit berudara. Struktur bahan ini berliang; takut terkena kelembapan tinggi dan perubahan suhu secara tiba-tiba. Perlu diperhatikan bahawa pelapisan dinding dilakukan selari dengan pembinaan bangunan.
Bahan yang paling optimum untuk mandi adalah kayu. Ia mesra alam, tahan lama dan boleh dipercayai, tahan lama dan praktikal. Bahan ini juga sesuai untuk pembinaan kerangka. Lebih-lebih lagi, bingkai itu boleh menjadi kayu atau logam. Di atasnya, pelekap dipasang. Sangat penting bagi bangunan sedemikian untuk memilih bahan penebat berkualiti tinggi. Sebagai hiasan untuk mandi jenis bingkai, panel blok, kayu, lapisan sesuai.
Nota! Teknologi pembinaan bingkai adalah yang paling menguntungkan dari segi kelajuan dan kos. Struktur sedemikian tidak memerlukan pembuatan asas yang besar dan kukuh. Terdapat peluang untuk menjimatkan pembelian bahan. Di samping itu, mandi kerangka kurang bergantung pada ciri-ciri tanah.
Kos purata untuk pembinaan mandian dari pelbagai bahan:
Bahan | Harga, RUB / m² |
Kayu (teknologi bingkai) | Dari 9000 |
Konkrit busa, konkrit berudara | Dari 11000 |
Log | Dari 12000 |
Rasuk | Dari 14000 |
Bata | Dari 16000 |
Projek mandi rumah dengan loteng dan beranda untuk penggunaan sepanjang tahun
Projek mandi yang diperbuat daripada kayu 6x6 dengan loteng mendapat permintaan tinggi di kalangan pemilik pondok musim panas, yang terletak di wilayah tengah dan barat laut. Kawasan terbuka boleh digunakan secara eksklusif pada musim panas. Sekiranya anda membuat beranda ditutup, ia akan menjadi sesuai untuk digunakan pada musim sejuk. Dalam kes ini, luas 6 m² diperuntukkan untuk susunan beranda. Ruang ini cukup untuk melengkapkan tempat rehat yang selesa untuk 2-3 orang.
Di beranda anda boleh meletakkan:
- meja kecil;
- kerusi;
- beberapa kerusi berlengan atau sofa.
Di samping itu, projek sauna 6x6 dengan loteng menyediakan ruang rehat yang berasingan di tingkat bawah. Ukurannya 8.1 m². Dari bilik ini, tangga menuju ke lantai loteng, yang luasnya 25 m². Terdapat cukup ruang di sini untuk menampung sebuah syarikat besar untuk bersantai atau melengkapkan ruang tamu yang membolehkan penggunaan tempat mandi untuk kediaman tetap atau sementara para tetamu.
Untuk kemudahan, tab mandi mempunyai bilik cuci dan bilik mandi. Sekiranya kompor dipasang di bilik wap, pembakaran boleh dilakukan terus dari bilik rehat. Ketinggian siling di tingkat bawah adalah 2,1 m, yang memungkinkan untuk memasang rak dua tingkat di bilik wap. Adalah wajar bahawa mereka bersudut. Oleh itu, adalah mungkin untuk meningkatkan jumlah orang yang secara serentak dapat berada di bilik wap.
Projek praktikal dan praktikal rumah mandian dengan loteng dan teres
Projek kompak rumah mandian dengan loteng 6x4 m merangkumi bukan sahaja premis utama, tetapi juga teres. Berkat ini, pemiliknya tidak hanya dapat bersantai di bilik wap, tetapi juga menghabiskan hujung minggu dengan selesa di dacha. Walaupun dengan ukuran yang kecil, pendekatan yang kompeten untuk merancang akan mewujudkan keadaan yang diperlukan di tempat mandi untuk berehat dengan baik.
Artikel berkaitan:
Mandi dengan kolam renang: projek kompleks mandi yang menakjubkan untuk bersantai
Projek bilik wap dengan kolam renang. Ciri dan susunan pembinaan struktur. Foto dan penerangan mengenai susun atur yang paling berjaya dan sesuai.
Di tingkat bawah bangunan, anda boleh melengkapkan premis berikut:
- bilik wap (5 m²);
- bilik rekreasi (8 m²);
- bilik mandi (8 m²);
- teres terbuka (15 m²).
Dianjurkan untuk mengatur ruang tamu seluas 15 m² di lantai loteng.
Nasihat berguna! Projek rumah mandi 6 x 4 dengan loteng dapat diperbaiki dengan menambahkan balkoni yang luas ke tingkat atas, dari mana pemandangan indah di sekitarnya akan dibuka.
Ciri-ciri projek mandi 6 hingga 6 dengan loteng dan ruang berehat
Tidak kurang selesa akan projek mandi, susun aturnya menyediakan kehadiran bilik tamu yang luas. Dalam kes ini, disarankan untuk menggunakan balok dengan ukuran keratan 100x150 atau 150x150 mm untuk pembinaan bangunan. Pin harus digunakan sebagai elemen penetapan. Mereka boleh diperbuat daripada logam atau kayu. Ia akan berguna untuk menggunakan pemanas mezhventsovy. Untuk tujuan ini, kain tali sangat sesuai.
Susun atur dalaman merangkumi:
- dewan;
- bilik mandi;
- bilik wap;
- tandas;
- dewan dan bilik tidur (tingkat loteng).
Untuk memasang mandi 6 hingga 6 dengan loteng, disarankan untuk menggunakan jenis sambungan "setengah bar". Untuk pembinaan partisi dalaman yang membahagi ruang menjadi bilik yang berasingan, anda perlu menggunakan bar. Lantai terbentuk dari papan bermata dengan ukuran keratan 50x150 mm.
Untuk menghilangkan kehilangan haba melalui lantai, pemasangannya dilakukan mengikut skema tertentu:
- Di atas balak, dipasang dengan ketinggian 0,8 m, papan separa bermata terpasang.
- Seterusnya, lapisan penebat gulungan diletakkan. Ketebalan bahan - sekurang-kurangnya 5 cm.
- Lantai penamat dibentuk dari papan.
Untuk projek yang dibentangkan, bumbung dengan struktur miring sangat sesuai. Dianjurkan untuk memasang kasau menggunakan papan bermata, yang parameternya 40x100 mm. Gerbang dilapisi dengan papan klap, dan bumbung ditutup dengan batu tulis.

Pengaturan mandi dua tingkat akan membolehkan anda membuat tempat berehat atau penginapan untuk para tetamu
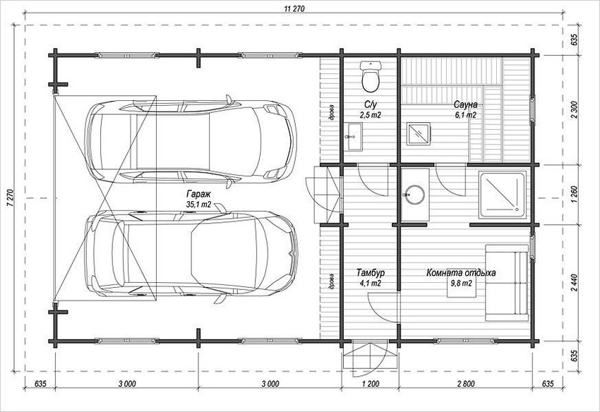
Projek sauna ergonomik dengan garaj di bawah satu bumbung
Sauna-garaj adalah struktur di mana dua objek dihubungkan secara organik - tempat letak kenderaan tertutup untuk kereta dan bilik wap. Pembinaan projek sedemikian biasanya dilakukan sekiranya sumber kewangan pemiliknya terhad. Sekiranya anda menambahkan loteng di atas struktur, bangunan itu boleh dijadikan rumah tamu dengan selamat.
Projek berskala besar rumah mandian dengan garaj untuk dua kereta boleh terdiri daripada premis berikut:
- bilik persalinan (5 m²);
- bilik wap (10 m²);
- bilik rehat (12.5 m²);
- bilik mandi (3 m²);
- bilik mandi (2 m²);
- bilik berehat (12.5 m²);
- kolam.
Dan semua ini diletakkan di kawasan seluas 140 m². Kira-kira satu pertiga dari ruang ini diperuntukkan untuk susunan garaj - kira-kira 45 m².Premis teknikal sedang dibina di sebelah kolam renang:
- tukang kayu;
- bilik dandang;
- bilik dandang.
Nasihat berguna! Bengkel boleh dilengkapi di garaj, dengan itu meningkatkan fungsi bangunan.
Cara memilih dan melaksanakan projek mandi dua tingkat
Pembuatan mandian berdasarkan penyelesaian siap pakai adalah perkhidmatan yang sangat popular di pasaran. Pada masa yang sama, pemilik plot tanah dapat yakin sepenuhnya bahawa dengan memerintahkan pembinaan bangunan 2 tingkat, mereka akan menemui projek mandi dari bar atau balak yang akan memenuhi semua standard dan norma keselamatan. Dalam kes ini, anda bukan sahaja dapat menjimatkan masa yang signifikan, tetapi juga hasil berkualiti tinggi, disokong oleh jaminan.
Syarikat pembinaan biasanya merangkumi peralatan standard:
- rumah balak (atau kotak);
- asas asas;
- partition;
- bumbung;
- struktur pintu dan tingkap.
Projek turnkey mandi dua tingkat dan harga untuk pelaksanaannya bergantung pada dimensi struktur dan bahan yang dipilih untuk pembinaan.
Semasa memilih ukuran bangunan masa depan, nuansa berikut mesti diambil kira:
- jenis penempatan mandi di laman web ini (struktur yang terpisah atau pengembangan ke bangunan kediaman);
- jumlah kawasan plot tanah dan jumlah ruang kosong;
- bilangan orang yang akan mengunjungi rumah mandian;
- ketebalan bahagian dan dinding dalaman;
- jenis bahan penebat dan penamat;
- susun atur dalaman dan ciri-cirinya.
Penting! Sebelum memasuki tab mandi, sangat mustahak untuk membuat ambang tinggi, yang akan naik sekitar 15 cm di atas permukaan lantai.
Ciri-ciri projek dan harga mandi dua tingkat yang diperbuat daripada kayu dan balak
Hampir semua bahan sesuai untuk pembinaan tab mandi, tetapi kayu dan balak dianggap paling popular. Untuk menentukan pilihan mana yang lebih boleh diterima, perlu membandingkan ciri masing-masing.
Ciri perbandingan bahan untuk membina tab mandi:
Kriteria | Projek mandi dua tingkat dari bar | Projek mandi dua tingkat dari balak |
Harga bahan, rubel / m³ | Tidak dicukur (5000) | Tidak disekat (5000) |
Diprofilkan (10000) | ||
Kering (10000) | Bulat (10000) | |
Dilekatkan (25000) | ||
Ciri pemasangan | Tempoh pembinaan dari 2 hingga 6 minggu, keupayaan untuk melakukan kerja dengan tangan anda sendiri | Jangka masa pembinaan adalah dari 2 hingga 8 minggu, kerja dilakukan oleh pakar, beroperasi dalam 6 bulan. |
Kebersihan ekologi | Keramahan alam sekitar (kecuali kayu venir berlamina, semasa membelinya, anda harus memeriksa ciri-ciri pelekat) | Bahan mesra alam |
Pengecutan | Dilekatkan - 2% | 15% |
Berprofil - 5% | ||
Tidak Berbentuk - 10% | ||
Ciri-ciri kerja penamat | Penutup dinding hanya diperlukan sekiranya kayu yang tidak dirawat digunakan, bahan berprofil tidak memerlukan ini | Dinding perlu mendempul dan mengempis |
Sifat hiasan | Penampilan moden, pelbagai reka bentuk | Keaslian yang wujud dalam bilik wap tradisional Rusia |
Kos membina mandi 6x6 m, sapu. | 409000 (63 m²) | 463000 (64m²) |
Untuk pembinaan mandian moden, disarankan menggunakan bar. Terdapat beberapa jenis bahan ini di pasaran, masing-masing mempunyai kelebihan dan kekurangan, sifat dan ciri teknikalnya sendiri.
Sebagai contoh, bar yang dililit boleh mempunyai ukuran keratan rentas dalam lingkungan 150-200 mm. Keratan rentasnya berbentuk segi empat sama atau segi empat tepat. Pilihan ini dianggap paling anggaran, tetapi dari segi ciri-ciri operasi, kerugian ketara daripada jenis kayu lain. Bahan berprofil dicirikan oleh kejelasan geometri bentuk dan saiz, kerana pembinaan mandi sangat dipermudah dan dipercepat. Ukuran bahagian antara 100 hingga 150 mm.
Kayu berprofil terpaku dianggap sebagai pilihan bahan berkualiti tinggi.Projek berdasarkan bahan mentah ini mempunyai kos tertinggi.
Hari ini, pemilik pondok musim panas dengan kawasan terhad bahkan mampu membeli kemewahan untuk membina mandian yang selesa. Ini dimungkinkan oleh pendekatan moden untuk reka bentuk bangunan. Perkara utama adalah dengan mahir mendekati pilihan susun atur dan bahan binaan.