Artikel ini akan membantu anda memilih projek terbaik untuk rumah satu tingkat dengan teres untuk kawasan pinggir bandar, yang akan memenuhi semua keperluan kepraktisan dan keselesaan. Teks ini mengandungi maklumat mengenai semua ciri bangunan seperti itu: kelebihan dan kekhususan bangunan dengan teras, peraturan untuk meletakkan elemen struktur ini berkaitan dengan titik kardinal dan angin naik. Penerbitan ini merangkumi reka bentuk dan gambar yang popular.

Projek siap rumah satu tingkat dengan teres akan sesuai dengan orang-orang yang ingin menikmati kehidupan desa dan menggunakan semua kelebihan pondok persendirian
Kandungan
Projek rumah satu tingkat dengan teres: ciri bangunan dengan kawasan pintu masuk
Rumah teres banyak digunakan dalam pembinaan pinggir bandar. Bangunan sedemikian sesuai dengan pemandangan indah di laman web ini, tanpa mengira sama ada ia berasal dari alam semula jadi atau dibuat oleh tangan manusia. Oleh itu, projek rumah bingkai dengan teres mendapat permintaan tinggi di kalangan pemaju.

Sebilangan besar projek rumah satu tingkat dengan teres mempunyai jalan keluar tambahan dari ruang tamu atau dapur ke teras, ini sangat mudah dan hampir selalu dibenarkan
Idea siap pakai dengan perwujudan asli akan sesuai dengan pemilik kawasan pinggir bandar yang berusaha bukan hanya untuk menikmati hidup, tetapi juga mendapatkan jumlah faedah maksimum dalam proses pembinaan bangunan. Akibatnya, menjadi mungkin untuk mendapatkan perumahan yang asli dan bergaya dengan susun atur yang unik dan selesa.
Dalam foto itu, projek rumah satu tingkat dengan teres kelihatan menarik. Mereka menggabungkan trend moden dalam pengembangan seni bina dan idea reka bentuk terbaik. Selain itu, bangunan sedemikian mematuhi semua standard dan peraturan keselamatan.

Projek rumah satu tingkat dengan teres paling banyak diminati di kawasan yang lebih selatan dan lebih panas.
Bagaimana teras terpasang di rumah: foto projek dengan pelbagai jenis penempatan kawasan pintu masuk
Di rangkaian, anda boleh menemui banyak penyelesaian reka bentuk berwarna dan tidak biasa dalam foto; teres ke rumah paling sering dipasang dari sisi dapur atau ruang tamu. Jenis penginapan ini didorong terutamanya oleh pertimbangan kemudahan, keselesaan dan kepraktisan. Dalam 90% kes, teres terletak di seberang pintu masuk utama. Penyelesaian reka bentuk ini adalah pilihan reka bentuk tradisional untuk bangunan satu tingkat yang terletak di wilayah selatan.
Semasa mengembangkan projek untuk rumah masa depan, seseorang harus mengambil kira titik kardinal. Dengan meletakkan teras dengan cara tertentu, anda boleh memberikannya ciri-ciri yang diperlukan. Sekiranya elemen struktur ini berorientasi ke selatan, maka lebih banyak cahaya dan haba akan meresap ke bilik bersebelahan.
Nasihat berguna! Sekiranya teres terletak di sebelah selatan rumah, disarankan untuk memasang kanopi dengan struktur yang boleh ditanggalkan. Di kawasan yang ditandai dengan musim panas yang gerah, elemen ini sangat diperlukan, kerana terlalu banyak cahaya matahari akan menyebabkan terlalu panas di tempat tersebut. Sekiranya perlu, kanopi seperti itu dapat dikeluarkan.
Selalunya, pengguna menemui gambar rumah satu tingkat dengan teres yang terletak di sebelah barat. Reka bentuk sedemikian sesuai untuk orang yang akan menggunakan kawasan pintu masuk pada waktu petang. Walaupun teras mempunyai struktur tertutup, melindungi ruang dari angin barat, pada waktu matahari terbenam sinar matahari masih akan menembus ke kawasan ini, memberikan persekitaran yang selesa untuk bersantai.

Sebuah rumah dengan teres kelihatan sangat mengagumkan dengan latar belakang pemandangan yang indah, baik yang semula jadi dan buatan manusia.
Reka bentuk rumah moden dengan teres dan balkoni yang terletak di sebelah timur bangunan sesuai untuk orang yang suka bersarapan di luar rumah. Unsur-unsur struktur ini menjadi panas pada waktu pagi. Pada masa yang sama, mereka dilindungi dengan pasti dari terik matahari pada waktu petang.
Sekiranya teras menghadap ke utara, kesan cahaya yang tersebar akan dibuat. Berkat ini, keadaan optimum diciptakan untuk mengatur ruang makan di bahagian rumah atau bengkel ini untuk kreativiti. Dalam kes ini, sangat diinginkan bahawa teras mempunyai struktur terbuka dan cukup diterangi cahaya matahari.

Apabila teres disediakan dalam projek, ia boleh menggantikan ruang makan pada musim panas, atau kawasan rekreasi boleh terletak di sini.
Kelebihan projek moden rumah dengan teres
Terlepas dari bahan yang digunakan untuk pembinaan, sebuah rumah dengan teras mempunyai banyak kelebihan.
Kawasan pintu masuk boleh digunakan untuk mengatur objek berikut:
- dapur musim panas;
- tempat di bawah kurang ajar;
- ruang makan untuk makan di udara segar;
- kawasan untuk mengeringkan pakaian;
- taman permainan.
Tidak seperti projek rumah dua tingkat dengan teres, bangunan satu tingkat lebih menjimatkan. Jenis asas bangunan dipilih dengan mengambil kira ciri-ciri tanah. Dalam kebanyakan kes, anda boleh mendapatkannya dengan pembinaan asas paling mudah, yang membolehkan anda mengurangkan kos kewangan dan menjimatkan masa.
Teres meningkatkan sifat penebat haba bangunan. Struktur ini bertindak sebagai penghalang pelindung untuk memberikan perlindungan angin. Berkat ini, pemilik rumah dapat menjimatkan penebat haba, dan juga mengurangkan kos pemanasan rumah pada masa akan datang.
Sekiranya anda memasukkan teres dalam reka bentuk kediaman anda, anda boleh membuat hubungan yang rapat antara bangunan dan pemandangan sekitarnya. Lebih-lebih lagi, pemilik bangunan secara bebas dapat memutuskan ke mana pandangannya akan diarahkan: di kebun epal, sungai atau tasik, hutan, dll. Lebih senang menikmati pemandangan yang indah dari teres daripada dari tingkap.
Kehadiran teres membolehkan anda menambah ruang tamu bangunan.Pada musim panas, ruang ini dapat digunakan untuk rekreasi keluarga, misalnya, untuk pesta teh, menerima tetamu atau duduk dengan permainan papan.
Nasihat berguna! Sekiranya anda mengilap teras, anda akan mendapat beranda yang selesa. Dengan penebat yang betul, ia dapat digunakan walaupun pada musim sejuk, apabila terdapat embun beku yang teruk di luar tingkap.
Dalam beberapa kes, struktur tanah lebih sesuai daripada struktur bertingkat. Bangunan seperti itu kelihatan harmoni di kawasan dengan kawasan yang luas. Di samping itu, projek rumah dua tingkat dengan teres melibatkan pembinaan tangga. Ini dipenuhi bukan sahaja dengan kos tambahan, tetapi juga dengan kesulitan tertentu. Sekiranya orang tua atau orang kurang upaya tinggal di rumah, maka sukar untuk naik ke tingkat dua. Lebih-lebih lagi, tangga boleh menjadi sumber bahaya tambahan bagi anak kecil.
Projek rumah dengan teres: foto bangunan khas, individu dan gabungan
Semua projek yang ada dapat dibahagikan secara bersyarat kepada tiga kumpulan: penyelesaian standard, individu dan gabungan. Setiap pendekatan mempunyai kelebihan dan kekurangan. Sebelum memulakan projek atau memilih penyelesaian siap pakai, anda harus menentukan jenis zon masuk yang akan digunakan.
Artikel berkaitan:
Tingkap teluk: apakah elemen seni bina ini dan peranannya di bahagian luar bangunan
Projek rumah dengan tingkap dan elemen seni bina lain. Reka bentuk premis dengan tingkap teluk untuk pelbagai tujuan.
Banyak orang memasang teres ke rumah dengan tangan mereka sendiri; projek foto dalam reka bentuk ini paling sering melibatkan penggunaan kawasan pintu masuk jenis terbuka. Dalam kes ini, pemilik laman web berpeluang mencipta kesan ruang yang tidak terhad. Di samping itu, projek sedemikian serba boleh dan sesuai untuk bangunan jenis apa pun. Teres luaran menyediakan akses cahaya semula jadi ke kawasan bersebelahan.
Teres tertutup dianggap lebih praktikal kerana boleh digunakan pada bila-bila masa sepanjang tahun. Berkat kanopi, kawasan pintu masuk akan dilindungi dari sinar matahari, angin dan hujan. Sekiranya anda memasang pagar dan langkan di teras, ia boleh digunakan sebagai beranda atau sudut yang selesa untuk bersantai.
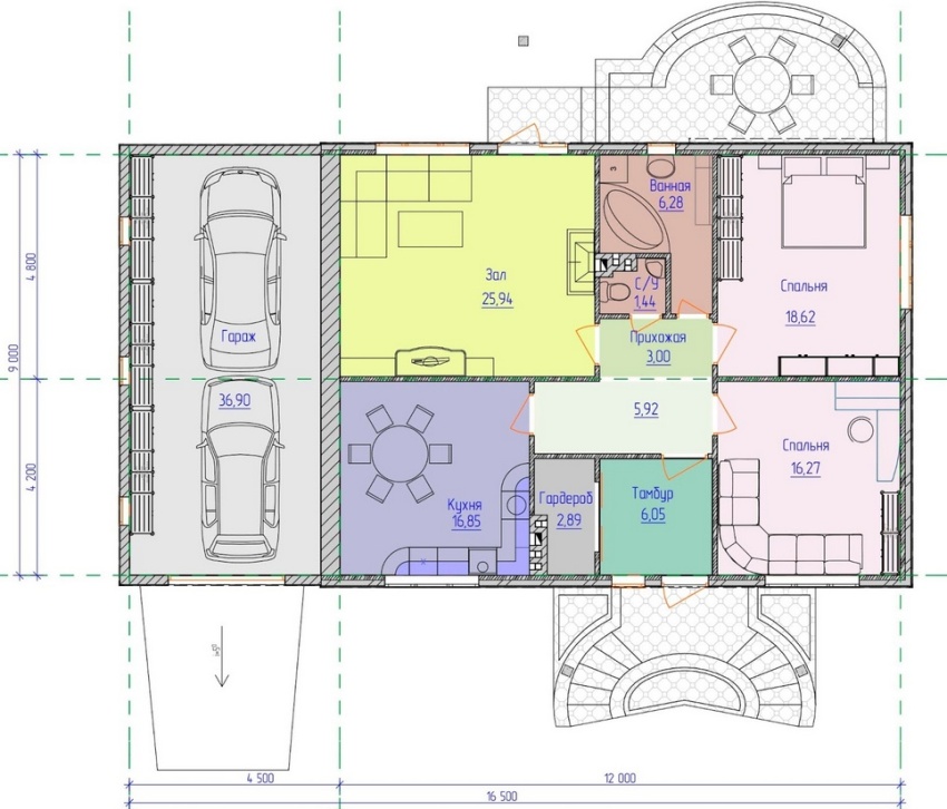
Ciri-ciri projek biasa: rumah satu tingkat dengan garaj dan teres
Projek tipikal paling sering difahami oleh arkitek sebagai rumah dengan parameter standard, lengkap dengan garaj dan teres. Penyelesaian ini siap sepenuhnya untuk digunakan. Pemilik laman web hanya perlu memanggil pasukan pembinaan, yang akan mendirikan bangunan di wilayah itu mengikut skema siap pakai.
Kelebihan projek biasa:
- Kos rumah yang rendah - tiada kos perancangan dan pembangunan.
- Sistem pemasangan yang dipermudahkan - pasukan dapat segera memulakan pelaksanaan projek.
- Kepantasan pembinaan yang tinggi - pakar tidak akan menunggu penambahbaikan, sesuaikan dengan mereka. Pasukan akan tiba di lokasi dengan elemen siap untuk pembinaan dan skema kerja yang diperkemas.
Kerana kelebihan ini, kebanyakan keluarga lebih suka reka bentuk standard.
Nasihat berguna! Teres terbuka boleh dilengkapi dengan solarium musim panas dengan memasang kerusi berjemur. Hal ini dimungkinkan dengan syarat laman web ini berada di tempat yang terang. Dalam kes ini, ia harus dilindungi dari angin dan mata yang menusuk.
Projek individu dan rumah gabungan dengan teres: gambar bangunan yang menarik
Reka bentuk individu memerlukan masa dan kos tambahan, tetapi hasilnya dapat melebihi semua jangkaan.
Faedah reka bentuk tersuai:
- Keupayaan untuk menerjemahkan menjadi kenyataan idea reka bentuk kegemaran anda.
- Susun atur rumah yang unik.
- Hasil yang menyenangkan secara estetik.
Kaedah ini sesuai untuk mereka yang mencari kediaman yang sesuai dengan pilihan peribadi mereka. Semasa proses pembangunan, semua kehendak pelanggan diambil kira, jika tidak bertentangan dengan syarat keselamatan.
Terdapat penyelesaian alternatif lain - bangunan yang diperoleh dengan kaedah gabungan. Dalam kes ini, pemilik laman web memilih projek percuma siap yang paling disukainya, dan membuat beberapa perubahan padanya. Hasilnya sebahagiannya standard, sebahagiannya unik. Kaedah ini menggabungkan kelebihan bangunan individu dan standard sambil mengekalkan harga yang berpatutan.
Projek popular rumah Amerika dengan teres
Reka bentuk rumah gaya Amerika paling sering menarik perhatian pemilik plot luas. Penyelesaian ini sangat sesuai untuk keluarga besar. Atribut bangunan gaya Amerika yang mesti dilihat adalah kawasan bersebelahan yang disusun dengan teliti dengan rumput yang terawat. Pembahagian ruang yang jelas menjadi zon berfungsi disambut baik: taman permainan, tempat rekreasi, kolam renang, kawasan barbeku.

Menurut statistik, yang paling popular di kalangan pemilik rumah Rusia adalah projek rumah Gaya Amerika
Ciri khas rumah gaya Amerika:
- simetri bangunan;
- kesucian (1-2 tingkat);
- kehadiran garaj terpasang diperlukan;
- kemasan minimum yang minimum menggunakan bahan mesra alam;
- beberapa pintu masuk ke bangunan;
- mesti ada teres yang terpasang di rumah, beranda, beranda luas.
Susun atur mendorong pemeliharaan ruang terbuka. Untuk bilik ini, dapur, ruang tamu dan ruang makan boleh digabungkan.
Projek rumah satu tingkat dengan garaj dan teres
Garaj untuk kereta dan ruang tamu rumah dengan teres boleh digabungkan di bawah satu bumbung. Tujuan berbeza dari premis ini tidak menghalangnya berjaya wujud berdampingan. Untuk projek rumah dengan garaj dan teres, susun atur yang ringkas adalah ciri khas. Menempatkan premis pada tahap yang sama memberikan keselesaan operasi tambahan. Sekiranya perlu, seseorang boleh masuk ke kawasan rumah dengan cepat. Bergantung pada kehendak dan keperluan pelanggan, garaj boleh dirancang untuk memuatkan 1 atau 2 kereta.

Klasik projek rumah satu tingkat dengan garaj terbina dalam dan teres
Nasihat berguna! Sekiranya anda melengkapkan garaj dengan pintu yang menuju ke bahagian dalam rumah, anda boleh bergerak ke dan dari kereta tanpa perlu keluar. Kelebihan ini amat bermanfaat sekiranya cuaca buruk atau hujan.
Membina rumah di kompleks dengan garaj akan berharga lebih murah daripada membuat dua bangunan terpisah. Ada kemungkinan bunyi mesin yang sedang berjalan akan menimbulkan rasa tidak selesa bagi penghuni. Oleh itu, disarankan untuk meletakkan bilik tidur sejauh mungkin dari garaj atau menjaga penebat bunyi berkualiti tinggi.
Reka bentuk rumah yang tidak biasa dengan loteng dan teres
Membina rumah dengan loteng dan teres akan menjadi pilihan terbaik jika pemilik kawasan pinggir bandar mempunyai pilihan antara bangunan satu tingkat dan dua tingkat. Bangunan seperti itu jauh lebih murah daripada struktur dengan beberapa tingkat.
Kelebihan rumah satu tingkat dengan teres dan loteng sangat jelas:
- kerana susun atur khas, rumah-rumah loteng jauh lebih panas;
- dengan perbelanjaan loteng, ruang tamu rumah bertambah dalam keadaan yang sama dan asas yang sama;
- lebih kurang bahan yang diperlukan untuk pembinaan loteng daripada lantai penuh;
- sistem komunikasi yang lebih sederhana daripada di bangunan dua tingkat.
DALAM projek rumah dengan loteng dan teres mempunyai keunikan tersendiri. Untuk menjadikan ruang di bawah bumbung selesa, anda harus mencuba.
Pelbagai kaedah digunakan untuk ini:
- mengubah sudut kecenderungan bumbung;
- penggunaan dinding palsu untuk pengezonan;
- menyesuaikan ketinggian dinding loteng;
- pilihan perabot yang tepat.
Semua ini membolehkan anda mencapai keselesaan. Ketinggian optimum dinding loteng untuk projek biasa adalah 1-1.2 m. Sekiranya parameter bangunan dikembangkan secara individu, sangat penting untuk merancang sistem pengudaraan dengan betul, jika tidak, lantai loteng akan "tersumbat". Projek ini juga mesti merangkumi dormers. Struktur ini memberikan aliran cahaya semula jadi yang baik. Sekiranya anda ingin mencapai suasana yang selesa, anda boleh mengganti tingkap bumbung dengan lucarnas, walaupun yang terakhir tidak begitu berkesan dari segi pencahayaan.
Nota! Tidak setiap bangunan satu tingkat dapat dijadikan rumah loteng. Pemilik laman web ini pada bila-bila masa dapat melengkapkan semula teras dengan tangannya sendiri, memperbaikinya dan mengkilapnya. Loteng jauh lebih sukar. Semua perubahan diambil kira pada peringkat reka bentuk. Bahkan sebelum permulaan pembinaan, parameter kasau, lantai dan bumbung dikira dengan teliti, oleh itu, pilihan projek mesti didekati secara menyeluruh.
Projek mandi dan teras yang menarik dan praktikal
Sekiranya anggaran pembinaan dan ukuran tapak membenarkan, anda boleh mempertimbangkan projek mandi, yang mempunyai ruang istirahat dan teres. Struktur sedemikian lebih praktikal dan serba boleh. Dalam projek mandi dengan ruang istirahat dan teras, kawasan pintu masuk boleh ditutup dan terletak di bawah bumbung yang sama dengan bangunan utama. Dalam kes ini, penekanan sistem kasau dipindahkan ke rak, yang merupakan bahagian integral dari bingkai. Struktur pagar dilekatkan pada elemen yang sama.
Walaupun teres jenis tertutup digunakan dalam projek, elemen struktur ini masih dapat digunakan secara eksklusif pada musim panas. Oleh itu, pembinaan bilik rehat tidak akan berlebihan.
Keuntungan santai:
- keadaan yang selesa untuk rekreasi sepanjang tahun;
- kekurangan serangga yang menjengkelkan;
- keupayaan untuk menggunakan peralatan rumah tangga, misalnya, peti sejuk, pusat muzik, TV;
- peluang untuk melengkapkan tab mandi dengan kemudahan tambahan untuk bersantai, misalnya, kaunter bar, meja biliar.
Projek mandi dengan loteng dan teres dirancang untuk plot kecil. Bangunan sedemikian tidak kurang berfungsi daripada struktur dengan bilik rehat, sementara mereka mengambil lebih sedikit ruang di wilayah ini. Semasa memilih projek seperti itu, sangat penting untuk melakukan kaca dan penebat mengikut semua peraturan. Lantai loteng dapat digunakan sebagai ruang tamu atau kawasan hiburan yang menempatkan bar, meja biliar, atau gimnasium.
Selalunya, pemaju menggunakan projek mandi di mana loteng terbuka. Ini mewujudkan kusyen udara antara bumbung dan bilik wap. Loteng terbuka boleh diubah menjadi balkoni yang selesa dengan pintu gelangsar.
Projek bangunan dengan beranda dan teres: foto bangunan yang indah
Beranda adalah platform yang dibatasi oleh dinding di semua sisi. Tidak seperti teras, yang boleh kelihatan seperti sambungan atau struktur berdiri bebas, elemen ini adalah bahagian struktur rumah. Ruangan seperti itu tidak dipanaskan, bagaimanapun, projek rumah dengan beranda dan teras banyak digunakan oleh pemaju, kerana adanya kelebihan lain yang bermanfaat.
Beranda boleh dilengkapi sebagai ruang tamu, yang akan digunakan secara eksklusif pada musim panas.
Nasihat berguna! Akan lebih senang menggunakan beranda kediaman jika anda membuat pintu masuk tambahan dari dewan.
Beranda boleh digunakan untuk makan pada musim panas. Dalam kes ini, disarankan meletakkannya di dinding luar ruang makan atau dapur. Bilik kecergasan rumah sesuai dengan ruang beranda. Walau bagaimanapun, dalam kes ini, perlu menjaga ketersediaan sistem pengudaraan berkualiti tinggi. Di samping itu, ruang yang mencukupi diperlukan untuk aktiviti sukan. Oleh itu, walaupun pada peringkat reka bentuk, perlu menetapkan fungsi yang akan dilakukan beranda.
Oleh kerana teres adalah bangunan bermusim, kemungkinan penggunaannya agak terhad. Pada musim sejuk, kawasan ini ditutup dengan salji, tetapi, bagaimanapun, pemilik rumah dapat mengubah ruangnya mengikut budi bicaranya. Masalahnya diselesaikan dengan memasang tingkap lembut untuk gazebo dan teres atau struktur dinding, yang boleh ditanggalkan atau ditarik balik.
Faedah menggunakan tingkap lembut untuk teres
Walaupun dalam cuaca cerah, angin, serangga dan debu boleh merosakkan sisa di teras. Tingkap lembut, diperbuat daripada PVC, akan membantu menghilangkan saat-saat yang tidak menyenangkan ini.
Reka bentuk fleksibel ini mempunyai banyak kelebihan:
- perlindungan dan keselamatan;
- sifat hiasan yang sangat baik, berkat terasnya kelihatan estetik;
- kecekapan dan jangka hayat yang panjang;
- kapasiti penghantaran yang baik (hingga 90% sinar), kerana cahaya cahaya yang mencukupi masuk ke teras, dan juga kesan kepompong tertutup tidak termasuk;
- sistem pemasangan sederhana.

Tingkap lembut berbeza dengan kos yang rendah dan kemudahan pemasangan
Polivinil klorida, yang digunakan untuk membuat tingkap lembut, fleksibel dan tahan lama. Tidak seperti struktur kaca, barang-barang tersebut tidak boleh pecah. Berkat kelebihan ini, teres boleh dijadikan kawasan permainan kanak-kanak. Kos tingkap lembut adalah separuh daripada struktur logam-plastik.
Berkat tawaran syarikat pembinaan yang meluas, setiap pemilik tanah dapat memilih sendiri projek khas yang optimum dengan teras, beranda atau loteng dalam kombinasi apa pun. Untuk pelanggan yang lebih menuntut, disediakan perkhidmatan pengembangan yang mengambil kira kehendak individu pelanggan.
Pendekatan yang teliti terhadap proses reka bentuk membolehkan pemaju memperoleh perumahan dengan parameter dan konfigurasi apa pun, dan penggunaan alat praktikal dan mudah seperti tingkap PVC yang fleksibel meningkatkan keadaan operasi teres dan beranda, meningkatkan keselesaan tempat ini.