Rumah dari bar mempunyai kualiti penebat haba yang sangat baik, ia mesra alam dan penampilannya menarik. Memandangkan kosnya rendah, mereka mungkin bertindak sebagai alternatif kepada perumahan mahal. Tidak perlu membina asas yang kuat untuk pondok-pondok seperti itu, yang dapat mengurangkan kos pembinaan dengan ketara. Syarikat pembinaan menawarkan projek rumah standard dari bar untuk kediaman tetap atau dibangunkan mengikut gambar individu.
Kandungan
Projek rumah dari bar untuk kediaman tetap: jenis bahan yang digunakan
Prestasi struktur bergantung kepada bahan yang digunakan dalam pembinaan. Dalam pengertian ini bar - kayu, dicirikan oleh kekuatan tinggi, penebat haba yang sangat baik, ketahanan terhadap keretakan, keramahan alam sekitar. Di samping itu, struktur kayu dipasang dengan cepat, memiliki harga yang relatif rendah dan mempunyai penampilan yang baik.
Nasihat berguna! Untuk pembinaan rumah dari bar, sangat penting untuk menggunakan kayu gergajian yang dihasilkan pada musim sejuk: ia mengandungi jumlah kelembapan minimum dan kayu semacam itu tidak rentan terhadap perubahan warna biru.

Reka bentuk moden rumah yang dibina daripada kayu
Harta utama kayu untuk pembinaan adalah ketumpatannya. Terdapat dua jenis kayu yang disyorkan untuk pembinaan pondok:
- diprofilkan - permukaan bar yang bertentangan dihiasi dengan alur dan rabung, dan sisi depan mempunyai permukaan yang halus, berkat penanaman dan pengilangan;
- terpaku - terdiri daripada lamela (papan) yang diproses khas dan terpaku secara membujur.
Kedua-dua jenis kayu ini mempunyai ciri kekuatan yang sangat baik, namun, sampel yang dilekatkan sangat tahan terhadap retak, struktur yang terbuat dari itu tidak menyusut dan mengekalkan prestasinya walaupun terkena keadaan iklim yang keras.
Artikel berkaitan:
Bahagian dalam rumah kayu dari bar di dalamnya: foto dan penerangan mengenai penyelesaian gaya. Foto pilihan paling menarik. Penggunaan gaya yang berbeza dalam reka bentuk. Cara memilih perabot rumah yang diperbuat daripada balok kayu semula jadi.
Secara luaran, struktur jenis ini mempunyai penampilan yang sama, namun, pembinaan pondok dari bahan berprofil akan menelan belanja 40-50% lebih rendah daripada membina rumah dari kayu venir berlamina.Baca ulasan mengenai kualiti, harga dan masa pembinaan struktur tersebut di bahagian yang berkaitan di laman web syarikat pembinaan khusus.
Ciri-ciri projek rumah yang diperbuat daripada kayu venir berlapis untuk kediaman tetap
Penggunaan teknologi kayu venir berlamina dalam pembinaan rumah kayu dijelaskan oleh faktor berikut:
- keupayaan untuk menghasilkan unsur pepejal dengan ukuran tidak standard (panjang produk boleh mencapai hingga 85 m);
- pengeluaran rasuk melengkung;

Kelajuan pembinaan yang cepat, kos rendah dan keindahan semula jadi adalah kelebihan utama rumah yang dibina dari kayu
- tidak ada ubah bentuk sepanjang hayat perkhidmatan bangunan kerana menggergaji, menekan dan pengeringan lamela berkualiti tinggi;
- pemilihan papan berkualiti tinggi, penggunaan komposisi pelekat kekuatan tinggi meningkatkan kekuatan struktur yang diperbuat daripada kayu venir berlamina;
- tahan api - struktur balok yang diperbuat daripada kayu venir berlamina tidak kehilangan kekuatan untuk masa yang lama, walaupun berlaku kebakaran;
- kadar pengecutan minimum (sehingga 2%);
- rumah yang diperbuat daripada kayu venir berlapis kehilangan haba pada tahap yang jauh lebih rendah daripada bangunan yang diperbuat daripada unsur pepejal;
- penentangan terhadap pengaruh agresif membolehkan anda membina kemudahan penyimpanan, garaj, tempat mandi, menukar rumah dan bangunan lain dari bar seperti itu;
- keramahan persekitaran pembinaan - pengeluaran dan operasi bangunan tidak membahayakan persekitaran semula jadi.
Jenis bahan ini digunakan dalam bentuk balok penahan beban dan tiang sokongan, untuk pembinaan struktur bumbung yang kompleks, dan juga untuk produk tukang kayu yang lain.
Nasihat berguna! Kayu berlapis terpaku sangat sesuai untuk membuat bahagian dalam: ia dapat digunakan untuk membuat struktur tingkap melengkung, kusen tingkap, tangga, pagar dan rak.
Perkaitan kayu venir berlamina untuk pembinaan rumah juga dijelaskan oleh kekonduksian terma bahan yang rendah. Kehilangan haba dari dinding setebal 20 cm yang diperbuat daripada bahan tersebut 5 kali lebih kecil daripada partisi bata yang serupa, dan 12 kali lebih sedikit daripada dinding konkrit bertetulang. Kadar pengecutan yang rendah memungkinkan untuk membina struktur bertingkat secara berterusan, yang menyumbang kepada pengurangan masa pembinaan.
Pondok yang diperbuat daripada kayu venir berlamina tahan terhadap pembentukan jamur dan cendawan, kerana bahan tersebut menjalani rawatan pelindung dari perosak. Struktur sedemikian tidak mengalami kerosakan dan jangka hayatnya selama mungkin. Di samping itu, pelbagai pilihan tersedia untuk meningkatkan kestabilan struktur, jika perlu.
Pembinaan rumah satu tingkat dari kayu venir berlapis: fungsi dan keselesaan
Pembinaan rumah dari kayu venir berlamina dengan cepat mendapat populariti. Dari bahan tersebut, anda boleh membina pondok musim panas atau rumah tamu, dan pondok yang kukuh untuk kegunaan sepanjang musim. Pembangunan projek untuk rumah satu tingkat yang diperbuat daripada kayu venir berlapis difokuskan pada kemudahan maksimum dan penggunaan rasional kawasan berguna bangunan.
Kelebihan utama bangunan satu tingkat adalah kelajuan pembinaan yang tinggi, kos pembinaan yang berpatutan, susun atur yang dipikirkan dengan baik dan kemungkinan pelaksanaan projek rumah yang diperbuat daripada kayu venir berlapis (gambar struktur siap sebagai pengesahan ini) dalam pelbagai gaya seni bina. Penganut idea asli akan dapat memilih projek-projek pondok luar biasa dengan bahagian luar yang menarik.
Di samping itu, rumah satu tingkat dapat dibina dengan mengambil kira perkembangan individu dan kehendak pelanggan itu sendiri. Pengembangan projek rumah Finland dari kayu berlapis terpaku dari pilihan klasik tradisional hingga bangunan berteknologi tinggi ultra-bergaya tidak dikecualikan.Oleh kerana teknologi khas untuk pembuatan balok terpaku, tidak perlu melakukan kerja-kerja pembaikan atau pemulihan berkala di rumah-rumah tersebut.
Ciri khas lain adalah kemudahan susun atur pondok satu tingkat untuk orang kurang upaya, warga tua, dan keluarga dengan anak kecil. Semua bilik penting tertumpu dalam satu tingkat, yang membolehkan seluruh keluarga berada dekat. Harus diingat bahawa semua projek mematuhi syarat dan piawaian yang ada.

Sebarang projek yang ada rumah yang diperbuat daripada kayu venir berlamina boleh diubah suai untuk memenuhi kehendak pelanggan sepenuhnya
Untuk rumah dengan satu tingkat, asas jalur dangkal atau cerucuk skru mencukupi. Sekiranya anda, menjimatkan masa, mempercayakan pembinaan rumah kepada syarikat khusus, maka elemen struktur siap akan dihantar ke laman web yang ditunjukkan, yang hanya perlu disatukan.
Pondok satu tingkat tidak mempunyai tangga, yang merangkumi sebahagian dari kawasan yang boleh digunakan. Fakta ini membolehkan anda memperuntukkan ruang secara optimum untuk ruang tamu dan bilik utiliti. Pendawaian semua komunikasi di rumah seperti ini mempunyai skema yang dipermudahkan, yang menyumbang kepada penjimatan tenaga yang ketara semasa musim pemanasan. Rumah ini sangat sesuai untuk keluarga kecil.
Projek rumah dari bar: foto, keterangan, ciri
Rumah kayu menguntungkan bukan hanya kerana kos pembinaan yang dapat diterima, tetapi juga kos minimum untuk kemasan luaran dan dalaman. Ini disebabkan oleh kenyataan bahawa kayu halus membentuk permukaan dinding estetik yang padat, rata dan luar. Di samping itu, rumah kayu dicirikan oleh keupayaan untuk "bernafas" dan membersihkan udara bilik dari kekotoran yang buruk. Di rumah seperti itu selalu segar dan senang bernafas, yang memberi kesan positif terhadap kesejahteraan penduduk di sana.
Rumah kayu Finland: projek kotej yang selesa
Ciri utama rumah yang dibina menggunakan teknologi Finland adalah kekompakan (ini adalah struktur kayu kecil dari lantai 1-1.5), penampilan yang kemas, penebat bunyi dan haba yang sangat baik dan susun atur yang mudah. Reka bentuk setiap rumah, di dalam dan di luar, dipikirkan dengan terperinci terkecil, dan mempunyai gaya tersendiri.
Salah satu ciri khas perancangan bangunan Finlandia ialah ketiadaan "bilik persalinan". Pengekalan haba dipastikan oleh pintu ganda: rumah itu hangat di musim sejuk dan sejuk di musim panas. Lantai bawah biasanya menempatkan ruang tamu dan dapur-ruang makan, sementara tingkat atas mengandungi bilik tidur. Atap bangunan dibuat dalam versi gable, terutama bentuknya yang tajam.
Bagi lorong, bilik ini secara tradisional dibuat besar. Luas koridor menghampiri ukuran dapur atau bilik kecil. Ciri ini dijelaskan oleh fakta bahawa penduduk negara-negara Skandinavia lebih suka gaya minimalis. Oleh kerana ruang masuk yang luas, anda dapat meredakan suasana bilik tanpa kekosongan ruang dengan barang-barang.
Rumah dengan teres kelihatan sangat indah. Projek rumah kayu dari bar juga mengandaikan adanya balkoni yang luas untuk bilik loteng dan beberapa pintu masuk. Selain pintu masuk utama, rumah-rumah dilengkapi dengan pintu yang menuju ke halaman. Lebih-lebih lagi, ketika merancang hampir setiap bangunan rumah, arkitek menyediakan kehadiran sauna. Bergantung pada ukuran rumah, bilik yang diperuntukkan untuk mandi boleh menjadi besar atau kompak.
Rumah kayu Finland tahan dengan keadaan cuaca yang teruk - sama ada panas atau sejuk. Mereka yang pernah mengunjungi rumah sedemikian sekurang-kurangnya sekali menyedari suasana selesa dan kesegaran di dalam premis.Teknologi Finland membolehkan pembinaan dijalankan dengan kelajuan tinggi pada setiap musim sepanjang tahun. Rata-rata, pembinaan pondok memerlukan masa 4 hingga 5 minggu.
Rumah log dengan garaj: projek struktur berfungsi
Penggunaan bahan seperti kayu dalam pembinaan rumah menjadikan impian untuk memiliki pondok negara anda sendiri menjadi kenyataan. Bagi orang yang terbiasa dengan keselesaan dan kepraktisan, memilih rumah dengan garaj akan menjadi pilihan terbaik. Bagaimanapun, ruang garaj boleh digunakan bukan hanya untuk meletak kereta, tetapi juga untuk menyimpan alat, inventori, dan juga untuk mengatur produksi swasta berskala kecil.
Nasihat berguna! Semasa membina sendiri garaj dari bar, perlu diingat bahawa pengudaraan berkualiti tinggi memainkan peranan penting untuk operasi bangunan yang normal dan jangka panjang.

Projek satu tingkat rumah dengan garaj dan tiga bilik tidur
Projek moden rumah dari bar dengan garaj dikembangkan dalam pelbagai variasi. Ia boleh menjadi pondok dengan garaj terpasang untuk satu / dua kereta atau bangunan yang terpisah. Beberapa projek mencadangkan meletakkan garaj di ruang bawah tanah, tetapi susun atur ini memperuntukkan pembinaan asas yang lengkap, yang akan menyebabkan kenaikan kos pembinaan yang ketara.
Sebagai peraturan, garaj yang dipasang di rumah mempunyai dua pintu masuk: yang terletak di tengah dari jalan dan terus dari rumah. Penyusunan ini membolehkan pemiliknya menghampiri kereta tanpa keluar, yang sangat sesuai dalam cuaca hujan atau musim sejuk. Kelebihan rumah kayu dengan garaj terpasang jelas:
- penempatan padat - membolehkan anda menggunakan laman web dengan cekap;
- simpanan kereta yang boleh dipercayai;
- penggunaan garaj sebagai gudang untuk menyimpan peralatan rumah tangga;
- keupayaan untuk meletakkan dandang pemanasan di ruangan ini, menjimatkan kawasan rumah yang boleh digunakan;
- sambungan komunikasi yang mudah: air, panas, cahaya.
Bagi kos pembinaan, kos rumah dengan garaj tidak akan jauh lebih tinggi daripada pembinaan pondok biasa, kerana kompleks seperti ini mempunyai bumbung yang sama, dinding yang berdekatan dengan rumah dan sistem komunikasi tunggal. Memandangkan ini, projek rumah dengan garaj adalah penyelesaian yang paling menjimatkan dan praktikal.

Projek rumah dua tingkat dari bar dengan garaj untuk satu kereta
Projek rumah satu tingkat yang diperbuat daripada kayu berprofil
Penggunaan balok berprofil sebagai bahan binaan utama memungkinkan pembinaan rumah yang cepat dan ekonomik. Rata-rata, pemasangan rumah dari bar, termasuk kerja-kerja persiapan dan perancangan, memakan masa sekitar 3 bulan. Kos pembinaan ditentukan oleh jenis projek, tetapi akan jauh lebih rendah daripada bangunan serupa yang dibuat dari bata atau bata.
Untuk pembinaan struktur, balok dengan bahagian yang berbeza digunakan, bergantung pada tujuan perumahan (rumah musim panas atau pondok untuk kediaman tetap). Di antara projek yang dicadangkan, anda boleh memilih pilihan yang paling sesuai dari segi reka bentuk seni bina dan kategori harga. Perlu diingatkan bahawa beberapa model pondok satu tingkat akan dua kali lebih mahal daripada bangunan dua tingkat.
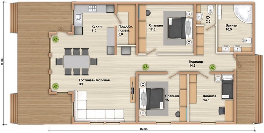
Untuk kehidupan bermusim, anda boleh memilih projek rumah satu tingkat yang terbuat dari kayu berprofil, yang harganya akan tersedia untuk pelbagai jenis pembeli. Susun atur sebuah pondok kecil 6x6 m merangkumi ruang masuk, bilik mandi gabungan, dapur kompak dan ruang utama. Dengan memilih pilihan yang sama, tetapi dengan loteng, anda dapat melengkapkan satu atau dua bilik tidur.
Ketinggian tingkat pertama rumah satu tingkat adalah, biasanya, 2,7 m. Pakej ini merangkumi partisi, lantai dan balok siling yang diperbuat daripada kayu 150x150 mm, siling dan lantai yang diperbuat daripada papan 22x100 mm dalam reka bentuk kasar.Serta pelat dan pelat atap yang terbuat dari papan, atap dirasakan, kalis air pondasi dan pemprosesan kayu balak, lantai dan pelat dengan sebatian antiseptik.
Rumah balak dua tingkat
Anda boleh menyelesaikan masalah meletakkan rumah yang luas di kawasan kecil dengan memilih model bangunan dua tingkat. Dalam kes ini, meter persegi yang diinginkan digandakan, dan wilayah plot bangunan tidak berubah. Di samping itu, adalah mungkin untuk memilih projek dengan loteng dan teres, di mana seluruh keluarga dapat berkumpul untuk minum teh.
Di antara cadangan yang dimasukkan dalam katalog pondok, projek khas rumah kayu 6 hingga 9 untuk kediaman tetap cukup popular. Projek ini telah melaksanakan skema perancangan yang berjaya yang menggabungkan semua bilik yang diperlukan: ruang tamu, bilik tidur, dapur, bilik mandi dan koridor yang luas di kedua-dua tingkat. Anda boleh membuat penyesuaian individu terhadap pelan lantai siap tanpa meningkatkan kos projek.
Set lengkap rumah dua tingkat dari bar merangkumi atap gable yang ditutupi dengan atap, sistem kasau dan partisi di kedua-dua lantai dari bar, lantai kasar dan kabel dari papan. Kerja-kerja memunggah bahan dan mendirikan struktur di tapak pelanggan termasuk dalam kos projek. Atas permintaan, asas jalur atau skru cerucuk boleh dipasang.
Sebelum memesan satu atau lain jenis rumah kayu dari bar, anda boleh berkenalan bukan hanya dengan susun atur di dalam bilik, tetapi juga dengan rancangan asas dan gambaran fasad struktur dari pelbagai sisi. Beberapa projek merangkumi penebat loteng dan menyelesaikannya dengan papan gerabak kering.

Projek rumah balak gaya chalet dua tingkat
Sekiranya kita meringkaskan semua kelebihan rumah yang diperbuat daripada kayu berprofil (ulasan mengesahkannya), kita dapat menyatakan bahawa rumah-rumah seperti itu hangat, anggaran, kerana ia dipasang di pangkalan yang murah, tidak memerlukan penamat tambahan dan cepat didirikan.
Pada masa ini, syarikat menawarkan untuk melaksanakan projek rumah dari sebilangan kerumitan dengan kos minimum. Dengan syarat pemaju mematuhi semua prinsip teknologi, rumah yang diperbuat daripada kayu akan menjadi hangat, selesa dan jangka hayatnya puluhan tahun.