Pemaju moden menggunakan projek rumah yang mudah dan praktikal yang diperbuat daripada konkrit berudara: pembinaan berdasarkan blok dilakukan tidak hanya di desa, tetapi juga di perkampungan kecil, dan juga di dalam kota, di mana seluruh wilayah kecil dengan bangunan bertingkat sedang dibuat. Artikel ini meneliti secara terperinci proses merancang bangunan kediaman, dan juga membolehkan anda berkenalan dengan penyelesaian menarik untuk membina kawasan pinggir bandar.

Memiliki pakej lengkap dokumentasi projek, pemaju menginsuranskan dirinya terhadap kesalahan yang mungkin berlaku semasa pembinaan rumah
Kandungan
- 1 Projek rumah yang diperbuat daripada konkrit berudara: pembinaan dan dokumentasi
- 2 Projek dan harga rumah konkrit berudara siap pakai turnkey
- 3 Projek hidup selesa rumah satu tingkat yang diperbuat daripada konkrit berudara
- 4 Pelbagai susun atur dalam projek rumah dua tingkat yang diperbuat daripada konkrit berudara
- 4.1 Kami membuat projek untuk pembinaan blok konkrit berudara: susun atur bangunan dua tingkat
- 4.2 Ciri-ciri projek rumah dari konkrit berudara 7x7 m
- 4.3 Merancang penyelesaian untuk projek rumah konkrit berudara 9x9 m
- 4.4 Contoh projek rumah 10x10 dengan susun atur 2 tingkat yang sangat baik
- 4.5 Ciri-ciri projek rumah konkrit berudara dengan loteng
- 4.6 Susun atur projek rumah konkrit berudara dengan garaj
- 5 Pembinaan rumah konkrit berudara DIY: maklumat berguna
- 6 Teknologi pembinaan rumah konkrit berudara: video dengan cadangan
Projek rumah yang diperbuat daripada konkrit berudara: pembinaan dan dokumentasi
Kawasan penggunaan blok konkrit berudara meliputi bukan hanya untuk pembinaan bangunan kediaman. Bahan ini juga digunakan untuk pembinaan bangunan komersial dan perindustrian.
Keperluan teknikal untuk blok bangunan diatur dengan jelas oleh GOST yang berkaitan:
- 21520-89 - keperluan untuk blok selular kecil dinding.
- 31359-2007 - Keperluan untuk blok gas autoklaf.
- 31360-2007 - Keperluan untuk produk dinding pengeras autoklaf tanpa tetulang.
Semasa membuat projek rumah konkrit berudara konkrit, pakar menggunakan dokumentasi tambahan. STO 501-52-01-2007 digunakan untuk reka bentuk dan pembinaan pagar di sekitar bangunan awam dan kediaman. Perlindungan haba, serta struktur batu dan batu bertetulang dibuat dengan mempertimbangkan SNiP 23-02-2003 dan II-22-81, masing-masing.
Semasa mengembangkan projek khas rumah yang diperbuat daripada konkrit berudara, ciri-ciri bahan binaan disediakan.Antaranya, petunjuk berikut diambil kira:
- tahap pengecutan semasa pengeringan;
- ketumpatan batu;
- kapasiti haba;
- tahap pengembangan haba semasa pemanasan;
- interaksi dengan produk dan struktur yang diperbuat daripada logam;
- tahap kesan terhadap alam sekitar.
Data apa yang perlu ada dalam projek rumah konkrit berudara
Sebelum membina rumah dari konkrit berudara atau bahan lain, pemaju mesti menyediakan pakej dokumen tertentu. Walaupun tidak mempunyai rancangan fasad, jabatan seni bina perbandaran masih meminta gambar-gambar ini.
Catatan! Dengan mempunyai pakej lengkap dokumentasi reka bentuk, pemaju menginsuranskan dirinya terhadap kesalahan yang mungkin berlaku semasa pembinaan bangunan. Kehadiran dokumen-dokumen ini akan sangat berguna sekiranya pembinaan rumah dari konkrit berudara melibatkan penciptaan unit kompleks dan perincian seni bina.
Untuk membina rumah dari blok, anda memerlukan satu set cetak biru. Kit standard merangkumi bahagian berikut:
- Senibina - mengandungi maklumat mengenai elemen hiasan bangunan, dan juga mengenai fasad berwarna.
- Pembinaan - menyediakan elemen tembok dinding, perencanaan lantai, atap dan pondasi, pilihan untuk penamat, serta kawasan di mana lubang untuk sistem komunikasi terbentuk.
- Konstruktif - ia disediakan sebagai sebahagian dari pakej bangunan dokumen atau sebagai bahagian yang berasingan, ia mengandungi pengikat nod, mengandungi gambaran keseluruhan terperinci mengenai elemen dengan reka bentuk yang kompleks, dengan mempertimbangkan ciri bukaan pintu dan tingkap, tangga, dll.
- Kejuruteraan - Pakej cetak biru ini mempengaruhi pendawaian elektrik, pemanasan, komunikasi, bekalan air, kumbahan dan sistem pengudaraan.
Di samping itu, dokumentasi projek boleh merangkumi data umum mengenai bahan, spesifikasi peralatan, anggaran untuk pembinaan rumah yang terbuat dari konkrit berudara dengan harga untuk jenis pekerjaan tertentu, dan juga untuk objek secara keseluruhan.
Projek dan harga rumah konkrit berudara siap pakai turnkey
Pembangunan lukisan untuk pembinaan rumah konkrit berudara konkrit dilakukan oleh syarikat khusus yang mempunyai kebenaran untuk melakukan kerja reka bentuk. Lesen tersebut mengandungi semua kategori dan jenis objek yang dapat dikembangkan oleh organisasi. Syarikat sedemikian menawarkan projek bangunan siap pakai dengan susun atur standard. Sekiranya dikehendaki, pemaju boleh memerintahkan pengembangan penyelesaian individu dari syarikat khusus. Sudah tentu, projek sedemikian akan menelan belanja lebih tinggi daripada versi lukisan biasa.
Di laman web syarikat pembinaan, anda boleh menemui puluhan projek siap untuk rumah konkrit berudara. Maklumat diberikan dalam bentuk katalog atau projek pengiklanan, sehingga pengguna dapat dengan mudah memilih objek terbaik untuk laman web mereka.
Catatan! Setiap projek bangunan mempunyai sebilangan tingkat, susun atur dalaman, kemasan yang tersedia dan nuansa lain. Oleh itu, pilihan penyelesaian siap harus didekati secara menyeluruh dan mengambil kira semua perinciannya.

Syarikat-syarikat khas terlibat dalam pengembangan lukisan untuk pembinaan rumah dari konkrit berudara
Rumah konkrit berudara: projek dan harga untuk perkhidmatan pembinaan
Selalunya, laman web syarikat mengandungi versi khas bangunan dengan susun atur yang optimum seumur hidup. Pelanggan dijemput untuk membina rumah dari konkrit berudara:
- dengan satu tingkat;
- dengan dua tingkat;
- dengan loteng;
- dengan garaj;
- dengan carport;
- dengan ruang bawah tanah;
- dengan garaj dan loteng;
- dengan beranda;
- pilihan gabungan (pembinaan konkrit berudara bersama dengan bahan lain, seperti kayu).
Berapakah kos untuk membina rumah dari konkrit berudara (dokumentasi projek):
Dimensi bangunan, m | Bilangan tingkat | Luas keseluruhan, m2 | Harga projek, ribu rubel |
6x6 | 1 | 34,3 | 18 |
6.2x6.2 | 2 | 52,8 | 18 |
6.5x8.5 | 2 | 62,2 | 19 |
10.6x11.4 | 1 | 81,1 | 20 |
7x8.8 | 2 | 83 | 21 |
8.6x8.6 | 2 | 89,6 | 25 |
7.2x8.1 | 2 | 93,9 | 23,5 |
Sekiranya pemilik plot tanah tidak akan membina rumah dari konkrit berudara dengan tangannya sendiri, dia boleh membeli projek membina turnkey. Dalam kes ini, pekerja syarikat yang berpengalaman secara bebas akan melakukan penyediaan tapak dan semua jenis pekerjaan:
- tinjauan topografi tapak pembinaan;
- tinjauan geologi dan geodetik laman web ini;
- pembangunan projek pembinaan dengan mengambil kira semua piawaian bangunan;
- pemilihan bahan yang disahkan berkualiti untuk pembinaan;
- penentuan kedudukan optimum bangunan berhubung dengan titik kardinal dan cahaya semula jadi;
- susun atur premis teknikal dengan mengambil kira keperluan keselamatan;
- peletakan sistem kejuruteraan dan komunikasi;
- pembangunan reka bentuk bangunan yang selaras dengan lanskap sekitarnya;
- penciptaan model maya dalam format 3D, yang membolehkan anda membiasakan diri secara visual dengan ciri-ciri seni bina bangunan, reka bentuknya.
Kos membina rumah dari konkrit berudara (projek turnkey):
Dimensi bangunan, m | Bilangan tingkat | Luas keseluruhan, m2 | Harga projek, juta rubel |
6x6 | 1 | 34,3 | 1,28 |
6.2x6.2 | 2 | 52,8 | 1,14 |
6.5x8.5 | 2 | 62,2 | 1,53 |
10.6x11.4 | 1 | 81,1 | 3,04 |
7x8.8 | 2 | 83 | 1,97 |
8.6x8.6 | 2 | 89,6 | 2,21 |
7.2x8.1 | 2 | 93,9 | 2,23 |
Catatan! Banyak laman web menawarkan untuk menggunakan kalkulator untuk membina rumah dari konkrit berudara. Tetapi kita tidak boleh lupa bahawa pengiraan sedemikian adalah perkiraan dan dalam proses kerja, anggaran harus disesuaikan.
Cara menyesuaikan projek khas untuk membina rumah dari konkrit berudara di laman web
Lukisan khas tidak mengambil kira pilihan peribadi pemilik kawasan pinggir bandar. Perkara yang sama boleh dikatakan mengenai projek rumah konkrit berudara percuma yang boleh didapati secara percuma di Internet. Di samping itu, gambar seperti itu dibuat tanpa mengambil kira syarat untuk laman web dan syarat-syarat yang ada. Oleh itu, dokumentasi yang telah selesai masih perlu disesuaikan dengan spesifikasi objek tertentu dan membuat pindaan yang sesuai.
Selalunya, perubahan dalam projek biasa membimbangkan:
- ukuran struktur tingkap yang dapat dikurangkan atau ditingkatkan;
- penempatan partisi (struktur boleh dikeluarkan atau dipindahkan ke tempat lain);
- penamat (bahan penamat boleh diganti dengan yang lain dengan sifat dan tahap kualiti yang serupa).
Tidak dibenarkan membuat penyesuaian dokumentasi projek secara bebas tanpa berunding dengan pakar. Keperluan ini berlaku untuk perincian yang bergantung pada kekuatan struktur:
- pembangunan semula premis dengan pemindahan elemen dan dinding yang menanggung beban;
- perubahan dalam seni bina, yang boleh merosakkan integriti fasad bangunan dan parameter pelindung lain;
- menggantikan bahan binaan dengan yang lebih berat atau kurang tahan lama.
Projek hidup selesa rumah satu tingkat yang diperbuat daripada konkrit berudara
Bangunan satu tingkat direka untuk kehidupan keluarga 3-6 orang yang selesa. Susun atur 3 bilik tidur sesuai untuk kedua ibu bapa dan anak-anak di bawah bumbung yang sama. Dalam kes ini, satu bilik rehat akan menjadi milik ibu bapa, dan dua bilik yang selebihnya boleh dijadikan bilik kanak-kanak atau tetamu. Bangunan sedemikian sesuai untuk orang kurang upaya atau orang tua.
Projek padat rumah konkrit berudara
Untuk keluarga kecil, projek rumah yang diperbuat daripada konkrit berudara 6 x 6 m sesuai. Sekiranya beberapa kanak-kanak dari kumpulan umur yang berbeza akan tinggal di bangunan, anda harus memberi perhatian kepada pilihan yang lebih menyeluruh, contohnya, 12x12 m dengan beberapa bilik tidur. Reka bentuk klasik yang tipikal mempunyai dapur, ruang tamu yang besar dan lounge.Dalam beberapa kes, seni bina bangunan memungkinkan untuk melengkapkan loteng atau teres musim panas dan bukannya atap. Struktur dengan panjang dinding yang sama lebih senang dirancang daripada struktur segi empat tepat.
Catatan! Bangunan satu tingkat tidak mempunyai tangga, jadi bangunan seperti itu dianggap paling selamat. Di samping itu, konkrit berudara yang digunakan untuk membina rumah membolehkan anda meninggalkan pembinaan asas besar.
Projek rumah yang diperbuat daripada konkrit berudara 8x8 m memungkinkan meletakkan semua yang anda perlukan di bawah satu bumbung. Kawasan yang luas membolehkan anda melengkapkan bilik tambahan, misalnya:
- bilik dandang;
- pantri;
- bilik persalinan;
- dobi;
- ruang depan;
- lorong, dll.

Untuk menggunakan ruang yang boleh digunakan dengan cekap, para pereka menggabungkan ruang beberapa bilik
Di samping itu, projek moden bangunan kediaman satu tingkat boleh merangkumi teres dan beranda kecil. Penggunaan atap gable atau gable dibenarkan.
Projek praktikal rumah yang diperbuat daripada konkrit berudara 10 x 10 m dan lebih
Untuk menggunakan kawasan yang dapat digunakan dengan cekap, pereka menggabungkan ruang beberapa bilik dan membuang partisi yang tidak perlu. Untuk mendapatkan susun atur yang mudah dan praktikal, semua bilik, dan juga kawasannya, dianggarkan lebih awal.
Semasa memilih projek untuk bangunan satu tingkat, seluas 100-150 m2, beberapa ciri harus disediakan:
- kawasan ruang tamu dipilih dengan mengambil kira jumlah penghuni (jangan lupa juga kemungkinan tetamu);
- ukuran dapur bergantung pada peralatan apa yang akan dipasang di ruangan ini (disarankan untuk memikirkan terlebih dahulu bagaimana perkakas dapur dan keseluruhan peralatan rumah tangga akan berada);
- parameter bilik tidur dikira sedemikian rupa sehingga ada ruang untuk mengatur bilik persalinan;
- dimensi bilik dandang bergantung pada sistem pemanasan yang dipilih, kapasiti dan keperluan pemiliknya.
Sekiranya luas bangunan tidak melebihi 100 m², besar kemungkinan saiz struktur perlu ditingkatkan dengan menggunakan struktur tambahan. Hanya dalam kes ini, rumah boleh dilengkapi dengan tiga bilik tidur yang lengkap. Sekiranya kawasan bangunan adalah 150 m² atau lebih, projek bangunan mungkin tidak termasuk loteng dan tingkat bawah tanah.
Artikel berkaitan:
Projek rumah dari blok busa dengan keterangan: dari perancangan hingga penamat
Dari mengenal ciri-ciri bahan binaan hingga meletakkan kemudahan tersebut dalam operasi. Kelebihan dan ciri busa.
Dalam susun atur moden, pilihan berikut untuk menggabungkan premis paling kerap dijumpai:
- bilik mandi dan tandas;
- bilik dandang dan bilik simpanan;
- ruang tamu dan ruang makan;
- dapur dan ruang makan;
- dapur dan ruang tamu;
- bilik tidur dan belajar.
Catatan! Koridor panjang boleh digunakan untuk menghubungkan bilik. Dalam kes ini, bilik tidak akan dilalui.
Kawasan bilik tidur harus cukup besar untuk menampung tempat tidur, bilik persalinan dan ruang kerja.
Susun atur yang berjaya:

Sekiranya kawasan rumah adalah 150 m² atau lebih, projek bangunan mungkin tidak termasuk loteng dan tingkat bawah tanah
- ruang lorong dihubungkan dengan blok utiliti dan bilik persalinan;
- dengan bantuan bukaan besar, ruang dapur dan ruang tamu-ruang makan digabungkan;
- bilik mandi dan tandas digabungkan menjadi satu bilik yang luas.
Pelbagai susun atur dalam projek rumah dua tingkat yang diperbuat daripada konkrit berudara
Sebelum membina rumah dari blok gas dengan dua tingkat, anda perlu mempertimbangkan semua kebaikan dan keburukan idea tersebut. Kita tidak boleh lupa bahawa dalam hal ini, perlu juga mengukuhkan lantai, jika tidak, berbahaya untuk tinggal di bangunan seperti itu.
Di samping itu, perhatian khusus harus diberikan kepada reka bentuk komunikasi. Di bangunan dua tingkat, sistem ini mempunyai struktur yang lebih kompleks.Oleh kerana rumah itu mempunyai tingkat kedua, perlu menyediakan bekalan air tambahan dan mengatur kumbahan. Untuk menyediakan keadaan yang selesa untuk operasi komunikasi, perlu memasang pam jenis sirkulasi. Sekiranya ini tidak dilakukan, penyejuk tidak akan dapat bergerak melalui paip.
Membina rumah dari blok gas dengan dua tingkat memerlukan kajian yang teliti terhadap projek ini, khususnya susunan premis. Sekiranya keluarga mempunyai anak kecil dan orang tua, bilik mereka, untuk mengelakkan kecederaan, harus terletak di tingkat pertama.
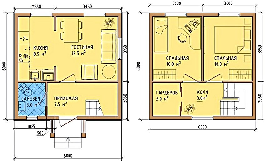
Kami membuat projek untuk pembinaan blok konkrit berudara: susun atur bangunan dua tingkat
Susun atur sebuah pondok dua tingkat tidak hanya selesa untuk hidup, tetapi juga memenuhi syarat asas dan lantai yang berkaitan dengan beban operasi. Sebagai tambahan kepada konsep umum projek, susun atur bilik di setiap tingkat dikembangkan secara berasingan.
Perhatian khusus harus diberikan kepada susun atur premis jika projek rumah kecil sedang dibangunkan. Bilik untuk pelbagai tujuan biasanya terletak di tingkat pertama bangunan:
- ruang tamu untuk menerima rakan dan saudara;
- dapur;
- bilik mandi tetamu;
- dewan atau lorong;
- bilik dandang atau bilik dandang.

Membina rumah dari blok gas dengan dua tingkat memerlukan kajian yang teliti terhadap projek ini, khususnya susunan premis
Nasihat berguna! Sekiranya anda melengkapkan ruang kecil di pintu masuk rumah, anda boleh melindungi tempat tinggal dari udara sejuk dari jalan dan mengekalkan iklim mikro yang selesa di dalamnya.
Sekiranya kawasan lantai pertama cukup besar, disarankan untuk melengkapkan bilik tambahan di sini:
- ruang makan;
- kabinet;
- bilik rehat tetamu.
Anda juga boleh memasukkan garaj kereta di susun atur tingkat bawah. Adapun tingkat kedua, adalah kebiasaan untuk melengkapkan kawasan rekreasi. Bilik-bilik berikut terletak di bahagian atas:
- bilik tidur;
- bilik mandi, termasuk bilik mandi atau tab mandi;
- bilik persalinan;
- kanak-kanak.
Sekiranya kawasan bangunan membenarkan, bilik untuk percutian keluarga dapat dilengkapi di tingkat dua. Bilik ini akan menjadi sejenis analog ruang tamu, yang hanya akan digunakan oleh penghuni rumah tersebut.
Ciri-ciri projek rumah dari konkrit berudara 7x7 m
Sekiranya pemaju mempunyai sebidang tanah kecil, ia akan menjadi masalah untuk membina rumah besar di wilayahnya. Dalam kes ini, projek bangunan kompak harus dipilih. Oleh kerana kawasan perumahan akan terhad, hanya mungkin merangkumi premis utama dalam susun aturnya, yang merangkumi:
- bilik tidur;
- dapur;
- ruang tamu;
- bilik air dan bilik mandi.
Di tingkat bawah terdapat ruang tamu dan dapur, serta ruang masuk kecil di mana tangga yang menuju ke tingkat atas dipasang. Adalah wajar untuk meletakkan bilik rehat dan bilik mandi di tingkat dua. Terdapat juga dewan kecil dengan tangga.
Walaupun bersaiz kecil, pondok seluas 7x7 m mampu memberikan keadaan yang selesa untuk kediaman tetap. Untuk melaksanakan projek seperti itu, jumlah kos minimum akan diperlukan. Ini tidak bermaksud menjimatkan pembelian bahan binaan. Oleh kerana kawasan rumah yang berguna sangat terhad, disarankan untuk mempercayakan susun atur premis kepada pakar.

Walaupun bersaiz kecil, pondok seluas 7x7 m mampu memberikan keadaan yang selesa untuk kediaman tetap
Merancang penyelesaian untuk projek rumah konkrit berudara 9x9 m
Untuk mendapatkan perumahan yang boleh dipercayai dan selamat dengan dimensi seperti itu, sangat penting untuk mengikuti teknologi pembinaan. Oleh kerana strukturnya akan mempunyai berat badan yang mengagumkan, peningkatan keperluan dikenakan pada pondasi. Asas mesti menahan beban operasi yang ketara.
Catatan! Konkrit berudara tahan terhadap beban mampatan.Walau bagaimanapun, tahap ketahanan patahnya sangat rendah. Oleh itu, semasa pembinaan bangunan dua tingkat, peletakan blok konkrit berudara di tingkat bawah mesti dilakukan bersamaan dengan tetulang. Untuk ini, batang keluli digunakan.
Susun atur bilik di rumah 9x9 m dibangunkan dengan mengambil kira panjang dinding yang sama. Sekiranya tangga terletak di seberang, bilik tidur di tingkat dua boleh dibuat dengan ukuran yang sama dengan akses ke dewan. Sekiranya tingkap menawarkan pemandangan yang indah, di tingkat atas anda boleh mengatur loggia atau balkoni, dari mana penduduk dapat mengagumi alam sekitarnya.
Sekiranya tangga dipasang di tengah rumah, maka sebahagian kawasan di tingkat bawah dapat digunakan untuk mengatur beranda. Adalah wajar bahawa ia bersebelahan dengan ruang tamu. Terdapat juga susun atur yang tidak begitu standard. Contohnya, tangga yang menuju ke tingkat dua boleh dipasang di dapur.
Luas tingkat bawah dapat digunakan untuk melengkapkan premis berikut:
- dapur;
- bilik mandi;
- bilik tidur;
- ruang tamu;
- teres;
- bilik dandang;
- dewan kecil di mana semua bilik pergi.
Tingkat dua akan disediakan untuk rehat pemilik. Di sini anda dapat melengkapkan beberapa bilik tidur, pejabat, bilik persalinan dan dewan yang berfungsi sebagai bilik berjalan di antara bilik-bilik ini.
Contoh projek rumah 10x10 dengan susun atur 2 tingkat yang sangat baik
Sekiranya ukuran plot memungkinkan, pilihan projek yang optimum untuk rumah dua tingkat yang diperbuat daripada konkrit berudara 10x10 m akan menjadi penyelesaian terbaik untuk pembinaan masa depan. Luas bangunan sedemikian akan cukup untuk mengembangkan susun atur yang mudah. Dalam kes ini, anda boleh menggunakan projek-projek pondok yang lebih kecil dengan menambah luas bilik.
Projek pondok dengan ukuran 10x10 m mungkin merangkumi premis berikut:
- bilik tidur (4 pcs.);
- dewan (3 pcs.);
- bilik dandang;
- bilik mandi (2 pcs.);
- dapur;
- ruang tamu;
- pantri;
- balkoni (2 keping.);
- bilik hiburan.
Anda tidak perlu menambah kawasan premis utama, tetapi hanya mengatur kawasan tambahan. Sekiranya keluarga kecil tinggal di rumah, disarankan untuk meninggalkan susun atur standard dengan meletakkan ruang rehat dan hiburan di tingkat dua:
- perpustakaan;
- bilik biliard;
- gim kecil;
- bilik permainan, dll.
Akibatnya, pemaju menerima sebuah pondok yang mempunyai semua syarat yang diperlukan untuk kehidupan sepanjang tahun.
Penting! Adalah perlu untuk menentukan terlebih dahulu lokasi alat pemanas, terutama jika ia dirancang untuk memasang perapian atau kompor.
Ciri-ciri projek rumah konkrit berudara dengan loteng
Projek-projek pondok dua tingkat dengan lantai loteng mempunyai kelebihan dan kekurangan. Oleh itu, anda perlu mempertimbangkan dengan teliti kemungkinan keputusan tersebut.
Kelebihan bangunan dengan loteng:
- Senibina bangunan yang menarik - dari sisi, bumbung dengan rehat dan struktur gerbang akan kelihatan sangat rapi.
- Keupayaan untuk membuat bahagian dalam yang tidak biasa - jika bentuk loteng dipilih dengan betul, ruang di bawah bumbung dapat diberi tampilan yang asli.
Loteng memiliki muatan yang lebih rendah daripada lantai penuh, jadi banyak pemaju lebih memilih penyelesaian seni bina seperti itu, sementara menerima bukan hanya ruang tamu tambahan, tetapi juga menjimatkan wang.
Pembinaan lantai loteng disertai oleh beberapa kesulitan yang mesti diambil kira dan termasuk dalam projek bangunan:
- Peningkatan keperluan untuk penebat haba bangunan dan sistem pengudaraan - jika teknologi membina rumah dari blok konkrit berudara dilanggar, bumbung dan dinding bangunan akan membeku, menyebabkan pemeluwapan.
- Masalah dengan akses ke cahaya semula jadi - jika anda memasang tingkap menegak, jumlah cahaya matahari yang terhad akan memasuki rumah. Agar tahap pencahayaan berada dalam jarak normal, anda harus membeli tingkap khas, yang mana pembelian dan pemasangannya akan secara signifikan meningkatkan kos pembinaan.
- "Zon mati" - walaupun ukuran loteng dan tingkat pertama sama, dinding bumbung yang landai akan mengurangkan kawasan yang boleh digunakan. Anda tidak dapat memasang perabot standard di sini. Anda mungkin perlu membeli perabot khas.
Walaupun terdapat kekurangan, projek rumah negara dengan loteng mendapat permintaan tinggi di kalangan pemaju. Selalunya, bilik tidur dan ruang hiburan disusun di bawah bumbung.
Susun atur projek rumah konkrit berudara dengan garaj
Sekiranya anda mempunyai kereta, pemilik tanah harus menjaga pembinaan garaj. Sekiranya kawasan halaman belakangnya kecil, anda harus meninggalkan pembinaan bangunan yang berasingan. Pilihan terbaik adalah projek di mana garaj termasuk dalam susun atur rumah. Ia boleh terletak di bawah bumbung bangunan atau kelihatan seperti pemanjangan.
Penting! Sekiranya rumah mempunyai garaj, anda tidak boleh melengkapkan bilik tidur atau bilik kanak-kanak di atasnya. Ruang di tingkat dua di kawasan ini paling sesuai digunakan untuk mengatur pantri, bilik persalinan atau teres.
Bergantung pada saiz rumah, garaj boleh direka untuk satu, dua atau bahkan tiga kereta. Projek sedemikian membolehkan anda menyelamatkan kawasan tanah. Dalam kes ini, tidak perlu meninggalkan ruang untuk laluan antara bangunan kediaman dan garaj.
Sebaiknya jangan meletakkan bilik di bilik yang berdekatan dengan garaj tempat orang berada lama; lebih baik mengatur di belakang dinding:
- Bilik utiliti;
- pantri;
- dobi;
- dewan;
- lorong;
- bilik persalinan.
Untuk kemudahan, disarankan untuk melengkapkan garaj dengan dua pintu masuk. Satu pintu akan menuju ke jalan, dan yang kedua menuju ke rumah. Susun atur yang ideal adalah bilik di mana bilik mandi atau dapur berdekatan dengan garaj. Oleh itu, pemiliknya dapat mencuci tangannya sebaik sahaja membaiki kereta. Sangat penting bagi projek bangunan dengan garaj untuk mengembangkan sistem pengudaraan yang berkualiti tinggi dan boleh dipercayai. Jika tidak, tinggal di rumah sedemikian tidak selamat.
Pembinaan rumah konkrit berudara DIY: maklumat berguna
Selalunya, pemilik kawasan pinggir bandar memutuskan untuk melakukan semua kerja pembinaan dengan tangan mereka sendiri. Dalam kes ini, penggunaan blok konkrit berudara mempunyai beberapa kelebihan:

Untuk menjalankan kerja-kerja pembinaan rumah dari blok konkrit berudara tidak memerlukan kelayakan yang tinggi
- Lebih sedikit masa untuk membina bangunan daripada menggunakan bahan lain, seperti kayu, bata, batu, kayu balak, dll.
- Blok konkrit berudara mempunyai kos yang berpatutan dan meluas di pasaran.
- Kelayakan yang tinggi tidak diperlukan untuk menyelesaikan kerja, jadi beberapa tahap pembinaan rumah dari konkrit berudara dapat dilakukan secara bebas.
Nasihat berguna! Dianjurkan untuk menggunakan tangga terbang sebagai pembagi antara dua bilik.
Cara membina rumah dari blok gas tanpa kesilapan: cadangan praktikal
Sekiranya pemilik plot tanah ingin membina rumah sendiri untuk mengelakkan kesilapan, dia mesti mengambil kira beberapa perkara:
- konkrit berudara mampu menahan beban statik yang besar jika ia diedarkan secara merata. Walau bagaimanapun, ia musnah jika dipengaruhi secara dinamik di lokasi titik;
- blok yang diperoleh dengan autoklaf dianggap berkualiti tinggi dari sudut teknikal daripada produk kering secara semula jadi;
- walaupun struktur konkrit berudara ringan, tidak ada salahnya menjimatkan pembinaan yayasan, kerana ketahanan dan keselamatan keseluruhan bangunan bergantung pada kebolehpercayaannya;

Projek bangunan yang dirancang dengan betul akan mewujudkan perumahan yang berfungsi dan selesa untuk hidup
- mustahil balok lantai terletak di dinding konkrit berudara - sangat mustahak untuk melakukan tetulang;
- untuk mengambil titik embun di luar rumah, pemasangan bahan penebat di luar dinding harus dilakukan, oleh itu, bangunan akan dilindungi dari letupan;
- untuk mengira bilangan blok yang diperlukan, disarankan menggunakan kalkulator khas, selepas itu anda harus membeli bahan dengan margin kecil;
- barisan blok pertama diletakkan di atas bahan kalis air menggunakan mortar konkrit;
- peletakan blok gas dilakukan sendiri sedemikian rupa sehingga jahitan menegak setiap baris berikutnya dipindahkan ke sisi (kira-kira 1/3 panjang blok bangunan);
- adalah mustahak untuk memperkukuh batu konkrit berudara (setiap 2-3 baris);
- jika tidak ada alur di blok bangunan yang diperlukan untuk meletakkan tetulang, ia mesti dibuat dengan tangan menggunakan pemburu dinding;
- peletakan dilakukan dengan teratur, anda tidak boleh memasang blok gas tahap baru jika yang sebelumnya belum selesai;
- sebelum meletakkan blok, permukaannya mesti dibersihkan dari habuk dan kotoran;
- mortar simen dan campuran pelekat khas digunakan untuk memperbaiki blok gas;
- dalam proses kerja, anda mesti memantau kualiti, bukan kepantasan.
Projek bangunan yang dirancang dengan betul akan mewujudkan perumahan yang berfungsi dan selesa untuk hidup. Ini tidak sukar dicapai apabila anda mempertimbangkan semua keperluan teknikal dan operasi, peraturan keselamatan, ukuran tanah, dan juga pilihan individu. Lebih-lebih lagi, pembinaan boleh dilakukan dengan tangan anda sendiri atau anda boleh mengupah pakar yang akan dapat melaksanakan projek turnkey.