Keadaan yang selesa untuk bersantai di pondok musim panas dapat dicapai dengan cara yang berbeza. Bersama gazebos dan bangku, bukan tempat terakhir diambil oleh ayunan untuk diberikan dengan tangan anda sendiri: foto produk menarik dapat dijumpai dengan mudah di rangkaian, dan dengan menggunakan petunjuk langkah demi langkah, anda dapat mengatasi pembuatan buaian dengan mudah. Malah orang dewasa boleh menggunakan buaian seperti itu. Perkara utama adalah mengira berat badan dengan tepat dan membina struktur yang boleh dipercayai.

Ayunan yang terletak di plot peribadi akan menjadi sumber mood yang baik untuk kanak-kanak dan orang dewasa
Kandungan
- 1 Lakukan sendiri untuk kediaman musim panas: foto dan klasifikasi produk
- 2 Cara membuat swing di negara ini dari logam sendiri
- 3 Cara membuat hayunan di negara ini dengan tangan anda sendiri dari kayu
- 4 Foto buaian kanak-kanak untuk kediaman musim panas dengan tangan mereka sendiri dan keunikan pembuatannya
- 5 Reka bentuk dan kaedah pengancing yang indah
- 6 Cara menjadikan ayunan bayi anda sendiri selamat dan selesa
Lakukan sendiri untuk kediaman musim panas: foto dan klasifikasi produk
Bahan tradisional untuk membuat buaian luaran yang dibuat sendiri adalah logam dan kayu. Untuk meningkatkan kebolehpercayaan dan ciri luaran, anda boleh menggabungkan bahan-bahan ini, dan juga menghiasi sebahagian struktur logam dengan penempaan hiasan.
Nasihat berguna! Untuk pembuatan tempat duduk, bahan-bahan yang ada boleh digunakan yang mungkin masih ada di tapak setelah pembinaan rumah atau kerja-kerja pembaikan.
Untuk pembinaan, anda boleh menggunakan:
- bar;
- plastik;
- tali tahan lama;
- paip logam;
- kerusi lama atau kerusi dari mana anda mesti melepaskan kaki terlebih dahulu.
Pemilik kereta boleh menggunakan tayar kereta lama. Mereka akan sesuai dengan katil bunga yang diperbuat daripada bahan serupa.
Klasifikasi buaian sendiri
Terdapat sebilangan besar ayunan asli dan selesa yang dapat menghiasi pemandangan mana-mana pondok musim panas.
Mereka boleh dibahagikan secara konvensional kepada tiga kategori luas:
- mudah alih - produk mempunyai reka bentuk mudah alih yang ringan, sehingga buaian dapat dipindahkan di sekitar laman web ini ke mana-mana tempat yang mudah, misalnya, ke rumah, ke beranda, ke gazebo atau di bawah kanopi dalam hujan;
- keluarga - produk dengan pembinaan yang besar dan berat. Dengan struktur mereka, mereka menyerupai bangku tanpa kaki dengan punggung yang besar dan tinggi. Oleh kerana dimensi yang besar, seisi keluarga dapat duduk di tempat duduk. Untuk menjadikan operasi ayunan itu selamat, mereka dipasang dengan selamat pada bingkai berbentuk U. Kabel kuat atau rantai tebal digunakan sebagai kunci. Sekiranya anda mengatur bumbung atau tenda di atas buaian, ia boleh digunakan walaupun dalam hujan;
- kanak-kanak - kategori produk khas, biasanya dalam bentuk kapal atau kerusi gantung... Keperluan khas dikemukakan untuk struktur yang berkaitan dengan kerangka, yang harus mematuhi semua standar keselamatan. Kanak-kanak yang sangat muda boleh menggunakan buaian hanya di hadapan orang dewasa dan menggunakan tali pinggang khas. Dengan pertolongan mereka, bayi dipasang di tempat duduk dan oleh itu tidak boleh jatuh.

Ayunan bayi dengan bingkai logam, dicat dengan warna terang
Varieti dan gambar ayunan di negara ini dengan tangan mereka sendiri
Ayunan boleh dikelaskan mengikut kriteria lain. Terdapat jenis produk berikut mengikut jenis reka bentuk:
- tempat tidur gantung - digantung pada palang logam. Pokok dengan dahan bawah tebal dan lurus dapat berfungsi sebagai pengganti palang. Semasa menggunakan struktur seperti itu, seseorang mempunyai kesan bahawa dia melayang di atas tanah. Perubahan seperti ini sangat diminati oleh mereka yang gemar membaca buku;
Nota! Produk buaian, tertakluk pada teknologi pembuatan, mampu menahan beban berat hingga 200 kg.
- produk tunggal dengan pelbagai jenis reka bentuk yang tidak memerlukan pemasangan palang tambahan. Ayunan ini dicirikan oleh sistem pemasangan pantas, dan boleh dipasang di mana sahaja. Pelbagai bahan digunakan untuk pembuatan;
- digantung - struktur adalah tempat duduk yang digantung oleh beberapa tali atau rantai. Tali dipasang di sisi. Kerana penggunaan pelbagai bahan yang menjadikan produk tahan lama, selesa dan ringan, ayunan jenis gantung dapat memiliki berbagai bentuk dan ukuran;
- kerusi berjemur - produk boleh memuatkan keluarga dua orang dewasa dan seorang kanak-kanak. Ayunan mempunyai reka bentuk khas, yang melibatkan pemasangan pada satu titik pemasangan, yang membolehkannya dipasang di dalam bilik. Bahan untuk pembuatannya adalah aloi logam khas. Walaupun kelihatan lapang, produk ini sangat tahan lama.
Cara membuat swing di negara ini dari logam sendiri
Sebelum memulakan perniagaan, anda harus menyediakan bahan yang diperlukan, dan juga alat.
Pastikan terlebih dahulu mengenai ketersediaan:
- fail atau kertas pasir (untuk bekerja dengan permukaan logam);
- mesin kimpalan;
- elektrod;
- bekas untuk mencampurkan larutan;

Ayunan logam dibezakan dengan keanggunan dan kelembutan reka bentuknya
- bahan untuk penyediaan penyelesaian (batu hancur, air, simen, pasir);
- pengikat (mur, bolt);
- paip logam;
- sepana dan penyodok;
- penggiling dan satu set cakera untuk logam.
Membuat ayunan di negara ini dengan tangan anda sendiri: gambar dan teknologi
Perkara pertama yang perlu dilakukan ialah menyediakan paip. Bahannya dipotong seperti berikut:
- pendirian sisi - 2 pcs., panjang - 2 m;
- elemen asas - 2 pcs. di setiap sisi, panjangnya mengikut budi bicara;
- palang - 1 pc., panjang - 1,5-2 m.
Nasihat berguna! Burr boleh terbentuk pada paip logam setelah memotong. Gunakan fail atau kertas pasir untuk mengeluarkannya.
Unsur-unsur yang dimaksudkan untuk pangkalan mesti diikat dengan mengimpal pada sudut 45 °. Seterusnya, palang dikimpal ke tiang pada sudut 90 °.
Untuk memasang struktur, dua parit harus digali. Lebar relung ini harus sesuai dengan tripod yang diperoleh sebagai hasil pemasangan, dan kedalamannya tidak boleh kurang dari 0,8 m. Lebar palang harus sesuai di antara parit.
Bahagian sokongan swing akan dipasang di ceruk. Sebelum ini, bantal pasir harus dibentuk di bahagian bawah. Ketebalan lapisan adalah 0.1-0.2 m. Selepas itu, tanggul dipadatkan dengan teliti. Asas struktur dipasang di atas, ceruk dituangkan dengan konkrit.
Untuk menyediakan campuran, campurkan pasir, simen dan batu hancur dalam bahagian berikut: 2: 1: 1 (masing-masing). Tambahkan cecair ke campuran yang dihasilkan dan campurkan larutan. Hasilnya, anda harus mendapat jisim yang homogen. Pastikan ia tidak terlalu berair.

Gambar rajah ayunan taman: 1 - skru untuk mengikat tali belakang dan tali kerusi; 2 - helai; 3 - sudut kerangka kerusi goyang; 4 - bar pangkalan ladang swing; 5 - paku keling; 6 - jalur penyambungan kekakuan kerusi dan penggantungan tempat duduk; 7 - batang sisi ladang ayunan; 8 - sambungan hujung bingkai sokongan awning; 9 - tali untuk menggantung kerusi goyang; 10 - karbin; 11 - cincin; 12 - pendakap gusset; 13 - bar atas ladang ayunan; 14 - menyambung selak dengan mesin basuh dan mur; 15 - masukkan bolt pemasangan; 16 - masukkan dengan lubang dan benang dalaman untuk bolt penyambung; Mesin basuh spacer 17 - lebar; 18 - rangka sokongan untuk awning; 19 - mesin basuh; 20 - selak yang menghubungkan bar atas dengan yang sisi; 21 - palang - 2 pcs. (jalur keluli dengan selak)
Memerlukan konkrit untuk mengeras selama seminggu. Sehingga saat ini, tidak dianjurkan untuk memasang tempat duduk di palang, yang boleh dipegang oleh kabel atau balok logam. Setelah memastikan bahawa mortar telah sembuh, pasangkan cangkuk dengan mengimpal dan letakkan tempat duduk di kabel. Sekiranya menggunakan balok logam, kimpal tempat duduk di atasnya. Apabila struktur siap dan dipasang sepenuhnya, ia boleh dicat untuk memberi ayunan penampilan yang cantik dan melindungi logam daripada kakisan.
Cara membuat hayunan di negara ini dengan tangan anda sendiri dari kayu
Teknologi ini dianggap mencipta dengan tangan anda sendiri buaian luaran kanak-kanak kerana memberi diperbuat daripada kayu, yang sekaligus dapat menampung beberapa bayi sekaligus. Dimensi ayunan boleh diubah mengikut budi bicara anda.
Nasihat berguna! Gunakan spesies kayu berikut sebagai bahan: birch, pine, spruce.
Peringkat persediaan: alat dan bahan
Senarai bahan yang diperlukan untuk membuat struktur kayu merangkumi:
- papan - 15 pcs., panjang - 2.5 m, keratan - 2.5x10 cm;
- papan - 1 keping, panjang - 2 m, keratan - 5x15 cm;
- karbin - 6 biji .;
- skru mengetuk sendiri - 250 pcs., saiz - 3,5x52 mm;
- rantai yang dikimpal, panjangnya dipilih dengan mengambil kira ketinggian ayunan, ketebalan pautan adalah 0.5 cm;
- skru tergalvani - 2 pcs. saiz 1.2x10 cm + 2 pcs. saiz 1.2x8 cm.

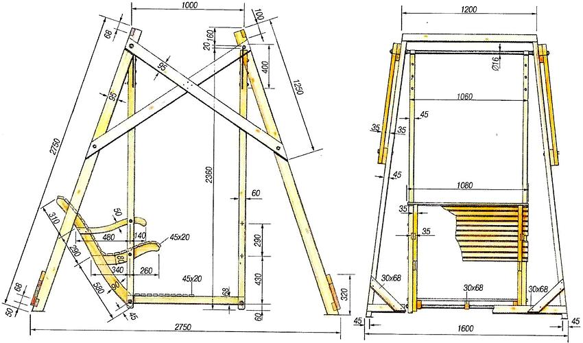
Ayunan kanak-kanak dengan tangan mereka sendiri: 1 - bahagian luar sisi tempat duduk - 2 buah. (90x35x375); 2 - bahagian dalam bingkai tempat duduk - 2 buah. (70x35x375); 3 - anggota silang bingkai tempat duduk - 2 buah. (90x35x375); 4 - perincian sandaran tangan menegak - 2 pcs. (45x35x275); 5 - perincian sandaran menegak - 2 pcs. (90x35x650); 6 - perincian sandaran tangan mendatar - 4 pcs. (45x35x530); 7 - bahagian sandaran tangan atas - 2 pcs. (145x20x585); 8 - pemegang rantai atas - 2 pcs. (45x35x300); 9 - pemegang rantai bawah - 2 buah. (70x35x150); 10 - bahagian depan dan belakang bingkai tempat duduk - 2 buah. (90x35x1300); 11 - anggota silang belakang - 1 pc. (90x35x1400); 12 - papan tempat duduk - 1 pc. (90x20x1170); 13 - papan tempat duduk - 3 buah. (90x20x1230); 14 - papan belakang - 12 pcs. (90x20x850)
Pelbagai pasaran menawarkan skru penoreh sendiri dalam pelbagai warna. Bayangan pengikat dapat dipukul dengan berkesan dalam reka bentuk ayunan, jadi anda harus memperhatikan warna skru. Dengan mengambil pengikat yang sesuai dengan kayu, anda boleh menyembunyikan sendi bahagian struktur. Skru mengetuk sendiri dengan warna yang berbeza akan menghasilkan kesan yang menarik.

Digantung buaian kayudicat putih
Jangan lupa untuk menyediakan instrumen anda:
- rolet;
- pensel;
- segi empat sama untuk mengukur ukuran sudut;
- gergaji bulat untuk memotong kayu;
- latih tubi dan satu set latihan untuknya;
- kapal terbang dan gergaji besi;
- tukul.
Teknologi untuk membuat ayunan kanak-kanak: bagaimana membuat struktur dengan tangan anda sendiri
Sekiranya anda mula membuat buaian dengan tangan anda sendiri, anda dapat mempermudah pekerjaan anda dengan satu cara yang mudah - buat rancangan dan cuba bertahan. Dianjurkan untuk menyiapkan projek terlebih dahulu, menyusun gambar dan menggariskan semua parameter dimensi, lokasi pengikat padanya, menganalisis produk masa depan untuk kebolehpercayaan.
Artikel berkaitan:
Rumput rumput yang merosakkan rumpai dan teknologi pertaniannya. Teknologi rumput. Jenis campuran rumput rumput dan peraturan pemilihannya untuk plot peribadi anda. Cara menabur rumput, arahan video.
Sekiranya anda tidak mempunyai pengalaman dalam membuat gambar, gunakan projek siap pakai. Gambar sendiri dari buaian kanak-kanak, yang dapat anda temukan di Internet, akan membantu anda menentukan pilihan reka bentuk yang sesuai. Ingat, terdapat perbezaan besar antara ayunan yang dirancang untuk orang dewasa dan buaian untuk kanak-kanak.
Pada bahagian yang telah disiapkan sebelumnya (masing-masing panjang 1.5 m), potongan harus dibuat dengan tegas pada sudut yang betul. Papan, setebal 2 cm, dimaksudkan untuk tempat duduk. Untuk pembuatan bahagian belakang, lebih baik memasang papan dengan ketebalan 1.2-1.3 cm. Kerusi akan memerlukan 32 bilah, 15 daripadanya hendaklah panjang 0.45 m, selebihnya 17 - 0.5 m.
Nasihat berguna! Untuk mengelakkan keretakan kayu semasa pemasangan skru mengetuk sendiri, gerudi lubang kecil pada elemen struktur untuk diikat.
Bekerja dengan bahagian belakang dan tempat duduk buaian
Sekiranya anda mahukan struktur sandaran yang lebih selesa dan selesa, ia harus dibentuk. Untuk mencapai hasil yang diinginkan, gunakan papan dengan ketebalan besar (bahagian - 5x15 cm). Anda perlu membuat 6 bahagian. Dengan menggunakan penanda atau pensil, tandakan tempat kosong dengan sewajarnya.
Selepas itu, anda perlu menentukan sudut di mana bahagian belakang akan terpaku. Papan dipasang dengan nada yang sama. Pastikan papan rata. Untuk melakukan ini, pertama-tama lakukan lekapan di sisi, dan kemudian di tengah.
Pemasangan sandaran tangan akan meningkatkan keselesaan menggunakan ayunan. Sebaiknya gunakan kayu untuk tujuan ini. Dalam kes ini, lebarnya tidak terlalu penting dan dipilih dengan mengambil kira kehendak anda sendiri. Di satu pihak, sandaran tangan disekat ke bahagian rangka sandaran, di sisi lain, mereka dilekatkan pada tempat duduk.
Pada langkah seterusnya, anda boleh memasang rantai yang dikimpal ke bingkai. Tempat terbaik adalah kawasan bawah sandaran tangan, iaitu, tempat ia bersambung dengan tempat duduk. Ambil penyambung khas yang mempunyai cincin di satu sisi dan utas di sisi lain. Ia melekat pada palang dan bingkai tempat duduk. Selepas itu, rantai akan melalui cincin ini.

Lukisan kerusi dengan belakang dan dinding sisi untuk ayunan (cm): 1 - elemen dinding sisi mendatar - 4 pcs. (5x5x70); 2 - batang penghubung - 3 pcs. (d = 2.5 cm, panjang 80 cm); 3 - petak pengukuhan - 4 pcs. (2.5x10x10); 4, 11 - elemen dinding sisi menegak - 4 pcs. (5x5x37.5); 5 - elemen bingkai sandaran - 2 pcs. (5x5x37.5); 6 - elemen sandaran dan kisi tempat duduk - 13 pcs.(d = 2.5 cm, panjang 58 cm); 7 - elemen bingkai tempat duduk - 2 pcs. (5x5x67.5); 8 - panduan tali gantung - 2 pcs. (d = 2.5 cm, panjang 10 cm); 9 - pin - 4 keping. (d = 1 cm, panjang 7 cm); 10 - pengapit tempat duduk (d = 2.5 cm, panjang 68 cm)
Lebih baik menggunakan tiang berbentuk A untuk menahan ayunan. Anda perlu mengambil log yang kuat sebagai elemen sokongan. Sesiapa yang tahu bagaimana mengendalikan mesin kimpalan boleh mengambil pembuatan kerangka logam.
Membuat sokongan untuk buaian kanak-kanak dengan tangan anda sendiri
Banyak tukang yang membuat ayunan untuk pondok musim panas lebih suka rak berbentuk A, kerana mereka memberikan tahap kebolehpercayaan yang tinggi, tahan lama dan dapat menahan beban berat. Pada peringkat ini, anda memerlukan set alat yang sama seperti yang anda lakukan ketika bekerja dengan tempat duduk. Sudah tentu, ketika datang ke rak yang terbuat dari kayu. Jika tidak, anda memerlukan mesin kimpalan.
Perkara pertama yang perlu anda lakukan ialah membuat rak. Ukurannya mesti sama dan sama. Selepas itu, anda boleh memasangnya pada jarak yang anda perlukan. Angka ini bergantung pada lebar kedudukan tempat duduk. Bar palang harus digunakan untuk menyambungkan penyokong.
Penting! Lakukan pengiraan tepat mengenai sudut di mana penyusun tegak yang disatukan akan bergabung. Bahagian atas catatan perlu diikat dengan selamat. Jika tidak, mereka mungkin dipimpin.

Pengikat bahagian atas tiang yang boleh dipercayai akan memberikan kekuatan kekuatan keseluruhan struktur yang tinggi
Untuk memasang bar palang, tandakan 1/3 tiang sokongan. Pada tahap inilah pemasangan akan dilakukan. Skru dan sudut mengetuk sendiri yang diperbuat daripada logam boleh digunakan sebagai elemen penetapan. Pastikan palang berada pada ketinggian yang sama. Biasanya ayunan mempunyai satu bar, tetapi jika anda ingin meningkatkan kekuatan struktur, anda boleh memasang dua.
Gali lubang di tanah untuk memasang pangkalan. Kedalaman maksimum adalah 0,8 m. Struktur dipasang pada bantal batu hancur dengan ketebalan sekitar 0,2 m. Setelah rak diletakkan di dalamnya, mereka dituangkan dengan konkrit.
Memandangkan kayu sangat rentan busuk, bahagian bawah tegak harus dirawat dengan antiseptik dan diisolasi sebelum membetulkan pangkalan. Untuk tujuan ini, perlu menyimpan bahan kalis air. Bahan bumbung akan dilakukan.
Oleh kerana pada masa akan datang, strukturnya akan dikendalikan oleh kanak-kanak, anda perlu mengamankannya. Sudut tajam harus dibulatkan, penyimpangan dan burr dikeluarkan dengan mengisar.
Foto buaian kanak-kanak untuk kediaman musim panas dengan tangan mereka sendiri dan keunikan pembuatannya
Walaupun anda sama sekali tidak bersahabat dengan pesawat dan mesin kimpalan, ini sama sekali tidak bermaksud bahawa buaian di pondok musim panas akan tetap menjadi kemewahan bagi anda. Terdapat banyak reka bentuk ringkas yang boleh anda kendalikan. Lebih-lebih lagi, kebanyakan mereka tidak memerlukan pembelian bahan mahal. Anda sentiasa boleh melengkapkan diri dengan cara yang ada di tangan.
Ayunan yang diperbuat daripada bahan sekerap: palet
Palet adalah jenis bahan yang sangat popular dari mana perabot rumah dan taman dibuat. Oleh kerana serba boleh, mereka juga dapat digunakan untuk mengatur ayunan di kawasan pinggir bandar. Untuk melakukan ini, anda harus mempunyai satu palet, tali dan pokok di mana strukturnya akan digantung.
Nasihat berguna! Sebagai pengganti kayu, tiang penyokong yang kuat dapat dipasang.

Palet adalah bahan yang sangat baik untuk membuat yang asli perabot Taman
Malah produk yang dibuat berdasarkan satu palet boleh mempunyai beberapa pengubahsuaian.Unsur satu bahagian boleh dipasang pada suspensi di empat penjuru dengan tali. Ini cukup untuk swing melaksanakan fungsinya. Untuk mewujudkan keselesaan, letakkan tilam kecil di atas palet dan tutup dengan selimut atau selimut. Beberapa bantal di atas akan menjadi semacam penyelesaian untuk masalah kekurangan punggung.
Struktur jenis ini boleh digunakan bukan hanya untuk membaca buku di udara terbuka, tetapi juga untuk rehat dasar dari panas tengah hari di bawah naungan. Malah boleh digunakan untuk tidur.
Untuk membuat buaian kanak-kanak dengan punggung penuh dengan tangan anda sendiri, anda memerlukan dua palet. Seperti halnya struktur kayu yang terbuat dari papan dan balok, di sini anda juga harus mengamas permukaannya untuk menghilangkan burr. Produk mesti dibersihkan dengan baik dan diwarnai dengan pewarna yang direka untuk keadaan kayu dan luaran. Cukup dengan menggunakan pernis tahan kelembapan yang tidak akan merosakkan keindahan pokok.
Jenis buaian kanak-kanak lain dengan tangan mereka sendiri
Versi swing yang paling mudah adalah tempat duduk berbentuk papan yang digantung dengan tali. Untuk mengelakkan tali cepat tergesa-gesa, dua keping lagi boleh dipaku di sisi papan. Selepas itu, 4 lubang dibuat di mana tali dililit. Simpul yang kuat dan ketat diikat di hujungnya untuk memperbaikinya.Struktur itu sendiri boleh dipasang di atas pokok dan di pangkalan sokongan berbentuk U.
Ayunan yang digantung dari tali boleh dibuat dengan cara lain. Daripada lubang di papan, alur dibentuk: sepasang di bahagian akhir dan sepasang di sepanjang tepi di zon sudut. Tempat duduk (papan) boleh dibentuk seperti separuh bulatan atau dibiarkan lurus. Kerana daya tarik, tali tidak akan melompat keluar dari alur, walaupun pada hakikatnya mereka terbuka.

Anda boleh membuat buaian kanak-kanak yang selamat yang diperbuat daripada tekstil dan kayu dengan tangan anda sendiri
Nasihat berguna! Sekiranya anda mempunyai papan selaju atau papan luncur salji yang tidak dapat digunakan, anda boleh menggunakannya di tempat duduk, memberikan ayunan yang unik.
Untuk membuat buaian di pondok musim panas, anda boleh menggunakan sebilangan besar bahan yang berbeza, hingga tayar kereta. Cukup menggantung tayar dari dahan pokok dengan tali. Sekiranya anda mementingkan alam semula jadi, anda tidak boleh menggunakan rantai - terlalu banyak melukai kulit kayu.
Sebilangan tukang memberikan bentuk ukiran yang rumit pada tayar. Untuk mendapatkan reka bentuk yang asli, cukup dengan memperoleh alat pemotong tajam dan skema siap pakai. Anda boleh memotong tayar dengan pisau pembinaan. Pra-menandakan permukaan potongan menggunakan kapur atau penanda gelap. Produk siap boleh dicat dengan warna terang atau ditutup dengan gambar.
Ayunan yang diperbuat daripada dua balak kecil yang diikat bersama tali sangat popular di kalangan penduduk musim panas. Perkara utama ialah kayu dibersihkan, diratakan dan diikat rapat.
Reka bentuk dan kaedah pengancing yang indah
Terdapat beberapa jenis sistem pengikat yang boleh digunakan untuk ayunan. Pilihan ini adalah yang paling biasa:
- carabiner - dalam kes ini, bar digenggam oleh elemen yang mempunyai bahagian bulat (digunakan untuk bar bulat) atau segi empat tepat (bentuk persegi carabiner untuk balok);
- jangkar - sebenarnya, mereka adalah carabiner yang sama dengan jenis pengancing.
Ayunan dengan empat titik pemasangan (2 di tempat duduk dan 2 di belakang) boleh digantung dengan dua cara. Dalam kes pertama, anda memasukkan rantai atau tali ke cincin biasa, yang merupakan carabiner yang menghubungkan. Kemudian salah satu tali atau rantai dipasang pada palang dengan karabiner utama.Hasilnya, anda mempunyai dua titik sauh di bar.
Pilihan lain melibatkan pemasangan sistem pengikat, yang berdasarkan pada penggunaan 4 karabiner, memperbaiki setiap tali atau rantai yang mengarah dari struktur.
Berayun dalam bentuk bangku boleh dipasang pada cangkuk yang dipasang di dinding sisi tiang sokongan.
Bahan DIY untuk mencipta buaian yang indah untuk kanak-kanak di negara ini
Sekiranya anda tidak mahu terhad kepada penggunaan bahan di tangan, tetapi ingin membuat reka bentuk yang asli dan cantik, anda boleh menggunakan jenis kayu dan logam yang menarik.
Nasihat berguna! Tingkatkan produk anda dengan menambahkan bar belakang atau depan yang selesa pada reka bentuk anda. Terima kasih kepada had ini, anda dapat meningkatkan tahap keselamatan operasi swing.
Untuk membuat ayunan yang indah, anda memerlukan:
- carabiner yang diperbuat daripada logam tahan lama;
- papan pokok reput;
- rantai gantung;
- skru mengetuk sendiri dengan pelbagai parameter dimensi;
- skru, lengkap dengan cincin, yang juga digunakan untuk menggantung ayunan anak-anak di dalam bilik.
Set alat untuk bekerja terhad kepada:
- latihan dan satu set latihan;
- gergaji dan gergaji besi;
- jigsaw dan kapal terbang;
- tukul;
- alat pengukur dan penandaan (segi empat sama, ukuran pita, kapur, pensil / penanda).
Untuk memasang buaian, anda perlu memilih tempat yang teduh, misalnya, laman web di bawah pokok atau di bawah bumbung kanopi, teras. Anda juga boleh melengkapkan struktur itu sendiri dengan atap atau kanopi, jika tidak, anda mesti menutup produk dengan terpal atau filem dalam cuaca buruk.
Peringkat awal pembuatan produk
Sebarang pembinaan ayunan yang stabil bermula dengan menggali tiang penyangga hingga kedalaman 0,8 m. Ruang selebihnya di dalam relung diisi dengan konkrit. Kemudian palang disambungkan ke tiang.

Peranti ayunan kayu: 1 - bundle atas (panjang 115 cm, lebar dan ketebalan papan 10x5 cm); 2 - papan pelindung yang menutupi kepala bolt dan melindungi tali dari cuaca buruk (panjang 145 cm, lebar dan ketebalan 22.5x5 cm); 3 - dua tiang (tinggi 275 cm, lebar dan ketebalan 22.5x5 cm), jarak antara tiang adalah 105 cm, hujung tiang disambungkan ke tanah hingga kedalaman 60 cm; 4 - rantai tergalvani, terpasang dari atas dan bawah ke bola mata pada putaran putar; 5 - tempat duduk (panjang 60 cm, lebar dan ketebalan 15x5 cm)
Tindakan selanjutnya bergantung pada jenis bahan yang digunakan untuk mengeluarkan produk. Sekiranya ayunan dibuat berdasarkan paip logam, sambungan semua elemen dilakukan hanya menggunakan mesin kimpalan. Sokongan kayu memerlukan pra-perlakuan dengan antiseptik dan mur serta baut sebagai pengikat.
Tempat duduk dibuat dari dua bingkai. Salah satunya adalah bahagian belakang, yang kedua adalah tempat duduk. Letakkan dan pasangkan kepingan papan lapis atau kayu ke atasnya. Selepas itu, anda perlu memasang bingkai pada sudut 120 °.

Proses pembinaan kompleks kanak-kanak dengan ayunan dan gelongsor diperbuat daripada kayu
Untuk memasang tali atau rantai ke tempat duduk, pendakap atau cangkuk khas dipasang. Ini akan membolehkan struktur digantung dari palang.
Nota! Ayunan digantung sedemikian rupa sehingga kaki orang yang duduk di atasnya dapat menyentuh tanah.
Reka bentuk struktur dapat diperbaiki dengan menghiasnya atau memasang barang yang tidak biasa sebagai tempat duduk.
Pemasangan sendiri mekanisme pengikat pada buaian kanak-kanak untuk kediaman musim panas
Penggantungan kerusi ayun ke palang dilakukan dengan menggunakan pendakap atau cangkuk khas. Sekiranya strukturnya dipegang oleh kabel, anda juga perlu membeli penjepit yang akan berfungsi sebagai kait. Bahan lain seperti rantai atau tali juga dibenarkan.
Dianjurkan untuk menggunakan rantai dengan pautan besar. Ini akan meningkatkan jangka hayat produk kerana fakta bahawa logam dari mana ia dibuat tidak takut akan kesan negatif dari keadaan cuaca dan perubahan suhu. Lebih-lebih lagi, rantai ini sering digunakan untuk menghiasi pemandangan. Ia akan melengkapkan reka bentuk halaman di pinggir bandar.
Kawasan pemasangan suspensi memerlukan peneguhan yang teliti. Untuk tujuan hiasan, anda boleh meletakkan bantal, tilam atau meregangkan tenda di tempat duduk kayu. Unsur-unsur ini bukan sahaja dapat menghiasi produk, tetapi juga meningkatkan keselesaan penggunaan dan menjadikannya selesa untuk bersantai.
Oleh kerana reka bentuknya dibuat untuk anak-anak, lebih baik melengkapkan kerusi swing dengan punggung yang selesa. Bagi penggantungan, perkara ini kurang penting dalam kes ini.

Diagram peranti ayunan yang digantung dari tayar kereta pada bingkai logam: 1 - rak; 2 - tayar; 3 - rantai dikalibrasi yang dikimpal; 4 - selak M12 dengan lubang mata; 5 - bahagian saluran No. 14, panjangnya 200 mm; 6 - plat keluli 140x200 mm; 7 - selak М12
Cara menjadikan ayunan bayi anda sendiri selamat dan selesa
Kawasan di mana kanak-kanak berehat dan bersenang-senang mesti selamat. Dengan peraturan mudah, ini dapat dicapai dengan mudah:
- gunakan nod yang paling selamat dan boleh dipercayai;
- tali nilon kurang berbahaya bagi pokok daripada yang lain;
- pilihan terbaik untuk pokok ialah kayu oak;

Ayunan kanak-kanak yang diperbuat daripada kayu, dibuat dengan tangan, dalam bentuk tikus dan kumbang
- setelah mengetahui cara membuat ayunan di negara ini, sebelum membetulkannya di atas pohon, periksa dengan teliti cabang di mana mereka akan digantung. Pastikan tidak ada keretakan, kekeringan berlebihan, tanda-tanda penyakit;
- Sekiranya rantai digunakan untuk menggantung ayunan, disarankan untuk meletakkannya di dalam tiub plastik. Jika tidak, jari anak mungkin terjebak dalam pautan;
- cabang dengan ayunan harus diperiksa untuk kebolehpercayaannya, kerana selama menggunakan strukturnya, kayu secara beransur-ansur tergelincir dan runtuh. Ini mesti dilakukan setiap minggu;
- menguji ketahanan produk sebelum membenarkan kanak-kanak menggunakannya. Untuk ini, ahli keluarga terbesar sesuai. Sekiranya ayunan dapat menahan beratnya, maka ayunan dapat digunakan;
- gunakan pilihan carabiner yang boleh dipercayai sahaja.
Kita tidak boleh melupakan aspek estetika dalam isu ini. Buat bahagian ayunan keriting agar anak-anak berminat. Sisi boleh dibuat dalam bentuk dinosaur atau kereta, kapal.