Masa telah berlalu ketika harta tanah negara dianggap sebagai tempat perjuangan keras untuk menuai. Hari ini, setiap pemilik berusaha untuk membuatnya sendiri pagar syurga pulau kecil. Kita hanya perlu melihat teres dan beranda mana yang terpasang di rumah, gambar projek dapat dilihat di galeri kami. Reka bentuk yang terbuka dan monumental, teduh dan penuh cahaya mengejutkan dengan pelbagai jenisnya.
Kandungan
- 1 Apa perbezaan antara teres dan beranda yang terpasang di rumah
- 2 Teres dan beranda ke rumah, foto projek dan objek siap
- 3 Merancang beranda ke rumah, pilihan utama untuk penyambungan
- 4 Reka bentuk teres dan beranda dengan gelongsor kaca yang melekat di rumah
- 5 Ciri-ciri membuat pondasi, atap dan kanopi ketika membina teres atau beranda
- 6 Apakah bahan terbaik untuk membina teres ke rumah dengan tangan anda sendiri?
- 6.1 Ciri-ciri teras dan beranda yang diperbuat daripada polikarbonat ke rumah: foto pelbagai reka bentuk
- 6.2 Pilihan utama untuk teras polikarbonat yang melekat di rumah
- 6.3 Apa ciri beranda do-it-yourself yang diperbuat daripada kayu atau logam yang melekat di rumah
- 6.4 Apa yang disyorkan oleh pakar untuk digunakan sebagai penutup lantai
- 7 Bagaimana menentukan ukuran struktur masa depan
- 8 Ciri-ciri reka bentuk dalaman beranda dan teres
- 9 Teres dan beranda: gambar projek dan perkara penting yang perlu diingat semasa pembinaan
- 10 Beranda dan teres: video dengan projek yang menarik
Apa perbezaan antara teres dan beranda yang terpasang di rumah
Kekeliruan dari segi telah menyebabkan kenyataan bahawa perbezaan antara dua konsep dalam persepsi orang hampir hilang. Oleh itu, sebelum bercakap mengenai reka bentuk bangunan luar, mari kita jelaskan persoalan yang timbul.
Teras adalah kawasan musim panas yang terbuka, geladak dipasang di dasar yang dinaikkan. Bangunan ini boleh bersebelahan dengan satu dinding rumah, terutama di sebelahnya serambi, atau dapat mengelilingi seluruh bangunan. Teras biasanya diperbuat dari kayu, mempunyai bumbung dan pagar sisi. Teras juga merangkumi kawasan berdiri bebas yang menghadap ke taman, hutan, danau. Daripada bumbung, payung, awning dipasang di atas lantai seperti itu, marquis atau mudah alih kanopi diperbuat daripada kain padat.
Melihat teres dan beranda rumah, projek foto, anda dapat melihat perbezaan antara dua bangunan luar ini. Beranda adalah bilik tertutup yang tidak dipanaskan. Dinding dan bumbung terbuat dari pelbagai bahan: polikarbonat, kaca, kayu, batu bata... Beranda digunakan untuk susunan ruang makan, dapur musim panas, taman musim sejuk.
Sekiranya premis itu akan digunakan pada musim sejuk, maka mereka membuat penebat hidro dan termal dinding, lakukan pemanasan.
Perhatian! Sekiranya peluasan tidak akan dipanaskan, hiasan dalamannya diperbuat daripada bahan tahan kelembapan yang tidak akan lembap dan tidak akan mula dibentuk.
Beranda biasanya dibina di iklim sejuk. Teras biasa di kawasan selatan, kerana di lorong tengah mereka akan ditutup dengan salji hampir sepanjang tahun.
Teras dan beranda yang melekat di rumah, pertama sekali, berbeza antara satu sama lain kerana beranda sering merupakan kawasan tertutup dan sering tidak panas. Di sini, kebanyakan pemilik lebih suka menggunakan struktur untuk mengatur dapur musim panas, taman musim sejuk atau ruang makan. Ramai orang lebih suka memasang beranda ke rumah kayu untuk mengatur tempat yang selesa untuk bersantai di sana. Kawasan kaca yang besar menjadikan tempat ini ringan dan lapang.
Sebilangan besar beranda ke rumah dengan tangan mereka sendiri memungkinkan untuk menilai bukan sahaja estetika, tetapi juga aspek praktikal dari isu ini. Kehadiran struktur tambahan yang melekat pada rumah dapat menjimatkan pemanasan dan melindungi dinding dengan ketara dari kesan negatif hujan, salji dan angin kencang. Ini terutama berlaku di rumah-rumah yang dibina dalam keadaan cuaca yang teruk.
Secara amnya, perbezaan utama antara teres dan beranda ke rumah adalah seperti berikut:
Indeks | Beranda | Teres |
Jenis pembinaan | Struktur modal dengan asas, kaki dan dinding sokongan | Asas dan dinding sering hilang |
Keselesaan | Bertebat dan dipanaskan | Penebat biasanya tidak dilakukan; kerana kekurangan dinding, tidak masuk akal untuk memanaskan teres yang melekat di rumah dengan tangan anda sendiri |
Nilai fungsional | Melindungi rumah dari pengaruh luaran dan dijadikan kawasan rekreasi | Hanya tempat duduk terbuka yang boleh diatur di sini |
Pilihan bahan | Perkara utama adalah bahawa bahan-bahan itu dirancang untuk penurunan kelembapan dan suhu yang tinggi | Hanya bahan binaan yang sesuai untuk kegunaan luaran sahaja |
Teres dan beranda ke rumah, foto projek dan objek siap
Jenis beranda dan teres rumah berbeza bergantung pada lokasi relatif terhadap bangunan utama, bahan binaan untuk membuat struktur, serta petunjuk lain. Dalam foto teres dan beranda ke rumah, anda dapat melihat pelbagai bentuk bangunan:
- segi empat tepat;
- trapezoid;
- segi tiga;
- separa bulat.
Taman permainan musim panas boleh dibina dan dilampirkan. Premis terbina dalam disediakan di panggung reka bentuk pondok, sesuai dengan seberapa banyak yang mungkin dengan reka bentuk bangunan dan berada di landasan yang sama dengannya. Struktur yang terpasang diikat pada rumah yang ada dan diletakkan di atas landasan yang terpisah.

Projek 3D peribadi moden rumah dengan teres
Sebelum meneruskan pembinaan dan pengembangan projek beranda rumah, anda harus menentukan tujuan bilik dan fungsi yang akan dilaksanakan oleh struktur tersebut. Sekiranya diandaikan bahawa beranda terbuka yang dilekatkan di rumah akan dimaksudkan untuk bersantai, cukup dengan memikirkan jenis lantai, kanopi dan pagar yang membingkai struktur di sekitar perimeter. Beranda terbuka ke rumah ini terkenal kerana ia mudah masuk ke bahagian luar bangunan mana pun.
Nasihat berguna! Projek teres ke rumah atau beranda yang melibatkan mengatur dapur musim panas atau memasang barbeku dianggap lebih kompleks dan mahal dari segi kewangan.
Juga, peluasan yang dirancang untuk penggunaan sepanjang tahun dianggap lebih kompleks dalam pelaksanaannya. Ini disebabkan oleh fakta bahawa dalam kes ini, perlu mempertimbangkan kehadiran penebat dan melakukan pemanasan. Sekiranya anda belum pernah mempunyai pengalaman dalam melakukan pekerjaan seperti itu, lebih baik anda berjumpa pakar. Ini akan membantu mengelakkan pembaziran tambahan yang tidak diperlukan.
Secara umum, lampiran beranda terbuka yang dibuat ke rumah adalah struktur yang memiliki dinding, kanopi atau beranda yang sama dengan bangunan utama. Struktur sedemikian dicirikan oleh ruang terbuka yang besar, terlindung dari pemendakan dan cahaya matahari. Kerusi berjemur, kerusi berlengan dan kerusi biasanya diletakkan di sini. Untuk mengisi ruangan dengan keselesaan, ia dilengkapi dengan pelbagai jenis tanaman. Adalah sangat penting bahawa untuk memasang teres atau beranda terbuka ke rumah, anda tidak perlu mengupah pakar yang mahal atau menjalankan kerja reka bentuk yang kompleks.
Beranda tertutup ke rumah adalah struktur yang lebih kompleks yang memerlukan projek awal. Kelebihan penting dari peluasan tersebut ialah penyusunan ruang yang dilindungi dengan pasti dari pengaruh atmosfera seperti hujan, angin atau salji. Selalunya, penebat lengkap dilakukan di beranda, kerana di sini berupaya mengatur di sini bukan sahaja dapur sepanjang musim, tetapi juga tempat tidur tambahan sekiranya para tetamu tiba.
Penting! Sebelum mendirikan beranda tertutup yang terpasang di rumah, harus diingat bahawa struktur tersebut dianggap modal dan memerlukan pengesahan yang terpisah dalam perkhidmatan BTI. Sekiranya dokumen yang diperlukan tidak tersedia, kesulitan mungkin timbul pada masa akan datang dengan penjualan atau penswastaan keseluruhan laman web ini.
Dengan memasang teres atau beranda tertutup ke rumah, anda boleh mengatur pondasi yang berasingan atau membuat struktur tunggal dengan rumah itu, tetapi kerja seperti itu harus dilakukan walaupun pada peringkat pembinaan. Hal yang sama berlaku untuk bumbung: beranda boleh memiliki lantai atau sambungan yang terpisah dengan bangunan utama.
Artikel berkaitan:
Sambungan ke rumah kayu. Projek dan jenis peluasan utama.
Sambungan yang diperbuat daripada pelbagai bahan. Urutan kerja dalam pembinaan sambungan dan beberapa petua untuk pembinaannya.
Merancang beranda ke rumah, pilihan utama untuk penyambungan
Teres moden dan beranda ke rumah (gambar projek disajikan di halaman) kelihatan sangat rapi. Beranda bukan lagi ruang depan dengan penyangkut pakaian kerja atau gudang barang keperluan rumah. Pemandangan dari peluasan harus menyenangkan mata. Tidak disyorkan untuk meletakkan beranda di dekat pagar jiran, dan juga di sebidang dengan pemandangan kawasan teknikal (timbunan kompos, tangki, sumur). Lebih baik jika bunga menjadi objek pemerhatian tetap. katil bunga, pokok, taman permainan.
Sekiranya kita mempertimbangkan gambar moden projek beranda untuk sebuah rumah di negara ini, anda boleh memperhatikan pelbagai idea, bentuk dan bahan yang digunakan. Antara bahan binaan yang digunakan untuk pembinaan bangunan, berikut adalah yang paling popular:
- pokok;
- batu bata;
- logam;
- polikarbonat;
- kaca;
- panel sandwic.
Semasa melihat foto dan memilih pilihan yang anda suka, pertama sekali, anda harus menentukan sama ada projek itu sesuai dengan kerangka laman web dan adakah ia akan menjadi tambahan yang ideal untuk bahagian luar. Sebagai contoh, beranda yang indah yang terpasang di rumah kayu, di mana cat di bahagian depannya telah terkelupas dan pudar, tidak akan kelihatan sangat menyenangkan secara estetik. Oleh itu, dalam beberapa kes, sekurang-kurangnya pembaikan kosmetik fasad utama harus dilakukan, dan kemudian pembinaan bangunan tambahan harus dipertimbangkan.
Selalunya, semasa membina beranda ke rumah, gabungan pelbagai bahan juga digunakan, seperti bata, kaca, logam atau batu. Semasa memilih, anda perlu mengambil kira bukan sahaja kos, tetapi juga ketersediaan bahan berhampiran tapak pembinaan. Sekiranya tidak ada tempat di laman web ini untuk menempatkan semua bangunan yang diinginkan, disarankan untuk menggabungkannya antara satu sama lain, misalnya, untuk menghubungkan rumah mandi atau dapur musim panas ke beranda terbuka. Bagaimana cara memasang beranda ke rumah dengan tangan anda sendiri? Mari pertimbangkan pilihan yang paling biasa.
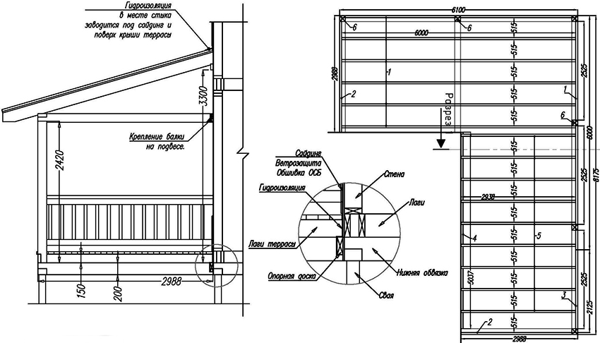
Teres bawah tanah. Peluang itu diletakkan di tingkat bawah tanah bangunan utama dan diangkat agak tinggi di atas tanah. Untuk keselamatan yang lebih besar, pagar dipasang di sekitar perimeter, dan tangga dilengkapi untuk turun dengan mudah ke taman. Tiang sokongan biasanya digunakan untuk pemasangan, dan pada tahap akhir pembinaan, ruang yang tersisa di antara tanah dan teras dihiasi dengan kisi-kisi kayu atau besi tempa.
Teres terbuka ke rumah dua (atau lebih) tingkat. Selalunya, terlepas dari jumlah lantai di bangunan utama, terasnya adalah dua tingkat, yang membolehkan akses mudah ke tingkat atas rumah. Selalunya, balok tinggi yang digunakan sebagai penyokong tidak begitu menarik. Untuk mengelakkan kesulitan, ruang di bawah teres digunakan untuk membuat kawasan tambahan.
Nasihat berguna! Teres musim panas sebuah rumah dua atau tiga tingkat boleh mempunyai beberapa tingkat yang dihubungkan dengan tangga. Ini senang apabila masyarakat yang terdiri dari pelbagai peringkat usia berkumpul.
Cara lain untuk menambah teres atau beranda ke rumah
Seperti yang telah disebutkan, penyambungan hanya dapat bersebelahan dengan salah satu dinding, dilakukan sepanjang perimeter rumah, atau menjadi struktur yang terpisah pada umumnya, berdiri di ujung laman web ini. Penting semasa memilih tapak pembinaan untuk mengambil kira keanehan kenaikan angin dari kawasan tertentu dan melengkapkan struktur dari sisi bawah.
Sebagai contoh, di daerah dengan angin utara yang berlaku, struktur mesti didirikan dari selatan. Anda juga harus mengambil kira kedudukan cahaya matahari dan meletakkan bangunan tepat di mana terdapat pencahayaan paling banyak.
Sekiranya anda melihat gambar teres dan beranda yang indah ke rumah, anda boleh memperhatikan penyelesaian yang tidak biasa seperti lokasi ruang rekreasi di bumbung bangunan. Walau bagaimanapun, dalam kes ini, beban di lantai siap harus dikira dengan betul. Prasyarat dalam hal ini adalah penyusunan lapisan penghalang hidro dan wap, serta peletakan penebat dan jaring bertetulang, yang ditutup dari atas dengan papan teras khas. Untuk mengelakkan pengumpulan kelembapan, lantai mesti dibuat pada sedikit cerun dari dinding utama.
Seperti banyak gambar sambungan teres ke rumah jenis ini, mereka sering dilengkapi dengan kolam kecil. Waduk buatan boleh kembung, dibuat dari tempat mandi lama, dan juga kolam renang yang lengkap (bergantung pada kemampuan kewangan pemiliknya). Zon sering disusun di teras B-B-Q, dengan selamat melindungi penebat kayu dari kesan suhu tinggi.
Anda sering dapat menemui organisasi rumput dengan rumput asli atau tiruan. Di samping itu, hiasan dalam bentuk tanaman eksotik dalam pasu akan kelihatan cantik. Nuansa seperti itu harus dipikirkan terlebih dahulu, kerana tumpang tindih harus dirancang untuk menahan massa seperti itu (dengan mempertimbangkan berat orang yang akan berada di sana). Kanopi untuk struktur sedemikian boleh dibuat pegun atau boleh ditanggalkan.
Dalam kes ini, pengorganisasian pagar di sekitar perimeter struktur atas dianggap wajib.Untuk pembuatannya, adalah relevan untuk menggunakan bahan berikut:
- logam palsu;
- profil aluminium;
- palang kayu.
Sekiranya tidak mungkin untuk menambah teres ke rumah di sepanjang dinding mana pun, disarankan untuk membuat struktur berbentuk sudut atau berbentuk L. Pilihan ini sangat sesuai untuk membuat projek gabungan struktur terbuka dan tertutup. Pada masa yang sama, struktur utama dilengkapi dengan atap tetap, dan kanopi dipasang di atas gazebo, fungsi utamanya adalah melindungi dari sinar matahari dan hujan ringan.
Laman web ini sering digabungkan dengan pergola dan arbor, menghubungkannya dengan pelbagai lorong, jalan, langkah. Adalah tidak biasa untuk menggabungkan dek musim panas dengan kolam renang.
Reka bentuk teres dan beranda dengan gelongsor kaca yang melekat di rumah
Ramai pemaju berpendapat bahawa rancangan untuk teres dan beranda ke rumah (lihat projek foto di bawah) mestilah standard. Membuat peluasan segi empat tepat tentu lebih mudah. Tetapi adakah patut berusaha untuk kesederhanaan seperti itu apabila pembinaan lantai separuh bulatan atau melengkung sedikit lebih rumit ?!
Diperiksa! Beranda adalah salah satu faktor dalam menjaga panas di rumah, kerana pintu dari bangunan utama terbuka bukan ke jalan, tetapi ke ruang tertutup.
Beranda kaca yang terpasang di rumah tidak hanya terlihat menarik, tetapi juga membolehkan anda mengagumi pemandangan sekitar dengan bebas dalam cuaca apa pun. Sangat menyenangkan dari sana untuk menyaksikan hujan lebat dengan ribut petir atau anomali semula jadi yang lain.
Sebelum mengatur struktur jenis tertutup, anda juga harus mengetahui tentang kelemahan yang ketara. Kelemahan ini adalah kesan rumah hijau, yang berlaku semasa musim panas sebagai akibat daripada pendedahan berterusan kepada cahaya matahari. Kejadian seperti itu mungkin memerlukan kos tambahan untuk pemasangan penghawa dingin. Untuk mengelakkan terlalu sejuk pada musim sejuk, anda juga tidak boleh berjimat dengan membeli tingkap berkualiti tinggi, kerana kaca besar boleh menyebabkan sejuk di dalam.
Bergantung pada sifat penggunaan dan tujuan struktur, adalah mungkin untuk memilih salah satu pilihan kaca:
- Rangka. Perlu diingat bahawa pelaksanaan kerangka mempermudah bukan hanya proses penggantian tingkap jika perlu, tetapi juga perbaikan umum bangunan.
- Tanpa bingkai. Ketiadaan jahitan bergabung hanya boleh didapati di bangunan elit, walaupun ini, kaca seperti itu mempunyai banyak kekurangan. Contohnya, ini termasuk penebat haba yang lemah, ketidakupayaan memasang kelambu.
- Panorama. Dilakukan hanya jika terdapat bingkai dan bumbung yang dibina.
- Separa. Sesuai apabila dinding ditutup sepenuhnya.
Pelapisan bumbung atau dinding sering dilakukan. Sekiranya bangunan tidak mempunyai bumbung, anda boleh memasang beranda ke rumah yang diperbuat daripada polikarbonat atau membuat kanopi filem. Pengkelasan permukaan menegak dianjurkan pada masa yang sama untuk dilakukan dengan elemen berlapis penjimatan tenaga.
Seperti apakah bentuk sambungan beranda ke rumah dengan sistem gelongsor?
Baru-baru ini, sambungan dengan dinding gelangsar menjadi popular, yang membolehkan anda mengubah beranda menjadi teres. Dinding sedemikian diperbuat daripada bahagian yang dihubungkan oleh engsel logam (yang disebut. harmonik). Setiap bahagian terdiri daripada panel kayu bawah dan bahagian atas kaca. Sekiranya perlu, mereka dialihkan ke satu atau dua sisi, membuka pandangan sepenuhnya.
Secara umum, kemunculan teknologi bangunan dalam bentuk mekanisme gelongsor atau yang boleh ditanggalkan memungkinkan untuk mengubah teres terbuka biasa yang dipasang di rumah menjadi premis penuh.Sistem ini mengubah bangunan standard menjadi bangunan multifungsi, misalnya, apabila semua tingkap diluas sepenuhnya, beranda menjadi terbuka sepenuhnya, dan jika perlu atau dalam cuaca buruk, elemen dapat dipindahkan dengan mudah ke tempatnya dan terlindung dari hujan atau angin.
Kelebihan lain dari struktur gelongsor adalah penggunaan ruang dalaman yang rasional, kerana tirai, tirai atau penutup roller tidak akan merosot lagi bergantung pada kedudukan selempang.
Ia menarik! Struktur mudah alih gelongsor dianggap lebih selamat daripada tingkap standard, kerana strukturnya dipasang dengan selamat di kedudukan yang diinginkan dan tidak mampu membanting angin kencang atau angin kencang.
Dengan mempelajari gambar-gambar teras yang dipasang di rumah, anda dapat memperhatikan bahawa sistem dapat dipasang di berbagai posisi baik pada bukaan tingkap yang terpisah dan di seluruh ketinggian dinding. Pilihan pelbagai pilihan untuk sistem gelongsor juga tersedia:
- dengan penebat tambahan;
- tahan kejutan;
- hiasan.
Struktur juga dibahagikan mengikut jenis mekanisme gelongsor, mengikut kriteria ini, yang berikut dibezakan:
- mengangkat dan meluncur;
- melipat;
- cenderung.
Sekiranya projek rumah tidak membenarkan pemasangan teras di atasnya, ia boleh dipasang secara berasingan. Terdapat kelebihan di sini: di laman web terpencil, anda boleh bersantai dalam kesendirian, dalam keheningan taman. Atau, sebaliknya, menjadi mustahil untuk bermain dan membuat bising, tanpa rasa takut mengganggu ketenteraman rumah tangga. Sekiranya pesta barbeku dirancang, maka teres dengan barbeku, dipasang di kedalaman laman web, akan menghilangkan rumah dari bau obsesif.
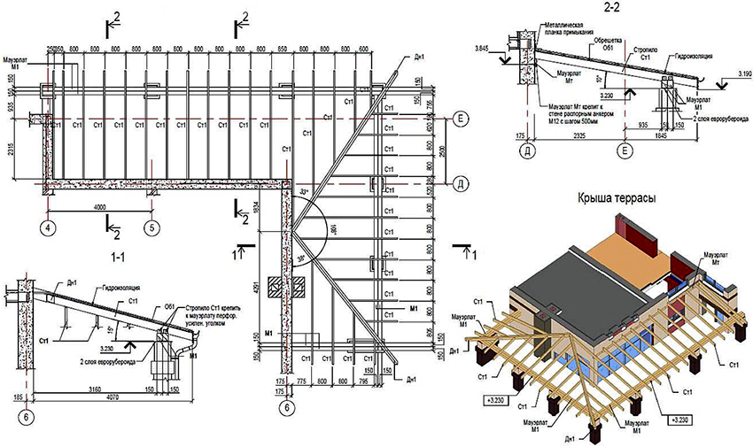
Ciri-ciri membuat pondasi, atap dan kanopi ketika membina teres atau beranda
Sebelum membina beranda ke rumah, anda perlu membiasakan diri dengan semua peringkat pembinaan:
- menentukan tempat pembinaan masa depan;
- pilih jenis yang anda suka;
- merancang ketinggian, lebar dan luas yang optimum;
- membuat anggaran perbelanjaan, dengan mengambil kira kos bahan, alat dan imbuhan untuk pekerja yang diambil bekerja (jika perlu);
- mematuhi tahap kerja tertentu.
Tidak dalam semua keadaan, ia diperlukan untuk melakukan pekerjaan pembinaan yayasan, tetapi jika ia dirancang untuk membuat pengembangan modal berskala besar, maka itu adalah asas yang kuat yang akan membantu memperpanjang umur struktur. Jenis pondasi dipilih berdasarkan ciri beranda, bergantung pada berat, ukuran dan tujuan yang diharapkan.
Sebelum membina beranda ke rumah dengan tangan anda sendiri, asas kolumnar sering didirikan. Dalam kes ini, sokongan berasingan dipasang, yang diedarkan ke seluruh kawasan struktur masa depan. Pada masa yang sama, lubang terpisah dibuat untuk setiap tiang, di bahagian bawah pasir dituangkan. Selepas itu, tiang diturunkan ke ceruk yang telah siap dan dipasang dengan selamat. Pada akhir kerja, diperlukan mengikat dengan bahan bumbung. Pilihan asas lain:
- Asas skru bersifat universal, kerana sesuai untuk kebanyakan jenis tanah. Jumlah cerucuk terpasang akan menentukan keupayaan galas struktur. Untuk melengkapkan bahagian atas pondasi, bingkai yang terbuat dari balok kayu atau logam digunakan.
- Landasan jalur dianggap pilihan terbaik jika anda merancang untuk membuat struktur berat. Dalam kes ini, asas monolitik dituangkan sepanjang perimeter peluasan hingga kedalaman 50 cm. Sekiranya bangunannya kecil, kedalamannya dapat dikurangkan.
- Pinggan. Pilihan yang mudah dirancang, kerana untuk mengatur pangkalan, anda perlu membuang bahagian atas tanah, mengisinya dengan runtuhan dan meletakkannya di atas papak.Untuk mengatur lantai, dalam kes ini, disarankan untuk menggunakan peti untuk menjadikannya lebih panas.
Untuk membina teres ke rumah dan memberikan penampilan yang menarik kepada bangunan, anda perlu mengatur atap atau membuat kanopi dengan betul. Sekiranya sambungan itu berdekatan dengan rumah, maka bahan yang sama diletakkan di atas bumbung seperti di bangunan utama. Sekiranya teres dikeluarkan secara berasingan dari bangunan atau berbeza dengan dimensi yang mengagumkan, lebih baik membuat atap gable.
Penting! Apa sahaja bahan yang dibuat bumbung, ia mesti dipasang pada sudut supaya pemendakan tidak terkumpul di permukaan.
Atap gulung dianggap sebagai bahan yang ringkas, mudah, murah dan praktikal. Ia boleh menjadi kalis air atau rubemast, yang dicirikan oleh ciri pengguna yang tinggi. Untuk meletakkan bahan seperti itu, kasau kayu dipasang sebelumnya, kepingan itu sendiri diikat dengan paku galvanis.
Oleh kerana penampilannya yang menarik dan pemasangan yang mudah, jubin fleksibel juga popular, yang dapat digunakan untuk menutup beranda dengan bentuk dan kawasan apa pun. Di samping itu, bahan berikut digunakan:
- lantai profesional;
- kepingan tergalvani besi;
- polikarbonat.
Apakah bahan terbaik untuk membina teres ke rumah dengan tangan anda sendiri?
Beranda dibina dari pelbagai bahan:
- Sambungan kayu kelihatan asli jika dihiasi dengan panel ukiran dan kancing.
- Beranda bata dipasang di atas landasan yang kukuh. Reka bentuk menggunakan batu bata dengan warna yang berbeza, yang dibezakan oleh pedimen, tiang atau sudut.
- Sambungan yang diperbuat daripada batu semula jadi kelihatan monumental. Lengkungan separa berlapis dapat dikacaukan atau ditutup dengan tingkap kaca berwarna.
- Reka bentuk lut sinar semakin meluas. Kerangka beranda diperbuat dari batu bata atau balok tebal sehingga penyokong kaca kuat. Tingkap kaca berganda atau tiga dipasang di bukaan.
Nasihat! Daripada kaca, anda boleh menggunakan kepingan polikarbonat - ia lebih ringan, lebih kuat dan lebih murah.
Pertama sekali, sebelum membuat beranda ke rumah, anda harus memutuskan jenis bahan yang digunakan untuk pembinaan, dengan fokus tidak hanya pada pilihan peribadi, tetapi juga pada persekitaran sekitarnya. Sebagai contoh, tidak digalakkan membuat beranda kayu ke rumah yang dibina dari bata, dan sebaliknya.
Adalah lebih baik untuk melengkapkan rumah bata dengan peluasan bahan yang sama. Dan bukan hanya kerana penampilan yang menarik, tetapi juga kerana bahan yang sama lebih mudah digabungkan antara satu sama lain, kerana ini akhirnya akan menghasilkan struktur satu bahagian yang boleh dipercayai dan tahan lama.
Sebelum membuat teres ke rumah bata, anda perlu memikirkan landasan yang boleh dipercayai, kerana strukturnya akan sangat berat dan, dari masa ke masa, kemungkinan besar akan mulai kendur. Ini akan menyebabkan keretakan pada dinding, yang boleh menyebabkan keruntuhan. Untuk melengkapkan pondasi, anda perlu membuat parit dengan bekisting di sekitar perimeter, di mana penyokong dimasukkan, setelah itu semuanya dituangkan dengan simen.
Ciri-ciri teras dan beranda yang diperbuat daripada polikarbonat ke rumah: gambar pelbagai reka bentuk
Apa sahaja bahan yang dibina dari dinding, ketinggiannya boleh menjadi apa pun. Namun, anda perlu mempertimbangkan perkara berikut: semakin tinggi suhu mereka, semakin panas di dalam bilik, semakin rendah - semakin banyak sinar matahari akan masuk ke dalam. Anda boleh lakukan tanpa tembok modal. Dalam kes ini, beranda terpasang di rumah terbuat dari polikarbonat, yang baru-baru ini menjadi permintaan yang besar. Kelebihan bahan binaan ini:
- Berat ringan struktur siap. Ini membolehkan anda tidak terlalu menekankan pembinaan pangkalan besar. Walaupun begitu, beranda yang sudah siap akan menjadi kaku dan stabil.
- Rintangan hentaman tinggi. Kaca dan helmet kalis peluru untuk penunggang motosikal diperbuat daripada plastik yang serupa. Apabila batu memukul permukaan, kemungkinan besar, strukturnya akan tetap utuh.
- Hasil yang baik. Beranda polikarbonat yang melekat di rumah memungkinkan hingga 90% cahaya matahari, seperti kaca yang baik. Pada masa yang sama, orang di dalamnya dilindungi 100% dari kesan berbahaya dari sinaran ultraviolet.
- Pilihan pelbagai warna. Hanya teras yang diperbuat daripada bahan serupa yang boleh berbeza dalam pelbagai warna, baik warna coklat, biru, hijau atau warna lain.
- Tidak perlu hiasan dalaman. Struktur polikarbonat sendiri kelihatan lengkap di dalamnya, yang menghilangkan keperluan untuk kerja dalaman.
Maklumat menarik! Berat rendah polikarbonat dipastikan oleh penggunaan karbon dalam pembuatannya. Kelebihan lain dari bahan tersebut ialah polimer organik yang tidak mengandungi racun berbahaya atau logam berat.
Kerana keanehan pembuatan, walaupun dipanaskan hingga suhu tinggi, termasuk pembakaran, polikarbonat tidak mengeluarkan bahan yang berbahaya bagi kesihatan, oleh itu strukturnya dianggap selamat bagi penduduk, haiwan peliharaan dan tanaman yang tumbuh di dalamnya.
Tambahan yang tidak dapat dipertikaikan dalam pembinaan teras ke rumah adalah berat bahan yang rendah, yang sangat memudahkan bukan sahaja pengangkutannya, tetapi juga pembinaan bangunan. Struktur khas dan kelenturan lembaran memungkinkan untuk memberi kanopi bentuk melengkung. Tempoh jaminan bahan biasanya 10-15 tahun.
Pilihan utama untuk teras polikarbonat yang melekat di rumah
Titik penting dalam pembinaan beranda polikarbonat adalah memastikan penyegelan yang boleh dipercayai, kerana jika kelembapan meresap di antara kepingan, cetakan mungkin muncul. Atas sebab yang sama, pengudaraan yang mencukupi diperlukan. Lebih baik untuk ini memilih tingkap dengan sistem pengikat yang dilengkapi dengan kait dan penutup yang baik. Ini akan memungkinkan untuk membuka tingkap dengan mudah pada musim panas dan menutupnya dengan ketat pada musim sejuk.
Sebilangan besar pelbagai foto sambungan beranda ke rumah polikarbonat membolehkan anda menilai pilihan projek yang paling popular:
- Dengan bumbung melengkung. Penting untuk memastikan bahawa terdapat longkang yang baik di kedua-dua belah pihak, kerana dalam keadaan terburuk mungkin dinding yang berdekatan dengan bumbung selalu banjir.
- Dengan bumbung pada sudut. Oleh itu, anda boleh mengatur beranda terbuka dan tertutup. Pilihan ini kelihatan menarik, dan tidak memerlukan banyak masa dan usaha untuk membuat.
- Beranda tertutup sepenuhnya dengan bumbung dan dinding polikarbonat. Sesuai untuk bangunan luar di rumah persendirian yang terletak di kawasan dengan iklim yang berubah-ubah. Dalam kes ini, dinding polikarbonat utama bermula di bawah bumbung bangunan utama, dan dinding polikarbonat juga dipasang di sisi.
- Teres separa tertutup. Bumbung bernada standard dilakukan, pintu dibuat dengan pintu berengsel atau gelangsar biasa. Sekiranya anda merangkumi segala-galanya, anda boleh tetap hangat di dalam bilik, tetapi dalam kebanyakan kes, peluasan hanya digunakan pada musim panas.
Apakah ciri-ciri beranda do-it-yourself yang diperbuat daripada kayu atau logam yang terpasang di rumah
Penting untuk memasang beranda kayu ke rumah dengan tangan anda sendiri sekiranya, semasa pembinaan bangunan utama, kayu bulat, kayu terpaku atau kayu biasa digunakan. Walaupun dalam beberapa kes, teres kayu dan beranda akan menjadi tambahan yang bagus untuk rumah batu atau bata, namun agak sukar untuk menggabungkan bahan.
Sebilangan besar projek teres kayu tidak mempunyai organisasi asas. Sebagai peraturan, peranan pangkalan dimainkan oleh gabungan lantai dan dinding, yang kemudian dilapisi dengan bahan yang dipilih. Sambungan, dihiasi dengan corak ukiran, akan kelihatan sangat cantik. Pembinaan dek kayu mempunyai kelebihan berikut:
- Penampilan yang menarik. Sambungan kayu selalu kelihatan asli, terutama jika dikelilingi oleh pemandangan hijau.
- Kebersihan ekologi. Kayu adalah bahan semula jadi yang mewujudkan persekitaran yang menyenangkan dan selesa di dalamnya.
- Ketahanan. Sekiranya bahan diproses dengan cekap, teras kayu yang dipasang di rumah dengan tangan anda sendiri akan bertahan selama beberapa dekad.
Selain kelebihan, bangunan kayu juga mempunyai beberapa aspek negatif. Contohnya, bahan tersebut harus dirawat dari semasa ke semasa terhadap kulat dan tungau, yang boleh mengganggu bukan sahaja penampilan estetik, tetapi juga kekuatan strukturnya. Juga perlu untuk meneruskan rawatan pemadaman kebakaran, kerana kayu adalah bahan yang mudah terbakar dan sangat mudah terbakar.
Nasihat berguna! Dalam foto teres ke rumah kayu, anda dapat melihat bahawa tingkap plastik putih memperburuk penampilan bangunan. Oleh itu, disyorkan untuk memasang tingkap kayu atau tingkap plastik di bawah pokok, yang walaupun lebih mahal, kelihatan lebih cantik.
Baru-baru ini, struktur logam tidak meluas kerana sifat penebat haba yang rendah. Berkat teknologi bangunan moden, ciri struktur logam telah bertambah baik. Sokongan logam dipasang dengan dua cara:
- Boltov. Semua elemen dihubungkan antara satu sama lain menggunakan bolt. Kelebihan utama adalah keupayaan untuk membongkar struktur dan bahkan menyusunnya semula jika perlu.
- Dikimpal. Ia lebih dipercayai daripada versi sebelumnya, tetapi strukturnya tidak dapat dibongkar.
Untuk membuat struktur sokongan, paip bulat atau berbentuk digunakan, serta profil berkembar. Setelah selesai membuat sambungan, perlulah merawat sendi dengan sebatian anti-karat untuk mengelakkan kemusnahan pramatang. Kelebihan yang ketara adalah hakikat bahawa semasa membina struktur logam, dibenarkan menggunakan bahan terpakai yang sering dijumpai di laman web. Penting agar mereka bebas dari keretakan, karat atau kekosongan.
Apa yang disyorkan oleh pakar untuk digunakan sebagai penutup lantai
Dianjurkan untuk meletakkan kayu di lantai beranda yang sudah siap, ini akan membolehkan anda mendapatkan lapisan yang boleh dipercayai dan tahan lama yang akan bertahan lebih dari satu dekad tanpa masalah. Di atas kayu, anda boleh mengisi lantai, membuat lantai kayu biasa atau menggunakan salah satu pilihan lantai yang sesuai:
- lamina;
- linoleum;
- jubin seramik;
- papan parket;
- parket.
Keadaan utama semasa memilih bahan untuk lantai adalah dengan mengambil kira keunikan iklim mikro dalaman. Sekiranya beranda adalah kawasan luar, lantai mesti tahan lama dan boleh dipercayai. Bahan harus dibezakan dengan petunjuk tinggi terhadap ketahanan aus dan fros. Lebih baik penutup lantai mempunyai ciri anti slip dan kemampuan untuk menahan kesan kelembapan tanpa ubah bentuk.
Decking dianggap sebagai salah satu bahan terbaik.Dalam proses pembuatan lantai, tepung kayu dan polimer digunakan untuk mengisi bahan dengan kekuatan yang cukup. Hasilnya adalah lantai yang tidak licin yang menarik. Sangat penting untuk digunakan jika teras kayu terpasang di rumah, kerana secara luaran, dek tidak dapat dibezakan dari bahan semula jadi - hanya dengan sentuhan.
Sekiranya jubin seramik atau stoneware porselin digunakan untuk menghiasi lantai, perlu diingat bahawa bahan-bahan ini menjadikan strukturnya lebih berat. Rintangan hentaman rendah juga dapat dibezakan dari minus. Antara kelebihan penggunaannya adalah perkara berikut:
- ciri prestasi yang baik;
- rintangan fros;
- keupayaan untuk memilih dari pelbagai reka bentuk dan pilihan yang meniru bahan semula jadi.
Lantai yang diperbuat daripada papak konkrit, yang dicirikan oleh ketahanan, dianggap murah dan praktikal. Papak biasanya diletakkan di atas simen atau lapisan pasir, dan unsur-unsur yang rosak dapat diganti dengan mudah jika perlu. Antara keburukannya ialah pemanasan berlebihan di bawah sinar matahari dan kebarangkalian tinggi penurunan permukaan plat yang tidak rata.
Sekiranya sambungan ditutup, kayu semula jadi diletakkan di lantai. Apabila rumah itu kayu, maka beranda atau teres terbuka diperbuat daripada kayu berkualiti. Di antara kelebihan kayu semula jadi, perlu diserlahkan penampilan yang menarik, sifat penyerapan kejutan tinggi dan banyak pilihan struktur dan warna. Kelemahannya adalah perlunya rawatan biasa dengan sebatian antijamur dan anti-tungau.
Bagaimana menentukan ukuran struktur masa depan
Kemunculan premis harus sesuai dengan penampilan rumah secara umum. Dipercayai bahawa peluasan itu harus dibuat dari bahan yang sama dengan bangunan utama. Tetapi peraturan ini tidak wajib. Anda dapat melihat banyak contoh ketika premis musim panas yang diperbuat daripada kaca gentian dan kayu sesuai dengan fasad pondok batu.
Dimensi beranda bergantung pada tujuannya dan rata-rata selebar 3 m dan panjang hingga 6 m. Secara umum, parameter beranda akan bergantung pada dimensi bangunan utama, dan susunan dalaman tidak hanya dipengaruhi oleh ukuran, tetapi juga oleh tujuan fungsional struktur.
Nasihat berguna! Pereka memberi tumpuan kepada fakta bahawa dimensi minimum beranda yang selesa adalah 1.7x4 m. Sudah tentu, dimensi seperti itu bukan aksioma, kerana bilik yang selesa dapat, jika dikehendaki, disusun di ruangan yang lebih kecil, tetapi mereka tetap mengesyorkan mematuhi parameter ini. ...
Sekiranya tidak ada batasan di kawasan peluasan, nilainya ditentukan terutamanya berdasarkan apa yang dirancang untuk dilakukan di sini. Apabila tujuan utama teras adalah tempat untuk berehat dan berkumpul keluarga dan rakan, dalam hal ini adalah penting untuk tidak menjimatkan ruang dan membina beranda ke rumah negara dengan dimensi yang mencukupi untuk tujuan ini. Ini perlu kerana meja, sofa dan ruang tempat duduk bersaiz kanan mesti sesuai di sini.
Adalah wajar untuk memperuntukkan tempat untuk mengatur barbeku dan, mungkin, bahkan bar mini. Beranda sedemikian mestilah seluas 20 m² atau lebih, lebih baik jika panjang salah satu dindingnya sekitar 5 m.
Apa petunjuk lain yang mempengaruhi ukuran peluasan, bagaimana mengalahkan teras yang berdiri bebas
Sekiranya rumah itu selalu digunakan oleh beberapa orang, anda tidak boleh memperuntukkan banyak ruang untuk pembinaan. Dalam kes ini, perkara utama ialah kerusi yang selesa dengan meja sesuai di sini, yang membolehkan anda menghabiskan waktu malam yang selesa di sebuah syarikat kecil. Untuk ini, 8-10 m² akan mencukupi.
Kawasan ini juga dipengaruhi oleh jenis bangunan yang dipilih. Sebagai contoh, jika beranda segi empat tepat dirancang, panjangnya biasanya dalam jarak 4-6 m, dan lebarnya 2,5-4 m. Di beranda berbentuk persegi, semua dinding harus memiliki ukuran yang sama. Sebilangan besar pemilik lebih suka mendirikan struktur dengan bentuk yang serupa dengan sisi bangunan. Sekiranya bangunan utama mempunyai bentuk yang tidak biasa, maka lebih baik membuat beranda dalam bentuk segitiga atau separuh bulatan - semuanya bergantung pada imaginasi pemiliknya. Bentuk bangunan masa depan juga mempengaruhi reka bentuk luaran bumbung:
- beranda yang sempit biasanya dilengkapi dengan atap gable;
- segi empat sama atau segi empat tepat - gable;
- lebih baik menghias pembinaan bentuk asal dengan lantai yang tidak biasa, sesuai dengan gaya yang dipilih.
Dalam beberapa kes, pemilik rumah persendirian berhadapan dengan fakta bahawa dimensi atau bentuk bangunan yang tidak standard tidak membenarkan memasang beranda di situ. Dalam kes ini, mereka menggunakan pilihan untuk mengatur beranda yang berdiri sendiri. Agar tidak perlu keluar ke jalan, jalan umum diatur di antara bilik, sering dalam bentuk koridor kaca atau polikarbonat yang menghubungkan sambungan ke rumah utama. Dalam keadaan ini, anda boleh melakukan peluasan parameter apa pun. Perkara utama adalah bahawa kedua-dua bangunan digabungkan secara harmoni antara satu sama lain.
Ciri-ciri reka bentuk dalaman beranda dan teres
Reka bentuk luaran beranda harus dirawat dengan teliti, kerana ia akan bergantung pada seberapa besar struktur yang akan masuk ke bahagian luar. Pada masa yang sama, seseorang tidak boleh lupa untuk memperhatikan reka bentuk dalaman. Pilihan bahan untuk hiasan dalaman akan bergantung pada ukuran dan fungsi serta lokasi bangunan.
Contohnya, jika beranda kecil, anda harus menjadikannya sekecil mungkin dan letakkan di sebelah selatan. Apabila tidak mungkin memilih sisi kanan dunia, adalah mustahak untuk menyelesaikan masalah dengan bantuan kaca yang ketara atau penggunaan cahaya buatan.
Di beranda yang luas dan terang, dibenarkan untuk bereksperimen dengan bahan yang dipilih, tidak perlu bersusah payah dengan pilihan warna dan melakukan apa sahaja mengikut keinginan anda. Terutama ketika datang ke penambahan beranda tertutup ke rumah. Anda juga tidak perlu menjimatkan perabot yang dipilih, anda boleh meletakkan semua yang diperlukan. Perkara utama adalah tidak terbawa-bawa dengan susunan objek, kerana walaupun ruang yang luas dapat dengan mudah dibebani perabot.
Sebenar! Faktor penting ketika memilih pilihan untuk hiasan dalaman adalah sistem pemanasan yang terpasang, kerana di tempat yang tidak dipanaskan bahan mesti memenuhi syarat tinggi dan bertoleransi dengan anomali dengan baik. Sekiranya anda tidak mahu melakukan pembaikan setiap tahun selepas musim sejuk, anda tidak boleh menjimatkan bahan berkualiti tinggi.
Mengenai hiasan dinding teras ke rumah yang terbuat dari kayu, lebih baik menyelubungnya dari dalam dengan papan klap, yang memiliki tekstur yang menarik. Lebih-lebih lagi, bekerja dengan lapisan kayu agak mudah walaupun untuk tuan baru. Sekiranya anda ingin bereksperimen, anda boleh melapisi lapisan dengan warna apa pun dan memberi bahagian luar penampilan yang tidak biasa. Cat juga akan memainkan peranan pelindung untuk kayu semula jadi.
Siling biasanya dibuat dengan papan serpai yang murah, walaupun drywall tahan kelembapan lebih baik untuk tujuan ini. Kedua-dua pilihan itu sesuai untuk dihiasi dengan jubin kayu atau plastik. Sekiranya dikehendaki, anda boleh membuat siling regangan, gantung atau siling kayu, terutama jika anggaran memungkinkan.
Apabila diperlukan untuk memfasilitasi benturan pada pondasi, dinding harus dibuat bukan dari batu bata, tetapi dari blok busa, yang mudah diulang dengan bahan penamat. Kadang kala, jika bongkahnya menarik, ia dibiarkan utuh, terutamanya apabila jahitan sempurna telah dibuat semasa kerja pembinaan.
Cara memilih reka bentuk beranda yang terpasang di rumah: foto pilihan menarik
Agar peluasan tidak hanya selesa, tetapi juga menarik, ruang dalaman harus disusun dengan betul. Lebih baik apabila gaya umum bangunan utama digabungkan dengan reka bentuk peluasan. Di antara reka bentuk yang lebih popular, pilihan gaya yang dinyatakan di bawah digunakan.
Moden. Ini terutamanya gaya berteknologi tinggi, minimalis atau loteng. Dalam kes ini, perabot dan peralatan yang paling berfungsi dipilih sehingga memungkinkan untuk meninggalkan ruang kosong sebanyak mungkin. Walaupun begitu, beranda kelihatan selesa, sederhana dan menarik. Perabotnya dicirikan oleh laconicism dan garis sederhana. Dekorasi biasanya minimum atau tidak ada. Penting untuk memikirkan pencahayaan yang baik, perhatian terhadap perincian dan ruang pengezonan. Bahan - plastik, lebih jarang - kayu atau batu.
Tradisional. Sesuai untuk mereka yang suka mematuhi adat ketika menghias tempat mereka. Di bahagian dalaman seperti itu, tidak wajar menggunakan warna terang - untuk asas lebih baik memilih warna pastel. Sebilangan besar hiasan pada masa ini tersedia, seperti pagar atau sokongan yang diukir. Kulit atau permaidani bertumpuk tinggi dapat diletakkan di lantai dan dinding. Bahan utama adalah kayu dan batu, penggunaan logam sering dijumpai. Perabot kayu yang lebih tebal atau padat akan menekankan gaya.
Barok. Gaya ini untuk mereka yang lebih suka pompa, perabot yang tidak biasa dan sebilangan besar aksesori. Sebilangan besar warna emas, pelbagai pinggiran, candelier besar dan sconce dialu-alukan. Perabot mesti dibuat dari kayu dengan pelapis lembut. Di lantai, anda boleh meletakkan jubin seramik dengan pelbagai panel atau parket. Baroque adalah gaya mahal yang tidak menerima perincian murah.
Mediterranean. Sangat sesuai di beranda yang terletak berhampiran laut atau badan air yang lain. Warna utama adalah biru, pirus, hijau, pasir. Sebaiknya pilih anyaman perabot atau dengan pelapis tekstil, dengan cetakan yang sesuai dengan pemandangan laut.
Chalet. Penyelesaian yang ideal untuk beranda kayu yang terpasang di rumah. Yang terbaik adalah mendirikan struktur menggunakan bar dan menghiasnya dengan pagar besi tempa. Dianjurkan untuk mengatur perabot kayu padat, dan gunakan papan dek atau log sebagai lantai. Tidak boleh ada bahagian plastik atau garis lurus yang jelas. Dalam kes ini, brazier atau kompor akan kelihatan sangat relevan.
Teres dan beranda: gambar projek dan perkara penting yang perlu diingat semasa pembinaan
Agar beranda atau teres yang terpasang di rumah dengan tangan anda sendiri dapat digunakan selama bertahun-tahun, anda harus menyiapkan dan merancang perjalanan kerja dengan teliti. Penting untuk mengira kekuatan anda dengan betul dan tidak melakukan pekerjaan walaupun dengan sedikit keyakinan diri. Sebelum memulakan pembinaan, disarankan untuk melakukan tindakan berikut:
- Tentukan anggaran yang diperuntukkan, dengan mengambil kira walaupun butiran terkecil. Selalunya, elemen hiasan tambahan: pagar besi tempa, perabot dan aksesori pereka yang tidak biasa - memakan sebahagian besar kewangan.
- Fikirkan rancangan terperinci yang membolehkan anda sekurang-kurangnya mengira jumlah bahan binaan yang digunakan untuk menganggarkan sisa pembinaan dan pembaikan.Maka anda tidak perlu menghadapi kekurangan dana dalam prosesnya.
- Jangan simpan. Penting untuk mematuhi standard siap pakai yang menentukan ukuran minimum tangga (15 cm - tinggi dan 25 cm - lebar), ketinggian pagar yang optimum adalah 90 cm. Diperlukan untuk memilih pengancing yang sesuai dan boleh dipercayai dan perhatikan langkah pengikat yang betul.
- Kumpulkan alat yang anda perlukan. Banyak alat yang mahal: pengadun konkrit, penggiling dan gerudi boleh disewa jika perlu, tetapi pelbagai jenis barang kecil dalam bentuk aras, kabel sambungan, tukul, pemutar skru, dan lain-lain perlu dibeli sendiri.
Akhirnya. Teres dan beranda ke rumah, gambar projek yang dicadangkan di atas, bukan sahaja memainkan peranan hiasan. Ini adalah premis penuh dengan fungsi yang baik yang dapat meningkatkan ruang tamu yang boleh digunakan. Mereka boleh digunakan untuk mengatur pengajian, tempat untuk berehat, ruang permainan untuk kanak-kanak. Dan tidak lama kemudian ternyata bahawa jika beranda dan teres dilengkapi dengan betul, maka keluarga menghabiskan semua masa yang hangat di sana.