Las casas modernas, gracias a las ventanas de plástico, el aislamiento externo e interno, se vuelven bastante herméticas. Por un lado, esto es bueno, pero por otro lado, dificulta la entrada de aire fresco a la casa, su ventilación se detiene parcialmente o está completamente ausente. Para remediar la situación, el propietario del edificio de la casa debe diseñar un esquema de ventilación en una casa privada con sus propias manos, o contactar a especialistas para organizar un sistema de ventilación en una casa privada, cuyo esquema será proporcionado por el proyecto.
La ventilación adecuada en una casa privada evita la formación de condensación, la propagación de moho y hongos y crea un microclima favorable para los residentes. Se debe proporcionar ventilación no solo para las salas de estar, sino también para los cuartos de servicio: baños, cocinas, inodoros, sótanos, salas de calderas.
Distinga entre ventilación natural y forzada en una casa particular. Algunos sistemas se pueden instalar a mano.
Contenido
- 1 Creando un esquema de ventilación de tipo natural en una casa privada con sus propias manos.
- 2 Ventilación de viviendas particulares de tipo forzado.
- 3 Características de ventilación en la cocina.
- 4 La relevancia de asegurar el flujo de aire
- 5 ¿Qué opción de ventilación para una casa particular debería elegir?
- 6 Ventilación en una casa particular (video)
Creando un esquema de ventilación de tipo natural en una casa privada con sus propias manos.
Ventilación natural en una casa particular. consiste en el hecho de que se colocan canales especiales en las paredes a través de los cuales circula el aire en todas las habitaciones, así como en el área de la chimenea. Debido a las diferentes densidades de aire caliente y frío, se produce un movimiento natural de los flujos de aire.

Esquema de ventilación en casa de dos pisos
El diagrama de ventilación natural en una casa particular muestra la ubicación de los conductos de aire verticales que comienzan en la habitación ventilada y suben hasta la cumbrera del techo.
Para hacer una ventilación natural en una casa privada con sus propias manos, es necesario colocar un canal con una sección de 140 mm en la pared (generalmente un cojinete). Aquí es importante que el grosor de la mampostería del conducto de escape sea de un ladrillo y medio. Si el espesor del canal es menor, entonces es posible el efecto del empuje inverso. La tubería debe terminar por encima de la cresta, lo que también proporcionará suficiente tracción. Desde este canal, se disponen curvas horizontales para habitaciones, cuyo diámetro es de 100 mm. Puede hacer cableado de ventilación en una casa privada con tuberías de plástico.
La ventilación de bricolaje en una casa privada, el esquema y el cálculo de los parámetros del sistema es un proceso completamente factible, sujeto a las normas y recomendaciones.
Ventilación de viviendas particulares de tipo forzado.
Es necesario un sistema de ventilación forzada en una casa privada donde la ventilación natural no puede proporcionar una renovación completa del aire. Muy a menudo, se necesitan dispositivos de ventilación en salas de calderas, baños, inodoros y cocinas. Los dispositivos con los que se realiza la ventilación forzada son aficionados y capuchas.
¡Consejo útil! La ventilación forzada elimina los olores desagradables y el exceso de humedad de la habitación. Por lo tanto, si desea evitar que crezcan hongos o moho en el baño, asegúrese de cuidar la ventilación de dichas habitaciones.
El intercambio de aire forzado se puede organizar utilizando el esquema de ventilación en una casa privada. El esquema puede asumir la presencia de un ventilador de pared, que se instala al comienzo del conducto de aire. Aunque el ventilador del cojinete es más duradero, genera mucho ruido desagradable durante el funcionamiento. Los bujes funcionan mucho más silenciosos, que además son más económicos.
Características de ventilación en la cocina.
El área de la cocina siempre está influenciada por los olores. El cambio de aire aquí debe realizarse constantemente, por lo tanto, la ventilación forzada, que es simplemente necesaria durante la cocción, debe mejorarse mediante un tipo de intercambio de aire natural estable.
capucha instalado encima de la estufa. Esta es la forma más eficaz de extraer aire en esta habitación, ya que al cocinar ciertos alimentos se liberan calor y vapor, con los correspondientes olores. Se forma condensación en las ventanas de plástico.
Al instalar la campana con sus propias manos, es importante instalarla a la distancia efectiva óptima de la estufa. por estufas de gas esto es 0,75 m, para eléctrico - 0,65 m.
A veces, se utiliza una unidad de suministro en la cocina. Es un elemento del sistema de ventilación de suministro y escape y promueve un intercambio de aire efectivo. Este sistema funcionará correctamente con suficiente función de grifo de tracción. Por lo tanto, al usar una unidad de tratamiento de aire, es importante verificar el tiro en el conducto de ventilación. De lo contrario, el flujo de aire de suministro simplemente se mezclará con el aire usado y se extenderá a otras habitaciones.
En Internet se pueden encontrar ejemplos de videos y explicaciones sobre el dispositivo de ventilación en una casa privada con sus propias manos.
La relevancia de asegurar el flujo de aire
El esquema de ventilación en una casa privada con sus propias manos debe proporcionar no solo drenaje, sino también el flujo de aire en cantidad suficiente. Si no se ocupa de esto, entonces podemos asumir que la casa no tiene la ventilación adecuada. La estanqueidad de las ventanas y puertas se convierte en la razón por la que la ventilación natural deja de funcionar en la casa y se observa el proceso de estancamiento del aire. Además, el trabajo de intercambio de aire forzado conducirá al efecto contrario, cuando a través de los canales de escape natural el aire comienza a moverse en la dirección opuesta junto con todas las acumulaciones de polvo.
Artículo relacionado:
|
Las reglas para organizar el sistema de ventilación deben tener en cuenta el hecho de que las ventanas y puertas modernas no dejan entrar aire fresco a las instalaciones, como antes. No tienen esas lagunas permitidas por los estándares obsoletos de SNiP. Incluso con un sistema de ventilación bien organizado, el aire de la casa puede atascarse, que es la principal señal de que no hay circulación de aire en ella.En tales habitaciones, se establecen olores técnicos y tóxicos persistentes, que provienen de pegamento, papel tapiz, linóleo y otros materiales de construcción y muebles. Puede aparecer humedad y condensación.
Para mayor claridad, puede familiarizarse con ejemplos de un dispositivo de ventilación en una casa privada con sus propias manos (las instrucciones en video están disponibles en Internet).
¿Qué opción de ventilación para una casa particular debería elegir?
El esquema de ventilación en una casa privada con sus propias manos debe elaborarse de acuerdo con el cálculo de todos los parámetros necesarios. La ventilación se calcula en base a datos sobre el área de locales ventilados y el número de personas en ellos. La tasa de intercambio de aire se toma a razón de 10 m³ por hora por persona.
¿Qué sistemas de intercambio de aire se ofrecen en casas particulares? ¿Cómo hacer que la ventilación natural sea competente y funcional para que la condensación no se acumule, las paredes no se humedezcan y el aire siempre permanezca fresco?
Se ofrecen los siguientes métodos de ventilación:
- sistema de ventilación natural;
- sistema de ventilación de suministro y extracción;
- sistema de ventilación combinado (cuando el suministro y el escape se suman al natural).

Proporcionar ventilación con ventilador de conducto
La elección de la instalación de bricolaje de un sistema de ventilación en una casa privada depende de muchos factores. Este es el estado del medio ambiente, los materiales de fabricación, la construcción de la casa y, finalmente, las capacidades financieras del propietario.
Hay salas donde las instalaciones adicionales ayudarán a equilibrar el microclima. Por lo tanto, el sistema de ventilación combinado en casa dará un resultado óptimo.
Sistema de ventilación de suministro y extracción en una casa particular.
A pesar de que el esquema de ventilación en una casa privada con sus propias manos puede parecer demasiado simple, con el enfoque adecuado para su organización, proporcionará condiciones cómodas en la casa.
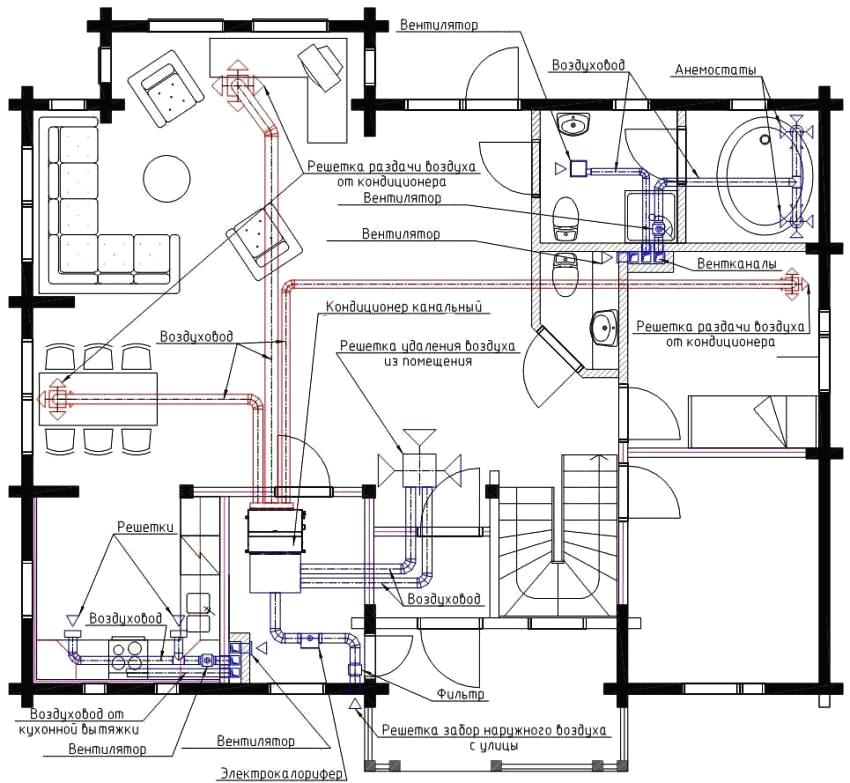
Se considera que el sistema de ventilación más adecuado para una casa privada es la ventilación de suministro y extracción, donde el suministro y el escape de aire son forzados. Para instalar un sistema de ventilación con sus propias manos, es necesario calcular el intercambio de aire requerido, determinar la ubicación de instalación del equipo (generalmente se usa un cuarto de servicio seco) y delinear la ubicación de los orificios para la entrada y salida de aire. Las aberturas para el suministro y escape de aire están dispuestas en esquinas opuestas de la habitación. Se inserta una tubería dentro del agujero y se cierra con rejillas desde el exterior. Se instala una válvula de retención desde el interior. La unidad de tratamiento de aire se fija en el lugar seleccionado, los conductos de ventilación se conectan a ella mediante abrazaderas metálicas. Los tubos flexibles se utilizan para conductos de aire.
Tuberías para ventilación en casas particulares. puedes usar plástico o aluminio. Con la ayuda de sujetadores, los canales se combinan con las habitaciones de toda la casa. Los conductos de aire suelen estar ubicados sobre falsos techos. La salida de los conductos se cierra con rejillas de ventilación.
¡Consejo útil! Usando un ventilador en la unidad de tratamiento de aire, es posible lograr un aumento en la tasa de eliminación del aire de escape contaminado.
El sistema de suministro y escape puede equiparse con un recuperador de calor, que calienta el aire procedente de la calle. Otra opción para la ventilación de suministro y escape es un sistema de suministro y escape con aire acondicionado. Con la ayuda de una unidad de tratamiento de aire de este tipo, se enfría el aire caliente.
Sistema de ventilación de baños en una casa particular.
Al equipar el sistema de ventilación con sus propias manos en el baño, debe tenerse en cuenta que durante el uso del baño, se produce una humedad excesiva allí, aparece condensación. Las piezas y elementos metálicos que acumulan la condensación en el baño comienzan a oxidarse.
El esquema de ventilación del baño debe ser proporcionado por el proyecto. Implica el dispositivo de un conducto de ventilación, cuya entrada desde el lado del baño se cierra con una rejilla. El suministro de aire puede ingresar al baño a través de las rejillas de ventilación abiertas y el espacio entre la puerta y el piso. La ventilación natural asegura una humedad y temperatura óptimas en el baño.
¡Consejo útil! Si el baño está ubicado en el segundo o tercer piso de la casa, se usa ventilación forzada para eliminar la humedad y la condensación. Este sistema usa un ventilador.
EN baños combinados y baños, la ventilación de alcantarillado se utiliza en una casa particular. Hay varias opciones para instalar tuberías de ventilación para tales habitaciones. Uno de ellos consiste en colocar una tubería de ventilación a lo largo de la pared de la casa. Tal tubería se verá como una tubería de drenaje. La longitud de la tubería de ventilación debe ser tal que su comienzo esté por encima de la cubierta del techo. Se recomienda utilizar una tubería de 11 cm de diámetro. Se pueden encontrar instrucciones completas y detalladas en los materiales de video sobre la instalación de ventilación en baños.
Dispositivo de ventilación de sótano de bricolaje en una casa privada
La habitación del sótano en una casa privada se usa a menudo para las necesidades del hogar. Para evitar la humedad y la condensación en las paredes, se requiere ventilación en el sótano de una casa privada. Con sus propias manos, puede organizar una ventilación simple perforando agujeros en lados opuestos de la base. Cúbralos con rejas para evitar que entren roedores al sótano.
Se puede lograr una mejor ventilación del sótano mediante el uso de tuberías. Para la instalación, necesitará dos tuberías (con un diámetro de 8-15 cm), rejillas, marquesinas que protegen contra la lluvia, aislamiento térmico. Un extremo de la tubería de suministro se instala en la abertura de la pared a una distancia de 25-35 cm del piso del sótano. El extremo superior de la tubería sale a través del zócalo y se coloca a lo largo de la pared. La longitud de la parte exterior de la tubería debe ser de 50 a 60 cm. Para una apariencia más estética, la tubería puede hacerse invisible.
La tubería de suministro debe instalarse en una abertura en el techo del sótano. Si el sótano se utiliza para almacenar alimentos, se recomienda colocar la tubería muy cerca de ellos. La tubería del sótano se conduce hacia afuera a través de todos los pisos y termina a una altura de 40-60 cm desde el techo. Cabe señalar que en las casas privadas, la condensación en la ventilación formada en la chimenea se drenará hacia el sótano. Por lo tanto, se coloca un recipiente en el sótano en el que se recoge el condensado. Las tuberías de ventilación pueden ser de plástico o de fibrocemento.
En Internet, puede encontrar varios esquemas de ventilación en una casa privada. Es mucho más fácil hacer la instalación de acuerdo con el esquema con sus propias manos. El video le informará sobre las opciones para instalar sistemas de ventilación en el sótano de una casa privada.
El sistema de ventilación en la sala de calderas de una casa particular.
Al instalar ventilación con sus propias manos en una sala de calderas, es necesario tener en cuenta la unión de los elementos de ventilación a la ubicación del equipo de calefacción. Para la sala de calderas se puede utilizar ventilación natural o forzada.
¡Consejo útil! Si su sala de calderas tiene caldera de combustible sólido, se recomienda instalar ventilación forzada.
La disposición de los conductos de aire en la sala de calderas puede ser vertical u horizontal. Pero al mismo tiempo, los conductos de aire horizontales en la sala de calderas no deben contener secciones dobladas y deben instalarse solo en el caso de ventilación forzada. Para una ventilación natural, el conducto de aire de la caldera puede ser vertical y de al menos tres metros de largo.
La ventilación combinada es el sistema de ventilación óptimo en la sala de calderas. Si la ventilación forzada deja de funcionar en la sala de calderas, la ventilación natural la reemplazará parcialmente.
Al equipar su hogar con un sistema de ventilación eficaz, garantizará el funcionamiento a largo plazo de la estructura de la casa y preservará su salud.
Ventilación en una casa particular (video)