Para pemilik rumah-rumah desa terlibat dalam pembaikan plot mereka agar kehidupan bermusim atau sepanjang tahun di kawasan ini seaman mungkin. Sekiranya pengorganisasian kawasan rekreasi di halaman tidak menimbulkan kesukaran, maka pembinaan beberapa objek memerlukan perhatian yang meningkat. Ini termasuk rumah mandian: perancangan dan reka bentuk struktur, mengira ukuran setiap bilik dan memperuntukkan kawasan - semua masalah ini harus diselesaikan sebelum pembinaan dimulakan.

KE reka bentuk mandi anda perlu menghampiri dengan penuh tanggungjawab
Kandungan
- 1 Mandi: merancang dan membahagikan keseluruhan kawasan menjadi zon berfungsi
- 2 Reka bentuk mandi: premis utama dan contoh susun atur yang baik
- 2.1 Bilik mandi pada rajah mandi dan parameter dimensinya
- 2.2 Cara mengira ukuran bilik wap di dalam tab mandi dengan betul
- 2.3 Pembangunan projek mandian 3x4 DIY: gambar dan cadangan
- 2.4 Susun atur mandian asal 3 hingga 5: foto di dalam dan di luar
- 2.5 Seperti apa susun atur mandi 4 hingga 4 yang optimum: foto di dalam dan di luar bangunan
- 2.6 Projek mandi optimum dan praktikal dari kayu 6 x 3 meter
- 2.7 Susun atur tempat mandi yang cantik 4 hingga 5: foto di dalam dan di luar
- 2.8 Ciri-ciri projek mandi dari bar 4x6 meter dengan teres
- 2.9 Projek mandi 6 hingga 6: foto dengan contoh susun atur yang menarik
Mandi: merancang dan membahagikan keseluruhan kawasan menjadi zon berfungsi
Sekiranya sebelumnya bilik mandi hanya terdiri daripada satu bilik, maka versi moden dari struktur ini merangkumi beberapa bilik. Di antaranya mungkin ada bilik cuci, ruang ganti, kawasan rekreasi, kolam renang, bilik biliar, dan lain-lain. Sehingga pada masa depan pemiliknya tidak perlu menggunakan semula dan menyesuaikan bangunan, perlu membuat semua catatan penting dalam lukisan rumah mandian pada peringkat reka bentuk. Perkara berikut memerlukan perhatian khusus:
- susun atur dalaman;
- sistem bekalan air;
- pendawaian elektrik;
- sistem pembetungan dan saliran.
Catatan! Mempunyai gambarajah terperinci di hadapan anda, anda dapat mempermudah dan mempercepat proses pemilihan dan penyusunan perabot.
Pembangunan rancangan mandi, dengan mengambil kira keadaan pondok musim panas
Untuk mewujudkan keadaan yang ideal untuk bersantai di tab mandi, anda perlu mengambil kira beberapa nuansa yang memungkinkan anda untuk mengelakkan masalah semasa operasi bilik. Adalah wajar bahawa zon pembinaan terletak di tanah dengan paras air bawah tanah yang rendah. Sebelum memulakan projek, anda mesti segera mengecualikan semua kawasan yang tidak memenuhi syarat ini.

Projek mandi berukuran 5 x 7 meter dengan teres terbuka
Sekiranya terdapat sumur di wilayah ini, maka jarak antara rumah dan tempat mandi tidak boleh kurang dari 5 m. Jurang minimum antara bilik wap dan bangunan kediaman adalah 8 m. Semakin jauh dari rumah mandian terletaknya lubang kompos dan tandas, semakin baik.Pakar menasihatkan membuat pintu masuk dari sebelah selatan. Pada musim sejuk, lebih sedikit salji salji terbentuk di sini, jadi kemungkinan menyekat akses ke pintu... Lebih baik jika tingkap menghadap ke barat, yang akan memudahkan penembusan cahaya matahari yang mencukupi ke dalam bilik.
Sekiranya terdapat takungan di pondok musim panas, setelah membina rumah mandi 15-20 m darinya, anda boleh menggunakannya sebagai ganti kolam renang. Di samping itu, kehadiran sungai atau tasik berhampiran kemudahan akan menyediakan sistem bekalan air.
Untuk petak kecil (3-6 ekar), projek mandi 3 hingga 3 sesuai, gambar bangunan seperti itu banyak terdapat di laman web syarikat pembinaan. Walaupun di bangunan kompak seperti itu, bilik wap tetap menjadi ruang utama. Jumlah maksimum ruang harus diperuntukkan untuk organisasi bilik ini - kira-kira 8 m². Ini cukup untuk memasang 2-3 kerusi (rak) dan pemanas.
Premis lain boleh dimasukkan ke dalam susunan tempat mandi 3x4 m atau lebih (pilihan). Strukturnya dapat digunakan untuk tujuan yang dimaksudkan walaupun tidak ada ruang biliar atau bilik mandi. Rumah mandian tidak boleh wujud tanpa bilik wap. Atas sebab ini, pembahagian ruang dalaman menjadi kawasan fungsional bergantung kepada ukuran projek.
Sekiranya anda mahukan kemudahan tambahan, anda boleh memasukkan bilik mandi kecil atau bilik cuci dalam projek mandi 3 hingga 4 m. Selepas bilik wap, di sini anda boleh membersihkan kotoran dan menyegarkan. Projek khas dicirikan oleh adanya bilik rehat, yang akan dikendalikan di antara sesi stim. Untuk penganjurannya, diperlukan 4.5 m².
Bilik-bilik lain juga akan berguna, misalnya, ruang ganti atau ruang depan. Mereka cukup padat untuk dimasukkan ke dalam projek sauna log 5 hingga 5 bersama dengan bilik utama.
Catatan! Kawasan untuk mencuci satu orang adalah 2 m².
Reka bentuk mandi: premis utama dan contoh susun atur yang baik
Bahkan projek terkecil tidak boleh terdiri hanya dari satu bilik wap. Agar tempat mandi dapat berfungsi dengan normal, dan keadaan operasinya memberikan keselesaan bagi seseorang, premis lain juga harus disertakan dalam tata letak. Untuk tujuan ini, ruang dalaman bangunan dibahagikan kepada bilik-bilik kecil, masing-masing menjalankan peranannya sendiri.
Dalam projek rumah mandi 5 x 6 m (memandangkan ukuran bangunan yang kecil), tidak perlu menggunakan dinding yang menanggung beban untuk membahagi ruang menjadi zon. Partisi ringan yang diperbuat daripada kayu akan mencukupi. Mereka tidak perlu meletakkan asas dan tidak membawa beban tambahan.

Semasa membahagikan ruang, anda boleh menggunakan partisi kaca dan bukannya dinding untuk menjimatkan ruang
Oleh kerana pembahagian ruang utama menjadi beberapa bahagian, pemanasan bilik wap dapat dilakukan dengan cekap dan cepat. Dalam kes ini, bilik lain tidak akan dipanaskan. Kelebihan ini sangat berguna untuk ruang rehat.
Ruang menunggu tergolong dalam kategori premis yang diperlukan. Bilik ini digunakan sebagai pintu masuk ke tempat mandi, tidak membenarkan udara sejuk dari jalan masuk ke bilik wap. Kayu bakar atau bahan bakar lain boleh disimpan di sini. Bilik persalinan sesuai untuk mengatur bilik persalinan kecil (ruang ganti). Sekiranya susun aturnya betul, dari bilik ini anda boleh masuk ke bilik wap, dan bilik mandi, dan bilik rehat dengan mudah.
Susun atur ruang mandi 3 x 5 m boleh merangkumi ruang ganti yang cukup luas. Dengan menggunakan partition, anda boleh mengatur bilik tambahan untuk menyimpan barang dan bahan bakar. Di ruang ganti, tingkap besar akan berguna, tetapi hanya dengan syarat tidak akan berada di bilik wap. Harus ada satu pintu di bilik wap, yang menuju ke bilik persalinan.Bilik persalinan yang sama boleh dihubungkan melalui jalan dengan bilik lain.
Bilik mandi pada rajah mandi dan parameter dimensinya
Sekiranya terdapat bilik pancuran di projek, disarankan untuk memisahkannya dari bilik lain. Ini disebabkan oleh beberapa syarat. Pertama, suhu di bilik cuci harus jauh lebih rendah daripada di bilik wap. Kedua, proses mandi adalah prosedur intim, jadi lebih baik menyembunyikan bilik dari mata.
Untuk menjimatkan wang untuk memanaskan pancuran mandian, anda boleh mengurangkan saiznya. Kawasan seluas 2-3 m² akan mencukupi. Bilik mandi seperti itu akan sesuai walaupun dalam projek mini sauna 4 hingga 4 dari bar.
Nasihat berguna! Sekiranya bilik ini akan digunakan secara eksklusif oleh lantai lelaki, ukuran bilik cuci boleh dikurangkan menjadi 0.5 m². Berkat ini, dapat meningkatkan kawasan ruang rehat.
Bilik mandi yang lebih luas boleh dimasukkan ke dalam projek mandi dari bar 6 x 4 m dengan memasang bukan sahaja peralatan yang diperlukan di sana, tetapi juga tempat duduk, misalnya, bangku simpanan. Lapisan sesuai sebagai kemasan untuk bahagian atas bilik, bahagian bawahnya boleh berjubin.
Sekiranya bangunan itu ditujukan untuk lawatan keluarga dengan anak-anak, disarankan untuk menjadikan projek mandi asas dari bar 6x6 m sebagai asas. Ia bukan sahaja akan mengatur bilik basuh yang selesa dan besar, tetapi juga melengkapkannya dengan ruang tambahan yang direka untuk mencuci, dll. Bilik mandi dengan kawasan yang baik , boleh menjadi ruang utama mandi. Dalam kes ini, anda perlu berhati-hati membuat keadaan yang sesuai:
- mengatur sistem pengudaraan berkualiti tinggi (terpaksa dan semula jadi);
- melakukan pengiraan skema pemanasan yang betul;
- mengatur sistem pencahayaan dengan kombinasi cahaya semula jadi dan buatan secara optimum;
- hitung luas bilik untuk jumlah pengunjung maksimum.
Sekiranya terdapat susun atur untuk mandi 6x6 m, bilik rehat boleh dikeluarkan dari projek dan dipindahkan ke rumah.
Cara mengira ukuran bilik wap di dalam tab mandi dengan betul
Sebaiknya letakkan bilik wap sejauh mungkin dari pintu depan. Bilik ini tidak memerlukan tingkap. Parameter dimensi premis dipilih dengan mengambil kira standard yang diterima umum. Peraturan-peraturan ini menetapkan standard untuk perkara-perkara utama:
Artikel berkaitan:
Mandi kerangka sendiri: arahan pembinaan langkah demi langkah
Projek, foto, ciri mandi bingkai. Mandi papan panel-bingkai. Sauna turnkey: harga, tempat membeli. Suntingan video.
- bahan binaan dan hiasan;
- parameter sistem pengudaraan;
- bilangan pelawat maksimum;
- tahap kuasa pemanas (relau), tahap pemindahan haba;
- keselamatan api;
- parameter struktur bilik dan ergonomik.

Dimensi bilik wap dikira dengan mengambil kira norma yang diterima umum dan kehendak peribadi pemiliknya
Bilik wap dikenakan standard yang ketat dari segi ketinggian. Parameter ini tidak boleh melebihi julat 210-240 cm. Dalam hal ini, panjang dan lebar ruangan masing-masing dapat berada dalam jarak 190-235 cm dan 84-115 cm. Ukuran ini dianggap minimum untuk projek kecil untuk satu orang. Sudah tentu, dalam projek mandi dari bar 6 x 6 m atau lebih, dimensi bilik wap dapat ditingkatkan.
Nasihat berguna! Sekiranya ukuran bilik mandi terhad, untuk menjimatkan ruang untuk mengatur bilik lain, anda boleh memasang rak tempat duduk di bilik wap atau menyusunnya di lata.
Pembangunan projek mandian 3x4 DIY: gambar dan cadangan
Adalah sukar untuk mengembangkan skema bangunan sendiri, terutamanya jika ia adalah projek dengan kawasan yang terhad. Dalam kes ini, disarankan untuk mendapatkan bantuan daripada pakar. Untuk mendapatkan hasil yang boleh diterima, disarankan agar anda terlebih dahulu membuat lakaran yang menggambarkan semua keinginan anda.Selalunya, pemilik kawasan pinggir bandar berusaha menyelamatkan meter berharga. Namun, tidak semuanya dapat diselamatkan. Dalam upaya untuk menjaga biaya minimum, disarankan untuk tidak menggunakan:
- bahan meragukan;
- bahan yang tidak dimaksudkan untuk pembinaan bilik wap atau tidak mempunyai sifat yang diperlukan;
- Peralatan elektrik DIY.
Di samping itu, untuk menjimatkan wang, tidak wajar diambil pembinaan mandi pakar tanpa pengalaman yang berkaitan. Mungkin pengrajin yang mengajar sendiri mengenakan bayaran yang sangat rendah, tetapi penyelenggaraan sedemikian dapat berakhir dengan teruk dari masa ke masa dan memerlukan banyak biaya tambahan.
Walaupun projek mandi berukuran 3x4 m bersaiz terhad, anda tidak boleh melepaskan tingkap. Mereka tidak hanya memberikan akses ke cahaya alami, tetapi juga dapat digunakan untuk ventilasi bilik. Untuk mandi kecil, bukaan dengan ukuran 0,4x0,4 m sangat sesuai.
Susun atur mandian asal 3 hingga 5: foto di dalam dan di luar
Sekiranya rumah mandi 3x5 m akan mempunyai bilik wap dan sink, yang terletak secara berasingan, ruang dalaman struktur harus dibahagikan kepada sekurang-kurangnya 3 bahagian. Sebaiknya peruntukkan sebidang tanah seluas 2x3 m untuk organisasi kawasan yang bertujuan untuk menukar pakaian dan berehat. Ruang selebihnya dalam projek rumah mandi 3 x 5 m dibahagi hampir sama. Hasilnya mestilah dua bilik, ukurannya 3,4x1,4 m dan 3,4x1,5 m. Semasa membuat skema mandi seperti itu, anda harus memikirkan di mana dandang akan dipasang untuk memanaskan air. Adalah wajar ia berada sejauh mungkin dari pintu depan.
Ruang ganti mesti ada dalam projek, walaupun biliknya kecil. Walau bagaimanapun, kehadiran bilik ini sangat diperlukan. Lebih-lebih lagi, tidak kira sama ada rancangan mandi termasuk ruang beristirahat untuk beristirahat atau tidak.
Kehadiran teres akan membantu memperbaiki keadaan operasi di tab mandi. Selalunya, dalam projek seperti itu, 5x1.9 m diperuntukkan untuk pembinaan elemen ini. Sudah tentu, dalam kes ini, saiz premis dalaman akan dikurangkan sedikit, tetapi kerugian ini tidak akan ketara. Anda juga tidak boleh memasukkan teres dalam keseluruhan rancangan mandi. Pemaju sering merancangnya sebagai lanjutan ke sisi bangunan, yang memungkinkan untuk tidak mengurangkan kawasan premis dalaman. Ukuran teras yang optimum dalam kes ini ialah 3x7 m.
Nasihat berguna! Untuk menjimatkan ruang, anda boleh memindahkan kawasan bersantai dan rekreasi ke teras, atau mengatur bilik yang dirancang untuk tujuan ini di lantai loteng.
Seperti apa susun atur mandi 4 hingga 4 yang optimum: foto di dalam dan di luar bangunan
Selalunya, kayu balak digunakan untuk pembinaan bangunan kecil. Oleh itu, dalam gambar sebenar projek rumah mandi 4 x 4 m, anda dapat melihat bahawa ruang dalamannya jauh lebih kecil daripada dimensi luaran bangunan. Agar perhitungan sesuai dengan realiti, perlu mempertimbangkan parameter dimensi bahan binaan, serta kaedah pembinaan.
Sekiranya pemasangan mandi dilakukan dengan kaedah "in the paw", ketebalan balak harus dikurangkan dari bahagian dalam premis. Sekiranya bangunan dipasang "dalam mangkuk", 25 cm lagi harus ditambahkan pada indikator ini. Contohnya, jika kayu digunakan untuk pembinaan rumah mandi, panjangnya 4 m dan diameternya 24 cm, maka ukuran maksimum ruang dalaman adalah 3x3 m. Nuansa ini mesti diambil kira semasa merancang susun atur mandi masa depan.
Susun atur ruangan ini disusun mengikut prinsip yang telah dijelaskan sebelumnya.Dalam foto projek mandi 4 hingga 4, bahagian dalaman, dan juga sifat penempatan bilik, paling sering dipermudah sebanyak mungkin. Skema paling mudah biasanya terdiri dari satu bilik, yang melaksanakan beberapa fungsi sekaligus. Ia menggantikan bilik persalinan, ruang ganti dan bilik wap. Kompor kayu atau elektrik dipasang di sudut. Juga, 2-3 rak dipasang di dalam bilik. Lebar elemen ini kira-kira 0,5-0,6 m.
Pilihan susun atur yang dijelaskan tidak boleh dipanggil praktikal dan mudah. Rumah mandian, yang mempunyai ruang istirahat dan bilik cuci, akan mempunyai keadaan yang lebih selesa. Ruang berukuran 4x4 m membolehkan anda mengatur bilik-bilik ini.
Nasihat berguna! Sebaiknya pasangkan kompor di bilik wap. Oleh itu, bilik yang berdekatan dengan zon ini akan dipanaskan oleh haba yang dihasilkan olehnya. Atas sebab ini, para pakar mengesyorkan untuk melengkapkan ruang rehat di sebelah bilik wap.
Sekiranya ada anggaran tambahan, rumah mandi 4x4 m dapat ditingkatkan sebanyak loteng... Dalam kes ini, susun atur standard disusun di tingkat bawah, dan ruang rekreasi, ruang biliar atau bilik tidur disusun di tingkat atas.
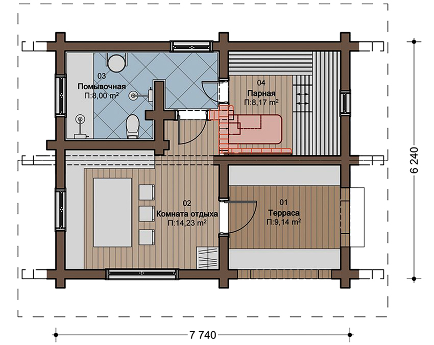
Projek mandi optimum dan praktikal dari kayu 6 x 3 meter
Projek mandi 6x3 m dirancang untuk servis 3-4 orang serentak, jadi disarankan untuk memperuntukkan sekurang-kurangnya 6 m² kawasan dalaman untuk susunan bilik wap. Ukuran ruang ganti rata-rata 3-5 m². Tidak ada sekatan khas untuk seluruh bilik. Dalam projek mandi 3 hingga 6 m, beberapa bilik biasanya dilengkapi:
- bilik wap;
- lorong;
- mencuci;
- tandas.
Sebilangan pemaju mengurangkan jumlah bilik, tetapi pakar tidak mengesyorkan melakukannya. Setiap bilik ini mempunyai fungsinya sendiri. Bilik mandi dan bilik wap adalah wajib. Sekiranya anda menyingkirkan lorong, maka pintu depan akan menuju terus ke ruang rekreasi. Pada musim panas, penempatan ini tidak akan menimbulkan rasa tidak selesa, tetapi pada musim sejuk, ruang berehat akan terkena draf. Sekiranya kita mengecualikan bilik rehat dari projek, maka keseronokan daripada mengambil prosedur mandi akan jauh lebih sedikit.
Untuk memperbaiki keadaan relaksasi dalam mandi kayu, disarankan untuk memasang perabot kayu. Untuk mewujudkan keselesaan, sofa, beberapa kerusi berlengan dan meja kecil akan mencukupi. Tidak ada salahnya menonton TV atau teater rumah di ruang rehat.
Susun atur tempat mandi yang cantik 4 hingga 5: foto di dalam dan di luar
Perancangan nuansa seperti jenis pondasi, ciri bumbung, bahan untuk pembinaan dinding, dan lain-lain bergantung pada keadaan pondok musim panas dan keinginan pemiliknya.
Dalam foto projek rumah mandi 5 x 4 m dalam versi standard, anda dapat melihat set minimum premis. Di bangunan satu tingkat, sebagai peraturan, tidak ada ruang ganti dan ruang depan. Dalam keadaan seperti itu, mustahil untuk mengendalikan rumah mandian pada musim sejuk. Biasanya terdapat ruang rehat di belakang pintu depan. Ia boleh menjadi luas. Luas 4x2.85 m akan cukup untuk meletakkannya di dalam rumah sofa sudut dan meja atau bangku untuk tempat duduk. Sekiranya dikehendaki, TV dan peralatan lain boleh dipasang di ruang rekreasi.
Selepas bilik rehat, bilik cuci sedang disediakan. Ukuran bilik ini boleh berukuran 1.8x2 m. Terdapat sink untuk mencuci tangan dan mencuci, tandas dan pancuran. Dari bilik ini anda boleh masuk ke bilik wap, yang dimensi 2x2.1 m. Kompor dipasang di dalamnya, untuk pembinaan yang diperuntukkan sekitar 1 m².
Catatan! Dalam proses mengembangkan projek untuk rumah mandi 4 x 5 m, sangat penting untuk memastikan bahawa akses percuma dan mudah diatur ke setiap bilik.
Teres yang luas dapat ditambahkan ke set kamar standard. Ukuran optimum zon ini ialah 1.5x4 m. Sekiranya dikehendaki, terasnya berkaca dan berubah menjadi beranda yang selesa. Ruang ini boleh digunakan untuk mengatur ruang tempat duduk tambahan atau memasang oven barbeku di sini. Dalam kes ini, pintu depan dari teras harus menuju ke bilik rekreasi.
Ciri-ciri projek mandi dari bar 4x6 meter dengan teres
Projek mandian kayu berukuran 4 x 6 m dengan teras mendapat permintaan tinggi di kalangan pemilik pondok musim panas. Pembinaan bangunan sedemikian dapat disiapkan hanya dalam satu musim. Berkat penggunaan teknologi dan bahan moden, anda boleh mendapatkan bangunan yang indah dengan keadaan yang selesa, dan dengan harga yang cukup berpatutan. Semasa merancang mandi 6 x 4 m, premis berikut dapat ditempatkan di bangunan:
- bilik wap (4 m²);
- bilik basuh (4 m²);
- bilik rekreasi (8 m²);
- teres terbuka (8 m²).
Ukuran bilik yang dibentangkan membolehkan sekurang-kurangnya 6 orang duduk di dalam tab mandi pada masa yang sama. Jumlah pelawat tidak terhad kepada ini. Kompor logam yang dilengkapi dengan tangki untuk memanaskan air sesuai untuk memanaskan bilik dari bar. Dari sini, cecair hangat akan mengalir ke bilik basuh. Rumah mandian boleh mempunyai sistem bekalan air autonomi atau digerakkan terus dari bangunan kediaman.
Untuk memastikan keadaan yang selesa semasa mengambil prosedur air, ketinggian siling sekurang-kurangnya 2,2 m. Di tempat mandi dengan kawasan seperti itu, anda perlu memasang sekurang-kurangnya 3 tingkap. Ukuran strukturnya adalah 0,6x0,6 m. Karena mandi terbuat dari kayu, disarankan untuk menggunakan tingkap kayu, walaupun penggunaan tingkap logam-plastik juga diizinkan.
Projek mandi 6 hingga 6: foto dengan contoh susun atur yang menarik
Kawasan mandi dengan ukuran 6x6 m dianggap optimum. Ruang ini cukup untuk mengatur semua premis yang diperlukan di dalamnya, memasang peralatan pemanasan dan barang dalaman (perabot). Dengan dimensi seperti itu, projek mandi 6x6 m secara serentak dapat memuatkan 8 hingga 10 orang. Pelawat tunggal memerlukan kira-kira 1.1 m². Penunjuk ini boleh digunakan untuk mengira dan merancang semua bilik di tab mandi. Struktur dalam kes ini mungkin terdiri daripada premis berikut:
- bilik wap;
- mencuci;
- tandas;
- bilik mandi;
- bilik persalinan.
Sifat penempatan bilik boleh bersifat individu, kerana hanya pemiliknya yang tahu berapa banyak orang yang akan berehat di tab mandi dan bagaimana ia akan dikendalikan secara serentak. Pembangunan projek boleh dimulakan dari mana-mana bahagian bangunan, yang utama ialah paip pembetung terletak di sebelah lubang longkang dan dimensi, serta ciri-ciri struktur relau, diambil kira. Adalah wajar bilik wap jauh lebih besar daripada bilik basuh. Bilik bersantai boleh dilengkapi dengan kolam renang.
Secara amnya, perancangan mandi tidak begitu sukar. Dengan mengambil kira standard dan keperluan keselamatan asas, serta menggunakan prinsip penempatan bilik yang rasional, anda dapat membuat ruang yang