Semasa memilih projek untuk pembinaan pondok di kawasan pinggir bandar, pertama sekali, anda perlu memutuskan jumlah tingkat bangunan. Nuansa ini memberi kesan langsung kepada anggaran untuk pembinaan masa depan dan fungsi perumahan. Pada gilirannya, pilihan bilangan tingkat bangunan bergantung pada kawasan laman web ini. Kawasan bangunan kecil mengenakan sekatan pada pilihan jenis bangunan, jadi rancangan yang baik untuk rumah satu tingkat harus selalu ada.

Berkat susun atur yang cekap, walaupun rumah satu tingkat yang sangat kecil dapat menjadi selesa dan selesa
Kandungan
- 1 Pelan rumah satu tingkat: kelebihan dan kekurangan
- 2 Foto projek rumah satu tingkat dan cara menambah ruang
- 3 Pembangunan projek untuk bangunan satu tingkat
- 4 Pelan rumah satu tingkat hingga 100 meter persegi: penyelesaian menarik
- 5 Projek rumah satu tingkat hingga 150 m2: gambar dan susun atur yang popular
Pelan rumah satu tingkat: kelebihan dan kekurangan
Kerja-kerja pembinaan bangunan satu tingkat mempunyai banyak kelebihan, kerana membina rumah dengan satu tingkat jauh lebih cepat dan lebih mudah daripada dengan dua atau lebih.
Bangunan jenis ini membuka banyak peluang untuk pengembangan reka bentuk, pelaksanaannya, dan juga memastikan kebolehpercayaan dan keselamatan bangunan siap. Tetapi pondok satu tingkat tidak akan dapat menyelesaikan masalah pembinaan kawasan pinggir bandar, yang pemiliknya mempunyai keluarga besar. Dalam kes ini, anda harus memperhatikan bangunan dua dan tiga tingkat.
Bangunan satu tingkat popular bukan sahaja kerana saiznya yang kecil dan kos pembinaan yang rendah. Mereka sesuai dengan pemandangan semula jadi. Walaupun begitu, seseorang harus memikirkan pembahagian kawasan dalaman, kerana bangunan tersebut pada akhirnya harus memenuhi keperluan semua penduduk. Untuk melakukan ini, anda harus membiasakan diri dengan foto, rancangan rumah satu tingkat, dan juga ciri-cirinya. Ini akan membolehkan anda membuat gambaran yang lebih lengkap untuk memahami bagaimana reka bentuk bangunan dirancang.
Artikel berkaitan:
Foto susun atur rumah satu tingkat 10 hingga 10. Pilihan untuk menambah ruang kediaman. Reka bentuk dan nasihat kediaman yang kompeten untuk merasionalisasi ruang kosong. Foto susun atur rumah satu tingkat 8 hingga 10 dan 10 hingga 12.
Kelebihan projek dengan satu tingkat
Seperti mana-mana jenis bangunan, bangunan satu tingkat mempunyai kelebihan dan kekurangan. Pilihan terbaik adalah yang mempunyai lebih banyak kelebihan daripada kekurangan.
Kelebihan projek bertingkat rendah:
- asasnya adalah bahagian rumah yang paling penting. Pada masa yang sama, kos pembinaannya sangat tinggi jika dibandingkan dengan harga untuk jenis pekerjaan yang tinggal. Dalam kebanyakan kes, bangunan satu tingkat mempunyai asas yang dipermudahkan. Pangkalan sedemikian tidak dirancang untuk menahan berat beberapa lantai, oleh itu, ia boleh mempunyai reka bentuk sederhana dan struktur ringan. Yang seterusnya, tidak mengenakan sekatan pada jenis tanah di kawasan yang diperuntukkan untuk bangunan;
- semasa pembinaan tembok, anda dapat menjimatkan wang dengan ketara, kerana strukturnya tidak memerlukan pengukuhan tambahan, kerana tidak ada tingkat dua. Pilihan bahan binaan dalam kes ini juga praktikal tidak terhad;
- kejuruteraan di bangunan satu tingkat sangat sederhana. Tidak perlu melakukan pendawaian komunikasi yang kompleks, sistem pemanasan, dan lain-lain, dengan mengambil kira keadaan operasi khas rumah. Seperti yang berlaku, misalnya, dengan rumah di mana terdapat unsur seni bina seperti lampu kedua atau terdapat banyak lantai. Kerja pemasangan dipermudahkan sebanyak mungkin dan sangat murah;
- kerana reka bentuk yang sederhana, membina rumah tidak memerlukan kos yang besar, dan semua kerja dilakukan dalam masa sesingkat mungkin;

Projek 3D satu tingkat rumah dengan loteng dan garaj
- projek dengan satu tingkat tidak termasuk kehadiran tangga, kecuali susun atur dengan loteng. Ini membolehkan anda meninggalkan pembinaan tangga yang mahal dan kompleks, dengan membuang ruang kediaman dalaman secara lebih rasional.
Catatan! Faktor psikologi sangat penting ketika memilih susun atur. Bagi keluarga yang mempunyai anak, aspek perpaduan dan penempatan ruang tamu yang optimum dalam hubungan antara satu sama lain sangat penting.
Kekurangan bangunan satu tingkat dan ciri organisasi ruang
Bangunan satu tingkat juga mempunyai kekurangan, di antaranya tidak banyak:
- struktur dengan kawasan yang luas dan satu tingkat menimbulkan kesukaran yang besar pada peringkat reka bentuk. Dalam keadaan seperti itu, semasa menyusun susun atur, anda perlu memastikan bahawa terdapat sebilangan bilik bilik yang mungkin. Keperluan ini terutama berlaku untuk bilik rehat - bilik tidur, tetamu dan anak-anak. Keselesaan berada di dalamnya bergantung kepada perkara ini;
- bangunan dengan satu tingkat dan dimensi besar memerlukan kos yang besar pada tahap mengatur atap. Selepas itu, bumbung dengan ukuran seperti itu lebih kerap perlu melakukan pembaikan dan pengubahsuaian berjadual, yang akan menyebabkan kos baru;
- bangunan dengan dimensi kecil menghadkan ukuran dalaman. Pada peringkat reka bentuk, perlu dibuat susun atur yang secara serentak dapat memenuhi keperluan semua penduduk dan mematuhi standard pembinaan dan sanitasi.
Foto projek rumah satu tingkat dan cara menambah ruang
Memandangkan fakta bahawa bangunan satu tingkat paling sering terhad, banyak pemilik kawasan pinggir bandar berusaha untuk meningkatkan ruang dalaman dengan cara yang ada.
Cara untuk meningkatkan kawasan:
- susunan lantai bawah tanah, di mana anda boleh menempatkan bukan sahaja ruang tamu, tetapi juga bilik biliar, gimnasium atau bilik stor;
- pembinaan bumbung mansard yang boleh digunakan untuk menampung bilik tamu, bilik tidur atau bilik kanak-kanak;
Catatan! Kos membina lantai loteng hanya sedikit lebih tinggi daripada kos mengatur atap dengan dua lereng. Oleh itu, loteng dapat dilihat sebagai pelaburan yang menguntungkan.
- pemasangan bumbung dengan satu cerun untuk mengatur bilik loteng atau platform jenis berengsel;
- menggunakan bumbung rata untuk membuat ruang tempat duduk tambahan dengan taman bunga atau teres;
- organisasi garaj atau bengkel.
Semua elemen ini akan mempelbagaikan susun atur bangunan kediaman dan menjadikannya lebih menarik dari sudut seni bina dan fungsional.
Pelan rumah satu tingkat 8 x 8 meter dengan ruang bawah tanah
Elemen bangunan seperti ruang bawah tanah tidak boleh dianggap sebagai lantai penuh. Oleh itu, ia tidak mempengaruhi jumlah nominal lantai di rumah. Tetapi jika kawasan bawah tanah bangunan diperhalusi dan dilengkapi dengan betul, kawasan bawah tanah dapat ditambahkan dengan selamat ke ukuran keseluruhan bangunan.
Projek bangunan satu tingkat dengan ruang bawah tanah tidak menyediakan penempatan ruang tamu di laman web ini. Kesukaran tersebut disebabkan oleh fakta bahawa tidak ada cara untuk mengatur pencahayaan semula jadi dalam jumlah yang diperlukan dan tahap pengudaraan yang normal.

Pelan ruang bawah tanah rumah satu tingkat 8 x 8 m: 1 - koridor, 2 dan 3 - premis bukan kediaman (bilik biliard, bilik dandang, dobi, gim, dll.)
Walaupun begitu, anda selalu boleh memindahkan semua premis yang mempunyai tujuan ekonomi dan teknikal ke bahagian bawah bangunan. Malah sebuah bangunan kecil berukuran 8x8 m dapat memberikan keluarga ruang tambahan untuk menampung banyak barang dan peralatan rumah tangga tingkat bawah tanah.
Nasihat berguna! Gunakan tiang untuk memasang sistem bekalan air dan pemanasan (pemasangan dandang), mengatur cucian, kawasan menyeterika dan pengeringan, menyimpan barang-barang dalam tin dan sayur-sayuran (bukan bilik bawah tanah). Bilik utiliti, pantri atau almari boleh dipindahkan ke sini.

Tiga dimensi projek rumah 8x8 m dengan tingkat bawah
Projek besar membolehkan anda meletakkan bilik untuk bersantai di ruang bawah tanah:
- Gim;
- bilik biliard;
- bengkel;
- pawagam mini;
- sauna;
- kecil kolam renang.
Ciri-ciri susun atur rumah satu tingkat 10 x 10 meter dengan loteng
Dari segi kos, pondok dengan lantai loteng hampir sama dengan rumah dengan loteng. Momen ini disebabkan oleh fakta bahawa bahan untuk pembinaan loteng diperlukan hampir sama seperti yang diperlukan untuk zon loteng. Tetapi dalam kes ini, akan ada biaya tambahan, kerana anda harus melakukan:
- penebat;
- penamat;
- menjalankan sistem pemanasan.
Semua ini diperlukan untuk mengatur bilik jenis kediaman di lantai loteng, untuk memberi keselesaan di dalamnya. Oleh itu, kosnya dibenarkan sepenuhnya.
Seperti halnya ruang bawah tanah, dari sudut seni bina, loteng tidak dapat dianggap sebagai lantai penuh, oleh itu, ia dapat menawarkan kawasan yang jauh lebih tidak dapat digunakan daripada bangunan dua tingkat. Tetapi ruang ini memungkinkan untuk membuat susun atur yang menarik dan bervariasi.
Selalunya, loteng kelihatan bersyarat pada pelan bangunan sebagai tingkat dua. Atas sebab ini, di bahagian atas rumah, pemilik cenderung mengatur bilik bilik tidur dan bilik mandi kecil. Luas plot ini menentukan bilangan bilik tidur dan ukurannya.
Loteng boleh merangkumi beberapa bilik tidur kecil, serta dewan, bilik mandi penuh, lengkap dengan tab mandi. Anda juga boleh meletakkan pantri di sini.
Rancangan rumah satu tingkat 8 x 10 meter dengan garaj
Kehadiran hanya satu tingkat di rumah tidak boleh menjadi penghalang untuk membuat garaj atau bengkel di bawah bumbung yang sama dengan tempat tinggal.Pada masa yang sama, rancangan untuk rumah satu tingkat dengan garaj boleh mempunyai susun atur yang sama sekali simetri atau, sebaliknya, sebilangan bilik yang terletak bebas.
Pilihan bangunan simetri menawarkan susun atur di mana ruang garaj dipisahkan dari bilik jenis kediaman oleh dinding utama yang kuat. Secara luaran, sebuah bangunan serupa kelihatan simetris, mungkin merupakan pembahagi bersyarat menjadi dua menjadi dua zon: bahagian kediaman dan kawasan yang diperuntukkan untuk garaj. Dengan pembahagian ruang secara percuma, ruang garaj hanya bersebelahan dengan salah satu dinding luar struktur.
Nasihat berguna! Dianjurkan untuk menyusun susun atur agar akses ke premis tidak hanya dari jalan, tetapi juga dari sisi rumah. Berkat ini, pemilik kereta tidak perlu basah dalam hujan dan salji dalam cuaca buruk ketika dia mahu pergi ke garaj.
Untuk meningkatkan ruang kosong di rumah, tidak perlu dibatasi hanya di satu garaj, ruang bawah tanah atau loteng. Anda boleh menggunakan semua elemen ini untuk menjadikan kediaman anda selesa dan selesa.

Projek rumah satu tingkat 8x10 dengan garaj
Pembangunan projek untuk bangunan satu tingkat
Keselesaan tinggal di rumah dipengaruhi oleh pelbagai faktor. Tetapi yang paling penting dari mereka adalah sifat penempatan bilik, serta keanehan interaksi mereka antara satu sama lain.
Pembahagian ruang secara rasional ditentukan oleh:
- saiz bilik;
- tujuan premis;
- penempatan;
- hubungan antara bilik dan jenis premis lain, seperti beranda, koridor.
Bahagian asas rumah adalah asas untuk membuat susun atur. Hari ini, berdasarkan projek standard, kemungkinan membuat susun atur telah berkembang dengan ketara. Pembangun menggunakan pra-reka rangka tindakan, termasuk penyelesaian reka bentuk dan perancangan khas. Ini mengurangkan kos fasa reka bentuk, dan bukan hanya perbelanjaan wang, tetapi juga masa dikurangkan. Idea dilaksanakan dalam waktu singkat, mereka sedekat mungkin dengan keperluan kebanyakan pemilik kawasan pinggir bandar.
Fasa perancangan bangunan dan kawasan dalamannya
Fasa perancangan bangunan merangkumi beberapa syarat wajib yang mesti dipatuhi.
Semasa membuat rancangan, jangan lupakan perkara berikut:
- lokasi berhubung dengan angin naik;
- ciri landskap sekitarnya dan arah aliran air bawah tanah;
- lokasi berhubung dengan titik kardinal;
- bangunan yang terletak di wilayah itu, ciri-cirinya dan jarak dari tapak yang diperuntukkan untuk pembinaan;
- ketersediaan sambungan ke sistem kejuruteraan dan komunikasi;
- kekhasan sistem komunikasi dalaman yang mengikat ke premis bangunan;
- bentuk struktur;
- keupayaan untuk mengenal pasti ruang tersembunyi yang sesuai untuk digunakan sebagai kawasan yang berguna, dengan syarat perubahan kecil dilakukan pada projek biasa;
- jumlah bilik, tujuannya, hubungan antara bahagian dalam rumah dan ciri penggunaan masa depan.
Nasihat berguna! Sebaiknya masukkan elemen sistem komunikasi ke dalam nod. Ini akan mengurangkan kos dan menghilangkan pemasangan yang tidak perlu. Contohnya, dapur dan bilik mandi harus bersebelahan. Ini akan menghilangkan keperluan untuk perpaipan tambahan.
Maklumat berguna untuk fasa reka bentuk
Sistem komunikasi perlu difikirkan dengan teliti. Lebih baik jika anda dapat meminimumkan panjang saluran paip, kerana pemasangan paip panjang melibatkan pemasangan banyak sambungan. Semakin banyak hubungan, semakin tinggi risiko kebocoran.
Sistem pembentungan memerlukan aliran keluar air yang baik. Ia harus dirancang agar dapat menerima volume cairan secara normal jika mesin cuci pinggan mangkuk dan mesin basuh berjalan di rumah pada waktu yang sama, serta bilik mandi atau bilik mandi digunakan. Detik ini bergantung pada jumlah penghuni tetap di rumah dan keperluan masing-masing (dan juga peralatan rumah tangga) di dalam air.
Pengikatan bangunan kediaman dengan sistem komunikasi mesti dilaksanakan dengan mematuhi standard kebersihan dan kebersihan. Sebagai peraturan, air sisa dikitar semula dalam mod semula jadi, yang melibatkan penggunaan graviti. Saliran dilakukan secara eksklusif di tempat yang ditentukan untuk tujuan ini. Anda harus mendapatkan izin khas dari perkhidmatan kebersihan dan mengatur lubang saliran dengan betul.
Penting! Tidak boleh menggunakan air ribut dan takungan untuk saliran. Ini boleh menyebabkan denda dari pemeriksaan kebersihan atau panggilan pengadilan dari syarikat utiliti, serta mengakibatkan pencemaran alam sekitar dan air bawah tanah. Pelajari dengan teliti peraturan dan keperluan untuk proses mengatur sistem pembetungan di kawasan pinggir bandar.
Syarikat grid tempatan juga mungkin mempunyai syarat tertentu mengenai penggunaan peralatan rumah tangga. Ketahui terlebih dahulu apa hadnya dan, dengan mengambil kira data ini, tentukan alat elektrik.
Pelan rumah satu tingkat hingga 100 meter persegi: penyelesaian menarik
Dengan lokasi rumah yang optimum, angin harus diarahkan ke arah lereng bumbung. Oleh kerana itu, rintangan dan beban angin dikurangkan semasa angin kencang dan cuaca buruk. Lebih-lebih lagi, pemendakan tidak akan jatuh ke gables.
Sekiranya dirancang untuk membina struktur kediaman di kawasan di mana terdapat perubahan arah angin yang tajam dan kerap, disarankan untuk menggunakan bumbung jenis pinggul atau pinggul. Berkat struktur ini, menjadi mustahil untuk membentuk kanopi dan pesawat tambahan yang memberikan perlindungan tembok yang berkesan dari kesan pemendakan.

Sekiranya anda membuang bahagian dalaman, menggabungkan dapur, ruang makan dan ruang tamu, ini secara visual akan meluaskan ruang dalaman sebuah rumah kecil.
Jangan lupa tentang ciri-ciri pelepasan lanskap di kawasan ini. Tidak digalakkan untuk mencari bangunan di titik paling ekstrim, iaitu untuk melakukan pembinaan di zon tertinggi dan terendah di laman web ini.
Untuk menentukan lokasi bangunan, anda harus mengunjungi pentadbiran tempatan dan mendapatkan peta di sana yang menggambarkan pengezonan geodetik kawasan tersebut dan semua ciri-ciri relief berdekatan. Peta sedemikian akan merangkumi maklumat mengenai lokasi air bawah tanah, arahnya, ciri tanah dan data lain yang berguna untuk pembinaan.
Pelan rumah satu tingkat 6 x 6 meter
Susun atur sebuah pondok satu tingkat, diperbuat daripada kayu atau bahan lain, berdasarkan parameter dan ciri bentuknya. Struktur persegi, yang merupakan rumah 6x6 m, dianggap optimum.
Catatan! Simetri bangunan memungkinkan untuk mewujudkan dalaman yang seimbang dan harmoni. Ini adalah sebab peningkatan populariti projek dengan panjang sisi yang sama.
Memandangkan dimensi bangunan 6x6 m kecil, rumah seperti itu dapat dijadikan pondok desa. Pembinaannya akan disertai dengan kos yang lebih rendah daripada pembinaan struktur yang lebih keseluruhan atau dua tingkat. Dengan menggunakan alat dan teknologi reka bentuk moden, di sini anda boleh mengatur semua syarat yang diperlukan untuk penginapan yang selesa.
Penjimatan yang besar dapat dicapai kerana organisasi sistem pemanasan yang kompeten, jika perapian yang dilengkapi dengan radiator atau dandang dengan daya rendah digunakan sebagai penggantinya.
Dalam ruang seluas 36 meter persegi, bilik boleh berada:
- ruang tamu;
- bilik tidur;
- dapur;
- bilik mandi kecil;
- bilik dandang;
- lorong.
Pilihan yang baik adalah menggabungkan dapur dan ruang tamu mengikut jenis studio... Terima kasih kepada penyelesaian ini, anda dapat meningkatkan kawasan yang boleh digunakan.
Pelan rumah satu tingkat 9 x 9 meter
Bangunan satu tingkat 9x9 m dari segi susun atur mempunyai ciri yang sama dengan struktur persegi yang lebih kecil. Kelebihan bangunan dengan panjang sisi 9 m adalah kawasan yang dapat digunakan bertambah, yang memungkinkan untuk mempelbagaikan reka bentuk dalaman bilik.
Sebagai contoh, pertimbangkan reka bentuk pintu. Ruang pondok yang terhad dengan keluasan 36 meter persegi, untuk menjimatkan ruang bebas, memerlukan pemasangan pintu dalaman jenis gelangsar. Pemasangan struktur dengan ikat pinggang, yang tersembunyi di dalam kotak khas yang diletakkan di dinding, akan memaksimumkan penjimatan ruang. Sementara bangunan kediaman dengan dimensi 9x9 m membenarkan pemasangan pintu klasik dengan daun berengsel.
Nasihat berguna! Dengan bantuan lantai loteng, anda dapat menyelesaikan sebahagian masalah sesak di bangunan kecil. Dalam hal ini, area loteng digunakan untuk menampung kamar tidur yang besar, yang membebaskan ruang untuk mengatur dapur dan ruang tamu dengan dimensi yang meningkat. Walau bagaimanapun, anda perlu mencari tempat untuk memasang tangga, yang tidak akan menimbulkan masalah jika loteng termasuk dalam susun atur rumah 9x9 m.
Susun atur rumah satu tingkat 8 x 10 meter
Pilihan susun atur cukup luas, jadi anda mempunyai peluang untuk mencari pilihan yang sangat tepat dan sesuai untuk anda. Pembinaan di kawasan pinggir bandar rumah dengan parameter 8x10 m akan membolehkan anda memperoleh:
- empat bilik tidur;
- ruang tamu;
- dapur.
Dan ini hanyalah tempat tinggal utama. Kita tidak boleh lupa bahawa di pondok seperti itu, selain bilik yang disenaraikan, anda boleh mengatur bilik mandi dan bilik utiliti. Susun aturnya mungkin termasuk beranda atau ruang depan, yang akan memberikan perlindungan tambahan dari sejuk pada musim sejuk.
Semasa membuat rancangan untuk rumah seluas 8 x 10 m, untuk menjimatkan ruang yang boleh digunakan, anda boleh menolak untuk mengatur koridor panjang yang mencuri ruang kosong. Sebagai tambahan, penyelesaian yang menguntungkan adalah dengan menggabungkan kawasan dapur dan ruang tamu dengan membuang dinding yang memisahkan bilik-bilik ini.
Projek rumah satu tingkat hingga 150 m2: gambar dan susun atur yang popular
Beberapa projek mungkin mempunyai elemen struktur tambahan yang meningkatkan seni bina bangunan.
Unsur-unsur ini merangkumi:
- tingkap teluk;
- balkoni;
- teres;
- beranda.
Catatan! Semua elemen ini kelihatan seperti luaran bangunan luar (pengecualian adalah tingkap), yang dirancang untuk beroperasi pada musim panas dan dalam keadaan cuaca yang baik.
Teres dan beranda bagus untuk mengatur kawasan tempat duduk. Pada waktu malam, ruang ini boleh digunakan untuk minum teh bersama keluarga atau rakan. Balkoni akan menjadi tempat yang bagus untuk berehat dan merenungkan keindahan pemandangan di sekitar rumah.
Tingkap teluk mempunyai makna fungsi yang lebih kompleks untuk bangunan. Ia menghiasi rumah dengan berkesan dari sisi fasad, dan juga dapat menjadikan susun atur dalaman lebih menarik. Di samping itu, tingkap bay membolehkan pemasangan tingkap besar. Ini meningkatkan aliran cahaya semula jadi yang memasuki rumah dari jalan.
Dalam lukisan bangunan dengan tingkap teluk, anda dapat melihat betapa menariknya kotak bangunan segi empat tepat atau persegi dengan parameter standard. Selalunya, tingkap teluk dipasang pada struktur yang terbuat dari batu atau kayu. Dalam kes ini, jenis bahan mempunyai kesan langsung terhadap bentuk elemen ini.
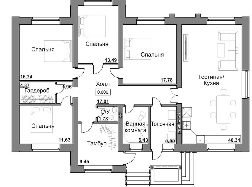
Rancangan untuk rumah satu tingkat 10 x 12 meter dan 10 x 10 meter
Pondok satu tingkat dengan dimensi 10x10 m dan lebih sudah berada di luar ruang lingkup projek sehingga 100 meter persegi. Selalunya, pemilik plot tanah dengan keluasan luas memikirkan pembinaan bangunan seperti itu. Struktur seperti itu dapat digunakan tidak hanya sebagai pondok musim panas untuk musim panas, tetapi juga mampu melaksanakan fungsi perumahan penuh untuk kediaman tetap keluarga beberapa orang.
Kelebihan bilik persegi adalah bahawa ia memudahkan pengedaran barang perabot dan optimum untuk mengatur tahap pencahayaan yang baik.
Bangunan dengan ukuran 10x10 m ini boleh memuatkan keluarga 4-5 orang. Secara umum, susun atur pondok seperti ini membolehkan anda membuat keadaan hidup yang serupa dengan apa yang ditawarkan oleh pangsapuri tiga bilik di bandar. Pemanasan disediakan oleh bilik dandang di rumah seperti itu.
Selain kamar yang diperlukan, pemilik dapat mengatur kamar lain yang memberikan peningkatan kenyamanan:
- melengkapkan pejabat;
- untuk meningkatkan saiz bilik mandi dengan pemasangan bilik mandi seterusnya dan bukannya bilik mandi;
- memasang jakuzi.
Nasihat berguna! Sekiranya projek diperbesar hingga 10x12 m, kemungkinan untuk menambah ruang tamu dan bilik persalinan ke rencana umum.
Pelan rumah satu tingkat 11 x 11 meter
Satu cerita rumah kayu - alternatif yang bagus untuk batu bata dan konkrit. Pondok kayu bukan sahaja murah, tetapi juga mesra alam. Tidak memerlukan banyak masa untuk membina sebuah bangunan yang diperbuat daripada kayu 11x11 m. Sebagai balasan, anda akan mendapat sekitar 102,5 m2 kawasan yang boleh digunakan dan sejumlah premis yang mencukupi.
Reka bentuk bangunan 11x11 m mungkin merangkumi:
- beberapa ruang tamu;
- dapur;
- bilik mandi;
- dewan;
- beranda, ruang depan, bilik dandang.
Sebaiknya gunakan kayu dengan parameter 150x100 sebagai bahan binaan. Jenis pembinaan mendatar membolehkan anda meninggalkan pemasangan tangga, yang mempunyai struktur dan teknologi pembinaan yang kompleks, dan bahkan menempati sebahagian kawasan yang boleh digunakan baik di tingkat pertama dan di tingkat dua. Tidak ada masalah seperti itu dengan bangunan satu tingkat.
Pelan rumah satu tingkat 12 x 12 meter
Bangunan satu tingkat dengan ukuran 12x12 m dapat menjadi asas yang sangat baik untuk membuat susun atur yang selesa. Dimensi perumahan membolehkan anda mengatur:
- beberapa bilik tidur;
- ruang tamu;
- dapur;
- ruang makan;
- dua bilik mandi penuh.
Projek 12x12 m membolehkan anda mengatur ruang bawah tanah atau loteng. Sambungan dalam bentuk teres atau garaj dapat memperluas kawasan rumah yang berguna.
Terdapat banyak pilihan untuk membuat rancangan bangunan yang selesa dan selesa untuk membina kawasan pinggir bandar. Pilihannya hanya terhad oleh imaginasi dan anggaran anda.